Меню по разделу
+
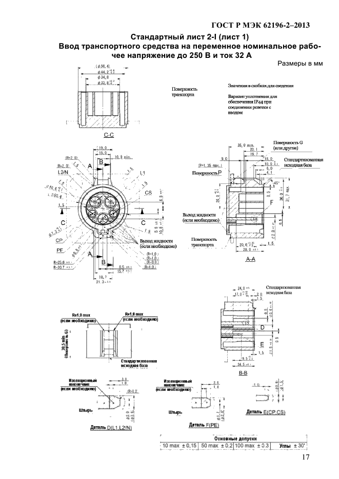
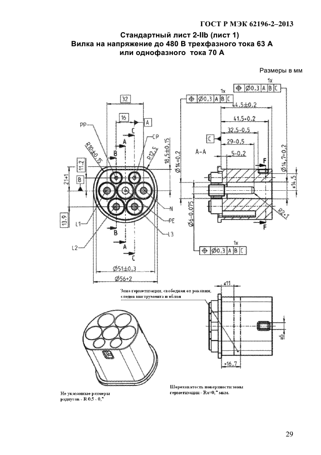
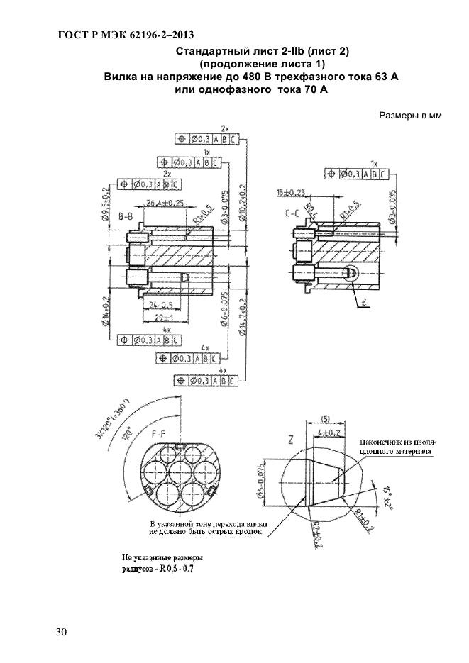
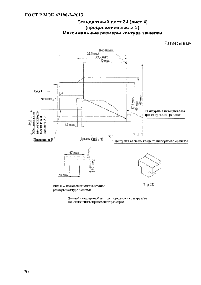
Настоящий стандарт распространяется на вилки, штепсельные розетки, переносные розетки и вводы транспортных средств со штырями и контактными гнездами стандартизованных конфигураций, рассчитанные на паспортное номинальное рабочее напряжение не более 500 В переменного тока частотой 50-60 Гц и номинальный ток не более 63 А для трехфазной сети или 70 А - для однофазной, применяемые в кондуктивной (проводной) зарядке электромобилей.
Настоящий стандарт охватывает устройства базового интерфейса источника питания транспортных средств по МЭК 62196-1, предназначенные для применения в цепях кондуктивных зарядных систем по МЭК 61851-1:2010.
Понятие электромобили (EV) распространяется на все дорожные транспортные средства, в том числе гибридные дорожные транспортные средства (PHEV), которые получают всю или часть энергии от бортовых батарей
| Обозначение: | ГОСТ Р МЭК 62196-2-2013 |
| Статус: | действующий |
| Название рус.: | Вилки, штепсельные розетки, соединители и вводы для транспортных средств. Кондуктивная зарядка для электромобилей. Часть 2. Требования размерной совместимости и взаимозаменяемости для штыревых разъемов и арматуры сети переменного тока |
| Дата актуализации текста: | 06.04.2015 |
| Дата актуализации описания: | 10.08.2017 |
| Дата издания: | 01.09.2014 |
| Дата введения в действие: | 01.09.2014 |
| Дата последнего изменения: | 13.07.2017 |
| Область и условия применения: | Настоящий стандарт распространяется на вилки, штепсельные розетки, переносные розетки и вводы транспортных средств со штырями и контактными гнездами стандартизованных конфигураций, рассчитанные на паспортное номинальное рабочее напряжение не более 500 В переменного тока частотой 50-60 Гц и номинальный ток не более 63 А для трехфазной сети или 70 А - для однофазной, применяемые в кондуктивной (проводной) зарядке электромобилей.
Настоящий стандарт охватывает устройства базового интерфейса источника питания транспортных средств по МЭК 62196-1, предназначенные для применения в цепях кондуктивных зарядных систем по МЭК 61851-1:2010. Понятие электромобили (EV) распространяется на все дорожные транспортные средства, в том числе гибридные дорожные транспортные средства (PHEV), которые получают всю или часть энергии от бортовых батарей |
| Страниц: | 64 |
| Ссылки для скачивания: |

