Меню по разделу
+
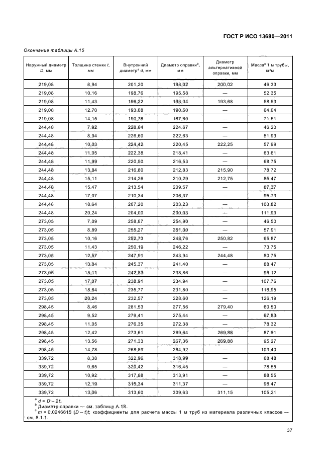
Настоящий стандарт распространяется на бесшовные обсадные, насосно -компрессорные трубы и трубные заготовки для муфт из коррозионно-стойких высоколегированных сталей и сплавов, поставляемые по двум уровням требований к изделиям:
- PSL-1 - уровню, устанавливающему основные требования настоящего стандарта к изделиям;
- PSL-2 - уровню, устанавливающему помимо основных дополнительные требования к коррозионной стойкости и стойкости изделий к растрескиванию под действием окружающей среды и аттестации изделий в соответствии с ИСО 15156-3
| Обозначение: | ГОСТ Р ИСО 13680-2011 |
| Статус: | действующий |
| Название рус.: | Трубы бесшовные обсадные, насосно-компрессорные и трубные заготовки для муфт из коррозионно-стойких высоколегированных сталей и сплавов для нефтяной и газовой промышленности. Технические условия |
| Название англ.: | Seamless casing, tubing and coupling stock from corrosion-resistant high-alloy steels and alloys for petroleum and natural gas industries. Specifications |
| Дата актуализации текста: | 06.04.2015 |
| Дата актуализации описания: | 10.08.2017 |
| Дата издания: | 15.08.2013 |
| Дата введения в действие: | 01.01.2013 |
| Дата последнего изменения: | 13.07.2017 |
| Дата окончания срока действия: | 30.09.2017 |
| Область и условия применения: | Настоящий стандарт распространяется на бесшовные обсадные, насосно -компрессорные трубы и трубные заготовки для муфт из коррозионно-стойких высоколегированных сталей и сплавов, поставляемые по двум уровням требований к изделиям:
- PSL-1 - уровню, устанавливающему основные требования настоящего стандарта к изделиям; - PSL-2 - уровню, устанавливающему помимо основных дополнительные требования к коррозионной стойкости и стойкости изделий к растрескиванию под действием окружающей среды и аттестации изделий в соответствии с ИСО 15156-3 |
| Список изменений: | №0 от 30.09.2017 (рег. 20.03.2017) «Текстовое изменение; Изменено заглавие» |
| Страниц: | 62 |
| Ссылки для скачивания: |

