Меню по разделу
+
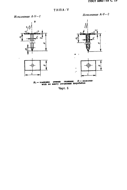
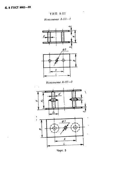
Настоящий стандарт распространяется на жеребейки, используемые для получения чугунных и стальных отливок в песчанных формах
| Обозначение: | ГОСТ 9062-89 |
| Статус: | действующий |
| Название рус.: | Жеребейки для чугунных и стальных отливок. Общие технические условия |
| Название англ.: | Chaplets for iran and steel. General specifications |
| Дата актуализации текста: | 06.04.2015 |
| Дата актуализации описания: | 10.08.2017 |
| Дата издания: | 08.02.1990 |
| Дата введения в действие: | 01.01.1991 |
| Дата последнего изменения: | 13.07.2017 |
| Область и условия применения: | Настоящий стандарт распространяется на жеребейки, используемые для получения чугунных и стальных отливок в песчанных формах |
| Страниц: | 25 |
| Ссылки для скачивания: |

