Меню по разделу
+
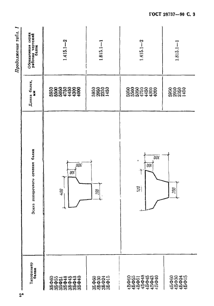
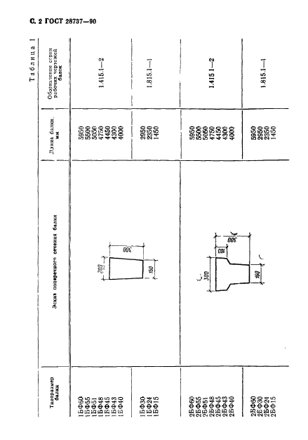
Настоящий стандарт распространяется на железобетонные фундаментные балки, изготовляемые из тяжелого бетона и предназначаемые для опирания наружных и внутренних стен зданий промышленных и сельскохозяйственных предприятий
| Обозначение: | ГОСТ 28737-90 |
| Статус: | заменён |
| Заменяющий: | ГОСТ 28737-2016 Балки фундаментные железобетонные для стен зданий промышленных и сельскохозяйственных предприятий. Технические условия |
| Название рус.: | Балки фундаментные железобетонные для стен зданий промышленных и сельскохозяйственных предприятий. Технические условия |
| Название англ.: | Reinforced concrete foundation beams for buildings walls of industrial and agricultural enterprises. Specifications |
| Дата актуализации текста: | 06.04.2015 |
| Дата актуализации описания: | 10.08.2017 |
| Дата издания: | 05.03.1991 |
| Дата введения в действие: | 30.06.1991 |
| Дата последнего изменения: | 13.07.2017 |
| Дата окончания срока действия: | 31.05.2017 |
| Область и условия применения: | Настоящий стандарт распространяется на железобетонные фундаментные балки, изготовляемые из тяжелого бетона и предназначаемые для опирания наружных и внутренних стен зданий промышленных и сельскохозяйственных предприятий |
| Страниц: | 12 |
| Ссылки для скачивания: |

