Меню
Навигация
Первая линия
Novatika
Novatika

Технологические схемы на разборку и демонтаж конструкций междуэтажных перекрытий

Технологические схемы на разборку и демонтаж конструкций междуэтажных перекрытий предназначены для применения при капитальном ремонте культурно-просветительских, административных и гражданских зданий. Технологическими схемами предусматриваются полная разборка и демонтаж междуэтажных перекрытий по деревянным балкам, а также по металлическим балкам.

Обозначение: 7397 ТК
Название рус.: Технологические схемы на разборку и демонтаж конструкций междуэтажных перекрытий
Статус: не установлен срок действия
Дата актуализации текста: 05.05.2017
Дата добавления в базу: 01.09.2013
Дата введения в действие: 09.11.2000
Утвержден: 09.11.2000 ОАО ПКТИпромстрой (PKTIpromstroy OAO )
Опубликован: ОАО ПКТИпромстрой (2000 г. )
Ссылки для скачивания:

Открытое акционерное общество

Проектно-конструкторский и технологический
институт промышленного строительства

ОАО ПКТИпромстрой

 

 

 

УТВЕРЖДАЮ

Генеральный директор, к.т.н.

____________ С.Ю. Едличка

«09» ноября   2000 г.

 

ТЕХНОЛОГИЧЕСКИЕ СХЕМЫ
НА РАЗБОРКУ И ДЕМОНТАЖ КОНСТРУКЦИЙ
МЕЖДУЭТАЖНЫХ ПЕРЕКРЫТИЙ

7397 ТК

Главный инженер

_________ А.В. Колобов

Начальник лаборатории

_________ Б.И. Бычковский

2000

Технологические схемы на разборку и демонтаж конструкций междуэтажных перекрытий содержат рациональные решения по организации и производству этих работ, обеспечивающие качественные показатели, охрану труда и технику безопасности при реконструкции и капитальном ремонте зданий.

В схемах приведены:

- область применения;

- организация и технология строительного производства;

- требования техники безопасности и охраны труда, экологической и пожарной безопасности;

- потребность в средствах механизации, инструменте и приспособлениях;

- технико-экономические показатели.

Технологические схемы предназначены для производителей работ, мастеров и бригадиров, занимающихся реконструкцией перекрытий жилых и общественно-административных зданий, технического надзора заказчика, а также инженерно-технических работников строительных и проектно-технологических организаций.

Технологические схемы разработали сотрудники лаборатории совершенствования организации и технологии строительства (отдел 41) ОАО ПКТИпромстрой:

Бычковский Б.И. - руководитель разработки и нормоконтроль,

Покровская Е.В. - разработка, компьютерная графика и обработка;

Ярымов Ю.А. - общее техническое руководство;

к.т.н. Шахпаронов В.В. - научно-методическое руководство;

к.т.н. Едличка С.Ю. - общее руководство.

СОДЕРЖАНИЕ

1 ОБЛАСТЬ ПРИМЕНЕНИЯ

1.1 Технологические схемы на разборку и демонтаж конструкций междуэтажных перекрытий предназначены для применения при капитальном ремонте культурно-просветительских, административных и гражданских зданий.

1.2 Настоящими технологическими схемами предусматриваются полная разборка и демонтаж междуэтажных перекрытий по деревянным балкам, конструктивное решение которого представлено на рисунке 1, а также по металлическим балкам.

Рисунок 1 - Перекрытие по деревянным балкам с щитовым накатом.

1.3 В разборку перекрытия входит: разборка чистых полов и лаг, удаление теплозвукоизоляционной засыпки, разборка подбора, разборка дощатой подшивки потолка.

Демонтажные работы при разборке перекрытий включают строповку-расстроповку деревянных и металлических балок, распиливание у опор и удаление их за пределы здания.

1.4 При частичной разборке производится и частичная корректировка материально-технических затрат, калькуляции и графика производства работ.

1.5 При замене металлических балок в перекрытии работы следует производить согласно пп. 1.3 и 1.4 настоящего раздела.

1.6 В качестве основных строительных механизмов, используемых для производства демонтажных работ, применяются башенный кран КБк-160.2 с lсmp. = 25 м и строительный подъемник ТП-14. Возможны варианты использования и других грузоподъемных механизмов, имеющихся в наличии в строительных подрядных организациях. Окончательный вариант механизации работ по разборке материалов и демонтажу конструкций перекрытий устанавливается проектом производства работ.

1.7 Привязка технологических схем к конкретным объектам и условиям строительства состоит в уточнении объемов работ, средств механизации, потребности в трудовых и материально-технических ресурсах, а также графической схемы организации строительного процесса соответственно фактическим размерам здания и окружающей ситуации, исходя из условий обеспечения безопасной работы.

2 ОРГАНИЗАЦИЯ И ТЕХНОЛОГИЯ ВЫПОЛНЕНИЯ РАБОТ.

2.1 Для проведения работ по разборке перекрытий кроме данных обследования технического состояния конструкций заказчику в соответствии с «Положением о едином порядке предпроектной и проектной подготовки строительства в г. Москве» необходимо иметь комплект документов в составе:

- правоустанавливающих документов на использование объекта;

- согласованной в установленном порядке и утвержденной Заказчиком проектной документации;

- разрешения на осуществление градостроительной деятельности (проведение капитального ремонта);

- разрешения (ордера) на производство работ.

2.2 Заказчиком и подрядной организацией совместно с генеральной проектной организацией должны быть:

- согласованы объемы, технологическая последовательность, сроки выполнения работ, а также условия их совмещения с работой производственных цехов и участков, реконструируемого здания;

- определен порядок оперативного руководства, включая действия строителей и эксплуатационников, при возникновении аварийных ситуаций;

- определены последовательность разборки конструкций, а также разборки или переноса инженерных сетей, места и условия подключения временных сетей водоснабжения, электроснабжения и др.;

- составлен перечень услуг заказчика и его технических средств, которые могут быть использованы строителями в период производства работ;

- определены условия организации перевозок и складирования грузов и передвижения строительной техники по территории объекта, а также размещения мобильных (инвентарных) зданий и сооружений.

2.3 До начала работ по разборке конструкций необходимо произвести повторное обследование здания с выявлением конструктивных элементов, угрожающих обрушением или утративших несущую способность, и составлением акта, произвести установку временных креплений, ремонт и усиление этих конструкций, после чего необходимо:

- освободить подлежащее ремонту здание от пребывания людей;

- предусмотреть решения, предупреждающие условия возникновения опасных зон;

- разобрать временные существующие строения по периметру здания;

- оградить территорию стройплощадки;

- установить, при необходимости, по фасаду здания леса с натянутой сеткой в качестве защитного ограждения;

- устроить при необходимости, временные площадки для установки контейнеров для мусора, складирования конструкций и материалов от разборки перекрытий;

- отключить и вырезать пришедшие в негодность подземные инженерные коммуникации, питающие подлежащий ремонту дом.

2.4 Разборка и демонтаж элементов междуэтажного перекрытия производится сверху вниз в порядке, обратном монтажу, начиная с дальней точки захватки, и состоит из следующих операций:

- разборка чистых полов и лаг:

а) дощатых;

б) паркетных из штучного и щитового паркета.

- удаление звукотеплоизоляционной засыпки;

- разборка деревянного подбора;

- разборка дощатой подшивки потолка;

- демонтаж балок перекрытия.

2.5 Порядок разборки чистых полов и лаг:

2.5.1 Дощатые полы разбираются следующим образом, с помощью ломиков плотники 2 разряда (2 чел.), сняв плинтуса и половые вентиляционные решетки с инвентарных передвижных рабочих трапов последовательно, одну за другой разбирают рядовые доски пола. Подсобные рабочие, совместно со стропальщиком разобранные доски относят к месту складирования в колодце, пакетируют их для последующей транспортировки с помощью башенного крана на площадку складирования или в транспорт (рисунок 2).

Рисунок 2 - Схема разборки чистых полов и лаг

Рабочие трапы укладываются непосредственно на три смежные лаги и по мере разборки досок пола перемещаются по лагам к очередной разбираемой доске с помощью металлической скобы из арматурной стали AI Æ 12 ... 14 мм длиной 1,0 м.

В целях обеспечения сохранности досок пола (не повреждая шпунта или гребня и паза) для последующего использования их по своему прямому назначению, эта работа выполняется в следующей последовательности: с помощью ломика доска незначительно отрывается от лаги и ударами молотка осаждается вниз. После выдергивания гвоздей доска укладывается в штабель с последующим перемешиванием за пределы ремонтируемого здания.

Аналогичным образом разбираются лаги и основания под паркетные полы. При разборке дощатых полов необходимо обеспечить устройство ходовых настилов через 1,5 ... 2,0 м для прохода рабочих в безопасную зону при транспортировке груза с сохранением их до полного удаления засыпки, подбора подшивки и балок. С учетом хорошего фактического технического состояния разбираемых полов и лаг производителем работ может быть принято решение оставить 3 ... 4 доски для этих настилов общей шириной до 0,5 м, а при несоответствии расположения досок - для создания соответствующей ширины ходового настила.

Накопление материалов от разобранных полов в пакетах выполняется на деревянных подкладках на площадках, отстоящих от несущих капитальных стен на расстоянии не более 1,5 м. Объем пакета определяется в ППР в зависимости от состояния балок перекрытия и грузоподъемности монтажного механизма.

Транспортировка пакета с пиломатериалами выполняется следующим образом: стропальщик зацепляет стропами пакет и условным сигналом дает команду машинисту башенного крана (при отсутствии прямой видимости между машинистом и стропальщиком с помощью радиосвязи) на подъем груза на высоту 20 ... 30 см. Осмотрев пакет и убедившись в правильности и надежности строповки груза, стропальщик подает сигнал рабочим покинуть опасную зону, а машинисту башенного крана на дальнейший подъем и транспортировку пакета на объектовую складскую площадку или в автотранспорт. Сам стропальщик также покидает опасную зону. Дальнейшее наблюдение за транспортируемым грузом ведет машинист башенного крана и стропальщик, находящийся у объектовой складской площадки.

2.5.2 Разборка паркетных полов, оснований под них и лаг выполняется аналогичным способом, как и дощатых с тем отличием, что при штучном паркете отрывается каждая клепка, а при щитовом паркете производится отрыв целого щита от лаг и смежных щитов с предварительным перепилом их по квадратам заклейки.

Складируются щиты в штабеля, транспортная схема аналогична транспортировке досок пакетами.

2.6 Перед удалением засыпки ее разрыхляют с помощью пневматического отбойного молотка или ломика, а при сухой ветреной погоде по необходимости смачивают. Засыпку удаляют совковыми лопатами в ящики, установленные на деревянных щитах. Загруженные ящики транспортируются башенным краном в приемный объектовый бункер (отвал) или непосредственно в автотранспорт. Щит под ящик-мусоросборник укладывается на две смежные балки перекрытия на расстоянии не более 1,5 м от их заделки в кирпичную стену и переставляется на смежные участки перекрытия по мере удаления засыпки с предыдущих участков Работы выполняются с ходовых настилов, выполненных в период разборки полов. В целях максимального использования башенного крана по транспортировке засыпки с перекрытия на объектовый склад необходимо устанавливать несколько бункеров под загрузку засыпкой (определяется ППР, исходя из фактических объемов работ) (рисунок 3). Для удаления строительного мусора допускается использование и мусоропроводов.

2.7 Подбор снимают при помощи ломика с ходовых настилов и укладывают в пакеты на прокладки, уложенные на балки перекрытия. При наличии балок с пазами подбор разбирают, поворачивая в горизонтальной плоскости перекрытия до полного выхода его концов из пазов балок.

При разборке перекрытий работать на накате, а также складировать на них строительный мусор и материалы от разборки - запрещается (рисунок 4).

2.8 Разборка дощатой подшивки потолка выполняется следующим образом: с площадок монтажника (проект № 1999 «Мосоргстрой») по периметру помещений на нижележащем этаже в примыканиях стен к потолку штукатурным молотком отбивается штукатурка полосами шириной не менее 200 мм. Мусор убирается от стен и окучивается с таким расчетом, чтобы не мешал установке площадок монтажника.

Рисунок 3 - Схема удаления звукотеплоизоляции (засыпки) перекрытия

1, 2 - очередность и направление для разбираемой пластины подбора

Рисунок 4 - Схема разборки деревянного подбора

С ходовых трапов, ранее уложенных на балки перекрытия, одновременными ударами ломами по подшивке у балок производят отрыв обрезанных участков подшивки от этих балок перекрытия на нижележащее перекрытие. При разобранной подшивке таким способом участка шириной не менее 1,0 м дальнейшую разборку подшивки выполнять ломиками-гвоздодерами на отдельные доски непосредственно с площадок монтажника.

Во избежание возможного травмирования торчащими гвоздями в досках последние выдергиваются или загибаются, а доски равномерно распределяются на нижележащем перекрытии с последующим пакетированием и удалением из захватки башенным краном на объектовый склад или в автотранспорт через участки, освобожденные от балок перекрытия.

Уход рабочих в безопасную зону при перемещении башенным краном пакета с подшивкой и возвращение обратно на рабочее место выполняется по сигналу стропальщика по ходовым настилам.

2.9 Удаление деревянных балок выполняется по одному из нижеприведенных вариантов.

- распиливание балок у опор (стен) согласно рисункам 5 и 6 при удовлетворительном состоянии балок с предварительной строповкой и последующим удалением за пределы ремонтируемого здания;

- дополнительное распиливание балок посередине пролета в случае значительного повреждения балок гнилью или жучком.

Разборка выполняется в следующей последовательности:

- балка подпирается в трех местах со стороны опор (у стен) и в середине ее пролета инвентарной переставной сборно-разборной поддерживающей системой;

- с помощью пневматического молотка освобождаются концы балок, заделанные в кирпичные стены;

- ломами отгибаются металлические анкеры на концах балки в сторону;

- выполняются поперечные перепилы балки;

- застроповываются балки двухветвевым стропом и соответствующими кольцевыми в двух точках на расстоянии ¼ L от мест поперечного перепила балки и удаляются за пределы здания;

- удаляют оставшиеся концы.

Рисунок 5 - Схема привязки крана на период разборки перекрытий.

Рисунок 6 - Схема разборки междуэтажного перекрытия по деревянным балкам

Для обеспечения пространственной жесткости и устойчивости здания при разборке перекрытий необходимо сохранить каждую четвертую балку, заделанную и заанкерную в стенах, до установки металлических связей.

Разборка конструкций перекрытий должна производиться при минимальном разрушении кирпичных стен. При высвобождении концов балок гнезда следует расширять не более чем это требуется для выемки концов балок, отогнутые металлические анкера следует сохранять в теле стены и по возможности использовать их для анкеровки вновь монтируемых элементов перекрытия.

Разборка должна быть выполнена с максимальным выходом годного для дальнейшего использования материала, материалы от разборки подлежат вывозке с территории объекта или уложены на складских площадках в соответствии с проектом производства работ. Облагороженные и пригодные для повторного использования пиломатериалы от дощатых покрытий полов, балки перекрытий, паркетные щиты, доски от подшивки потолков могут повторно использоваться при устройстве временных зданий и других малоответственных конструкций.

При частичной реконструкции (замене одной или нескольких балок) сгнившую балку выпиливают и удаляют по частям с целью сохранения возможно большей части перекрытия. Эту работу лучше всего осуществлять с дощатых настилов, переброшенных через соседние здоровые балки.

2.10 Металлические балки демонтируют в той же последовательности, что и деревянные балки, включая дополнительные требования:

- настил должен быть пропитан антипирином или покрыт в местах резки балки металлическими (асбестовыми) листами на расстоянии согласно требованиям СНиП 12-03-2001;

- рядом с резчиком устанавливают ведро с водой и огнетушитель, после резки нагретые концы балок охлаждают водой.

(Измененная редакция. Корректировка).

2.11 Установка стоек унифицированной поддерживающей системы производится на деревянные щиты, уложенные на перекрытие, не утратившее несущую способность.

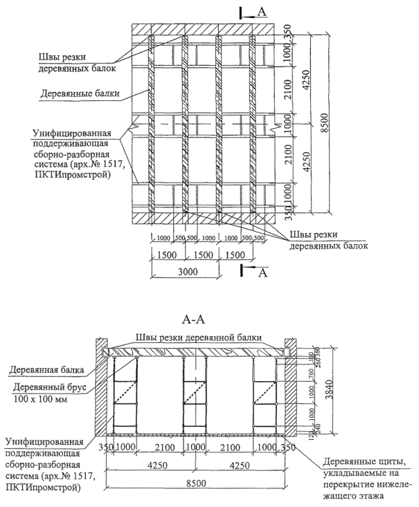
Унифицированная поддерживающая сборно-разборная система (арх. № 1517) разработана ОАО ПКТИпромстрой и предназначена для поддержания горизонтальных и наклонных перекрытий, лестничных маршей и т.д., для разборки и демонтажа конструкций при реконструкции зданий. Основной несущий элемент системы - одиночная тура высотой до 8,0 м, воспринимающая нагрузку 8 т. Размеры туры в плане 1 м ´ 1 м, высота ее регулируется в зависимости от высоты этажа для данного ремонтируемого здания. Вся система собирается из одиночных тур, устанавливаемых с шагом 1 м, для придания большей жесткости туры соединяются между собой с помощью горизонтальных и вертикальных связей.

2.12 При наличии башенного крана засыпку, замазку, утеплитель и др. сыпучий материал грузят совковыми лопатами в контейнеры, которые разгружаются в автотранспорт или бункер-мусоросборник. Подборы снимают с помощью ломика. Балки, не используемые в дальнейшем для устройства перекрытий, удаляют башенным краном.

2.13 При демонтаже деревянных или металлических балок необходимо соблюдать следующие требования:

- привязать к вырезанному элементу пеньковые оттяжки и застроповать, при этом в зоне захватки, в которой демонтируется элемент, и в соседней с ней, не должны находиться люди, кроме монтажника, имеющего радиосвязь с машинистом крана;

- приподнять застропованный элемент на 0,5 м над проектным положением;

- проверить правильность и надежность строповки;

- произвести подъем застропованного элемента на 0,5 м над верхним габаритом здания, после чего крановщик поворачивает стрелу крана в сторону, площадки складирования; при этом подъем демонтируемого элемента должен быть плавным, без рывков и толчков.

2.14 При разборке конструкций необходимо обеспечить такую последовательность операций, чтобы удаление одного конструктивного элемента не вызвало бы обрушения других конструктивных элементов.

2.15 При производстве демонтажных работ многие конструкции могут быть использованы в других целях, поэтому следует разборку производить аккуратно, не ломая конструктивные элементы.

2.16 Деревянные и металлические балки нужно обрезать аккуратно, без загибов. Обрезанные балки демонтировать в установленные места и проложить прокладками. Места обрезки зачистить и обработать кузбасс-лаком.

3 ТРЕБОВАНИЯ ТЕХНИКИ БЕЗОПАСНОСТИ И ОХРАНЫ ТРУДА, ЭКОЛОГИЧЕСКОЙ И ПОЖАРНОЙ БЕЗОПАСНОСТИ

3.1 До начала ремонтных работ должны быть выполнены предусмотренные проектом подготовительные работы, окончание которых должно быть принято по акту о выполнении мероприятий по безопасности труда.

3.2 К работе по разборке конструкций перекрытия допускаются рабочие не моложе 18 лет, прошедшие медицинское освидетельствование, обученные правилам производства работ и технике безопасности, ознакомленные с проектом производства работ. Осуществление работ без ППР не допускается.

При выполнении работ на захватке по разборке конструкций перекрытия запрещается пребывание людей на нижерасположенном этаже в зоне этой захватки и в соседних с ней.

3.3 Запрещается пронос деревянных и металлических балок и других грузов краном над рабочим местом, на котором производится разборка, и над соседними захватками.

3.4 Зоны, опасные для нахождения людей, на время ремонтных работ должны быть ограждены, иметь предупредительные надписи об опасности. Во избежание доступа посторонних лиц производственные территории и участки работ должны быть обнесены защитным ограждением высотой соответственно не менее 1,6 м и не менее 1,2 м. Ограждения, примыкающие к местам массового прохода людей, должны иметь высоту не менее 2 м и оборудованы сплошным защитным козырьком.

3.5 Рабочие места и проходы к ним, расположенные на перекрытиях, покрытиях на высоте более 1,3 м и на расстоянии менее 2 м от границы перепада по высоте, должны быть ограждены предохранительными или страховочными ограждениями, а при расстоянии более 2 м - сигнальными ограждениями, соответствующими требованиям ГОСТ 12.4.059-89.

3.6 Входы в строящиеся здания и сооружения должны быть защищены сверху козырьком шириной не менее 2 м от стены здания. Угол, образуемый между козырьком и вышерасположенной стеной над входом, должен быть 70 - 75°.

3.7 Строительные площадки, участки работ и рабочие места, проезды и подходы к ним в темное время суток должно быть освещены в соответствии с требованиями ГОСТ 12.1.046-85. Освещение закрытых помещений должно соответствовать требованиям СНиП 23-05-95.

Освещенность должна быть равномерной, без слепящего действия осветительных приспособлений на работающих. Производство работ в неосвещенных местах не допускается.

3.8 Производственные территории, участки работ и рабочие места должны быть обеспечены необходимыми средствами коллективной или индивидуальной защиты работающих, первичными средствами пожаротушения, а также средствами связи, сигнализации и другими техническими средствами обеспечения безопасных условий труда, в соответствии с требованиями действующих нормативных документов и условиями соглашений.

3.9 Проемы в стенах с подоконной частью ниже 70 см, дверные проемы в зону, где разобраны перекрытия, должны быть надежно закрыты, отверстия в перекрытиях должны быть ограждены на высоту 1,1 м.

3.10 Запрещается перегружать перекрытия строительным мусором и материалами от разборки. Накопившийся строительный мусор и материалы от разборки должны немедленно вывозиться в места отвалов.

3.11 На время работ по разборке должна быть обеспечена радиосвязь монтажников и такелажников с машинистом грузоподъемного крана.

3.12 Сигнал «Стоп» подается любым работником, заметившим опасность.

3.13 При демонтаже балок перекрытия к ним привязать пеньковые канаты (оттяжки), с помощью которых монтажники удерживают элемент от раскачивания и ударов о конструкции здания. Подъем демонтируемого элемента должен быть плавным без рывков и толчков. Монтажники должны находиться со стороны, противоположной перемещению балки и должны находиться на безопасном расстоянии от поднимаемого элемента.

3.14 Запрещается оставлять нависающие, неустойчивые, могущие самопроизвольно обрушиться конструкции или отдельные элементы здания (доски, щитовой накат, утеплитель и т.д.).

3.15 С особой осторожностью следует производить работы по демонтажу перекрытий, пораженных домовым грибком или жуком, и перекрытий с сильно коррозированными металлическими балками. При обнаружении аварийного состояния конструкций рабочие должны быть немедленно удалены из опасной зоны. Опасная зона согласно требованиям СНиП 12-03-2001 должна быть немедленно ограждена с установкой предупреждающих знаков либо выставлена охрана. К работе можно приступить по письменному указанию главного инженера и оформления наряд-допуска с указанием мероприятий, гарантирующих безопасные условия работ.

(Измененная редакция. Корректировка).

3.16 Рабочие должны быть обеспечены предохранительными поясами со страховочным фалом, карабин которого надежно закрепляется за прочную конструкцию, указываемую мастером или бригадиром.

3.17 К работе с электрифицированным инструментом допускаются лица не моложе 18 лет, прошедшие медицинское освидетельствование, обученные правилам пользования инструментом, технике безопасности и имеющие группу по электробезопасности не ниже II, а для подключения и отключения электроточек с группой не ниже III. Весь электрифицированный инструмент подлежит учету и регистрации в специальном журнале. На каждом экземпляре инструмента должен стоять учетный номер. Наблюдение за исправностью и своевременным ремонтом электрифицированного инструмента возлагается на отдел главного механика строительной организации. Перед выдачей электрифицированного инструмента необходимо проверить его исправность (отсутствие замыкания на корпус, изоляцию у питающих проводов и рукояток, состояние рабочей части инструмента) и работу его на холостом ходу.

3.18 При производстве газопламенных работ необходимо выполнять требования СНиП 12-03-2001, ГОСТ 12.3.003-86*, ГОСТ 12.3.036-84* и ППБ 01-93**.

(Измененная редакция. Корректировка).

3.19 Места производства газопламенных работ на данном, а также на нижерасположенных ярусах (при отсутствии несгораемого защитного настила или настила, защищенного несгораемым материалом) должны быть освобождены от сгораемых материалов в радиусе не менее 5 м, а от взрывоопасных материалов и оборудования - не менее 10 м.

3.20 При резке элементов конструкций должны быть приняты меры против случайного обрушения отрезанных элементов.

3.21 Все рабочие должны быть обеспечены специальной одеждой, обувью и другими средствами индивидуальной защиты.

3.22 Одновременная разборка конструкций или демонтаж оборудования в процессе разборки перекрытий в двух и более ярусах по одной вертикали не допускается.

3.23 Для предупреждения пылеобразования и гашения поднявшейся пыли при разборке перекрытий строительный мусор необходимо полить водой. По фасадам здания должна быть натянута плотная синтетическая сетка.

3.24 Грузозахватные устройства и тара, применяемые при перемещении кранами грузов, должны быть испытаны нагрузкой превышающей не менее чем в 2 раза их номинальную грузоподъемность.

3.25 В зоне работы необходимо иметь комплекты противопожарных средств из расчета 1 комплект на 200 м2 площади.

3.26 Все работы по разборке и демонтажу конструкций перекрытия вести в присутствии и под руководством ответственных ИТР в соответствии с правилами производства и приемки работ согласно СНиП 3.03.01-87 при строгом соблюдении требований техники безопасности согласно СНиП 12-03-2001 и СНиП III-4-80*.

(Измененная редакция. Корректировка).

4 ПОТРЕБНОСТЬ В СРЕДСТВАХ МЕХАНИЗАЦИИ, ИНСТРУМЕНТЕ И ПРИСПОСОБЛЕНИЯХ

4.1 Для выполнения работ по разборке и демонтажу перекрытий могут быть использованы в зависимости от технических характеристик и вида работ указанные в таблице 1 машины, механизмы, инструмент и приспособления.

Таблица 1 - Ведомость машин, механизмов, инструмента и приспособлений и средств индивидуальной защиты

Наименование

Тип, марка, ГОСТ

Ед. изм.

Количество

Примечание

1

2

3

4

5

Кран башенный

КБк-160.2

шт.

1

 

Автосамосвал

ЗИЛ-ММЗ-555 (ПКС-5)

шт.

по потребности

 

Компрессор

ЗИФ-55

шт.

1

 

Совковые лопаты растворные

ЛР

шт.

7

 

Лом строительный

 

шт.

5

 

Контейнер для мусора

 

шт.

2

 

Пила-ножовка

ПИ-3

шт.

4

 

Кувалда тупоносая

ГОСТ 11402-75*

шт.

2

 

Лом-гвоздодер

ЛГ-25

шт.

4

 

Лом монтажный

ЛМ-24

шт.

3

 

Контейнер для газовых баллонов

 

шт.

1

 

Площадка монтажника и электросварщика

Проект № 1999 Мосоргстрой

шт.

3

 

Сварочный трансформатор

ТД 502-43

шт.

1

 

Мусоросборник

МС-1

шт.

1

 

Строительный подъемник

ТП-14

шт.

1

 

Металлическая скоба

 

шт.

2

Для перемещения трапов

Унифицированная поддерживающая сборно-разборная система

Проект № 1517

ПКТИпромстрой

м3

140,4

 

Лестница приставная этажная

№ 18279-15

шт.

4

 

Метр складной металлический

ТУ 12-156-76

шт.

2

 

Рулетка металлическая

РС-10

шт.

1

 

Шнур разметочный

ТУ 224633-80

шт.

2

 

Костюм мужской для защиты от общих загрязнений и механических воздействий

Е-135

шт.

10

 

Сапоги кирзовые

ГОСТ 5394-74

шт.

10

 

Галоши диэлектрические

ГОСТ 13385-78

шт.

10

 

Каска строительная

ГОСТ 12.4.087-84

шт.

10

 

Очки защитные с прямой вентиляцией

ЗП-2-80

шт.

10

-

Рукавицы

ГОСТ 12.4.010-75

шт.

10

 

Респиратор

«Лепесток»

ГОСТ 12.4.028-76

шт.

10

 

Пояс предохранительный

 

шт.

10

 

Бензомоторная или электрическая пилы

 

шт.

2

 

Комплект знаков по технике безопасности

ГОСТ 12.4.026-76*

компл.

1

 

5 ТЕХНИКО-ЭКОНОМИЧЕСКИЕ ПОКАЗАТЕЛИ

5.1 В качестве примера разборки и демонтажа конструкций междуэтажных деревянных перекрытий принята захватка размером 10 м2 с шагом балок перекрытий 1,5 м, на объемы работ которой составлены калькуляция затрат труда и машинного времени и календарный план производства работ.

5.2 Затраты труда и машинного времени на разборку и демонтаж конструкций междуэтажных перекрытий подсчитаны по «Единым нормам и расценкам на строительные, монтажные и ремонтно-строительные работы», введенным в действие в 1987 г., и представлены в таблице 2.

5.3 Продолжительность работ на разборку и демонтаж конструкций перекрытий определяется календарным планом работ, представленным в таблице 3.

5.4 Технико-экономические показатели составляют:

- затраты машинного времени, маш-час.                                    1,08

- затраты труда, чел - час.:

для дощатых полов с деревянными балками                                  43,18

для паркетных полов с металлическими балками                         44,28

- продолжительность работ, час:

для дощатых полов с деревянными балками                                  20,65

для паркетных полов с металлическими балками                         23,25


Таблица 2 - Калькуляция затрат труда и машинного времени

Единица измерения конечной продукции 10 м2 перекрытия

Обоснование, ЕНиР

Наименование технологических процессов

Ед. изм.

 

Норма времени

Затраты труда

 

машиниста, чел -ч. (работа машин, маш. -ч)

рабочих чел -ч.

машиниста, чел.-ч. (работа машин, маш.-ч.)

 

Разборка чистых полов:

 

 

 

 

 

 

Е20-1-62 № 1

дощатых

1 м2

10

0,17

-

1,7

-

Е20-1-62 № 3

паркетных

1 м2

10

0,43

-

4,3

-

Е1-19 № 4а + 5а

Переноска досок к месту складирования

1 м3

0,4

0,64 + 0,38

-

0,41

-

Е1-20 № 10

Укладка в пакеты

1 м3

0,4

1,1

-

0,44

-

Е1-7 № 24аб + 24вг

Удаление пакетов башенным краном при высоте подъема до 30 м

100 т

0,0025

19 + 8,4

9,4 + 4,2

(9,4 + 4,2)

0,07

0,03

(0,03)

Е20-1-62 № 9

Разборка лаг

100 м лаг

1,26

4,1

-

5,166

-

Е1-19 № 4а + 5а

Переноска их к месту складирования

1 м3

0,8

0,64 + 0,38

-

0,82

-

Е1-20 № 10

Укладка в пакеты

1 м3

0,8

1,1

-

0,88

-

Е1-7 № 24аб + 24вг

Удаление пакетов краном

100 т

0,005

19 + 8,4

9,4 + 4,2

(9,4 + 4,2)

0,14

0,07

(0,07)

Е20-1-45 т. 1 № 2

Удаление звукоизоляционной засыпки

1 м2

10

0,27

-

2,7

-

Е20-1-45 т. 2 № 3

Разборка подбора

10 м2

1

1,1

-

1,1

-

Е1-20 № 10

Укладка в пакеты

1 м3

0,8

1,1

-

0,88

-

Е20-1-45 т. 3 № 1

Разборка подшивки потолка

1 м2

10

2,4

-

24

-

Е1-20 № 10

Укладка в пакеты

1 м3

0,8

1,1

-

0,88

-

Е1-7 № 24аб + 24вг

Удаление пакетов краном

100 т

0,0025

19 + 8,4

9,4 + 4,2

(9,4 + 4,2)

0,07

0,03

(0,03)

 

Разборка балок перекрытия:

 

 

 

 

 

 

Е20-1-45 т. 4 № 1

деревянных

1 балка

1

2

-

2

-

Е20-1-46

металлических

1 балка

1

1,5

-

1,5

-

Е1-7 № 24аб + 24в1

Удаление балок краном

100 т

0,07

19 + 8,4

9,4 + 4,2

(9,4 + 4,2)

1,92

0,95

(0,95)

Итого:

Для дощатых полов с деревянными балками

43,18

1,08

Для паркетных полов с металлическими балками

44,28

1,08

Таблица 3 - Календарный план производства работ

Единица измерения конечной продукции 10 м2 перекрытия


6 ПЕРЕЧЕНЬ НОРМАТИВНО-ТЕХНИЧЕСКОЙ ЛИТЕРАТУРЫ

1 СНиП 3.01.01-85*. Организация строительного производства.

2 СНиП 3.03.01-87. Несущие и ограждающие конструкции.

3 СНиП III-4-80*. Техника безопасности в строительстве.

4 СНиП 12-03-2001. Безопасность труда в строительстве Часть 1. Общие требования.

5 СНиП 23-05-95 Естественное и искусственное освещение.

6 Ю.Ф. Думашев, С.Д. Химунин. Справочник по капитальному ремонту жилых и общественных зданий. Москва. Стройиздат. 1975.

7 А.И. Лысова, К.А. Шарлыгина. Реконструкция зданий. Ленинград, Стройиздат. 1979.

8 ЕНиР. Единые нормы и расценки на строительные, монтажные и ремонтно-строительные работы. Сборник 1. Внутрипостроечные транспортные работы.

9 Сборник 20. Ремонтно-строительные работы. Выпуск 1. Здания и промышленные сооружения.

10 ГОСТ 12.4.059-89 ССБТ. Строительство. Ограждения предохранительные инвентарные. Общие технические условия.

11 ГОСТ 12.1.046-85 ССБТ. Строительство. Нормы освещения строительных площадок;

12 ГОСТ 12.3.003-86* ССБТ. Работы электросварочные. Требования безопасности.

13 ГОСТ 12.3.036-84* ССБТ Газопламенная обработка металлов Требования безопасности.

14 Положение о едином порядке предпроектной и проектной подготовки строительства в г. Москве.

15 ППБ 01-93** Правила пожарной безопасности в Российской Федерации.

(Измененная редакция. Корректировка).