Рекомендации распространяются на стеклянные ареометры по ГОСТ 18481 всех типов, кроме АКЛ, и устанавливают методику их первичной и поверочной поверок
| Обозначение: | Р 50.2.041-2004 |
| Название рус.: | Государственная система обеспечения единства измерений. Ареометры стеклянные. Методика поверки |
| Статус: | взамен |
| Заменяет собой: | МИ 1914-88 «Государственная система обеспечения единства измерений. Ареометры стеклянные. Методика поверки» |
| Дата актуализации текста: | 05.05.2017 |
| Дата добавления в базу: | 01.09.2013 |
| Дата введения в действие: | 01.07.2005 |
| Утвержден: | 28.12.2004 Федеральное агентство по техническому регулированию и метрологии (131-ст) |
| Ссылки для скачивания: |
Р 50.2.041-2004
РЕКОМЕНДАЦИИ ПО МЕТРОЛОГИИ
Государственная система обеспечения единства измерений
АРЕОМЕТРЫ СТЕКЛЯННЫЕ
Методика поверки
Федеральное агентство по техническому регулированию и
метрологии
Москва
Предисловие
1 РАЗРАБОТАНЫ Федеральным Государственным Унитарным предприятием Всероссийским научно-исследовательским институтом метрологии им. Д.И. Менделеева (ФГУП ВНИИМ им. Д.И. Менделеева)
ВНЕСЕНЫ Управлением метрологии и надзора Федерального агентства по техническому регулированию и метрологии
2 ПРИНЯТЫ И ВВЕДЕНЫ В ДЕЙСТВИЕ Приказом Федерального агентства по техническому регулированию и метрологии от 28.12.2004 г. № 131-ст
3 ВЗАМЕН МИ 1914-88
СОДЕРЖАНИЕ
|
Государственная система обеспечения единства измерений АРЕОМЕТРЫ СТЕКЛЯННЫЕ Методика поверки |
Дата введения 2005-07-01
Настоящие рекомендации распространяются на стеклянные ареометры по ГОСТ 18481 всех типов, кроме АКЛ, и устанавливают методику их первичной и периодической поверок.
Межповерочный интервал ареометров установлен при испытаниях.
В настоящих рекомендациях использованы ссылки на следующие нормативные документы:
ГОСТ 8.428-81 Государственная система обеспечения единства измерений. Ареометры. Значения коэффициентов поверхностного натяжения жидкостей
ГОСТ 12.1.005-88 Система стандартов безопасности труда. Общие санитарно-гигиенические требования к воздуху рабочей зоны
ГОСТ 12.4.009-83 Система стандартов безопасности труда. Пожарная техника для защиты объектов. Основные виды. Размещение и обслуживание
ГОСТ 12.4.011-89 Система стандартов безопасности труда. Средства защиты работающих. Общие требования и классификация
ГОСТ 12.4.102-80 Система стандартов безопасности труда. Материалы для верха специальной обуви. Метод определения проницаемости жидкими агрессивными веществами
ГОСТ 12.4.131-83 Халаты женские. Технические условия
ГОСТ 166-89 (ИСО 3599-76) Штангенциркули. Технические условия
ГОСТ 427-75 Линейки измерительные металлические. Технические условия
ГОСТ 790-89 Мыло хозяйственное твердое и мыло туалетное. Правила приемки и методики выполнения измерений
ГОСТ 1770-74 Посуда мерная лабораторная стеклянная. Цилиндры, мензурки, колбы, пробирки. Общие технические условия
ГОСТ 4204-77 Кислота серная. Технические условия
ГОСТ 6709-72 Вода дистиллированная. Технические условия
ГОСТ 9147-80 Посуда и оборудование лабораторное фарфоровое. Технические условия
ГОСТ 12026-76 Бумага фильтровальная лабораторная. Технические условия
ГОСТ 13646-68 Термометры стеклянные ртутные для точных измерений. Технические условия
ГОСТ 14183-78 Стекло органическое часовое. Технические условия
ГОСТ 18300-87 Спирт этиловый ректифицированный технический. Технические условия
ГОСТ 18481-81 Ареометры и цилиндры стеклянные. Общие технические условия
ГОСТ 25336-82 Посуда и оборудование лабораторное стеклянное. Типы, основные параметры и размеры
ГОСТ 25706-83 Лупы. Типы, основные параметры. Общие технические требования
ГОСТ 28498-90 Термометры жидкостные стеклянные. Общие технические требования. Методы испытаний
ГОСТ 29298-92 Ткани хлопчатобумажные и смешанные бытовые. Общие технические условия
ПР 50.2.006-94 Государственная система обеспечения единства измерений. Порядок проведения поверки средств измерений
ПР 50.2.009-94 Государственная система обеспечения единства измерений. Порядок проведения испытаний и утверждения типа средств измерений
Примечание - При пользовании настоящими рекомендациями целесообразно проверить действие ссылочных НД по указателю «Национальные стандарты», составленному по состоянию на 1 января текущего года, и по соответствующим информационным указателям, опубликованным в текущем году. Если ссылочный документ заменен (изменен), то при пользовании настоящими рекомендациями следует руководствоваться замененным (измененным) документом. Если ссылочный документ отменен без замены, то положение, в котором дана ссылка на него, применяют в части, не затрагивающей эту ссылку.
Настоящие рекомендации устанавливают методики поверки ареометров, основанные на:
методе гидростатического взвешивания поверяемого ареометра в одной нетоксичной жидкости с установкой уровня жидкости на проверяемой отметке шкалы;
непосредственном сличении показаний поверяемого и эталонного ареометров, погруженных в одну поверочную жидкость.
Основным методом поверки является метод гидростатического взвешивания. При наличии в регионе номенклатуры представляемых на поверку ареометров в количестве одного-двух типов, допускается проводить поверку непосредственным сличением показаний поверяемого и эталонного ареометров.
4.1 Операции поверки
4.1.1 При проведении поверки выполняют следующие операции:
- внешний осмотр (4.7.1);
- определение основной абсолютной погрешности (4.7.2).
4.2 Средства поверки
4.2.1 При проведении поверки применяют следующие средства поверки:
- установка гидростатического взвешивания, укомплектованная весами класса точности 1,0 с наибольшим пределом взвешивания не менее 200 г, погрешностью не более 0,15 мг и жидкостным циркуляционным термостатом с погрешностью поддержания температуры не более 0,05 °С;
- аттестованные меры плотности (поплавки);
- термометр для точных измерений по ГОСТ 13646 с ценой деления 0,01 °С и диапазоном измерений от 16 °С до 20 °С или от 20 °С до 24 °С;
- жидкостной стеклянный термометр типа А по ГОСТ 28498 с ценой деления 1 °С и диапазоном измерений от 0 °С до 100 °С;
- метеорологический барометр с абсолютной погрешностью не более 13,3 Па (1 мм рт.ст);
- штангенциркуль по ГОСТ 166 с пределами измерений от 0 до 200 мм и отсчетным устройством по нониусу 0,05 мм;
- гигрометр с относительной погрешностью не более 1,5 %.
- поверочную жидкость (этиловый ректифицированный спирт высшей очистки по ГОСТ 18300);
- лупу типа ЛП увеличением 2,5 по ГОСТ 25706;
- хозяйственное твердое мыло по ГОСТ 790;
- хлопчатобумажную ткань типа мадаполам;
- приспособление с гнёздами для сушки ареометров в соответствии с приложением А;
- промывочные жидкости (этиловый спирт 1-го сорта по ГОСТ 18300 и дистиллированную воду однократной перегонки по ГОСТ 6709).
4.2.2 Допускается применять другие или вновь разработанные средства поверки, удовлетворяющие метрологическим характеристикам 4.2.1 настоящих рекомендаций, прошедшие испытания для целей утверждения типа в соответствии с ПР 50.2.009 и имеющие действующие свидетельства о поверке в соответствии с ПР 50.2.006.
4.3 Требования к квалификации поверителей
К проведению поверки допускают лиц, аттестованных в качестве поверителя, изучивших эксплуатационную документацию на поверяемые типы ареометров и средства их поверки и настоящие рекомендации и прошедших инструктаж по технике безопасности.
4.4 Требования безопасности
4.4.1 При проведении поверочных работ соблюдают требования «Правил пожарной безопасности для промышленных предприятий», утверждённых Главным управлением пожарной охраны МВД России, и требования «Правил технической безопасности при эксплуатации электроустановок-потребителей», утверждённых Госэлектронадзором.
4.4.2 Помещения, в которых проводят работы с легковоспламеняющимися и горючими жидкостями, оборудованы установками пожарной сигнализации и пожаротушения в соответствии с ГОСТ 12.4.009. В этих помещениях не применяют открытый огонь.
4.3.3 Помещение, в котором проводят поверку, оборудовано приточно-вытяжной вентиляцией.
4.5 Условия поверки
4.5.1 При проведении поверки соблюдают следующие условия:
- температура окружающего воздуха: (20 ± 5) °С;
- давление окружающего воздуха: 84 … 106 кПа;
- относительная влажность окружающего воздуха: 30 % … 80 %;
- температура поверочной жидкости: (20,00 ± 0,05) °С;
- нестабильность температуры поверочной жидкости: не более 0,02 °С;
- освещенность рабочего места поверителя: не менее 300 лк.
- вибрацию и тряску не допускают.
4.6.1 Перед проведением поверки выполняют следующие работы:
4.6.1.1 Поверяемые ареометры и вспомогательное стеклянное оборудование моют тёплой водой с использованием моющих средств, ополаскивают тёплой проточной, а затем дистиллированной водой и протирают этиловым спиртом. Вымытые ареометры помещают в приспособления для сушки ареометров до полного их высыхания. Для сокращения времени высыхания допускается протирать ареометры полотенцем из хлопчатобумажной ткани типа мадаполам.
Вымытое вспомогательное стеклянное оборудование сушат на воздухе или в сушильном шкафу.
После промывки и сушки не касаются руками внутренних поверхностей стеклянного оборудования, а ареометры берут только за верхнюю, свободную от шкалы часть стержня.
4.6.1.2 В качестве поверочной жидкости используют этиловый ректифицированный спирт высшей очистки по ГОСТ 18300. Допускают использование водно-спиртового раствора с объемной долей спирта не ниже 90 %. Перед заливкой во внутренний цилиндр термостатной ванны поверочную жидкость фильтруют. Для предупреждения образования воздушных пузырьков на внутренней поверхности цилиндра при заливке поверочной жидкости, струю направляют не на дно цилиндра, а на боковую поверхность.
4.7 Проведение поверки
При внешнем осмотре устанавливают соответствие поверяемых ареометров требованиям ГОСТ 18481. Результаты осмотра заносят в протокол поверки. Форма протокола поверки приведена в приложении Б.
4.7.2 Определение основной абсолютной погрешности.
Абсолютную погрешность определяют в трёх числовых отметках, расположенных в нижней, средней и верхней части шкалы ареометра. Определение абсолютной погрешности начинают с нижней отметки. У ареометров типа АОН-1 с диапазоном измерений 1780 … 1840 кг/м3 и типа АОН-2 с диапазоном измерений 1750 … 1840 кг/м3 нижняя отметка: 1830 кг/м3.
4.7.2.1 Определение плотности поверочной жидкости
Плотность поверочной жидкости определяют методом гидростатического взвешивания при помощи аттестованной меры плотности (далее - поплавок) из комплекта установки гидростатического взвешивания. Предварительно вымытый и высушенный поплавок крепят к нижнему подвесу весов и проводят его взвешивание в поверочной жидкости в соответствии с Руководством по эксплуатации установки гидростатического взвешивания. Результат взвешивания поплавка - показания весов Мпж заносят в протокол поверки.
Плотность поверочной жидкости ρпж, кг/м3, вычисляют по формуле
|
ρпж = (Mп - (1 - eв/8000)Мпж)/Vп, |
(1) |
где ρпж - плотность поверочной жидкости, кг/м3;
Мпж - результат взвешивания поплавка в поверочной жидкости, кг;
ев - плотность воздуха с учётом атмосферного давления и температуры, кг/м (приложение В);
Мп и Vп - масса и объём поплавка, определяемые из сертификата на поплавок, кг и м3 соответственно;
8000 - условная плотность материала гирь, кг/м3.
Полученное значение плотности жидкости заносят в протокол поверки.
Примечания
1 В случае использования в составе установки электронных весов значение выражения (1 - ев/8000) принимают равным 1.
2 В процессе работы поплавок постоянно находится в поверочной жидкости. Его извлекают из цилиндра термостатной ванны только для проведения профилактических работ, связанных с заменой поверочной жидкости.
4.7.2.2 Определение массы мениска, образующегося вокруг стержня поверяемого ареометра, при погружении его в поверочную жидкость и жидкость, в которой его применяют.
Для определения массы мениска штангенциркулем измеряют диаметр стержня ареометра на поверяемых отметках шкалы (d).
Массу мениска поверочной жидкости m, кг, вычисляют по формуле
|
m = (πdƠпж)/g, |
(2) |
где g - ускорение силы тяжести, м/с2;
d - диаметр стержня ареометра на поверяемой отметке шкалы, м;
Ơпж - коэффициент поверхностного натяжения поверочной жидкости, мН/м;
Массу мениска жидкости m, кг, в которой применяют ареометр, вычисляют по формуле
|
m = (πdƠрж)/g, |
(3) |
где Ơрж - коэффициент поверхностного натяжения жидкости, в которой применяют ареометр, мН/м.
Примечание - Значения коэффициентов поверхностного натяжения жидкостей приведены в ГОСТ 8.428.
Полученные значения заносят в протокол поверки.
4.7.2.3 Взвешивание ареометра в воздухе
При помощи держателя из комплекта установки гидростатического взвешивания крепят ареометр к нижнему подвесу весов так, чтобы нижний конец ареометра был на 8 - 12 мм выше уровня поверочной жидкости. Проводят взвешивание и определяют массу ареометра в воздухе (Мав). Все операции выполняют в соответствии с Руководством по эксплуатации установки гидростатического взвешивания. Полученные значения заносят в протокол поверки.
Примечание - При поверке ареометра с диапазоном измерений 650 … 850 кг/м3 его взвешивают в воздухе вместе со специальным дополнительным грузом из комплекта установки гидростатического взвешивания. Дополнительный груз при этом закрепляют на подвесе так, чтобы он был погружён в поверочную жидкость на глубину, равную длине половины шкалы поверяемого ареометра.
4.7.2.4 Взвешивание ареометра в поверочной жидкости
Для взвешивания ареометра в поверочной жидкости ареометр с держателем опускают в поверочную жидкость так, чтобы уровень поверочной жидкости находился на 1 - 2 деления ниже поверяемой отметки шкалы, и крепят к нижнему подвесу весов. При помощи вытеснителя установки плавно поднимают уровень поверочной жидкости до поверяемой отметки шкалы ареометра. Все операции выполняют в соответствии с Руководством по эксплуатации установки гидростатического взвешивания. Уровень поверочной жидкости подводят так, чтобы на поверяемой отметке находился верхний край мениска для ареометров с надписью на шкале «Отсчёт по верхнему краю мениска» или нижний край мениска, если надпись на шкале ареометра отсутствует.
При отсчёте по верхнему краю мениска наблюдают место соприкосновения верхнего края мениска со стержнем ареометра. Для этого наблюдатель смотрит несколько выше поверхности поверочной жидкости. Луч зрения перпендикулярен к поверхности стержня и совпадает с плоскостью верхней кромки мениска. Наблюдают боковые, затемненные части мениска, так как по ним резче видны границы.
При отсчете по нижнему краю мениска глаза наблюдателя находятся ниже уровня поверочной жидкости настолько, чтобы видеть основание мениска в форме эллипса. Постепенно поднимая глаза, отмечают, как эллипс, суживаясь, обращается в прямую линию и проектируется на шкалу ареометра.
Линия соприкосновения поверочной жидкости со стержнем ареометра имеет форму окружности, лежащей в горизонтальной плоскости. Отклонение линии от окружности свидетельствует о плохой подготовке ареометра к поверке или загрязнении поверочной жидкости. В таких случаях поверку не проводят, а повторяют подготовку ареометра в соответствии с 4.6, а поверочную жидкость фильтруют.
Примечание - При поверке ареометра с диапазоном измерений 650...850 кг/м3 на корпус ареометра навешивают тот же дополнительный груз, вместе с которым проведено взвешивание ареометра в воздухе.
Ареометр выдерживают в поверочной жидкости не менее трех минут для приобретения им температуры поверочной жидкости и снимают показания весов (Маж).
Взвешивание ареометра проводят последовательно в трёх точках шкалы, соответствующих началу, середине и концу шкалы ареометра. Взвешивание начинают с нижней отметки шкалы. Полученные данные заносят в протокол поверки.
4.7.2.5 Вычисление действительного значения плотности на проверяемой отметке шкалы
Действительное значения плотности на проверяемой отметке шкалы ρд, кг/м3 вычисляют по формуле
|
ρд = (((1 - ев/8000)⋅Мав + m’)/(1 - еж/8000)⋅(Мав - Маж) + m))×(ρпж - еж) + 1,205, |
(4) |
где Мав - масса ареометра в воздухе, кг;
ев - плотность воздуха при взвешивании ареометра в воздухе, кг/м3;
еж - плотность воздуха при взвешивании ареометра в поверочной жидкости, кг/м3;
m - масса мениска, образующегося вокруг стержня ареометра на поверяемой отметке шкалы в поверочной жидкости, кг;
m’ - масса мениска, образующегося вокруг стержня ареометра на поверяемой отметке шкалы для жидкости, в которой эксплуатируется ареометр, кг;
Маж - масса ареометра (показания весов) в поверочной жидкости, кг;
ρпж - значение плотности поверочной жидкости, кг/м3.
Примечание - В случае использования в составе установки электронных весов значения выражений (1 - еав/8000) и (1 - евж/8000) принимают равными 1.
Результаты расчётов заносят в протокол поверки.
Примечание - При наличии программного обеспечения с аттестованным алгоритмом расчёта и возможности стыковки весов с персональным компьютером осуществляют автоматический расчет результатов, распечатку протоколов поверки и регистрацию поверяемых ареометров в электронной форме.
4.8 Обработка результатов измерений
4.8.1 Основную абсолютную погрешность ареометра Δρ, кг/м3, определяют по формуле
|
Δρ = ρi - ρiд, |
(5) |
где Δρ - основная абсолютная погрешность ареометра, кг/м3;
ρi - значение плотности, соответствующее значению проверяемой (оцифрованной) отметке шкалы ареометра, кг/м3;
ρiд - действительное значение плотности на проверяемой отметке шкалы ареометра, кг/м3.
4.8.2 Основная абсолютная погрешность во всех проверяемых отметках шкалы: не более значений, указанных в ГОСТ 18481 для ареометров данного типа.
4.8.3 Для ареометров АСП-1, АСП-2, АСП-3, АСП-Т и АСП-4, шкалы которых соответствуют объемной концентрации спирта, зависимость плотности водно-спиртовых растворов от концентрации спирта, в объемных долях, приведена в приложении В.
4.8.4 Для ареометров АЭГ, шкалы которых соответствуют объёмной концентрации этиленгликоля, зависимость плотности водных растворов этиленгликоля от концентрации этиленгликоля в объёмных долях приведена в приложении Г.
4.8.5 Для ареометров ACT-1, АСТ-2, АС-1, АС-2 и АС-3, шкалы которых соответствуют массовой концентрации сахара, зависимость плотности водных растворов сахара от концентрации сахара в массовых долях приведена в приложении Д.
4.9 Оформление результатов поверки
4.9.1 Результаты поверки оформляют протоколом, форма которого приведена в приложении Б.
4.9.2 При положительных результатах поверки на ареометр выдают свидетельство о поверке в соответствии с ПР 50.2.006.
4.9.3 Ареометры, не удовлетворяющие требованиям настоящих рекомендаций, к эксплуатации не допускают, а свидетельство о предыдущей поверке аннулируют. На них оформляют свидетельство о непригодности с указанием причин в соответствии с ПР 50.2.006.
5.1 Операции поверки
5.1.1 При проведении поверки выполняют следующие операции:
- внешний осмотр (5.7.1);
- определение основной абсолютной погрешности (5.7.2).
5.2 Средства поверки
5.2.1 При проведении поверки применяют следующие средства поверки:
5.2.1.1 Наборы эталонных ареометров, указанные в таблице 1.
Таблица 1 - Наборы эталонных ареометров и их метрологические характеристики
5.2.1.2 Термостаты, обеспечивающие стабильность поддержания заданной температуры не более 0,1 °С, или термостатируемое помещение с кондиционером типа БК.
5.2.1.3 Вспомогательные средства и материалы:
- рабочие ареометры всех типов по ГОСТ 18481;
- стеклянные цилиндры исполнения 1 диаметром 120 мм и высотой 520 мм по ГОСТ 18481;
- измерительные цилиндры вместимостью 500, 1000 и 2000 мл по ГОСТ 1770;
- цилиндр специальный, диаметром 140 … 170 мм и высотой не более 500 мм;
- стеклянные мензурки вместимостью 250 мл по ГОСТ 1770;
- фарфоровые стаканы № 7 и № 8 номинальной вместимостью 1000 и 2000 мл по ГОСТ 9147;
- воронки стеклянные типа В-150 ХС по ГОСТ 25336;
- воронки фильтрующие типа ВФ-1 ПОР 160 ТХС по ГОСТ 25336;
- стеклянные бутыли вместимостью 10000 см3 (10 л) с притертыми пробками;
- стеклянные сифоны в соответствии с приложением Е;
- стеклянные мешалки в соответствии с приложением Ж;
- приспособления с гнездами для сушки ареометров в соответствии с приложением А;
- хлопчатобумажные ткани миткалевой группы по ГОСТ 29298;
- фильтровальная бумага по ГОСТ 12026;
- капельницы исполнения 2-50 ХС ГОСТ 25336;
- лупа типа ЛП с увеличением 2,5х по ГОСТ 25706;
- дистиллятор типа АС Д-4 или ДЭ-4;
- механический секундомер типа СОПра группы 6а класса точности 2,0;
- жидкостной стеклянный термометр типа В по ГОСТ 28498 класса точности 1,0 с диапазоном измерений 0 °С … 100 °С и ценой деления 0,1 °С для контроля температуры жидкости;
- жидкостной стеклянный термометр типа А по ГОСТ 28498, класса точности 1,0 с ценой деления 1 °С и диапазоном измерений 0 °С … 100 °С для контроля температуры воздуха;
- линейка 500 по ГОСТ 427;
- штангенциркуль ШЦ-2-250-0,05 или ШЦ-3-250-0,05 по ГОСТ 166.
- этиловый спирт высшего или первого сорта по ГОСТ 18300;
- синтетические моющие средства или мыло хозяйственное твердое по ГОСТ 790.
5.2.1.5 Исходные вещества для приготовления поверочных жидкостей:
- этиловый спирт высшего или первого сорта по ГОСТ 18300;
- дистиллированная вода однократной перегонки по ГОСТ 6709;
- петролейный эфир марки 40-70;
- бензол по ГОСТ 5955;
- серная кислота х.ч. по ГОСТ 4204;
- раствор Туле.
5.2.2 Допускается применять другие или вновь разработанные средства поверки, удовлетворяющие по метрологическим характеристикам 5.2.1 настоящих рекомендаций, прошедшие испытания для целей утверждения типа в соответствии с ПР 50.2.009 и имеющие действующие свидетельства о поверке в соответствии с ПР 50.2.006.
5.3 Требования к квалификации поверителей
К проведению поверки допускают лиц, аттестованных в качестве поверителя, изучивших эксплуатационную документацию на поверяемые типы ареометров и средств их поверки и настоящие рекомендации и прошедших инструктаж по технике безопасности.
5.4 Требования безопасности
5.4.1 При проведении поверки соблюдают следующие требования безопасности: помещения для проведения поверки ареометров по пожарной опасности (их относят к категории В) соответствуют требованиям «Правил пожарной безопасности для промышленных предприятий», утвержденных Главным управлением пожарной охраны МВД РФ.
Помещения, в которых проводят работы с легковоспламеняющимися и горючими жидкостями, оборудованы установками пожарной сигнализации и пожаротушения в соответствии с ГОСТ 12.4.009. В этих помещениях не применяют открытый огонь.
Пожароопасные характеристики легковоспламеняющихся и горючих веществ, применяемых при поверке, приведены в приложении И.
Помещения по степени опасности поражения людей электрическим током относят к классу помещений без повышенной опасности в соответствии с «Правилами технической эксплуатации установок потребителей» и «Правилами техники безопасности при эксплуатации электроустановок потребителей», утвержденных Госэнергонадзором; по устройству установок - к классу В-16 в соответствии с «Правилами устройства электроустановок», утвержденных Госэнергонадзором.
5.4.2 Воздух рабочей зоны в помещениях для поверки по общим санитарно-гигиеническим нормам соответствуют требованиям ГОСТ 12.1.005.
Основные характеристики вредных веществ, применяемых при поверке, приведены в приложении К.
Помещения для поверки оснащены общеобменной приточной и вытяжной вентиляцией и вытяжными шкафами.
5.4.3 При обращении с вредными, легковоспламеняющимися и горючими веществами соблюдают санитарные правила и инструкции, утвержденные Минздравом РФ, Главным управлением пожарной охраны МВД РФ, и применяют средства индивидуальной защиты по ГОСТ 12.4.011, ГОСТ 12.4.102, ГОСТ 12.4.131.
5.5 Условия поверки
При проведении поверки соблюдают следующие условия:
- температура воздуха в помещении, где проводят поверку: (20 ± 2) °С ((17,5 ± 2) °С - при поверке ареометров для морской воды);
- отличие температуры поверочной жидкости в цилиндре от температуры воздуха в помещении: не более 2 °С;
- нестабильность температуры поверочной жидкости при поверке на данной отметке шкалы: не более 1 °С;
- освещенность рабочего места поверителя: не менее 300 лк.
5.6.1 Перед проведением поверки выполняют следующие работы:
Эталонные и поверяемые ареометры и все стеклянное оборудование перед поверкой моют любыми моющими средствами по 5.2.1.4, после чего промывают проточной водой, ополаскивают дистиллированной водой и протирают этиловым спиртом. Сушат ареометры в приспособлении с гнездами (приложение А).
Допускается протирать ареометры хлопчатобумажной тканью. Перед погружением в поверочную жидкость эталонные и поверяемые ареометры сухие и чистые. После подготовки ареометров к поверке при погружении в поверочную жидкость их берут за верхний, свободный от шкалы конец стержня. Стеклянный цилиндр перед заполнением предварительно ополаскивают поверочной жидкостью.
5.6.1.2 Приготовление поверочной жидкости
5.6.1.2.1 Для поверки ареометров применяют жидкости следующих групп:
- петролейный эфир;
- бензол;
- смеси петролейного эфира и бензола;
- серно-винные растворы (растворы серной кислоты и 85 %-го этилового спирта);
- серно-водные растворы (растворы серной кислоты и дистиллированной воды);
- водно-спиртовые растворы (растворы этилового спирта в дистиллированной воде);
- растворы Туле (растворы двуйодистой ртути и йодистого калия в дистиллированной воде).
5.6.1.2.2 Поверочные жидкости приготавливают из исходных веществ п. 5.2.1.5, из двух одноименных растворов или смесей большей или меньшей плотности или концентрации или смешиванием готовых растворов с одной из исходных жидкостей.
5.6.1.2.3 Для составления растворов (смесей) требуемой плотности предварительно рассчитывают примерные объемы смешиваемых компонентов. Для этого вычисляют разности плотностей между каждой из них и плотностью требуемого раствора. Объемы исходных жидкостей, взятых для составления поверочной смеси (раствора), обратно пропорциональны этим разностям.
Примечание - Примеры расчета объемов для составления поверочных жидкостей приведены в приложении Л.
5.6.1.2.4 Для составления водно-спиртовых растворов с объемной долей спирта q, в процентах, из двух водно-спиртовых растворов q1 и q2 вначале переводят объемные доли спирта q, q1 и q2, в процентах, в массовые доли Р, Р1Р2, в процентах, и берут массовые количества m1 и m2, г, исходных растворов концентраций q1 и q2 в отношении
|
|
(6) |
или объемы V1 и V2 тех же исходных растворов, кг/м3, в отношении
|
|
(7) |
где ρ1 и ρ2 - соответственно плотности водно-спиртовых растворов с объемной долей спирта q1 и q2, в процентах, или массовой долей спирта Р1 и Р2, в процентах.
Зависимость плотности водно-спиртовых растворов от концентрации спирта в объемных долях при температуре 20 °С и нормальном атмосферном давлении приведена в приложении В.
Зависимость концентрации спирта в объемных долях от концентрации спирта в массовых долях при температуре 20 °С и нормальном атмосферном давлении приведена в приложении М, а обратная зависимость - в приложении Н.
5.6.1.2.5 При расчете объемов для составления водно-спиртовых растворов из дистиллированной воды и этилового спирта дистиллированную воду принимают за водно-спиртовой раствор с нулевой концентрацией. Расчет выполняют по Л.2 приложения Л.
5.6.1.2.6 Для приготовления серно-винных растворов предварительно составляют водно-спиртовой раствор с объемной долей спирта 85 %, а затем смешивают его с химически чистой серной кислотой.
5.6.1.2.7 При составлении серно-водных растворов для поверки ареометров-сахаромеров и гидрометров предварительно определяют плотность требуемых растворов при 20 °С (приложение Д), которая соответствует концентрации сахара, и концентрацию этиленгликоля в растворе в объемных долях на поверяемой отметке (приложение Г). Расчет объемов серной кислоты и дистиллированной воды выполняют по Л.4 приложения Л.
5.6.1.2.8 Растворы двуйодистой ртути и йодистого калия (растворы Туле) приготавливают в жаростойкой посуде. Предварительно растворяют двуйодистую ртуть в растворе йодистого калия и дистиллированной воды (навеска - 620 г двуйодистой ртути и 500 г йодистого калия в 180 г дистиллированной воде). Растворение проводят при легком нагревании в вытяжном шкафу под тягой до полного растворения компонентов. После этого раствор фильтруют. В случае неправильно взятой навески и выпадения красной соли ртути в раствор добавляют немного йодистого калия и тщательно перемешивают стеклянной палочкой. Из приготовленного раствора, плотность которого составляет около 3190 кг/м , и дистиллированной воды составляют растворы требуемой плотности, предварительно рассчитав примерные объемы смешиваемых жидкостей по Л.5 приложения Л.
5.6.1.2.9 При составлении поверочных жидкостей расчет объемных частей смешиваемых компонентов допускается определять приближенно. Полученные значения округляют до второго десятичного знака.
5.6.1.2.10 Исходные жидкости отмеряют измерительными цилиндрами и мензурками, сливают их во вспомогательный чистый цилиндр и тщательно перемешивают. При приготовлении серновинных и серно-водных растворов добавляют к воде или спирту небольшими порциями серную кислоту, избегая сильного разогревания раствора. После приготовления поверочные жидкости фильтруют через фильтр с пористой пластинкой и предварительно измеряют плотность рабочим ареометром типа АОН-1.
Очищенные поверочные жидкости не содержат воздушных пузырей и однородны по составу.
Поверочные жидкости, приготовленные заранее и хранящиеся вне помещения, переносят в помещение, где проводят поверку, не позднее чем за 2 ч до поверки.
Смеси серной кислоты и этилового спирта применяют не раньше чем через 14 дней после их приготовления.
Поверочные жидкости хранят в темных помещениях.
5.6.1.2.11 Термостатирование поверочных жидкостей и доведение плотности до значения, соответствующего отметке шкалы поверяемого ареометра
Плотность поверочной жидкости измеряют рабочим ареометром соответствующего типа при температуре, указанной на его шкале. Температуру поддерживают термостатом установки или работы выполняют в термостатируемом помещении. Плотность поверочной жидкости доводят до значения, при котором сличают показания эталонного и поверяемого ареометра, добавляя пипеткой в цилиндр одну из исходных жидкостей. Показания доводят до числовой отметки шкалы плотности вспомогательного рабочего ареометра с отклонением, не превышающим одного деления шкалы.
Уровень поверочной жидкости, налитой в цилиндр, должен быть на 3 - 5 см ниже края цилиндра. Поверочную жидкость перед погружением в нее ареометра тщательно перемешивают стеклянной мешалкой движением вверх и вниз, наблюдая, чтобы в жидкость не попал воздух. Для полного перемешивания достаточно 5 - 7 двойных движений мешалкой.
5.7 Проведение поверки
При внешнем осмотре устанавливают соответствие поверяемых ареометров требованиям ГОСТ 18481.
5.7.2 Определение основной абсолютной погрешности
5.7.2.1 Основную абсолютную погрешность ареометра определяют сличением показаний поверяемого ареометра с показаниями эталонного, погружая их в одну и ту же поверочную жидкость. Типы эталонных ареометров и поверочные жидкости выбирают в соответствии с 5.2.1.1.
5.7.2.2 Ареометры проверяют в трех числовых отметках, расположенных в нижней, средней и верхней части шкалы. Проверку начинают с нижней отметки. Сличение показаний поверяемого ареометра с эталонным на каждой из выбранных отметок проводят не менее двух раз.
У ареометров типа АОН-1 с пределами измерений 1780 … 1840 кг/м3 и типа АОН-2 с пределами измерений 1750 … 1840 кг/м3 нижняя отметка: 1830 кг/м3.
Допускается проверять одновременно несколько однотипных ареометров. При этом следует применять цилиндр, внутренний диаметр которого не менее 170 мм и высота не менее 500 мм. В цилиндр, заполненный поверочной жидкостью, последовательно один за другим погружают поверяемые ареометры (не более пяти ареометров), предварительно подготовленные по 5.6.1.1. Последним погружают эталонный ареометр.
5.7.2.3 Поверяемый ареометр погружают до тех пор, пока до проверяемой числовой отметки не останется 3 - 4 мм. Затем ареометру дают возможность свободно плавать. Показания снимают через лупу после того, как ареометр прекратит колебания вдоль своей оси. Если ареометр будет погружен более, чем указано, его извлекают из раствора и снова готовят к поверке, а затем повторно погружают в поверочную жидкость. Если ареометр при погружении не колеблется вдоль своей оси, его необходимо приподнять на 3 - 4 см и снова опустить.
Ареометры не касаются друг друга и стенок цилиндра. Для исключения касания используют металлический крючок.
5.7.2.4 Показания с рабочих ареометров снимают по верхнему краю мениска, если на шкале или на полоске, вложенной внутрь корпуса, имеется надпись «Отсчет по верхнему краю мениска», или по нижнему, если надпись о форме отсчета отсутствует. Показания снимают через 3 мин после погружения ареометра в поверочную жидкость.
5.7.2.5 Показания с эталонных ареометров всех типов снимают по нижнему краю мениска через 5 мин после их погружения в поверочную жидкость. При этом глаза поверителя находятся ниже уровня поверочной жидкости настолько, чтобы видеть основание мениска в форме эллипса. Постепенно поднимая глаза, отмечают как эллипс, суживаясь, обращается в прямую линию, проектирующуюся на шкалу эталонного ареометра.
5.7.2.6 При отсчитывании по верхнему краю мениска наблюдают место соприкосновения верхнего края мениска со стержнем ареометра. Для этого поверитель смотрит несколько выше поверхности жидкости. Луч зрения перпендикулярен к поверхности стержня и совпадает с плоскостью верхней кромки мениска. Наблюдают боковые, затемненные части мениска, так как по ним резче видны границы.
5.7.2.7 Линия соприкосновения поверочной жидкости со стержнем ареометра имеет форму окружности, лежащей в горизонтальной плоскости. Отклонение линии от окружности свидетельствует о плохой подготовке ареометра к поверке или загрязнении поверхности поверочной жидкости. В таких случаях поверку не проводят, а повторяют подготовку ареометра, как указано в 5.6, а поверочную жидкость фильтруют.
5.7.2.8 Если при снятии показаний наблюдаемая линия мениска (его нижний или верхний край) совпадает с одним из штрихов шкалы, то его показание соответствует значению этого штриха. В том случае, если эта линия лежит между двумя штрихами, то видимую часть деления отсчитывают визуально в десятых долях наименьшего деления шкалы по сравнению с соседними и выражают в долях единицы измерений шкалы плотностей (концентраций).
У ареометров, показания которых возрастают сверху вниз, показание при отсчете по верхнему краю мениска прибавляют к значению, соответствующему ближайшему видимому над мениском штриху, а при отсчете по нижнему краю - отнимают от значения, соответствующего ближайшему видимому штриху под мениском.
5.12.9 Ось поверяемого ареометра, плавающего в поверочной жидкости, перпендикулярна к ее свободной поверхности. Отклонение от перпендикулярности, проверенное на отметке, расположенной в нижней части шкалы: не более 0,1 цены деления шкалы при отсчетах по концам отметки по отношению к уровню жидкости.
5.7.2.10 После проверки ареометров на первой отметке их промывают в проточной воде, протирают спиртом и сушат на воздухе, после чего приступают к проверке на следующей отметке.
Ареометры, проверяемые в водно-спиртовом растворе с объемной долей спирта не ниже 70 %, сушат на воздухе и проверяют на следующей отметке.
5.7.2.11 При извлечении поверяемого ареометра из поверочной жидкости эталонный ареометр приподнимают на 5 - 6 см так, чтобы колеблющийся уровень жидкости не смочил сухую часть стержня. В случае продолжения поверочных работ поверочную жидкость тщательно перемешивают, эталонный ареометр прижимают к стенке цилиндра, не извлекая его из жидкости.
5.8 Обработка результатов измерений
5.8.1 Определение абсолютной погрешности ареометров для морской воды, ареометров для молока
Поверку ареометров для морской воды и для молока проводят сличением с эталонными ареометрами в поверочных жидкостях, приведенных в 5.2.1.1.
К показаниям поверяемого ареометра прибавляют поправку на капиллярность Δρк, вычисляемую по формуле
|
|
(8) |
где а1 - капиллярная постоянная жидкости, для которой предназначен ареометр (молоко, морская вода), м2 (приложение П);
а2 - капиллярная постоянная серно-винного раствора, м2, по Л.3 приложения Л;
К - коэффициент, равный 103 кг/м3 (единиц относительной плотности) для ареометров АМВ и единице для ареометров AM;
ρ - отсчет по поверяемому ареометру в относительных единицах плотности (учитывают с погрешностью не более 0,01 единиц относительной плотности) или в кг/м3 для ареометров для молока;
d - диаметр стержня поверяемого ареометра, м (измеряют с погрешностью не более 1⋅10-4 м в месте отсчета показания);
М - масса поверяемого ареометра, кг (определяют с погрешностью не более 5⋅10-4 кг).
Абсолютную погрешность ареометра на проверяемой отметке Δρ0 вычисляют по формуле
|
Δρ0 = ρp - ρ0 |
(9) |
где ρp - показание поверяемого ареометра с учетом поправки на капиллярность, кг/м3 (единица относительной плотности);
ρ0 - показание эталонного ареометра с учетом поправки по свидетельству аттестации, кг/м3 (единица относительной плотности).
Абсолютные погрешности проверяемых отметок шкалы: не более значений, указанных в ГОСТ 18481.
5.8.2 Определение абсолютной погрешности ареометров общего назначения, ареометров для нефти, ареометров для урины, ареометров для электролита, ареометров для кислот, ареометров для спирта, ареометров-сахаромеров, ареометров для грунта, гидрометров.
Поверку вышеуказанных ареометров проводят непосредственным сличением с эталонными ареометрами в поверочных жидкостях, приведенных в 5.2.1.1.
Погрешностью показаний поверяемого ареометра на поверяемой отметке принимают разность показаний поверяемого ареометра и исправленным по свидетельству аттестации показанием эталонного ареометра. Абсолютную погрешность поверяемого ареометра вычисляют по формуле
Абсолютные погрешности ареометра: не более значений, указанных в ГОСТ 18481.
5.9 Оформление результатов поверки
5.9.1 Результаты поверки оформляют протоколом, форма которого приведена в приложении Р.
5.9.2. При положительных результатах поверки на ареометр выдают свидетельство о поверке в соответствии с ПР 50.2.006.
5.9.3 Ареометры, не удовлетворяющие требованиям настоящих рекомендаций, к эксплуатации не допускают, а свидетельство о предыдущей поверке аннулируют. На них оформляют свидетельство о непригодности с указанием причин в соответствии с ПР 50.2.006.
|
И. о начальника отдела ВНИИМС |
___________________ (подпись) |
Л.Б. Чернышева |
|
Исполнитель |
___________________ (подпись) |
А.Ю. Томилин |

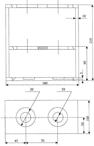
Рисунок А.1 - Приспособление с гнездами для сушки ареометров
|
Протокол поверки Тип прибора ________________________________________________________________ Диапазон измерений плотности _______________________________________________ Принадлежит _______________________________________________________________ Место проведения поверки ___________________________________________________ Атмосферное давление, мм рт.ст _______________________________________________ Температура воздуха, °С _____________________________________________________ Влажность воздуха, в процентах _______________________________________________ Масса поплавка в жидкости, кг ________________________________________________ Плотность поверочной жидкости, кг/м3 _________________________________________
Выводы: Дата: _______________ 200_ г.
|
Таблица В.1 - Зависимость плотности водно-спиртовых растворов ρ, кг/м3, от концентрации спирта в объемных долях q, в процентах,
|
q, % |
ρ20, кг/м3 |
q, % |
ρ20, кг/м3 |
q, % |
ρ20, кг/м3 |
q, % |
ρ20, кг/м3 |
|
0 1 2 3 4 5 6 7 8 9 10 11 12 13 14 15 16 17 18 19 20 21 22 23 24 25 |
998,2 996,7 995,3 993,8 992,4 991,0 989,7 988,4 987,2 985,9 984,7 983,6 982,4 981,2 980,0 978,9 977,8 976,8 975,9 974,6 973,6 972,5 971,4 970,3 969,2 968,1 |
26 27 28 29 30 31 32 33 34 35 36 37 38 39 40 41 42 43 44 45 46 47 48 49 50 51 |
967,0 965,8 964,6 963,4 962,2 961,0 959,7 958,4 957,0 955,6 954,2 952,7 951,2 949,6 948,0 946,4 944,8 943,1 941,3 939,5 937,7 935,9 934,0 932,1 930,2 928,2 |
52 53 54 55 56 57 58 59 60 61 62 63 64 65 66 67 68 69 70 71 72 73 74 75 76 77 |
926,2 924,2 922,1 920,0 917,9 915,7 913,6 911,4 909,1 906,9 904,6 902,3 900,0 897,6 895,2 892,8 890,4 888,0 885,5 883,0 880,5 877,9 875,4 872,8 870,1 867,5 |
78 79 80 81 82 83 84 85 86 87 88 89 90 91 92 93 94 95 96 97 98 99 100 |
864,8 862,0 859,3 856,5 853,7 850,8 847,9 844,9 841,9 838,9 835,7 832,5 829,2 825,9 822,4 818,9 815,2 811,4 807,5 803,3 799,0 794,2 789,2 |
Таблица Г.1 - Зависимость плотности ρ, кг/м , водных растворов этиленгликоля от концентрации этиленгликоля в объемных долях q, в процентах, при температуре 20 °С и нормальном атмосферном давлении
|
ρ, кг/м3 |
q, % |
|
1026 |
20 |
|
1040 |
30 |
|
1054 |
40 |
|
1066 |
50 |
|
1070 |
53 |
|
1078 |
60 |
|
1085 |
66 |
|
1089 |
70 |
|
1098 |
80 |
|
1106 |
90 |
|
1113 |
100 |
Таблица Д.1 - Зависимость плотности ρ, кг/м3, водных растворов сахара от концентрации сахара в массовых долях Р, в процентах, при температуре 20 °С и нормальном атмосферном давлении
|
P, % |
ρ20, кг/м3 |
P, % |
ρ20, кг/м3 |
P, % |
ρ20, кг/м3 |
P, % |
ρ20, кг/м3 |
|
0 1 2 3 4 5 6 7 8 9 10 11 12 13 14 15 16 17 18 19 20 21 22 23 24 25 |
998,2 1002,1 1006,0 1009,9 1013,8 1017,8 1021,8 1025,9 1029,9 1034,0 1038,1 1042,3 1046,5 1050,6 1054,9 1059,1 1063,4 1067,8 1072,1 1076,5 1080,9 1085,4 1089,9 1094,4 1098,9 1103,5 |
26 27 28 29 30 31 32 33 34 35 36 37 38 39 40 41 42 43 44 45 46 47 48 49 50 51 |
1108,2 1112,8 1117,5 1122,2 1127,0 1131,7 1136,6 1141,4 1146,3 1151,2 1156,2 1161,2 1166,2 1171,3 1176,4 1181,6 1186,7 1192,0 1197,2 1202,5 1207,8 1213,2 1218,6 1224,1 1229,5 1235,1 |
52 53 54 55 56 57 58 59 60 61 62 63 64 65 66 67 68 69 70 71 72 73 74 75 76 77 |
1240,6 1246,2 1251,8 1257,5 1263,2 1269,0 1274,7 1280,6 1286,4 1292,3 1298,3 1304,2 1310,2 1316,3 1322,4 1328,5 1334,7 1340,9 1347,1 1353,4 1359,7 1366,1 1372,5 1378,9 1385,4 1391,9 |
78 79 80 81 82 83 84 85 86 87 88 89 90 91 92 93 94 95 96 97 98 99 100 |
1398,5 1405,1 1411,7 1418,3 1425,0 1431,8 1438,5 1443,4 1452,2 1459,1 1466,0 1473,0 1480,0 1487,0 1494,0 1401,1 1508,3 1515,4 1522,6 1529,9 1537,1 1544,4, 1551,8 |

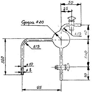
Рисунок Е.1 - Стеклянный сифон

Рисунок Ж.1 - Стеклянная мешалка
Таблица И.1 - Пожароопасные характеристики веществ, применяемых при поверке
|
Наименование вещества |
Горючесть, воспламеняемость, взрывоопасность |
Температура вспышки, °С |
Область воспламенения |
Температура самовоспламенения, °С |
|||
|
Концентрационная |
Температурная |
||||||
|
Нижний предел, % объем |
Верхний предел, % объем |
Нижний предел, °С |
Верхний предел, °С |
||||
|
Петролейный эфир |
ЛВЖ |
|
|
|
246 |
252 |
280 … 329 |
|
Этиловый спирт |
ЛВЖ |
не менее 13 |
3,6 |
19 |
11 |
41 |
не менее 404 |
|
Бензол |
ЛВЖ |
11 |
7,1 |
7,4 |
- |
- |
534 |
Таблица К.1 - Основные характеристики вредных веществ, применяемых при поверке
|
Наименование исходного вещества для приготовления поверочных жидкостей |
Агрегатное состояние |
Класс опасности |
Предельно допускаемая концентрация, мг/м3 |
Действие на организм человека |
|
Этиловый спирт |
п |
4 |
1000 |
Оказывает легкое наркотическое действие |
|
Петролейный эфир |
п |
4 |
300 |
Оказывает наркотическое действие, раздражает кожу, вызывает дерматит |
|
Серная кислота |
а |
2 |
1 |
Вызывает ожоги слизистых оболочек кожи |
|
Бензол* |
п |
2 |
5 |
Оказывает сильное наркотическое действие, вызывает сухость кожи, зуд. Опасно при поступлении через кожу |
|
Раствор Туле |
а + п |
1 |
0,01 |
Ядовитое соединение, может вызвать отравление организма |
|
Примечание - Буквы, обозначающие агрегатное состояние веществ в условиях поверки, означают: п - пары или газы; а - аэрозоли. |
||||
Л.1 Расчет объемов смешиваемых компонентов для составления смеси петролейного эфира и бензола
Л.1.1 Исходные данные
Плотность петролейного эфира ρ1: 650 кг/м3;
Плотность бензола ρ2: 878 кг/м3.
Заданная плотность поверочной смеси ρ: 770 кг/м3.
Л.1.2 Объемы (в частях) эфира V1 и бензола V2 вычисляют из соотношения
|
|
Следовательно, для получения поверочной смеси заданной плотности на 1,1 часть бензола берут одну объемную часть эфира.
Л.2 Расчет объемов смешиваемых компонентов для составления водно-спиртовых растворов
Л.2.1 Исходные данные
Плотность дистиллированной воды ρ1 998,2 кг/м3; объемная доля этилового спирта q2 в водно-спиртовом растворе: 96 %.
Заданная объемная доля спирта q в водно-спиртовом растворе: 85 %.
Л.2.2 Объемные доли спирта переводят в массовые. Дистиллированную воду принимают за водно-спиртовой раствор с нулевой концентрацией (объемная доля q1: 0 %, соответствующая массовой доле Р1: 0 %).
Из приложения М находят, что объемная доля 85,0 % соответствует массовой доле 79,40 %, а объемная доля 96,0 % - массовой доле.
Объемы (в частях) воды V1 и спирта V2 вычисляют из соотношения
|
|
где ρ1 и ρ2 - соответственно плотности водно-спиртовых растворов концентрации q1 и q2 или Р1 и Р2 (находят из приложения В).
|
|
Следовательно, для получения водно-спиртового раствора с заданной объемной долей спирта берут одну объемную часть дистиллированной воды и семь объемных частей этилового спирта.
Л.3 Расчет объемов смешиваемых компонентов для составления серно-винных растворов
Л.3.1 Исходные данные
Заданная плотность водно-спиртового раствора ρ2 с объемной долей спирта 85 %: 844,9 кг/м3 (находят из приложения В); плотность серной кислоты ρ1: 1840,0 кг/м3.
Заданная плотность серно-винного раствора ρ: 1000 кг/м3.
Л.3.2 Объемы (в частях) спирта и серной кислоты вычисляют из соотношения
|
|
Следовательно, для получения серно-винного раствора заданной плотности берут одну часть серной кислоты и пять частей этилового спирта.
Л.4 Расчет объемов смешиваемых компонентов для составления серно-водных растворов
Л.4.1 Исходные данные
Плотность серной кислоты ρ2: 1840 кг/м3, плотность дистиллированной воды ρ1: 998,2 кг/м3.
Заданная плотность серно-водного раствора ρ, соответствующая массовой доле сахара 30 %: 1127,0 кг/м3 (находят из приложения Д).
Л.4.2 Объемы (в частях) воды и серной кислоты вычисляют аналогично Л.1.2.
|
|
Следовательно, для получения серно-водного раствора заданной плотности берут одну часть серной кислоты и 5,5 частей дистиллированной воды.
Л.5 Расчет объемов смешиваемых компонентов для составления раствора Туле
Л.5.1 Исходные данные
Плотность раствора Туле ρ1: 3190,0 кг/м3; плотность дистиллированной воды ρ2: 998,2 кг/м3.
Заданная плотность раствора ρ: 2000 кг/м3.
Объемы (в частях) раствора Туле V1 и воды V2 вычисляют из соотношения
|
|
Следовательно, для получения 2,2 раствора заданной плотности берут 1,2 объемную часть воды и одну объемную часть раствора Туле.
Таблица М.1 - Зависимость концентрации спирта в объемных долях q, в процентах, от концентрации спирта в массовых долях Р, в процентах, при температуре 20 °С и нормальном атмосферном давлении
В процентах
|
q |
Р |
q |
Р |
q |
Р |
q |
Р |
|
0 1 2 3 4 5 6 7 8 9 10 11 12 13 14 15 16 17 18 19 20 21 22 23 24 25 |
0,0 0,79 1,59 2,38 3,18 3,98 4,78 5,59 6,40 7,20 8,02 8,83 9,64 10,64 11,27 12,09 12,92 13,74 14,56 15,39 16,21 17,04 17,87 18,71 19,54 20,38 |
26 27 28 29 30 31 32 33 34 35 36 37 38 39 40 41 42 43 44 45 46 47 48 49 50 51 |
21,2 22,06 22,91 23,76 24,61 25,46 26,32 27,18 28,04 28,91 29,78 30,65 31,53 32,41 33,30 34,19 35,09 35,99 36,89 37,80 38,72 39,64 40,56 41,49 42,43 43,37 |
52 53 54 55 56 57 58 59 60 61 62 63 64 65 66 67 68 69 70 71 72 73 74 75 76 77 |
44,31 45,26 46,22 47,18 48,15 49,13 50,11 51,00 52,09 53,09 54,09 55,11 56,13 57,15 58,19 59,23 60,27 61,33 62,39 63,46 64,54 65,63 66,72 67,82 68,94 70,06 |
78 79 80 81 82 83 84 85 86 87 88 89 90 91 92 93 94 95 96 97 98 99 100 |
71,19 72,33 73,48 74,64 75,81 77,0 78,19 79,40 80,62 81,86 83,11 84,38 85,66 86,96 88,29 89,63 91,00 92,41 93,84 95,30 96,81 98,38 100,0 |
Таблица Н.1 - Зависимость концентрации спирта в массовых долях Р, в процентах, от концентрации спирта в объемных долях q, в процентах, при температуре 20 °С и нормальном атмосферном давлении
В процентах
|
q |
Р |
q |
Р |
q |
Р |
q |
Р |
|
|
0 1 2 3 4 5 6 7 8 9 10 11 12 13 14 15 16 17 18 19 20 21 22 23 24 25 |
0,00 1,26 2,52 3,77 5,02 6,27 7,51 8,75 9,98 11,21 12,44 13,66 14,89 16,10 17,32 18,53 19,74 20,95 22,15 23,35 24,54 25,74 26,92 28,11 29,29 30,46 |
26 27 28 29 30 31 32 33 34 35 36 37 38 39 40 41 42 43 44 45 46 47 48 49 50 51 |
31,63 32,79 33,95 35,11 36,25 37,40 38,53 39,66 40,78 41,90 43,01 44,12 45,22 46,31 47,39 48,47 49,55 50,61 51,67 52,72 53,77 54,81 55,84 56,87 57,89 58,90 |
52 53 54 55 56 57 58 59 60 61 62 63 64 65 66 67 68 69 70 71 72 73 74 75 76 77 |
59,91 60,91 61,91 62,89 63,88 64,85 65,82 66,78 67,74 68,69 69,63 70,57 71,50 72,42 73,34 74,25 75,16 76,06 76,95 77,83 78,71 79,58 80,45 81,31 82,16 83,00 |
78 79 80 81 82 83 84 85 86 87 88 89 90 91 92 93 94 95 96 97 98 99 100 |
83,84 84,67 85,49 86,31 87,12 87,92 88,71 89,49 90,26 91,03 91,78 92,53 93,27 94,00 94,71 95,42 96,11 96,80 97,47 98,12 98,76 99,39 100,0 |
|
Таблица П.1 - Значение капиллярных постоянных жидкостей, плотность которых больше плотности дистиллированной воды
|
Ключевые слова: ареометр, эталонный ареометр, методика поверки, метод гидростатического взвешивания непосредственное сличение показаний ареометров |