Стандарт СЭВ распространяется на свеклорезки, применяемые в свеклосахарном производстве.
| Обозначение: | СТ СЭВ 4398-83 |
| Название рус.: | Свеклорезки. Типы, основные параметры и размеры |
| Статус: | действует |
| Дата актуализации текста: | 05.05.2017 |
| Дата добавления в базу: | 01.09.2013 |
| Дата введения в действие: | 01.01.1983 |
| Утвержден: | Госстандарт СССР (USSR Gosstandart ) |
| Ссылки для скачивания: |
|
СТАНДАРТ СЭВ |
СТ СЭВ 4398-83 |
|
|
|
СВЕКЛОРЕЗКИ Типы, основные параметры и размеры |
|||
|
|
|
||
|
Группа Г74 |
|
Утвержден Постоянной Комиссией по
сотрудничеству
в области стандартизации
Дрезден, декабрь 1983 г.
Настоящий стандарт СЭВ распространяется на свеклорезки, применяемые в свеклосахарном производстве.
Устанавливаются три типа свеклорезок:
1 - центробежные свеклорезки;
2 - барабанные свеклорезки;
3 - дисковые свеклорезки.
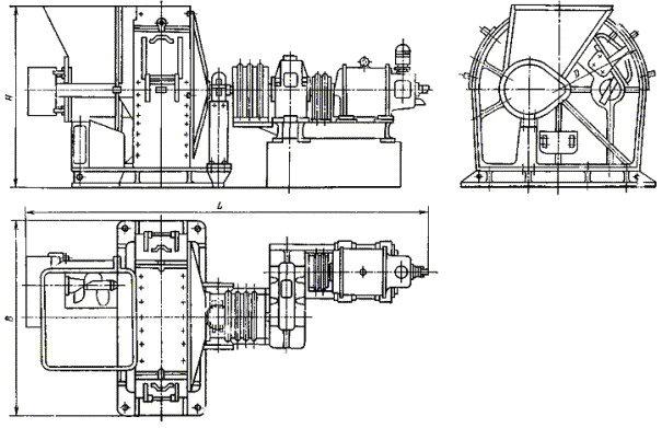
Основные параметры и размеры свеклорезок должны соответствовать указанным в таблице и на черт. 1 - 3.
Пример условного обозначения центробежной свеклорезки с 12 ножевыми рамами и внутренним диаметром барабана 1200 mm.
Свеклорезка 1-1200´12 СТ СЭВ 4398-83
|
Значение параметра для свеклорезок |
|||||||||||
|
типа 1 |
типа 2 |
типа 3 |
|||||||||
|
Количество ножевых рам, шт. |
12 |
16 |
24 |
8 |
12 |
18 |
20 |
22 |
24 |
28 |
|
|
Количество ножей в раме, шт. |
2 |
2 |
2 |
6 |
3 |
3 |
2 |
2 |
2 |
||
|
Производительность резания*, t/сут., не менее |
1510 |
2000 |
3000 |
1500 |
2000 |
2100 |
2160 |
2000 |
2500 |
3000 |
|
|
Скорость резания, регулируемая, m/s |
До 8 |
До 8 |
До 6 |
До 6 |
До 6 |
До 7 |
До 7 |
||||
|
Диаметр барабана** (внутренний) D, mm |
1200 |
1600 |
1600 |
1200 |
2000 |
2000 |
2000 2200 |
2200 2000 |
2400 |
||
|
Установленная мощность, kW, не более |
75 |
100 |
125 |
55 |
71 |
50 |
50 |
65 |
60 |
80 |
|
|
Габаритные размеры, man, не более: длина L |
4830 |
5710 |
5500 |
4700 |
3700 |
3700 |
3500 |
3600 |
4200 |
||
|
ширина В |
2260 |
2660 |
3000 |
1900 |
2400 |
2400 |
2650 |
2400 |
3000 |
||
|
высота Н |
3150 |
3600 |
4100 |
2100 |
3600 |
3600 |
2800 |
2700 |
2800 |
||
|
Масса с тиристорным преобразователем, kg, не более |
6950 |
9930 |
12000 |
8000 |
7000 |
7000 |
7700 |
7700 |
10500 |
||
* Для типов 1 и 2 при средней скорости резания. Для типа 1 при массе стружки в 100 g, длине 8 m и обозначении шага ножа 8.
** Для типа 3 диаметр диска
Тип 1
Тип 2
Тип 3
Примечание к черт. 1 - 3. Чертежи не определяют конструкцию.
ИНФОРМАЦИОННЫЕ ДАННЫЕ
1. Автор - делегация СССР в Постоянной Комиссии по сотрудничеству в области машиностроения.
2. Тема - 17.144.02-81.
3. Стандарт СЭВ утвержден на 54-м заседании ПКС.
4. Сроки начала применения стандарта СЭВ:
|
Сроки начала применения стандарта СЭВ |
||
|
в договорно-правовых отношениях по экономическому и научно-техническому сотрудничеству |
в народном хозяйстве |
|
|
НРБ |
- |
- |
|
ВНР |
- |
- |
|
СРВ |
|
|
|
ГДР |
|
|
|
Республика Куба |
|
|
|
МНР |
|
|
|
ПНР |
|
|
|
СРР |
Январь 1986 г. |
- |
|
СССР |
Январь 1986 г. |
Январь 1986 г. |
|
ЧССР |
Январь 1986 г. |
Январь 1986 г. |
5. Срок проверки - 1990 г.
СОДЕРЖАНИЕ