| Обозначение: | РД 45.156-2000 |
| Название рус.: | Состав исполнительной документации на законченные строительством линейные сооружения магистральных и внутризоновых ВОЛП |
| Статус: | действует |
| Дата актуализации текста: | 05.05.2017 |
| Дата добавления в базу: | 01.09.2013 |
| Дата введения в действие: | 22.06.2000 |
| Утвержден: | 22.06.2000 Минсвязи РФ (Russian Federation Minsvyazi 3636) |
| Опубликован: | ЦНТИ Информсвязь (2000 г. ) |
| Ссылки для скачивания: |

МИНИСТЕРСТВО РОССИЙСКОЙ ФЕДЕРАЦИИ
ПО СВЯЗИ И ИНФОРМАТИЗАЦИИ
РУКОВОДЯЩИЙ ДОКУМЕНТ ОТРАСЛИ
СОСТАВ ИСПОЛНИТЕЛЬНОЙ
ДОКУМЕНТАЦИИ НА
ЗАКОНЧЕННЫЕ
СТРОИТЕЛЬСТВОМ ЛИНЕЙНЫЕ
СООРУЖЕНИЯ
МАГИСТРАЛЬНЫХ И
ВНУТРИЗОНОВЫХ ВОЛП
РД 45.156-2000
ЦНТИ «ИНФОРМСВЯЗЬ»
Москва - 2000
Предисловие
1. РАЗРАБОТАН: АОЗТ «Межгорсвязьстрой» совместно с ОАО «Ростелеком» и ГЦУ ОАО «Ростелеком»
ВНЕСЕН: Департаментом электросвязи Министерства Российской Федерации по связи и информатизации
2. УТВЕРЖДЕН: Министерством Российской Федерации по связи и информатизации 19.06.2000
3. ВВЕДЕН В ДЕЙСТВИЕ: Письмом Министерства Российской Федерации по связи и информатизации от 22.06.2000 № 3636
4. ВВЕДЕН ВПЕРВЫЕ
ВОЛП - _______(индекс)____
Паспорт трассы.
|
(должность) |
(Фамилия И. О.) |
(подпись) |
(дата) |
|
ВОЛП _______(индекс)_____ Строительно-монтажная организация-генподрядчик: _____________________________ |
ПАСПОРТ ТРАССЫ |
|
магистральной (внутризоновой) кабельной линии связи |
|
на участке ОП «А» - ОП «Б» |
|
магистрали ____(индекс)_____ |
|
Марка кабеля - __________________________________________________________. |
|
Длина трассы - __________________________________________________________ км. |
|
Длина кабеля (всего) ____________ км; в том числе. |
|
в грунте _______________________ км; |
|
в канализации __________________ км; |
|
под водой ______________________ км. |
|
Год прокладки кабеля - _____________________ |
|
Паспорт составлен - _________(дата)____________ |
|
Ответственный представитель генподрядчика: |
|
________(должность)_______ _____(подпись)_____ ______(Ф. И. О.)_______ |
|
Ответственный исполнитель: |
|
________(должность)_______ _____(подпись)_____ ______(Ф. И. О.)_______ |
|
Объект: __(номер заказа)__ |
|
Подрядчик: _(наименование организации)_ |
Форма ВОЛС-ПТ-3
ВОЛП - _______(индекс)_______

Конструктивные и технические данные оптического кабеля.
1. А-Дв2Y 1×20 Е9/125 0,36Р 3,5 0,22 Н18 (R-1,7)
ВОК второго типа; цетральномодульной конструкции; содержит 20 ОВ. Изготовитель - «Siemens».
ОВ одномодовое; коэффициент преломления - 1,4675; километрическое затухание при измерении на длине волны = 1,55 не более 0,24dB. Изготовитель - «Siecor»
1. Оптические волокна (ОВ).
2. Гидрофобный заполнитель.
3. Двуслойная полиамидная оболочка центрального модуля.
4. 12 стальных проволок бронепокрова.
5. Гидрофобный заполнитель.
6. Внешняя полиэтиленовая оболочка.
2. А-Дf(ZN)(SR)2Y3×6 Е9/125 0,36 F3,5 + 0,22Н18 1×2 Е9/125 0,36 F3,5 + 0,22 Н18
ВОК четвёртого типа модульной конструкции, содержит 20 ОВ. Изготовитель «Siemens»
ОВ одномодовое; коэффициент преломления – 1,4675; километрическое затухание при измерении на длине волны = 1,55 не более 0,24 dВ. Изготовитель - «Siecor»
1. Дигэлектрический центральный силовой элемент.
2. Трубка модуля с ОВ.
3. Кордель без ОВ.
4. Гидрофобный заполнитель.
5. Слой армирующих нитей.
6. Стальная гофрированная лента.
7. Внешняя полиэтиленовая оболочка.
|
Должность |
Фамилия И.О. |
Подпись |
Дата |
|
|
Представители Московской зоны |
|
|
|
|
|
|
|
|
|
|
|
Представители Отделения № 7 |
|
|
|
|
|
|
|
|
|
Форма ВОЛС-ПТ
ВОЛП - ___(индекс)___
Участок _________________
|
(должность) |
(Фамилия И.О.) |
(подпись) |
(дата) |
ВОЛП - _______(индекс)___
Участок регенерации НПТ... – НПР...
Образец на телефонную канализацию.
Примечание: На каждый колодец с муфтой к типовому накиду прибавляется длина колец.

Образец на грунт.
Примечание: На каждой муфте с обоих сторон выделяется плюсом длина кабеля в кольцах.
Внимание! На этих схемах наносится только физическая нарастающая длина по ВОК:
|
(должность) |
(Фамилия И.О.) |
(подпись) |
(дата) |
Форма ВОЛС-ПТ-6
ВОЛП - ____(индекс)____
|
(должность) |
(Фамилия И.О.) |
(подпись) |
(дата) |
Форма ВОЛС-ПТ-8
ВОЛП - ___(индекс)____

|
(должность) |
(Фамилия И. О.) |
(подпись) |
(дата) |
Форма ВОЛС-ПТ-8
ВОЛП - ___(индекс)____
Участок ____________
|
(должность) |
(Фамилия И. О.) |
(подпись) |
(дата) |
Форма ВОЛС-ПТ-7
ВОЛП - _(индекс)____
Участок __________
|
(должность) |
(Фамилия И. О.) |
(подпись) |
(дата) |
Форма ВОЛС-ПТ-9
ВОЛП - ___(индекс)_____
Объект:______________
|
(должность) |
(Фамилия И. О.) |
(подпись) |
(дата) |
Форма ВОЛС-ПТ-10
ВОЛП - __(индекс)__
Объект:___________
|
(должность) |
(Фамилия И. О.) |
(подпись) |
(дата) |
Форма ВОЛС-ПТ-11
ВОЛП - ___(индекс)____
Объект_______________
|
(должность) |
(Фамилия И. О.) |
(подпись) |
(дата) |
Форма ВОЛС-ПТ-12
ВОЛП - _(индекс)__
Объект___________
|
(должность) |
(Фамилия И. О.) |
(подпись) |
(дата) |
Форма ВОЛС-ПТ-13
ВОЛП - __(индекс)___
Участок НРП1 - ТРП1
На схеме указывается:
а) цифры сверху - оптические длины, измеренные рефлектометром по ОВ;
б) цифры снизу - ближайшие к муфтам метки на концах строительных длин и расчетное расстояния между муфтами в метрах.
Измерительное оборудование ............. (наименование, тип, зав. номер).................................
...................................................................................................................................................
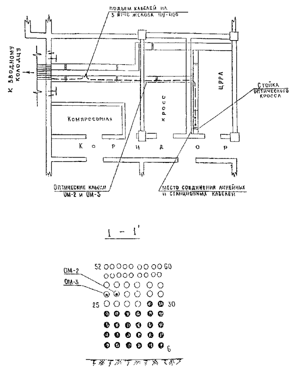
От п. 1 до муфты номер 13 проложен кабель типа 4 (20 волоком). От муфты номер 13 до Трн1 проложен кабель типа 2 (20 волокон). Муфты номер 13, 14, 15, 16, 17, 18, 19 смонтированы с выходом КИП.
|
Должность |
Фамилия И. О. |
Подпись |
Дата |
|
|
Представители строительно-монтажной организации |
|
|
|
|
|
|
|
|
|
|
|
Представители технадзора Отделения № 7 |
|
|
|
|
|
|
|
|
|
Форма ВОЛС-ПТ-14
ВОЛП - __(индекс)_
Участок.___ - ____
Ведомость проложенных строительных длин ВОК. |
|
Строительно-монтажная организация................................................................................ |
|
Завод-изготовитель кабеля................................................................................................... |
|
Марка проложенного кабеля: |
|
1) от НРП-1 до М13 (тип - 4)............................ (марка)............................................................................ |
|
2) от М13 до ТРП1 (тип - 2).............................. (марка)............................................................................ |
|
Номер строительной длины |
Номера смежных муфт |
Длина кабеля полученная (м) |
Длина кабеля проложена» (м) |
Остаток кабеля после прокладки (м) |
Дата прокладки |
Тип ВОК |
|
|
|
|
|
|
|
|
|
|
|
|
|
|
|
|
|
|
|
|
|
|
|
|
|
|
|
|
|
|
|
|
|
|
|
|
|
|
|
|
|
|
|
|
|
|
|
|
|
|
|
|
|
|
|
|
|
|
|
|
|
|
|
|
|
|
|
|
|
|
|
|
|
|
|
|
|
|
|
|
|
|
|
|
|
|
|
|
|
|
|
|
|
|
|
|
|
|
|
|
|
|
|
|
|
|
|
|
|
|
|
|
|
|
|
|
|
|
|
|
|
|
|
|
|
|
|
|
|
|
|
|
|
|
|
|
|
|
|
|
|
|
|
|
|
|
|
|
|
|
|
|
|
|
|
|
|
|
|
|
|
|
|
|
|
|
|
|
|
|
|
|
|
|
|
|
|
|
|
|
|
|
|
|
|
|
|
|
|
|
|
|
|
|
|
|
|
|
|
|
|
|
|
|
|
|
|
|
|
Должность |
Фамилия И. О. |
Подпись |
Дата |
|
|
Представители строительно-монтажной организации |
|
|
|
|
|
|
|
|
|
|
|
Представители технадзора |
|
|
|
|
|
|
|
|
|
ВОЛП - __(индекс)__
Участок НРП1 - ТРП1
Форма ВОЛС-ПТ-16
Участок________
|
Должность |
Фамилия И. О. |
Подпись |
Дата |
|
|
Представители строительно-монтажной организации |
|
|
|
|
|
Представители технадзора |
|
|
|
|
ВОЛП - _(индекс)___
Паспорт трассы электрический.
|
(должность) |
(Фамилия И. О.) |
(подпись) |
(дата) |
ВОЛП _(индекс)_
Строительно-монтажная организация - генподрядчик:_____________________________
ПАСПОРТ ТРАССЫ ЭЛЕКТРИЧЕСКИЙ |
|
магистральной (внутризоновой) кабельной линии связи |
|
на участке ОП «А» - ОП «Б» |
|
магистрали ___(индекс)_____ |
|
Марка кабеля -_________________________________________________ |
|
Длина трассы -______________________________________________ км. |
|
Длина кабеля (всего) ______________________________ км; в том числе |
|
в грунте ________________________________________ км. |
|
в канализации под водой __________________________ км. |
|
Год прокладки кабеля -_______________________________ |
|
Паспорт составлен -_______________(дата)______________ |
|
Ответственный представитель генподрядчика: |
|
_____(должность)____ __________(подпись)____ ____(Ф. И. О.)_______ |
|
Ответственный исполнитель: |
|
_____(должность)_____ _________(подпись)____ ____(Ф. И. О.)________ |
|
Объект: __(номер заказа)__ |
|
Подрядчик:_(наименование организации)___________________ |
Фирма ВОЛС ПТЭ-3
ВОЛП - ___(индекс)__
Волоконно-оптический кабель ДПС производства ЗАО «Севкабель - Оптик».
Эскиз поперечного сечения кабеля.
1. наружная оболочка из ПЭВД
2. броня из стальной оцинкованной проволоки
3. промежуточная оболочка
4. оптический модуль из ПБТ
5. гидрофобный заполнитель
6. центральный силовой элемент (ЦСЭ) из стеклопластика (ДПС) или металлического троса (СПС)
7. кордель, заполненный стеклонитями
8. оптическое волокно (от 4-х до 6-ти в каждом оптическом модуле)
Рекомендуемые условия прокладки
* В грунтах всех групп при прокладке в открытую траншею
* В кабельной канализации, трубах, коллекторах при наличии особо высоких требований по механической устойчивости
Основные параметры и особенности конструкции
* Оптическая скрутка 6-ти элементная с центральным силовым элементом (ЦСЭ) диаметром 2 мм
* Коэффициент затухания, менее
- 0,25 дБ/км на длине полны 1,55 мкм
- 0,4 дБ/км на длине волны 1,3 мкм (для одномодовых волокон)
- 0,7 дБ/км на длине полны 1,3 мкм (для многомодовых волокон)
* Растягивающее усилие - 7 кН
* Температурный диапазон - -40 °С ... 50 °С
* Вес, не более - 650 кг/км
* Внешний диаметр - 16 мм
* Соотношение оптических модулей и корделей в скрутке в зависимости от количества оптических волокон
* Максимальное количество оптических волокон - 36
|
(должность) |
(Фамилия И. О.) |
(подпись) |
(дата) |
Форма ВОЛС-ПТЭ-4
ВОЛП - __(индекс)___
Участок регенерации НРП... - НРП...
|
(должность) |
(Фамилия И. О.) |
(подпись) |
(дата) |
Форма ВОЛС-ПТЭ-5
ВОЛП - _(индекс)__
Участок регенерации ОП-1 - НРП-1/1
Протокол монтажа муфты № _ |
|
Строително-монтажная организация____________________________________ |
|
Сварочное устройство (тип, зав №)_____________________________________ |
|
Рефлектометр (тип, зав №)____________________________________________ |
|
Установочные параметры рефлектометра: показатель преломления_________ |
|
длина волны - __________; длительность импульса - _______; диапазон - ____ |
|
Оптическое расстояние до смежной муфты № _____ составляет ____________ м. |
|
Затухание на сростках по сварочному устройству |
Затухание на сростках по рефлектометру |
Примечание |
||||||
|
1 |
2 |
3 |
4 |
А-В |
В-А |
Среднее |
||
|
1 |
|
|
|
|
|
|
|
|
|
2 |
|
|
|
|
|
|
|
|
|
3 |
|
|
|
|
|
|
|
|
|
4 |
|
|
|
|
|
|
|
|
|
5 |
|
|
|
|
|
|
|
|
|
6 |
|
|
|
|
|
|
|
|
|
7 |
|
|
|
|
|
|
|
|
|
8 |
|
|
|
|
|
|
|
|
|
9 |
|
|
|
|
|
|
|
|
|
10 |
|
|
|
|
|
|
|
|
|
11 |
|
|
|
|
|
|
|
|
|
12 |
|
|
|
|
|
|
|
|
|
Должность |
Фамилия И. О. |
Подпись |
Дата |
|
|
Представители строительно-монтажной организации |
|
|
|
|
|
|
|
|
|
|
|
Представители технадзора |
|
|
|
|
Форма ВОЛС-ПТЭ-6
ВОЛП - __(индекс)_
Объект НРП 1/1
Строительно-монтажная организация________________________________________
Наименование (номер) кросса_______________________________________________
Сварочное устройство (тип, №)_____________________________________________
|
Цвет ОВ |
Затухание на сростках по сварочному устройству (дБ) |
||||
|
1-е сращивание |
2-е сращивание |
3-е сращивание |
4-е сращивание |
||
|
1 |
|
|
|
|
|
|
2 |
|
|
|
|
|
|
3 |
|
|
|
|
|
|
4 |
|
|
|
|
|
|
5 |
|
|
|
|
|
|
6 |
|
|
|
|
|
|
7 |
|
|
|
|
|
|
8 |
|
|
|
|
|
|
9 |
|
|
|
|
|
|
10 |
|
|
|
|
|
|
11 |
|
|
|
|
|
|
12 |
|
|
|
|
|
|
Должность |
Фамилия И. О. |
Подпись |
Дата |
|
|
Представители строительно-монтажной организации |
|
|
|
|
|
|
|
|
|
|
|
Представители технадзора |
|
|
|
|
Форма ВОЛС-ПТЭ-7
ВОЛП - (индекс)
Участок ОП-1 - НРП-1/1.
Строительно-монтажная организация____________________________________
Рефлектометр (тип, зав №)_____________________________________________
|
Должность |
Фамилия И. О. |
Подпись |
Дата |
|
|
Представители строительно-монтажной организации |
|
|
|
|
|
|
|
|
|
|
|
Представители технадзора |
|
|
|
|
Форма ВОЛС-ПТЭ-8
ВОЛП - __(индекс)__
Участок регенерации:____
ПРОТОКОЛ
|
|
Строительно-монтажная организация_____________________________________ |
|
Рефлектометр (марка и зав. номер)_______________________________________ |
|
Установочные параметры: диапазон -_________ длина волны _______________; |
|
показатель преломления; ______________; длительность импульса ___________; |
|
Цвет |
Затухание суммарное на участке (дБ) |
Затухание километрическое (дБ/км) |
Оптическая длина ОВ (км) |
|||
|
А-Б |
Б-А |
А-Б |
Б-А |
|
||
|
1 |
|
|
|
|
|
|
|
2 |
|
|
|
|
|
|
|
3 |
|
|
|
|
|
|
|
4 |
|
|
|
|
|
|
|
5 |
|
|
|
|
|
|
|
6 |
|
|
|
|
|
|
|
7 |
|
|
|
|
|
|
|
8 |
|
|
|
|
|
|
|
9 |
|
|
|
|
|
|
|
10 |
|
|
|
|
|
|
|
11 |
|
|
|
|
|
|
|
12 |
|
|
|
|
|
|
|
Должность |
Фамилия И. О. |
Подпись |
Дата |
|
|
Представители строительно-монтажной организации |
|
|
|
|
|
|
|
|
|
|
|
Представители технадзора |
|
|
|
|
Форма ВОЛС-ПТЭ-9
ВОЛП - __(индекс)__
Участок регенерации:_______
Строительно-монтажная организация____________________________________
Измерительное оборудование___________________________________________
|
Участок ВОЛП |
Физическая длина ВОК на участке (км) |
Сопротивление изоляции шланга (кОм) |
Километрическое сопр. изоляции шланга (кОм) |
|
|
|
|
|
|
|
|
|
|
|
|
|
|
|
|
|
|
|
|
|
|
|
|
|
|
|
|
|
|
|
|
|
|
|
|
|
|
|
|
|
|
|
|
|
|
|
|
|
|
|
|
|
|
|
|
|
|
|
|
|
|
|
|
|
|
|
|
|
|
|
|
|
|
|
|
|
|
|
|
|
|
|
|
|
|
|
|
|
|
|
|
|
|
|
|
|
|
|
|
|
|
|
|
|
|
|
|
|
|
|
|
|
|
|
|
|
|
|
|
|
|
Должность |
Фамилия И. О. |
Подпись |
Дата |
|
|
Представители строительно-монтажной организации |
|
|
|
|
|
|
|
|
|
|
|
Представители технадзора |
|
|
|
|
Форма ВОЛС-ПТЭ-10
ВОЛП - ___(индекс)___
Участок регенерации ______-_____
Строительно-монтажная организация ____________________________________
Измерительное оборудование ___________________________________________
|
Участок ВОЛП |
Физическая длина грозозащитного троса (км) |
Сопротивление заземления (Ом) |
Переходное сопротивление (Ом) |
|
|
|
|
|
|
|
|
|
|
|
|
|
|
|
|
|
|
|
|
|
|
|
|
|
|
|
|
|
|
|
|
|
|
|
|
|
|
|
|
|
|
|
|
|
|
|
|
|
|
|
|
|
|
|
|
|
|
|
|
|
|
|
|
|
|
|
|
|
|
|
|
|
|
|
|
|
|
|
|
|
|
|
|
|
|
|
|
|
|
|
|
|
|
|
|
|
|
|
|
|
|
|
|
|
|
|
|
|
|
|
|
|
|
|
|
|
|
|
|
|
|
Должность |
Фамилия И. О. |
Подпись |
Дата |
|
|
Представители строительно-монтажная организации |
|
|
|
|
|
|
|
|
|
|
|
Представители технадзора |
|
|
|
|
ВОЛП _(индекс)_
Рабочая документация
ВОЛП __(индекс)_____
Строительно-монтажная организация - генподрядчик:______________________
РАБОЧАЯ ДОКУМЕНТАЦИЯ |
|
магистральной (внутризоновой) кабельной линии связи |
|
на участке _________-__________«Б» |
|
магистрали ______(индекс)_________ |
|
Марка кабеля -________________________________________________ |
|
Длина трассы -________________________________________________ км. |
|
Длина кабеля (всего)_________________________________ км; в том числе |
|
в грунте ___________________________________________ км; |
|
в канализации ______________________________________ км; |
|
под водой __________________________________________ км. |
|
Год прокладки кабеля -__________________________________ |
|
Паспорт составлен -__________(дата)_____________________ |
|
Ответственный представитель генподрядчика: |
|
__________(должность)____ ____(подпись)____ _____(Ф. И. О.)________ |
|
Ответственный исполнитель: |
|
__________(должность)____ _____(подпись)____ _____(Ф. И. О.)________ |
|
Объект:__(номер заказа)____ |
|
Подрядчик: ___(наименование организации)_______________ |
Форма ВОЛС-РД-4
ВОЛП - _(индекс)_
Участок ОП-1 - ТрП-1.
Протокол № ____
|
|
Марка кабеля __________________________________ Тип кабеля________ |
|
Кабельный барабан № ___________________Кабель № __ |
|
Физическая длина кабеля на барабане________________ метров |
|
Измерительное оборудование:____(тип, марка рефлектометра, зав. №)_________ |
|
Установочные данные: длина волны -_____; показатель преломления -_____ |
|
Цвет модуля |
Цвет ОВ |
Коэфф. затухания (дБ/км) |
Оптическая длина (м) |
||
|
А-Б |
Б-А |
||||
|
1 |
|
|
|
|
|
|
2 |
|
|
|
|
|
|
3 |
|
|
|
|
|
|
4 |
|
|
|
|
|
|
5 |
|
|
|
|
|
|
6 |
|
|
|
|
|
|
7 |
|
|
|
|
|
|
8 |
|
|
|
|
|
|
9 |
|
|
|
|
|
|
10 |
|
|
|
|
|
|
11 |
|
|
|
|
|
|
12 |
|
|
|
|
|
|
13 |
|
|
|
|
|
|
14 |
|
|
|
|
|
|
15 |
|
|
|
|
|
|
16 |
|
|
|
|
|
|
17 |
|
|
|
|
|
|
18 |
|
|
|
|
|
|
19 |
|
|
|
|
|
|
20 |
|
|
|
|
|
Средняя оптическая длина кабеля по ОВ _____________________м.
|
Должность |
Фамилия И. О. |
Подпись |
Дата |
|
|
Представители строительно-монтажной организации |
|
|
|
|
|
|
|
|
|
|
|
Представители технадзора |
|
|
|
|
Форма ВОЛС-РД-5
ВОЛП - _(индекс)__
Участок НРП1 - ТРП1
Отчёт по прокладке кабеля.Строительно-монтажная организация________________________________________ Завод-изготовитель кабеля_________________________________________________ Марка проложенного кабеля: 1) от НРП-1 до М13 (тип - 4)........................ (марка).................................................... 2) от М13 до ТРП1 (тип-2)............................ (марка).................................................... |
|
Номер строительной длины |
Номера смежных муфт |
Длина кабеля полученная (м) |
Длина кабеля проложенная (м) |
Остаток кабеля после прокладки (м) |
Дата прокладки |
Тип ВОК |
|
|
|
|
|
|
|
|
|
|
|
|
|
|
|
|
|
|
|
|
|
|
|
|
|
|
|
|
|
|
|
|
|
|
|
|
|
|
|
|
|
|
|
|
|
|
|
|
|
|
|
|
|
|
|
|
|
|
|
|
|
|
|
|
|
|
|
|
|
|
|
|
|
|
|
|
|
|
|
|
|
|
|
|
|
|
|
|
|
|
|
|
|
|
|
|
|
|
|
|
|
|
|
|
|
|
|
|
|
|
|
|
|
|
|
|
|
|
|
|
|
|
|
|
|
|
|
|
|
|
|
|
|
|
|
|
|
|
|
|
|
|
|
|
|
|
|
|
|
|
|
|
|
|
|
|
|
|
|
|
|
|
|
|
|
|
|
|
|
|
|
|
|
|
|
|
|
|
|
|
|
|
|
|
|
|
|
|
|
|
|
|
|
|
|
|
|
|
|
|
|
|
|
|
|
|
|
|
|
Должность |
Фамилия И. О. |
Подпись |
Дата |
|
|
Представители строительно-монтажной организации |
|
|
|
|
|
|
|
|
|
|
|
Представители технадзора |
|
|
|
|
Форма ВОЛС-РД-6
ВОЛП - ___(индекс)_____
Участок НРП1 - ТРП1
Протокол
|
|
Строительно-монтажная организация ________________________________ |
|
Кабель проложен между муфтами № __ и № __. |
|
Марка кабеля_____________________________________ Тип кабеля____ |
|
Кабельный барабан № ______________________________ Кабель № _______ |
|
Физическая длина кабеля ___________________ метров |
|
Измерительное оборудование:__(тип, марка рефлектометра)_______Зав. № ___ |
|
Установочные данные: длина волны - _______; показатель преломления -________ |
|
Цвет модуля |
Цвет ОВ |
Коэфф. затухания (дБ/км) |
Оптическая длина (м) |
||
|
А-Б |
Б-А |
||||
|
1 |
|
|
|
|
|
|
2 |
|
|
|
|
|
|
3 |
|
|
|
|
|
|
4 |
|
|
|
|
|
|
5 |
|
|
|
|
|
|
6 |
|
|
|
|
|
|
7 |
|
|
|
|
|
|
8 |
|
|
|
|
|
|
9 |
|
|
|
|
|
|
10 |
|
|
|
|
|
|
11 |
|
|
|
|
|
|
12 |
|
|
|
|
|
|
13 |
|
|
|
|
|
|
14 |
|
|
|
|
|
|
15 |
|
|
|
|
|
|
16 |
|
|
|
|
|
|
17 |
|
|
|
|
|
|
18 |
|
|
|
|
|
|
19 |
|
|
|
|
|
|
20 |
|
|
|
|
|
Примечание: проверка ВОК после прокладки допускается производить с одного конца кабеля.
|
Должность |
Фамилия И. О. |
Подпись |
Дата |
|
|
Представители строительно-монтажной организации |
|
|
|
|
|
|
|
|
|
|
|
Представитель технадзора |
|
|
|
|
ВОЛП - __(индекс)__
Участок НРП1 - ТРП1
ВОЛП - ___(индекс)____
Участок НРП1 - ТРП1
|
Участок трассы находится между населёнными пунктами (пикетами)_______________ __________________________________________________________________________ |
|
Строительно-монтажная организация _________________________________________ |
Акт
|
|
Мы, нижеподписавшиеся, представитель технического надзора заказчика___________ |
|
и представитель_____________________________________________________________ |
|
(наименование строительно-монтажной организации) |
|
произвели освидетельствование выполненных работ по прокладке кабелей и защитных проводов и установили: |
|
1. Проложен кабель марки ________________производства завода ________________ от ______________ до ______протяженностью ___________ ________________ км и марка ________________ от _____ до _____________ протяженностью _______________ км, а всего _________________________км |
|
2. Способ прокладки ________________________________________________________ |
|
(кабелеукладчиком, вручную) |
|
3. Глубина прокладки по проекту __________ м, фактически не менее _____ м. |
|
4. Перекрытие концов на стыке строительных длин______________________ м. |
|
5. Выполнены переходы через грунтовые дороги ________________________ м. __________________________________________________________________________ ___________________________________________________________________________ |
|
(указать способ прокладки кабеля на переходе: кабелеукладчиком, вручную, количество труб и т.п. по каждому переходу) |
|
6. Выполнены переходы через малые реки и ручьи ______________________________ __________________________________________________________________________ __________________________________________________________________________ |
|
7. Произведена защита кабеля кирпичом (железобетонными плитами) на участке ______________________ общей протяженностью ________________________ м. |
|
8. Выполнены работы по устройству постели (из привозного песка, мягкого грунта) на участке __________________________ в объеме _____________________ |
|
Должность |
Фамилия И. О. |
Подпись |
Дата |
|
|
Представители строительно-монтажной организации |
|
|
|
|
|
|
|
|
|
|
|
Представитель технадзора |
|
|
|
|
Форма ВОЛС-РД-8/2
ВОЛП - __(индекс)___
Участок НРП1 - ТРП1
|
Участок трассы находится между: _____________________________________________ |
||||||||||||||||||||||||||||||||||||||
|
___________________________________________________________________________ |
||||||||||||||||||||||||||||||||||||||
|
Строительно-монтажная организация___________________________________________ |
||||||||||||||||||||||||||||||||||||||
Акт
|
||||||||||||||||||||||||||||||||||||||
|
Мы, нижеподписавшиеся, представитель технического надзора заказчика_________________________________________________________________ |
||||||||||||||||||||||||||||||||||||||
|
и представитель___________________________________________________________ |
||||||||||||||||||||||||||||||||||||||
|
(наименование строительно-монтажной организации) |
||||||||||||||||||||||||||||||||||||||
|
произвели освидетельствование работ по прокладке (докладке) трубопроводов кабельной канализации согласно рабочим чертежам |
||||||||||||||||||||||||||||||||||||||
|
№№ ____________ по ул. __________________________ от колодца № ________ |
||||||||||||||||||||||||||||||||||||||
|
(дом № _______) до колодца № ______________ (дом № ________) и установили: 1. Общие данные
2. Способ соединения стыков труб __________________________________________ ________________________________________________________________________ 3. Глубина заложения подошвы блока _______________________________________ 4. Промежутки между трубами засыпаны ____________________________________
|
||||||||||||||||||||||||||||||||||||||
Форма ВОЛС-РД8/3
ВОЛП - __(индекс)___
Участок НРП1 - ТРП1
|
Участок трассы находится:__________________________________________________ __________________________________________________________________________ Строительно-монтажная организация__________________________________________ Акт
|
||||||||||||||||||||
|
Пересекаемое сооружение |
Характеристика труб |
Способ выполнения работ |
Примечание |
||||
|
материал |
диаметр |
длина |
число каналов |
||||
|
|
|
|
|
|
|
|
|
2. Проверка проходимости каналов _______________________________________
______________________________________________________________________
3. Покрытие труб битумной массой на пересечениях электрифицированных дорог _______________________________________________________________________
4. Способ заделки стыков труб ____________________________________________
5. Заделка концов труб ___________________________________________________
6. Установка столбиков около концов труб __________________________________
7. Восстановление откосов, кюветов________________________________________
8.______________________________________________________________________
9.______________________________________________________________________
Работы выполнены в соответствии с рабочей документацией проекта и действующими правилами _______________________________
Оценка выполненных работ (___________________________)
Приложение
|
Должность |
Фамилия И. О. |
Подпись |
Дата |
|
|
Представители строительно-монтажной организации |
|
|
|
|
|
|
|
|
|
|
|
Представитель технадзора |
|
|
|
|
Кабельный переход через ж/д на участке НУП-№... - НУП-№...... км + ...м

Форма ВОЛС-РД-8/4
ВОЛП - ___(индекс)___
Участок НРП1 - ТРП1
Объект - НРП1
|
Строительно-монтажная организация_____________________________________ |
АКТ
|
|
Мы, нижеподписавшиеся, представитель технического надзора заказчика_________________________________________________________________ |
|
и представитель___________________________________________________________ |
|
(наименование строительно-монтажной организации) |
|
произвели освидетельствование выполненных работ по строительству НРП № ___ на участке трассы и установили: |
|
1. Место установки НРП соответствует рабочим чертежам проекта ________________________________________________________________________ |
|
2. Основание под цистерну (контейнер, корпус) выполнено из ________________________________________________________________________ |
|
3. Анкеровка цистерны выполнена посредством анкеров и тяжей из ________________________________________________________________________ |
|
4. Гидроизоляция (противокоррозионное покрытие) повреждений не имеет: |
|
5. Анкеры, тяжи, хомуты, закладные детали защищены от коррозии________________________________________________________________ |
|
(указать способ) |
|
6.____________________________________________________________________ |
|
7.____________________________________________________________________ |
|
8._____________________________________________________________________ |
Все работы выполнены в соответствии с рабочей документацией и действующими правилами.
|
Должность |
Фамилия И. О. |
подпись |
дата |
|
|
Представители строительно-монтажной организации |
|
|
|
|
|
|
|
|
|
|
|
Представители технадзора |
|
|
|
|
Форма ВОЛС-РД-8/5
ВОЛП - ___(индекс)___
Участок НРП1 - ТРП1
Объект - НРП1
|
Строительно-монтажная организация_____________________________________ |
Акт
|
|
Мы, нижеподписавшиеся, представитель технического надзора заказчика_________________________________________________________________ |
|
и представитель___________________________________________________________ |
|
(наименование строительно-монтажной организации) |
произвели освидетельствование выполненных работ по устройству заземлений и установили:
1. Общие данные
|
Характеристика |
Назначение заземления |
|||
|
рабочее |
защитное |
линейно-защитное |
||
|
1 |
2 |
3 |
4 |
5 |
|
1 |
Материал электродов |
|
|
|
|
2 |
Количество электродов, шт. |
|
|
|
|
3 |
Длина электродов, м |
|
|
|
|
4 |
Материал шин |
|
|
|
|
5 |
Длина шин, м |
|
|
|
|
6 |
Марки соединительного кабеля (провода) |
|
|
|
|
7 |
Длина соединительного кабеля, м |
|
|
|
|
8 |
Глубина забивки электродов, м |
|
|
|
|
9 |
Глубина прокладки шин, м |
|
|
|
|
10 |
Способ соединения электродов |
|
|
|
|
11 |
Дата устройства заземления |
|
|
|
|
Должность |
Фамилии И. О. |
Подпись |
Дата |
|
|
Представители строительно-монтажной организации |
|
|
|
|
|
|
|
|
|
|
|
Представитель технадзора |
|
|
|
|
Форма ВОЛС-РД-9
ВОЛП - ___(индекс)____
Участок НРП1 - ТРП1
Объект - НРП1
Строительно-монтажная организация _____________________________________
|
Дата внесения изменения |
Причина изменения проектного решения |
Регенерационный участок и номера планшетов, на которых имеются изменения |
Подпись лица, внесшего изменения |
|
|
|
|
|
|
|
|
|
|
|
|
|
|
|
|
|
|
|
|
|
|
|
|
|
|
|
|
|
|
|
|
|
|
|
|
|
|
|
|
|
|
|
|
|
Примечание: В настоящем документе регистрируются лишь те изменения, которые произошли на кабеле, например: вставки, выноски, бандажи и т.д. с данными о ликвидации ненужных листов.
Форма ВОЛС-РД-10
ВОЛП - ___(индекс)___
Участок НРП1 - ТРП1
Справка
|