Настоящие Рекомендации распространяются на трехслойные бетонные и железобетонные панели с теплоизоляционным слоем из плит полистирольных вспененных экструзионных ПЕНОПЛЭКС® (далее панели), отвечающие требованиям ГОСТ 31310-2005.
Панели предназначены для наружных стен однорядной (поэтажной) разрезки жилых и общественных зданий.
Открытоеакционерное общество
"НАУЧНО-ИССЛЕДОВАТЕЛЬСКИЙ ИНСТИТУТ
ТРАНСПОРТНОГО СТРОИТЕЛЬСТВА"
(ОАО ЦНИИС)
Филиал ОАО ЦНИИС"Научно-исследовательский центр "Мосты"
(Филиал ОАО ЦНИИС "НИЦ "Мосты")
Утверждаю
Директорфилиала ОАО ЦНИИС
"НИЦ"Мосты" д-р техн. наук
________________А.С. Платонов
19 декабря 2007г.
ПОГИДРОИЗОЛЯЦИИ МОСТОВЫХ СООРУЖЕНИЙ РУЛОННЫМИ
НАПЛАВЛЯЕМЫМИ МАТЕРИАЛАМИ «ТЕХНОЭЛАСТМОСТ»
ИС-07-1187-02
| Зав. лабораторией, | Э.А. Балючик |
| Ведущий научный сотрудник, | И.Д. Рассказов |
| Нормоконтролер | Е.В. Сучкова |
Москва2007
Содержание:
Настоящие Рекомендации необходимо соблюдать приприменении рулонного гидроизоляционного наплавляемого битумно-полимерногоматериала Техноэласт МОСТ, производства Компании «ТехноНИКОЛЬ»,предназначенного для гидроизоляции железобетонной плиты проезжей части истальной ортотропной плиты пролетных строений автодорожных, пешеходных исовмещенных мостов, путепроводов, виадуков, эстакад, сооружаемых иэксплуатируемых во всех климатических зонах Российской Федерации по СНиП 23-01-99*.
В зависимости отобласти применения Техноэласт МОСТ выпускают двух марок:
-Техноэласт МОСТ Б - для гидроизоляции железобетонной плиты проезжей частимостовых сооружений;
- ТехноэластМОСТ С - для устройства гидроизоляции на стальной ортотропной плите пролетныхстроений, а также для гидроизоляции пролетных строений с железобетонной плитойпроезжей части, в которых непосредственно на гидроизоляцию укладываютасфальтобетонное покрытие, в том числе из литых смесей с температурой до 220°С.
Эти материалысостоят из армирующей полиэфирной основы, на которую с обеих сторон нанесенобитумно-полимерное связующее. Особенностью материалов является то, чтоприклеивающий слой наплавления, нанесенный на материал в заводских условиях,четко нормируется по массе. В качестве основы используются долговечные, негниющие полотна из синтетических волокон (нетканые полиэфирные волокна).
2.1. Настоящие рекомендации распространяются напроектирование и устройство гидроизоляции мостовых сооружений в районах сразличными климатическими условиями строительства. Рекомендации разработаны вразвитие требований СНиП 2.05.03-84*«Мосты и трубы», СНиП 3.06.04-91«Мосты и трубы», СНиП 2.03.11-85 «Защитастроительных конструкций от коррозии», СНиП3.04.03-85 «Защита строительных конструкций и сооружений от коррозии», ВСН32-81 «Инструкция по устройству гидроизоляции конструкций мостов и труб нажелезных, автомобильных и городских дорогах».
2.2. В настоящих Рекомендациях использованы ссылки надействующие нормативные документы, перечисленные в п.п. 15.
2.3.Гидроизоляция металлических и железобетонных плит пролетных строений, каксоставная часть мостового полотна, предназначена для защиты конструкций откоррозии при воздействии агрессивных сред. Гидроизоляция должна бытьводостойкой, водонепроницаемой, химически стойкой, биостойкой и не содержатькомпонентов, вызывающих коррозионное разрушение металла ортотропной плиты илижелезобетона.
2.4.Проектирование и устройство гидроизоляции является составной частью проектамостового сооружения, где должны быть предусмотрены конструктивные итехнологические решения по отводу воды с поверхностей элементов мостовогополотна, плиты проезжей части, из пониженных мест, замкнутых полостейконструкций.
2.5. Дляпредотвращения проникновения воды на поверхность гидроизоляции и изолируемойповерхности в рекомендациях предусмотрены поузловые конструктивные решения гидроизоляциив местах установки водоотводных трубок, у деформационных швов, примыканийизоляционных слоев к вертикальным поверхностям, парапетам и другим, выступающимнад поверхностью элементам.
2.6.Гидроизоляционный материал должен быть в достаточной степени эластичным, чтобысохранять сплошность и прочность при деформациях настильного листа ортотропнойплиты от динамических знакопеременных воздействий движущегося по мостутранспорта, а также в растянутых зонах железобетонной плиты проезжей части.
2.7. Гидроизоляциядолжна быть морозостойкой, не растрескиваться и не разрушаться приотрицательных температурах, характерных для заданного района строительства иопределяемых расчетной температурой, равной средней температуре наиболеехолодной пятидневки с обеспеченностью 0,92.
2.8.Гидроизоляция должна быть теплостойкой и сохранять свою работоспособность привысоких положительных температурах наружного воздуха и материала покрытияпроезжей части. Материал гидроизоляции должен выдерживать высокие температурыукладываемых на нее горячих асфальтобетонных смесей.
2.9. Основнойматериал гидроизоляции и все ее связующие и защитные слои должны иметьсцепление с изолируемой поверхностью и вышележащими слоями покрытия мостовогополотна, обеспечивающее стойкость против разрушения и деформаций сдвига отгоризонтальных усилий, создаваемых торможением транспорта или началом егодвижения.
2.10.Изолируемые поверхности и сама гидроизоляция не должны создавать обратныхуклонов и застоев влаги. В проекте мостового сооружения должен бытьпредусмотрен полный и быстрый, свободный или организованный сток ливневых иснеговых вод. На покрытии мостового полотна также не должно оставаться застоевводы.
2.11.Выполненная по настоящим Рекомендациям гидроизоляция должна быть:
- монолитной и непрерывной,без вздутий и пузырей по всей поверхности;
-водонепроницаемой по всей поверхности мостового сооружения и в местахсопряжений с водоотводными трубками, деформационными швами, стойкамиограждения, мачтами освещения и другими конструкциями;
- герметичной вместах примыканий к тротуарам, ограждающим устройствам и другим выступающимэлементам.
3.1. Техноэласт МОСТ Б(ТУ 5774-004-17925162-2003) - битумно-полимерный рулонный наплавляемыйгидроизоляционный материал. Предназначен дляустройства гидроизоляции железобетонной плиты проезжей части мостовыхсооружений.
3.2. Техноэласт МОСТ С(ТУ 5774-004-17925162-2003) - битумно-полимерный рулонный наплавляемый гидроизоляционныйматериал. Предназначен для устройствагидроизоляции на стальной ортотропной плите пролетных строений, а также длягидроизоляции пролетных строений с железобетонной плитой проезжей части, накоторых непосредственно на гидроизоляцию укладывают асфальтобетонное покрытие,в том числе из литых смесей с температурой до 220°С.
3.3. Праймербитумно-полимерный ТЕХНОНИКОЛЬ № 03 (ТУ 5775-042-17925162-2006) -однокомпонентный материал холодного применения. Предназначен для обработкиповерхности стальной ортотропной плиты и железобетонной плиты пролетныхстроений мостовых сооружений перед укладкой гидроизоляционного слоя. Обладаетмалым временем высыхания, защищает металлическую поверхность от коррозии,увеличивает прочность сцепления наплавляемого материала с основанием. Набетонном основании, обеспечивает защиту бетонной поверхности от насыщениявлагой, увеличивает прочность сцепления наплавляемого гидроизоляционногоматериала с основанием.
3.4. Герметикбитумно-полимерный ТЕХНОНИКОЛЬ № 42 (ТУ 5772-009-72746455-2007) - однокомпонентный материал горячего применения. Предназначендля герметизации деформационных швов и мест сопряжения в бетонных иасфальтобетонных покрытиях автомобильных дорог и аэродромов.
3.4.1. Герметикбитумно-полимерный ТЕХНОНИКОЛЬ № 42 выпускается трех марок для применения вразличных природно-климатических зонах, в зависимости от температуры воздуханаиболее холодной пятидневки района строительства по СНиП 23-01-99*.
Таблица 1. Выбор герметика битумно-полимерногоТЕХНОНИКОЛЬ № 42.
| Температура воздуха наиболее холодной пятидневки района проведения работ | Марка герметика |
| Выше -25°С | БП-Г25, БП-Г35, БП-Г50 |
| От -25 °С до -35 °С | БП-Г35, БП-Г50 |
| Ниже -35 °С | БП-Г50 |
3.4.2. Качественныепоказатели герметика битумно-полимерного ТЕХНОНИКОЛЬ №42 должны соответствоватьтребованиям, указанным в Таблице 2.
Таблица 2. Основные физико-механические характеристикигерметика битумно-полимерного ТЕХНОНИКОЛЬ № 42.
| Марка герметика | БП-Г25 | БП-Г35 | БП-Г50 |
| Температура размягчения, °С, не ниже | 105 | 100 | 95 |
| Гибкость на стержне диаметром 20 мм при температуре, °С, не выше | -25 | -35 | -50 |
| Относительное удлинение при разрыве, %, не менее | 100 | 100 | 100 |
| Температура липкости, °С, не ниже | 55 | 50 | 50 |
| Выносливость, количество циклов, не менее | 35000 | 35000 | 35000 |
| Водопоглощение в течение 24 часов, % по массе, не более | 0,2 | 0,2 | 0,2 |
| Изменение свойств под воздействием УФ-облучения, часов, не менее | 1000 | 1000 | 1000 |
4.1. Гидроизоляционный материал Техноэласт МОСТ долженсоответствовать требованиям ТУ 5774-004-17925162-2003, ГОСТ30547-97* и изготавливаться по технологическому регламенту, утвержденному вустановленном порядке.
4.2. Передначалом работ гидроизоляционный материал должен быть подвергнут входномуконтролю с обязательной проверкой:
- наличиясопроводительного документа (паспорта), удостоверяющего качество материала;
- соответствияпоказателей качества, указанных в паспорте, требованиям ТУ на материал;
- отсутствиевнешних повреждений материалов.
4.3. Основные параметры и характеристики:
4.3.1. Полотно материала Техноэласт МОСТ не должноиметь трещин, дыр, разрывов, пузырей, складок, отслоения полимерной пленки.
4.3.2.Требования к плотности намотки, слипаемости, ровности торцов рулона, величиневыступов на них, сплошности нанесения вяжущего, количеству составных рулонов иполотен в рулоне - по ГОСТ30547-97*.
4.3.3. Линейныеразмеры полотна в рулоне, предельные отклонения от номинальных размеров должнысоответствовать требованиям, указанным в Таблице 3.
Таблица 3. Линейные размеры материала.
| Наименование показателя | Номинальные размеры | Предельные отклонения |
| Ширина, мм | 1000 | ± 30 |
| Длина, мм | 8000* | ± 200 |
| *Примечание: По согласованию с потребителем допускается изготовление материала других размеров. Возможен выпуск материала Техноэласт МОСТ С Гигант. Материал выпускается длиной от 50м, укладка на гидроизолируемую поверхность производится автоматизированным способом. | ||
4.3.4. Толщина полотнадолжна быть не менее:
- для Техноэласт МОСТ Б - 5,0 мм;
- для Техноэласт МОСТ С - 5,2 мм.
4.3.5. Качественные показатели материала Техноэласт МОСТдолжны соответствовать требованиям, указанным в Таблице 4.
Таблица 4. Основные физико-механические характеристикиматериала Техноэласт МОСТ.
| Марка | Техноэласт МОСТ Б | Техноэласт МОСТ С | |
| Наименование показателей | |||
| Толщина (± 0,1), мм | 5,0 | 5,2 | |
| Масса, кг/м2, не менее | 5,5 | 5,5 | |
| Масса верхнего слоя вяжущего с защитным покрытием, кг/м2, не более | - | 1,0 | |
| Основа армирующая | Э | Э | |
| Тип покрытия: | Верх | М | М |
| Низ | П | П | |
| Разрывная сила при растяжении в продольном направлении, Н/50 мм, не менее | 600 | 1000 | |
| Разрывная сила при растяжении в поперечном направлении, Н/50 мм, не менее | 600 | 900 | |
| Относительное удлинение при растяжении в момент разрыва в продольном и поперечном направлениях, %, не менее | 40 | 40 | |
| Водопоглощение в течение 24 часов, % по массе, не более | 1,0 | 1,0 | |
| Водонепроницаемость при давлении 0,2 МПа, в течение, ч | 24 | 24 | |
| Гибкость на брусе R=10 мм, °С, не выше | минус 25 | минус 25 | |
| Теплостойкость в течение 2 часов, °С, не ниже | 100 | 140 | |
| Примечание: - вид основы: Э - полиэфирное нетканое полотно; - вид защитных слоев с верхней и нижней стороны полотна: М - мелкозернистая посыпка (песок), П - защитная полимерная пленка. | |||
4.3.6. Техноэласт МОСТ Сдолжен выдерживать испытание на сопротивление статическому продавливанию. Послеиспытания материала при (250±10) Н в течение (24±0,1)ч образец долженвыдерживать испытание на водонепроницаемость.
4.3.7. Техноэласт МОСТ должен быть водостойким. Послевыдержки материала в воде при температуре (20±5) °С в течение не менее 7 сутокобразец должен выдерживать испытание на гибкость.
4.4. Упаковка и маркировка:
4.4.1. Материал Техноэласт МОСТ поставляют в рулонах,обмотанных в двух или трех местах полимерной упаковочной лентой с липким слоем.Для обеспечения сохранности материала при транспортировании и хранениидопускается установка в рулон картонной втулки, длина которой должна быть равнаширине полотна материала Техноэласт МОСТ. Допускается применение другихупаковочных материалов, обеспечивающих сохранность продукции притранспортировании и хранении.
4.4.2. Рулоны размещают на поддонах, скрепляютполипропиленовой лентой и упаковывают в колпак из полиэтиленовой термоусадочнойпленки.
4.4.3. Маркировка материала Техноэласт МОСТ должнапроизводиться по ГОСТ30547-97*.
4.4.4. Транспортная маркировка по ГОСТ 14192-96* с нанесением основных,дополнительных и информационных надписей.
4.4.5. По согласованию с потребителем допускаетсяизменение перечня указаний на этикетке.
5.1.1. Конструкция дорожной одежды мостового полотнана стальной ортотропной плите состоит из гидроизоляции из рулонногогидроизоляционного материала Техноэласт МОСТ С, наплавляемого в один слой идвух или более слоев асфальтобетонного покрытия из литых, уплотняемых ищебеночно-мастичных асфальтобетонов (Рис. 1).

Рис.1 Конструкция дорожной одежды мостового полотна на ортотропной плите.
5.1.2.Втехнологических целях, для сокращения потерь объемов выполненных работ принеустойчивой погоде, для предотвращения образования коррозии на металлическойортотропной плите, поверхность подготовленного металла грунтуется праймеромбитумно-полимерным ТехноНИКОЛЬ № 03 (п.п. 3.3.).
5.1.3. Длягидроизоляции в конструкции дорожной одежды мостового полотна на стальнойортотропной плите применяют битумно-полимерный рулонный наплавляемыйгидроизоляционный материал Техноэласт МОСТ С (п.п. 3.2.).Физико-механические характеристики Техноэласт МОСТ С приведены в Таблице4.
5.1.4. Передукладкой асфальтобетонного покрытия необходимо произвести нивелировку проезжейчасти, составить картограмму отметок с шагом 5×5 м и по ним определитьтолщины покрытия по всей поверхности проезжей части.
5.1.5.Отклонение толщины покрытия от проектных в меньшую сторону в пределах шириныпроезжей части не допускается.
5.1.6. Укладкаасфальтобетонного покрытия производится непосредственно на гидроизоляцию. В томчисле, допускается укладка литых асфальтобетонных смесей с температурой до220°C.
5.1.7. Впределах служебных проходов и тротуаров конструкция дорожной одежды аналогичнаконструкции дорожной одежды на проезжей части. Толщина асфальтобетонногопокрытия принимается по проектам.
5.2.1. С целью обеспечения надежной защиты металла откоррозии и долговечности конструкции дорожной одежды в подготовкугидроизолируемой металлической поверхности входят работы по физической ихимической обработке. Не допускается удаление ржавчины и окалины металлическимищетками, травильными пастами, преобразователями коррозии.
5.2.2.Поверхность стальной ортотропной плиты не должна иметь забоин, вмятин,выпуклостей. С поверхности должны быть устранены задиры, брызги сварки,заусенцы, наваренные монтажные элементы, сварные швы очищают от шлаков,закруглят все острые кромки и края радиусом не менее 3 мм.
5.2.3.Поверхность металлической ортотропной плиты очищают от грязи скребками,неметаллическими щетками и промывают водой. Очистку от пыли осуществляют спомощью промышленных пылесосов.
5.2.4. Послеочистки грязи зажиренные места на металлической поверхности промывают щелочнымирастворами с помощью волосяных щеток и протирочного материала, которые недолжны оставлять следов на металлической поверхности (волокна, ворс, щетина).
5.2.5. Недопускается применение бензина, уайт-спирита и других растворителей дляудаления жировых загрязнений. Поверхность обрабатывают мыльным раствором и двараза промывают теплой водой. Очистка начинается всегда с участков,расположенных в верхней по уклону части плиты. Продолжительность обработкиустанавливают опытным путем.
5.2.6. Послеочистки от жировых загрязнений поверхность должна быть гидрофильной (капли водырастекаются полностью). Качество обезжиривания должно соответствовать ГОСТ9.402-2004, степень обезжиривания поверхности - первая.
5.2.7. Сушкаповерхности может производиться естественным способом. Для ускорения применяютобдув поверхности чистым сухим воздухом, который не должен содержать масла.
5.2.8. Производстворабот по очистке металлической поверхности может производиться с использованиемпескоструйных или дробеструйных аппаратов (струйно-абразивная обработка).
5.2.9. Дляпескоструйной очистки применяют просушенный и промытый от глинистых примесейкварцевый песок. Хранить сухой песок следует в емкостях с крышкой. Отработанныйпесок после просеивания может быть использован повторно.
5.2.10.Поступающий в пескоструйный аппарат воздух должен быть чистым и сухим. Дляподачи сжатого воздуха к пескоструйному и дробеструйному аппаратам применяютшланги диаметром 18 или 25 мм, для подачи песчано-воздушной смеси к распылителю- шланги диаметром 32 мм по ГОСТ18698-79*.
5.2.11. Дляпескоструйной очистки рекомендуется применять металлокерамические илиминералокерамические сопла.
5.2.12. Припескоструйной очистке сопло располагают на расстоянии 75-100 мм от очищаемойповерхности под углом 75-80°. Расстояние от сопла до очищаемой поверхностизависит от крупности песка и толщины слоя окалины (чем толще слой, тем меньшедолжно быть расстояние). Категорически запрещается держать соплоперпендикулярно очищаемой поверхности.
5.2.13. Сособой осторожностью следует выполнять пескоструйную очистку вблизи бортиков уперил и ограждений с тем, чтобы не повредить покрытие на них.
5.2.14. Работус дробеструйным аппаратом нужно производить в соответствии инструкцией по егоэксплуатации.
5.2.15. Чтобы избежатьповреждения шлангов и других деталей рекомендуется использовать только круглуюкатаную дробь.
5.2.16. Последробеструйной обработки на поверхности не должно оставаться дроби, посколькупри выпадении росы дробь оставляет на металле ржавые натеки.
5.2.17.Используемый компрессор в зоне выполнения работ устанавливают на поддоне что быизбежать попадания масла на поверхность стальной ортотропной плиты.
5.2.18.Производство работ по струйно-абразивной очистке возможно только в сухуюпогоду. На металле не должно быть капельной влаги, вызванной атмосфернымиосадками, либо конденсацией влаги. При влажности воздуха до 70% устройство наочищенной поверхности гидроизоляции может быть произведено не позднее, чемчерез 7 часов. При влажности воздуха более 70% - не позднее, чем через 3 часа.
5.2.19.Запрещается работать в ночное время без освещения. В утренние часы работа можетначинаться после естественного высыхания росы на поверхности металла.
5.2.20. Чистота поверхности после струйно-абразивнойочистки должна отвечать требованиям: степень чистоты по DIN - Sa2, по ГОСТ9.301-86* степень очистки - вторая.
5.2.21. Визуальноповерхность металла должна быть равномерно-матового серого цвета (несеребристого).
5.2.22. Привыпадении на очищенную поверхность росы или дождя с образованием следов окислаили коррозии, необходимо произвести очистку повторно.
5.2.23.Температура окружающего воздуха при выполнении работ должна быть такой, чтобыточка росы была минимум на 3°C ниже температуры поверхности металла.Определение точки росы производится с использованием прибора «Психрометр».Значения для определения точки росы приведены в Таблице 5.
Таблица 5. Определение точки росы.
| Температура воздуха,°C | Точка росы, °C, при относительной влажности воздуха | ||||||||||
| 45% | 50% | 55% | 60% | 65% | 70% | 75% | 80% | 85% | 90% | 95% | |
| 2 | -7,77 | -6,56 | -5,43 | -4,40 | -3,16 | -2,48 | -1,77 | -0,98 | -0,26 | 0,47 | 1,20 |
| 4 | -6,11 | -4,88 | 3,69 | -2,61 | -1,79 | -0,88 | -0,09 | 0,78 | 1,62 | 2,44 | 3,20 |
| 6 | -4,49 | -3,07 | -2,10 | -1,05 | -0,08 | 0,85 | 1,86 | 2,72 | 3,62 | 4,48 | 5,38 |
| 8 | -2,69 | -1,61 | -0,44 | 0,67 | 1,80 | 2,83 | 3,82 | 4,77 | 5,66 | 6,48 | 7,32 |
| 10 | -1,26 | 0,02 | 1,31 | 2,53 | 3,74 | 4,79 | 5,82 | 6,79 | 7,65 | 8,45 | 9,31 |
| 12 | 0,35 | 1,84 | 3,19 | 4,46 | 5,63 | 6,74 | 7,75 | 8,69 | 9,50 | 10,48 | 11,33 |
| 14 | 2,20 | 3,76 | 5,10 | 6,40 | 7,58 | 8,67 | 9,70 | 10,71 | 11,64 | 12,55 | 13,36 |
| 15 | 3,12 | 4,65 | 6,07 | 7,36 | 8,52 | 9,63 | 10,70 | 11,69 | 12,62 | 13,52 | 14,42 |
| 16 | 4,07 | 5,59 | 6,98 | 8,29 | 9,47 | 10,61 | 11,68 | 12,66 | 13,63 | 14,58 | 15,54 |
| 17 | 5,00 | 6,48 | 7,92 | 9,18 | 10,39 | 11,48 | 12,54 | 13,57 | 14,50 | 15,36 | 16,19 |
| 18 | 5,90 | 7,43 | 8,83 | 10,12 | 11,33 | 12,44 | 13,48 | 14,56 | 15,41 | 16,31 | 17,25 |
| 19 | 6,80 | 8,33 | 9,75 | 11,09 | 12,26 | 13,37 | 14,49 | 15,47 | 16,40 | 17,37 | 18,22 |
| 20 | 7,73 | 9,30 | 10,72 | 12,00 | 13,22 | 14,40 | 15,48 | 16,46 | 17,44 | 18,36 | 19,18 |
| 21 | 8,60 | 10,22 | 11,59 | 12,92 | 14,21 | 15,36 | 16,40 | 17,44 | 18,41 | 19,27 | 20,19 |
| 22 | 9,54 | 11,16 | 12,52 | 13,89 | 15,19 | 16,27 | 17,41 | 18,42 | 19,39 | 20,28 | 21,22 |
| 23 | 10,44 | 12,02 | 13,47 | 14,87 | 16,04 | 17,29 | 18,37 | 19,37 | 20,37 | 21,34 | 22,23 |
| 24 | 11,34 | 12,93 | 14,44 | 15,73 | 17,06 | 18,21 | 19,22 | 20,33 | 21,37 | 22,32 | 23,18 |
| 25 | 12,20 | 13,83 | 15,37 | 16,69 | 17,99 | 19,11 | 20,24 | 21,35 | 22,27 | 23,30 | 24,22 |
| 26 | 13,15 | 14,84 | 16,26 | 17,67 | 18,90 | 20,09 | 21,29 | 22,32 | 23,32 | 24,31 | 25,16 |
| 27 | 14,08 | 15,68 | 17,24 | 18,57 | 19,93 | 21,11 | 22,23 | 23,31 | 24,32 | 25,22 | 26,10 |
| 28 | 14,96 | 16,61 | 18,14 | 19,38 | 20,86 | 22,07 | 23,18 | 24,28 | 25,25 | 26,20 | 27,18 |
| 29 | 15,58 | 17,58 | 19,04 | 20,48 | 21,83 | 22,97 | 24,20 | 25,23 | 26,21 | 27,26 | 28,18 |
| 30 | 16,79 | 18,44 | 19,96 | 21,44 | 23,71 | 23,94 | 25,11 | 26,10 | 27,21 | 28,19 | 29,09 |
| 32 | 18,62 | 20,28 | 21,90 | 23,26 | 24,65 | 25,79 | 27,08 | 28,24 | 29,23 | 30,16 | 31,17 |
| 34 | 20,42 | 22,19 | 23,77 | 25,19 | 26,54 | 27,85 | 28,94 | 30,09 | 31,19 | 32,13 | 33,1 |
| 36 | 22,23 | 24,08 | 25,50 | 27,00 | 28,41 | 29,65 | 30,88 | 31,97 | 33,05 | 34,23 | 35,06 |
| 38 | 23,97 | 25,74 | 27,44 | 28,87 | 30,31 | 31,62 | 23,78 | 33,96 | 35,01 | 36,05 | 37,03 |
| 40 | 25,79 | 27,66 | 29,22 | 30,81 | 23,16 | 33,48 | 34,69 | 35,86 | 36,98 | 38,05 | 39,11 |
| 45 | 30,29 | 32,17 | 33,86 | 35,38 | 36,85 | 38,24 | 39,54 | 40,74 | 41,87 | 42,97 | 44,03 |
| 50 | 34,76 | 36,63 | 38,46 | 40,09 | 41,58 | 42,99 | 44,33 | 45,55 | 46,75 | 47,90 | 48,98 |
| По таблице можно определить, при какой температуре поверхности появляется конденсат в зависимости от температуры воздуха и относительной влажности воздуха. Так, например, при температуре воздуха 20°C и относительной влажности воздуха 70% конденсат на гидрофобной поверхности образуется при температуре поверхности ниже 14,4°C. | |||||||||||
Таблица 6. Схема пооперационного контроляпроизводства работ по подготовке поверхности металла.
| Объект контроля | Способ контроля | Время контроля | Нормативные требования |
| 1 | 2 | 3 | 4 |
| Состояние поверхности металла | Визуальный | Перед струйно-абразивной очисткой металла | На поверхности не должно быть забоин, вмятин, выпуклостей, брызг сварки, наваренных металлических элементов, шлаков на сварных швах. Дренажные трубки должны быть установлены. |
| Качество очистки от жировых и прочих загрязнений (гидрофильность поверхности) | Обезжиренную поверхность в отдельных местах смачивают водой | Перед (и после) струйно-абразивной очисткой металла | Степень обезжиривания - первая. Если вода покрывает поверхность тонким слоем и не собирается в капли, то поверхность гидрофильна. Время разрыва пленки не менее 30 сек. При протирке поверхности чистой сухой белой салфеткой на ней может быть неявно выраженное расплывчатое пятно.
|
| Чистота воздуха от компрессора | Струю воздуха из сопла направляют на чистый лист бумаги | Не реже одного раза в смену | Воздух должен быть чистым и сухим. При обдуве листа в течение 1 мин на бумаге не должно появиться следов масла и влаги.
|
| Влажность абразивного материала | По отсутствию слипания зерен песка и дроби | Перед загрузкой в аппарат | Влажность абразивного материала - не более 5% |
| Крупность абразивного материала | Песок, просеянный через сито с ячейками: верхнее - 2,5 мм, нижнее - 0,63 мм. Дробь в соответствии с инструкцией. | Перед загрузкой в аппарат | Кварцевый песок крупностью 0,7-2 мм. Дробь диаметром 1-1,5 мм.
|
| Температура, влажность воздуха, точка росы | Определение термометром, психрометром | Перед началом работы, в течение процесса производства работ при изменении погоды | Точка росы должна быть ниже минимум на 3оС температуры поверхности металла |
| Чистота поверхности | Сравнение с эталоном | В процессе производства работ. Постоянно. | Степень чистоты по DIN - Sa2, что соответствует ГОСТ 9.301-86* степень очистки - вторая. |
5.2.24. Сразу после очисткиметалла, во избежание потерь объемов очищенной поверхности вследствиенеустойчивой погоды, для предотвращения образования коррозии на металлической ортотропнойплите следует производить защиту металлической поверхности с помощью праймерабитумно-полимерного ТЕХНОНИКОЛЬ № 03 (п.п. 3.3.).
5.2.25. Приустройстве гидроизоляции на поверхности металла, огрунтованной праймером битумно-полимернымТЕХНОНИКОЛЬ № 03 (п.п. 3.3.),работы разрешается начинать после улетучивания из грунтовки растворителя. Времявысыхания битумно-полимерного праймера при 20°С составляет около 5 минут.Оценить возможность для начала наплавления можно с помощью салфетки, котораяприкладывается к поверхности, обработанной битумно-полимерным праймером. Еслина салфетке не остаются следы битумно-полимерного праймера работу можноначинать. При работе на поверхности, огрунтованной битумно-полимерным праймером,не следует опасаться, что грунтовка будет повреждена пламенем горелки.
5.2.26. Чтобы избежать увлажнения и запыливанияогрунтованной поверхности, укладку материала рекомендуется осуществлять сразупосле высыхания праймера.
5.2.27.Устройству гидроизоляции должна предшествовать приемка основания подгидроизоляцию. Исполнитель должен представить заказчику журнал производстваработ, а также акты на работы по результатам контроля ровности и уклоновповерхности.
5.3.1. Гидроизоляцию выполняют из гидроизоляционногоматериала Техноэласт МОСТ С, наплавляя его в один слой на подготовленную всоответствии с п.п. 5.2.поверхность металла.
5.3.2.Устройство гидроизоляции из материала Техноэласт МОСТ С выполняют притемпературе воздуха не ниже температуры гибкости материала. Укладкугидроизоляции в условиях отрицательных температур рекомендуется производить сиспользованием тепляков с обеспечением положительной температуры воздуха внутритепляков. Работы по устройству гидроизоляции должны выполняться в сухую погоду.
5.3.3. Укладкурулонов на стальную ортотропную плиту начинают с пониженных мест (Рис. 2) впродольном направлении, относительно движению транспорта.

Рис.2 Порядок укладки гидроизоляционного материала.
5.3.4.Допускается поперечная раскатка рулонов в пределах тротуаров с расположениемнахлестки рулонов материала в поперечном направлении с учетом продольногоуклона так, чтобы верхний рулон был наклеен с повышенного места, как показанона рис. 2.
5.3.5. Передукладкой гидроизоляции рекомендуется развернуть 5-6 рулонов, примерить каждыйрулон по отношению к другому, обеспечив нахлест по продольным кромкам. Затемприклеить концы всех рулонов с одной стороны и снова скатать материалы врулоны. Для удобства работы и обеспечения качества рулоны должны быть круглыми.Плоский рулон материала следует раскатать на ровной поверхности и скатать его сдругого края.
5.3.6. Приработе в условиях отрицательных температур воздуха для исключения поврежденияматериала при раскатке его необходимо выдержать в теплом помещении доположительной температуры.
5.3.7. Полотнарулонных гидроизоляционных материалов наклеивают внахлестку на 80-100мм попродольным сторонам и не менее 150 мм в поперечных стыках смежных рулонов (Рис.3), в продольном направлении пролетного строения поперечные стыки рулонов всмежных полосах должны быть сдвинуты относительно друг друга на 500 мм.

Рис.3 Соединение полотен гидроизоляционного материала.
5.3.8. Угловыеучастки наклеенных материалов, оставляемые при перерывах в работе, должны бытьособенно тщательно приклеены во избежание затекания воды под них. Рекомендуетсяподрезать углы материала по радиусу или диагонали, чтобы увеличить длину катеташва, следовательно уменьшить вероятность непроплава и прохода воды через местонахлеста (Рис. 4).
5.3.9. Особоевнимание уделяют нахлестам материалов. Для достижения лучшей приклейки в местахнахлестов материал прикатывают валиками или мягкими щетками, движения которыхдолжны быть в направлении приклейки (Рис. 4).

Рис.4 Схема прикатки нахлестов гидроизоляционного материала.
5.3.10.Наплавление гидроизоляции из рулонных материалов на металлическую поверхностьортотропной плиты осуществляют путем оплавления нижней поверхности рулонапламенем воздушно-газовой горелки с одновременным подогревом поверхностиоснования. Рулон разворачивают медленно в направлении на себя вверх по уклону,прижимая его к основанию. Для раскатки рулона используют легкие металлическиекрючки, либо раскатчик рулона. При наплавлении гидроизоляции долженобразовываться вытек битумно-полимерного вяжущего в месте соприкосновениярулона с основанием величиной не более 20-25 мм, который свидетельствует оправильном температурном режиме укладки. Имеющаяся на нижней поверхностиматериала полиэтиленовая пленка должна быть полностью расплавлена вместе сбитумной массой. Наличие большого количества вытекающей массы, а такжепоявление дыма указывают на перегрев материала.
5.3.11.Запрещается распределение расплавленного вяжущего вспомогательными средствами(стержень, шпатель) по ширине рулона.
5.3.12. В случаеобразования при наклейке рулона воздушного пузыря, его следует удалить вследующем порядке:
- в дефектном местеделают крестообразный надрез;
- отгибают концыматериала;
пламенем горелкипрогревают изолируемую поверхность и поверхность отогнутых концов;
- тщательно прижимаютшпателем полотна оплавленной стороной к основанию;
- наклеиваютдополнительное полотно (заплату) способом оплавления, с перекрытием надрезов неменее чем на 100 мм со всех сторон.
5.3.13.Количество заплат должно быть ограничено. На площади 100 м2допускается установка не более 3-х штук.
5.3.14. Длянаклейки материала Техноэласт МОСТ С применяют газ пропан с расходом 0,3-0,6л/м2 в зависимости от температуры воздуха. При работе в условияхотрицательных температур воздуха расход газа доходит до 1 л/м2.
5.3.15 .Работыпроизводят с использованием на одном рулоне (по ширине) двух и более газовыхгорелок или многофакельными горелками. Возможно производить наплавлениематериала с помощью инфракрасного нагрева. В случае применения материалаТехноэласт МОСТ С Гигант наклейка производится автоматическими самоходными илиполуавтоматическими агрегатами.
5.3.16.Устройство асфальтобетонного покрытия следует выполнять по мере выполнениягидроизоляционных работ, но не ранее чем через 3 часа и не позднее, чем черезтрое суток после окончания устройства гидроизоляционного слоя. В случае еслиустройство асфальтобетонного покрытия в данный срок не возможно, допускаетсяпродлить время устройства асфальтобетонного покрытия при условии защитыгидроизоляции от солнечного света, теплового воздействия, механическоговоздействия. Защиту можно выполнять геотекстилем ТехноНИКОЛЬ илисветоотражающими пленками.
5.4.1. Проектная документация на мостовое сооружениедолжна содержать конструкцию дорожной одежды и чертежи деталей и узловгидроизоляции в местах ее примыкания к тротуарным блокам, ограждениям, карнизам,конструкциям деформационных швов, мачтам освещения, водосточным воронкам и т.п.
5.4.2.Гидроизоляционные работы начинают с выполнения узлов примыкания гидроизоляции кэлементам мостового полотна, ограждениям, мачтам освещения, примыканий кконструкций деформационных швов.
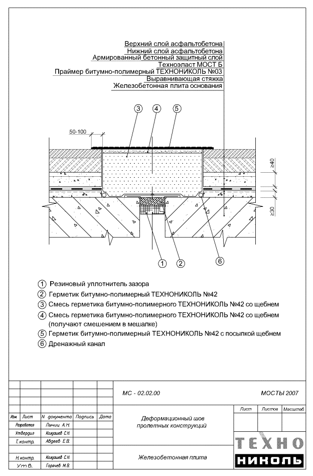
5.4.3. В местахпримыкания дорожной одежды к конструкциям деформационных швов, стойкамограждений и перилам, вертикальным поверхностям в покрытии должны быть устроеныштрабы 10×10…10×50 мм, которые должны быть заполнены герметиком битумно-полимернымТЕХНОНИКОЛЬ № 42 (п.п. 3.4.).
5.4.4. Припримыкании гидроизоляции к вертикальной поверхности гидроизоляцию заводят навертикальную поверхность на высоту до козырька равную толщине асфальтобетонногопокрытия (Рис. 5). Глубина козырька должна быть 15-20 мм, чтобы надежно закрытьгидроизоляцию слоями дорожной одежды
5.4.5. В местахперехода с горизонтальной поверхности на вертикальную гидроизоляцию нужновыполнять одним из следующих способов:
- выполняютпереходную галтель из наплавляемого битумного шнура треугольного сечения дляорганизации примыканий;
- возможенпереход с горизонтальной поверхности на вертикальную под прямым углом. В этомслучае в месте перехода наплавляют дополнительную полосу гидроизоляционногоматериала шириной 200 мм.

Рис.5 Примыкание гидроизоляции к вертикальным поверхностям.
5.4.6. Приналичии на проезжей части столиков, к которым крепят стойки барьерногоограждения или мачты освещения, вокруг каждого столика и его ребер жесткостидолжна быть выполнена гидроизоляция с выведением ее на вертикальную поверхностьдо уровня верхней плоскости столика (Рис. 6).

Рис.6 Гидроизоляция у стойки барьерного ограждения.
5.4.7.Гидроизоляция у стоек барьерного ограждения должна обеспечить отвод воды отоснования стоек.
5.4.8.В местах примыкания гидроизоляции к конструкциидеформационного шва материал Техноэласт МОСТ С наклеивают на горизонтальнуюполку окаймления. Сопряжение асфальтобетонной одежды с вертикальной частьюдеформационного шва производится через слой герметика битумно-полимерногоТЕХНОНИКОЛЬ № 42 (Рис. 7).

Рис.7 Примыкание дорожной одежды к конструкции деформационного шва.
5.4.9.Гидроизоляция должна быть надежно сопряжена с водоотводными трубками. Вокругтрубки укладывают секторные косынки гидроизоляционного материала и заводят ихконцы в раструб трубки с нахлесткой кромок не менее 50 мм (Рис. 8).

Рис.8 Сопряжение гидроизоляции с водоотводной трубкой.
5.4.10. Послевыполнения гидроизоляции в трубке наклеивают основную гидроизоляцию, в которойделают крестообразный разрез и лепестки приклеивают внутри трубки.
5.4.11. Послеустройства гидроизоляции в трубку устанавливают прижимной стакан (водоприемнуюворонку) и решетку. Пространство вокруг трубки заполняют дренажем из гравия.
5.4.12. Всоответствии с проектом выполняют устройство дренажной системы для отвода воды.Дренажная система содержит дренажные трубки и дренажные каналы.
6.1.1.Конструкцию дорожной одежды на железобетонной плите проезжей части выполняют всоответствии с п. 1.61 СНиП 2.05.03-84*,состоящей из выравнивающего слоя с минимальной толщиной 30 мм, гидроизоляции изрулонного гидроизоляционного материала Техноэласт МОСТ С, наплавляемого в одинслой и двух или более слоев асфальтобетонного покрытия из литых, уплотняемых ищебеночно-мастичных асфальтобетонов (Рис. 9).

Рис.9 Конструкция дорожной одежды на железобетонной плите.
6.1.2.Выравнивающий слой может быть выполнен переменной толщины для приданияповерхности под гидроизоляцию необходимого уклона, либо может отсутствовать примонолитной плите проезжей части, поверхность которой удовлетворяет требованиямвыполнения гидроизоляции в соответствии с п.п. 6.2.
6.1.3. Насборных пролетных строениях с бетонируемыми стыками устройство выравнивающегослоя обязательно.
6.1.4.Выравнивающий слой выполняют из мелкозернистого (песчаного) бетона, имеющийкласс по прочности на сжатие не ниже В25 по ГОСТ 26633-91*,марку по водонепроницаемости не ниже W6 по ГОСТ 12730.5-84* имарку по морозостойкости F 300 по ГОСТ10060.0-95 с водоцементным отношением не выше 0,42.
6.1.5. Вбетонную смесь для выравнивающего слоя необходимо вводить пластифицирующие ивоздухововлекающие добавки в соответствии с СНиП 3.06.04-91. Введение химическихдобавок-ускорителей твердения и противоморозных - не допускается.
Применение длявыравнивающего слоя керамзитобетона и других легких бетонов не допускается.
6.1.6. Втехнологических целях, для обеспечениязащиты бетонной поверхности от насыщения влагой, увеличения прочности сцеплениянаплавляемого гидроизоляционного материала с основанием, поверхностьподготовленного бетонного основания грунтуется праймером битумно-полимернымТехноНИКОЛЬ № 03 (п.п. 3.3.).
6.1.7.Гидроизоляцию железобетонной плиты проезжей части выполняют избитумно-полимерного рулонного наплавляемого гидроизоляционного материалаТехноэласт МОСТ С (п.п. 3.2.).Физико-механические характеристики материала приведены в Таблице4 настоящих Рекомендаций.
6.1.8. Передукладкой асфальтобетонного покрытия необходимо произвести нивелировку проезжейчасти, составить картограмму отметок с шагом 5×5 м и по ним определитьтолщины покрытия по всей поверхности проезжей части.
6.1.9.Отклонение толщины покрытия от проектных в меньшую сторону в пределах шириныпроезжей части не допускается.
6.1.10. Укладкаасфальтобетонного покрытия производится непосредственно на гидроизоляцию. В томчисле, допускается укладка литых асфальтобетонных смесей с температурой до220°C.
6.1.11. Впределах служебных проходов и тротуаров конструкция дорожной одежды аналогичнаконструкции дорожной одежды на проезжей части. Толщина асфальтобетонногопокрытия принимается по проектам.
6.2.1. Гидроизолируемаяповерхность должна иметь продольные и поперечные уклоны, соответствующиетребованиям п. 1.74 СНиП 2.05.03-84*:продольный в соответствии с продольным профилем сооружения, поперечный - неменее 20 %. Допускается уменьшение поперечного уклона при условии, чтосуммарный векторный уклон составляет не менее 20 %.
6.2.2.Гидроизолируемая поверхность не должна иметь раковин, наплывов бетона, трещин,неровностей с острогранными кромками, масляных пятен, пыли. Масляные пятнаудаляют выжиганием, наплывы бетона срубают с последующей шлифовкой.
6.2.3.Гидроизолируемая поверхность должна быть ровной и соответствовать классушероховатости 2-Ш, при котором допускается суммарная площадь отдельных раковини углублений не более 3 мм до 0,2 % на 1м2 при расстоянии междувыступами с впадинами 1,2-2,5 мм (СНиП3.04.03-85 табл. 2 и 3).
6.2.4. Приналичии на гидроизолируемой поверхности отдельных неровностей глубиной 10-15ммих устраняют заполнением герметика битумно-полимерного ТЕХНОНИКОЛЬ № 42 (п.п. 3.4)или шпаклевочными массами, которые должны быть удобоукладываемыми и в них недолжны образовываться трещины после высыхания.
6.2.5. Приусловии удовлетворения поверхности плиты проезжей части указанным в п.п.6.2.2-6.2.4 требованиям и наличии соответствующих уклонов специальныйвыравнивающий слой под гидроизоляцию не устраивают.
6.2.6. Забетоном выравнивающего слоя должен быть обеспечен уход с укрытием егополиэтиленовой пленкой или периодически увлажняемой мешковиной. Не допускаетсянанесение пленочных распыляемых составов для ухода за бетоном.
6.2.7. К началувыполнения гидроизоляционных работ прочность на сжатие бетона выравнивающегослоя или плиты проезжей части при его отсутствии должна быть не менее 75% отмарочной.
6.2.8. Доначала гидроизоляционных работ должны быть установлены водоотводные трубки,элементы конструкций деформационных швов, ограждающих устройств, тротуаров,оснований мачт освещения и другие конструкции в соответствии с проектом.
6.2.9. Приустройстве выравнивающего слоя должны быть соблюдены уклоны к водоотводнымтрубкам.
6.2.10. Передустройством гидроизоляции изолируемая поверхность должна быть сухой. Влажностьбетона в поверхностном слое на глубине 20 мм должна быт не более 4 %.
6.2.11. Переднепосредственным устройством гидроизоляции изолируемую поверхность очищают отстроительного мусора, пыли, пленки цементного молока. Снятие пленки цементногомолока рекомендуется производить сухой или влажной струйно-абразивной очисткой.Обработка поверхности бетона фрезами, образующими бороздки в бетоне, а такжемеханическими щетками и шлифованием не допускается.
6.2.12. Приустройстве гидроизоляции на основании из бетона, огрунтованной праймеромбитумно-полимерным ТЕХНОНИКОЛЬ № 03 (п.п. 3.3.),работы разрешается начинать после улетучивания из грунтовки растворителя. Времявысыхания битумно-полимерного праймера при 20°С составляет 5 минут. Оценить возможностьдля начала наплавления можно с помощью салфетки, которая прикладывается кповерхности, обработанной битумно-полимерным праймером. Если на салфетке неостаются следы битумно-полимерного праймера работу можно начинать. При работена поверхности, огрунтованной битумно-полимерным праймером, не следуетопасаться, что праймер будет повреждена пламенем горелки.
6.2.13. Чтобы избежать увлажнения и запыливанияогрунтованной поверхности, укладку материала рекомендуется осуществлять сразупосле высыхания праймера.
6.2.14.Устройству гидроизоляции должна предшествовать приемка основания иливыравнивающего слоя под гидроизоляцию. Исполнитель должен представить заказчикужурнал производства работ, протоколы испытаний основания по определениюпоказателей прочности, водонепроницаемости, морозостойкости и влажности бетона,а также акты на скрытые работы по результатам инструментального контроляровности и уклонов поверхности.
6.3.1. Гидроизоляциюиз наплавляемого рулонного материала Техноэласт МОСТ С укладывают в один слойпо подготовленной в соответствии с п.п.6.2.поверхности выравнивающего слоя или плиты проезжей части.
6.3.2.Устройство гидроизоляции из материала Техноэласт МОСТ С выполняют притемпературе воздуха не ниже температуры гибкости материала. Укладку гидроизоляциив условиях отрицательных температур рекомендуется производить с использованиемтепляков. Работы по устройству гидроизоляции должны выполняться в сухую погоду.
6.3.3. Укладкурулонов на бетонную плиту начинают с пониженных мест (Рис. 2) в продольном направлении,относительно движению транспорта.
6.3.4.Допускается поперечная раскатка рулонов в пределах тротуаров с расположениемнахлестки рулонов материала в поперечном направлении с учетом продольногоуклона так, чтобы верхний рулон был наклеен с повышенного места, как показанона рис. 2.
6.3.5. Перед укладкойгидроизоляции рекомендуется развернуть на подготовленное основание 5-6 рулонов,примерить каждый рулон по отношению к другому, обеспечив нахлест по продольнымкромкам. Затем приклеить концы всех рулонов с одной стороны и скатать материалснова в рулоны. Рулон материала для удобства должен быть круглым. Плоский рулонматериала следует раскатать на ровной поверхности и скатать его с другого края.
6.3.6. Приработе в условиях пониженных и отрицательных температур воздуха для исключенияповреждения материала при раскатке его необходимо отогреть в помещении по всемуобъему до положительной температуры.
6.3.7. Полотнарулонных материалов наклеивают с нахлесткой в стыках на 80-100 мм по продольнымсторонам и не менее 150 мм в поперечных стыках. Поперечные стыки в смежныхпродольных полотнищах должны быть сдвинуты на 500 мм (Рис. 3).
6.3.8.Наплавление гидроизоляции из рулонных материалов на поверхность бетонной плитыоснования осуществляют путем оплавления нижней поверхности рулона пламенемвоздушно-газовой горелки с одновременным подогревом поверхности основания.Рулон разворачивают медленно в направлении на себя вверх по уклону, прижимаяего к основанию. Для раскатки рулона используют легкие металлические крючки,либо раскатчик рулона. При наплавлении гидроизоляции должен образовыватьсявытек битумно-полимерного вяжущего в месте соприкосновения рулона с основаниемвеличиной не более 20-25 мм, который свидетельствует о правильном температурномрежиме укладки. Имеющаяся на нижней поверхности материала полиэтиленовая пленкадолжна быть полностью расплавлена вместе с битумной массой. Наличие большогоколичества вытекающей массы, а также появление дыма указывают на перегревматериала.
6.3.9. Угловыеучастки наклеенных материалов, оставляемые при перерывах в работе, должны бытьособенно тщательно приклеены во избежание затекания воды под них. Рекомендуетсяподрезать углы материала по радиусу или диагонали, чтобы увеличить длину катеташва, следовательно уменьшить вероятность непроплава и прохода воды через местонахлеста (Рис. 4).
6.3.10. Наклеенныеполотнища не должны иметь складок, морщин, волнистости. Особое внимание уделяютнахлестам материалов. Для достижения лучшей приклейки в местах нахлестовматериал прикатывают валиками или мягкими щетками, движения которых должны бытьв направлении приклейки (Рис. 4).
6.3.11.Запрещается распределение расплавленного вяжущего вспомогательными средствами(стержень, шпатель) по ширине рулона.
6.3.12. В случае образованияпри наклейке рулона воздушного пузыря, его следует удалить в следующем порядке:
- в дефектном местеделают крестообразный надрез;
- отгибают концыматериала;
- пламенем горелкипрогревают изолируемую поверхность и поверхность отогнутых концов;
- тщательно прижимаютшпателем полотна оплавленной стороной к основанию;
- наклеиваютдополнительное полотно (заплату) способом оплавления, с перекрытием надрезов неменее чем на 100 мм со всех сторон.
6.3.13.Количество заплат должно быть ограничено. На площади 100 м2допускается установка не более 3-х штук.
6.3.14. Длянаклейки материала Техноэласт МОСТ С применяют газ пропан с расходом 0,3-0,6л/м2 в зависимости от температуры воздуха. При работе в условияхотрицательных температур воздуха расход газа доходит до 1 л/м2.
6.3.15. Работыпроизводят с использованием на одном рулоне (по ширине) двух и более газовыхгорелок или многофакельными горелками. Возможно производить наплавлениематериала с помощью инфракрасного нагрева. В случае применения материала ТехноэластМОСТ С Гигант наклейка производится автоматическими самоходными илиполуавтоматическими агрегатами.
6.3.16. Привыполнении гидроизоляционных работ следует принять меры предосторожности противпопадания на гидроизоляцию масла, бензина, дизельного топлива и другихрастворителей. В случае пролива указанных материалов поврежденный участоквырезают и ставят заплату.
6.3.17.Устройство асфальтобетонного покрытия следует выполнять по мере выполнениягидроизоляционных работ, но не ранее чем через 3 часа и не позднее, чем троесуток после окончания устройства гидроизоляционного слоя. В случае еслиустройство асфальтобетонного покрытия в данный срок не возможно, допускаетсяпродлить время устройства асфальтобетонного покрытия при условии защитыгидроизоляции от солнечного света, теплового воздействия, механическоговоздействия. Защиту можно выполнять геотекстилем ТехноНИКОЛЬ илисветоотражающими пленками.
6.4.1.Проектная документация должна содержать конструкцию дорожной одежды и чертежидеталей и узлов гидроизоляции в местах ее примыкания тротуарным блокам,ограждениям, карнизам, конструкциям деформационных швов, мачтам освещения,водоотводным трубкам и т.п.
6.4.2. Гидроизоляционныеработы начинают с выполнения узлов примыкания гидроизоляции к элементаммостового полотна и только после их завершения переходят к гидроизоляцииосновных поверхностей.
6.4.3. В местахустановки тротуарных блоков и железобетонных парапетных огражденийгидроизоляцию выполняют в зависимости от их конструкции.
6.4.4.Гидроизоляция при сборных тротуарных блоках и парапетных ограждениях должнабыть выполнена на полную ширину плиты проезжей части.
6.4.5. В местахпримыкания гидроизоляции к цоколю перильного и парапетного ограждений онадолжна быть заведена под устроенный в цоколе козырек (Рис. 10).
6.4.6. В местахперехода с горизонтальной поверхности на вертикальную гидроизоляцию нужновыполнять одним из следующих способов:
- ввыравнивающем слое делают выкружку радиусом 100 мм;
- выполняютпереходную галтель 100×100мм под 45°;
- возможенпереход с горизонтальной поверхности на вертикальную под прямым углом. В этомслучае в месте перехода наплавляют дополнительную полосу гидроизоляционногоматериала шириной 200 мм.

Рис.10 Примыкание гидроизоляции к вертикальной поверхности.
6.4.7. Приналичии на проезжей части столиков, к которым крепят стойки барьерногоограждения или мачты освещения, вокруг каждого столика должна быть выполненагидроизоляция с выведением ее на вертикальную поверхность столика до уровняверхней его плоскости (Рис. 11).

Рис.11 Гидроизоляция у стойки барьерного ограждения.
6.4.8. Припересечении плиты проезжей части или тротуарного блока мачтами освещения гидроизоляциюзаводят на стенки мачты.
6.4.9. В местахпримыкания к конструкциям деформационных швов выполняют гидроизоляцию взависимости от конструкции перекрытия шва, но в любом случае она должнаисключать протечки воды через плиту проезжей части.
6.4.10. Привыполнении конструкции деформационных швов с компенсаторами лоткового типа(замкнутыми, незамкнутыми) гидроизоляция должна быть заведена в компенсатор иприклеена к нему.
6.4.11. Приконструкциях деформационных швов со стальным окаймлением гидроизоляция должнабыть заведена под козырек, образуемый окаймлением (Рис.12).

Рис.12 Сопряжение гидроизоляции с окаймлением деформационного шва.
6.4.12.Гидроизоляция должна быть надежно сопряжена с водоотводными трубками. Вокругтрубки укладывают секторные косынки гидроизоляционного материала и заводят ихконцы в раструб трубки с нахлесткой кромок не менее 50 мм (Рис. 13).

Рис.13 Сопряжение гидроизоляции с водоотводной трубкой.
6.4.13. Послевыполнения гидроизоляции в трубке наклеивают основную гидроизоляцию, в которойделают крестообразный разрез и лепестки приклеивают внутри трубки.
6.4.14. Послеустройства гидроизоляции в трубку устанавливают прижимной стакан (водоприемнуюворонку) и решетку. Пространство вокруг трубки заполняют дренажем из гравия.
6.4.15. Всоответствии с проектом выполняют устройство дренажной системы для отвода воды,попавшей на гидроизоляцию. Дренажная система содержит дренажные трубки идренажные каналы.
6.4.16. Послевыполнения конструкции дорожной одежды в местах всех примыканий асфальтобетонногопокрытия к элементам мостового полотна должны быть образованы штрабы сечением10×20 - 10×50 мм, которые заливают герметиком битумно-полимернымТЕХНОНИКОЛЬ № 42 (п.п. 3.4.).
7.1.Конструкцию дорожной одежды мостового полотна на железобетонной плите проезжейчасти выполняют в соответствии с п. 1.61 СНиП2.05.03-84* состоящей из выравнивающего слоя с минимальной толщиной 30 мм,гидроизоляции, защитного слоя с минимальной толщиной 40 мм, двухслойногоасфальтобетонного покрытия из литых, уплотняемых и щебеночно-мастичныхасфальтобетонов (Рис. 14).

Рис.14 Конструкция дорожной одежды мостового полотна на железобетонной плите сприменением материала Техноэласт МОСТ Б.
7.2. Выравнивающий слой выполняют из гидрофобногобетона, имеющего класс по прочности на сжатие не ниже В25 по ГОСТ 26633-91*,марку по водонепроницаемости W6 по ГОСТ 12730.5-84* имарку по морозостойкости F300 по ГОСТ10060.0-95 с водоцементным отношением не выше 0,42.
Применение длявыравнивающего слоя керамзитобетона и других легких бетонов не допускается.
7.3. Подготовку поверхности основания гидроизолируемойжелезобетонной плиты выполняют в соответствии с п.п. 6.2настоящих Рекомендаций.
7.4. Гидроизоляцию плиты проезжей части выполняют изматериала Техноэласт МОСТ Б (п.п. 3.1.).Физико-механические характеристики материала приведены в Таблице 2 настоящихРекомендаций.
7.5. Гидроизоляцию из наплавляемого рулонногоматериала Техноэласт МОСТ Б укладывают в один слой по подготовленной всоответствии с п.п. 6.2.поверхности выравнивающего слоя или железобетонной плиты проезжей части.Технология устройства гидроизоляции производится в соответствии с п.п. 6.3настоящих Рекомендаций.
7.6. Порядок выполнения гидроизоляции и ее примыканийк элементам мостового полотна производится в соответствии с п.п. 6.4настоящих Рекомендаций.
7.7. Защитныйслой выполняют из армированного мелкозернистого (песчаного) бетона, имеющийкласс по прочности на сжатие не ниже В25 по ГОСТ 26633-91*,марку по водонепроницаемости не ниже W6 по ГОСТ 12730.5-84* имарку по морозостойкости F 300 по ГОСТ10060.0-95 с водоцементным отношением не выше 0,42.
7.8. Армирование бетонного защитного слоя выполняютплоскими сварными сетками из арматурной стали класса Вp1 (А1)диаметром 5 мм с ячейкой 100×100 мм по ГОСТ23279-85. Арматурные сетки следует укладывать на пластмассовые или бетонные«подкладки», обеспечивая зазор под ними минимум 10 мм. Укладка арматурных сетокнепосредственно на гидроизоляцию не допускается.
7.9. Технологию укладки защитного армированного бетонаразрабатывают в зависимости от предусмотренных в проекте конструкций карниза,тротуара, перильного ограждения и ограждения безопасности.
7.10. Устройство горизонтального защитного слояследует выполнять сразу по мере выполнения гидроизоляционных работ, но не ранеечем через 3 часа и не позднее, чем трое суток после окончания устройствагидроизоляционного слоя. В случае, если устройство защитного слоя в данный срокне возможно, допускается продлить время устройства защитного слоя при условиизащиты гидроизоляции от солнечного света, теплового воздействия, механического воздействия.
8.1. Передвыполнением работ по гидроизоляции производят приемку рулонныхгидроизоляционных наплавляемых полимерно-битумных материалов по паспортам всоответствии с ГОСТ2678-94* и ГОСТ30547-97*, сопоставляя физико-механические характеристики с приведенными внастоящих Рекомендациях.
8.2. Потребованию заказчика о контрольной проверке физико-механических характеристикматериала испытания выполняют в соответствии с ТУ 5774-004-17925162-2003 на егопроизводство и ГОСТ2678-94*. Определение качественных показателей характеристик должно бытьвыполнено также в случае просроченного гарантийного срока хранения материала.
В случаенесоответствия поступивших материалов нормативным требованиям составляют акт набрак и такие материалы при производстве работ не применяют.
8.3.Контроль качества гидроизоляции и приемку работ осуществляют технические службыподрядной мостостроительной организации с участием представителя заказчика, ссоставлением исполнительной документации, в том числе актов на скрытые работы.
8.4.Контроль качества по устройству гидроизоляции разделяют на входной,операционный и приемочный.
8.5.Входному контролю подлежат:
-проектная и исполнительная документация на изготовление и монтаж конструкций,требующих нанесения системы гидроизоляции;
- всеиспользуемые для гидроизоляции материалы, на которые поставщики должны выдаватьсертификаты или паспорта качества. Технические характеристики материалов поданным сертификатов должны соответствовать действующим стандартам и техническимусловиям;
-готовность оборудования и приспособлений к производству работ, в том числе принеблагоприятных погодных условиях и в холодный период.
Необходимопредусмотреть проверку знаний ИТР и рабочих по гидроизоляционным работам.
8.6. Приоперационном контроле проверяют качество подготовки поверхности металлической ижелезобетонной плит:
8.6.1.Подготовка поверхности металлической ортотропной плиты производитсяструйно-абразивной обработкой с использованием пескоструйных или дробеструйныхаппаратов. Для сохранения очищенной поверхности от отрицательного воздействияна нее влаги дождя или росы целесообразно сразу покрыть ее грунтовкой. Вкачестве грунтовки применяют праймер битумно-полимерный ТЕХНОНИКОЛЬ № 03 (п.п. 3.3.).Выпадение на покрытую праймером битумно-полимерным поверхность дождя или росыне требует повторной очистки поверхности. Это дает возможность подготавливатьбольшую площадь поверхности основания под укладку гидроизоляции.
8.6.2.Поверхность железобетонной плиты должна быть ровной, чистой, сухой, без следовмасляных и жировых загрязнений.
8.6.3.Ровность поверхности (выравнивающего слоя) железобетонной плиты, проверяюттрехметровой рейкой по ГОСТ2789-73*. Рейку укладывают на поверхность выравнивающего слоя впродольном и поперечном направлениях и замеряют зазоры по длине, округляярезультаты измерений до 1 мм. Просветы под трехметровой рейкой должны бытьтолько плавного очертания и не более одного на 1 м. Максимальная глубинапросвета не должна превышать 5 мм.
8.6.4.Приемку поверхности, подготовленной к укладке гидроизоляции, оформляют актомосвидетельствования скрытых работ.
8.7.Приемочный контроль гидроизоляции производят до укладки защитного слоя.
Приприемочном контроле готового гидроизоляционного покрытия проверяют:
-сплошность покрытия и сопряжения его с элементами мостового полотна -визуально;
-отсутствие обратных уклонов и застоев воды;
- приприемке укладки гидроизоляционного полотна проверяют непрерывность приклейкислоев; герметичность соединения полотнищ в стыках; отсутствие дефектов путемвизуального контроля и проверкой поверхности гидроизоляции на наличие воздушныхпузырей, отслоений, складок, проколов, острых перегибов, оползаний;
-соответствие конструкции гидроизоляции требованиям проекта и настоящих рекомендаций(способом вырезки контрольных образцов гидроизоляционного покрытия);
- адгезиюматериала гидроизоляции к поверхности металлической ортотропной илижелезобетонной плиты.
8.8. Адгезиягидроизоляции к поверхности бетона должна быть проверена испытанием на отрыв.Для этого в гидроизоляционном материале делают П-образный надрез с размерамисторон 200×50×200 мм.Свободный конец полосы надрывают и тянут под углом 120°-180° к основанию.Испытание должно производиться через 1 сутки после наклейки гидроизоляции притемпературе не выше 30°С. Разрыв должен быть когезионным, т.е. должно бытьрасслоение по толщине материала, на основании остаются следы вяжущего.
8.9.Адгезию на отрыв гидроизоляции определяют в трех точках на каждые 1000м2площади и оформляют актом.
8.10. Примеханическом повреждении гидроизоляции (надрезы для определения адгезии,повреждения при проведении работ по подвозу и укладке асфальтобетона и др.) еевосстановление (ремонт) необходимо производить следующим образом:
-вырезать поврежденное покрытие по геометрической конфигурации, соответствующейместу повреждения;
-подготовить заплату соответствующей конфигурации;
путемнагрева уложить заплату на поврежденное место, тщательно прикатав шпателем;
-подготовить дополнительную заплату, превышающую своими размерами контурыповрежденного места на 80-100мм;
-дополнительную заплату нагреть, наложить на поврежденное место и прикатать;
-движение транспортных средств по гидроизоляции должно быть минимизировано иразрешается только в местах выгрузки асфальта в асфальтоукладчик. Маневрыавтотранспорта по гидроизоляции производить только в движении без резкихповоротов, торможений и троганий с места;
-окончательная приемка готовой гидроизоляции оформляется актом.
8.11.Вслучае образования при наклейке рулона воздушного пузыря, его следует удалить вследующем порядке:
- вдефектном месте делают крестообразный надрез;
-отгибают концы не приклеенного материала;
-пламенем горелки прогревают изолируемую поверхность и поверхность отогнутыхконцов;
-тщательно прижимают шпателем отогнутые концы полотна оплавленной стороной коснованию;
-наклеивают дополнительное полотно способом оплавления, с перекрытием надрезовне менее чем на 100 мм с каждой стороны. Допускается не более 3-х заплат на 100м2.
8.12.Результаты приемки гидроизоляции оформляют актом на скрытые работы.
Таблица7. Схема пооперационного контроля защитно-сцепляющего слоя.
| Объект контроля | Способ контроля | Время контроля | Требования |
| 1 | 2 | 3 | 4 |
| Рулонный гидроизоляционный материал | Визуальный по сопроводительным документам и маркировке. Сравнение характеристик, указанных в паспорте, с требованиями спецификации на материал. | При входном контроле | Спецификация на материал Техноэласт МОСТ |
| Наклеенный гидроизоляционный материал на элементах мостового полотна | Визуальный | В процессе выполнения работ | Не должно быть неприклеенных мест, не должно быть пропусков приклейки в нахлестках |
| Наклеенный гидроизоляционный материал на горизонтальной поверхности. | Визуальный. Простукивание деревянной палкой | При приемке гидроизоляции | Не должно быть пузырей, вздутий в гидроизоляционном материале. Не должно быть глухого звука. |
| Проверка адгезии гидроизоляции путем отдира полоски 200×50×200 мм под углом 180° | Не ранее, чем через сутки после наклейки при температуре под материалом ниже 30°C. | Должен происходить разрыв материала по его толщине, а не отрыв от основания. |
9.1. Движениетранспортных средств по уложенной гидроизоляции Техноэласт МОСТ С допускаетсяпод строгим контролем руководителей работ. Для покрытия гидроизоляции асфальтобетономили бетоном возможно движение по ней укладочной техники на пневмошинах. Приэтом нужно свести к минимуму разворот техники. Резкое торможение и рывки вначале движения не допускаются. Движение транспортных средств в других целяхограничивается из-за опасности разрушить гидроизоляцию.
9.2. В связи с этим взависимости от проектной конструкции мостового полотна на конкретном мостунеобходимо разработать конкретную технологию по ее сооружению:
9.2.1. Вариант 1.
Железобетонная плитапролетного строения на всю ширину должна быть покрыта гидроизоляцией. Наконсоли плиты навешиваются сборные карнизные блоки, к которым крепитсяперильное ограждение. Ограждение безопасности, отделяющее проезжую часть оттротуара представляет собой железобетонный парапет с наросткой высотыметаллоконструкциями. Часть мостового полотна от карниза, включая тротуар,подпарапетный участок и проезжую часть от парапета на 1000 мм покрыта слоемжелезобетона толщиной 130 мм. Остальная ширина проезжей части покрытаасфальтобетоном.
На данном мосту длясооружения мостового полотна необходим свободный проезд автомобилей, подвозящихарматурные каркасы, металлическую опалубку, бетон, железобетонные карнизныеблоки, металлоконструкции перильного ограждения, надстройки ограждениябезопасности, а также грузоподъемная техника для разгрузки и укладкиподвезенных материалов и конструкций.
Поэтому для гарантиисохранности гидроизоляции работы необходимо разделить на три этапа:
- в первом этапевыполняются работы по конструктивным элементам, размещенным на крайних полосахмостового полотна, закрываемых монолитным бетоном. При этом средняя частьмостового полотна между полосами безопасности служит для движения техники,обеспечивающей выполнение работ первого этапа;
- во втором этапевыполняются работы по укладке гидроизоляции на средней части пролетногостроения между полосами безопасности;
- в третьем этапевыполняется работа по закрытию гидроизоляции, уложенной между полосамибезопасности, т.е. на ширине ездового полотна, асфальтобетоном.
Первый этапвыполнения работ:
На наружных полосахмостового полотна располагаются карнизный блок, тротуар, мачты освещения,ограждение безопасности и полоса безопасности. Гидроизоляция на этой ширинепокрыта монолитным армированным бетоном.
Сооружение этих полоснеобходимо вести с опережением как более сложных и определяющих внешний видмоста.
Сооружение наружнойполосы мостового полотна начинается с наплавки ленты гидроизоляции на конецконсоли плиты пролетного строения, на которую затем устанавливаются и закрепляютсякарнизные блоки. Эта работа должна опережать последующие на один пролет. Этонеобходимо по двум причинам: чтобы карнизные блоки имели плавное очертание пофасаду моста и чтобы не повредить другие ленты гидроизоляции наружной полосыпри монтаже и закреплении карнизных блоков.
Гидроизоляция,которая будет находиться под карнизным блоком, должна наплавляться с перегибомна торец плиты пролетного строения на 100 мм и идти вдоль моста по уклону снизувверх с перехлестом - 150 мм. Остальные полосы по ширине укладываются вдольмоста по уклону снизу вверх и по ширине также снизу вверх с перехлестом поширине 100 мм.
Поперечные стыкисмежных продольных полотен гидроизоляции должны идти в разбежку не менее 500мм.
- Стаканы дляустановки столбов освещения необходимо устанавливать до наплавлениягидроизоляции, чтобы в процессе наплавки покрыть гидроизоляцией креплениестакана к закладной детали в плите проезжей части и закрыть гидроизоляциейвертикальные части крепления стакана в пределах толщины бетонной плитытротуара;
- при устройствегидроизоляции на участке моста, где имеются водоотводные трубки, необходимогидроизоляцию завести в трубу на глубину раструба, с тем, чтобы заведенныеконцы гидроизоляции зажать вставной воронкой;
- после наплавкигидроизоляции укладывают на бетонные подкладки арматурный каркас плиты иограждения безопасности;
- бетонируют плиту навсю ширину (тротуар, низ ограждения безопасности и полоса безопасности);
- устанавливаютопалубку ограждения безопасности и укладывают в нее бетон.
9.2.2.Вариант 2:
Измененияпо сравнению с вариантом 1 следующие: ограждения безопасности металлические, настойках закреплен специальный металлический профиль; асфальтобетон укладываетсяпо всей ширине между ограждениями безопасности; фасадные участки (карниз,перильное ограждение, покрытие тротуара) остаются прежние. В этом случае такжев первую очередь сооружаются карниз, перильное ограждение, ограждениебезопасности, гидроизоляция тротуара и покрытие тротуара железобетоном. Затемвыполнятся работы по проезжей части мостового полотна: гидроизоляция ТехноэластМОСТ С и первый слой асфальтобетона, затем укладывают второй слойасфальтобетона.
9.2.3.Вариант 3:
Металлическиеконструкции перил, столбов освещения, ограждения безопасности крепятся кзакладным деталям в плите пролетного строения.
Всеконструкции устанавливаются на место и закрепляются. После этого наплавляетсягидроизоляция на выступающие из плиты мостового полотна детали и далеепоследовательно наплавляется гидроизоляция и укладывается на нее первый слойасфальтобетона; затем укладывается второй слой асфальтобетона.
10.1. Асфальтобетонное покрытие выполняют в несколькослоев из литых, уплотняемых и щебеночно-мастичных асфальтобетонов в зависимостиот состава и интенсивности движения по ГОСТ9128-97*.
10.2. Асфальтобетонная смесь - рационально подобраннаясмесь минеральных материалов (щебня, гравия и песка с минеральным порошком илибез него) с битумом, взятых в определенных соотношениях и перемешанных внагретом состоянии.
10.3. Асфальтобетонные смеси (далее - смеси) иасфальтобетоны в зависимости от вида минеральной составляющей подразделяют нащебеночные, гравийные и песчаные.
10.4. Смеси в зависимости от вязкости используемогобитума и температуры при укладке подразделяют на:
- горячие, приготавливаемые с использованием вязких ижидких нефтяных дорожных битумов и укладываемые с температурой не менее 120°C;
- холодные, приготавливаемые с использованием жидкихнефтяных дорожных битумов и укладываемые с температурой не менее 5°C.
10.5. Горячие смеси и асфальтобетоны в зависимости отнаибольшего размера минеральных зерен подразделяют на:
- крупнозернистые с размером зерен до 40 мм;
- мелкозернистые - до 20 мм;
- песчаные - до 5 мм.
10.6. Асфальтобетоны из горячих смесей в зависимостиот величины остаточной пористости подразделяют на виды:
- высокоплотные с остаточной пористостью св. 1,0 до2,5 %;
- плотные с остаточной пористостью св. 2,5 до 5,0 %;
- пористые - св. 5,0 до 10,0 %;
- высокопористые - св. 10,0 до 18,0 %.
10.7. Щебеночные и гравийные горячие смеси и плотныеасфальтобетоны в зависимости от содержания в них щебня (гравия) подразделяют натипы:
А - с содержанием щебня св. 50 до 60 %;
Б - с содержанием щебня св. 40 до 50 %;
В - с содержанием щебня св. 30 до 40 %.
10.8. Смеси и асфальтобетоны в зависимости отпоказателей физико-механических свойств и применяемых материалов подразделяютна марки, указанные в Таблице 8.
Таблица 8. Марки смесей и асфальтобетонов.
| Вид и тип смесей и асфальтобетонов (по величине остаточной пористости и содержанию щебня) | Марки по показателям физико-механических свойств |
| Горячие: |
|
| Высокоплотные | I |
| Плотные типов: |
|
| А | I, II |
| Б | I, II, III |
| В | II, III |
| Пористые и высокопористые | I, II |
10.9. Смеси должныприготавливаться в соответствии с требованиями ГОСТ9128-97* по технологическому регламенту, утвержденному в установленномпорядке предприятием изготовителем.
10.10. Зерновые составы минеральной части смесей иасфальтобетонов для слоев покрытий должны соответствовать в процентах по массенаполнителей указанных в Таблицах 9 и 10.
Таблица 9.
| Вид и тип смесей и асфальтобетонов (нижний слой) | Размер зерен, мм, мельче | ||
| 5,0 | 0,63 | 0,071 | |
| Плотные типов: |
|
|
|
| А | от 40 до 50 | от 12 до 50 | от 4 до 10 |
| Б | от 50 до 60 | от 20 до 60 | от 6 до 12 |
| Пористые | от 40 до 60 | от 10 до 60 | от 0 до 8 |
| Высокопористые щебеночные | от 40 до 60 | от 10 до 60 | от 4 до 8 |
| Высокопористые песчаные | от 90 до 100 | от 25 до 85 | от 4 до 10 |
Таблица 10.
| Вид и тип смесей и асфальтобетонов (верхний слой) | Размер зерен, мм, мельче | |||||||||
| 20 | 15 | 10 | 5 | 25 | 1,25 | 0,63 | 0,315 | 0,14 | 0,07-1 | |
| Горячие: |
|
|
|
|
|
|
|
|
|
|
| Высокоплотные | 90-100 | 70-100 | 56-100 | 35-50 | 24-50 | 18-50 | 13-50 | 12-50 | 11-28 | 10-16 |
| Плотные типов: |
|
|
|
|
|
|
|
|
|
|
| А | 90-100 | 75-100 | 62-100 | 40-50 | 28-38 | 20-28 | 14-20 | 10-16 | 6-12 | 4-10 |
| Б | 90-100 | 80-100 | 70-100 | 50-60 | 38-48 | 28-37 | 20-28 | 14-22 | 10-16 | 6-12 |
| В | 90-100 | 85-100 | 75-100 | 60-70 | 48-60 | 37-50 | 28-40 | 20-30 | 13-20 | 8-14 |
10.11. Рекомендуемоесодержание битума в смесях в Таблице 11.
Таблица 11.
| Вид смесей | Содержание битума, % по массе |
| Горячие: |
|
| Высокоплотные | 4,0 - 6,0 |
| Плотные типов: |
|
| А | 4,5 - 6,0 |
| Б | 5,0 - 6,5 |
| В | 6,0 - 7,0 |
| Пористые | 3,5 - 5,5 |
| Высокопористые щебеночные | 2,5 - 4,0 |
| Высокопористые песчаные | 4,0 - 6,0 |
10.12. Водонасыщениевысокоплотных и плотных асфальтобетонов из горячих смесей должносоответствовать указанному в Таблице 12 в процентах по объему.
Таблица 12.
| Вид и тип асфальтобетонов | Значения для | |
| Образцов отформованных из смеси | выработок и кернов готового покрытия, не более | |
| Высокоплотные | от 1,0 до 2,5 | 3,0 |
| Плотные типов: |
|
|
| А | от 2,0 до 5,0 | 5,0 |
| Б, В | от 1,5 до 4,0 | 4,5 |
10.13.Температура асфальтобетонных смесей в момент укладки на гидроизоляцию из материалаТехноэласт МОСТ С не должна превышать 220 °С.
10.14. Смеси испытывают по ГОСТ12801-98*.
10.15. Щебень и гравий из горных пород испытывают по ГОСТ8269.1-97.
10.16. Песок природный и из отсевов дробления горных породиспытывают по ГОСТ 8735-88*.
10.17. Минеральные порошки промышленного производстваиспытывают по ГОСТ12784-78.
10.18. Битумы испытывают по ГОСТ 11501-78*, ГОСТ 11503-74*,ГОСТ11504-73*, ГОСТ 11505-75*, ГОСТ11506-73*, ГОСТ11507-78*.
11.1. Не рекомендуется движение транспортных средствпо гидроизоляции за исключением подвозящих бетонную смесь для защиты ТехноэластМОСТ Б или асфальтобетона для покрытия Техноэласт МОСТ С.
11.2. Не допускается резкое торможение и разворотавтомобилей на выполненной гидроизоляции.
11.3. Не допускается проход гладковальцованных катковпо гидроизоляции.
11.4. Протекторы на всем оборудовании должны регулярнопроверяться и обнаруженные застрявшие каменные материалы удаляться.
11.5. Асфальтоукладчики должны быть на колесном илигусеничном ходу с накладками на траках.
11.6. Автомобили, подвозящие асфальтобетонную смесь, должныдвигаться по гидроизоляции без резкого торможения и разворотов.
11.7. В случае, если под колесами укладчика происходитсмятие, разрыв материала гидроизоляции, укладку смеси следует прекратить,уменьшить массу укладчика или дождаться снижения температуры солнечного нагреваматериала гидроизоляции.
11.8. В случае, если при уплотнении покрытия за каткомобразуются поперечные трещины, укладку следует прекратить и дождаться снижениятемпературы смеси.
11.9. Заполнение бункера укладчика рекомендуется производитьна 50 % для уменьшения удельного давления на гидроизоляцию.
11.10. При укладке и уплотнении асфальтобетонной смесив зоне дренажных каналов, необходимо следить, чтобы асфальтоукладчики ненаезжали на дренажные каналы, кромки покрытия у дренажных каналов тщательноуплотняют.
11.11. Включение вибрации на катках при уплотнениипокрытия на стальной ортотропной плите не допускается.
11.12. При расположении пролетного строения на уклонеасфальтоукладчик должен двигаться под уклон во избежание повреждения гидроизоляцииусилиями, необходимыми для преодоления подъема.
11.13. Компрессор, используемый в зоне выполненияработ, должен быть установлен на поддоне во избежание загрязнения поверхностимаслом.
11.14. Рабочие, занимающиеся укладкой гидроизоляции,должны быть обуты в обувь с гладкой подошвой, чтобы избежать повреждениягидроизоляции.
12.1. Работы по устройству гидроизоляции должнывыполняться специализированными бригадами под техническим руководством иконтролем инженерно-технических работников, имеющих опыт в области устройствагидроизоляции мостов.
12.2. При выполнении работ по гидроизоляции мостовыхсооружений следует соблюдать требования правил техники безопасности.
12.3. К работам по устройству гидроизоляциидопускаются лица, прошедшие медицинский осмотр, обученных безопасным приемамработы и допущенных к пескоструйным работам и не имеющих кожных, аллергическихзаболеваний, хронических заболеваний печени, слизистых оболочек глаз, верхних дыхательныхпутей. Гидроизоляционные работы должны выполнять гидроизолировщики, сдавшие вустановленном порядке техминимум по технологии производства и техникебезопасности.
Каждый рабочий при допуске к работе должен пройтиинструктаж на рабочем месте с соответствующей записью в журнале.
12.4. На объекте должны быть руководящие материалы попроизводству работ и технике безопасности работы с наплавляемыми рулоннымигидроизоляционными материалами.
12.5. При производстве гидроизоляционных работзапрещается:
а) допускать к работелиц моложе 18 лет;
б) допускать к работелиц не прошедших медицинское освидетельствование, обучение по специальности,инструктаж по технике безопасности;
в) приступать к работе снеисправными приспособлениями;
г) допускатьсоприкосновение электрических проводов с газовыми баллонами;
д) допускать нагревгазовых баллонов, в том числе солнечными лучами;
е) допускать попаданиямасел в кислородные баллоны.
12.6. При работе сгазовыми баллонами и оборудованием струйно-абразивной очистки следует соблюдатьправила работы с аппаратами, находящимися по давлением.
12.7. Рабочие,выполняющие гидроизоляцию, должны быть обеспечены рабочей одеждой изхлопчатобумажной ткани с огнестойкой пропиткой по ГОСТ12.4.011-89 и ГОСТ12.4.012-83; резиновыми сапогами по ГОСТ12.4.087-84; респираторами типа «Лепесток» РУ - 60, РМП-62, Ф-46 по ГОСТ12.4.034-85; брезентовыми рукавицами по ГОСТ12.4.010-75*; защитными очками по ГОСТ12.4.023-84*; касками по ГОСТР 12.4.207-99.
На месте работ должны бытьвода, мыло и аптечка с медикаментами для оказания первой помощи.
12.8. При работе сгазовой горелкой:
- не допускается оставлять горелку в рабочем состояниибез надзора;
- запрещается класть на гидроизоляционное покрытие илидругие сгораемые предметы зажженную или не остывшую горелку;
- во избежании ожогов запрещается прикосновение кгорелке незащищенными частями рук.
12.9. Место производства работ должно быть обеспеченоследующими средствами пожаротушения:
- огнетушитель не менее - 2 шт.;
- ящик с песком 0,5 м3 - 1 шт.;
- лопата - 2 шт.;
- асбестовое полотно - 3 кв.м.
Пожарный инвентарь и приспособления должны бытьокрашены в ярко-красный цвет и содержаться в исправности.
12.10. Струно-абразивная очистка поверхности требуетсоблюдения следующих правил:
- пескоструйный аппарат должен иметь паспорт и бытьзарегистрирован как аппарат, работающий под давлением;
- предохранительный клапан пескоструйного аппаратадолжен быть отрегулирован на давление сжатого воздуха, превышающее на 10 %номинальное. Манометры должны быть исправны и опломбированы;
- соединять шланги с помощью двусторонних штуцеров изакреплять хомутами;
- перед началом работ и после них шланги необходимопродуть воздухом. Перегибать и скручивать шланги не разрешается. Дляпрекращения подачи воздуха необходимо пользоваться вентилем;
- работы следует выполнять в скафандрах, либо в шлемах«МИОТ». Глаза должны быть защищены очками, уши - противошумными наушниками, илисредством «беруши», либо антифонами. При выполнении работ на открытом воздухедопускается применять индивидуальные бесклапанные пылевые респираторы типа ШБ-1«Лепесток»;
- в зоне работы пескоструйного аппарата, кромеоператора, не должны находиться посторонние лица.
12.11. Первая медицинская помощь при ожогах горячимбитумом.
При сильных ожогах битумом следует выполнять следующиеправила:
- охладите битум водой (лучше холодной) для того,чтобы предотвратить глубокое поражение тканей;
- охлаждение водой необходимо производить немедленнодо тех пор, пока битум не затвердеет и не охладится, не рекомендуется охлаждатьболее 5 минут в избежании переохлаждения;
- нельзя удалять битум с обожженного участка,необходимо как можно скорее оказать квалифицированную медицинскую помощь.
13.1. Рулоны материала Техноэласт МОСТ должныхраниться рассортированными по маркам в вертикальном положении на поддонах водин ряд по высоте на расстоянии не менее 1м от отопительных приборов.
13.2. Допускается хранение поддонов с материаломТехноэласт МОСТ в два ряда по высоте, при этом вес верхних поддонов долженравномерно распределяться на все рулоны нижнего ряда с помощью деревянных щитовили поддонов.
13.3. Техноэласт МОСТ должен храниться в закрытомпомещении или под навесом. Допускается кратковременное хранение поддонов сматериалом Техноэласт МОСТ на открытой площадке.
13.4. По согласованию с потребителем допускаютсядругие условия хранения материала Техноэласт МОСТ, обеспечивающие защиту от воздействиявлаги и солнца.
13.5. Транспортирование рулонов материала ТехноэластМОСТ следует производить в крытых транспортных средствах на поддонах ввертикальном положении в один ряд по высоте.
13.6. Допускается транспортирование поддонов сматериалом Техноэласт МОСТ в два ряда по высоте, при этом вес верхних поддоновдолжен равномерно распределяться на все рулоны нижнего ряда с помощьюдеревянных щитов или поддонов.
13.7. По согласованию с потребителем допускаютсядругие способы транспортирования, обеспечивающие сохранность материала.
13.8. Загрузку в транспортные средства и перевозкуматериала Техноэласт МОСТ производят в соответствии с Правилами перевозкигрузов, действующими на транспорте данного вида.
14.1. Перед началом гидроизоляционных работ натерритории объекта должны быть выделены места складирования материалов,баллонов с горючими газами.
14.2. При работе с гидроизоляционными материаламивысвобождаются поддоны, этикетки, сердечники, картон, обрезки гидроизоляционныхматериалов. Их утилизация должна быть предусмотрена в специально отведенныхместах.
В настоящих Рекомендациях использованы ссылки наследующие действующие нормативные документы.
| 1. | СНиП 2.05.03-84* | Мосты и трубы. Нормы проектирования. |
| 2. | СНиП 3.06.04-91 | Мосты и трубы. Правила производства и приемки работ. |
| 3. | СНиП 23-01-99* | Строительная климатология. |
| 4. | СНиП 2.03.11-85 | Защита строительных конструкций от коррозии. |
| 5. | СНиП 3.04.03-85 | Защита строительных конструкций и сооружений от коррозии. |
| 6. | СНиП 3.04.01-87 | Изоляционные и отделочные покрытия. |
| 7. | СНиП 3.06.03-85 | Автомобильные дороги. |
| 8. | ГОСТ 9128-97* | Смеси асфальтобетонные дорожные, аэродромные и асфальтобетон. Технические условия. |
| 9. | ГОСТ 30547-97* | Материалы рулонные кровельные и гидроизоляционные. Общие технические условия. |
| 10. | ГОСТ 2678-94 | Материалы рулонные кровельные и гидроизоляционные. Методы испытаний. |
| 11. | ГОСТ 22245-90* | Битумы нефтяные дорожные вязкие. Технические условия. |
| 12. | ГОСТ 12801-98* | Материалы на основе органических вяжущих для дорожного и аэродромного строительства. Методы испытаний. |
| 13. | ГОСТ 9.301-86* | Покрытия металлические и неметаллические неорганические. Общие требования. |
| 14. | ГОСТ 26633-91* | Бетоны тяжелые и мелкозернистые. Технические условия. |
| 15. | ГОСТ 12730.5-84* | Бетоны. Методы определения водонепроницаемости. |
| 16. | ГОСТ 10060.0-95 | Бетоны. Методы определения морозостойкости. Общие требования. |
| 17. | ГОСТ 23279-85 | Сетки арматурные сварные для железобетонных конструкций и изделий. Общие технические условия. |
| 18. | ГОСТ 12.4.011-89 | ССБТ. Средства защиты работающих. Общие требования и классификация. |
| 19. | ГОСТ 12.4.041-2001 | ССБТ. Средства индивидуальной защиты органов дыхания фильтрующие. Общие технические требования. |
| 20. | ГОСТ 12.4.012-83 | ССБТ. Вибрация. Средства измерения и контроля вибрации на рабочих местах. Технические требования. |
| 21. | ГОСТ 12.4.087-84 | ССБТ. Строительство. Каски строительные. Технические условия. |
| 22. | ГОСТ 12.4.034-85 | ССБТ. Средства индивидуальной защиты органов дыхания. Классификация и маркировка. |
| 23. | ГОСТ 12.4.010-75* | ССБТ. Средства индивидуальной защиты. Рукавицы специальные. Технические условия. |
| 24. | ГОСТ 12.4.023-84* | ССБТ. Щитки защитные лицевые. Общие технические требования и методы контроля. |
| 25. | ГОСТ 2789-73* | Шероховатость поверхности. Параметры и характеристики. |
| 26. | ГОСТ 9.402-2004 | Покрытия лакокрасочные. Подготовка металлической поверхности. |
| 27. | ГОСТ 8269.1-97 | Щебень и гравий из плотных горных пород и отходов промышленного производства для строительных работ. Методы химического анализа. |
| 28. | ГОСТ 8735-88* | Песок для строительных работ. Методы испытаний. |
| 29. | ГОСТ 12784-78 | Порошок минеральный для асфальтобетонных смесей. Методы испытаний. |
| 30. | ГОСТ 18698-79* | Рукава резиновые напорные с текстильным каркасом. Технические условия. |
| 31. | ГОСТ 14192-96* | Маркировка грузов. |
| 32. | ВСН 32-81. | Инструкция по устройству гидроизоляции конструкций мостов и труб на железных, автомобильных и городских дорогах. |
| 33. | ТУ 400-24-158-89* | Смеси асфальтобетонные литые и литой асфальтобетон. |
| 34. | ТУ 5774-004-17925162-2003 | Материал рулонный гидроизоляционный наплавляемый битумно-полимерный. Техноэласт МОСТ (технические условия). |
| 35. | Извещение №1 об изменении ТУ 5774-004-17925162-2003 от 10.03.2005 г. | Материал рулонный гидроизоляционный наплавляемый битумно-полимерный. Техноэласт МОСТ. |
| 36. | Государственный дорожный научно-исследовательский институт «СОЮЗДОРНИИ», 1999г., Балашиха. | Руководство по применению гидроизоляционного материала Техноэласт МОСТ для гидроизоляции железобетонной плиты проезжей части мостовых сооружений. |
| 37. | Отраслевой дорожный методический документ № ОС-675-р от 09.08.2002г. Росавтодор, Минестерства транстпорта РФ. | Руководство по применению гидроизоляционного материала Техноэласт МОСТ для гидроизоляции железобетонной плиты проезжей части мостовых сооружений. |
| 38. | Филиал ОАО ЦНИИС «НИЦ «Мосты», 2007 г., Москва. | Технологический регламент на производство работ по гидроизоляции железобетонной плиты проезжей части материалом Техноэласт МОСТ С моста через реку Ангару в г. Иркутске. |
| 39. | АО «КаздорНИИ», 2007 г., Казахстан. | Рекомендации по применению рулонных гидроизоляционных наплавляемых материалов при строительстве и ремонте мостовых сооружений. |
| 40. | ФГПУ «Союздорнии» 2004г., Балашиха. | Технологический регламент устройства дорожной одежды на ортотропной плите пролетного строения моста через р. Каму в Пермском районе Пермской области. |
В настоящих Рекомендациях применяют следующие терминыс соответствующими определениями.
| Мостовое сооружение | - дорожное инженерное сооружение, состоящее из одного или нескольких пролетных строений и опор, предназначенное для перевода транспортного пути через препятствие: реки, автомобильные и железные дороги, ущелья и др. |
| Ширина моста | - расстояние между перилами в свету. |
| Пролетное строение | -несущая конструкция мостового сооружения, перекрывающая все пространство или часть его между двумя или несколькими опорами, воспринимающая нагрузку от элементов мостового полотна, транспортных средств и пешеходов и передающая ее на опоры. |
| Плита ортотропная | - плита проезжей части стального пролетного строения моста, состоящая из настильного листа и набора продольных и поперечных ребер жесткости. |
| Полотно мостовое | - совокупность всех элементов, расположенных на пролетном строении, предназначенных для обеспечения нормальных условий безопасности движения транспортных средств и пешеходов, а также для отвода воды с поверхности покрытия моста и в сопряжениях с подходами. Включает одежду ездового полотна, тротуары, ограждающие устройства, устройства водоотвода, обогрева, освещения, деформационные швы и сопряжения моста с подходами. |
| Перила моста | - ограждающее устройство на тротуарах, обеспечивающее безопасность движения пешеходов. |
| Ограждение безопасности | - конструктивный элемент мостового полотна, устанавливаемый на границах ездового полотна, предназначенный для предотвращения съезда транспортных средств за его пределы и исправления траектории движения автомобиля при наезде на ограждение. |
| Ограждение безопасности барьерное | - ограждение состоящее из металлических стоек и горизонтального бруса, профиля, трубы. |
| Ограждение безопасности парапетное | - ограждение, выполненное в виде железобетонной стенки. |
| Гидроизоляция | - элемент мостового полотна, защищающий конструкцию пролетного строения от проникания воды с проезжей части. |
| Гидроизоляция рулонная | - гидроизоляция из рулонных водонепроницаемых материалов заводского изготовления. |
| Гидроизоляция рулонная наплавляемая | - рулонный материал, наклейку которого на металлическую или бетонную поверхность производят путем оплавления нижней поверхности рулона пламенем воздушно-газовой горелки. |
| Техноэласт МОСТ | - гидроизоляционный материал рулонный наплавляемый. Изготавливают путем двустороннего нанесения на полиэфирную основу битумно-полимерного вяжущего с последующим нанесением на лицевую сторону - мелкозернистой песчаной посыпки и полимерной пленки с нижней стороны полотна. |
| Техноэласт МОСТ Б | - рулонный наплавляемый материал для гидроизоляции железобетонной плиты проезжей части мостовых сооружений. Перед укладкой асфальтобетона Техноэласт МОСТ Б покрывают защитным слоем из бетона. |
| Техноэласт МОСТ С | - рулонный наплавляемый материал для устройства гидроизоляции на стальной ортотропной плите пролетных строений мостовых сооружений, а также для гидроизоляции пролетных строений с железобетонной плитой проезжей части, на которых непосредственно на гидроизоляцию укладывают асфальтобетонное покрытие, в том числе из литых смесей с температурой до 220°С. |
| Адгезия | - сцепление приведенных в контакт разнородных тел. Одна из важнейших характеристик адгезии - адгезионная прочность, характеризующая удельное усилие разрушения адгезионного контакта. |
| Когезия | - сцепление частиц вещества (молекул, ионов, атомов), составляющих одну фазу. |
| Шов деформационный | - конструктивная часть мостового полотна, перекрывающая зазор между торцами пролетных строений над промежуточными опорами моста либо между торцом пролетного строения и шкафной стенкой устоя. |
| Окаймление деформационного шва | - элементы конструкции деформационного шва, окаймляющие концы сопрягаемых конструкций, заанкеренные в них и предназначенные для восприятия нагрузки с перекрывающих шов элементов и предохранения окаймляемых конструкций от разрушения при воздействии транспортных средств. |
| Надежность | - свойство объекта сохранять во времени значения установленных в проекте сооружения эксплуатационных показателей в заданных пределах. Надежность является основным признаком качества несущих конструкций сооружения, комплексно объединяющим такие свойства как долговечность, безотказность, ремонтопригодность. |
| Долговечность | - свойство объекта сохранять работоспособность до наступления предельного состояния при установленной системе технического обслуживания. |
| Безотказность | - способность объекта непрерывно сохранять работоспособность в определенных условиях эксплуатации. |
| Ремонтопригодность сооружения | - возможность обнаружения и путем проведения ремонта предупреждение и устранение отказов. |
| Отказ | - событие, заключающееся в частичном или полном нарушении работоспособности отдельных элементов сооружения или его в целом. |
| Дефект | - каждое отдельное несоответствие продукции установленным требованиям. Изделие имеет дефект, если по меньшей мере один из показателей его качества или параметров вышел за предельное значение или не выполняется одно из требований нормативной документации к признакам продукции. Дефект обнаруживается визуально или специальными приборами, предусмотренными в нормативной документации для контроля качества данной продукции. |
| Неисправность | - состояние объекта, при котором он не соответствует хотя бы одному из требований нормативно-технической и(или) конструкторской документации. Находясь в неисправном состоянии, изделие может иметь один или несколько дефектов. |

















| Строительная организация________________________________________________________ Строительство__________________________________________________________________ _______________________________________________________________________________ (наименование и месторасположение, км и ПК)
АКТ № |
| Наименование организации, выполняющей работы____________________________________ ________________________________________________________________________________ Наименование объекта строительства_______________________________________________ Должность, фамилия, инициалы и подпись лица, ответственного за выполнение работ по гидроизоляции, антикоррозионной защите и ведение журнала _______________________________________________________________________________ Организация, разработавшая проектную документацию _______________________________________________________________________________ Шифр проекта___________________________________________________________________ Предприятие, изготовившее конструкции ___________________________________________ Шифр заказа ____________________________________________________________________ Заказчик (организация), должность, инициалы и подпись руководителя (представителя) технического надзора_____________________________________________________________ _______________________________________________________________________________
Журнал начат «__» _________ 20___ г. Журнал окончен «__» _________ 20___ г.
Указания по ведению журнала1. Журнал составлен для записей работ по гидроизоляции, антикоррозионной защите и окраске стальных конструкций (при малых объемах работ - на объект). 2. На обложке журнала ненужные виды работ зачеркиваются. 3. На титульном листе вид работ, для которого предназначается журнал, проставляется прописью. В настоящем журнале прошнуровано и пронумеровано ____________________страниц
Начальник производственно-технического отдела_____________________________________ (фамилия, инициалы, подпись) Место печати«___»______________________________20___ год | ||||||||||||||||||||||||||||||||||||