Настоящий свод правил предназначен для проектирования новых, реконструируемых и приспособляемых зданий, сооружений и помещений для:
- скоростного бега на коньках;
- хоккея с шайбой;
- фигурного катания;
- шорт-трека;
- кёрлинга;
- хоккея с мячом;
- массового катания.
Положения Свода правил распространяются на проектирование ледовых полей с искусственным льдом с замораживаемой (ледяной) поверхностью.
Настоящий документ разработан в помощь проектировщикам и в основном включает спортивно-функциональные параметры и требования к размерам различных типов ледовых полей и площадок с намораживаемой (ледяной) или синтетической (силиконовой) поверхностью.
| Обозначение: | СП 31-112-2007 (3) |
| Название рус.: | Физкультурно-спортивные залы. Часть 3. Крытые ледовые арены |
| Статус: | действующий (Введен впервые) |
| Дата актуализации текста: | 17.06.2011 |
| Дата добавления в базу: | 17.06.2011 |
| Дата введения в действие: | 24.12.2007 |
| Разработан: | ГУП МНИИП "Моспроект-4" ОАО "Институт общественных зданий" 127434, г. Москва, Дмитровское ш., 9 Международная академия футбольной и спортивной индустрии (МАФСИ) ВНИИ ФК РГУ ФК НПФ "Поток-интер" ООО "НПФ "Химхолодсервис" |
| Утвержден: | ОАО "Институт общественных зданий" (24.12.2007)<br>Международная академия футбольной и спортивной индустрии (МАФСИ) (21.12.2007) |
| Опубликован: | ОАО "ЦПП" № 2008 |
Система нормативных документов в строительстве
СВОД ПРАВИЛ ПО ПРОЕКТИРОВАНИЮ И СТРОИТЕЛЬСТВУ
ФИЗКУЛЬТУРНО-СПОРТИВНЫЕ ЗАЛЫ
СП 31-112-2007
Часть 3
Крытые ледовые арены
Москва
2008
Содержание
Настоящий документ разработанна основании Государственного контракта № 213 от 04.12.2007 г. междуФедеральным агентством по физической культуре и спорту и Международнойакадемией футбольной и спортивной индустрии (МАФСИ) по разработке Сводов правилпо проектированию и функционально-планировочным нормалям (решениям)физкультурно-спортивных сооружений для зимних и экстремальных видов спорта.
Свод правил разработан ОАО«Институт общественных зданий» в развитие СНиП 2.08.02-89*«Общественные здания и сооружения» и является документом федерального уровня. Внём рассматриваются функциональные и технологические требования кпроектированию физкультурно-спортивных сооружений с искусственным льдом. Онипредназначены для соревнований и тренировочных занятий различного уровня,демонстрационных мероприятий, проводимых как в специализированных (для одноговида спорта), так и в универсальных (для нескольких различных видов спорта илизрелищных мероприятий) объектах, а также для массового катания.
Настоящий документ разработанв помощь проектировщикам и в основном включает спортивно-функциональныепараметры и требования к размерам различных типов ледовых полей и площадок снамораживаемой (ледяной) или синтетической (силиконовой) поверхностью.
Свод правил разработантворческим коллективом под руководством Л.В. Аристовой (МАФСИ).
Ответственные исполнители:канд. эконом: наук Л.В. Аристова(МАФСИ), канд. архитектуры A.M. Гарнец, канд. архитектуры Б.П. Анисимов (ОАО «Институт общественных зданий»), архитектор Ю.Г. Жура (ВНИИ ФК), д-р пед. наук Г.М.Панов (РГУ ФК), инж. Г.И. Гарифулина (ГУП МНИИП «Моспроект 4»), инж. А.В.Наголкин (НПФ«Поток-интер»), при участии: канд. техн. наук Н.В. Товарас, инж. О.Г. Воронков, инж. А.С. Колесников (ООО «НПФ «Химхолодсервис»).
Научный редактор текста -канд. архитектуры А.М. Гарнец.
Компьютерную графикувыполнили: канд. техн. наук В.Ф. Кротюк и канд. техн. наук В.И. Цыганов (ОАО «Институт общественных зданий»).
СВОД ПРАВИЛ ПО ПРОЕКТИРОВАНИЮ ИСТРОИТЕЛЬСТВУ
| ФИЗКУЛЬТУРНО-СПОРТИВНЫЕ ЗАЛЫ. СП 31-112-2007 Часть 3. КРЫТЫЕ ЛЕДОВЫЕ АРЕНЫ Part 3. ISE OF SPORT CONSTRUCTION |
1.1. Настоящийсвод правил предназначен для проектирования новых, реконструируемых иприспособляемых зданий, сооружений и помещений для:
- скоростного бегана коньках;
- хоккея с шайбой;
- фигурногокатания;
- шорт-трека;
- кёрлинга;
- хоккея с мячом;
- массовогокатания.
1.2. ПоложенияСвода правил распространяются на проектирование ледовых полей с искусственнымльдом с замораживаемой (ледяной) поверхностью.
1.3. Габариты иразметка игровых и тренировочных полей и площадок, параметры зон безопасности,установленные правилами проведения соответствующих видов соревнований, следуетпринимать как обязательные технологические требования при проектировании.
1.4. Сопутствующиегруппы вспомогательных помещений определяются основными процессами спортивныхсоревнований, а также функциями иного назначения - при универсальномиспользовании физкультурно-спортивных сооружений.
1.5. Положениядокумента следует применять для определения пропускной способности площадок иполей для тренировок и соревнований, а также состава и размеров вспомогательныхпомещений для занимающихся: гардеробных, умывальных, уборных, душевых,инвентарных и т.д. По данному документу рассчитываются вспомогательныепомещения для зрителей в соответствии с количеством мест на трибунах.
1.6. Свод правилсодержит рекомендательные положения, за исключением указанных в п. 1.3. Привключении их в задание на проектирование положения данного документа становятсяобязательными для проектировщиков и организаций, проводящих экспертизу.
1.7. Приразработке архитектурно-строительной части проекта зданий катков следуетиспользовать соответствующие нормативные документы.
1.8. Термины, применяемые вэтом документе, и их определения приведены в приложенииА.
В настоящем Своде правил даныссылки на следующие нормативные документы:
СНиП 21-01-97*Пожарная безопасность зданий и сооружений
СНиП 23-05-95*Естественное и искусственное освещение
СНиП 31-03-2001 Производственные здания
СНиП 31-04-2001 Складские здания
СНиП35-01-2001 Доступность зданий и сооружений для маломобильных группнаселения
СНиП 41-01-2003Отопление, вентиляция и кондиционирование
СНиП 2.04.01-85*Внутренний водопровод и канализация зданий
СНиП 2.04.02-84*Водоснабжение. Наружные сети и сооружения
СНиП 2.08.02-89*Общественные здания и сооружения
СНиП 2.09.04-87*Административные и бытовые здания
СНиП 3.05.06-85 Электротехническиеустройства
ГОСТ21786-76 Система «человек-машина». Сигнализаторы звуковые неречевыхсообщений
ГОСТ 24214-80 Связьгромкоговорящая. Термины и определения. Общие эргономические требования
ГОСТ 12.1.004-91ССБТ. Пожарная безопасность. Общие требования
СП31-110-2003 Проектирование и монтаж электроустановок жилых и общественныхзданий
СП 31-112-2004 (1)Физкультурно-спортивные залы. Часть 1
СП 31-112-2004 (2)Физкультурно-спортивные залы. Часть 2
СП35-101-2001 Проектирование зданий и сооружений с учётом доступности длямаломобильных групп населения. Общие положения
СП 4723-88 Санитарные правилаустройства и эксплуатации систем централизованного горячего водоснабжения
СанПиН2.1.4.1074-01 Питьевая вода. Гигиенические требования к качеству водыцентрализованных систем питьевого водоснабжения. Контроль качества
ВСН 1-73 Нормы электрическогоосвещения спортивных сооружений
НПБ88-2001* Установки пожаротушения и сигнализации. Нормы и правилапроектирования
НПБ104-03 Системы оповещения и управления эвакуацией людей при пожарах взданиях и сооружениях
НПБ110-03 Перечень зданий, сооружений, помещений и оборудования, подлежащихзащите автоматическими установками пожаротушения и автоматической пожарнойсигнализацией
ПУЭ Правила устройстваэлектроустановок
3.1.1.Строительные размеры, площади и пропускная способность катков с искусственнымльдом должны приниматься в соответствии с правилами по организацииучебно-тренировочных занятий и проведения спортивных соревнований.
Составы и площадивспомогательных помещений при залах катков принимаются в соответствии сположениями раздела 4 настоящего Свода правил, СНиП 2.08.02, а также справочногопособия к нему.
Проектирование залов катков ивспомогательных помещений, с учётом использования их инвалидами, должнопроизводиться в соответствии с требованиями СНиП35-01 и СП35-101, а также в соответствии с рекомендациями настоящего Свода правил.
3.1.2. Размерыледовых полей и арен, а также высоту помещений над ними устанавливают взависимости от вида спортивных занятий и уровня соревнований в соответствии стаблицей 3.1.
| Виды спортивных занятий | Размеры поля для соревнований, м | Размеры арены для соревнований, м | Пропускная способность | |||||
| длина | ши- | высота до низа высту- | длина | ши- | высота до низа высту- | учебно-трениро- | соревнования на аренах, чел. | |
| Скоростной бег на коньках * | 183,57 | 70 | 6 | 191,57* | 78 | 6 | 50 | 50 |
| Хоккей с шайбой ** | 60-61 | 29-30 | 6 | 65 | 37 | 10 | 50 | 100 |
| Фигурное катание | 60 | 30 | 6 | 65 | 37 | 6 | 50 | 50 |
| Шорт-трек | 60 | 30 | 6 | 65 | 37 | 6 | 50 | 50 |
| Кёрлинг | 44,5 | 4,75 | 6 | 60*** | 30*** | 6 | 8 на 1 площадку | 8×n (n = 2-6) |
| Хоккей с мячом ** | 110 | 65 | - | 124 | 87 | - |
|
|
Продолжение таблицы 3.1
| Виды спортивных занятий | Размеры поля для соревнований, м | Размеры арены для соревнований, м | Пропускная способность | |||||
| длина | ши- | высота до низа высту- | длина | ши- | высота до низа высту- | учебно-трениро- | соревнования на аренах, чел. | |
| Массовое катание | На всех спортивных катках, ледовых аренах и на | 4 м2 льда на 1 катающегося | ||||||
* В числителе приведён размер для расчетной длины дорожки400 м, в знаменателе - 333,33 м.
**В числителе указаны размеры для международных соревнований.
*** Поле для хоккея с шайбой.
Размеры универсальных заловкатков (предназначенных для попеременных занятий по различным видам спорта)принимаются по наибольшему из показателей для этих видов, приведённых в таблице3.1, а пропускная способность - по наибольшей удельной площади, приходящейся наодного занимающегося.
При использованииуниверсальных залов катков для незимних видов спорта их пропускная способностьне должна быть больше указанной в таблице 3.1.
Стандартный размер катка30×60 м позволяет разместить на ледовой площадке поле для хоккея сшайбой, для фигурного катания, для шорт-трека или массового катания.
Ледовое сооружение можетдополнительно иметь малоразмерную ледовую площадку 10×15 м или большеразмернуюплощадку 30×15 м.
3.1.3. Размеры исостав элементов крытых сооружений для скоростного бега на коньках могут бытьснижены по согласованию с местными или федеральными органами управленияфизической культурой, что должно отражаться в заданиях на проектирование илиреконструкцию конкретных объектов.
3.1.4. Сооружениякатков с искусственным льдом подразделяются на учебно-тренировочные (без местдля коммерческого зрителя) и демонстрационные, предназначенные для проведениясоревнований и платных зрелищных мероприятий (рисунок 3.1).
3.1.5.Учебно-тренировочные и демонстрационные катки могут быть специализированнымиили универсальными. Специализированные катки предназначаются для одного видаспорта. Универсальные сооружения катков приспосабливаются для попеременногоиспользования под различные виды спорта (например, для фигурного катания,хоккея с шайбой или шорт-трека, для хоккея с мячом или массового катания ит.п.). Универсальные спортсооружения могут использоваться и для незимних видовспорта.
3.1.6.Демонстрационные сооружения делятся на спортивно-демонстрационные катки,предназначенные только для спортивных соревнований и выступлений на льду, имногофункциональные залы катков, предназначенные как для занятий на льду, так идля культурно-массовых и общественных мероприятий.
3.1.7.Демонстрационные спортивные сооружения по числу зрителей подразделяются на трикатегории:
- малые ледовыеарены с количеством сидячих мест до 2000 зрителей;
- средние ледовыеарены вместимостью от 2000 до 6000 зрителей;
-многофункциональные ледовые арены вместимостью более 6000 зрителей.
3.1.8.Многофункциональные залы катков проектируются универсальными: трансформируемымидля попеременного проведения соревнований по разным видам спорта или культурно-зрелищныхили общественных мероприятий.
3.1.9. Залы крытыхкатков (ледяных арен и полей) следует располагать на первом этаже собеспечением въезда в них грузовых автомашин. В удобной связи с залом каткаследует предусматривать помещение для двух машин по уходу за льдом, размером (вчистоте) 9×6,5 м, высотой 3,9 м. Проёмы для выезда из помещения на лёддолжны иметь высоту не менее 2,4 м, ширину не менее 3,5 м.
3.1.10. Помещениекатка должно быть герметичным, чтобы предотвратить неконтролируемую инфильтрациювоздуха через проходы (двери и пр.) и места соединения строительныхконструкций.
3.1.11. Основныепараметры территории ледового сооружения и необходимые постройки, рекомендуемыеМеждународным олимпийским комитетом, приведены в приложении Б.
3.2.1.Функционально-планировочная схема сооружений с конькобежной дорожкой приведенана рисунке 3.2.
Соревнования международногоуровня проводятся на кольцевых (замкнутых) двухполосных дорожках сискусственным намораживанием льда, защищенных от атмосферных осадков, излишнейсолнечной радиации и ветра.
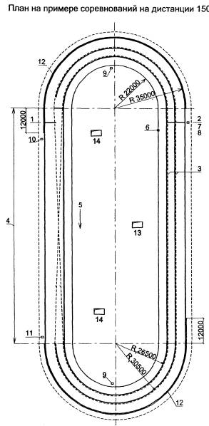
Дорожка состоит из двухпараллельных прямых участков и двух поворотов на 180°. Расчетная длина дорожкисоставляет 400 м (рисунки 3.3 и 3.4).
Для соревнований юниоров иниже международного уровня, а также для учебно-тренировочных занятий длинадорожки может быть уменьшенной (наиболее целесообразно 333,33 м) - рисунок 3.5 А.
3.2.2. Каждаядорожка включает две соревновательные полосы (дорожки) - внутреннюю и внешнюю -и разминочную дорожку, примыкающую к внутренней соревновательной дорожке.Размерные параметры всех элементов кольцевой дорожки базируются на трехконстантах:
- радиус поворотавнутренней границы соревновательной дорожки составляет 26 м;
- ширинавнутренней дорожки - 4 м;
- переходнаяпрямая (где спортсмены меняются дорожками) занимает всю длину прямого участкамежду двумя поворотами.
Ширина внешнейсоревновательной дорожки может составлять от 4 до 6 м. Ширина разминочнойдорожки от 4 до 5 м.
Разметка двухполосной дорожкипроизводится водорастворимой краской с помощью соответствующих приспособлений.Границы дорожек, стартовые, финишные и прочие линии принимаются шириной 5 см.
3.2.3. Расчетнаядлина пути конькобежца устанавливается исходя из того, что спортсмен движетсяна расстоянии 0,5 м от внутренней границы своей полосы, то есть расчетныйрадиус внутренней дорожки составляет 26,5 м, внешней дорожки - 30,5 м.
3.2.4. По всемувнешнему периметру 400-метровой дорожки с ледовым покрытием предусматриваетсяполоса (зона безопасности и техническая зона) шириной 4-5 метров с твердымпокрытием (например, бетон). Для дорожек длиной 333,33 м зона безопасностиможет быть уменьшена до 2,5 м.
Для обеспечения максимальнойбезопасности спортсменов, движущихся с большими скоростями, по всей длинеповоротов и не менее чем на 12 м на прямых участках после окончания поворотовпредусматривается установка несдвигаемых защитных поролоновых матов (или иныхэластичных конструкций), способных существенно снизить или исключить опасностьтравмирования упавшего спортсмена, толщиной не менее 21 см. У изгибов и нарасстоянии не менее 1 метра от них защита должна быть лучшего качества. Высотазащитных матов должна быть равной толщине ограждений катка (рисунок 3.6 А).
3.2.5. Завнутренней границей разминочной полосы 400-метровой дорожки, предназначаемойдля крупнейших соревнований, должно предусматриваться твердое (не ледовое)покрытие (за исключением возможного участка разминочной полосы для обеспечениякругового движения - рисунок 3.5 Б).
Это требование (наличие неледового покрытия) не распространяется на сооружения с 333,33-метровойдорожкой, а также на сооружения с 400-метровой дорожкой, где непредусматривается проведение соревнований международного уровня и где возможночередование учебно-тренировочных занятий и соревнований по хоккею с мячом илипо скоростному бегу на коньках (при невысоком уровне соревнований) *.
* См. также раздел«Хоккей с мячом».
3.2.6. Всооружениях с 400-метровой дорожкой, предназначаемых для соревнованиймеждународного уровня, не допускается устройство выходов из вспомогательныхпомещений спортсменов или обслуживающего персонала к месту проведениясоревнований на отметке ледового покрытия с внешней стороны кольцевой дорожки.Поэтому для прохода от вспомогательных помещений во внутреннюю зону катканеобходимо устройство тоннелей. Целесообразно наличие двух тоннелей: дляспортсменов в районе старта на 500 м, для организаторов соревнований иофициальных лиц в районе главного финиша (рисунок 3.4). Допускается устройствоодного тоннеля с выходом в средней зоне катка или со смещением к старту на 500м.
3.2.7. Приконькобежной дорожке должны быть предусмотрены места для судей по бегу наконьках (рисунок 3.4). Они располагаются в районе финишного створа на высоте2-3 м (примерно на уровне 7-го и 8-го рядов): помещения для судьи-информатора(3 м2), четырех судей-хронометристов и двух судей-секретарей нафинише (7 м2), служба электронного хронометража (2-3 человека, 3 м2),управление табло (6 м2), аппаратная для музыкального сопровожденияпарадов, награждений, выступлений фигуристов; комнаты для судей по конькам,которые следует разместить рядом с помещениями судей в районе финишного створа.
3.2.8. Для обеспеченияспециализированной подготовки и координации движений конькобежцев необходимтренажерный зал 24×12 м либо 24×18 м (при расширенном составетренажеров) (рисунок 3.17). В обоих случаях обязателенбатут, а значит и высота помещения должна быть не менее 6 м. Необходимопомещение для имитационного бега на коньках 12×6 м или 24×6 мвысотой 4 м, помещения силовой подготовки 12×6 м или 12×8 м.
В сооружении желателенигровой зал, используемый также для общефизической подготовки спортсменов,размером 30 (36)×18 м, высотой 8 м.
3.3.1.Соревнования по хоккею с шайбой проводятся на белой ледяной поверхности, называемой«хоккейной площадкой».
Максимальные размерыплощадки: 61 м в длину и 30 м в ширину. Минимальные размеры: 56 м в длину и 26м в ширину.
На официальных соревнованияхразмеры площадки должны быть 60-61 м в длину и 29-30 м в ширину. Разметкаплощадки для хоккея дана на рисунке 3.7, а оборудованиеарены для соревнований показано на рисунке 3.8.
Углы площадки должны бытьскруглены дугой окружности радиусом от 7 м до 8,5 м.
3.3.2. Площадкадолжна быть окружена бортами из стекловолокна белого цвета с системойограждений из высокопрочного закалённого стекла или из полиэтилена всоответствии с мировыми стандартами. Высота бортов должна быть не менее чем1,17 м и не более чем 1,22 м над уровнем поверхности льда.
Поверхность борта, обращеннаяко льду, должна быть гладкой и без каких-либо изъянов, способных нанести травмуигрокам. Защитные экраны и приспособления для их крепления должны бытьсмонтированы на наружной от игровой поверхности стороне борта. Зазор междупанелями бортов не должен превышать 3 мм. У основания бортов устанавливается«отбойная планка» жёлтого цвета высотой 15-20 см.
Все двери, дающие доступ кледяной поверхности, должны открываться во внешнюю сторону от площадки.Вертикальный зазор между дверями и бортом не должен превышать 8 мм.
3.3.3. На лицевыхбортах площадки должно быть установлено защитное стекло высотой от 160 см до200 см и оно должно продолжаться вдоль боковых бортов в направлении нейтральнойзоны на 4 м от линии ворот. Защитное стекло высотой 80-120 см должно бытьустановлено на боковых бортах по всей длине площадки, за исключениемпространства перед скамейками для игроков.
Зазор между панелямизащитного стекла не должен превышать 8 мм. Там, где защитное стекло имеетразрыв, на открытую кромку стекла должна быть установлена защитная набивка,необходимая для защиты игроков от травм.
3.3.4. Ледоваяповерхность разделяется по длине площадки на части пятью линиями, нанесённымина льду. Непрерывные поперечные линии должны продолжаться вертикально вверх поповерхности бортов (рисунок 3.7).
Красные линии, нанесённые нарасстоянии 4 м от лицевых бортов, шириной 5 см называются «линиями ворот».
Поверхность льда между двумялиниями ворот должна быть разделена на три равные части линиями синего цвета,шириной 30 см, которые называются «синими линиями».
По середине площадки должнабыть нанесена красная линия шириной 30 см. Эта линия называется «центральнойлинией».
3.3.5. Точкивбрасывания. Все точки и круги, которые наносятся на ледовой поверхности,предназначены для правильного расположения игроков во время произведениясудьями вбрасывания.
Центральная точкавбрасывания. Круглая синяя точка диаметром 30 см должна быть нанесена наповерхности льда точно в центре площадки. Из этой точки, как центра, долженбыть нанесён круг радиусом 4,5 м синей линией шириной 5 см.
Точки вбрасывания внейтральной зоне. Две красные точки диаметром 60 см должны быть нанесены внейтральной зоне на расстоянии 1,5 м от каждой синей линии.
Точки конечного вбрасывания.В каждой конечной зоне, с обеих сторон от каждых ворот, наносятся точкиконечного вбрасывания и круги. Точки вбрасывания должны быть красного цвета,диаметром 60 см. По обе стороны от каждой точки конечного вбрасывания должны бытьнанесены двойные L-образныелинии.
Круги вокруг точки конечноговбрасывания должны быть радиусом 4,5 м. Они должны быть нанесены на поверхностильда красной линией шириной 5 см.
3.3.6. Площадьсудьи. Полукруг радиусом 3 м должен быть нанесён на льду линией красного цветашириной 5 см, непосредственно перед местом, где расположен секретарь игры.
Площадь ворот. На поверхностильда перед каждыми воротами должна быть нанесена красная линия шириной 5 см.Площадь ворот должна быть окрашена в светло-голубой цвет.
3.3.7. Воротадолжны быть установлены на линии ворот по центру площадки и иметь высоту 1,22 мнад поверхностью льда и ширину 1,63 м (внутренние размеры). Боковые стойки иперекладина ворот, соединяющая боковые стойки, должны быть определённойконструкции и изготовлены из материала с наружным диаметром 5 см. Боковыестойки и перекладина должны быть красного цвета (рисунок 3.7).
В конструкции ворот должнабыть предусмотрена рама, предназначенная для крепления сетки, размеры которойвглубь должны быть не более 1,12 м и не менее 0,60 м. Рама должна быть окрашенав белый цвет, за исключением наружной поверхности опорного каркаса, котораядолжна быть окрашена в красный цвет.
Ворота с сетками должны бытьустановлены неподвижными во время игры при помощи эластичных фиксаторов.
3.3.8. Каждаяхоккейная площадка должна быть оборудована двумя одинаковыми скамейками,предназначенными для размещения на них исключительно игроков в форме иофициальных представителей обеих команд. Скамейки должны быть установлены наодной и той же стороне от игровой поверхности, непосредственно вдоль поля назначительном расстоянии друг от друга, и располагаться в непосредственнойблизости от раздевалок игроков (рисунок 3.8).
Скамейка каждой командыдолжна начинаться с отступом 2 м от центральной красной линии. Минимальнаядлина скамейки должна быть 10 м, а минимальное расстояние от борта в глубинудля скамейки - 1,5 м. Каждая скамейка должна быть рассчитана на 16 игроков и 6официальных представителей команды.
Каждая зона скамейки дляигроков должна иметь две двери для выхода на лед, одна из которых должна быть внейтральной зоне. Скамейки для игроков должны быть защищены от доступапосторонних лиц, кроме игроков и шести официальных представителей команды.
3.3.9. Скамейкидля оштрафованных игроков предназначены только для размещения на нихоштрафованных игроков. Каждая скамейка рассчитывается для размещения на ней какминимум 5 игроков. Скамейки должны быть установлены по обе стороны от стола,где находятся судьи в бригаде и напротив скамеек для игроков. Минимальная длинаскамеек должна быть 4 м, а минимальное расстояние от бортика до скамейки - 1,5м.
3.3.10. Места длясудей за воротами оборудуются кабинами, хорошо защищенными от вмешательства вдействия судей за воротами, которые должны быть установлены за бортом изащитным стеклом в каждом конце площадки в месте расположения ворот.
Между скамейками дляоштрафованных игроков должна быть расположена скамейка для судей в бригадедлиной 5,5 м, предназначенная для размещения на ней 6 человек.
3.3.11. Каждаяарена с хоккейной площадкой оборудуется:
- сиреной илидругими подходящими звуковыми устройствами, используемыми судьёй во время игры;
- табло сэлектронными часами для обеспечения зрителей, игроков и судей необходимойинформацией.
Табло должно показывать:
- название обеихкоманд;
- время игры вкаждом периоде, отсчитываемое в минутах и секундах, от 0,00 до 20,00;
- штрафное время, оставшеесяотбывать, по крайней мере, двум игрокам каждой команды, отсчитываемое отсуммарных минут до 0;
- счёт;
- время тайм-аута,отсчитываемое от 30 секунд до 0;
- время перерыва,отсчитываемое от 15 минут до 0. Позади каждых ворот должны быть установленыфонари:
- красный фонарьдолжен включаться судьёй за воротами при взятии ворот;
- зеленый фонарь будетвключаться автоматически электрическими часами в случае остановки судьёйвремени игры и по окончании каждого периода.
3.3.12. Списокобязательного оборудования катка по требованиям Международной федерации хоккеяна льду (IIHF)приведен в приложении В.
3.4.1. В соответствии стребованиями Международного Союза фигурного катания (ISU) для соревнований и занятий по фигурномукатанию необходимо иметь площадку искусственного льда размером 60×30 м(главная арена). Кроме того, необходимы помещения или отдельные корпуса сплощадками для тренировок.
3.4.2. В зданияхспециализированных катков, предназначаемых для фигурного катания (в том числеуниверсальных), рекомендуется дополнительно предусматривать учебную ледовуюплощадку размером 30×20 для отработки отдельных элементов фигурногокатания, зал хореографии на 30 занимающихся 12×12 м и зал акробатики 30(36)×18 м, высота 8 м.
3.4.3. На катках,на которых будут проходить официальные международные соревнования, следуетдополнительно запланировать:
- зону проведенияцеремоний - рабочая площадь 20 м2 (всего 30 м2);
- «задник» зоныпроведения церемоний - рабочая площадь 36 м2 (всего 45 м2);
- помещение дляведущих церемонии, хранения флагов и медалей (в день церемонии) - 22 м2;
- помещение дляхранения призов - 12 м2;
- площадка дляфлагштоков - 32 м2.
В спортивно-зрелищных катках,в которых площадка для выступлений на льду располагается поперёк поля дляхоккея (рисунок 3.14 б), учебная площадка для фигурногокатания не предусматривается.
3.5.1. Для соревнований пошорт-треку используется хоккейная площадка с минимальными размерами 60×30см, для международных соревнований дорожка должна быть овальной формы с длиной круга111,12 м (см. рисунок 3.9).
Ширина прямой части дорожки водном направлении должна быть не менее 7 метров. Расстояние от разметочногоблока, установленного на вершине поворота, до барьера ограждения катка недолжно быть меньше 4 м.
Повороты должны бытьразмечены симметрично. Симметричная дуга для поворота должна быть размечена отконца одной прямой части дорожки до точки, где начинается следующая прямая.
Стандартная дорожка должнаиметь разметку 4-х поворотов других дорожек, которые сдвигаются на один и дваметра в каждом направлении от стандартной дорожки, что позволит сохранитьхороший лед во время соревнований. Для всех дорожек используется только одналиния финиша.
Для полуфинальных и финальныхзабегов на 500 м используются только те дорожки, которые показаны на рисунке 3.9.
3.5.2. Стартовые ифинишная линии обозначаются цветными линиями шириной не более 2 см, которыедолжны быть начерчены под прямым углом к прямой части дорожки.
Предстартовые позицииобозначаются рядом разметок на льду за 0,75 метра до соответствующих стартовыхлиний. Стартовые линии прочерчиваются от бортика катка на всю ширину прямойчасти дорожки. Финишная линия прочерчивается от бортика катка на всю ширинупрямой части дорожки плюс 1,5 м.
Позиции для расположенияспортсменов на старте должны быть размечены пунктирными точками диаметром 2 смчерез каждый метр, отступая 50 см от внутренней стороны дорожки, чтобыобозначить порядок стартовых позиций спортсменов на старте.
3.5.3. Бортаплощадки вдоль трассы должны покрывать защитные маты из полиуретановой пены(средней или высокой плотности) и минимальной толщиной 15 см. Минимальнаявысота такой защиты должна составлять 1 м и она должна полностью покрыватьборта. Дополнительно может быть установлена защита в половину высоты передобычными матами. Обивка должна быть водонепроницаемой и неразрезаемой. Матыразмером в 1 м должны быть прикреплены к бортам и друг к другу. Маты должныстоять под своим весом на льду.
3.6.1. Для игры вкёрлинг необходима ледовая дорожка размерами 44,5×4,75 м. Как правило,игра проводится на двух и более дорожках на залитой ледяной площадке сразмерами 45×10-30 м.
На дорожку яркими краскаминаносится мишень, размеры и разметка площадки приведены на рисунке 3.10 а. Центр мишени - «дом» - белый, последующие цветакругов - синий, белый и красный. Цвет кругов может быть изменен. Разметказадних линий входит в игровую площадь, боковые линии - не входят.
Боковые линии могут бытьзаменены деревянным бруском высотой 150 мм.
3.6.2. Специальныйзал с площадками для кёрлинга, предназначенный для тренировок и соревнований,включает до 6 дорожек и располагается на ледовом поле размером 60×30 м.
Такую площадку допускаетсяиспользовать также для начинающих фигуристов и массового катания, что следуетучитывать при проектировании вспомогательных помещений.
3.6.3. Пятьдорожек для игры на ледовом поле соответствуют требованиям Международнойфедерации кёрлинга (WCF).Дорожки должны иметь буквенное обозначение: А, В, С, D и Е, причем зона А должна находиться слева, если смотретьсо стороны зоны для прессы (рисунок 3.10 в).
Основной фон льда - белый, заисключением «зоны свободного защитника», которая должна быть голубого цвета.
3.6.4. Круги в«зачетной зоне» имеют следующую последовательность окраски, начиная с внешнего- красный, белый, синий, белый. По центру дорожки идет сплошная линия иперпендикулярно ей через центр каждой зачетной зоны также проходят линии.Стандартная разметка линий должна быть выполнена черным цветом.
3.6.5. Каждаядорожка размечается таким образом, чтобы можно было вести игру в обоихнаправлениях, то есть дорожка симметрична и «зачетные зоны» имеются с обоих ееконцов.
3.6.6. Позади каждогодома установлена небольшая резиновая колодка, выступающая изо льда, от которойи начинается движение игрока. В 10 м от колодки проходит зачётная (контрольная)линия. Расстояние между зачётными линиями на разных концах дорожки - около 22 м.
3.7.1. Основнымэлементом данного типа сооружения является ледовое поле (с искусственнымнамораживанием льда) длиной от 90 до 110 м и шириной от 50 до 70 м (рисунок 3.11 а). Для проведения международных соревнований предпочтительнымявляется размер поля 110×65 м. Вопрос о проведении соревнований на поляхменьших размеров решается организаторами соревнований.
3.7.2. Основноеоборудование поля для игры включает (см. рисунок 3.11 б,в, г):
- ворота,состоящие из двух вертикальных стоек, верхней перекладины и боковых и заднейрам жесткости (конструктивный материал - преимущественно дерево; сечениеквадратных элементов от 5×5 до 7,5×7,5 см);
- подвижныебортики для перехвата мячей вдоль линий поля, изготавливаемые из досок длинойот 4 до 6 м шириной 12-18 см (высота бортика), толщиной 2-4 см, устанавливаются на ребро с помощью прикрепленных к нимугольников;
- флаги дляобозначения углов и средней линии игрового поля, состоящие из подвижныхдеревянных опор в форме усеченного конуса высотой не более 50 см, диаметром уоснования 25-30 см и закрепленного на конусе древка с флагом (высота древка отповерхности льда в пределах 1,5 до 2 м);
- стол с сидениемдля судьи - секретаря.
3.7.3. Габаритыполя для хоккея с мячом практически «вписываются» в габариты двухполосной400-метровой дорожки для скоростного бега на коньках (рисунок 3.12а). Поэтому для крытых катков, предназначаемых в основном дляучебно-тренировочных занятий и соревнований не самого высокого международногоуровня, экономически целесообразно совмещение функций конькобежного спорта ихоккея с мячом.
3.8.1. Привариантном использовании хоккейная площадка 61×30 м может бытьпредназначена и оборудована как для хоккеистов и фигуристов, так иконькобежцев, тренировок и соревнований по «шорт-треку», а также для тренировокпо хоккею с мячом (отработка отдельных элементов) (рисунки 3.13и 3.14).
3.8.2.Универсализация использования залов с ледовыми аренами может быть обеспеченатрансформацией основных элементов спортивного сооружения. На планшетесборно-разборного настила возможно оборудование легкоатлетического манежа,могут эпизодически проводиться соревнования по спортивным играм (и иным видамспорта). Подобным образом могут быть использованы ледовые арены,соответствующие по размерам футбольным манежам.
3.8.3. На рисунках3.15 и 3.16 приведены примерытрансформации арен спортивно-демонстрационного или многофункционального каткадля проведения соревнований по ряду видов спорта. При этом соревнования поволейболу, баскетболу, гандболу, теннису и мини-футболу проводятся на настилах,а по спортивной и художественной гимнастике, акробатике, борьбе и боксу - напомостах.
3.8.4. В зданияхспортивно-демонстрационных и спортивно-зрелищных катков, исходя из ихуниверсального использования для соревнований по многим видам спорта, дляразминки соревнующихся предусматривается зал 30×18 м, размещаемый вудобной связи с ареной. Когда на катке не проводятся соревнования или зрелищныемероприятия, этот зал может использоваться автономно для учебно-тренировочныхзанятий по спортивным играм, в связи с этим при нём следует предусмотретьраздевальные с душевыми и уборными.
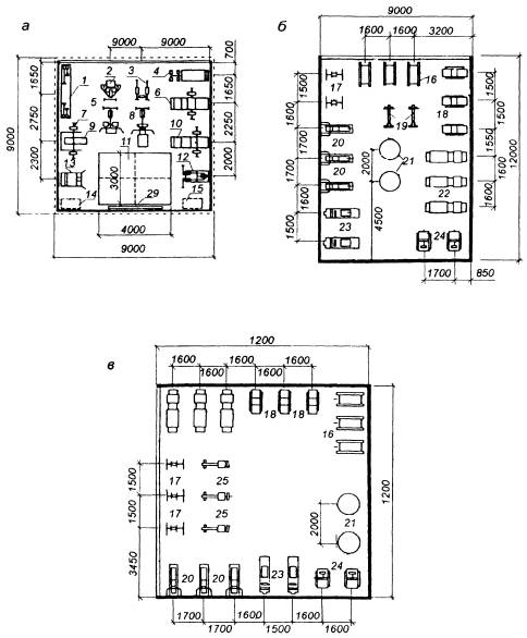
3.8.5. В составезданий катков для обеспечения учебно-тренировочного процесса, как правило,предусматриваются общие для здания помещения для индивидуальной силовой иакробатической подготовки размером 12×6 м, высотой не менее 3 и 6 мсоответственно и один хореографический класс размером 12×12 м (в плане),высотой не менее 4,8 м. Для возможности автономного его использования при нёмпредусматриваются отдельные раздевальные (с душевыми и уборными при них),исходя из пропускной способности класса 30 чел/смену. Примерные схемы планарасстановки оборудования в помещениях для индивидуальной, силовой иакробатической подготовки и в хореографическом классе приведены на рисунках 3.17 и 3.18.
Примечание. При размещении батутного полотна на уровне пола высотапомещения может быть уменьшена до 5 м.
3.8.6. Привместимости трибун демонстрационного катка более 2000 зрителей рекомендуетсядополнительно предусматривать устройство крытого катка для учебно-тренировочныхзанятий по фигурному катанию и хоккею с размером рабочей площади льда61×30 м. Для автономной работы этого катка при нём предусматриваютсяотдельные раздевальные с душевыми и уборными, исходя из пропускной способностив смену, приведенной в таблице 3.1.
При наличииучебно-тренировочного катка рекомендуется помещения индивидуальной силовой иакробатической подготовки, а также хореографического класса располагать вудобной связи с учебно-тренировочным катком.
3.9.1. Чтобы обеспечитьусловия для вариабельного проектирования катков, позволяющие учитыватьпотребности в разнообразных тренировочных и демонстрационных мероприятиях можновыделить три наиболее эффективных типа сооружений, базирующихся на сочетанииразличных функциональных элементов. Первый тип включает основные видымероприятий на искусственном льду и их рациональные сочетания. Второй -представляет универсализацию катка и легкоатлетического манежа в рамкахсооружения круглогодичного использования - «каток-манеж». Третий - объединяетварианты кооперированного сооружения типа «каток-бассейн», базирующегося насочетаниях катков и ванн бассейнов при общем взаимно сбалансированномэнергопотреблении. Примеры из зарубежной практики приведены на рисунке 3.19.
Для каждого типа сооружениядолжен быть рассчитан состав помещений в зависимости от ведущегофункционального назначения по видам спорта, по характеру использования.
3.9.2. Длявыступления балета на льду размер ледяной площадки принимается 45×24 м.Эта площадка может располагаться как вдоль арены для хоккея, так и поперёк неё(симметрично короткой оси). В последнем случае за пределами площади поля дляхоккея вплотную к нему предусматривается дополнительная ледяная площадка длиной24 м (по 12 м в обе стороны от короткой оси арены) и шириной 15 м (см. рисунок 3.14 б). Такой вариант создаёт при односторонней илисерповидной трибуне наилучшие (фронтальные) условия наблюдения запредставлением. В периоды между выступлениями балета дополнительная площадкаразмером 24×15 м может использоваться для занятий фигуристов по отработкеотдельных элементов. При этом пропускная способность определяется исходя из 25м2 площади льда на одного занимающегося.
4.1.1. В составпомещений вспомогательного назначении в зданиях и сооружениях с ледовымиаренами, полями и площадками могут входить следующие функциональные группы:вестибюль с гардеробом, блоки раздевальных, душевых и санузлов длязанимающихся, инвентарные, тренерские, административные помещения, медицинскиепункты, методические кабинеты, бытовки для персонала, реабилитационныепомещения, комнаты отдыха, мастерские, пункты проката.
4.1.2. Состав иудельные показатели для расчета площади вспомогательных помещений указаны втаблице 4.1.
Состав и расчётные показатели площадивспомогательных помещений учебно-тренировочных катков
| Помещения, зоны | Расчётные показатели, площади, размеры | Примечания, дополнительные требования или рекомендации |
| Вестибюль для занимающихся | 0,5 м2 на одного занимающегося | При наличии менее 800 зрительских мест может быть общим для занимающихся и зрителей |
| Гардеробная верхней одежды (площадь за барьером): | 0,1 м2 на одно место |
|
| а) для занимающихся | На 200 % единовременной пропускной способности залов | Устраивается отдельно от гардеробной для зрителей |
| б) для сотрудников | На 100 % сотрудников |
|
| Места для переодевания в раздевальных для занимающихся: | Площадь для размещения скамей и проходов: | Соотношение количества мужчин и женщин определяется заданием на проектирование |
| а) в общих мужских и общих женских раздевальных | 1,0 м2 на одно место при численности мест в одном помещении свыше 50; | |
|
| 1,2 м2- при численности мест от 30 до 50; | |
| 1,3 м2 при численности мест менее 30 | ||
| б) в командных (командно-групповых) раздевальных | 2,0 м2 на одно место для хоккеистов. | На сооружениях для соревнований высокого уровня следует предусматривать в каждой раздевальной дополнительную площадь - 8,0 м2 для официальных лиц. При каждой раздевальной следует предусматривать кабину для подгонки клюшек и точки коньков площадью не менее 3,0 м2 |
|
| Расчётная численность мест в каждой раздевальной 22. | |
| Оптимальное количество раздевальных на каждое хоккейное поле - 4 |
Продолжение таблицы 4.1.
| Помещения, зоны | Расчётные показатели, площади, размеры | Примечания, дополнительные требования или рекомендации |
|
| 1,5 м2 на одно место для спортсменов иных (кроме хоккея) специализаций | Дополнительные площади - по заданию на проектирование (оптимально - 4,0 м2) |
| Шкафы для хранения домашней одежды занимающихся (двухъярусные, двухсекционные и одноярусные): | Около 0,2 м2 на один шкаф при расстановке шкафов в блоке со скамьями для переодевания | При расстановке шкафов не в блоке со скамьями для переодевания норму площади на каждый шкаф следует принимать 0,5 м2 |
| а) в общих раздевальных (в закрытых шкафах) | Численность мест для хранения одежды - на 300% расчётной вместимости каждой раздевальной | В раздевальных для детей шкафы следует предусматривать только одноярусными |
| б) в помещениях командных (командно-групповых) раздевальных при устройстве одной пары раздевальных на каждое игровое поле (место для занятий) | На 200% мест занимающихся в смену для переодевания в каждой раздевальной |
|
| в) в помещениях командных раздевальных при устройстве двух пар раздевальных на каждое игровое поле (место для занятий) | На 100% мест занимающихся в смену для переодевания в каждой раздевальной | Допускается предусматривать хранение одежды открытым способом (на крючках, вешалках), в этом случае площадь для шкафов не выделяется |
| г) в отдельном помещении гардеробной с обслуживанием для хранения домашней одежды в двухъярусных открытых шкафах | 0,5 м2 на один шкаф. | Гардеробная размещается смежно с двумя общими (мужской и женской) раздевальными, в которых хранение домашней одежды не предусматривается |
| Расчётное количество шкафов - на 100% занимающихся в смену | ||
| Душевые при раздевальных: а) для занимающихся | Одна сетка на пять мест для переодевания |
|
| б) при комнатах для тренеров и бытовых помещениях для рабочих | Одна сетка на 15 мужчин и на 12 женщин, но не менее чем по одной сетке в каждом помещении |
|
| в) при массажных и саунах | Одна сетка на 2 стола в массажной и 2 места в сауне |
|
| Уборные (с умывальниками в шлюзах): а) при раздевальных для занимающихся: |
|
|
| женские | Один унитаз на 30 мест для переодевания, но не менее одного |
|
| мужские | Один унитаз на 135 мест и один писсуар на 45 мест для |
|
Продолжение таблицы 4.1.
| Помещения, зоны | Расчётные показатели, площади, размеры | Примечания, дополнительные требования или рекомендации |
|
| переодевания, но не менее одного унитаза |
|
| б) для сотрудников и тренеров: |
| При общей численности мужчин и женщин менее 20 человек предусматривается общий санитарный узел с одним унитазом и умывальником в шлюзе |
| женские | Один унитаз на 15 человек, но не менее одного | |
| мужские | Один унитаз на 60 и один писсуар на 20 человек, но не менее одного унитаза | |
| Умывальники: |
|
|
| а) в раздевальных для занимающихся | Один умывальник на 30 мест для переодевания, но не менее одного в каждой раздевальной |
|
| б) в комнатах для персонала, тренеров, рабочих, при массажных, медицинских кабинетах | По одному умывальнику на каждую группу помещений |
|
| Сушилки для волос в раздевальных | Один прибор на 15 мест для переодевания |
|
| Помещения для отдыха занимающихся | Расчётная численность мест - на 20 % единовременной пропускной способности помещений для учебно-тренировочных занятий. На одно место 1,5 м2, но не менее 18 м2 | Допускается предусматривать в виде кулуаров в световых разрывах коридоров, холлов вблизи кафе (буфетов), а также объединять с вестибюлем для занимающихся |
| Помещения для медицинского обслуживания и контроля: | Данный состав и размеры помещений предусматриваются только для сооружений преимущественно учебно-тренировочного назначения с небольшим количеством зрительских мест | |
| а) пункт оказания первой медицинской помощи в составе: |
| Рекомендуется использовать пункт первой помощи для проведения консультаций спортивно-медицинского характера, при отсутствии в составе сооружения помещений медико-восстановительного центра |
| кабинет врача (дежурной мед. сестры) | 16 м2 | |
| ожидальная | 16 м2 | |
| санитарно- гигиенические помещения | 8 м2 | |
| б) медико-восстановительный центр | Состав и площади помещений определяются заданием на проектирование |
|
| Помещения массажных и бань сухого жара (саун): |
| Необходимость устройства при аренах массажных и саун, их вместимость определяются заданием на проектирование |
| а) помещение массажной | 12 м2 при одном столе. При двух и более столах в одном | Массажные целесообразно блокировать с саунами или |
Продолжение таблицы 4.1.
| Помещения, зоны | Расчётные показатели, площади, размеры | Примечания, дополнительные требования или рекомендации |
|
| помещении по 8 м2 на каждый стол | размещать вблизи них. В сооружениях для спортсменов высокой квалификации массажные столы могут размещаться в помещениях раздевальных с соответствующим увеличением их площади |
| б) камера сухого жара | 2 м2 на одно место в камере (не считая шлюза при входе в камеру | Рекомендуемая площадь камеры не менее 10 м2 |
| в) раздевальные при: |
|
|
| массажной | 1,5 м2 на один стол, но не менее 5 м2 |
|
| бане сухого жара | 1,5 м2 на одно место в камере сухого жара, но не менее 12 м2 |
|
| г) комната отдыха при бане сухого жара | 2 м2 на одно место в камере, но не менее 12 м2 |
|
| Помещения для теоретических занятий: |
| Необходимость наличия и количество помещений определяются заданием на проектирование |
| а) методический кабинет | 30 м2 | |
| б) кладовая наглядных пособий | 10 м2 | |
| Буфеты (кафе) для занимающихся и сотрудников | Численность посадочных мест принимается из расчёта одно место на 6 человек единовременной вместимости сооружения. | Буфеты размещаются максимально приближенно к раздевальным. При этом допускается устраивать небольшие помещения для быстрого приёма пищи в непосредственной близости от раздевальных за счёт площадей торговых залов |
| Площадь торговых залов (с раздаточной) рекомендуется принимать из расчёта 3 м2 на одно посадочное место. Площади подсобных помещений определяются требованиями по проектированию предприятий общественного питания с учётом технологии приготовления блюд | ||
| Помещения административно-служебного и инженерно-технического персонала | Состав и площади устанавливаются заданием на проектирование в соответствии со штатным расписанием, видами спорта и техническим оснащением объекта | Возможна блокировка с помещениями для персонала по обслуживанию соревнований и управления местом соревнований (ареной) |
| Помещения инструкторско-тренерского персонала | 2,5 м2 на одно место, но не менее 9 м2 в каждом помещении. Вместимость помещений ориентировочно определяется из расчёта одно место на каждые 15 занимающихся в смену | Численность рабочих, административно-служебного и технического персонала определяется заданием на проектирование исходя из предполагаемого характера функционирования, видов занятий и пропускной способностью объекта |
Продолжение таблицы 4.1.
| Помещения, зоны | Расчётные показатели, площади, размеры | Примечания, дополнительные требования или рекомендации |
| Бытовые помещения для рабочих | 1,5 м2 на одно место, но не менее 9 м2 в каждом помещении |
|
| Помещения для работников охраны | Не менее чем две смежные комнаты по 10-12 м2 каждая | В сооружениях в основном учебно-тренировочного назначения |
| Кладовые уборочного инвентаря | 4 м2 на каждые 1000 м2 площади пола убираемых помещений | Каждая кладовая оборудуется мойкой с холодной и горячей водой |
| Помещения для машин по уходу за льдом: |
| В помещениях предусматривается не менее одного приямка размером 3×1 м, глубиной 1 м с устройством для таяния снежной стружки |
| а) на каждое поле для хоккея с шайбой | На две машины: помещение размером в плане (в чистоте) 9×6,5 м, высотой 3,9 м | |
| б) на дорожку для скоростного бега на коньках или поле для хоккея с мячом | На три машины: помещение размером в плане (в чистоте) 13,5×6,5 м, высотой 3,9 м | |
| Инвентарные в местах (залах, помещениях) для учебно-тренировочных занятий и соревнований | По заданию на проектирование, исходя из особенностей применяемого оборудования и способов его трансформации |
|
| Хозяйственные кладовые | То же | |
| Мастерские по ремонту оборудования | То же | |
| Технические помещения | По заданию на проектирование, с учётом габаритов применяемого оборудования | Для намораживания льда и обеспечения оптимального температурно-влажностного режима внутренней среды мест для соревнований, учебно-тренировочных занятий и вспомогательных помещений целесообразно применять компактное поставляемое оборудование |
В таблицеперечислены вспомогательные элементы любого спортивного объекта с искусственнымнамораживанием льда, которые обеспечивают техническое функционированиесооружения в режиме учебно-тренировочных занятий, включая сооружения массовогостроительства.
4.1.3. Состав и удельныерасчетные показатели площади вспомогательных помещений для обеспечениясоревнований международного уровня приведены в таблице 4.2. Основные параметрытаблицы даны с учетом требований международного Олимпийского комитета.
Состав и расчётные показатели площадивспомогательных помещений для обеспечения соревнований международного уровня
| Помещения, зоны | Расчётные показатели, площади, размеры | Примечания, дополнительные требования или рекомендации |
| Помещения для судей и организаторов соревновании | 2,5 м2 на одно место, но не менее 9 м2 в каждом помещении | Состав и вместимость помещений, их оборудование (включая кабины для переодевания с душевыми и уборными) устанавливается заданием на проектирование в зависимости от уровня соревнований и видов спорта, по которым предполагается проведение соревнований |
| Помещения службы аккредитации | 100-130 м2 | Состав - по заданию на проектирование. Возможно автономное размещение вне спортивного сооружения |
| Зона проведения церемоний: |
|
|
| а) площадка проведения церемонии | 20-30 м2 | Размещение - смежно с местом соревнований (ареной). Должна быть обеспечена видимость с любого зрительского места |
| б) «задник» площадки проведения церемонии | 45 м2, включая кладовые для хранения наград, рабочее место координатора, раздевальные | Смежно с площадкой проведения церемоний |
| в) стол (рабочее место) менеджера | 6 м2 |
|
| г) помещение для ведущих церемонии, хранения флагов, медалей, записей гимнов | 22 м2 | Размещение - вблизи места соревнований (площадки церемоний) |
| д) раздевальные для ведущих церемонии | 2 по 4-6 м2 | Оборудуются ширмами, перегородками |
| Раздевальная для актёра-талисмана соревнований | 9-12 м2 | Вблизи места соревнований |
| Помещение для предварительного хранения призов | 12-15 м2 | То же |
| Площадка для флагштоков | 35 м2 (смежно с площадкой проведения церемоний) | Флагштоки высотой 3-9 м (на 2 м ниже выступающих конструкций покрытия) в количестве 4 шт. |
| Зона допинг-контроля: |
|
|
| а) помещение отбора спортсменов для прохождения допинг-контроля | 6 м2 | Вблизи раздевальных и смешанной зоны (микст-зоны) |
| б) помещение ожидания (регистрация спортсменов и ожидания очереди для анализа) | 20-30 м2 |
|
Продолжение таблицы 4.2.
| Помещения, зоны | Расчётные показатели, площади, размеры | Примечания, дополнительные требования или рекомендации |
| в) помещение для сдачи мочи и (при необходимости) крови для анализа | 30-40 м2 включая туалетные отсеки | Площадь помещений и количество отсеков для отбора проб на анализ под наблюдением медицинского работника уточняется заданием на проектирование в зависимости от вида спорта и уровня соревнований |
| г) офис-кладовая (рабочее место менеджера допинг-контроля и охраняемая кладовая) | 15 м2 |
|
| Блоки помещений для оказания медицинских услуг спортсменам: |
| Состав и площади помещений - по заданию на проектирование |
| а) медпункт в аккредитованной зоне для спортсменов | 50-70 м2 |
|
| б) медпункт при месте соревнований | 20-40 м2 |
|
| Зона обслуживания соревнований: |
|
|
| а) кабинет менеджера | 10 м2 | |
| б) рабочее помещение координатора | 30 м2 |
|
| в) инвентарная кладовая | 25 м2 | Для хранения крупногабаритного оборудования не используется |
| г) зона проведения оперативных совещаний персонала (переговорная) | Размещение и размеры - по заданию на проектирование в зависимости от численности персонала и видов спорта |
|
| Центр управления местом соревнований (ареной) | Ориентировочно 60-90 м2. Состав и площади отдельных помещений и зон - по заданию на проектирование | Допускается блокировка с помещениями для административно-служебного и технического персонала |
| Центр коммуникаций (включая рабочие места менеджера, операторов и кладовую для инвентаря) | 50 м2. Состав и площади отдельных помещений - по заданию на проектирование |
|
| Многофункциональное помещение | 150 м2 | Используется для собраний и совещаний персонала, обслуживающего сооружение |
| Зона управления персоналом, включая рабочую зону, помещение регистрации сотрудников перед заступлением на смену и после неё, офис | 150-180 м2 | Размещение - вблизи служебного входа. Возможна блокировка с многофункциональным помещением |
Продолжение таблицы 4.2.
| Помещения, зоны | Расчётные показатели, площади, размеры | Примечания, дополнительные требования или рекомендации |
| менеджера по персоналу, бюро (окно) информации |
|
|
| Столовая с баром, кафе и рекреация для персонала, обслуживающего соревнования | По нормам проектирования предприятий общественного питания. Вместимость - в соответствии со штатным расписанием. Возможна блокировка со столовой для работников ТВ | Работает на базе единого кухонного блока всего объекта. Допускается использование мобильных сооружений |
| Помещения для работы телевидения (ТВ): |
|
|
| а) офис ТВ | 60 м2, в том числе офис менеджера 12 м2, рабочая зона 48 м2 | Состав и площади уточняются заданием на проектирование |
| б) технический центр | 40 м2 | |
| в) столовая для персонала ТВ | 140 м2 | На базе единого кухонного блока всего объекта |
| Государственное ТВ (включая рабочую зону и мобильные точки) | До 170 м2 | Количество мест зависит от состава персонала и передвижных групп на сооружении |
| Независимые ТВ каналы (включая рабочие зоны и мобильные точки) | До 170 м2 на каждый канал | Состав и площади уточняются заданием на проектирование. Допускается размещение в мобильных помещениях (вагончиках) |
| Запасные генераторы (автономные источники электропитания) | По техническим условиям работы ТВ | Размещаются на территории объекта |
| Уборные для работников ТВ | В зависимости от численности работников ТВ | Размещение - в удобной связи с рабочими местами |
| Дополнительная зона работы ТВ (для хранения оборудования и технических операций с ним) | По заданию на проектирование | Возможно использование мобильных помещений (вагончиков) на территории сооружения |
| Офис комментатора-режиссёра | 15 м2 | Вблизи зоны для комментаторов |
| Комментаторские кабины (с возможностью обзора всего места соревнований) | 4 м2 на одну кабину с габаритами 2×2 м) | Количество кабин - по заданию на проектирование |
| Кабины для комментаторов-операторов | 8 м2 (размер каждой кабины 4 м в ширину, 2 м в глубину) | Размещаются сзади или выше основных комментаторских кабин. Количество кабин - по заданию на проектирование |
| Информационный офис ТВ (конференц-зал для тележурналистов) | 25 м2 | То же |
Продолжение таблицы 4.2.
| Помещения, зоны | Расчётные показатели, площади, размеры | Примечания, дополнительные требования или рекомендации |
| Помещение графической обработки получаемой информации | 30 м2 | В помещении находится персонал и соответствующее оборудование |
| Зона проведения интервью до и после соревнований | 9 м2 | Вблизи входа и выхода с места соревнований |
| Смешанная зона (микст-зона) | 25 м2 (общая площадь зоны - до 120 м2 с учётом потребной площади для съёмочных позиций, для оборудования, прокладки кабелей и т.д.) | Размещается между выходом с места соревнований и входом в блок раздевальных |
| Места для ТВ-персонала | 0,5 м2 на одно место; количество мест - по заданию на проектирование | Размещаются вблизи комментаторских позиций |
| Площадка для камеры, снимающей место соревнований | 4 м2 | Размещение - по согласованию с организаторами соревнований |
| Площадки (позиции) для других съемок | 4 м2 на каждую позицию | То же |
| Медиа-центр (для представителей СМИ): | Не менее 650 м2, в том числе: | Вблизи трибун для аккредитованных журналистов (до 180 человек) и фотографов (около 40 человек) |
| а) приёмная и окно информации | 30 м2 | При входе |
| б) офис менеджера журналистов | 10 м2 |
|
| в) офис менеджера фотографов | 15 м2 |
|
| г) помещение для компьютеров и принтеров | 30 м2 |
|
| д) помещение для получения информации | 15 м2 |
|
| е) рабочее помещение для журналистов | Около 260 м2 |
|
| ж) рабочие помещения для фотографов | Около 80 м2 | Могут совмещаться с рабочим помещением для журналистов |
| з) помещение регистрации фо- тографов | 25 м2 |
|
| и) зона шкафов для хранения оборудования журналистов и фотографов | 1,5 м2 на 1 шкаф. Количество шкафов - по заданию на проектирование |
|
| к) уборные для работающих в медиа-центре | Около 12 м2 |
|
| л) хозяйственная кладовая | 6 м2 |
|
Продолжение таблицы 4.2.
| Помещения, зоны | Расчётные показатели, площади, размеры | Примечания, дополнительные требования или рекомендации |
| м) рекреация и буфет с самообслуживанием | 120 м2 | Работа буфета на базе единого кухонного блока всего объекта |
| Пресс-центр: | 170-220 м2 | Для интервью с участниками соревнований. Требуется изоляция помещения от внешнего шума |
| а) зона сидячих мест для аккредитованных журналистов | 130 м2 |
|
| б) помост для интервью | Размер в плане 2,4×6 м, высота 0,6 м | |
| в) платформа для ТВ-камер | Размер в плане 1,8×6 м, высота 0,6 м | |
| Смешанная зона (микст-зона) | 60 м2 | Размещается между выходом с места соревнований и входом в блок раздевальных спортсменов. Отдельно от микст-зоны для работников ТВ |
| Сектор трибун для журналистов и фотографов | Вместимость - по заданию на проектирование | Обеспечивается удобная связь с рабочей зоной журналистов и микст-зоной |
| Туалеты для представителей СМИ | По заданию на проектирование |
|
| Позиции фотографов у места соревнований и на трибунах | Размер позиции: 0,6 м в ширину, 0,9 м в глубину | Численность фотографов на финальных этапах крупнейших соревнований составляет 80-100 человек |
| Рабочие помещения контролёров соответствия мест для тренировок и соревновании требованиям Международных Федераций по зимним видам спорта (МФ): |
| Вблизи мест для тренировок и соревнований |
| а) кабинет менеджера и его ассистента | 12 м2 | |
| б) отдельная рабочая зона с местами для сотрудников | 20 м2 |
|
| в) совмещённые рабочие места | 10 м2 |
|
| г) рабочая зона с оборудованием (ксерокс, факс) | 18 м2 |
|
| Зал собраний персонала (конференц-зал) | 150 м2 |
|
Продолжение таблицы 4.2.
| Помещения, зоны | Расчётные показатели, площади, размеры | Примечания, дополнительные требования или рекомендации |
| Пункт спортивной информации для представителей Национального Олимпийского Комитета | 20 м2 | Оборудуется информационными стендами, столами приёма, компьютерами |
| Конференц-зал для встреч представителей МФ и менеджмента соревнований | 150 м2 |
|
| Зона международных федераций для контролёров за соблюдением правил соревнований и общим их ходом: |
| Вблизи аккредитованного сектора трибун |
| а) офис Президента МФ | 15 м2 | |
| б) офис секретаря и генерального директора МФ | 15 м2 |
|
| в) приёмная, секретариат, рабочая зона, ожидальная | 80 м2 |
|
| Помещение для жюри | По заданию на проектирование | Возможно автономное размещение |
| Рекреация для судей | 80 м2 | Помещение для отдыха судей вблизи от места соревнований |
| Раздевальные для официальных лиц | 25-30 м2 |
|
| Офис технических делегатов | 20 м2 |
|
| Конференц-зал для технических делегатов | По заданию на проектирование | В зоне МФ |
| Места в аккредитованном секторе трибун для представителей МФ, официальных лиц, судей | То же |
|
4.1.4. Состав иудельные расчетные показатели площади вспомогательных помещений для зрителейприведены в таблице 4.3.
Состав и расчётные показатели площадивспомогательных помещений для зрителей
| Помещения, зоны | Расчётные показатели, площади, размеры | Примечания, дополнительные требования или рекомендации |
| Кассы: |
|
|
| а) кассовые кабины | 2,5 м2 на одну кабину из расчёта одна кабина на 1,5 тыс. зрительских мест | Одно из кассовых окошек размещается на малой высоте (для инвалидов на креслах-колясках и для детей) |
| б) офис заведующего билетными кассами | 10 м2 |
|
Продолжение таблицы 4.3.
| Помещения, зоны | Расчётные показатели, площади, размеры | Примечания, дополнительные требования или рекомендации |
| в) кассовый вестибюль | 15 м2 на одну кассу | Кассы и кассовый вестибюль (вестибюли) могут размещаться вне территории сооружения |
| Вестибюль для зрителей | 0,25 м2 на одно зрительское место | При нескольких входах для зрителей могут быть устроены отдельные вестибюли и гардеробные пропорционально вместимости участков (секторов) трибуны |
| Гардеробная верхней одежды для зрителей (площадь за барьером) | 0,1 м2 на одно зрительское место | |
| Фойе для зрителей | 0,35 м2 на одно зрительское место | При устройстве входов на зрительские места с уровня вестибюля фойе может быть совмещено с вестибюлем. В данном случае принимается наибольшая из расчётных площадей одного из помещений |
| Зрительские места: |
|
|
| а) для сидения на стационарных или трансформируемых трибунах (бличерах), в трансформируемом партере | 0,45-0,5 м2 на одно место (с учетом площади поперечных проходов и эвакуационных люков) | Максимальный уклон трибун не должен превышать 1:1,4. На трибунах и в партере предусматриваются места для инвалидов на креслах-колясках |
| б) для стояния (на стационарных или временных трибунах) | 0,25-0,3 м2 на одно место (с учётом площади проходов) |
|
| Уборные (с умывальниками в шлюзе): | Численное соотношение мужчин и женщин - по заданию на проектирование | В каждом помещении уборной должно быть не более 40 приборов. Вход и выход в помещение должны быть рассредоточены для предотвращения противопотоков. В составе уборных предусматриваются кабины для инвалидов на креслах-колясках. |
| а) женские | 1 унитаз на каждые 40 женщин | |
| б) мужские | 1 унитаз и 5 писсуаров на каждые 330 мужчин | |
| Умывальники при уборных: |
|
|
| а) женских | 1 умывальник на 4 унитаза | |
| б) мужских | 1 умывальник на 8 приборов | |
| Курительные для зрителей | 0,04 м2 на одно зрительское место | Вдали от трибун и пунктов питания |
| Буфеты для зрителей: |
| Площади подсобных помещений определяются применительно к требованиям по проектированию предприятий общественного питания. Буфет может работать на базе единого кухонного блока всего объекта |
| а) вместимость | На 3 % численности зрительских мест | |
| б) площадь торговых залов (без раздаточной) | Не менее 1,4 м2 на одно место в обеденном зале |
Продолжение таблицы 4.3.
| Помещения, зоны | Расчётные показатели, площади, размеры | Примечания, дополнительные требования или рекомендации |
| Места продажи питьевой воды (в т.ч. автоматы) | Около 36 м2; одно место на 5 тыс. посетителей | В отдалении от торговых точек, в пределах зрительских мест |
| Места на трибунах для спонсоров | По заданию на проектирование | С удобным обзором места соревновании |
| Места на трибунах для VIP-персон (на 10-15 человек - высших государственных деятелей; на 30-40 человек - руководителей спортивных организаций) | По заданию на проектирование |
|
| Помещения для обслуживания VIP-персон (на 10-15 человек - высших государственных деятелей; на 30-40 человек - руководителей спортивных организаций) | Состав и площади помещений - по заданию на проектирование | Обеспечивается удобная связь с охраняемым входом/выходом |
| Информационно-справочное бюро (окна) для посетителей соревнований - перед входом на трибуны | Около 100 м2 на каждое окно (с учётом площади офиса 36 м2 и места для очереди посетителей) | Количество и размещение окон определяется планировкой в зависимости от вместимости арены |
| а) помещение бюро находок и аренды наушников | По заданию на проектирование |
|
| б) помещение для хранения инвалидных колясок | 12 м2 | Вблизи выхода к трибунам |
| в) камера хранения детских колясок | 70 м2 (наличие и площадь уточняются заданием на проектирование) | Размещается без помех движения зрителей к трибунам |
| Телефоны-автоматы | 2 м2 на 1 телефон | Количество и места размещения - по заданию на проектирование |
| Банкоматы | То же | То же |
| Помещения услуг для «олимпийской семьи»: |
| По заданию на проектирование |
| а) рекреация | 200-400 м2 | Зона, доступная только для членов «олимпийской семьи» |
| б) приёмная гостей | 6 м2 |
|
| в) офис менеджера по протоколу | 12 м2 |
|
| г) помещение для персонала и кладовая | 16 м2 |
|
| д) ресторан и зона отдыха | 140 м2 |
|
| е) кухня | 70 м2 | Возможна работа на базе единого кухонного блока всего объекта |
Продолжение таблицы 4.3.
| Помещения, зоны | Расчётные показатели, площади, размеры | Примечания, дополнительные требования или рекомендации |
| ж) уборные | 30-60 м2 | По 4 кабины мужских и женских |
| Медпункт для зрителей: |
| Один блок на 20 тыс. посетителей объекта. В непосредственной близости к трибунам; в удобной связи с выходом из здания к парковке машины скорой помощи |
| а) ожидальная | 12 м2 | |
| б) смотровая | До 24 м2 | |
| в) кабинет оказания медицинской помощи | 36 м2 | |
| г) рабочая зона медперсонала с кладовой | 12 м2 | |
| д) уборные | 3 м2 | |
| Торговые помещения для продажи спортивных сувениров: |
| Возможно размещение на территории объекта |
| а) офис, касса, рабочая зона | 12-15 м2 |
|
| б) кладовая | 15-30 м2 |
|
| в) торговые точки (прилавки) | До 18 м2 | Одна точка на 800 посетителей |
| Центр общественной безопасности: |
| Возможно размещение на территории объекта |
| а) рабочая зона менеджера по безопасности и его ассистента | 15 м2 |
|
| б) рабочая зона персонала | 15 м2 |
|
| в) кабинет управления камерами слежения | 15 м2 | Размещение камер - по заданию на проектирование |
| г) радиостудия | 15 м2 | Помещение с оборудованием для передачи сообщений по радио |
| д) рабочая зона для сотрудников службы безопасности | 50 м2 |
|
| е) кладовая | 10 м2 |
|
| ж) клетка (помещение) для содержания охранных собак | По заданию на проектирование |
|
| з) помещение для собраний персонала службы безопасности | 140 м2 |
|
| и) наблюдательные позиции | По заданию на проектирование | Размещение по периметру территории объекта на высоте не менее двух метров от уровня наблюдаемого участка |
4.1.5. В таблицах 4.2 и 4.3 приведен максимальный составэлементов сооружения в случаях его использования для проведения крупнейшихмеждународных соревнований, включая Олимпийские Игры.
Состав сооружений, занимающихпромежуточное положение по своей значимости в области спорта, определяетсязаданием на проектирование, исходя из местных условий и финансовых возможностейзаказчика.
4.2.1. Припроектировании вестибюлей в зданиях крытых катков с искусственным льдом ихплощадь определяется из расчета 0,5 м2 на одного занимающегося всмену (но не менее 20 м ) и 0,25 м на одно зрительское место.
4.2.2. В зданияхспортивно-демонстрационных катков и многофункциональных залов катковрекомендуется вестибюли для занимающихся (соревнующихся) и для зрителейустраивать отдельно друг от друга. В зданиях остальных спортивных залов катковвестибюль предусматривается, как правило, общим для занимающихся и зрителей.Площадь вестибюлей определяется исходя из удельных расчетных параметров,приведенных в таблицах 4.1 и 4.3. Пример входной зоны ледового комплекса показан на рисунке4.1.
4.2.3. Вспортивном корпусе с двумя и более залами катков, из которых места для зрителейпредусматриваются только в одном, площадь общего вестибюля определяетсясложением площади, рассчитанной исходя из общего числа занимающихся в смену вовсех катках с площадью вестибюля для зрителей.
4.2.4. В техслучаях, когда в зале имеются стационарные места (трибуны) и временные(партер), расчетное число зрителей определяется, исходя не из суммарного числастационарных и временных мест, а в соответствии со схемами трансформации зала изрительских мест (см. рисунок 4.9), при этом временныеместа для проведения собраний и митингов в расчет не принимаются.
4.2.5. Площадь забарьером в гардеробной верхней одежды для занимающихся или зрителейопределяется из расчета 0,1 м2 на один крючок на подвесных илиобычных вешалках (с учетом подходов), но не менее 10 м2. Прииспользовании вешалок консольного типа площадь на одно место составляет 0,08 м2.
Расчетное число мест вгардеробной верхней одежды для занимающихся принимается равным 200 %численности смены при учебно-тренировочных занятиях, что обеспечивает также ихранение верхней одежды соревнующихся при проведении соревнований. Гардеробнаядля верхней одежды зрителей рассчитывается на 100 % зрительских мест (с учетомсхем трансформации мест, как это указывалось выше, при расчете площадивестибюля). Гардеробная, как правило, объединяется с вестибюлем. В тех случаях,когда она размещается в отдельном помещении, перед барьером гардеробной (вдольнего) предусматривается свободная полоса из расчета 0,03 м2 на одноместо в гардеробной, но ширина полосы не должна быть меньше 1 м. Глубинагардеробной за барьером предусматривается не более 6 м.
Верхняя одежда сотрудников хранится,как правило, у рабочего места и в расчете гардеробной для занимающихся (илизрителей) не учитывается. При численности сотрудников 40 человек и более для ихверхней одежды предусматриваются места в общей гардеробной.
4.2.6. Вкруглогодично действующем сооружении, предназначенном для учебно-тренировочныхзанятий с детьми до 10-летнего возраста, для родителей, сопровождающих детей,предусматривается площадь для ожидания из расчета 0,5 м2 на одноместо, размещаемая, как правило, объединенной с площадью вестибюля длязанимающихся, а также места в гардеробной верхней одежды. Число мест следуетпринимать на катках на 100 % пропускной способности. В сооружениях с местамидля зрителей площадь для ожидания родителей и места в гардеробной для ихверхней одежды не предусматриваются, так как для ожидания и хранения одеждыродителей используются вестибюль и гардеробная для зрителей.
4.2.7. Во всехсооружениях, где имеются места для зрителей, предусматривается фойе, площадькоторого определяется из расчета 0,35 м на зрительское место; при этомпринимаемое в расчет число зрительских мест должно учитывать схемытрансформации арены и зрительских мест.
В тех случаях, когда всевходы на зрительские места находятся на той же отметке, что и вестибюль длязрителей, фойе совмещается с вестибюлем. При этом расчетные площади вестибюля ифойе не суммируются, а принимается одна, наибольшая по расчету, так какиспользование этой площади в качестве вестибюля или в качестве фойе происходитразновременно.
4.2.8. При двухили нескольких трибунах в одном зале (катке), изолированных друг от друга, фойецелесообразно устраивать отдельно при каждой из трибун и площадь каждого фойеопределять в соответствии с числом зрительских мест на каждой из трибун (сучетом вышеуказанных рекомендаций при совмещении фойе с вестибюлем).
4.2.9. В зданияхспортивно-демонстрационных и спортивно-зрелищных залов и катков, а также вдругих сооружениях, где предусмотрено проведение платных мероприятий, в томчисле массового катания на коньках, для продажи билетов предусматриваютсякассы. Количество кассовых кабин определяется исходя из удельных расчетныхпараметров, приведенных в таблице 4.3.
4.2.10. При двух иболее кабинах целесообразно устраивать кассовый вестибюль, площадь которогоопределяется из расчета 15 м2 на каждую кабину. Кассовый вестибюльдолжен иметь самостоятельный наружный вход и, по возможности, сообщаться свестибюлем для зрителей, а также сообщаться через окно с помещением заведующегобилетными кассами (администратора), площадь помещения 6-8 м2.
4.3.1. Число местдля переодевания в мужских и женских раздевальных может приниматься одинаковым- 1:1. Однако из-за различного фактического соотношения числа одновременнозанимающихся мужчин и женщин число шкафов для хранения домашней одежды в каждойиз раздевальных принимается (с учётом опыта эксплуатации) равным 150 %расчетного числа мест.
4.3.2. Хранениедомашней одежды в отдельном помещении гардеробной целесообразно поэксплуатационным соображениям, так как не зависит от численного соотношениязанимающихся в одной смене мужчин и женщин (всегда хранение будет обеспеченочислом двухъярусных шкафов на 100 % занимающихся в смену), что дает экономиюплощади, но требует наличия гардеробщика. Помещение гардеробной рекомендуетсяразмещать смежно с мужской и женской раздевальными, сообщающимся с ними черезокно приема и выдачи одежды. При числе раздевальных более двух гардеробнаяможет располагаться не смежно с раздевальными, а на пути движения занимающихсяк залу катка.
4.3.3. Враздевальных, предназначаемых для детей до 10 лет, рекомендуется хранение ихдомашней одежды только в помещении раздевальной в одноярусных закрытых шкафахразмером 0,6×0,3 м в плане, число которых принимается на 300 % мест дляпереодевания.
4.3.4. В техслучаях, когда зал или каток предназначается для вида (видов) спорта, которымзанимаются как мужчины, так и женщины раздевальных для занимающихся при этомзале (катке) должно быть не менее двух (мужская и женская). Если зал (каток)предназначается для вида спорта, которым занимаются только женщины (например,художественней гимнастикой), или только мужчины (например, хоккей), топредусматривается одна мужская или женская раздевальная, при этом число местдля переодевания и число двухъярусных закрытых шкафов в ней принимаются на 100% занимающихся в смену.
4.3.5. Дляудобства подсчета площади раздевальных рекомендуется пользоваться таблицей 4.4,в которой приведены удельные показатели площади. Они при умножении на принятоечисло мест в раздевальной определяют площадь раздевальной. В этих показателяхучтено необходимое число шкафов, скамей для переодевания с необходимым числоммест, проходов надлежащей ширины, а также размещение в раздевальнойумывальника.
Таблица 4.4
| Контингент занимающихся | Удельная площадь раздевальной, м2, на одного человека при числе одновременно пользующихся данной раздевальной | |||
| менее 20 | от 21 до 30 | от 31 до 50 | 51 и более | |
| 1. Занимающиеся одного пола: |
|
|
|
|
| -дети до 10 лет | 2,3 | 2,0 | - | - |
| - дети старше 10 лет и взрослые | 1,9 (1,7) | 1,6 (1,4) | 1,5 (1,3) | 1,3 (1,1) |
| 2. Занимающиеся обоих полов: |
|
|
|
|
| - дети до 10 лет | 2,8 | 2,6 | - | - |
| - дети старше 10 лет и взрослые | 2,1 (1,7) | 1,8 (1,4) | 1,7 (1,3) | 1,5 (1,1) |
Примечание. В скобках приведен показатель удельной площадираздевальной при хранении домашней одежды в отдельном помещении гардеробной.
При одной и той же пропускнойспособности зала число занимающихся и одновременно пользующихся раздевальнойзависит от принятого в проекте числа помещений раздевальных. Следует иметь ввиду, что чем меньше мест в раздевальной, тем выше комфорт, что ведет, однако,к некоторому увеличению суммарной площади всех раздевальных.
4.3.6.Раздевальные при крытых катках с искусственном льдом в отличие от раздевальныхпри залах безо льда имеют следующие особенности:
- наряду сзанимающимися хоккеем (только мужчины), раздевальные используются длязанимающихся фигурным катанием на коньках (мужчины и женщины);
- надемонстрационных катках раздевальные используются также для соревнующихся повидам спорта безо льда (в том числе по командным видам спортивных игр с мячом);
- крупногабаритнаяспортивная одежда хоккеистов требует большей площади раздевальной на каждоеместо для переодевания.
С учетом изложенных вышеособенностей в крытых катках с искусственным льдом рекомендуетсяпредусматривать четыре раздевальные (без деления на мужские и женские) площадью64 м2 каждая. В них можно разместить 25 мест для переодевания,сблокированных с 25 двухъярусными закрытыми шкафами для хранения домашнейодежды, один умывальник, одну мойку для ног (допускается не предусматривать), атакже кабину площадью 3-4 м2 для индивидуальной подгонки клюшек иточки коньков (рисунки 4.2. и 4.3).
4.3.7. Насооружениях, предназначаемых для соревнований по командным спортивным играм нениже республиканского масштаба, в каждой из четырех раздевальных должна, какправило, дополнительно предусматриваться площадь для официальных лиц(представителя, тренеров и др.), составляющая 8-9 м2 для хоккея и4-4,5 м2 для остальных игр.
Вариант планировки раздевалокдля фигурного катания приведен на рисунке 4.4.
4.3.8. Прирасстановке скамей для переодевания и шкафов для хранения домашней одеждыширина проходов в раздевальных принимается не менее:
1,5 м - между рядами скамейпри сидении лицом друг к другу;
1,1 м - между рядом скамей ипараллельной ему стеной или стоящим напротив рядом шкафов;
0,5 м - перед фронтомотдельно стоящих шкафов;
0,7 м - перед фронтом проёмовв гардеробную домашней одежды;
0,5 м - боковые проходы;
1,0 м - главные проходы.
В гардеробных домашней одеждыминимальная ширина прохода перед фронтом проёмов для приёма и выдачи одеждыпринимается 0,7 м, а между рядом шкафов или рядом шкафов и стеной - 0,6 м.
4.3.9. Пути движениязанимающихся из раздевальных в зал (каток) не должны пересекаться с путями движениязрителей. Раздевальные должны сообщаться с залом непосредственно или покоридору, или по лестнице, предназначаемым только для сообщения с залом.Раздевальные для занимающихся (соревнующихся) на льду должны размещаться наодном уровне со льдом или связь с ним может осуществляться по пандусу с уклономне более 1:10.
4.4.1. Душевые исанитарные узлы располагаются при раздевальных, комнатах инструкторского итренерского состава, а также при бытовых помещениях для рабочих.
Душевые при раздевальных длязанимающихся устраиваются открытым и, как правило, без поддонов, а при комнатахинструкторского и тренерского состава, бытовых помещениях для рабочих имассажных - закрытыми, с дверями, открывающимися наружу.
Число санитарных приборов вовспомогательных помещениях приведено в таблицах 4.1.-4.3.
4.4.2. Численноесоотношение мужчин и женщин - занимающихся, сотрудников, инструкторского итренерского состава принимается, как правило, 1:1.
В санитарных узлах длязрителей расчетное число зрителей-мужчин принимается исходя из 60 %, а в залахкатков, предназначаемых для хоккея, - исходя из 70 % общего числа зрительскихмест. Иные соотношения могут быть установлены заданием на проектирование,исходя из местных демографических особенностей.
4.4.3. При душевыхс числом душевых сеток более четырех предусматриваются преддушевые (шлюзы дляпереодевания), которые оборудуются скамьями-вешалками с крючками для полотенеци полочками для туалетных принадлежностей. При числе единовременно работающихменее 5 душевые при комнатах для инструкторского и тренерского состава ибытовых помещениях могут не предусматриваться.
4.4.4. Числоумывальников в шлюзах определяется, исходя из расчета один умывальник на каждые5 приборов (унитазов и писсуаров), но не менее одного умывальника при каждомсанитарном узле. Проход в санитарные узлы для зрителей или умывальные при нихчерез помещения курительных не допускается. Умывальники в раздевальных длязанимающихся допускается размещать в шлюзах при уборных. Сушилки для волосдопускается размещать в отдельном помещении, смежном с раздевальными.
4.4.5. Размерыкабин уборных и душевых, размеры проходов в них и в умывальных, а такжерасстояние между приборами должны быть не менее приведенных в таблице 4.5.
Таблица 4.5
| Показатель | Уборные | Умывальные | Душевые |
| Размеры кабин в плане (не менее) при дверях, м: |
|
|
|
| открывающихся наружу | 0,85×1,2 | - | 0,85×1,8** |
| открывающихся внутрь | 0,85×1,5* | - | - |
| открытых | - | - | 0,85×1 |
| Высота разделительных экранов (от пола), м | 1,8 | - | 1,8 |
| Расстояние от пола до низа экрана, м | 0,2 | - | 0,2 |
| Расстояние между приборами (в осях), м: |
|
| - |
| умывальниками | - | 0,65 | - |
| писсуарами | 0,7 | - | - |
| Ширина проходов, (не менее), м: |
|
|
|
| между рядами кабин: |
|
|
|
| до 6 в ряду | 1,5 | - | 1,5 |
| свыше 6 в ряду | 2 | - | 1,5 |
| между стеной (перегородкой) и рядом кабин | 1,3 | 1,1 | 1 - при числе в ряду до 6; 1,5 - при 7 и более приборах |
| между рядами умывальников | - | 1,6 | - |
| между рядами писсуаров: |
|
|
|
| до 6 в ряду | 1,5 | - | - |
| свыше 6 в ряду | 2 | - | - |
| между кабинами и рядом писсуаров | 2 | - | - |
* Принимается только для уборных, состоящих из одной кабины ишлюза.
** Включаяпреддушевую при закрытых кабинах.
4.5.1. В зданиях крытыхкатков с искусственным льдом, предназначаемых для учебно-тренировочных занятийи соревнований по хоккею, следует предусматривать помещения для сушкиспортивной одежды и обуви хоккеистов площадью 7 м2 на каждуюкоманду. При одной площадке (61×30 м) рекомендуется предусматривать 10помещений. На сооружениях, предназначаемых для проведения сборов или кустовыхсоревнований с участием большого числа команд, число помещений определяетсязаданием на проектирование. Практически на каждом катке имеется «своя» команда,для которой выделяется в постоянное пользование одна из раздевальных; в этомслучае помещение для сушки спортивной одежды и обуви хоккеистов этой командырекомендуется располагать смежно с этой раздевальной, непосредственносообщающейся с нею.
4.5.2. В крытыхкатках с местами для зрителей рекомендуется предусматривать проведениемассового катания на коньках (что определяется заданием на проектирование). Вотдельных случаях, по заданию на проектирование, допускается предусматриватьмассовое катание на коньках в сооружениях без мест для зрителей, но безвыделения дополнительной для этой цели площади вестибюля и гардеробной верхнейодежды. В составе вспомогательных помещений крытого катка, в котором проводитсямассовое катание на коньках, на площади вестибюля или смежно с ним следуетдополнительно предусматривать:
- помещение дляхранения, выдачи и сушки прокатных ботинок с коньками (площадью 10 м2);
- мастерскую дляточки коньков (площадью 6 м2);
- две кабины дляпереодевания (площадью 1 м2 каждая).
Хранение верхней одежды,переодевание и отдых катающихся, а также пользование уборными и буфетамипредусматриваются на площади вспомогательных помещений для зрителей, которые вэтом случае должны размещаться на одном уровне с катком или сообщаться с ним попандусу с уклоном не более 1:10. Из вестибюля должно предусматриваться не менеедвух выходов на лед для катающихся, размещаемых рассредоточено.
Допускается устройствоотдельной раздевальной для массового катания (рисунок 4.5).
4.5.3. При залахкатков с искусственным льдом следует предусматривать инвентарные для храненияпереносного спортивного оборудования и инвентаря. Инвентарные должнырасполагаться смежно с залами катков. Пол инвентарной предусматривается наодном уровне с полом зала и без порога. Двери инвентарных в залы, а также дверизалов, предназначенные для транспортирования через них спортивногооборудования, принимаются шириной не менее 1,8 м. Допускаются открытые проемы винвентарные из залов. Размеры инвентарных при залах катков с искусственнымльдом следует определять исходя из состава и размеров переносного оборудования,инвентаря и способа их хранения.
4.5.4. Помещениедля отдыха занимающихся рекомендуется принимать из расчета 3 м2 наодно место исходя из 15 % пропускной способности в смену приучебно-тренировочных занятиях (но не менее 24 м2). Возможно вместоотдельного помещения предусматривать требуемую площадь в световых разрывахкоридоров.
4.5.5. Учебныйкласс (методический кабинет) может предусматриваться практически во всехкруглогодично действующих спортивных залах катков, однако необходимостьустройства, а также число классных помещений определяются заданием напроектирование. Размер класса рекомендуется 30 м2, что обеспечиваетразмещение одной учебной группы. При двух и более классных помещенияхдополнительно предусматривается помещение для хранения пособий площадью 6 м2.
4.5.6. Комнатыинструкторского и тренерского состава предусматриваются, как правило, раздельнодля мужчин и женщин, но при числе одновременно работающих 5 и менее можетпредусматриваться одна общая для мужчин и женщин комната с размещением в ней1-2 кабин для переодевания площадью не менее 1 м2 каждая. Прираздельных (мужской и женской) комнатах соотношение числа мест в нихпринимается 1:1, если иное соотношение исходя из местных условий не определенов задании на проектирование. Общее число мест определяется исходя из того, чтона каждого инструктора или тренера приходится 15 человек занимающихся в сменупри учебно-тренировочных занятиях. Площадь комнат определяется из расчета 2,5 м2на одно место, но не менее 9 м2 каждая. При числе мест в одномпомещении более 10 площадь помещения может рассчитываться исходя из 1,8 м2на одно место.
4.5.7. В зданияхкатков предусматриваются бытовые помещения для рабочих и служебные помещенияадминистративного и инженерно-технического персонала. В связи с тем, чторабочие на спортивных сооружениях работают посменно, расчетное число мест дляопределения площади бытовых помещений рекомендуется принимать на 50 % штатногорасписания и исходить из 1,5 м2 на одно место. При этом места дляхранения рабочей (домашней) одежды в шкафах предусматриваются на 100 %работающих. При проектировании бытовых помещений площадь каждого из них (длямужчин или женщин), независимо от полученной по расчету, не должна, какправило, быть менее 9 м2.
4.5.8. В составеслужебных помещений административного и инженерно-технического персоналарекомендуется предусматривать:
- кабинетдиректора. При числе сотрудников 100 чел. и более площадью 24 м2,при меньшем числе - 12 м2;
- кабинетызаместителя директора, главного инженера. При числе сотрудников 100 человек иболее - по 12 м2, при меньшем числе - по 9 м2;
- приёмную - причисле сотрудников 100 чел. и более площадью 12 м2, а при меньшемчисле - 8 м2; приёмная предусматривается общей при кабинетахдиректора и главного инженера;
- кабинетначальника (заведующего) отделом (службы). При числе сотрудников отдела(службы) 100 чел. и более площадью 24 м2, при меньшем числе - 12 м2.При числе сотрудников менее 10 человек, кабинет начальника (заведующего) непредусматривается, а его рабочее место размещается в общей комнате отдела(службы) из расчета 7 м2;
- рабочиепомещения сотрудников отделов (служб). Определяются из расчета 4 м2на одного сотрудника;
- комнатукоменданта (заведующего хозяйством). Во всех случаях принимается площадью 8 м2;
- зал заседанийплощадью 72 м2. Предусматривается при числе сотрудников 100 человеки более.
Рабочие помещения и кабинетыначальников (заведующих) таких отделов, как бухгалтерия, планово-финансовый,кадров и т. п., располагаются в блоке административных помещений и кабинетовруководства (дирекции) сооружения. Рабочие помещения и, как правило, кабинетыначальников инженерных служб сооружения (сантехнической, холодильной, электро-,радио-, телефонной и т.п.) - в удобной связи с соответствующими техническимипомещениями и рабочими помещениями сотрудников служб.
4.5.9. В зданиях катковпредусматриваются следующие помещения для медицинского обслуживания:
- кабинет врачаплощадью 14 м2;
- ожидальнаяплощадью 9 м2 .
Ожидальная может размещатьсяв расширенной части коридора. На спортивных комплексах, состоящих из несколькихкорпусов, кабинет врача с ожидальной предусматриваются только в одном здании, ав остальных предусматриваются комнаты для оказания первой медицинской помощиплощадью 9 м2 каждая.
4.5.10. В отдельных случаях,при соответствующем обосновании и по согласованию с местными органамиздравоохранения, заданием на проектирование в составе помещений длямедицинского обслуживания могут предусматриваться медико-восстановительныецентры.
На спортивных комплексах,состоящих из нескольких спортивных корпусов, помещениямедико-восстановительного центра предусматриваются в одном из спортивныхкорпусов (взамен кабинета врача и ожидальной). Возможно размещениемедико-восстановительного центра в отдельном здании; в этом случае в остальныхзданиях комплекса предусматриваются только комнаты для оказания первоймедицинской помощи (площадью 9 м2 каждая).
Рекомендуемые состав иплощади помещений медико-восстановительного центра принимаются в соответствии спунктами 6.5.5; 6.5.6 и 6.5.7 СП 31-112-2004 (часть 2).
Варианты планировок саун данына рисунке 4.6.
4.5.11. В корпусахмногофункциональных, спортивно-демонстрационных и учебно-тренировочных катковнеобходимо предусматривать буфеты для занимающихся и зрителей.
При пропускнойспособности занимающихся менее 48 чел. в смену или при числе зрительских местменее 500 буфеты не предусматриваются. При пропускной способности менее 48занимающихся в смену в помещениях для отдыха или вестибюлях для зрителей могутустанавливаться автоматы для продажи напитков.
4.5.12. Число меств буфетах рекомендуется принимать:
- для занимающихсяиз расчета одно посадочное место на 6 человек суммарной пропускной способностив смену;
- для зрителей израсчета 3 % числа зрительских мест.
В спортивных корпусах с двумяи более залами, в которых предусмотрены места для зрителей расчет числа мест вбуфетах для зрителей ведётся по планировке зала с максимальным числомзрительских мест; при этом расположение буфета должно позволять пользование имзрителями всех залов.
4.5.13. Площадизалов буфетов (с раздаточной) для занимающихся принимаются из расчёта 3,4 м2на каждое посадочное место при их числе до 8 и по 1,25 м2 на каждоепосадочное место сверх 8 и до 30. При общем числе мест в зале свыше 30 - неменее чем по 1,8 м2 на каждое место.
Площади залов буфетов длязрителей (без учёта раздаточной) принимаются не менее 1,4 м2 накаждое место.
Площади подсобных помещенийбуфетов определяются применительно к требованиям по проектированию предприятийобщественного питания.
4.5.14.Сотрудники, как правило, пользуются буфетами для занимающихся. В зависимости отчисла сотрудников заданием на проектирование может предусматриваться служебнаястоловая, проектируемая по нормам для предприятий общественного питания,предусмотренных СНиП2.09.04; в расчет буфетов для занимающихся или зрителей служебная столоваяне входит.
4.5.15. В зданияхкрытых катков с искусственным льдом, в удобной связи с катком (катками)предусматривается помещение для двух-трех машин по уходу за льдом размером (вчистоте) 9×6,5 м, высотой 3,9 м. Проемы для выезда из помещенияпредусматриваются высотой не менее 2,4 м и шириной не менее 3,5 м. В помещениипредусматривается приямок размером 3×1 м, глубиной 1 м с устройством длятаяния снежной стружки. Приямок должен закрываться решеткой заподлицо с полом.Схема помещения для стоянки двух машин по уходу за льдом приведена на рисунке 4.1.
4.5.16. В числепомещений для судей рекомендуется предусматривать помещение секретариата,помещение множительной техники, которые должны быть удобно связаны друг сдругом и с ареной. Желательно предусматривать также помещения для бригады судейпо награждению (холл для сбора победителей и призёров, рабочая комната бригадыи гравера, кладовая для хранения призов и цветов), а также зал для заседанийсудейской коллегии, проведения пресс-конференций и жеребьевок. При наличии всооружении зала заседаний, отдельный зал для заседаний судейской коллегии непредусматривается. Площади приведённых выше помещений определяются в каждомотдельном случае заданием на проектирование.
4.5.17. Дляпроведения эстрадных концертов и выступлений балета на льду в многофункциональныхзалах катков необходимы вспомогательные помещения для артистов и художественныхруководителей, гримерная - парикмахерская, костюмерная и обувная, оперативныйсклад для реквизита и бутафории, размещаемые в удобной связи с ареной, а такжепомещения для хранения инструментов оркестра и складирования кофров. Площадьэтих помещений определяется заданием на проектирование, в зависимости отназначения зала (катка) и масштаба проводимых мероприятий.
4.5.18.Необходимость устройства отдельных помещений для спортивных судей, прессы,артистов и др., определяется заданием на проектирование. Их рекомендуетсяустраивать, когда на сооружении предусматривается большое число зрителей, и онопредназначается для частого проведения зрелищных мероприятий или соревнованийкрупного масштаба.
В других случаях в качествепомещений для судей и прессы могут использоваться учебные классы (методическиекабинеты), комнаты администрации, инструкторского и тренерского состава, вкачестве артистических - раздевальные для занимающихся, для солистов,художественных руководителей, гримерной, парикмахерской - комнатыинструкторского и тренерского состава, а также административные помещения.
4.5.19. Помещениядля уборочного инвентаря располагаются рассредоточено, поэтажно, вблизи убираемыхпомещений, а их площади определяются из расчета 4 м2 на каждые 1000м2 убираемой площади пола.
4.5.20. Помещениедля пожарного поста принимается площадью 25 м2 при вместимоститрибун более 2000 мест и площадью 15 м2 при вместимости трибун от1000 до 2000 мест. При вместимости трибун менее тыс. мест помещение пожарногопоста не предусматривается.
Помещение пожарного постаразмещается на первом этаже в удобной связи с наружным выходом и техническимипомещениями.
4.5.21. Помещениядля работников охраны общественного порядка предусматриваются в виде двухсмежных комнат по 10-12 м2 каждая на демонстрационных сооружениях стрибунами вместимостью не менее 1500 зрителей. Они должны размещаться в удобнойсвязи с трибунами, фойе и вестибюлем для зрителей.
4.5.22. Составхозяйственных помещений - кладовых и складов для хранения спортивногооборудования и инвентаря и других складских помещений, мастерских (художников,столярной, слесарной, ремонта электро- и радиоаппаратуры, спортивногооборудования и инвентаря) и иных производственных и складских помещенийопределяется заданием на проектирование; площади складских помещенийпринимаются в зависимости от количества, габаритов и способов складирования.
Проектирование складских ипроизводственных помещений должно отвечать требованиям СНиП 31-04 и СНиП 31-03, а для персонала, работающего вэтих помещениях, должны предусматриваться санитарно-бытовые помещения всоответствии со СНиП2.09.04.
4.5.23. В зданиях катков длязрителей предусматриваются курительные, площадь которых принимается из расчета0,04 м2 на одно зрительское место, но не менее 10 м2.Смежное размещение курительных и санитарных узлов не рекомендуется.
4.5.24. Высотавспомогательных помещений в зависимости от архитектурно-планировочного решенияи технологических требований, а также при размещении их в подтрибунномпространстве может приниматься:
- в помещенияхгардеробной верхней и домашней одежды - 2,1 м;
- в остальныхпомещениях (кроме вестибюля) - 2,7 м.
Высота технических помещенийпринимается в зависимости от применяемого оборудования, а складских помещений икладовых - от размеров и способов хранения складируемых предметов. Высотускладских помещений хранения трансформируемых мест партера рекомендуетсяпринимать не менее 3 м.
4.5.25. Насооружениях, предназначаемых для проведения крупных соревнований, должнапредусматриваться зона (холл, помещение), где возможно проведение краткихвстреч журналистов (представителей СМИ) с участниками соревнований. Данная зона(микст-зона) располагается между выходом спортсменов на арену (местосоревнований) и проходом из раздевальных и планировочно не должна препятствоватьдвижению спортсменов к месту проведения соревнований и возвращению враздевальные. Размеры микст-зоны (ориентировочно около 100 м2)должны обеспечивать размещение в ней до 30 журналистов, включаятелекомментаторов с обслуживающим персоналом (при 6-8 телекамерах).
4.5.26. Состав, размеры и,частично, оборудование помещений для антидопингового контроля, в зависимости отосновного предназначения сооружения (скоростной бег на коньках или командныеспортивные игры), могут отличаться. Пункт антидопингового контроля дляконькобежцев по составу и размерам помещений может быть минимизирован в связи сотносительно небольшим количеством одновременно контролируемых участниковсоревнований (рисунок 4.7, а). Для контроля хоккеистов и фигуристов требуютсяпомещения увеличенных размеров с более развитым составом сантехническогооборудования (рисунок 4.7, б). Помещения антидопинговогоконтроля должны быть расположены вблизи раздевальных.
4.6.1. В сооружениях,предназначаемых для проведения соревнований, предусматриваются места длязрителей в виде трибун или балконов, а в многофункциональных залах катков - ввиде партера.
4.6.2. Трибуны длязрителей проектируются, как правило, в стационарных конструкциях с местами длясидения; в отдельных случаях применяются трансформируемые или сборно-разборныетрибуны. Целесообразно применение следующих типов трансформируемых трибун:
- бличеры -трибуны, состоящие из раздвигающихся секций телескопического типа;
- трибуны типапартер-трибуна.
Оба вида таких трибун имеютограниченное число рядов (как правило, в пределах 8-10 рядов с местами длясидения). Их применение в каждом отдельном случае определяется конкретнымхарактером их использования.
4.6.3.Трибуна-бличер, в виде выдвигающихся секций, имеет строго фиксированноеместоположение (прикрепляется к стенам зала или к стационарной трибуне споднятым над ареной первым рядом) и поэтому имеет ограниченное применение.Путем выдвижения различного числа отдельных секций возможно изменять вместимостьэтой трибуны, что важно при эксплуатации сооружения.
4.6.4.Партер-трибуна, монтируемая на передвижной платформе, легко перемещается влюбом направлении по арене, обеспечивая требуемую проектом ее трансформацию.Изменяющийся углом наклона партер-трибуна позволяет использовать ее как обычныйплоский партер, что очень важно при трансформации арены для проведениякультурно-зрелищных и общественных мероприятий (митинг, концерт и др.).
4.6.5. Зонированиерасположения зрительских мест на трибунах и построение профиля трибуны, а такжеопределение местоположения наблюдаемой точки (фокуса) в зависимости отназначения зала по видам спорта приведены на рисунке 4.8.
4.6.6. Дляобеспечения зрительного восприятия происходящего на арене, при расположениизрительских мест на балконе, рекомендуется размещать на нем один ряд мест длясидения и один - для стояния из расчета 9 зрителей на 2 м длины балкона. Балконустраивается, как правило, вдоль продольных стен зала и желательно так, чтобыпроекция балкона оказывалась за пределами арены; балкон не должен также мешатьразмещению под ним спортивного оборудования.
4.6.7. Припроектировании трибун следует применять следующие размеры зрительских мест:
- глубина ряда настационарных трибунах 0,8-0,9 м (на бличерах допускается уменьшать до 0,75 м);
- ширина места длясидения - 0,45 м;
- глубина сиденияна стационарных трибунах - 0,4 м (на бличерах допускается уменьшать до 0,35 м);
- высота сидениянад уровнем пола прохода - 0,43 м.
4.6.8. Расчетноечисло зрительских мест в многофункциональных ледовых залах с устройствомпартера определяется как сумма мест в партере и на трибунах за вычетом мест,расположенных за пределами горизонтального угла 120° с вершиной на серединедальней стороны эстрады и на удалении от нее более 40 м. На рисунке 4.9 приведены данные о «потере» мест на трибунах различнойконфигурации при аренах наиболее распространенных размеров и при размерахэстрады, приведенных в п. 3.9.3.В иных случаях определение «потерь» осуществляют, руководствуясь приведеннымивыше величинами удаления и горизонтального угла. Если «потери» зрительских местна трибунах при проведении эстрадных концертов и установке партера превышаютпринятую вместимость партера, расчет вспомогательных помещений для зрителейведется в проекте, исходя из суммарной вместимости всех трибун, но без учетавместимости партера.
4.6.9. Зрительскиеместа на трибуне разделятся на блоки, по границам которых устанавливаютсястационарные, как правило, металлические ограждения; высота ограждения вдольрядов зрительских мест принимается исходя из условий видимости, а у ограждений,устанавливаемых у боковых границ блоков (поперек рядов трибуны), - 0,9-1,0 м.
4.6.10. Натрибунах, пол первого ряда которых расположен выше поверхности арены более чемна 0,25 м, вдоль прохода этого ряда предусматривается устройство ограждениявысотой не менее 0,8 м. В этом случае для удобств движения зрителей вдольпервого ряда рекомендуется увеличивать ширину прохода.
По верху и по торцам трибун,если они не примыкают к стенам спортивного зала (катка), предусматриваютсяограждения высотой не менее 1,2 м.
4.6.11. Приразнице уровня пола смежных рядов трибуны 0,3 м и более у сиденийпредусматривается устройство спинок, возвышающихся над полом вышерасположенногосмежного ряда не менее чем на 0,12 м.
4.6.12.Конструкцию сидений на трибунах рекомендуется принимать консольного типа спокрытием деревом или пластмассой. Наиболее распространенный тип сидений - ввиде скамьи (в том числе со спинкой). Для достижения большего комфорта длязрителей желательно применение штампованных пластмассовых сидений в видеотдельных кресел (без подлокотников).
4.6.13. Применениесидений в виде кресел с подлокотниками не рекомендуется. На стационарных трибунахи в партере крытых катков предусматриваются места для инвалидов,передвигающихся на креслах-колясках, из расчета 2 % общей вместимости зала до1000 мест включительно. И по одному месту дополнительно на каждые последующие100 мест.
4.6.14. Места дляинвалидов на креслах-колясках предусматриваются в первом ряду трибун (партера);при этом в той части ряда, где расположены места для инвалидов, сидения неустраиваются, а их роль выполняют кресла-коляски. Ширина подъезда инвалидов ксвоим местам принимается не менее 0,9 м, а при необходимости поворотакресла-коляски на 90° - не менее 1,1 м. Размер каждого места принимается равным0,9 м ширины и 1,4 м длины.
4.6.15. Наоткрытых сооружениях главная трибуна ледовой площадки, ориентированнойсевер-юг, должна располагаться на восточной стороне.
5.1.1. Для размещенияосновного оборудования по обслуживанию ледовых полей необходимо предусматриватьследующий состав помещений:
- машинный зал (холодильныеагрегаты, насосы, ёмкостное оборудование, трубопроводы и арматура и т.д.);
- вентиляционнуюкамеру (приточно-вытяжная установка, центральный кондиционер);
- электрощитовую(силовые щиты, щиты управления);
- площадку длярасположения наружных теплообменных аппаратов (конденсаторы, градирни);
- помещениестоянки машин для заливки льда с ямой таяния ледовой крошки.
Площади всехпомещений варьируются в зависимости от состава оборудования для конкретнойсистемы и архитектурных решений.
Минимальная площадь машинногозала - 110 м .
5.1.2. Припроектировании крытых катков с искусственным льдом расположение помещенийхолодильных станций и холодильных машин, а также хладагента осуществляется всоответствии с требованиями СНиП 41-01.
5.1.3. Холодильноеоборудование подбирается индивидуально для каждого катка. Возможно размещениехолодильной установки в контейнере на открытом воздухе или внутри здания.Расстояния от помещений до автономных блоков не ограничены и также зависят отархитектурных решений.
Мощность холодильнойустановки подбирается исходя из размеров катка (в первую очередь кубатуры зала)и климатической зоны строительства.
5.2.1.Конструктивную основу ледовых полей (арен, площадок) составляют преимущественнотрубные системы, среди которых выделяются три основных вида технологическихплит:
- поле с высокопрочнойбетонной охлаждающей плитой, полностью пластиковая трубная система (рисунок 5.1);
- поле с засыпкойиз кварцевого песка или гранитной крошки, полностью пластиковая трубнаясистема;
- мобильнаясистема из трубных матов, монтирующихся на любом основании.
5.2.2. Бетоннаяохлаждающая плита является предпочтительным вариантом для многофункциональныхледовых дворцов, когда возникает необходимость использования поля безо льда.Отличается высокой стоимостью первоначальных капитальных вложений.
Охлаждающая плита включаетполиэтиленовые трубы диаметром 25 мм с расстоянием между трубами 80-100 мм.Применяются полиэтиленовые трубы со сроком службы не менее 50 лет, которыепозволяют использовать любые холодоносители, включая этиленгликоль и хлоридкальция. Под охлаждающей плитой предусматривается теплоизоляция оттеплопритоков из грунта, выполняемая из экструдированного пенополистирола итрубная система обогрева грунта (защита от промерзания).
5.2.3. Охлаждающаяплита в песчаной засыпке предпочтительна при круглогодичном функционированиильда, а также для малобюджетных проектов. Энергетическая эффективностьсущественно выше, чем у бетонной плиты, а стоимость материалов и работ на 40-60% ниже, чем для бетона. Ледовое поле выполняется из полиэтиленовых трубдиаметром 25 мм с расстоянием между трубами 80-100 мм. Трубы закрываютсязасыпкой из кварцевого песка или гранитной крошки слоем до 30 мм от их верхнейповерхности.
5.2.4. Мобильнаясистема из трубных матов предпочтительна для случаев кратковременногоустройства льда. Высокую стоимость самой трубной системы компенсирует низкаястоимость строительных подготовительных работ. Маты из гибких трубок диаметром14 мм, с межтрубным расстоянием 23 мм. Система укладывается на твердоеоснование, подключается к холодильной машине. Наморозка льда производитсяповерх трубок. После размораживания поля отсоединённые субколлекторынакрываются крышками и маты сворачиваются вместе с находящимся внутрихолодоносителем на специальные оцинкованные катушки и убираются на складхранения.
5.2.5. Привозведении конструкций ледовых полей (площадок) необходимо учитывать следующее:
- коллекторытрубной системы поля и трубопроводы к холодильной машине выполняются изполиэтиленовых труб по трёхтрубной схеме «Уравнитель давления Тишермана».Соединения выполняются стыковой сваркой, также используются фланцевыесоединения. Возможно использование любых холодоносителей, включая этиленгликольи хлорид кальция;
- не допускаетсяукладка системы холодильных труб, в том числе замоноличенных в плиту изтеплопроводного материала, на пучинистые грунты;
- конструкция иразмеры охлаждающей плиты катка для хоккея должны обеспечивать возможностьустановки и крепления бортов, окаймляющих поле для игры;
- разность отметокв плоскости поверхности охлаждающей плиты катков с искусственным льдом недолжна превышать 0,005 м;
- в универсальныхспортивно-зрелищных залах с искусственным льдом должна обеспечиватьсявозможность создания ледяной поверхности разных размеров в соответствии спредусмотренной трансформацией арены;
- при расчётеконструкции охлаждающей плиты и основания под неё следует учитыватьдополнительную временную нагрузку на плиту от проезда машин по уходу за льдом игрузовых автомашин исходя из нормативной автомобильной нагрузки Н-10 (длянормального автомобиля);
- для отвода водыв канализацию должны предусматриваться каналы за пределами охлаждающей плиты;
- каналы,устраиваемые в крытых катках, должны перекрываться съемными щитами, верхняяповерхность которых должна быть заподлицо с полом зала катка (см. рисунок 5.1,б).
5.2.6. Конструктивнаяособенность так называемого силиконового льда дана в приложении Г.
6.1.1. Всеспортивные сооружения должны быть оборудованы системами отопления, вентиляции,кондиционирования, обеспечивающие соответствующую температуру, влажность ибактериальную обсеменённость воздуха.
6.1.2. Расчетнаятемпература и кратность обмена воздуха в спортивных сооружениях принимаютсясогласно таблице 6.1. Обеспечение указанных параметров внутреннего воздуха вспортивных залах с местами для более 800 зрителей и крытых катках с местами длязрителей во всех климатических районах, а также в спортивных залах с местамидля 800 и менее зрителей в IV климатическом районе рекомендуется путем устройства системкондиционирования воздуха. Выбор системы определяется технико-экономическимрасчетом.
| Помещение | Расчетная температура воздуха, °С | Кратность обмена воздуха в 1 час, не менее | |
| приток | вытяжка | ||
| 1. Крытые катки с местами для зрителей | 18* в холодный период года при относительной влажности 30-45 % и расчетной температуре наружного воздуха по параметрам Б. Не выше 26 (на катках - не выше 25) в теплый период года при относительной влажности не более 60 % (на катках - не более 55 %) и расчетной температуре наружного воздуха по параметрам Б | 2, но не менее 80 м3/ч наружного воздуха на одного занимающегося и не менее 20 м3/ч на одного зрителя | |
|
|
| ||
| 2. Крытые катки без мест для зрителей | 14* | То же | |
Продолжение таблицы 6.1
| 3. Хореографические классы | 18* | То же | |
| 4. Помещения для индивидуальной силовой и акробатической подготовки, для индивидуальной разминки перед соревнованиями, мастерские | 16* | 2 | 3 (в мастерской местные отсосы по заданию на проектирование) |
| 5. Гардеробная верхней одежды для занимающихся и зрителей | 16 | - | 2 |
| 6. Раздевальные (в том числе при массажных и банях сухого жара) | 25 | По балансу с учетом душевых | 2 (из душевых) |
| 7. Душевые | 25 | 5 | 10 |
| 8. Массажные | 22 | 4 | 5 |
| 9. Камера бани сухого жара | 110** | - | 5 (периодического действия при отсутствии людей) |
| 10. Помещения для отдыха занимающихся, комнаты инструкторского и тренерского состава, для судей, прессы, административного и инженерно-технического состава | 18 | 3 | 2 |
| 11. Санитарные узлы: |
|
|
|
| общего пользования (для зрителей) | 16 | - | 100 м3/ч на 1 унитаз или писсуар |
| для занимающихся (при раздевальнях) | 20 | - | 50 м3/ч на 1 унитаз или писсуар |
| индивидуального пользования | 16 | - | 25 м3/ч на 1 унитаз |
| 12. Умывальные при санитарных узлах общего пользования | 16 | - | За счет санитарных узлов |
| 13. Инвентарные при залах | 15 | - | 1 |
| 14. Помещение для стоянки машин по уходу за льдом | 10 | По балансу из зрительного зала | 10 (1/3 из верхней и 2/3 из нижней зоны) |
| 15. Бытовые помещения для рабочих, охраны общественного порядка | 18 | 2 | 3 |
| 16. Помещение пожарного поста | 18 | - | 2 |
| 17. Помещения (кладовые) для хранения спортивного оборудования и инвентаря, хозяйственных принадлежностей | 16 | - | 2 |
| 18. Помещение для холодильных машин | 16 | 4 | 5 |
| 19. Помещение для сушки спортивной одежды | 22 | 2 | 3 |
* В нерабочее время в этих помещениях следует предусматриватьснижение температуры воздуха в пределах до 5°С с учетом восстановлениянормируемой температуры воздуха к началу рабочего времени. Выбор системыотопления в этих помещениях (воздушное, водяное и др.) определяетсятехнико-экономическим обоснованием.
** Обеспечивается от самостоятельного источника энергиитехнологическим оборудованием заводского изготовления и отключающим устройствомпри повышении температуры в камере св. 110°С.
6.1.3. В помещениях, неуказанных в таблице, температуру воздуха и кратность воздухообмена следуетпринимать по требованиям соответствующих норм. Расчетное число зрителей в залекатка при проектировании систем вентиляции принимается исходя из 100 %заполнения зрительских мест.
6.1.4. Расчетнаятемпература воздуха приведена в таблице 6.1 для рабочего времени в холодныйпериод года. В теплый период года температура в помещениях принимается всоответствии с требованиями СНиП 41-01 и ГОСТ30494.
6.1.5. В период,когда крытые катки с местами для зрителей используются для учебно-тренировочныхзанятий (без присутствия зрителей), расчетная температура воздуха в них (вхолодный период года) принимается как для залов крытых катков без мест длязрителей.
6.1.6. В залахкрытых катков с местами для зрителей расчетная температура воздуха, приведеннаяв настоящей таблице для холодного периода года, может быть выдержана только взоне размещения мест для зрителей, а в зоне нахождения занимающихся(соревнующихся) температура может приниматься такой, какая предусмотрена дляспортивных залов и крытых катков без мест для зрителей соответственно.
6.1.7. Расчетвоздухообмена в универсальных залах катков с местами для зрителей производитсядля следующих эксплуатационных режимов при функционировании:
- льда и мест длязрителей;
- мест длязрителей без использования льда;
- льда безиспользования мест для зрителей.
В спортивных залах (безискусственного льда) с местами для зрителей расчет воздухообмена рекомендуетсяпроизводить для двух режимов - со зрителями и без них.
6.1.8. Самостоятельныесистемы приточной и вытяжной вентиляции предусматриваются для:
- залов крытыхкатков;
- душевых,раздевален занимающихся и массажных;
- служебныхпомещений для административного и инженерно-технического персонала,инструкторско-тренерского состава, бытовых помещений для рабочих;
- технических помещений(бойлерных и др.).
Удаление воздуха из зальныхпомещений крытых катков, как правило, предусматривается вытяжными системами сестественным побуждением.
6.1.9. Удалениевоздуха из зальных помещений крытых катков с искусственным льдом,предусматриваемое вытяжными системами с естественным побуждением, рекомендуетсяосуществлять, используя обычные вентиляционные шахты, устанавливаемыенепосредственно на кровле зала. Вытяжные шахты оборудуются утепленнымиклапанами с электроподогревом и дистанционным управлением, а также поддонамидля сбора и удаления конденсата. К клапанам и поддонам обеспечивается удобныйдоступ обслуживающего персонала. Размеры внутреннего сечения шахт определяютсяпо расчету с учетом гравитационного и ветрового напора и давления, создаваемогоприточной вентиляцией.
Систему вытяжной вентиляциииз санитарных узлов и курительных допускается объединять с системой вытяжнойвентиляции из душевых.
6.1.10. В системахвоздушного отопления зальных помещений, совмещенных с вентиляцией икондиционированием воздуха, допускается применение рециркуляции воздуха. Приэтом объем подаваемого наружного воздуха не должен быть меньше указанного втаблице 6.1.
6.1.11. В зальныхпомещениях рециркуляционный воздух следует использовать в объеме, непревышающем установленные нормы, при этом рециркуляционный контур системывентиляции и кондиционирования рекомендуется оснащать обеспыливающими фильтрамии устройствами обеззараживания воздуха с эффективностью инактивациимикроорганизмов и вирусов не менее 95 %.
6.1.12. В зданияхспортивных сооружений круглогодичного использования применяются системыцентрального водяного отопления. Для помещений, в которые предусматривается внерабочее время понижение внутренней расчетной температуры воздуха, подогревего до нормируемых параметров рекомендуется осуществлять системами приточнойвентиляции, которые в этот период используются как системы воздушногоотопления. При соответствующем обосновании для отопления указанных помещенийили их групп могут применяться только системы воздушного отопления.
6.1.13. В залахкрытых катков с местами для зрителей рекомендуется предусматриватьсамостоятельные системы распределения воздуха для зоны размещения мест длязрителей и для зоны нахождения занимающихся (соревнующихся).
6.1.14. Помещения,предназначаемые для оборудования в них приточных систем и установоккондиционирования воздуха, рекомендуется размещать в подвальных или цокольных этажах (на грунте) так, чтобыпротяженность трасс воздуховодов была минимальной.
6.1.15.Холодопроизводительность холодильных станций крытых катков с искусственнымльдом принимается по летним нагрузкам с учетом параметров внутреннего воздуха,приведенных в таблице 6.1. Температура поверхности льда для расчета принимаетсяминус 8°С при толщине льда 50 мм. Разность температур поверхности льда в любыхточках может составлять не более 0,5°С.
6.1.16. Припроектировании конфигурации оборудования катка следует принимать во вниманиевиды деятельности и интересы разных групп пользователей в соответствии спараметрами таблицы 6.2.
Таблица 6.2
| Деятельность | Температура воздуха в помещении катка, °С | Температура льда, °С | Максимально допустимая | Минимальное поступление наружного воздуха, л/с/субъект, не менее | |
| Каток(на | Трибуна | ||||
| Хоккей - игра | +6 | +10 +15 | -5 | 70 | 4...8/зритель |
| Фигурное катание |
|
|
|
|
|
| - соревнование | +12 | +10 +15 | -4 | 70 | 4...8/зритель |
| Другое | +18 | +18 | - | - | 8/человек |
6.2.1. Зданияспортивных залов и крытых катков оборудуются системами хозяйственно-питьевого ипротивопожарного водопровода и канализации, присоединяемыми к наружным сетямнаселенного пункта или к собственному водозаборному узлу. В неканализированныхрайонах предусматриваются местные очистные сооружения, состав которых и степеньочистки согласовываются с местными органами санитарного надзора. Вода дляхозяйственно-питьевых и технологических нужд в зданиях спортивных залов икатков должна удовлетворять требованиям СНиП 2.04.01.
6.2.2. Горячееводоснабжение предусматривается для обеспечения хозяйственно-бытовых итехнологических нужд. Для сокращения потребления тепла на нужды горячеговодоснабжения объектов, расположенных в районах с большой солнечной активностью,рекомендуется предусматривать устройство солнечных аккумуляторов, рассчитываяих на максимальный расход горячей воды. Горячая вода должна соответствоватьтребованиям СП 4723.
6.2.3. Подводкагорячей воды предусматривается к душевым, кабинету врача, комнатам медицинскойсестры и для оказания первой медицинской помощи, помещениям блока водныхпроцедур медико-восстановительного центра, массажным, бытовым помещениям длярабочих, раздевальням для занимающихся, комнатам инструкторского и тренерскогосостава, умывальным при санитарных узлах для зрителей, помещениям дляуборочного инвентаря, а также к другим помещениям в соответствии стехнологическим заданием.
На технологические нуждыгорячая вода подается для подготовки поверхности льда катков, для буфетов, дляускорения таяния льда в каналах у охлаждающей плиты спортивно-демонстрационныхи спортивно-зрелищных крытых катков (в ночное время) и в приямках для ледянойстружки в помещениях для стояния машин по уходу за льдом, а при устройствеконтрастной ванны в бане сухого жара - для ее заполнения.
6.2.4. Устройствовнутреннего хозяйственно-питьевого и противопожарного водопровода и нормырасхода воды в сутки и в часы максимального водопотребления, а также устройствоканализации должны отвечать требованиям СНиП 2.04.01 сдополнительным учетом водопотребления на хозяйственно-питьевые нужды и натехнологические нужды, приведенного в таблице 6.3.
Таблица 6.3
| Потребитель | Расход воды в сутки, л | Режим потребления | Примечания |
| Создание ледяного покрытия катков на 1 м2 поверхности: |
|
|
|
| первоначальная заливка и наращивание слоя льда до расчетной толщины (5 см) | 50 | Равномерно в течение 12 ч | Холодная вода |
| подготовка поверхности льда* | 0,5 | 5 раз в 1 сутки | Горячая вода |
* Рекомендуетсяиспользование воды с малой жесткостью - 0,5-1,0 мг-экв/л.
6.2.5. При подсчетемаксимальных часовых расходов воды занимающимися рекомендуется приниматьукрупненные показатели (учитывающие технологию водопотребления и продолжительностьсмены), определяемые по формуле:
Qобщ. (гор) = (9 сут. общ. (гор) × n)/Т, где:
Qобщ. (гор) - часовойрасход (общий или горячей воды);
9 сут. общ. (гор) - суточныйрасход (общий или горячей воды);
n - число занимающихсяв 1 смену;
Т - продолжительность смены вчасах (при продолжительности смены менее 1 ч Т принимается равной 1).
Максимальное секундноеводопотребление принимается исходя из одновременной работы всех сеток в душевыхпри раздевальных.
Максимальный секундный сбросводы в канализацию принимается равным секундному водопотреблению при еговеличине более 8 л/с, а при меньшем водопотреблении к нему прибавляетсямаксимальный расход одним прибором.
6.2.6. Водообмен вконтрастных ваннах бань сухого жара предусматривается, как правило, снепрерывным протоком свежей воды (с дезинфекцией и подогревом); при этомпродолжительность полного водообмена принимается не более 8 ч. Водообменметодом периодических наполнений и опорожнений ванны не допускается.
Температура воды в этихваннах принимается в пределах до 20°С.
6.2.7. Приустройстве автоматического водяного пожаротушения следует руководствоватьсятребованиями НПБ88 и НПБ110, относя помещения спортивных корпусов к I группе по степени опасности развития пожара.
6.2.8. Расчетныйрасход воды на наружное пожаротушение для зданий залов крытых катковпринимается в соответствии с требованиями СНиП 2.04.02.
При проектировании крытыхзалов катков с объемом зданий свыше указанных в табл. 6 СНиП 2.04.02 расход водына наружное пожаротушение согласовывается с органами пожарной охраны иуправлениями водопроводного хозяйства на стадии отвода земельного участка подстроительство.
6.2.9. Всанитарных узлах и душевых с количеством приборов свыше трех (унитазов,писсуаров или душевых сеток соответственно) предусматривается установкаполивочных кранов диаметром 20 мм с подводкой холодной и горячей воды, а такжеустанавливаются трапы для отвода стоков диаметром 100 мм.
6.2.10. В душевыхпри раздевальных для занимающихся трапы для отвода стоков диаметром 100 ммустраиваются из расчета один трап не более чем на 3 сетки. В душевых прикомнатах инструкторского и тренерского состава и при бытовых помещениях длярабочих рекомендуется устанавливать душевые поддоны.
6.2.11. Поливочныекраны диаметром 50 мм с подводкой холодной и горячей воды устанавливаются впомещении для машин по уходу за льдом. По периметру ледяного поля, исходя израдиуса обслуживания не более 30 м, устанавливаются поливочные краны диаметром50 мм с подводкой холодной воды. Вода от таяния льда и снежной стружки приотсутствии наружной дождевой канализации отводится в бытовую канализацию.
6.2.12. В уборныхдля занимающихся и зрителей устанавливаются напольные керамические унитазы илинапольные чаши со смывным краном.
6.3.1.Искусственное освещение предусматривается во всех помещениях и на участкахтерриторий сооружений катков, предназначаемых для прохода людей и движениятранспорта. При проектировании электрооборудования сооружений катков необходиморуководствоваться требованиями СНиП 23-05, СНиП 3.05.06, СП31-110, ВСН-1-73 и другими нормативными документами.
6.3.2. Уровеньосвещенности залов крытых катков в зависимости от назначения по виду (видам)спорта должен приниматься в соответствии с Нормами электрического освещенияспортивных сооружений (ВСН-1-73) по таблице 6.4.
Таблица 6.4.
Требования различных видов спорта косвещению
| Виды спорта | Горизонтальное освещение | Равномерность освещения | ||
| Тренировка | Соревнование | Тренировка | Соревнование | |
| Бег на коньках | 200 | 500 | 1 :2 | 1:1,4 |
| Хоккей с шайбой | 5001) | 500 до 7502) | 1:2 | 1:1,4 |
| Катание на коньках | 1003) | 1:3 | ||
| При телепередачах вертикальная освещенность Еверт. на высоте 1 м: от 800 лк до 1400 лк (при цифровом телевидении Еверт. в сторону главной телекамеры - 2000 лк). При этом на трибунах должна быть предусмотрена вертикальная освещенность от 30 % Еверт.норм. - на передних рядах до 10 % Еверт.норм. - на верхних рядах). | ||||
1) При тренировках бега на коньках - 200 лк.
2) Длясоревнований высшего уровня.
3) Уровень горизонтальной освещенности может быть уменьшен до50 лк.
6.3.3. При проектированииосветительной установки, обеспечивающей уровни освещенности, требующиеся дляпроведения цветных телепередач, необходимо из общего числа светильниковвыделять приборы, обеспечивающие нормируемые уровни освещенности,предусмотренные в таблице 6.5. Управление этими приборами предусматриваетсяотдельно от остальных приборов осветительной установки.
Таблица 6.5
| Освещаемый объект | Наименьшая освещенность, лк | Плоскость или зона, в которой нормируется освещенность |
| 1. Спортивная арена (фигурное катание, хоккей с шайбой, шорт-трек, конькобежные дорожки) | 1000 | Вертикальная, на высоте 1 м в направлении главной телевизионной камеры |
| 2. Трибуна | 50 | Горизонтальная освещенность на зрительских местах |
6.3.4. Коэффициент запаса осветительных установокпринимается 1,5 (для телевизионного освещения - 1,25). Источники светапринимаются со сплошным или близким к сплошному спектром излучения с цветовойтемпературой, как правило, 5600-6000К. Отношение горизонтальной освещенностиспортивной арены к вертикальной принимается не более 3:1.
6.3.5. Неравномерностьосвещенности трибуны (с плавным переходом от одного уровня к другому)допускается не св. 1:3 (в сторону снижения от приведенного в таблице).Освещенность зон показа зрителей на трибуне крупным планом принимаетсяувеличенной до 750 лк. Эти зоны определяются заданием на проектирование впределах до 20 % площади трибуны.
6.3.6. Электроприемникиспортивных сооружений по надежности электроснабжения относятся к следующимкатегориям.
В спортивных залах и каткахбез мест для зрителей или при их числе менее 300:
- при числезанимающихся 120 чел. и менее в смену все электроприемники III категории;
- при числезанимающихся более 120 чел/смену светильники аварийного и эвакуационногоосвещения, электродвигатели пожарных насосов, автоматическая пожарнаясигнализация и система дымоудаления II категории;
- остальныеэлектроприемники - III категории.
В спортивных залах и катках,предназначаемых только для занятий с детьми, светильники аварийного иэвакуационного освещения, электродвигатели пожарных насосов, автоматическаяпожарная сигнализация и система дымоудаления - I категории.
Надежность электроснабженияэлектроприемников крытых спортивных сооружений с числом мест для зрителей 300 иболее определяется согласно главе VII-2 ПУЭ.
6.3.7. Уровень среднейгоризонтальной освещенности трибун для зрителей принимается 50 лк. Дляосвещения спортивных залов и крытых катков, как правило, применяютсягазоразрядные лампы; при этом коэффициент пульсации освещенности принимаетсяравным 10 %. При необходимости плавного регулирования светового потока, а такжев случаях невозможности или технико-экономической нецелесообразности применениягазоразрядных источников света допускаются, а при уровнях освещенности менее 30лк используются, как правило, лампы накаливания.
В зданиях спортивныхсооружений в соответствии с требованиями норм предусматривается эвакуационноеосвещение.
6.3.8. Для ограниченияслепящего действия светильников при освещении зальных помещений показательослеплённости принимается не более 60.
При применении газоразрядныхисточников света допускается управление освещением осуществлять тремя-четырьмяступенями.
6.3.9. В зданияхзалов крытых катков предусматриваются:
- радиофикация отрадиотрансляционной сети населенного пункта;
- телефонизация отАТС населенного пункта;
-электрочасификация (при установке не менее десяти электровторичных часов).
6.3.10. Припроектировании залов катков необходимо предусматривать обеспечениеосветительной установкой всех режимов освещения в соответствии с нормамиосвещенности. Предусматривается также специальное освещение эстрады,обеспечивающее технологические требования проводимых на эстраде зрелищныхмероприятий. Управление освещением универсальных спортивных залов или катковпредусматривает включение осветительных установок в соответствии странсформацией зала (катка).
6.3.11. Наспортивных сооружениях, предназначаемых для соревнований республиканского иболее высокого масштаба, как правило, дополнительно предусматриваютсяоперативно-служебная телефонная связь между помещениями судейской коллегии иместами нахождения отдельных судейских бригад, а также с помещением дежурногомедицинского персонала; установка информационной и регистрирующей аппаратуры;местная АТС для связи между отдельными помещениями; радио- и телевизионныепередачи со спортивного сооружения. В устройствах связи и сигнализацииприменяются оборудование и материалы серийного производства, соответствующиетребованиям ГОСТов или технических условий.
6.3.12. Приэстрадных выступлениях и балете на льду рекомендуется иметь системы,обеспечивающие:
- оперативнуюсвязь помощника режиссера с персоналом, обслуживающим эти выступления(осветители, дирижер и т. д.);
- трансляцию сэстрады в артистические;
- вызов помощникомрежиссера артистов на эстраду.
Предусматриваемая системазвукоусиления предназначается для обеспечения необходимым уровнем громкостизрителей на трибунах и спортсменов, находящихся на арене. С учетом шума трибунноминальный уровень громкости повышают на 10-15 дБ. Громкоговорители (звуковыеколонки) для систем звукоусиления устанавливаются вдоль трибун, на низкихопорах так, чтобы они не мешали зрителям следить за ходом соревнований.
6.3.13. Впомещениях хореографических классов предусматривается звуковая подачаинформации и звуковоспроизведение музыки для занимающихся.
В раздевальных длязанимающихся устанавливаются звуковые колонки небольшой мощности (2 Вт) дляоповещения о ходе соревновании и своевременного вызова. При звукоусилении в многофункциональныхи спортивно-демонстрационных залах катков громкоговорители, объединяемые вотдельные группы, устанавливаются на ходовых мостиках, каждая группаобеспечивает звукоусиление той или иной программы (эстрадные выступления, балетна льду, хоккей, фигурное катание и т. д.). Конструкция креплениягромкоговорителей в зальных помещениях предусматривается обеспечивающей поворотих в двух плоскостях (вертикальной и горизонтальной), что необходимо принастройке системы звукоусиления. При эстрадных выступлениях для подключениявыносных громкоговорителей, устанавливаемых на эстраде, предусматриваютсякоробки с разъемами. Месторасположение шкафов и коробок с разъемами дляподключения микрофонов в зальном помещении определяется в зависимости от ихназначения (эстрадные выступления, спортивные соревнования, балет на льду).
6.3.14. Если взданиях согласно СНиП3.05.06 требуется устройство молниезащиты, то вводные трубостойкипроводного вещания, располагаемые на кровле, подсоединяются к молниезащитнойсетке. Если молниезащита отсутствует, то трубостойки заземляются насамостоятельный контур.
6.3.15. Аппаратнаясистемы звукоусиления в залах крытых катков располагается так, чтобы из нееобеспечивалась при спортивных соревнованиях прямая видимость всей арены, а призрелищных мероприятиях - эстрады или ледяной площадки балета на льду. Площадьзвукоаппаратной в спортивно-демонстрационных и многофункциональных залах катковрекомендуется принимать 25-30 м2 , а окно в зальное помещение (сраздвижным стеклами) размером 2,5×0,8 м; в других залах и катках сместами для зрителей площадь звукоаппаратной рекомендуется принимать 10-12 м2, а размер окна - не менее 1,5×0,8 м.
Для прокладки проводов икабелей по периметру аппаратной звукоусиления предусматривается подпольныйканал. Размер канала определяется количеством кабелей и проводов,прокладываемых в нем.
6.3.16. Вспортивных залах и катках, оборудованных светоинформационным табло,предусматриваются помещение для размещения силового оборудования и аппаратнаядатчиков табло. Помещение с силовым электрооборудованием располагается какможно ближе к светоинформационному табло, а его размеры определяются взависимости от принятого типа табло. Аппаратная датчиков табло располагаетсятак, чтобы из нее была обеспечена видимость табло, а ее площадь принимается неменее 14 м2.
6.4.1. Акустика в залах следовым покрытием - время послезвучая в верхней части помещения от 500 Гц недолжно превышать 6 сек. Время послезвучая следует доводить до 4 сек. Это можетбыть достигнуто специальным акустическим покрытием помещения.
Для спортивных залов и катковрекомендуется принимать, как правило, средние показатели зоны, но не вышеверхней границы, являющейся предельно допустимой.
На частотах ниже 500 Гц времяреверберации допускается увеличивать на 15-20 %.
Уровень звука от внешнихисточников (в том числе от работы систем санитарно-технического и инженерногооборудования), проникающего в эти помещения, рекомендуется принимать по таблице6.6.
6.4.2. Для предотвращениявлияния внешних источников шума помещение для отдыха спортсменов изанимающихся, тренерские и помещения судей, помещения медицинскогообслуживания, дикторские и комментаторские кабины рекомендуется располагать наудалении от помещений вентиляционных камер, машинных залов кондиционеров,насосных и других источников шума.
В залах крытых катков дляучебно-тренировочных занятий, а также спортивно-демонстрационных имногофункциональных залах катков устройство звукопоглощающих потолковрекомендуется независимо от акустического расчета.
Таблица 6.6
| Помещения | Уровень звукового давления, дБ, при среднегеометрической частоте октавных полос, Гц | Уровень звука, ДБА | |||||||
| 63 | 125 | 250 | 500 | 1000 | 2000 | 4000 | 8000 | ||
| Спортивные залы крытых катков и хореографические классы | 71 | 61 | 54 | 49 | 45 | 42 | 40 | 38 | 50 |
6.4.3.При проектировании зальных помещений с выпуклыми (купольными, сводчатыми,арочными) покрытиями для избежания концентрации звуковой «энергии» ифокусировки звука рекомендуется, чтобы радиус кривизны не менее чем в два разабыл больше высоты помещения.
В зальных помещениях без местдля зрителей независимо от формы покрытия при отношении длины помещения к еговысоте, равном 5 и менее, акустические устройства могут не предусматриваться.
6.4.4. В спортивно-демонстрационныхи многофункциональных залах катков предусматривать кинопоказ, как правило, нерекомендуется. При необходимости предусматривать коммерческий кинопоказпланировочное решение и интерьер зала должны проектироваться с учетомакустических требований, а разработка акустических мероприятий должнаосуществляться специалистом-акустиком.
6.4.5. Для защитымягкой фактуры звукопоглощающих материалов от механического поврежденияприменяются акустически прозрачные экраны (перфорированные плиты, отверстия вкоторых составляют не менее 20 % поверхности, металлические сетки с ячейками5×5 см и др.).
6.4.6.Звукопоглощающие материалы, рекомендуемые для применения в качествеакустических облицовок, приведены в таблице 6.7.
Таблица 6.7
| Материал | Плотность, кг/м3 |
| Супертонкое щелочное стекловолокно | 15-20 |
| Ультратонкое и супертонкое щелочное стекловолокно | 8-10 |
| Супертонкое штапельное базальтовое волокно | 20-25 |
| Холст СТВ | 8-10 |
7.1. При проектированиизданий и сооружений, включающих помещения физкультурно-спортивных залов,следует обеспечивать безопасность занимающихся с учетом применяемыхстроительных конструкций и материалов, объемно-планировочных решений зданий,состава и назначения дополнительных групп помещений и т.д. Для этого следуетучитывать требования СНиП 21-01, СНиП 2.08.02, ГОСТ12.1.004.
Не допускается проектироватьздания IV и V степеней огнестойкости для занятий инвалидов.
Параметры путей эвакуациизданий физкультурно-оздоровительных учреждений должны соответствоватьтребованиям, изложенным в СНиП 21-01, СНиП35-01 и СНиП2.08.02.
7.2 Площадьфизкультурно-спортивных залов должна соответствовать параметрам, указанным втаблице 1 п. 1.14*СНиП 2.08.02. Если площадь залапревышает установленную в таблице 1, то между зальным и другими помещениямиследует предусматривать противопожарные стены или перегородки 1-го типа инеобходимо иметь не менее двух эвакуационных выходов.
При применениитрансформируемых перегородок в зальных помещениях следует предусматриватьэвакуационные выходы из каждой разделяемой части.
7.3 Степеньогнестойкости зданий с физкультурно-спортивными помещениями не должна быть нижестепени огнестойкости здания, к которому они пристраиваются.
При размещении сооруженийфизкультурно-оздоровительных учреждений в блоках, пристраиваемых кобщеобразовательным школам, необходимо отделить их функционально, а такжепротивопожарными перегородками 1-го типа и перекрытиями 3-го типа. Заполнениепроемов в противопожарных преградах выполняется в соответствии с требованиями СНиП 21-01и СНиП 2.08.02.
7.4. Конструкции иматериалы покрытия пола спортзала должны соответствовать пожарно-техническимхарактеристикам п. 6.25*СНиП 21-01:
для зала без зрителей -аналогично покрытию пола в общих коридорах и холлах - В2, РП2, Д2, Т2;
для зала, где занимаютсяинвалиды или есть зрители, - аналогично покрытию пола в вестибюле - Г2, РП2,Д2, Т2.
7.5. Материалы дляобшивки (в том числе акустической) стен и потолков в зальных помещенияхфизкультурно-спортивного назначения следует принимать со следующимипожарно-техническими характеристиками:
- каркас для подвесныхпотолков - НГ;
- обрешетка иликаркас стен - Г2*;
- облицовка стен ипотолков - Г3.
7.6. В отделкестен и потолков помещений для физкультурно-оздоровительных занятий инвалидов, атакже помещений, где могут находиться дети, следует применять материалы соследующими пожарно-техническими характеристиками: П, В1, Д2 и Т2.
7.7. Системасредств оповещения об опасности должна быть комплексной и соответствовать СНиП35-01, НПБ104.
Блок зрительских мест - группа мест, с которых зрителиэвакуируются по общему проходу в одном направлении и с одинаковым на всемпротяжении прохода видом пути (горизонтальный, пандус, лестницы вниз иливверх).
Вспомогательные помещения -помещения,предназначаемые для обслуживания занимающихся, зрителей, а также необходимыедля обеспечения эксплуатации сооружения.
Каток с искусственнымльдом -сооружение, включающее горизонтальную (ые) плоскость (ти), имеющую (ие)искусственное ледяное покрытие и различные вспомогательные, бытовые иадминистративные помещения, а также, во многих случаях, трибуны для зрителей.
Ледовое поле - горизонтальная плоскость, имеющаяискусственное ледяное покрытие различных размеров.
Ледовая площадка - площадка, представляющая собой ледовоеполе, размеры которого определяются заданными функциональными процессами.
Люк - проем в гребенке трибуны, предназначаемыйдля входа зрителей на трибуну и выхода с нее, а также для связи вспомогательныхпомещений, размещаемых в подтрибунном пространстве, с трибуной и ареной.
Многофункциональныесооружения катков - сооружения (здания) размеры, архитектурные и конструктивныерешения которых позволяют проводить мероприятия различного функциональногоназначения, включая эстрадные концерты и различные общественные мероприятия, стрибунами для зрителей.
Основные помещения - помещения, предназначаемые длянепосредственного проведения в них учебно-тренировочных занятий илисоревнований.
Площадки (поле) для игры - часть пола зала (арены) для того илииного вида спортивных соревнований, ограниченная наружными линиями разметки.
Размер арены длясоревнований - габариты зоны, включающие игровое поле или беговую дорожку, зонубезопасности и обходное пространство первого ряда кресел.
Размер игрового поля - ледовая площадка в границах разметки дляпроведения соревнований и тренировок. Толщина размеченных граничных линий можетвходить в габариты площадки (уточняется по каждому виду спортивныхмероприятий).
Специализированныйспортивный каток - каток, предназначаемый для учебно-тренировочных занятий и (или)соревнований по одному из видов спорта.
Спортивно-демонстрационныйкаток -сооружение (здание), предназначенное для проведения спортивных соревнований илипо одному виду спорта (специализированный), или для нескольких различных видов(универсальный), с трибунами для зрителей.
Учебно-тренировочный каток- сооружение(здание), предназначенное для проведения тренировочных занятий (тренировок) поодному или нескольким видам спорта, без трибуны или с трибунами (как правило,трансформируемыми) для специалистов и небольшого числа учащихся и зрителей.
Универсальный спортивный залкатка - каток, предназначаемый для попеременныхзанятий и (или) соревнований по различным видам спорта.
| Зоны (участки) | Размеры, площади | Примечания, дополнительные требования или рекомендации |
| Пункты въезда и выезда транспортных средств (со стороны служебных входов): |
| По периметру территории или в зонах досмотра |
| пункты въезда/выезда спортсменов | 6 м2 | Ширина ворот - 6 м |
| пункты въезда/выезда для экстренных служб | То же | То же |
| пункты въезда/выезда для телевидения | То же | То же |
| пункты въезда/выезда для разгрузки/погрузки | То же | То же |
| КПП для проверки пропусков на транспортные средства | По заданию на проектирование | С внешней стороны периметра территории объекта |
| КПП для посетителей с билетами или имеющих аккредитацию, в том числе: | То же | На территории объекта. Оборудуются металлоискателями, столами для вещей, сканерами |
| зона (зоны) проверки билетов - после металлоискателей перед входом в сооружение | 3-9 м2 каждая зона | На территории участка объекта на расстоянии 12 м от металлоискателей на 2 м вглубь |
| для спортсменов, в т.ч. команд | Не менее 18 м2 |
|
| для технических делегатов и судей | То же | Возможно совмещение со входом для спортсменов и членов «Олимпийской семьи» |
| для членов «олимпийской семьи» | То же | Возможно совмещение со входом для СМИ |
| для телевидения | То же | Крытый КПП; прямой проход к зоне ТВ |
| для журналистов и фотографов | То же | Желательно устройство отдельного входа вблизи зоны прессы и медиа-центра |
| для рабочих и служащих | То же |
|
| для зрителей и спонсоров | То же | Из расчёта один КПП на 10000 посетителей |
| уборные в зоне КПП | 1 кабина на 2 000 посетителей | По внешнему периметру ограждения объекта |
| специальный КПП для аккредитованного контингента | По заданию на проектирование | Вблизи с основным КПП для зрителей |
| зона специального устройства для сканирования вещей (сумок, оборудования), вносимых на территорию объекта | Не менее 50 м2 | Размещение - по условиям планировочного решения |
| Зона досмотра транспортных средств: | 600-800 м2 | На максимальном расстоянии от спортивных сооружений |
| участок очереди на досмотр | 180 м2 |
|
| резервный участок очереди на досмотр (для большегрузных машин) | 140 м2 |
|
| пропускной пункт | 150 м2 | Оборудуется сканерами |
| участок пропускного пункта для грузовиков | 70 м2 |
|
| платформы досмотра | 1,2×1,2 м, высотой 4 м каждая | Количество - по заданию на проектирование |
| офис сотрудников зоны досмотра | 15 м2 |
|
| уборные | 3 м2 |
|
| Выходы для пеших посетителей с территории объекта к парковкам транспортных средств и остановкам общественного транспорта: |
|
|
| для аккредитованного контингента | Ширина выходов 1-3 м | Размещение - в каждой зоне досмотра. Могут использоваться как дополнительный выезд для служебных транспортных средств |
| для зрителей | 6 м2; ширина выходов 6 м | Размещение - по направлению к остановкам общественного транспорта |
| для рабочих и служащих | По заданию на проектирование | Размещение - на выходе из рабочей зоны |
| Управление транспортом: |
|
|
| офис менеджера | 25-50 м2 | За периметром участка объекта. Возможно использование мобильных помещений |
| зона отдыха водителей | 80-150 м2 | То же |
| уборные для сотрудников транспортного отдела | По заданию на проектирование | То же |
| Двор для хранения дорожного инвентаря и оборудования | Не менее 20 м2 | Может размещаться на территории зоны логистики |
| Зона (зоны) посадки/высадки посетителей: | Количество зон - по заданию на проектирование | Вблизи входов для зрителей |
| для спортсменов индивидуальных видов | 170 м2 (каждая) | Не включая зону разворота транспортных средств |
| для спортивных команд | 100 м2 (каждая) | То же |
| для «олимпийской семьи» | 50 м2 (каждая) | То же |
| для представителей СМИ | 170 м2 (каждая) | То же |
| для зрителей и служащих | 120 м2 (каждая) | То же |
| для спонсоров | 120 м2 (каждая) | То же |
| Парковки для транспортных средств аккредитованных групп посетителей: |
| На территории охраняемых участков объекта; вблизи аккредитованных зон |
| для членов «олимпийской семьи» | 32 м2 (каждая) |
|
| для телевидения | 32 м2 (каждая) |
|
| для прессы | 32 м2 (каждая) | |
| для службы безопасности | 32 м2 (каждая) | В данной зоне может предусматриваться парковка машин VIP-персон |
| для экстренных служб | 50 м2 (каждая) | |
| Зона управления участком (техническое обслуживание сооружений, обеспечение технической безопасности): |
| Размещение - на территории объекта, частично в крытых помещениях; удобный доступ в различные зоны. Возможно совмещение с зоной логистики |
| рабочая зона | 60 м2 | Помещение |
| кабинет менеджера и его ассистента | 12 м2 | То же |
| кабинет администратора (с хранением документации, ключей и т.д.) | 12 м2 | То же |
| ожидальная (для дежурных сотрудников, ожидающих вызова на работы) | 24 м2 | То же |
| кладовая | 12 м2 | То же |
| рабочая зона строительного отдела (место совещаний, офис, переговорная) | 30 м2 | Возможно использование мобильного сооружения |
| кладовая для хранения материалов и инструмента | 50 м2 | То же |
| склад/рабочий участок (хранение материалов для мелких работ в интерьере, проведение некоторых мелких работ) | 80 м2 | Крытое помещение |
| контейнерная площадка | 60 м2 | То же |
| зона (участок) погрузки/выгрузки тяжёлых стройматериалов | 50 м2 | Открытая площадка |
| двор для хранения крупногабаритных элементов конструкций и материалов | 50 м2 | То же |
| парковка для специальной мобильной техники | 90 м2 | То же |
| уборные для сотрудников строительного отдела | 3 м2 | На территории хозяйственной зоны |
| кладовая крупногабаритных электроматериалов | 18 м2 | Возможно размещение в зоне логистики |
| кладовая электрического инвентаря и запасных частей к нему | 9-12 м2 |
|
| Зона уборки и удаления мусора: |
| В хозяйственной зоне с удобным доступом во все остальные зоны |
| парковка для мусороуборочных машин | 70 м2 |
|
| зона сортировки мусора | 70 м2 |
|
| зона мусорных контейнеров | 60 м2 | Дополнительные контейнеры размещаются в зонах логистики, кухни, телевидения |
| накопитель | 25 м2 | Для случаев редкой уборки мусора |
| инвентарная кладовая | 15-30 м2 | Возможно использование передвижного помещения |
| офис | 18 м2 |
|
| Зона логистики (оперативной диспетчеризации перевозки грузов, погрузочно-разгрузочных операций, движения специальных транспортных средств): |
| В составе хозяйственной зоны с удобным доступом в остальные зоны |
| логистический центр | | Возможно использование мобильного помещения |
| «кабинет менеджера и его ассистента | |
|
| рабочая зона персонала | |
|
| кладовая инструмента | |
|
| склад оборудования, мебели, крупногабаритных приборов и т.п. | |
|
| двор для хранения оборудования | |
|
| зона для парковки, движения и разворота транспортных средств | | Открытая площадка. Разгрузка |
| автозаправочные точки | |
|
| площадки для мусорных контейнеров | |
|
| уборные для персонала службы логистики | |
|
| зона временного хранения грузов | |
|
| зона досмотра транспортных средств | | Площадка под тентом |
| Парковка (парковки) для машин скорой помощи | | В удобной связи с пунктами медицинской помощи и выездом с территории объекта |
| Вертолётная площадка | |
|
Примечание.
Состав и параметры функциональных зонтерритории объекта учитывают требования к сооружениям, предназначаемым длясоревнований высшего уровня, включая Олимпийские игры. Состав и размерыучастков объектов более низкого соревновательного уровня, вплоть до массовыхучебно-тренировочных занятий, определяются заданием на проектирование, исходяиз местных условий.
Арена
Борт с плексигласом
Страховочные сетки
Водяной шланг(и)
Машина для заливки льда
Станок для обработки края
Оскрёбщик снега
Тележка для инструментов
Инструменты (сверлильныйстанок, ключи для труб, разводные ключи, отвертки и пр.)
Ворота (4 шт.)
Подъемник (для замены ламп)
Таймер + табло
Часы
Звуковоспроизводящая система
Носилки + аптечка первойпомощи
Скамейки (для игроков,штрафников, оштрафованных на время)
Покрытия на лед (длянеледовых мероприятий)
Резиновые маты
Раздевалка со шкафчиками
Скамейки
Шкафчики/крючки для одеждыили вешалки
Стойки для клюшек
Зеркала
Мусорные корзины
Резиновые маты
Служба общественногокатания
Прокатные коньки + стеллажи
Шкафчики
Вешалки
Резиновые маты
Станок для заточки лезвий
Служба уборки
Щетки
Половые швабры
Очиститель высокого давления
Пылесос
Машина для мытья полов
Машина для натирки полов
Стиральная машина
Кафетерий
Духовка
Холодильник с морозильнойкамерой
Микроволновая печь
Прилавок
Столы
Стулья
Наборы посуды (тарелки,вилки, ложки и пр.)
1. Искусственное покрытие -силиконовый лёд является дополнением к традиционному ледовому покрытию.Благодаря очень низким эксплуатационным расходам и высокой рентабельностисиликоновый лёд, в основном, используется для коммерческих целей в торговыхкомплексах, развлекательных центрах, спорткомплексах и т.п. Силиконовый лёд вотличие от настоящего льда никогда не бывает мокрым или холодным. То, чтосиликоновый лёд по техническим параметрам на 10% медленнее настоящего, делаетего идеальным покрытием для начинающих фигуристов и хоккеистов. Данное качествольда вынуждает хоккеистов и фигуристов прикладывать немного больше усилий впроцессе тренировок, что положительно сказывается на их физической подготовке.Силиконовый лёд может быть применён для следующих занятий:
- любительскийхоккей (тренировки и матчи);
-полупрофессиональный хоккей (тренировки);
- фигурное катание(любительский уровень);
- кёрлинг(любительский уровень);
- любительскоекатание.
Преимущества силиконовогольда проявляются при проектировании физкультурно-оздоровительных центров, вкоторых заложена идея невысоких капитальных вложений и минимальныхэксплуатационных затрат.
2. Силиконовый лёдсобирается из панелей многослойной влагостойкой высококачественной фанеры,покрытой с двух сторон скользким полиэтиленовым слоем толщиной
Габариты панелей -122×122 см, толщина панелей -
3. Для подготовки идальнейшей эксплуатации поверхности силиконового льда используют:
- шлифовальнуюмашину, укомплектованную навесным пылесосом;
- отдельныйпылесос для сбора с поверхности синтетического льда пыли стружки,образовавшейся в процессе ежедневной эксплуатации;
- резиновыйскребок для нанесения силикона на поверхность «синтетического льда».
Рекомендуемаядлина резинового скребка -
4. Сравнительные характеристики традиционного и силиконового льдаприведены в таблице ниже.
| Характеристики | Традиционный лёд | Силиконовый лёд |
| Основание | Бетонное основание с каналами для охлаждающей жидкости | Бетонное основание |
| Холодильные установки | 2 холодильные установки с периферийным оборудованием | Не требуется |
| Обслуживание | 1-2 квалифицированных техника на полный рабочий день | 1 уборщица на 2 часа в день |
| Уход за поверхностью | Ежедневный и квалифицированный | Минимальный |
| Тех. остановки катания для обслуживания | Регулярные | 1 раз в день |
| Специальное оборудование | Заливочная машина с водителем | Пылесос и шлифовальная машина, компрессор |
| Потребление воды | | Не требуется |
| Подогрев воды | Регулярно и дорого | Не требуется |
| Эксплуатационные расходы (холодильные установки, установки для осушения воздуха. Без учёта освещения) | Энергоснабжение не менее 1000 кВт/час в месяц | |
| Ожидаемый срок эксплуатации | 10-15 лет | 20-25 лет |
| Скольжение: | 100 % | 90% |
| после подготовки льда | 85 % | 90% |
| через 1 час катания, через 2 часа катания | 80 % | 90% |
| Коммерческое использование времени | 50-60 % | 100% |
5. Длятрансформации спортивных площадей и защиты уже имеющихся покрытий целесообразноприменять универсальный изолирующий композиционный материал покрытия типа Ice Comfort, особенно в ледовых дворцах длятрансформации ледового покрытия, без его предварительной разморозки, в площадкудля проведения выставок, театрально-зрелищных мероприятий и увеличенияколичества мест для зрителей.
6. Покрытие составляется излистов, имеющих размеры 1000×1000×24 мм или 950×950×24мм при весе
Для хранения
1 - сооружения с искусственным льдом; 2 - открытые; 3 - полуоткрытые; 4 - трансформируемые; 5 - крытые; 6 - тренировочные; 7 - демонстрационные; 8 - универсальные; 9 - специализированные; 10 -спортивно-зрелищные; 11 -спортивные; 12 -соревнования и тренировки с использованием льда; 13 - соревнования с использованием льда; 14 - соревнования без использования льда; 15 - культурно-массовые мероприятия с использованием льда; 16 - культурно-массовые мероприятия без использования льда; 17 - массовое катание; 18 - скоростной бег; 19 - фигурное катание; 20 -хоккей; 21 -хоккей с мячом.
Рис. 3.1 Типологическиеразновидности ледовых сооружений

КД - конькобежная дорожка; 1 - трибуна для зрителей; 2 - входная группа, вестибюль, фойе для зрителей, буфеты для зрителей; 3 - раздевальные для спортсменов; 4 - помещение для пресс-центра; 5, 6- ложи прессы и почетных гостей; 7 - помещение для судей; 8 - помещение для обслуживания занимающихся массовым катанием; 9 - помещения для инструктора и тренеров; 10 - помещение для сушки одежды и обуви; 11 - медицинские помещения; 12 - массажная и баня сухого пара; 13 - стоянка машин по уходу за льдом; 14 - бытовые помещения для рабочих; 15 - хладоцентр; 16 -зал 36×18 м для учебно-тренировочной работы; 17 - зал с тренажерами; 18 - администрация; 19 -буфет для спортсменов; 20 - помещение для отдыха спортсменов; 21 - методический кабинет; 22 -вестибюль для спортсменов; 23 - гардероб для спортсменов; 24 - буфет для спортсменов и сотрудников; 25 - технические помещения; 26 -пожарный пост.
Рис. 3.2Функционально-планировочная схема сооружения с конькобежной дорожкой
1 - зона безопасности; 2 - разминочная дорожка; 3 - направление гонки; 4 - старт на 500 и
R1 - расчетные радиусы беговых дорожек.
Рис. 3.3 Арена для скоростногобега на коньках
1 - старт дистанции на
R1 - расчетные радиусы беговых дорожек.
Рис. 3.4 Обустройство дорожки длиной
1 - внутренняя соревновательная дорожка (ширина
Рис. 3.5 Арены для скоростногобега на коньках
1 - соломенные маты;2 - металлическое ограждение; 3 - забор; 4 - свободная от препятствий зона; 5 -нейтральная зона шириной не менее
Рис. 3.6 Ограничительные барьеры ледовых дорожек
Рис. 3.7 Площадка для хоккея с шайбой
1 - скамьи дляучастников соревнований; 2 - скамьи для оштрафованных игроков; 3 - столсекретариата; 4 - места судей за воротами; 5 - борт высотой 1170-
Рис. 3.8 Арена для игры в хоккей с шайбой
1 - прочное ограждение площадки, покрытое с внутренней стороны эластичными матами для омортизации удара упавшего спортсмена; 2 - расчетная внутренняя ограничительная линия дорожки для бега (длина
Примечание: Стартовые и финишные линии - цветные шириной не более
Рис. 3.9 Площадка длясоревнований по шорт-треку
Рис. 3.10 Площадка для игры в кёрлинг

1 - линия ворот*; 2 -средняя линия*; 3 - боковая линия*; 4 - центральный круг*;5 - отметка 12-метрового удара; 6 - точка штрафного удара; 7 - центральнаяотметка; 8 - ворота; 9 - съемный бортик для перехвата мячей; 10 - местоуглового флага; 11 - место флага средней линии; 12 - граница ледовойповерхности; 13 - зона безопасности; 14 - стол судьи-секретаря; 15 - местаудаленных игроков; 16 - места запасных игроков; 17 - зона зрительских мест.
* Линии синего цвета шириной
Рис. 3.11 Поле для хоккея с мячом
1 - границы игрового поля размером 102×62 м*; 2 - разметка соревновательных конькобежных дорожек (красный, оранжевый цвет); 3 -неледовое покрытие (бетон); 4 -места возможного размещения выходов из тоннеля.
* Линии синего цвета шириной
Рис. 3.12 Поле для хоккея смячом и ледовая дорожка
1 - техническое помещение; 2 - гараж; 3 - туалет; 4 - кассы; 5 - фойе; 6 - сервисная зона, прокат коньков, 7 - помещение для катающихся; 8 - помещения для команд; 9 - помещение обслуживания, 10 - администрация; 11 -кафе-бар; 12 - парковка автобусов.
Рис. 3.13 Варианты использованияледовой арены
Рис. 3.14 Трансформация арен катков
Рис. 3.15 Трансформация арен катков для соревнований на настиле
Рис. 3.16 Трансформация арен катков для соревнований нанастиле
а- планировочная схема помещения с расстановкой тренажеров из набора АП-2; б, в - планировочные схемы помещений для групповых занятий по общей физической подготовке на пристенном трансформируем оборудовании и тренажерах
Рис. 3.17 Расстановка оборудования в помещениях
г - планировочная схема помещения для групповых занятий ритмической гимнастикой, хореографией и женской оздоровительной гимнастикой; д - помещение для акробатической подготовки спортсменов
Экспликация оборудования
1. Тренажер «Эспандер». 2. Тренажер для развития плечевого пояса. 3. Приспособление «Брусья консольные». 4. Тренажер для развития мышц бедра. 5. Тренажер для развития широчайших мышц спины. 6. Тренажер для развития силы ног тип 1. 7. Штанга тяжелоатлетическая народная. 8. Тренажер «Гребля». 9. Приспособление «Скамья универсальная». 10.Тренажер для развития силы ног тип 2. 11. Маты. 12. Тренажер для развития икроножных мышц. 13. Приспособление для развития мышц спины. 14. Стеллаж для гантелей. 15. Стеллаж для штанг. 16. Тренажер для бега Л. 3-01. 17. Устройство для развития тазобедренных суставов. 18. Тренажер «Рити-2».19. Велотренажер «Здоровье». 20.Тренажер многоцелевой «Стенка». 21.Тренажер для вращения и развития ловкости. 22. Тренажер «Гимнастический». 23. Тренажер для гребли. 24. Тренажер для развития мышц спины и пресса. 25. Велотренажер «Циклон-1».26. Пианино. 27. Стенка гимнастическая. 28. Батут. 29. Зеркало. 30. Станок хореографический.
Рис. 3.18 Расстановка оборудования в помещениях
а - Центр фигурного катания в г. Оберсдорфе (ФРГ):
1 - ледовое поле 60×30 м; 2 - ледовое поле 45×20 м; 3 - ледовое поле 60×30 м.
б - Каток для массового катания в г. Бохуме (ФРГ). План 1-го этажа:
1 - ледовое поле; 2 - круговая искусственная дорожка; 3 - вестибюль; 4 - помещение пункта проката
Рис. 3.19 Комплексные ледовые арены (зарубежный опыт)

1 - зона накопления артистов; 2 - передняя граница эстрады; 3 - партер на настиле; 4 - попланные занавеси; 5 - кулисы; α - горизонтальный угол, ограничивающий зону допустимого расположения зрительских мест.
Рис. 3.20 Планы арены для проведения эстрадных выступлений
Рис. 4.1 Входная зона. Стоянка машин по уходу за льдом
ПОМЕЩЕНИЯ (ЗОНЫ):
1 - раздевальная для хоккеистов или фигуристов на 23-24 места; 2 - раздевальная для хоккеистов на 22-24 места; 3 - гардеробная домашней одежды с обслуживанием на 92 места; 4 - кабина для точки коньков и подгонки клюшек; 5 - душевая; 6 - преддушевая; 7 - шлюз; 8 - зона шкафов (вешалок) для домашней одежды; 9 - кладовая для хранения и сушки формы хоккеистов - постоянных арендаторов льда; 10 - тренерская; 11 - массажная.
ОБОРУДОВАНИЕ:
12 - открытые двухъярусные шкафы; 13 -вентилируемые шкафы; 14 -шкафы для запасных клюшек, шлемов и ботинок; 15 - верстак; 16 -точильный станок; 17 -мойка для ног*; 18 -сушилки для волос; 19 - стол тренера.
* Допускается не предусматривать
Рис. 4.2 Командные раздевальные (для сооружений массовоготипа)

1 - раздевальная (
Рис. 4.3 Варианты планировки раздевалок для хоккеистов

а - раздевалка от 3 до 6 мест, площадью от 15 до
Рис. 4.4 Варианты планировки раздевалок для фигурногокатания
Примерный состав оборудования:
- 100 тройных шкафчиков, отделение по
- 35 тройных шкафчиков, отделение по
- 50 одинарных шкафчиков, отделение по
Рис. 4.5 Варианты раздевалок катка для массового катания

1 - раздевальная с размещением домашней одежды на крючках (вешалках); 2 - камера сухого жара; 3 - турецкая баня; 4 - контрастная напольная ванна (глубина воды
Рис. 4.6 Варианты планировки саун
1 - ожидальная на 16 мест; 2 - ожидальная на 25 мест, 3 - помещение медперсонала; 4 - туалетная кабина для забора мочи в присутствии медицинского работника; 5 - стол для анализа проб; 6 - стол врача; 7 - шкаф; 8 - холодильник; 9 - охраняемый вход; 10 -стол для напитков; 11 - сидения для отдыха; 12 - телевизор.
Рис. 4.7 Пункты антидопингового контроля
Рис. 4.8 Расположение наблюдаемой точки F присоревнованиях по различным видам спорта
| Схема зала | Вместимость зала, чел. | Процент «потерь» мест на трибуне (при концертах) |
|
| 2700 | 10 |
|
| 5500 | 30 |
|
| 8600 | 50 |
|
| 5800 | 40 |
|
| 11700 | 55 |
| Экспликация: 1 - трибуны; 2 - партер; 3 - эстрада; 4 - «потерянные» места. Примечания: 1. Над чертой приведены данные для залов с ареной размером 65×36 кв.м, под чертой - с ареной 48×26 кв.м. 2. α - максимально допустимый горизонтальный угол, в пределах которого должны располагаться зрительные места; R - максимально допустимое удаление зрительских мест. | ||
Рис. 4.9 Зоны видимости в универсальных аренах
1 - подпорная стенка;2 - грунт; 3 - закладная деталь борта; 4 - хоккейный борт; 5 - канал для отводав канализацию; 6 - съемный щит; 7 - арматура диаметром
Примечания:
1. Размеры L и H определяютсяпри конкретном проектировании;
2. Размеры хоккейного борта см.на рисунке 3.8.
Рис. 5.1Конструктивные схемы ледяных полей для хоккея, фигурного катания и шорт-трека
| Ключевые слова: физкультурно-спортивные сооружения, ледовые площадки крытые, вспомогательные помещения, инженерное обустройство катков. |