Настоящие технические условия распространяются на опоры стальных технологических трубопроводов различного назначения с наружным диаметром от 18 до 1620 мм, транспортирующих рабочую среду температурой от 0° до +450° и давлением до 10 МПа, при температуре окружающей среды до минус 70°С.
Технические условия устанавливают классификацию, основные параметры, размеры, технические требования, комплектность, правила приёмки, методы испытаний, требования к маркировке, упаковке, транспортированию, хранению, указания по монтажу и гарантии изготовителя.
| Обозначение: | ТУ 3680-001-04698606-04 |
| Название рус.: | Опоры трубопроводов. Технические условия |
| Статус: | действующий |
| Дата актуализации текста: | 01.01.2009 |
| Дата добавления в базу: | 29.04.2009 |
| Дата введения в действие: | 27.12.2004 |
| Разработан: | ЗАО "УЭМЗ" |
| Утвержден: | ЗАО "УЭМЗ" (27.12.2004) |
| Опубликован: | ЗАО "УЭМЗ" № 2004 |
ЗАКРЫТОЕ АКЦИОНЕРНОЕ ОБЩЕСТВО
«УХТИНСКИЙ ЭКСПЕРИМЕНТАЛЬНО-МЕХАНИЧЕСКИЙ ЗАВОД»
| УТВЕРЖДАЮ Генеральный директор ЗАО «УЭМЗ» А.В. Тиранов « 27 » декабря 2004г. |
ОПОРЫТРУБОПРОВОДОВ
ТЕХНИЧЕСКИЕУСЛОВИЯ
ТУ 3680-001-04698606-04
(Взамен ТУ 04698606-001-04)
Дата введения « 27 »декабря 2004г.
Срок действия неограничен
| СОГЛАСОВАНО Главный инженер ЗАО «УЭМЗ» Костин В.В. « 1» декабря 2004г. |
2004
Содержание
Настоящие технические условияраспространяются на опоры стальных технологических трубопроводов различногоназначения с наружным диаметром от 18 до 1620 мм, транспортирующих рабочуюсреду температурой от 0° до +450° и давлением до 10 МПа, при температуреокружающей среды до минус 70°С.
Технические условияустанавливают классификацию, основные параметры, размеры, техническиетребования, комплектность, правила приёмки, методы испытаний, требования кмаркировке, упаковке, транспортированию, хранению, указания по монтажу игарантии изготовителя.
2.1. Опоры должныизготавливаться в соответствие с требованиями настоящих технических условий, порабочим чертежам, утвержденным в установленном порядке.
2.2. Качество и свойстваматериала, крепежных деталей для изготовления опор должны быть подтвержденысертификатами заводов-изготовителей.
2.3. Вид климатическогоисполнения по ГОСТ15150-69 устанавливается в рабочих чертежах и заказе изделий.
2.4. Детали опор должныизготавливаться из листового, полосового и круглого проката по ГОСТ16523-97, ГОСТ14637-89, ГОСТ 19903-74, ГОСТ1577-93, ГОСТ19281-89, ГОСТ5520-79, ГОСТ103-76, ГОСТ 2590-88,труб по ГОСТ8731-87 (группа В), ГОСТ 8732-78,ГОСТ10704-91, ГОСТ 10705-80(группа В), швеллеров по ГОСТ 8240-97, уголков ГОСТ8509-93, ГОСТ 8510-86.
2.5. Марки сталей для деталейопор должны соответствовать табл. 1;2.
| Марка стали | Категория стали | ГОСТ | Допустимая минимальная расчетная температура °С |
| Вст 3 кп (с толщиной до 4 мм) | 2 | 380-71 | -30е |
| Вст 3 пс |
|
|
|
| Вст 3 сп | 5,6 | 380-71 | -40° |
| 09Г2С | 6,7,12 | 19281-89 | -70° |
Материал крепежных изделий
Таблица 2
| Марка стали | ГОСТ | Допустимая минимальная расчетная температура °С |
| 20 | 1050-88 | -40°С |
| 35 | ||
| 35Х, 40Х | 4543-71 | -50°С |
| 09Г2С | -70°С |
2.6. Допускается изготавливать опоры из листовогопроката или труб по другим стандартам или техническим условиям, еслиустановленные в них требования не ниже, чем в перечисленных нормативныхдокументах.
2.7. Типы иразмеры сварных швов следует применять по ГОСТ5264-80 и ГОСТ14771-76.
2.8. Для сварки опорприменяются сварочные материалы по ГОСТ9467-75, ГОСТ 2246-70, ГОСТ8050-85.
2.9.Качество сварных швов должно соответствовать ТИ 25080.00024.
2.10.Резьба на деталях должна соответствовать ГОСТ24705-81. Допуски на резьбу: для болтов - 8g, гаек - 7Н по ГОСТ16093-81, выход резьбы, сбег, недорезы, проточки и фаски - по ГОСТ10549-80.
2.11. Крепежные изделия должнысоответствовать: болты - ГОСТ7798-70, гайки - ГОСТ5915-70. Класс прочности болтов должен быть не ниже 4.6, гаек - 4 по ГОСТ1759-70: Вид антикоррозийного покрытия болтов и гаек должен выбираться по ГОСТ9.303-84 в зависимости от условий эксплуатации, определяемых по ГОСТ15150-69 и указываться в рабочих чертежах.
2.12.Предельные отклонения размеров по ГОСТ25346-82: Н14; h4; ±IТ14/2.
2.13.Отклонение от перпендикулярности d стенок опор относительно основания илиопорной плиты, не более 1 мм на 100 мм высоты - Рис. 1.

Рис.1
2.14.Отклонение от перпендикулярности d плоскости А относительно плоскости Б вкорпусах опор типов КП, КХ должно быть не более 1 мм на 100 мм длины ребра -Рис. 2.

Рис. 2
2.15. На деталях опорпрямоугольной формы, изготовленных из листа или полосовой стали отклонение отперпендикулярности короткой стороны относительно длинной должно быть не более1,5 мм.
2.16. Длядеталей опор, изготовленных штамповкой или вырубкой, допускаются следующиеотклонения геометрической формы и размеров:
утяжка по контуру 1 не более 0,3S - Рис. 3.

Рис. 3
угол скоса продольных кромок a не более 3 независимо от 8 - Рис. 4.

Рис. 4
угол скоса a по периметру отверстий не более 3° - Рис. 5.

Рис. 5
отклонение от плоскостностиповерхностей не более 1 мм на 100 мм длины.
2.17. Опорыкорпусные с вырезом для спутника изготавливаются по требованию потребителя.
2.18. Острые кромки деталей опордолжны быть притуплены.
2.19. Наповерхности деталей опор не допускаются пузыри, трещины, накаты, задиры,раковины и брызги металла от сварки и резки.
2.20. Защиту от коррозииназначают в соответствии со СНиП 2.03.11-85, ГОСТ9.401-79 и указывают в рабочих чертежах и заказе изделии.
2.21. Резьбовые части деталейопор должны защищаться от коррозии смазкой «ЦИАТИМ-201» ГОСТ 6267-93 или«ЦИАТИМ-203» ГОСТ8773-75.
3.1. Опоры должны поставлятьсякомплектно согласно рабочим чертежам, разработанным в установленном порядке.
3.2. В состав комплекта должнывходить следующие сборочные единицы и детали:
а) корпус в сборе;
б) хомут;
в) крепежные изделия.
В комплект поставки входитпаспорт или сертификат.
3.3. С согласия потребителядопускается поставка отдельных деталей и сборочных единиц опор с их комплектациейна месте сборки и монтажа.
4.1. Опоры должны приниматьсятехническим контролем предприятия партиями. Партией следует считать изделияодной марки, предназначенные для эксплуатации в
одинаковых условиях. Размерпартии определяется заказом потребителя, но не более 200 шт.
4.2. Для контроля качества насоответствие требованиям п.п. 2.7;2.9; 2.10;2.12-2.19отбирают 3 % от общего числа изделий в партии, но не менее 5 шт.
4.3. При получении неудовлетворительныхрезультатов контроля хотя бы по одному из показателей качества, по этомупоказателю проводят повторный контроль на удвоенном числе образцов, отобранныхот той же партии.
4.4. Если при повторной проверкеокажется хотя бы одно изделие не удовлетворяющее требованиям настоящихтехнических условий, то всю партию подвергают поштучной приемке.
4.5. Потребитель имеет правопроизводить контрольную проверку соответствия изделий требованиям техническихусловий, соблюдая при этом приведенный порядок отбора и применяя указанныеметоды контроля.
5.1. Проверка соответствияизделия требованиям конструкторской документации производится путем внешнегоосмотра, измерениями геометрических размеров средствами измерений и сличения срабочими чертежами.
5.2. Проверка наличиясертификатов на материалы и крепежные изделия производится путем ознакомления ссертификатами, применение материалов без сертификатов не допускается.
5.3. Контроль геометрическихразмеров по п.п. 2.7;2.12;2.13;2.14производить универсальным измерительным инструментом.
5.4. Контроль сварных соединенийизделий следует осуществлять внешним осмотром и измерениями по ТИ 25080.00024.
5.5. Контроль качества по п.п. 2.16;2.17;2.19производят внешним осмотром.
5.6. Проверка лакокрасочногопокрытия производится внешним осмотром.
5.7. Проверка комплектности,маркировки и упаковки производится внешним осмотром.
6.1. Маркировка, наносимая любымспособом непосредственно на изделие в местах, указанных на чертежах, должнасодержать условное обозначение изделия.
Четкость надписей должнасохраняться в течение гарантийного срока.
6.2. Упаковка деталей сборочныхединиц опор должна соответствовать категории КУ-1 по ГОСТ 23170-78и обеспечивать их сохранность в течение двух лет.
6.3. Детали и сборочные единицыдолжны быть уложены комплектно в деревянные ящики по ГОСТ10198-78.
6.4. Маркировка упаковки - по ГОСТ 14192-77.
6.5. Опоры допускаетсятранспортировать любым видом транспорта.
6.6. Условия хранения сборочныхединиц и деталей опор - 4(Ж2) по ГОСТ15150-69.
6.7. К каждой партии опор долженбыть приложен паспорт, заполненный ОТК предприятия-изготовителя.
7.1. Изготовитель гарантируетсоответствие опор требованиям настоящих технических условий при соблюдениипотребителем условий эксплуатации и хранения.
7.2. Гарантийный срокэксплуатации - 24 месяца со дня получения изделий потребителем.
| Наименование, тип | Обозначение документа на поставку | Кол-во | Примечание |
| Линейка-300 | ГОСТ 427-75 | 1 |
|
| Линейка-1000 | ГОСТ 427-75 | 1 |
|
| Рулетка 3ВД2-2 | ГОСТ 7502-80 | 1 |
|
| Штангенциркуль ШЦ-10-125 | ГОСТ 166-89 | 1 |
|
| Обозначение документа | Наименование | Примечание |
| ГОСТ 16523-97 | Прокат тонколистовой из углеродистой стали качественной и обыкновенного качества общего назначения. Технические условия. |
|
| ГОСТ 14637-89 | Прокат толстолистовой из углеродистой стали обыкновенного качества. Технические условия. |
|
| ГОСТ 19903-74 | Прокат листовой горячекатаный. Сортамент. |
|
| ГОСТ 19281-89 | Прокат из стали повышенной прочности. Общие технические условия. |
|
| ГОСТ 2590-88 | Прокат стальной горячекатаный круглый. Сортамент. |
|
| ГОСТ 103-76 | Полоса стальная горячекатаная. |
|
| ГОСТ 1577-93 | Прокат толстолистовой и широкополосный из конструкционной качественной стали. Технические условия. |
|
| ГОСТ 5520-79 | Прокат листовой из углеродистой, низколегированной и легированной стали для котлов и сосудов, работающих по давлением. Технические условия. |
|
| ГОСТ 8731-74 | Трубы стальные бесшовные горячедеформированные. Технические требования. |
|
| ГОСТ 8732-78 | Трубы стальные бесшовные горячедеформированные. Сортамент. |
|
| ГОСТ 10704-91 | Трубы стальные электросварные прямошовные. Сортамент. |
|
| ГОСТ 10705-80 | Трубы стальные электросварные. Технические условия. |
|
| ГОСТ 8509-93 | Уголки стальные горячекатаные равнополочные. Сортамент. |
|
| ГОСТ 8510-86 | Уголки стальные неравнополочные. Сортамент. |
|
| ГОСТ 8240-89 | Швеллеры стальные горячекатаные. Сортамент. |
|
| ГОСТ 380-94 | Сталь углеродистая обыкновенного качества. Марки. |
|
| ГОСТ 1050-88 | Прокат сортовой, калиброванный, со специальной отделкой поверхности из углеродистой качественной конструкцией стали. Общие технические условия. |
|
| ГОСТ 4543-71 | Прокат из легированной конструкционной стали. Технические условия. |
|
| ГОСТ 9466-75 | Электроды покрытые металлические для ручной дуговой сварки сталей и наплавки. Классификация и общие технические условия. |
|
| ГОСТ 5264-80 | Ручная дуговая сварка. Соединения сварные. Основные типы, конструктивные элементы. |
|
| ГОСТ 14771-76 | Дуговая сварка в защитном газе. Соединения сварные. Основные типы, конструктивные элементы и размеры. |
|
| ГОСТ 2246-70 | Проволока стальная сварочная. Технические условия. |
|
| ГОСТ 8050-85 | Двуокись углерода газообразная и жидкая. Технические условия. |
|
| ГОСТ 24705-81 | Основные нормы взаимозаменяемости. Резьба метрическая. Основные размеры. |
|
| ГОСТ 16093-81 | Основные нормы взаимозаменяемости. Резьба метрическая. Допуски. Посадки с зазором. |
|
| ГОСТ 10549-80 | Выход резьбы. Сбеги, недорезы, проточки и фаски. |
|
| ГОСТ 7798-70 | Болты с шестигранной головкой класса точности В. Конструкция и размеры. |
|
| ГОСТ 5915-70 | Гайки шестигранные класса точности В. Конструкция и размеры. |
|
| ГОСТ 15150-69 | Машины, приборы и другие технические изделия исполнения для различных климатических районов. |
|
| ГОСТ 25346-89 | Основные нормы взаимозаменяемости ЕСДП. Общие положения, ряды допусков и основных отклонений. |
|
| ГОСТ 10198-91 | Ящики деревянные для грузов 200 до 2000 кг. Общие технические условия. |
|
| ГОСТ 14192-96 | Маркировка грузов. |
|
| ГОСТ 23170-78 | Упаковка для изделий машиностроения. Общие требования. |
|
| ГОСТ 9.303-84 | ЕСЭКС Покрытия металлические и неметаллические неорганические. Общие требования к выбору. |
|
| ГОСТ 9.401-91 | ЕСЭКС Покрытия лакокрасочные. Общие требования. |
|
| ТИ 25080-00024 | Технологическая инструкция по сварке нестандартного оборудования и металлоконструкций. |
|
Опоры стальных трубопроводовквалифицируются по конструкции, назначению и применяются в соответствии стаблицей 3
Классификация опор
Таблица 3
| Тип опоры | Исполнение и эскиз опоры | dн, мм | Назначение опоры | Применяемость | Аналог стандарта |
| 1 | 2 | 3 | 4 | 5 | 6 |
| 1. Опоры трубопроводов ( подвижные и неподвижные) | |||||
| Тавровые приварные - ТП |
| £ 45 | Для изолированных и неизолированных трубопроводов | П Н | ОСТ 36-146-88 |
|
| П | ||||
|
| П Н | ||||
|
| П Н | ||||
| Тавровые хомутовые - ТХ |
| £ 45 | Для изолированных и неизолированных трубопроводов | П Н | ОСТ 36-146-88 |
|
| 57-89 | П | |||
|
| П Н | ||||
|
| 108-159 | П Н | |||
| Корпусные приварные - КП |
| 57-630 | Для изолированных и неизолированных трубопроводов | П Н | ОСТ 36-146-88 |
| 57-159 | |||||
|
| 57-1420 | П Н | |||
|
| 57-1420 | П Н | |||
|
| 219-1420 | П Н | |||
|
| 219-1420 | П Н | |||
| Корпусные хомутовые - КХ |
| 57-630 | Для изолированных и неизолированных трубопроводов |
| ОСТ 36-146-88 |
| 57-159 | |||||
|
| 57-630 |
| |||
|
| 57-630 |
| |||
| Трубчатые - ТР |
| 57-630 | Для изолированных и неизолированных трубопроводов | П | ОСТ 36-146-88 |
|
| 57-630 | Н | |||
| Швеллерные приварные - ШП |
| 57-820 | Для неизолированных трубопроводов | П Н | ОСТ 36-146-88 |
| Уголковые приварные - УП |
| 1020-1420 | П Н | ОСТ 36-146-88 | |
| Хомутовые бескорпусные - ХБ |
| Исп. А 25-630 Исп. Б 25-159 | П | ОСТ 36-146-88 | |
|
| Исп. Б 25-530 Исп. Г 25-159 | Н | |||
| Трубчатые крутоизогнутых отводов - ТО |
| 57-630 | Для изолированных и неизолированных трубопроводов | П Н | ОСТ 36-146-88 |
| Вертикальных трубопроводов приварные - ВП |
| 57-1420 | Для изолированных и неизолированных трубопроводов | П | ОСТ 36-146-88 |
| Катковые направляющие - КН |
| Исп. А11 57-630 | Для изолированных и неизолированных трубопроводов | П | ОСТ 36-146-88 |
|
| Исп. А12 57-1420 | П | |||
|
| 57-1420 | П | |||
|
| 57-1420 | П | |||
| Катковые направляющие - КН |
| 57-1420 | Для изолированных и неизолированных трубопроводов | П | ОСТ 36-146-88 |
|
| 57-1420 | П | |||
|
| 57-1420 | П | |||
|
| 57-1420 | П | |||
| Опоры подвижные - тип ОПП1 |
| 18-48 | Для изолированных и неизолированных трубопроводов | П | ГОСТ 14911-82 |
| Опоры подвижные - тип ОПП2 |
| 57-1620 | Для изолированных и неизолированных трубопроводов | П | ГОСТ 14911-82 |
| Опоры подвижные - тип ОПП3 |
| 57-1620 | Для изолированных и неизолированных трубопроводов | П | ГОСТ 14911-82 |
| Опоры подвижные хомутовые - тип ОПХ1 |
| 18-48 | Для изолированных и неизолированных трубопроводов | П | ГОСТ 14911-82 |
| Опоры подвижные хомутовые - тип ОПХ2 |
| 57-89 | Для изолированных и неизолированных трубопроводов | П | ГОСТ 14911-82 |
|
| 108-630 | П | |||
| Опоры подвижные хомутовые - тип ОПХ3 |
| 57-630 | Для изолированных и неизолированных трубопроводов | П | ГОСТ 14911-82 |
| Опоры подвижные бескорпусные - тип ОПБ1 |
| 18-530 | Для изолированных и неизолированных трубопроводов | П | ГОСТ 14911-82 |
| Опоры подвижные бескорпусные - тип ОПБ2 |
| 18-530 | Для изолированных и неизолированных трубопроводов | П | ГОСТ 14911-82 |
| Опоры скользящие - тип Т13.00 |
| 32-159 | Для изолированных и неизолированных трубопроводов | П | серия 4.903-10 выпуск 5 |
|
| 194-630 | П | |||
| Опоры скользящие - тип Т14.00 |
| 32-159 | Для изолированных и неизолированных трубопроводов | П | серия 4.903-10 выпуск 5 |
|
| 194-1420 | П | |||
| Опоры скользящие - тип Т15.00 |
| 194-1420 | Для изолированных и неизолированных трубопроводов | П | серия 4.903-10 выпуск 5 |
| Опоры скользящие диэлектрические - тип Т16.00 |
| 194-377 | Для изолированных и неизолированных трубопроводов | П | серия 4.903-10 выпуск 5 |
|
| 377-630 | П | |||
| Опоры скользящие диэлектрические - тип Т17.00 |
| 194-377 | Для изолированных и неизолированных трубопроводов | П | серия 4.903-10 выпуск 5 |
|
| ' 377-1420 | П | |||
| Опоры скользящие диэлектрические - тип Т18.00 |
| 194-377 | Для изолированных и неизолированных трубопроводов | П | серия 4.903-10 выпуск 5 |
|
| 377-1420 | П | |||
| Плиты опорные с диэлектрической прокладкой - тип Т43.00 |
| 32-273 | Для изолированных и неизолированных трубопроводов | П | серия 4.903-10 выпуск 5 |
|
| 325-1420 | П | |||
| Опоры однокатковые - тип Т19.00 |
| 194-1420 | Для изолированных и неизолированных трубопроводов | П | серия 4.903-10 выпуск 5 |
| Опоры двухкатковые - тип Т20.00 |
| 720-1420 | Для изолированных и неизолированных трубопроводов | П | серия 4.903-10 выпуск 5 |
| Опоры шариковые - тип Т21.00 |
| 194-1420 | Для изолированных и неизолированных трубопроводов | П | серия 4.903-10 выпуск 5 |
| Опоры неподвижные - тип Т3.00 |
| 32-219 | Для изолированных и неизолированных трубопроводов | Н | серия 4.903-10 выпуск 4 |
| Опоры неподвижные лобовые двухупорные - тип Т4.00 |
| 108-1420 | Для изолированных и неизолированных трубопроводов | Н | серия 4.903-10 выпуск 4 |
| Опоры неподвижные лобовые четырехупорные - тип Т5.00 |
| 133-1420 | Для изолированных и неизолированных трубопроводов | Н | серия 4.903-10 выпуск 4 |
| Опоры неподвижные лобовые двухупорные усиленные - тип Т6.00 |
| 108-1420 | Для изолированных и неизолированных трубопроводов | Н | серия 4.903-10 выпуск 4 |
| Опоры неподвижные лобовые четырехупорные усиленные - тип Т7.00 |
| 426-1420 | Для изолированных и неизолированных трубопроводов | Н | серия 4.903-10 выпуск 4 |
| Опоры неподвижные лобовые щитовые - тип Т8.00 |
| 108-1420 | Для изолированных и неизолированных трубопроводов | Н | серия 4.903-10 выпуск 4 |
| Опоры неподвижные лобовые щитовые усиленные - тип Т9.00 |
| 426-1420 | Для изолированных и неизолированных трубопроводов | Н | серия 4.903-10 выпуск 4 |
| Опоры неподвижные боковые - тип Т10.00 |
| 194-820 | Для изолированных и неизолированных трубопроводов | Н | серия 4.903-10 выпуск 4 |
| Опоры неподвижные хомутовые, бескорпусные - тип Т11.00 |
| 108-1020 | Для изолированных и неизолированных трубопроводов | Н | серия 4.903-10 выпуск 4 |
| Опоры неподвижные хомутовые - тип Т12.00 |
| 57-377 | Для изолированных и неизолированных трубопроводов | Н | серия 4.903-10 выпуск 4 |
| Опоры неподвижные бугельные - тип Т44.00 |
| 377-1420 | Для изолированных и неизолированных трубопроводов | Н | серия 4.903-10 выпуск 4 |
| Опоры неподвижные лобовые сальниковых компенсаторов - тип Т46.00 |
| 530-820 | Для изолированных и неизолированных трубопроводов | Н | серия 4.903-10 выпуск 4 |
| Опоры приварные неподвижные и скользящие - тип ОПН |
| 57-1620 | Для изолированных и неизолированных трубопроводов | Н | серия 4.903-10 выпуск 4 |
| Опоры хомутовые неподвижные - тип ОХН |
| 57-159 | Для изолированных и неизолированных трубопроводов | Н | серия 4.903-10 выпуск 4 |
|
| 168-426 | Н | |||
| Опоры хомутовые неподвижные и направляющие - тип ОБН |
| 25-530 | Для изолированных и неизолированных трубопроводов | Н | серия 4.903-10 выпуск 4 |
8.1. Опоры подвижные и неподвижные трубопроводов(аналог ОСТ36-146-88)
8.1.1. Буквами в шифреисполнения опоры разделены по конструктивным признакам (буква С обозначаетсварной вариант). Первая цифра в шифре исполнения определяет высоту опоры и еёоснования до нижней образующей трубы, вторая цифра - длину основания опоры. Дляопор типа ШП и ВП цифра в обозначениях определяет их длину.
8.1.2. Буква «П» в графе«применяемость» обозначает использование конструкции в качестве подвижнойопоры, буква «Н» - в качестве неподвижной.
8.1.3. Упоры, показанные наэскизах хомутовых опор, применяются для неподвижных, а также подвижных опортипов КХ, КН для Dн ³ 377 мм.
8.1.4. Опоры типов ТП, ТХ, КП,КХ в зависимости от величины тепловых перемещений трубопровода изготавливаютсяв 3-х исполнениях по длине:
- длиной 170 мм с перемещениемдо 90 мм;
- длиной 340 мм с перемещениемдо 250 мм;
- длиной 680 мм с перемещениемдо 600 мм.
8.1.5. Применением хомутовыхопор рекомендуется при наличии угловых деформаций трубопровода.
8.1.6. Использование в опорахподушек и накладок определяется проектной организацией с учётом размеровтрубопроводов и внешних нагрузок.
8.1.7. Основные параметры иразмеры.
8.1.7.1. Опоры предназначены длякрепления труб из углеродистой и низколегированной стали при строительстветехнологических трубопроводов с наружным диаметром от 18 до 1420 мм,транспортирующих вещества с температурой от 0 до 100° и условным давлением Рудо 10 МПа при температуре окружающей среды до минус 70°С.
8.1.7.2. Конструкция, размеры,масса и допускаемые расчётные нагрузки опор должны соответствовать указанным начертежах 1-16 и в таблицах 1-16.
8.1.7.3. Величины осевых ибоковых допускаемых расчётных нагрузок заданы при условии отсутствия внешнихизгибающих моментов.
8.1.7.4. Пределы применения опорпо допускаемым нагрузкам для трубопроводов, прокладываемых в сейсмическихрайонах, устанавливает проектная организация.
8.1.7.5. Все опоры условнообозначаются по следующей схеме:

8.1.8. Технические требования.
8.1.8.1. Опоры должныизготавливаться в соответствии с требованиями настоящих технических условий порабочим чертежам, утверждённым в установленном порядке.
8.1.8.2. Качество к свойствамматериала и полуфабрикатов для изготовления опор должно быть подтвержденысертификатами заводов-изготовителей этих материалов и полуфабрикатов.
8.2. Опоры подвижныетрубопроводов
8.2.1. Опоры подвижныетрубопроводов (аналог ГОСТ 14911-82 и ОСТ36-94-83)
8.2.1.1. Буквами в шифреисполнения опоры разделены по конструктивным признакам. Первая цифра в шифреисполнения определяет высоту опоры, вторая цифра - наружный диаметртрубопровода.
8.2.1.2. Буква «П» в графе«применяемость» обозначает использование конструкции в качестве подвижнойопоры.
8.2.1.3. Применением хомутовыхопор ОПБ1 и ОПБ2 рекомендуется при наличии угловых деформаций трубопроводов.
8.2.1.4. Использование в опорахподушек и накладок определяется проектной организацией с учётом размеровтрубопроводов и внешних нагрузок.
8.2.1.5. Конструкция, размеры,масса и допускаемые расчётные нагрузки опор должны соответствовать указанным начертежах 17-20, в таблицах 19-22 и приложении 3.
8.2.1.6. Величины вертикальныхдопустимых расчётных нагрузок, при температурах рабочей среды заданы приусловии отсутствия внешних изгибающих моментов.
8.2.1.7. Пределы применения опорпо допускаемым нагрузкам для трубопроводов, прокладываемых в сейсмическихрайонах, устанавливает проектная организация.
8.2.1.8. Все опоры условнообозначаются по следующей схеме:

8.2.1.9. Технические требования.Опоры должны изготавливаться в соответствии с требованиями настоящихтехнических условий по рабочим чертежам, утверждённым в установленном порядке.
Качество к свойствам материала иполуфабрикатов для изготовления опор должно быть подтверждены сертификатамизаводов-изготовителей этих материалов и полуфабрикатов.
8.2.2. Опоры подвижныетрубопроводов (аналог серия 4.903-10Выпуск 5)
8.2.2.1. Буква «П» в графе«применяемость» обозначает использование конструкции в качестве подвижнойопоры.
8.2.2.2. Применение хомутовыхопор рекомендуется при наличии угловых деформаций трубопроводов.
8.2.2.3. Использование в опорахподушек и накладок определяется проектной организацией с учётом размеровтрубопроводов и внешних нагрузок.
8.2.2.4. Конструкция, размеры,масса и допускаемые расчётные нагрузки опор должны соответствовать указанным начертежах 21-73 и в таблицах 23-73.
8.2.2.5. Величины вертикальныхдопустимых расчётных нагрузок, при температурах рабочей среды заданы приусловии отсутствия внешних изгибающих моментов.
8.2.2.6. Пределы применения опорпо допускаемым нагрузкам для трубопроводов, прокладываемых в сейсмическихрайонах, устанавливает проектная организация.
8.2.2.7. Все опоры условнообозначаются по следующей схеме:

8.2.2.8. Технические требования.Опоры должны изготавливаться в соответствии с требованиями настоящихтехнических условий по рабочим чертежам, утверждённым в установленном порядке.
Качество к свойствам материала иполуфабрикатов для изготовления опор должно быть подтверждено сертификатамизаводов-изготовителей этих материалов и полуфабрикатов.
8.3. Опоры неподвижныетрубопроводов
8.3.1. Опоры неподвижныетрубопроводов (аналог серия 4.903-10Выпуск 4)
8.3.1.1. Буква «Н» в графе«применяемость» обозначает использование конструкции в качестве неподвижнойопоры.
8.3.1.2. Применение хомутовыхопор рекомендуется при наличии угловых деформаций трубопроводов.
8.3.1.3. Использование в опорахподушек и накладок определяется проектной организацией с учетом размеровтрубопроводов и внешних нагрузок.
8.3.1.4. Конструкция, размеры,масса и допускаемые расчётные нагрузки опор должны соответствовать указанным начертежах 74-102 и в таблицах 74-102.
8.3.1.5. Величины вертикальныхдопустимых расчетных нагрузок, при температурах рабочей среды заданы приусловии отсутствия внешних изгибающих моментов.
8.3.1.6. Пределы применения опорпо допускаемым нагрузкам для трубопроводов, прокладываемых в сейсмическихрайонах, устанавливает проектная организация.
8.3.1.7. Все опоры условно обозначаютсяпо следующей схеме:

8.3.1.8. Технические требования.Опоры должны изготавливаться в соответствии с требованиями настоящихтехнических условий по рабочим чертежам, утверждённым в установленном порядке.
Качество к свойствам материала иполуфабрикатов для изготовления опор должно быть подтверждено сертификатамизаводов-изготовителей этих материалов и полуфабрикатов.
8.3.2. Опоры неподвижные трубопроводов (аналогмашиностроительные нормали МН4008-62, МН4010-62 и МН 4016-62)
8.3.2.1. Буква «Н» в графе«применяемость» обозначает использование конструкции в качестве неподвижнойопоры.
8.3.2.2. Применение хомутовыхопор рекомендуется при наличии угловых деформаций трубопроводов.
8.3.2.3. Использование в опорахподушек и накладок определяется проектной организацией с учётом размеровтрубопроводов и внешних нагрузок.
8.3.2.4. Конструкция, размеры,масса и допускаемые расчётные нагрузки опор должны соответствовать указанным начертежах 21-73 и в таблицах 23-73.
8.3.2.5. Величины вертикальныхдопустимых расчётных нагрузок, при температурах рабочей среды заданы приусловии отсутствия внешних изгибающих моментов.
8.3.2.6. Пределы применения опорпо допускаемым нагрузкам для трубопроводов, прокладываемых в сейсмическихрайонах, устанавливает проектная организация.
8.3.2.7. Все опоры условнообозначаются по следующей схеме:

8.3.2.8. Технические требования.Опоры должны изготавливаться в соответствии с требованиями настоящихтехнических условий по рабочим чертежам, утверждённым в установленном порядке.
Качество к свойствам материала иполуфабрикатов для изготовления опор должно быть подтверждено сертификатамизаводов-изготовителей этих материалов и полуфабрикатов.
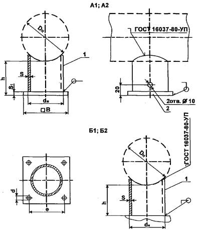
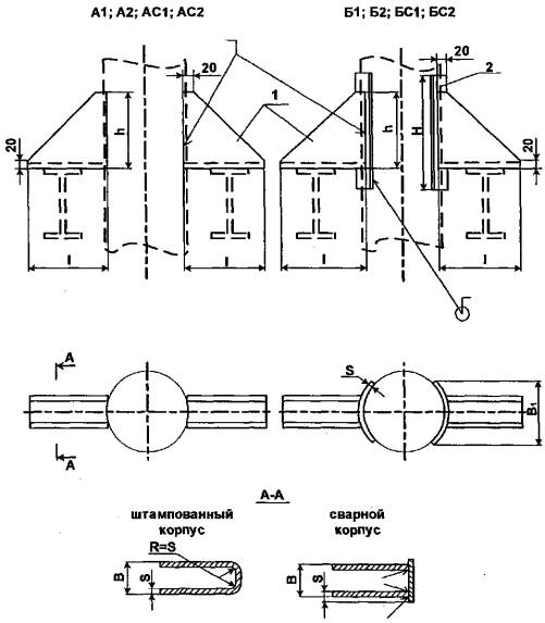
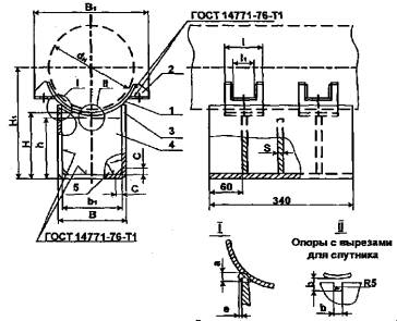
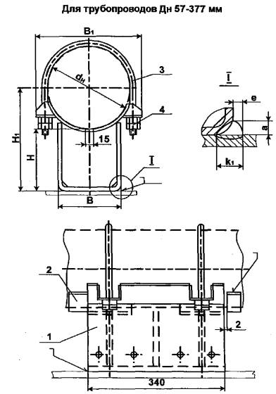
ОПОРЫ ТАВРОВЫЕ ПРИВАРНЫЕ - тип ТП

Сварные монтажные швы по ГОСТ5264-80
1 - тавр, изготовленный из двутавра по ГОСТ 8339-72; 2 - сварной тавр; 3 -ребро
Чертёж 1.
Таблица 4
Размеры, мм
| Наружный диаметр трубопровода, Dн | Исполнение | h | В | S | № профиля двутавра | К - катет шва | Масса, кг не более | Допускаемые нагрузки, кН | ||
| Вертикальная Qy | Осевая Рz при | |||||||||
| Рx=Pz | Рx=0,5Pz | |||||||||
| 18-45 | АС00 | 70 | 50 | 5 | - | 4 | 0,6 | 2,0 | 1,5 | 2 |
| АС10 | 100 | 0,7 | 1,0 | |||||||
| 57-89 | А11 | 100 | 100 | - | 20 | 6 | 1,8 | 4,0 | - | - |
| А12 | 3,6 | 3,0 | 7 | |||||||
| АС11 | 6 | - | 1,7 | - | - | |||||
| АС12 | 3,4 | 3,0 | 7 | |||||||
| А21 | 150 | 135 | - | 30 | 3,1 | - | - | |||
| А22 | 6,2 | 3,0 | 7 | |||||||
| АС21 | 100 | 6 | - | 2,2 | - | - | ||||
| АС22 | 4,4 | 3,0 | 7 | |||||||
| 108-159 | Б12 | 100 | 100 | - | 20 | 4,0 | 9,5 | 18,0 | 35 | |
| БС12 | 6 | - | 3,8 | |||||||
| Б22 | 150 | 135 | - | 30 | 7,0 | |||||
| БС22 | 100 | 6 | - | 5,0 | ||||||
Примечание: Значения hдля опор, изготовленных путём разрезки двутавров, уменьшить на половину шириныреза, но не более, чем на 4 мм.
Пример условного обозначения опорытипа ТП исполнения А11 из стали ВСт3пс для трубопровода Дн = 76 мм
ОПОРА 76-ТП-А11-ВСт3пс-ТУ......
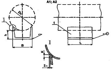
ОПОРЫ ТАВРОВЫЕ ХОМУТОВЫЕ - тип ТХ

Сварные монтажные швы по ГОСТ5264-80
1,2,3,4 - Опоры типа ТП соответственно тех же исполнений (см. черт. 1 табл. 4);5 - полухомут (черт. 15 табл. 17); 6 - болт по ГОСТ7798-70 с гайкой по ГОСТ5915-70)
Чертёж 2.
Размеры, мм
| Наружный диаметр трубопровода, Dн | Исполнение | h | В | В1 | Размеры болта d*1 | К - катет шва | Масса, кг не более | Допускаемые нагрузки, кН | ||
| Вертикальная | Осевая Рz при | |||||||||
| Рx = Pz | Рx = 0,5Pz | |||||||||
| 18; 25; 32; 38; 45 | АС00 | 70 | 50 | - | М12´40 | 5 | 1,0 | 2 | 1,5 | 2 |
| АС10 | 100 | 1,1 | 1,0 | |||||||
| 57 | А11 | 106 | 100 | 142/100 | 6 | 2,6 | 4 | - | - | |
| А12 | 5,2 | 3,0 | 7,0 | |||||||
| АС11 | 2,5 | - | - | |||||||
| АС12 | 5,0 | 3,0 | 7,0 | |||||||
| А21 | 156 | 135 | 3,9 | - | - | |||||
| А22 | 7,8 | 3,0 | 7,0 | |||||||
| АС21 | 100 | 3,0 | - | - | ||||||
| АС22 | 6,0 | 3,0 | 7,0 | |||||||
| 76 | А11 | 106 | 100 | 160/113 | 2,7 | - | - | |||
| А12 | 5,4 | 3,0 | 7,0 | |||||||
| АС11 | 2,6 | - | - | |||||||
| АС12 | 5,2 | 3,0 | 7,0 | |||||||
| А21 | 156 | 135 | 4,0 | - | - | |||||
| А22 | 8,0 | 3,0 | 7,0 | |||||||
| АС21 | 100 | 3,1 | - | - | ||||||
| АС22 | 6,2 | 3,0 | 7,0 | |||||||
| 89 | А11 | 106 | 100 | 179/127 | 2,8 | - | - | |||
| А12 | 5,6 | 3,0 | 7,0 | |||||||
| АС11 | 2,7 | - | - | |||||||
| АС12 | 5,4 | 3,0 | 7,0 | |||||||
| А21 | 156 | 135 | 4,1 | - | - | |||||
| А22 | 8,2 | 3,0 | 7,0 | |||||||
| АС21 | 100 | 3,2 | - | - | ||||||
| АС22 | 6,4 | 3,0 | 7,0 | |||||||
| 108 | Б12 | 108 | 100 | 200/141 | М16´50 | 7 | 7,9 | 9,5 | 18 | 35 |
| БС12 | 7,7 | |||||||||
| Б22 | 158 | 135 | 10,9 | |||||||
| БС22 | 100 | 8,9 | ||||||||
| 133 | Б12 | 108 | 100 | 250/177 | 8,7 | 18 | 35 | |||
| БС12 | 8,5 | |||||||||
| Б22 | 158 | 135 | 11,7 | |||||||
| БС22 | 100 | 9,7 | ||||||||
| 159 | Б12 | 108 | 100 | 275/194 | 9,3 | 18 | 35 | |||
| БС12 | 9,1 | |||||||||
| Б22 | 158 | 135 | 12,3 | |||||||
| БС22 | 100 | 10,3 | ||||||||
Примечания: В графе «В1»в знаменателе дроби указан размер для исполнений опор с креплением полухомутовпод углом.
Значения массы опор приведеныбез учёта массы упоров.
Для опор с креплениямиполухомутов под углом в обозначении исполнения после цифр добавляется «У»
Пример условного обозначенияопоры типа ТХ исп. АСП из стали 09Г2С для трубопровода Дн = 89 мм;
ОПОРА 89-ТХ-АС12-09Г2С-ТУ......
То же с креплениями полухомутовпод углом:
ОПОРА 89-ТХ-АС12У-09Г2С-ТУ......
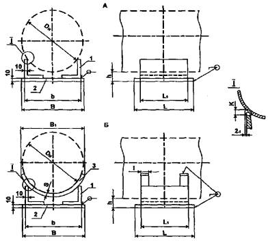
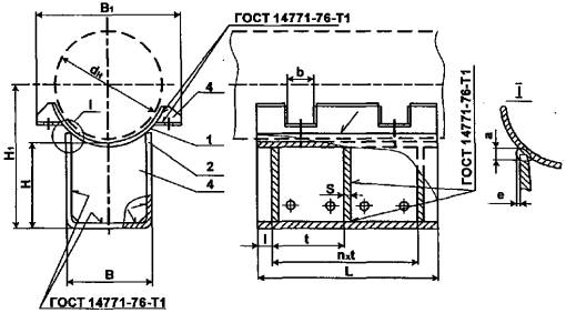
ОПОРЫ КОРПУСНЫЕ ПРИВАРНЫЕ - тип КП


Сварные монтажные швы по ГОСТ5264-80
1 - корпус; 2 - ребро; 3 - подушка
Остальные размеры корпусов опор Б12, Б22, Б13, Б23, БС12, БС22, БС13, БС23 также, как и у опор А12, А22, А13, А23, АС12, АС22, АС13, АС23 соответственно.
Корпуса могут быть сварного варианта (черт.4, табл.6)
Чертёж 3
СВАРНЫЕ КОРПУСА ОПОР

Размеры, мм
| Наружный диаметр трубопровода, Dн | Исполнение | h | h1 | h2 | В | s | В1 | L | Длина развертки подушки | a | b | c | k | Масса, кг не более | Допускаемые нагрузки, кН | ||
| Вертикальная | Осевая Рz при | ||||||||||||||||
| Рx = Pz | Рx = 0,5Pz | ||||||||||||||||
| 1 | 2 | 3 | 4 | 5 | 6 | 7 | 8 | 9 | 10 | 11 | 12 | 13 | 14 | 15 | 16 | 17 | 18 |
| 57 | А11 | 100 | 110 | 98 | 50 | 3 | - | - | - | 30 | 5 | 5 | 6 | 1,3 | 2,5 | 5,5 | 8 |
| А12 | - | 2,6 | 15 | ||||||||||||||
| А21 | 150 | 180 | 148 | 1,8 | 5,5 | 8 | |||||||||||
| А22 | - | 3,6 | 15 | ||||||||||||||
| 76 | А11 | 100 | 107 | 98 | 1,3 | 3,0 | 5,5 | 8 | |||||||||
| А12 | - | 2,5 | 15 | ||||||||||||||
| А21 | 150 | 157 | 148 | 1,8 | 5,5 | 8 | |||||||||||
| А22 | - | 3,5 | 15 | ||||||||||||||
| 89 | А11 | 100 | 108 | 98 | 1,2 | 5,0 | 5,5 | 8 | |||||||||
| А12 | - | 2,5 | 15 | ||||||||||||||
| А21 | 150 | 156 | 148 | 1,3 | 5,5 | 8 | |||||||||||
| А22 | - | 3,5 | 15 | ||||||||||||||
| 108 | А11 | 100 | 116 | 95 | 80 | 45 | 1,5 | 6,0 | 10,0 | 13 | |||||||
| А12 | - | 3,0 | 30,0 | 45 | |||||||||||||
| А21 | 150 | 165 | 145 | 2,1 | 8,0 | 10 | |||||||||||
| А22 | - | 4,2 | 25,0 | 38 | |||||||||||||
| 133 | А11 | 100 | 111 | 95 | 1,5 | 8,0 | 10,0 | 13 | |||||||||
| А12 | - | 3,0 | 30,0 | 45 | |||||||||||||
| А21 | 150 | 161 | 145 | 2,0 | 8,0 | 10 | |||||||||||
| А22 | - | 4,1 | 25,0 | 38 | |||||||||||||
| 159 | А11 | 100 | 109 | 95 | 1,5 | 10 | 10,0 | 13 | |||||||||
| А12 | - | 3,0 | 30,0 | 45 | |||||||||||||
| А21 | 150 | 159 | 145 | 2,0 | 8,0 | 10 | |||||||||||
| А22 | - | 4,1 | 25,0 | 38 | |||||||||||||
| 219 | А11 | 100 | 159 | 95 | 200 | 2,7 | 25 | - | - | ||||||||
| А12 | - | 6,1 | 60 | 85 | |||||||||||||
| А13 | 95 | 11,0 | 80 | 110 | |||||||||||||
| Б12 | 104 | - | 215 | 60 | 305 | 7,2 | 60 | 85 | |||||||||
| Б13 | 95 | 11,9 | 80 | 110 | |||||||||||||
| А21 | 150 | 209 | 145 | - | - | - | 3,4 | - | - | ||||||||
| А22 | - | 7,3 | 50 | 70 | |||||||||||||
| А23 | 145 | 13,8 | 70 | 95 | |||||||||||||
| Б22 | 152 | - | 215 | 60 | 306 | 8,2 | 50 | 70 | |||||||||
| Б23 | 145 | 14,2 | 70 | 95 | |||||||||||||
| 273 | А11 | 100 | 140 | 95 | - | - | - | 2,6 | - | - | |||||||
| А12 | - | 4 | 7,1 | 40 | 60 | 85 | |||||||||||
| А13 | 95 | 133 | 80 | 110 | |||||||||||||
| Б12 | - | 220 | 60 | 260 | 8,1 | 60 | 85 | ||||||||||
| Б13 | 95 | 14,3 | 80 | 110 | |||||||||||||
| А21 | 150 | 190 | 145 | - | - | - | 3,2 | 25 | - | - | |||||||
| А22 | - | 9,0 | 40 | 50 | 70 | ||||||||||||
| А23 | 145 | 16,6 | 70 | 95 | |||||||||||||
| Б22 | - | 220 | 60 | 260 | 10,0 | 50 | 70 | ||||||||||
| Б23 | 145 | 17,6 | 70 | 95 | |||||||||||||
| 325 | А11 | 100 | 131 | 90 | 200 | 4 | - | - | - | 60 | 5 | 6 | 6 | 3,3 | 50 | - | - |
| А12 | - | 6,9 | 70 | 60 | 85 | ||||||||||||
| А13 | 90 | 12,8 | 80 | 110 | |||||||||||||
| Б12 | - | 220 | 60 | 245 | 7,9 | 60 | 85 | ||||||||||
| Б13 | 90 | 13,8 | 80 | 110 | |||||||||||||
| А21 | 150 | 181 | 140 | - | - | - | 4,2 | 50 | - | - | |||||||
| А22 | - | 8,7 | 70 | 50 | 70 | ||||||||||||
| А23 | 140 | 16,2 | 70 | 96 | |||||||||||||
| Б22 | - | 220 | 60 | 245 | 9,7 | 50 | 70 | ||||||||||
| Б23 | 140 | 17,2 | 70 | 96 | |||||||||||||
| 377 | А11 | 100 | 126 | 90 |
|
|
| 3,2 | 50 | - | - | ||||||
| А12 | - | - | - | - | 6,7 | 70 | 60 | 85 | |||||||||
| А13 | 90 |
|
|
| 12,5 | 80 | 110 | ||||||||||
| Б12 | - | 220 | 60 | 237 | 7,7 | 60 | 85 | ||||||||||
| Б13 | 90 | 13,5 | 80 | 110 | |||||||||||||
| А21 | 150 | 176 | 140 | - | - | - | 4,1 | 50 | - | - | |||||||
| А22 | - | 8,6 | 70 | 50 | 70 | ||||||||||||
| А23 | 140 | 15,7 | 70 | 96 | |||||||||||||
| Б22 | - | 220 | 60 | 237 | 9,6 | 50 | 70 | ||||||||||
| Б23 | 140 | 16,7 | 70 | 96 | |||||||||||||
| 426 | А11 | 100 | 122 | 90 | 6 | - | - | - | 8 | 8 | 10 | 4,6 | 60 | - | - | ||
| А12 | - | 9,8 | 80 | 90 | 125 | ||||||||||||
| А13 | 90 | 18,3 | 120 | 170 | |||||||||||||
| Б12 | - | 220 | 60 | 234 | 11,2 | 90 | 125 | ||||||||||
| Б13 | 90 | 19,7 | 120 | 170 | |||||||||||||
| А21 | 150 | 172 | 140 | - | - | - | 6,1 | 60 | - | - | |||||||
| А22 | - | 12,5 | 80 | 80 | 110 | ||||||||||||
| А23 | 140 | 23,2 | 105 | 150 | |||||||||||||
| Б22 | - | 220 | 60 | 234 | 13,9 | 80 | 110 | ||||||||||
| Б23 | 140 | 24,6 | 105 | 150 | |||||||||||||
| 530 | А11 | 100 | 143 | 90 | 300 | - | - | - | 6,3 | 80 | - | - | |||||
| А12 | - | 13,7 | 120 | 110 | 145 | ||||||||||||
| А13 | 90 | 25,1 | 150 | 200 | |||||||||||||
| Б12 | - | 350 | 70 | 376 | 16,4 | 110 | 145 | ||||||||||
| Б13 | 90 | 27,8 | 150 | 200 | |||||||||||||
| А21 | 150 | 193 | 140 | - | - | - | 8,0 | 80 | - | - | |||||||
| А22 | - | 17,1 | 120 | 100 | 130 | ||||||||||||
| А23 | 140 | 30,9 | 140 | 180 | |||||||||||||
| Б22 | - | 350 | 70 | 376 | 19,8 | 100 | 130 | ||||||||||
| Б23 | 140 | 33,6 | 140 | 180 | |||||||||||||
| 630 | А11 | 100 | 135 | 90 | - | - | - | 6,2 | 80 | - | - | ||||||
| А12 | - | 13,3 | 120 | 110 | 145 | ||||||||||||
| А13 | 90 | 24,4 | 150 | 200 | |||||||||||||
| Б12 | - | 350 | 70 | 367 | 16,0 | 110 | 145 | ||||||||||
| Б13 | 90 | 27,1 | 150 | 200 | |||||||||||||
| А21 | 150 | 185 | 140 |
|
|
| 7,9 | 80 | - | - | |||||||
| А22 | - | - | - | - | 16,6 | 120 | 100 | 130 | |||||||||
| А23 | 140 |
|
|
| 30,2 | 140 | 180 | ||||||||||
| Б22 | - | 350 | 70 | 367 | 19,3 | 100 | 130 | ||||||||||
| Б23 | 140 | 32,9 | 140 | 180 | |||||||||||||
| 720 | А12 | 100 | 125 | - | 8 | - | - | - | 70 | 10 | 12 | 17,0 | 200 | 125 | 160 | ||
| А13 | 90 | 31,1 | 175 | 220 | |||||||||||||
| Б12 | - | 350 | 70 | 358 | 20,5 | 125 | 160 | ||||||||||
| Б13 | 90 | 34,6 | 175 | 220 | |||||||||||||
| А22 | 150 | 176 | - | - | - | - | 21,3 | 115 | 150 | ||||||||
| А23 | 140 | 38,8 | 165 | 210 | |||||||||||||
| Б22 | - | 350 | 70 | 358 | 24,8 | 115 | 150 | ||||||||||
| Б23 | 140 | 42,3 | 165 | 210 | |||||||||||||
| 1020 | А12 | 100 | 161 | - | 500 | - | - | - | 12 | 27,6 | 340 | 140 | 175 | ||||
| А13 | 90 | 49,3 | 200 | 250 | |||||||||||||
| Б12 | - | 560 | 120 | 588 | 37,3 | 140 | 175 | ||||||||||
| Б13 | 90 | 59,0 | 200 | 250 | |||||||||||||
| А22 | 150 | 211 | - | - | - | - | 33,3 | 130 | 165 | ||||||||
| А23 | 140 | 69,0 | 185 | 235 | |||||||||||||
| Б22 | - | 560 | 120 | 588 | 43,0 | 130 | 165 | ||||||||||
| Б23 | 140 | 68,7 | 185 | 235 | |||||||||||||
| 1220 | А12 | 100 | 180 | - | - | - | - | 26,8 | 400 | 140 | 175 | ||||||
| А13 | 90 | 47,9 | 200 | 250 | |||||||||||||
| Б12 | - | 560 | 120 | 577 | 36,4 | 140 | 175 | ||||||||||
| Б13 | 90 | 57,6 | 200 | 250 | |||||||||||||
| А22 | 150 | 200 | - | - | - | - | 32,5 | 130 | 165 | ||||||||
| А23 | 140 | 57,6 | 185 | 235 | |||||||||||||
| Б22 | - | 560 | 120 | 577 | 42,1 | 130 | 165 | ||||||||||
| Б23 | 140 | 67,2 | 185 | 235 | |||||||||||||
| 1420 | А12 | 100 | 142 | - | 10 | - | - | - | 32,5 | 450 | 150 | 190 | |||||
| А13 | 90 | 58,2 | 210 | 270 | |||||||||||||
| Б12 | - | 560 | 120 | 571 | 44,8 | 150 | 190 | ||||||||||
| Б13 | 90 | 70,0 | 210 | 270 | |||||||||||||
| А22 | 150 | 192 | - | - | - | - | 39,5 | 140 | 180 | ||||||||
| А23 | 140 | 70,3 | 200 | 250 | |||||||||||||
| Б22 | - | 560 | 120 | 571 | 51,3 | 140 | 180 | ||||||||||
| Б23 | 140 | 82,1 | 200 | 250 | |||||||||||||
Примечание:
1. Допускаетсявыполнить вырез под спутник с другими размерами.
2. Для опор свырезом для спутника в обозначении исполнения после цифр добавляется «в».
3.Значения массы опор со сварными корпусами на 3 % выше указанных в таблице.
Пример условного обозначенияопоры типа КП исполнения А21 из стали марки ВСт3пс для трубопровода Дн =630 мм:
ОПОРА 630-КП-А21-ВСт3пс-ТУ......
То же со сварным корпусом ивырезом для спутника:
ОПОРА 630-КП-АС21в-ВСт3пс-ТУ......
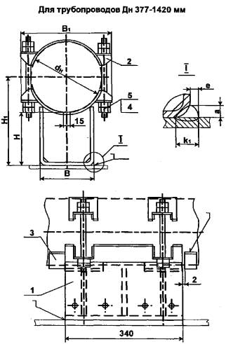
ОПОРЫ КОРПУСНЫЕ ХОМУТОВЫЕ - шип КХ

Сварные монтажные швы по ГОСТ5264-80
Катет - по наименьшей толщине свариваемых деталей, варить сплошным швом (см.черт. 3 вид IV, табл. 6)
1 - опора типа КП соответственно того оке исполнения (черт. 3, 4, табл. 6); 2 - полухомут (черт. 15. табл. 17); 3-болт по ГОСТ7798-70 с гайкой по ГОСТ5915-70; 4 - упор (черт. 3, 4 табл. 18)
Чертёж 5
Размеры, мм
| Наружный диаметр трубопровода, Dн | Исполнение | h | В | В1 | Размеры болта d*1 | Масса, кг не более | Допускаемые нагрузки, кН | ||
| Вертикальная Qy | Осевая Рz при | ||||||||
| Рx = Pz | Рx = 0,5Pz | ||||||||
| 1 | 2 | 3 | 4 | 5 | 6 | 7 | 8 | 9 | 10 |
| 57 | А11 | 102 | 50 | 142 | М12´40 | 2,1 | 2,5 | 3,0 | 3,0 |
| А12 | 4,2 | 15,0 | |||||||
| А21 | 152 | 2,5 | 3,0 | 3,0 | |||||
| А22 | 5,2 | 15,0 | |||||||
| 76 | А11 | 101 | 160 | 2,2 | 3,0 | 3,0 | 3,0 | ||
| А12 | 4,3 | 15,0 | |||||||
| А21 | 151 | 2,7 | 3,0 | 3,0 | |||||
| А22 | 6,3 | 15,0 | |||||||
| 89 | А11 | 100 | 179 | 2,2 | 5,0 | 3,0 | 3,0 | ||
| А12 | 4,5 | 15,0 | |||||||
| А21 | 150 | 2,8 | 3,0 | 3,0 | |||||
| А22 | 5,5 | 15,0 | |||||||
| 108 | А11 | 103 | 80 | 200 | М16´50 | 5,4 | 6,0 | 10 | 13 |
| А12 | 6,9 | 30 | 45 | ||||||
| А21 | 153 | 6,0 | 8 | 10 | |||||
| А22 | 8,1 | 25 | 38 | ||||||
| 133 | А11 | 101 | 250 | 6,3 | 8,0 | 10 | 13 | ||
| А12 | 7,8 | 30 | 45 | ||||||
| А21 | 151 | 6,8 | 8 | 10 | |||||
| А22 | 8,9 | 25 | 38 | ||||||
| 159 | А11 | 101 | 275 | 6,9 | 10,0 | 10 | 13 | ||
| А12 | 8,4 | 30 | 45 | ||||||
| А21 | 151 | 7,4 | 8 | 10 | |||||
| А22 | 9,5 | 25 | 38 | ||||||
| 219 | А11 | 109 | 200 | 365 | М20´60 | 13,4 | 25,0 | - | - |
| А12 | 16,8 | 60 | 85 | ||||||
| А13 | 21,7 | 80 | 110 | ||||||
| А21 | 159 | 14,1 | - | - | |||||
| А22 | 18,0 | 50 | 70 | ||||||
| А23 | 24,0 | 70 | 95 | ||||||
| 273 | А11 | 103 | 420 | 15,1 | 25 | - | - | ||
| А12 | 104 | 19,6 | 40 | 60 | 85 | ||||
| А13 | 25,8 | 80 | 110 | ||||||
| А21 | 153 | 15,7 | 25 | - | - | ||||
| А22 | 154 | 21,5 | 40 | 50 | 70 | ||||
| А23 | 29,1 | 70 | 95 | ||||||
| 325 | А11 | 102 | 470 | 17,4 | 50 | - | - | ||
| А12 | 21,0 | 70 | 60 | 85 | |||||
| А13 | 26,9 | 80 | 110 | ||||||
| А21 | 152 | 18,3 | 50 | - | - | ||||
| А22 | 22,8 | 70 | 50 | 70 | |||||
| А23 | 30,3 | 70 | 95 | ||||||
| 377 | А11 | 101 | 200 | 525 | М20´60 | 19,1 | 50 | - | - |
| А12 | 22,6 | 70 | 60 | 85 | |||||
| А13 | 28,4 | 80 | 110 | ||||||
| А21 | 151 | 20,0 | 50 | - | - | ||||
| А22 | 24,5 | 70 | 50 | 70 | |||||
| А23 | 31,6 | 70 | 95 | ||||||
| 426 | АН | 101 | 575 | 22,1 | 60 | - | - | ||
| А12 | 27,3 | 80 | 90 | 125 | |||||
| А13 | 35,8 | 120 | 170 | ||||||
| А21 | 151 | 23,6 | 60 | - | - | ||||
| А22 | 30,0 | 80 | 80 | 110 | |||||
| А23 | 40,7 | 105 | 150 | ||||||
| 530 | А11 | 103 | 300 | 705 | М24´80 | 36,5 | 80 | - | - |
| А12 | 43,9 | 120 | 110 | 145 | |||||
| А13 | 55,3 | 150 | 200 | ||||||
| А21 | 153 | 38,2 | 80 | - | - | ||||
| А22 | 47,3 | 120 | 100 | 130 | |||||
| А23 | 61,1 | 140 | 180 | ||||||
| 630 | А11 | 102 | 805 | 41,0 | 80 | - | - | ||
| А12 | 48,1 | 120 | 110 | 145 | |||||
| А13 | 59,2 | 150 | 200 | ||||||
| А21 | 152 | 42,7 | 80 | - | - | ||||
| А22 | 51,4 | 120 | 100 | 130 | |||||
| А23 | 65,0 | 140 | 180 | ||||||
Примечание:
1. Значениямассы опор со сварными корпусами на 3 % выше указанных в таблице 5.
2.Значения массы опор приведены без учёта массы упоров.
Пример условного обозначенияопоры типа КХ исполнения А13 из стали ВСт3пс для трубопровода Дн =219 мм:
Опора 219-КХ-А13-ВСт3пс-ТУ......
То же со сварным корпусом ивырезом для спутника:
Опора 219-КХ-АС13в-ВСтп3пс-ТУ......
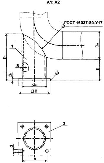
ОПОРЫ ТРУБЧАТЫЕ - тип ТР

Сварные монтажные швы по ГОСТ5264-80
Катет - по наименьшей толщине свариваемых деталей.
1 - Патрубок; 2 - плита.
Чертёж 6
Таблица 8
Размеры, мм
| Наружный диаметр трубопровода, Dн | Исполнение | h | dн | s | В | s1 | е | d | Масса, кг не более | Допускаемые нагрузки, кН | ||
| Вертикальная Qy | Осевая Рz при | |||||||||||
| Рx = Pz | Рx = 0,5Pz | |||||||||||
| 1 | 2 | 3 | 4 | 5 | 6 | 7 | 8 | 9 | 10 | и | 12 | 13 |
| 57 | А1 | 100 | 57 | 3 | 100 | 10 | 65 | 14 | 1,4 | 3 | 2,0 | 2,5 |
| А2 | 150 | 1,6 | ||||||||||
| Б1 | 100 | - | - | - | - | 0,5 | - | 2,0 | 2,1 | |||
| Б2 | 150 | 0,7 | ||||||||||
| 89 | А1 | 100 | 76 | 120 | 10 | 85 | 14 | 1,9 | 6 | 6,0 | 7,5 | |
| А2 | 150 | 2,2 | 4,5 | 5,5 | ||||||||
| Б1 | 100 | - | - | - | - | 0,7 | - | 6,0 | 7,5 | |||
| Б2 | 150 | 1,0 | 4,5 | 5,5 | ||||||||
| 133 159 | А1 | 100 | 108 | 4 | 135 | 12 | 105 | 18 | 3,2 | 10 | 14,0 | 17,0 |
| А2 | 150 | 3,8 | 11,0 | 13,0 | ||||||||
| Б1 | 100 | - | - | - | - | 1,3 | - | 14,0 | 17,0 | |||
| Б2 | 150 | 1,9 | 11,0 | 13,0 | ||||||||
| 219 273 | А1 | 100 | 159 | 6 | 180 | 14 | 140 | 18 | 7,0 | 40 | 35,0 | 43,0 |
| А2 | 150 | 8,8 | 26,0 | 32,0 | ||||||||
| Б1 | 100 | - | - | - | - | 3,0 | - | 35,0 | 43,0 | |||
| Б2 | 150 | 4,3 | 26,0 | 32,0 | ||||||||
| 325 | А1 | 100 | 219 | 250 | 16 | 200 | 26 | 12,9 | 70 | 48,0 | 61,0 | |
| А2 | 150 | 14,7 | 41,0 | 51,0 | ||||||||
| Б1 | 100 | - | - | - | - | 4,3 | - | 48,0 | 61,0 | |||
| Б2 | 150 | 6,1 | 41,0 | 51,0 | ||||||||
| 377 426 | А1 | 100 | 273 | 8 | 300 | 16 | 240 | 26 | 20,2 | 80 | 85,0 | 110,0 |
| А2 | 150 | 23,2 | 70,0 | 90,0 | ||||||||
| Б1 | 100 | - | - | - | - | 7,5 | - | 85,0 | 110,0 | |||
| Б2 | 150 | 10,5 | 70,0 | 90,0 | ||||||||
| 530 | А1 | 100 | 325 | 380 | 20 | 300 | 30 | 34,1 | 120 | 100,0 | 120,0 | |
| А2 | 150 | 37,7 | 90,0 | 100,0 | ||||||||
| Б1 | 100 | - | - | - | - | 9,1 | - | 100,0 | 120,0 | |||
| Б2 | 150 | 12,8 | 90,0 | 100,0 | ||||||||
| 630 | А1 | 100 | 426 | 10 | 450 | 25 | 370 | 39 | 60,4 | 120 | 205,0 | 250,0 |
| А2 | 150 | 66,3 | 180,0 | 230,0 | ||||||||
| Б1 | 100 | - | - | - | - | 16,7 | - | 205,0 | 250,0 | |||
| Б2 | 150 | 22,6 | 180,0 | 230,0 | ||||||||
Примечание:
Дляопор с отверстиями в плите в обозначении исполнения после цифр добавляется «О».
Пример условного обозначенияопоры типа ТР исполнения А1 из стали 20 для трубопровода Дн = 219мм:
Опора 219-ТР-А1-20-ТУ......
То же с отверстиями в плите:
Опора 219-ТР-А10-20-ТУ......
ОПОРЫ ШВЕЛЛЕРНЫЕ ПРИВАРНЫЕ - тип ШП

Сварные монтажные швы по ГОСТ5264-80
Катет - по наименьшей толщине свариваемых деталей.
1 - Швеллер по ГОСТ 8240-89.
Чертёж 7.
Таблица 9
Размеры, мм
| Наружный диаметр трубопровода, Dн | Исполнение | L | № швеллера | В | h | К | К1 - катет шва | Масса, кг не более | Допускаемые нагрузки, кН | |
| Вертикальная Qy | Осевая Рz при Рx = 0,2Pz | |||||||||
| 57 | А1 | 100 | 5 | 50 | 17 | 4 | 4 | 0,5 | 2,5 | 10 |
| А2 | 200 | 1,0 | ||||||||
| 76 | А1 | 100 | 23 | 0,5 | 3,0 | |||||
| А2 | 200 | 1,0 | ||||||||
| 89 | А1 | 100 | 8 | 80 | 15 | 0,7 | 5,0 | 20 | ||
| А2 | 200 | 1,4 | 30 | |||||||
| 108 | А1 | 100 | 22 | 0,7 | 6,0 | 20 | ||||
| А2 | 200 | 1,4 | 30 | |||||||
| 133 | А1 | 100 | 10 | 100 | 23 | 0,9 | 8,0 | 30 | ||
| А2 | 250 | 2,1 | 50 | |||||||
| 159 | А1 | 100 | 28 | 0,9 | 10,0 | 30 | ||||
| А2 | 250 | 2,1 | 50 | |||||||
| 219 | А1 | 100 | 12 | 120 | 34 | 6 | 6 | 1,6 | 20,0 | 50 |
| А2 | 250 | 2,6 | 75 | |||||||
| 273 | А1 | 200 | 38 | 2,1 | 25,0 | 60 | ||||
| А2 | 300 | 3,1 | 40,0 | 90 | ||||||
| 325 | А1 | 200 | 40 | 2,1 | 25,0 | 50 | ||||
| А2 | 300 | 3,1 | 40,0 | 80 | ||||||
| 377 | А1 | 200 | 16 | 160 | 46 | 2,8 | 30,0 | 70 | ||
| А2 | 300 | 4,3 | 50,0 | 100 | ||||||
| 426 | А1 | 200 | 48 | 2,8 | 30,0 | 60 | ||||
| А2 | 300 | 4,3 | 50,0 | 90 | ||||||
| 530 | А1 | 250 | 20 | 200 | 56 | 8 | 4,6 | 50,0 | 80 | |
| А2 | 400 | 7,4 | 70,0 | 120 | ||||||
| 630 | А1 | 250 | 60 | 4,6 | 80,0 | 65 | ||||
| А2 | 400 | 7,4 | 120 | |||||||
| 820 | А1 | 400 | 30 | 300 | 72 | 10 | 8 | 12,7 | 100,0 | 120 |
Пример условногообозначения опоры типа ШП исполнения А2 из стали ВСт3пс для трубопровода Дн= 273 мм:
Опора 273-ШП-А2-ВСт3пс-ТУ......
ОПОРЫ УГОЛЬНЫЕ ПРИВАРНЫЕ - тип УП

Сварные монтажные швы по ГОСТ5264-80
Катет - по наименьшей толщине свариваемых деталей,
1 - Уголок 125´125´10по ГОСТ 8509-93,2 - плита, 3 - подушка
Чертёж 8.
Таблица 10
Размеры, мм
| Наружный диаметр трубопровода, Dн | Исполнение | В | b | h | L | L1 | В1 | I | S | Длина развёртки подушки | Масса, кг не более | Допускаемые нагрузки, кН | |
| Вертикальная Qy | Осевая Рz при Рx = 0,2Pz | ||||||||||||
| 1020 | А | 420 | 400 | 53 | 400 | 380 | - | - | - | - | 25,0 | 150 | 100 |
| Б | 560 | 120 | 8 | 588 | 32,4 | ||||||||
| 1220 | А | 520 | 500 | 41 | 500 | 480 | - | - | - | - | 35,3 | 200 | 150 |
| Б | 560 | 120 | 8 | 577 | 44,8 | ||||||||
| 1420 | А | 520 | 500 | 48 | 550 | 530 | - | - | - | - | 38,9 | 250 | 130 |
| Б | 560 | 120 | 10 | 571 | 50,7 | ||||||||
Пример условного обозначенияопоры типа УП исполнения А из стали ВСт3пс для трубопровода Дн =1220 мм:
Опора 1220-Ж-А-ВСт3пс-ТУ......
ОПОРЫ ХОМУТОВЫЕ БЕСКОРПУСНЫЕ - шип ХБ

Сварные монтажные швы по ГОСТ5264-80
Катет - по наименьшей толщине свариваемых деталей.
1 - Хомут (черт.10, табл.12), 2 - гайка по ГОСТ5915-70, 3 - подушка (черт. 16,табл.18)
Чертёж 9
Таблица 11
Размеры, мм
| Наружный диаметр трубопровода, Dн | Исполнение | d | е | S, не более | Масса, кг, не более опоры исполнения | Допускаемая осевая нагрузка Р для опор исп. Б, кН | |
| А, Б | B, Г | ||||||
| 1 | 2 | 3 | 4 | 5 | 6 | 7 | 8 |
| 25 | А; Б; В; Г | М10 | 38 | 10 | 0,1 | 0,1 | 0,4 |
| 32 | 44 | 0,1 | 0,1 | ||||
| 38 | 50 | 12 | 0,2 | 0,1 | 0,8 | ||
| 45 | 60 | 0,2 | 0,1 | ||||
| 57 | А; Б; В; Г | М12 | 74 | 14 | 0,3 | 0,2 | 5,0 |
| 76 | 94 | 0,4 | 0,3 | ||||
| 89 | 106 | 0,4 | 0,3 | ||||
| 108 | М16 | 130 | 16 | 0,8 | 0,6 | ||
| 133 | 154 | 1,0 | 0,7 | 10,0 | |||
| 159 | М20 | 190 | 20 | 1,8 | 1,3 | ||
| 219 | А; Б | 244 | 22 | - | 20,0 | ||
| 273 | 300 | 2,6 | |||||
| 325 | 352 | 3,0 | |||||
| 377 | М24 | 410 | 30 | 5,0 | 30,0 | ||
| 426 | 460 | 5,5 | |||||
| 530 | 570 | 6,6 | |||||
Примечание:
1. Значениямассы опор приведены без учёта массы подушек.
2.Для опор исполнения Г усилие Рz уменьшить соответственно в 2раза.
Пример условного обозначенияопоры типа ХБ исполнения А из стали ВСт3пс для трубопровода Дн = 530мм:
Опора 530-ХБ-А-ВСт3пс-ТУ......
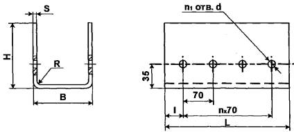
ХОМУТ

Чертёж 10
Таблица 12
Размеры, мм
| Наружный диаметр трубопровода, Dн | r | е | d | I | I1 | с | Длина развёртки опор исполнения | Масса, кг не более, опор исполнения | ||
| А; Б | В; Г | А; Б | В; Г | |||||||
| 1 | 2 | 3 | 4 | 5 | 6 | 7 | 8 | 9 | 10 | 11 |
| 25 | 14 | 38 | М10 | 36 | 30 | 1,5 | 132 | 101 | 0,09 | 0,07 |
| 32 | 17 | 44 | 38 | 145 | 112 | 0,10 | 0,08 | |||
| 38 | 20 | 50 | 50 | 40 | 179 | 134 | 0,12 | 0,09 | ||
| 45 | 25 | 60 | 50 | 194 | 149 | 0,13 | 0,10 | |||
| 57 | 31 | 74 | М12 | 69 | 55 | 2,0 | 254 | 190 | 0,25 | 0,19 |
| 76 | 41 | 94 | 79 | 306 | 232 | 0,30 | 0,23 | |||
| 89 | 47 | 106 | 83 | 332 | 255 | 0,32 | 0,25 | |||
| 108 | 57 | 180 | М16 | 103 | 65 | 410 | 312 | 0,71 | 0,54 | |
| 133 | 69 | 154 | 116 | 474 | 363 | 0,82 | 0,63 | |||
| 159 | 86 | 190 | М20 | 140 | 85 | 2,5 | 578 | 443 | 1,57 | 1,20 |
| 219 | 112 | 244 | 173 | 729 | - | 1,98 | - | |||
| 273 | 140 | 300 | 200 | 871 | 2,36 | |||||
| 325 | 166 | 352 | 228 | 1011 | 2,74 | |||||
| 377 | 193 | 410 | М24 | 267 | 3,0 | 1178 | 4,50 | |||
| 426 | 218 | 460 | 292 | 1306 | 5,08 | |||||
| 530 | 273 | 570 | 343 | 1581 | 6,17 | |||||
ОПОРЫ ТРУБЧАТЫЕ КРУТОИЗОГНУТЫХ ОТВОДОВ - тип ТО

Сварные монтажные швы по ГОСТ5264-80
Катет - по наименьшей толщине свариваемых деталей.
1 - Патрубок, 2 - Плита
Чертёж 11
Таблица 13
Размеры, мм
| Наружный диаметр трубопровода, Dн | Исполнение | h | h1 | dн | S | В | S1 | е | d | Масса, кг не более | Допускаемые нагрузки, кН | ||
| Вертикальная Qy | Осевая Рz при | ||||||||||||
| Рx = Pz | Рx = 0,5Pz | ||||||||||||
| 57 | А1 | 100 | 169 | 45 | 3 | 100 | 10 | 65 | 14 | 1,2 | 1,0 | 1,5 | 2,0 |
| А2 | 150 | 210 | 1,4 | ||||||||||
| 76 | А1 | 100 | 108 | 57 | 1,5 | 2,0 | 2,0 | 2,5 | |||||
| А2 | 150 | 238 | 1,8 | ||||||||||
| 89 | А1 | 100 | 219 | 76 | 120 | 85 | 2,2 | 2,5 | 4,0 | 5,0 | |||
| А2 | 150 | 269 | 2,6 | ||||||||||
| 108 | А1 | 100 | 225 | 2,3 | 3,0 | ||||||||
| А2 | 150 | 275 | 2,6 | ||||||||||
| 133 | А1 | 100 | 277 | 108 | 4 | 135 | 12 | 105 | 18 | 4,2 | 6,0 | 8,0 | 10,0 |
| А2 | 150 | 327 | 4,8 | ||||||||||
| 159 | А1 | 100 | 283 | 4,3 | 8,0 | ||||||||
| А2 | 150 | 339 | 4,9 | ||||||||||
| 219 | А1 | 100 | 356 | 159 | 6 | 180 | 14 | 140 | 10,3 | 20,0 | 20,0 | 25,0 | |
| А2 | 150 | 406 | 11,6 | ||||||||||
| 273 | А1 | 100 | 377 | 11,6 | |||||||||
| А2 | 150 | 427 | 12,8 | ||||||||||
| 325 | А1 | 100 | 463 | 219 | 250 | 16 | 200 | 26 | 20,1 | 25,0 | 25,0 | 30,0 | |
| А2 | 150 | 513 | 22,0 | ||||||||||
| 377 | А1 | 100 | 546 | 273 | 8 | 300 | 240 | 34,4 | 35,0 | 40,0 | 50,0 | ||
| А2 | 150 | 596 | 37,4 | ||||||||||
| 426 | А1 | 100 | 569 | 35,9 | |||||||||
| А2 | 150 | 619 | 38,9 | ||||||||||
| 530 | А1 | 100 | 482 | 325 | 380 | 20 | 300 | 30 | 47,3 | 40,0 | 50,0 | 100,0 | |
| А2 | 150 | 532 | 50,9 | ||||||||||
| 630 | А1 | 100 | 595 | 426 | 10 | 450 | 25 | 370 | 39 | 86,8 | 70,0 | 120,0 | 140,0 |
| А2 | 150 | 645 | 92,7 | ||||||||||
Примечание:
Дляопор с отверстиями в плите в обозначении исполнения после цифр добавляется «О».
Пример условного обозначенияопоры типа ТО исполнения А1 из стали 20 для трубопровода Дн = 219мм:
Опора 219-ТО-А1-20-ТУ......
То же с отверстиями в плите:
Опора 219-ТО-А10-20-ТУ......
ОПОРЫ ВЕРТИКАЛЬНЫХ ТРУБОПРОВОДОВ - тип ВП

Сварные монтажные швы по ГОСТ5264-80
Катет - по наименьшей толщине свариваемых деталей,
1 - Корпус штампованный или сварной, 2 - Накладка
Чертёж 12
Таблица 14
Размеры, мм
| Наружный диаметр трубопровода, Dн | Исполнение | I | В | h | S | В1 | Н | Масса, кг не более | Допускаемая нагрузка, кН |
| 57; 76; 89 | А1 | 100 | 40 | 100 | 3 | - | - | 2,4 | 8 |
| А2 | 150 | 2,6 | |||||||
| 108 133 159 219 | А1 | 100 | 80 | 150 | 4 | - | - | 0,9 | 15 |
| Б1* | 100 | 190 | 1,7 | ||||||
| А2 | 250 | - | - | 2,2 | |||||
| Б2* | 100 | 190 | 3,0 | ||||||
| 273 325 377 426 | А1 | 150 | 200 | 200 | 6 | - | - | 3,4 | 40 |
| Б1 | 240 | 250 | 7,1 | ||||||
| А2 | 300 |
| - | 6,6 | |||||
| Б2 | 240 | 250 | 10,3 | ||||||
| 530 630 820 1020 | А1 | 200 | 300 | 8 | - | - | 7,4 | 100 | |
| Б1 | 240 | 400 | 14,0 | ||||||
| А2 | 350 | - | - | 12,6 | |||||
| Б2 | 240 | 400 | 19,2 | ||||||
| 1220 1420 | А1 | 300 | 400 | 10 | - | - | 16,2 | 160 | |
| Б1 | 250 | 500 | 27,0 | ||||||
| А2 | 450 | - | - | 18,6 | |||||
| Б2 | 250 | 500 | 29,7 |
Примечание:
* Исполнениетолько для Дн = 219 мм.
Значениямассы опор со сварными корпусами на 3% выше указанных в таблице.
Пример условного обозначенияопоры типа ВП исполнения Б2 из стали 09Г2С для трубопровода Дн = 325мм:
Опора 325-ВП-Б2-09Г2С-ТУ......
То же со сварным корпусом:
Опора 325-ВП-БС2-09Г2С-ТУ......
ОПОРЫ КАТКОВЫЕ НАПРАВЛЯЮЩИЕ - тип КН


Сварные монтажные швы по ГОСТ5264-80
Катет - по наименьшей толщине свариваемых деталей.
1, 2 - Опоры соответственно типов КП так же исполнений (черт. 3, 4, табл. 6); *КХ тех же цифровых исполнений (черт.5, табл. 7);3 - каток из блока типа БлОК по ГОСТ 14097-77; 4 - катки с угольником из блокатипа БлДК по ГОСТ 14097-77; 5 - опорная плита из блока типа БлДК по ГОСТ14097-77; 6 - опорная плита (черт. 14, табл.16)
Чертёж 13
Таблица 15
Размеры, мм
| Наружный диаметр трубопровода, Dн | Исполнение | В | b | Длина катка | Масса, кг не более | Наружный диаметр трубопровода, Dн | Исполнение | В | b | Длина катка | Масса, кг не более |
| 219 | А11 | 200 | 320 | 300 | 17,5 | 325 | А11 | 200 | 320 | 300 | 18,1 |
| X11 | 27,1 | X11 | 31,1 | ||||||||
| А12 | 320 | 39,9 | А12 | 320 | 40,7 | ||||||
| А13 | 62,5 | А13 | 64,3 | ||||||||
| Б12 | 40,8 | Б12 | 41,7 | ||||||||
| Б13 | 63,4 | Б13 | 85,3 | ||||||||
| Х12 | 49,5 | Х12 | 53,7 | ||||||||
| Х13 | 72,1 | Х13 | 77,3 | ||||||||
| 273 | А11 | 300 | 17,4 | 377 | А11 | 300 | 18,1 | ||||
| X11 | 28,8 | X11 | 32,9 | ||||||||
| А12 | 320 | 40,9 | А12 | 320 | 40,5 | ||||||
| А13 | 64,8 | А13 | 64,0 | ||||||||
| Б12 | 41,9 | Б12 | 41,5 | ||||||||
| Б13 | 65,8 | Б13 | 65,0 | ||||||||
| Х12 | 62,3 | Х12 | 55,3 | ||||||||
| Х13 | 76,2 | Х13 | 78,3 | ||||||||
| 426 | А11 | 300 | 19,5 | 630 | А11 | 300 | 420 | 400 | 26,8 | ||
| X11 | 35,9 | X11 | 59,6 | ||||||||
| А12 | 320 | 43,6 | А12 | 420 | 59,8 | ||||||
| А13 | 69,3 | А13 | 91,2 | ||||||||
| Б12 | 45,0 | Б12 | 61,5 | ||||||||
| Б13 | 71,2 | Б13 | 93,9 | ||||||||
| Х12 | 60,0 | Х12 | 92,6 | ||||||||
| Х13 | 86,2 | Х13 | 124,0 | ||||||||
| 630 | А11 | 300 | 420 | 400 | 27,0 | 820 | А12 | 63,5 | |||
| X11 | 55,2 | А13 | 97,9 | ||||||||
| А12 | 420 | 60,2 | Б12 | 67,0 | |||||||
| А13 | 91,9 | Б13 | 101,4 | ||||||||
| Б12 | 61,5 | 1020 | А12 | 500 | 620 | 620 | 95,0 | ||||
| Б13 | 94,6 | А13 | 146,4 | ||||||||
| Х12 | 88,4 | Б12 | 104,0 | ||||||||
| Х13 | 120,1 | Б13 | 156,3 | ||||||||
| 1220 | А12 | 500 | 620 | 620 | 94,5 | 1420 | А12 | 100,0 | |||
| А13 | 145,2 | А13 | 155,0 | ||||||||
| Б12 | 104,1 | Б12 | 112,0 | ||||||||
| Б13 | 154,8 | Б13 | 167,0 |
Примечание:
Допустимаявертикальная нагрузка Qy = 1,5 кН на 1 см, контактакаждого катка с опорной плитой.
Пример условного обозначенияопоры типа КН исполнения Б13 из стали ВСт3пс для трубопровода Дн =219 мм:
Опора 219-КН-Б13-ВСт3пс-ТУ.....
Опорная плита

Чертёж 14
Размеры, мм
| Наружный диаметр трубопровода, Dн | Исполнение | b | А | L | А1 | Масса, кг, не более |
| 219-426 | А11 | 320 | 258 | 200 | 150 | 5,5 |
| X11 | ||||||
| А13 | 700 | 660 | 20,2 | |||
| В13 | ||||||
| Х13 | ||||||
| 530; 630; 820 | А11 | 420 | 358 | 200 | 150 | 7,1 |
| X11 | ||||||
| А13 | 700 | 660 | 25,6 | |||
| В13 | ||||||
| Х13 | ||||||
| 1020-1420 | А13 | 620 | 558 | 700 | 38,5 | |
| В13 |
Полухомут

Размеры, мм
| Наружный диаметр трубопровода, Dн | m | S | B1 | M | d | f | Длина развёртки, мм | Масса, кг, не более |
| 18 | 30 | 4 | 85 | 55 | 14 | 3 | 95 | 0,08 |
| 25 | 91 | 61 | 97 | 0,09 | ||||
| 32 | 98 | 68 | 105 | 0,11 | ||||
| 38 | 104 | 74 | 116 | 0,12 | ||||
| 45 | 112 | 82 | 128 | 0,13 | ||||
| 57 | 40 | 6 | 142 | 102 | 4 | 161 | 0,33 | |
| 76 | 160 | 120 | 190 | 0,39 | ||||
| 89 | 179 | 189 | 6 | 212 | 0,44 | |||
| 108 | 50 | 8 | 200 | 160 | 18 | 241 | 0,83 | |
| 133 | 250 | 200 | 8 | 301 | 1,04 | |||
| 159 | 275 | 225 | 345 | 1,19 | ||||
| 219 | 60 | 10 | 365 | 305 | 23 | 10 | 454 | 2,40 |
| 273 | 420 | 360 | 549 | 2,84 | ||||
| 325 | 470 | 410 | 628 | 3,25 | ||||
| 377 | 525 | 455 | 713 | 3,69 | ||||
| 426 | 575 | 515 | 789 | 4,09 | ||||
| 530 | 70 | 12 | 705 | 635 | 27 | 12 | 974 | 7,05 |
| 630 | 805 | 735 | 1141 | 8,20 |
Подушка

Размеры, мм
| Наружный диаметр трубопровода, Dн | R | I | S | L | Длина развёртки, мм | Масса, кг, не более |
| 18 | 9 | 11 | 6 | 30 | 12 | 0,02 |
| 25 | 13 | |||||
| 32 | 16 | 19 | 40 | 20 | 0,04 | |
| 38 | 19 | |||||
| 45 | 23 | 24 | 25 | 0,05 | ||
| 57 | 29 | 33 | 8 | 35 | 0,10 | |
| 76 | 38 | |||||
| 89 | 45 | 34 | ||||
| 108 | 54 | 48 | 50 | 0,14 | ||
| 133 | 56 | 71 | 10 | 75 | 0,26 | |
| 159 | 80 | 72 | ||||
| 219 | 110 | 97 | 12 | 50 | 100 | 0,52 |
| 273 | 136 | 98 | ||||
| 325 | 162 | |||||
| 377 | 188 | 99 | 60 | 0,62 | ||
| 426 | 213 | 14 | 120 | 1,45 | ||
| 530 | 265 | |||||
| 630 | 315 | 100 |
Опора OПП1

Сварные монтажные швы по ГОСТ5264-80
Катет - по наименьшей толщине свариваемых деталей.
1 - корпус; 2 - ребро; 3 - проушина; 4 - хомут; 5 - гайка по ГОСТ5915-70.
Чертёж 17
Размеры опор ОПП1 и ОПХ1, мм
| dн | r | h | h1 | а | b | d |
| 18; 21,3 | 11 | 70 и 100 | 30 60 | 34 | 40 | М8 |
| 25; 26,8 | 14 | 38 | ||||
| 32; 33,5 | 17 | 44 | 60 | М10 | ||
| 38; 42,3 | 22 | 54 | ||||
| 45; 48 | 25 | 62 |
Примечание. Размер h1 дан для двух значений h: вчислителе для h = 70 мм и в знаменателе для h =100 мм.

Сварные монтажные швы по ГОСТ5264-80
Катет - по наименьшей толщине свариваемых деталей.
1 - корпус; 2 - ребро
Чертёж 18
Опора ОПХ2

Сварные монтажные швы по ГОСТ5264-80
Катет - по наименьшей толщине свариваемых деталей, 1 - корпус; 2 - ребро; 3 -проушина; 4 - хомут; 5 - гайка по ГОСТ5915-70; 6 - упор для dн = 377 мми более; 7-подушка
Чертёж 19, лист 1
Таблица 20
Размеры опор ОПП2 и ОПП3 высотой h = 100 и 150 мм
| dн | b | I | s | а |
| 57; 60; 75,5; 76 | 55 | 170 | 3 | 34 |
| 88,5; 89 | ||||
| 108; 114; 127; 133; 140 | 100 | 45 | ||
| 159; 165 | 4 | |||
| 194; 219; 273 | 190 | |||
| 325; 377; 426 | 280 | 220 | 6 | 60 |
| 480;530 | 400 | 70 | ||
| 630; 720; 820; 920 | 8 | |||
| 1020 | 10 | |||
| 1220; 1420; 1620 | 520 |

Чертёж 19, лист 2
Таблица 21
Размеры опор ОПХ2 и ОПХ3 высотой h =100 и 150 мм
| dн | h1 | а | а1 | b | b1 | I | L1 | I2 | s | d |
| 57; 60 | 35 | 86 | - | 55 | 34 | 170 | 50 | 30 | 3 | М10 |
| 75,5; 76 | 90 | М12 | ||||||||
| 88,5; 89 | 106 | 45 | ||||||||
| 108;114 | 45 | 136 | 120 | 100 | 38 | |||||
| 133 | 150 | М16 | ||||||||
| 159 | 180 | 4 | ||||||||
| 194 | 50 | 230 | 100 | 190 | 70 | 56 | ||||
| 219 | 242 | М20 | ||||||||
| 273 | 70 | 298 | М24 | |||||||
| 325 | 90 | 350 | 150 | 280 | 60 | 220 | 6 | |||
| 377 | 402 | |||||||||
| 426 | 110 | 456 | ||||||||
| 480 | 508 | 380 | 70 | |||||||
| 530 | 120 | 558 | 400 | |||||||
| 630 | 145 | 658 | 140 | 440 | 80 | 8 |
Опора ОПБ1

Сварные монтажные швы по ГОСТ5264-80
Катет - по наименьшей толщине свариваемых деталей.
1- Хомут; 2 - подушка; 3 - гайка по ГОСТ5915-70
Чертёж 20
Размеры опор ОПБ1 и ОПБ2, мм
| dн | r | а | b | L | h, не более | d |
| 18; 21,3 | 11 | 34 | 20 | 50 | 8 | М8 |
| 23; 26,8 | 14 | 38 | ||||
| 32; 33,5 | 17 | 44 | М10 | |||
| 38; 42,3 | 21 | 54 | ||||
| 44,5; 45; 48 | 24 | 62 | ||||
| 57; 60 | 29 | 70 | 50 | |||
| 75,5; 76 | 38 | 90 | М12 | |||
| 88,5; 89 | 45 | 106 | 100 | |||
| 108 | 54 | 122 | 12 | |||
| 114 | 57 | 136 | ||||
| 133 | 67 | 150 | 100 | 150 | М16 | |
| 159 | 80 | 180 | ||||
| 194 | 97 | 230 | 200 | |||
| 219 | 110 | 242 | 16 | М20 | ||
| 273 | 137 | 298 | 200 | |||
| 325 | 163 | 350 | ||||
| 377 | 189 | 402 | ||||
| 426 | 213 | 456 | 300 | М24 | ||
| 480 | 240 | 508 | 350 | |||
| 530 | 265 | 558 |
Марка опоры должнасостоять из условного наименования (ОП), типа опоры, высоты опоры (h), наружного диаметра трубопровода (dн), указания о наличии спутника (с) и обозначения настоящего ТУ.
Пример условного обозначениямарки опоры типа П2, высотой Н = 100мм, для стального трубопровода с наружным диаметром dн = 194 мм, соспутником:
ОПП2-100.194 с ТУ-04698606-001-04
То же, без спутника:
ОПП2-100.194 ТУ-04698606-001-04
То же, типа Б2, для стальноготрубопровода с наружным диаметром dн = 194 мм:
ОПБ2-194 ТУ-04698606-001-04
Марки опор, масса и расчётныемаксимальные вертикальные нагрузки на опоры указаны в справочном приложении.
| Марка опоры | Масса, кг не более | Расчетная максимальная вертикальная нагрузка Н (кгс), при температурах рабочей среды, °С | ||
| до 150 | Св. 150 до 300 | Св. 300 до 450 | ||
|
|
| 3 | 4 | 5 |
| ОПП1-70.18 ОПП1-70.21,3 | 0,43 | 21570 (2200) | 18630 (1900) | 10790 (1100) |
| ОПП1-70.25 ОПП1-70.26,8 | ||||
| ОПХ1-70.18 | 0,78 | |||
| ОПХ1-70.25 | 0,80 | |||
| ОПП1-70.32 ОПП1-70.33,5 | 0,51 | |||
| ОПП1-70.38 ОПП1-70.42,3 | ||||
| ОПП1-70.45 ОПП1-70.48 | ||||
| ОПХ1-70.32 | 0,90 | |||
| ОПХ1-70.38 | 0,97 | |||
| ОПХ1-70.45 | 1,00 | |||
| ОПП1-100.18 ОПП1-100.21,3 | 0,60 | 14710 (1500) | 13230 (1350) | 7550 (770) |
| ОПП1-100.25 ОПП1-100.26,8 | ||||
| ОПХ1-100.18 | 0,90 | |||
| ОПХ1-100.25 | 0,94 | |||
| ОПП1-100.32 ОПП1-100.33,5 | 0,62 | |||
| ОПП1-100.38 ОПП1-100.42,3 | ||||
| ОПП1-100.45 ОПП1-100.48 | ||||
| ОПХ1-100.32 | 1,05 | 14710 (1500) | 13230 (1350) | 7550 (770) |
| ОПХ1-100.38 | 1,10 | |||
| ОПХ 1-100.45 | 1,П | |||
| ОПП2-100.57 ОПП2-100.60 | 1,24 | 44130 (4500) | 33340 (3400) | 18140 (1850) |
| ОПХ2-100.57 ОПХ2-100.60 | 1,70 | |||
| ОПП2-100.75,5 ОПП2-100.76 | 1,17 | 49030 (5000) | 37260 (3800) | 20100 (2050) |
| ОПХ2-100.75,5 ОПХ2-100.76 | 1,90 | |||
| ОПП2-100.88,5 ОПШ-100.89 | 1,15 | 53940 (5500) | 40700 (4150) | 22060 (2250) |
| ОПХ2-100.88,5 ОПХ2-100.89 | 2,90 | |||
| ОПП2-100.108 ОПП2-100.114 ОПП2-100.127 | 1,63 | 56390 (5750) | 42660 (4350) | 23040 (2350) |
| ОПХ2-100.108 ОПХ2-100.114 ОПХ2-100.127 | 3,40 | |||
| ОПП2-100.133 ОПП2-100.140 | 1,62 | 59820 (6100) | 45600 (4650) | 24520 (2500) |
| ОПХ2-100.133 ОПХ2-100.140 | 4,40 | |||
| ОПП2-100.159 ОПП2-100.165 | 1,97 | 84830 (8650) | 63740 (6500) | 34810 (3550) |
| ОПХ2-100.159 ОПХ2-100.165 | 5,50 | |||
| ОПП2-100.194 | 3,28 | 82370 (8400) | 62760 (6400) | 33830 (3450) |
| ОПХ2-100.194 | 7,80 | |||
| ОПП2-100.219 | 3,13 | 80410 (8200) | 61290 (6250) | 32750 (3340) |
| ОПХ2-100.219 | 8,90 | |||
| ОПП2-100.273 | 2,90 | 80410 (8200) | 61290 (6250) | 32750 (3340) |
| ОПХ2-100.273 | 13,40 | |||
| ОПП2-100.325 | 7,59 | 196130 (20000) | 148080 (15100) | 79430 (8100) |
| ОПХ2-100.325 | 20,10 | |||
| ОПП2-100.377 | 7,19 | 185340 (18900) | 141210 (14400) | 75510 (7700) |
| ОПХ2-100.377 | 22,80 | |||
| ОПП2-100.426 | 7,03 | 183380 (18700) | 138270 (14100) | 74530 (7600) |
| ОПХ2-100.426 | 25,10 | |||
| ОПП2-100.480 | 10,64 | 172600 (17600) | 130430 (13300) | 69630 (7100) |
| ОПХ2-100.480 | 29,10 | |||
| ОПП2-100.530 | 10,62 | |||
| ОПХ2-100.530 | 31,90 | |||
| ОПП2-100.630 | 14,87 | 237320 (24200) | 180440 (18400) | 96100 (9800) |
| ОПХ2-100.630 | 50,50 | |||
| ОПП2-100.720 | 12,57 | 268700 (27400) | 203000 (20700) | 110810 (11300) |
| ОПП2-100.820 | 12,17 | 287330 (29300) | 216730 (22100) | 116700 (11900) |
| ОПП2-100.920 | 11,81 | 296160 (30200) | 223590 (22800) | 120130 (12250) |
| ОПП2-100.1020 | 14,93 | 392260 (40000) | 294200 (30000) | 158870 (16200) |
| ОПП2-100.1220 | 18,74 | 347150 (35400) | 262820 (26800) | 141210 (14400) |
| ОПП2-100.1420 | 18,07 | |||
| ОПП2-100.1620 | 17,63 | |||
| ОПП2-150.57 | 1,71 | 28140 (2870) | 21180 (2160) | 7840 (800) |
| ОПП2-150.60 | ||||
| ОПХ2-150.57 | 2,00 | |||
| ОПХ2-150.60 | ||||
| ОПП2-150.75.5 | 1,53 | 31380 (3200) | 23930 (2440) | 12840 (1310) |
| ОШ12-150.76 | ||||
| ОПХ2-150.75,5 | 2,10 | |||
| ОПХ2-150.76 | ||||
| ОПП2-150.88,5 | 1,61 | 35990 (3670) | 26180 (2670) | 14710 (1500) |
| ОПП2-150.89 | ||||
| ОПХ2-150.88,5 | 2,30 | |||
| ОПХ2-150.89 | ||||
| ОПП2-150.108 | 2,10 | 37660 (3840) | 28440 (2900) | 15400 (1570) |
| ОПП2-150.114 | ||||
| ОПП2-150.127 | ||||
| ОПХ2-150.108 | 4,00 | |||
| ОПХ2-150.114 | ||||
| ОПХ2-150.127 | ||||
| ОПП2-150.133 | 2,01 | 39710 (4050) | 30400 (3100) | 16380 (1670) |
| ОПП2-150.140 | ||||
| ОПХ2-150.133 | 5,00 | |||
| ОПХ2-150.140 | ||||
| ОПП2-150.159 | 3,00 | 56390 (5750) | 42660 (4350) | 23240 (2370) |
| ОПП2-150.165 | ||||
| ОПХ2-150.159 | 6,30 | |||
| ОПХ2-150.165 | ||||
| ОПП2-150.194 | 4,11 | 52950 (5400) | 41680 (4250) | 22550 (2300) |
| ОПХ2-150.194 | 8,60 | |||
| ОПП2-150.219 | 3,91 | 53940 (5500) | 40700 (4150) | 21960 (2240) |
| ОПХ2-150.219 | 10,20 | |||
| ОПП2-150.273 | 3,69 | |||
| ОПХ2-150.273 | 14,30 | |||
| ОПП2-150325 | 9,19 | 130430 (13300) | 98060 (10000) | 52460 (5350) |
| ОПХ2-150.325 | 21,80 | |||
| ОПП2-150.377 | 8,79 | 124540 (12700) | 94630 (9650) | 50500 (5150) |
| ОПХ2-150.377 | 24,10 | |||
| ОПП2-150.426 | 8,62 | 122580 (12500) | 91200 (9300) | 49030 (5000) |
| ОПХ2-150.426 | 29,40 | |||
| ОПП2-150.480 | 12,63 | 114740 (11700) | 87280 (8900) | 47070 (4800) |
| ОПХ2-150.480 | 32,40 | |||
| ОПП2-150.530 | 12,72 | 114740 (11700) | 86300 (8800) | 46090 (4700) |
| ОПХ2-150.530 | 31,10 | |||
| ОПП2-150.630 | 17,67 | 157890 (16100) | 120620 (12300) | 63740 (6500) |
| ОПХ2-150.630 | 55,60 | |||
| ОПП2-150.720 | 15,14 | 178480 (18200) | 135330 (13800) | 73550 (7500) |
| ОПП2-150.820 | 14,71 | 191230 (19500) | 144160 (14700) | 78450 (8000) |
| ОПП2-150.920 | 14,51 | 196130 (20000) | 149060 (15200) | 80410 (8200) |
| ОПП2-150.1020 | 18,23 | 262820 (26800) | 196130 (20000) | 105910 (10800) |
| ОПП2-150.1220 | 22,44 | 231430 (23600) | 175540 (17900) | 94140 (9600) |
| ОПП2-150.1420 | 21,77 | |||
| ОПП2-150.1620 | 21,33 | |||
| ОПП3-100.57 | 2,48 | 107870 (11000) | 81880 (8350) | 44130 (4500) |
| ОПП3-100.60 | ||||
| ОПХ3-100.57 | 3,50 | |||
| ОПХ3-100.60 | ||||
| ОПП3-100.75,5 | 2,33 | 126500 (12900) | 96100 (9800) | 51970 (5300) |
| ОПП3-100.76 | ||||
| ОПХ3-100.75,5 | 3,80 | |||
| ОПХ3-100.76 | ||||
| ОПП3-100.88,5 | 2,30 | 142190 (14500) | 107870 (11000) | 57860 (5900) |
| ОПП3-100.89 | ||||
| ОПХ3-100.88,5 | 4,70 | |||
| ОПХ3-100.89 | ||||
| ОПП3-100.108 | 3,00 | 155920 (15900) | 117680 (12000) | 63250 (6450) |
| ОПП3-100.114 | ||||
| ОПП3-100.127 | ||||
| ОПХ3-100.108 | 4,60 | |||
| ОПХ3-100.114 | ||||
| ОПХ3-100.127 | ||||
| ОПП3-100.133 | 3,23 | 170630 (17400) | 129440 (13200) | 69620 (7100) |
| ОПП3-100.140 | ||||
| ОПХ3-100.133 | 5,50 | |||
| ОПХ3-100.140 | ||||
| ОПП3-100.159 | 4,35 | 247120 (25200) | 186320 (19000) | 101000 (10300) |
| ОПП3-100.165 | ||||
| ОПХ3-100.159 | 7,10 | |||
| ОПХ3-100.165 | ||||
| ОПП3-100.194 | 6,56 | 251050 (25600) | 190240 (19400) | 100990 (10400) |
| ОПХ3-100.194 | 10,60 | |||
| ОПП3-100.219 | 6,27 | 251050 (25600) | 190240 (19400) | 101990 (10400) |
| ОПХ3-100.219 | 11,80 | |||
| ОПП3-100.273 | 5,81 | 196130 (20000) | 148080 (15100) | 79430 (8100) |
| ОПХ3-100.273 | 16,30 | |||
| ОПП3-100.325 | 15,29 | 598200 (61000) | 451100 (46000) | 243200 (24800) |
| ОПХ3-100.325 | 24,40 | |||
| ОПП3-100.377 | 14,39 | 588390 (60000) | 441300 (45000) | 239280 (24400) |
| ОПХ3-100.377 | 29,90 | |||
| ОПП3-100.426 | 14,06 | |||
| ОПХ3-100.426 | 32,50 | |||
| ОПП3-100.480 | 21,27 | 564860 (57600) | 427570 (43600) | 229470 (23400) |
| ОПХ3-100.480 | 39,20 | |||
| ОПП3-100.530 | 21,25 | 561920 (57300) | 423640 (43200) | 227510 (23200) |
| ОПХ3-100.530 | 42,20 | |||
| ОПП3-100.630 | 29,75 | 781590 (79700) | 591340 (60300) | 317730 (32400) |
| ОПХ3-100.630 | 65,10 | |||
| ОПП3-100.720 | 25,18 | 882590 (90000) | 666850 (68000) | 358920 (36600) |
| ОПП3-100.820 | 24,32 | 929670 (94800) | 702150 (71600) | 378040 (38550) |
| ОПП3-100.920 | 23,72 | 951240 (97000) | 676650 (69000) | 386380 (39400) |
| ОПП3-100.1020 | 29,87 | 1216020 (124000) | 924760 (94300) | 497190 (50700) |
| ОПП3-100.1220 | 37,88 | 1137570 (116000) | 858080 (87500) | 442280 (45100) |
| ОПП3-100.1420 | 37,34 | |||
| ОПП3-100.1620 | 35,27 | |||
| ОПП3-150.57 | 3,36 | 72070 (7350) | 53930 (5500) | 29420 (3000) |
| ОПП3-150.60 | ||||
| ОПХ3-150.57 | 4,40 | |||
| ОПХ3-150.60 | ||||
| ОПП3-150.75,5 | 3,25 | 84330 (8600) | 63740 (6500) | 33530 (3420) |
| ОПП3-150.76 | ||||
| ОПХ3-150.75,5 | 4,70 | |||
| ОПХ3-150.76 | ||||
| ОПП3-150.88,5 | 3,22 | 94630 (9650) | 72070 (7350) | 39220 (4000) |
| ОПП3-150.89 | ||||
| ОПХ3-150.88,5 | 4,80 | |||
| ОПХ3-150.89 | ||||
| ОПП3-150.108 | 4,20 | 102970 (10500) | 78450 (8000) | 42650 (4350) |
| ОПП3-150.114 | ||||
| ОПП3-150.127 | ||||
| ОПХ3-150.108 | 5,90 | |||
| ОПХ3-150.114 | ||||
| ОПХ3-150.127 | ||||
| ОПП3-150.133 | 4,01 | 114730 (11700) | 86780 (8850) | 46580 (4750) |
| ОПП3-150.140 | ||||
| ОПХ3-150.133 | 7,30 | |||
| ОПХ3-150.140 | ||||
| ОПП3-150.159 | 6,01 | 163770 (16700) | 124540 (12700) | 67170 (6850) |
| ОПП3-150.165 | ||||
| ОПХ3-150.159 | 8,0 | |||
| ОПХ3-150.165 | ||||
| ОПП3-150.194 | 8,22 | 166710 (17000) | 127480 (13000) | 68150 (6950) |
| ОПХ3-150.194 | 12,10 | |||
| ОПП3-150.219 | 7,83 | 166710 (17000) | 127480 (13000) | 68150 (6950) |
| ОПХ3-150.219 | 13,40 | |||
| ОПП3-150.273 | 7,39 | 130420 (13300) | 98060 (10000) | 52950 (5400) |
| ОПХ3-150.273 | 18,00 | |||
| ОПП3-150.325 | 18,39 | 398150 (40600) | 302040 (30800) | 161810 (16500) |
| ОПХ3-150.325 | 30,80 | |||
| ОПП3-150.377 | 17,59 | 392260 (40000) | 298120 (30400) | 159840 (16300) |
| ОПХ3-150.377 | 33,20 | |||
| ОПП3-150.426 | 17,24 | |||
| ОПХ3-150.426 | 35,80 | |||
| ОПП3-150.480 | 25,27 | 376570 (38400) | 284390 (29000) | 152980 (15600) |
| ОПХ3-150.480 | 43,40 | |||
| ОПП3-150.530 | 25,45 | 372650 (38000) | 282430 (28800) | 152000 (15500) |
| ОПХ3-150.530 | 46,50 | |||
| ОПП3-150.630 | 35,35 | 519750 (53000) | 392260 (40000) | 211820 (22600) |
| ОПХ3-150.630 | 71,20 | |||
| ОПГО-150.720 | 30,28 | 588390 (60000) | 441300 (45000) | 239280 (24400) |
| ОПГО-150.820 | 29,42 | 617810 (63000) | 470720 (48000) | 251050 (25600) |
| ОПП3-150.920 | 2935 | 637430 (65000) | 451100 (46000) | 256930 (26200) |
| ОПП3-150.1020 | 36,46 | 813950 (83000) | 617810 (63000) | 333420 (34000) |
| ОПП3-150.1220 | 44,88 | 755110 (77000) | 568780 (58000) | 307920 (31400) |
| ОПП3-150.1420 | 43,54 | |||
| ОПП3-150.1620 | 42,67 | |||
| ОПБ1-18; 213; 23; 26,8; 32; 33,5 | 0,03 | - | - | - |
| ОПБ1-38; 42,3; 44,5; 45; 48 | 0,02 | - | - | - |
| ОПБ1-57; 60 | 0,06 | - | - | - |
| ОПБ1-75,5; 76 | 0,05 | - | - | - |
| ОПБ1-88,5;89 | 0,12 | - | - | - |
| ОПБ1-108; 114 | 0,13 | - | - | - |
| ОПБ1-133 | 0,39 | - | - | - |
| ОПБ1-159 | 0,38 | - | - | - |
| ОПБ1-194; 219 | 0,37 | - | - | - |
| ОПБ1-273 | 1,02 | - | - | - |
| ОПБ1-325; 377 | 1,00 | - | - | - |
| ОПБ1-426 | 1,60 | - | - | - |
| ОПБ1-480 | 1,90 | - | - | - |
| ОПБ1-530 | 1,80 | - | - | - |
| ОПБ2-18; 21,3 | 0,12 | - | - | - |
| ОПБ2-23; 26,8 | 0,13 | - | - | - |
| ОПБ2-32; 33,5 | 0,12 | - | - | - |
| ОПБ2-38; 42,3 | 0,16 | - | - | - |
| ОПБ2-44,5; 45; 48 | 0,19 | - | - | - |
| ОПБ2-57; 60 | 0,33 | - | - | - |
| ОПБ2-75.5; 76 | 0,46 | - | - | - |
| ОПБ2-88,5; 89 | 0,52 | - | - | - |
| ОПБ2-108 | 0,56 | - | - | - |
| ОПБ2-114 | 0,55 | - | - | - |
| ОПБ2-133 | 1,21 | - | - | - |
| ОПБ2-159 | 1,32 | - | - | - |
| ОПБ2-194 | 1,45 | - | - | - |
| ОПБ2-219 | 2,29 | - | - | - |
| ОПБ2-273 | 3,81 | - | - | - |
| ОПБ2-325 | 3,82 | - | - | - |
| ОПБ2-377 | 4,40 | - | - | - |
| ОПБ2-426 | 6,65 | - | - | - |
| ОПБ2-480 | 7,90 | - | - | - |
| ОПБ2-530 | 8,46 | - | 1 | - |
Опора скользящая Т13.00.00.000

Сварные монтажные швы по ГОСТ5264-80
Катет - по наименьшей толщине свариваемых деталей.
1 - Скоба (черт. 22, табл. 24); 2 - Ребро (черт. 23, табл. 25)
Чертёж 21
Размеры, мм
| Обозначение | Наружный диаметр трубопровода, Dн | Н | Н1 | В | h | Масса, кг, не более | Наибольшая нагрузка, кгс | |
| Вертикальная | Горизонтальная при f = 0,3 | |||||||
| 1 | 2 | 3 | 4 | 5 | 6 | 7 | 8 | 9 |
| Т 13.01 | 32; 38; 45 | 100 | 104 | 50 | 95 | 0,697 | 120 | 36 |
| Т 13.02 | 150 | 154 | 145 | 0,915 | ||||
| Т 13.03 | 200 | 204 | 195 | 1,234 | ||||
| Т 13.04 | 57; 76 | 100 | 108 | 70 | 95 | 0,886 | 220 | 66 |
| Т 13.05 | 150 | 168 | 145 | 1,190 | ||||
| Т 13.06 | 200 | 208 | 195 | 1,499 | ||||
| Т 13.07 | 89; 108 | 100 | 113 | 90 | 95 | 1,096 | 400 | 120 |
| Т 13.08 | 150 | 163 | 145 | 1,460 | ||||
| Т 13.09 | 200 | 213 | 195 | 1,864 | ||||
| Т 13.10 | 133;159 | 100 | 118 | 120 | 95 | 1,335 | 800 | 240 |
| Т 13.11 | 150 | 168 | 145 | 1,830 | ||||
| Т 13.12 | 200 | 218 | 195 | 2,264 | ||||
Пример условногообозначения скользящей опоры для трубопровода Дн = 76 мм, Н = 100 мм:
Опора скользящая 76-Т 13.04-ТУ......
Скоба Т 13.01.00.001

Чертёж 22
Таблица 24
Размеры, мм
| Обозначение | Dн | Н | Н1 | R | В | b | L | Масса, кг |
| 1 | 2 | 3 | 4 | 5 | 6 | 7 | 8 | 9 |
| Т 13.01.00.001 | 32; 38; 45 | 100 | 104 | 22 | 50 | 25 | 366 | 0,304 |
| Т 13.02 | 150 | 154 | 466 | 0,325 | ||||
| Т 13.03 | 200 | 204 | 566 | 0,440 | ||||
| Т 13.04 | 57; 76 | 100 | 108 | 38 | 70 | 45 | 375 | 0,493 |
| Т 13.05 | 150 | 158 | 475 | 0,600 | ||||
| Т 13.06 | 200 | 208 | 575 | 0,705 | ||||
| Т 13.07 | 89;108 | 100 | 113 | 54 | 90 | 70 | 385 | 0,688 |
| Т 13.08 | 150 | 163 | 485 | 0,850 | ||||
| Т 13.09 | 200 | 213 | 585 | 1,050 | ||||
| Т 13.10 | 133;159 | 100 | 118 | 78 | 120 | 100 | 395 | 0,927 |
| Т 13.11 | 150 | 168 | 495 | 1,220 | ||||
| Т 13.12.00.001 | 200 | 218 | 595 | 1,460 |
Ребро Т 13.01.00.002

Размеры, мм
| Обозначение | Dн | h | Масса, кг |
| 1 | 2 | 3 | 4 |
| Т 13.01.00.002 | 32; 38; 45 | 95 | 0,358 |
| Т 13.02 | 145 | 0,550 | |
| Т 13.03 | 195 | 0,744 | |
| Т 13.04 | 57; 76 | 95 | 0,358 |
| Т 13.05 | 145 | 0,550 | |
| Т 13.06 | 195 | 0,744 | |
| Т 13.07 | 89;108 | 95 | 0,358 |
| Т 13.08 | 145 | 0,550 | |
| Т 13.09 | 195 | 0,744 | |
| Т 13.10 | 133;159 | 95 | 0,358 |
| Т 13.11 | 145 | 0,550 | |
| Т 13.12.00.002 | 195 | 0,744 |
Опора скользящая Т 13.00.00.000

Сварные монтажные швы по ГОСТ5264-80
Катет - по наименьшей толщине свариваемых деталей.
1 - Скоба (черт. 25, табл. 27); 2 - Подушка (Т 14.00.00.002 - черт. 31, табл. 33); 3 - Ребро (Т 14.00.00.003 - черт. 32, табл. 34)
Чертёж 24
Размеры, мм
| Обозначение | Наружный диаметр трубопровода, Dн | Н | Н1 | В | b | S | k | аmin | еmin | Масса, кг | Наибольшая нагрузка, кгс | |
| Вертикальная | Горизонтальная при f = 0,3 | |||||||||||
| 1 | 2 | 3 | 4 | 5 | 6 | 7 | 8 | 9 | 10 | 11 | 12 | 13 |
| Т 13.13.00.00.000 | 194 | 100 | 148 | 180 | 45 | 3 | 3 | 4 | 0 | 3,91 | 2200 | 660 |
| Т 13.14 | 150 | 198 | 4,92 | |||||||||
| Т 13.15 | 200 | 248 | 5,87 | |||||||||
| Т 13.16 | 219 | 100 | 136 | 1 | 3,71 | |||||||
| Т 13.17 | 150 | 186 | 4,70 | |||||||||
| Т 13.18 | 200 | 236 | 5,67 | |||||||||
| Т 13.19 | 273 | 100 | 126 | 3,25 | ||||||||
| Т 13.20 | 150 | 176 | 4,50 | |||||||||
| Т 13.21 | 200 | 226 | 5,49 | |||||||||
| Т 13.22 | 325 | 100 | 165 | 280 | 60 | 4 | 4 | 5 | 0 | 6,52 | 7000 | 2100 |
| Т 13.23 | 150 | 216 | 8,25 | |||||||||
| Т 13.24 | 200 | 265 | 9,25 | |||||||||
| Т 13.25 | 377 | 100 | 152 | 1 | 6,10 | |||||||
| Т 13.26 | 150 | 202 | 7,82 | |||||||||
| Т 13.27 | 200 | 252 | 9,58 | |||||||||
| Т 13.28 | 426 | 100 | 142 | 6 | 5,47 | |||||||
| Т 13.29 | 150 | 192 | 7,23 | |||||||||
| Т 13.30 | 200 | 242 | 8,90 | |||||||||
| Т 13.31 | 480 | 100 | 174 | 380 | 6 | б | 7 | 12,93 | 12500 | 3750 | ||
| Т 13.32 | 150 | 224 | 16,13 | |||||||||
| Т 13.33 | 200 | 274 | 19,43 | |||||||||
| Т 13.34 | 530 | 100 | 164 | 12,33 | ||||||||
| Т 13.35 | 150 | 214 | 15,50 | |||||||||
| Т 13.36 | 200 | 264 | 18,79 | |||||||||
| Т 13.37 | 630 | 100 | 150 | 11,74 | ||||||||
| Т 13.38 | 150 | 200 | 14,96 | |||||||||
| Т 13.39.00.00.000 | 200 | 250 | 18,24 | |||||||||
Примечание:
1 .Допускаетсявыполнить вырез под спутник с другими размерами.
2.Для опор с вырезом для спутника в обозначении исполнения после цифр добавляется«в».
Пример условного обозначенияскользящей опоры для трубопровода Дн = 325 мм, Н = 100 мм:
Опора скользящая 325-Т13.22-ТУ......
Пример условного обозначенияскользящей опоры для трубопровода Дн= 325 мм, Н = 100 мм соспутником:
Опора скользящая 325-Т13.22в-ТУ......
Скоба Т 13.13.00.001

Размеры, мм
| Обозначение | В | H1 | R | S | Развёрнутая длина | Масса, кг |
| 1 | 2 | 3 | 4 | 5 | 6 | 7 |
| Т 13.13.00.001 | 180 | 149 | 4 | 3 | 458 | 1,83 |
| Т 13.14 | 198 | 558 | 2,23 | |||
| Т 13.15 | 248 | 658 | 2,63 | |||
| Т 13.16 | 136 | 434 | 1,74 | |||
| Т 13.17 | 186 | 534 | 2,14 | |||
| Т 13.18 | 236 | 634 | 2,54 | |||
| Т 13.19 | 126 | 412 | 1,65 | |||
| Т 13.20 | 176 | 512 | , 2,05 | |||
| Т 13.21 | 226 | 612 | 2,45 | |||
| Т 13.22 | 280 | 165 | 4 | 590 | 3,16 | |
| Т 13.23 | 216 | 690 | 3,67 | |||
| Т 13.24 | 265 | 790 | 4,22 | |||
| Т 13.25 | 152 | 564 | 3,01 | |||
| Т 13.26 | 202 | 664 | 3,54 | |||
| Т 13.27 | 252 | 764 | 4,08 | |||
| Т 13.28 | 142 | 544 | 2,90 | |||
| Т 13.29 | 192 | 644 | 3,44 | |||
| Т 13.30 | 242 | 744 | 3,97 | |||
| Т 13.31 | 380 | 174 | 6 | 6 | 698 | 5,59 |
| Т 13.32 | 224 | 798 | 6,39 | |||
| Т 13.33 | 274 | 898 | 7,19 | |||
| Т 13.34 | 164 | 678 | 5,43 | |||
| Т 13.35 | 214 | 778 | 6,23 | |||
| Т 13.36 | 264 | 878 | 7,03 | |||
| Т 13.37 | 150 | 650 | 5,20 | |||
| Т 13.38 | 200 | 750 | 6,00 | |||
| Т 13.39.00.001 | 250 | 850 | 6,80 |
Опора скользящая Т14.00.00.000

Сварные монтажные швы по ГОСТ5264-80
Катет - по наименьшей толщине свариваемых деталей.
1 - Скоба (черт. 27, табл. 29); 2 - Ребро (черт. 28, табл. 30)
Чертёж 26
Таблица 28
Размеры, мм
| Обозначение | Наружный диаметр трубопровода, Dн | Н | Н1 | В | h | Масса, кг, не более | Наибольшая нагрузка, кгс | |
| Вертикальная | Горизонтальная при f = 0,3 | |||||||
| 1 | 2 | 3 | 4 | 5 | 6 | 7 | 8 | 9 |
| Т 14.01.00.000 | 32; 38; 45 | 100 | 104 | 50 | 95 | 1,28 | 120 | 36 |
| Т 14.02 | 150 | 154 | 145 | 1,74 | ||||
| Т 14.03 | 200 | 204 | 195 | 2,20 | ||||
| Т 14.04 | 57; 76 | 100 | 108 | 70 | 95 | 1,55 | 220 | 66 |
| Т 14.05 | 150 | 168 | 145 | 2,06 | ||||
| Т 14.06 | 200 | 208 | 195 | 2,64 | ||||
| Т 14.07 | 89; 108 | 100 | 113 | 90 | 95 | 1,84 | 400 | 120 |
| Т 14.08 | 150 | 163 | 145 | 2,39 | ||||
| Т 14.09 | 200 | 213 | 195 | 2,98 | ||||
| Т 14.10 | 133;159 | 100 | 118 | 120 | 95 | 2,25 | 800 | 240 |
| Т 14.11 | 150 | 168 | 145 | 2,89 | ||||
| Т 14.12.00.000 | 200 | 218 | 195 | 3,54 | ||||
Пример условного обозначения скользящей опоры длятрубопровода Дн = 76 мм, Н= 100 мм:
Опора скользящая 76-Т 14.04-ТУ......
Скоба Т 14.01.00.001

Чертёж 27
Таблица 29
Размеры, мм
| Обозначение | Dн | Н | Н1 | R | В | b | L | Масса, кг |
| Т 14.01.00.001 | 32; 38; 45 | 100 | 104 | 22 | 50 | 25 | 536 | 0,505 |
| Т 14.02 | 150 | 154 | 636 | 0,560 | ||||
| Т 14.03 | 200 | 204 | 736 | 0,640 | ||||
| Т 14.04 | 57; 76 | 100 | 108 | 38 | 70 | 45 | 545 | 0,775 |
| Т 14.05 | 150 | 158 | 645 | 0,880 | ||||
| Т 14.06 | 200 | 208 | 745 | 0,985 | ||||
| Т 14.07 | 89; 108 | 100 | 113 | 54 | 90 | 70 | 555 | 1,050 |
| Т 14.08 | 150 | 163 | 655 | 1,200 | ||||
| Т 14.09 | 200 | 213 | 755 | 1,380 | ||||
| Т 14.10 | 133;159 | 100 | 118 | 78 | 120 | 100 | 565 | 1,460 |
| Т 14.11 | 150 | 168 | 665 | 1,700 | ||||
| Т 14.12.00.001 | 200 | 218 | 765 | 1,950 |
Ребро Т 14.01.00.002

Размеры, мм
| Обозначение | Dн | h | Масса, кг |
| 1 | 2 | 3 | 4 |
| Т 14.01.00.002 | 32; 38; 45 | 95 | 0,738 |
| Т 14.02 | 145 | 1,130 | |
| Т 14.03 | 195 | 1,510 | |
| Т 14.04 | 57; 76 | 95 | 0,738 |
| Т 14.05 | 145 | 1,130 | |
| Т 14.06 | 195 | 1,510 | |
| Т 14.07 | 89; 108 | 95 | 0,738 |
| Т 14.08 | 145 | 1,130 | |
| Т 14.09 | 195 | 1,510 | |
| Т 14.10 | 133;159 | 95 | 0,738 |
| Т 14.11 | 145 | 1,130 | |
| Т 14.12.00.002 | 195 | 1,510 |
Опора скользящая Т 14.00.00.000

Сварные монтажные швы по ГОСТ5264-80
Катет - по наименьшей толщине свариваемых деталей.
1- Скоба (Т14.00.00.001 - черт.30, табл. 32); 2 - Подушка (Т14.00.00.002 -черт. 31, табл. 33); 3 - Ребро (Т 14.00.00.003 - черт. 32, табл. 34); 4- Ребро (Т14.00.00.004 - черт. 33,табл. 35)
Чертёж 29
Размеры, мм
| Обозначение | Наружный диаметр трубопровода, Dн | Н | Н1 | В | b | I | I1 | S=k | с | аmin | еmin | Масса, кг | Наибольшая нагрузка, кгс | |
| Вертикальная | Горизонтальная при f = 0,3 | |||||||||||||
| 1 | 2 | 3 | 4 | 5 | 6 | 7 | 8 | 9 | 10 | 11 | 12 | 13 | 14 | 15 |
| Т 14.13.00.000 | 194 | 100 | 148 | 180 | 45 | 50 | 50 | 3 | 5 | 4 | 0 | 6,17 | 2200 | 660 |
| Т 14.14 | 150 | 198 | 7,80 | |||||||||||
| Т 14.15 | 200 | 248 | 9,36 | |||||||||||
| Т 14.16 | 219 | 100 | 136 | 1 | 6,87 | |||||||||
| Т 14.17 | 150 | 186 | 7,46 | |||||||||||
| Т 14.18 | 200 | 236 | 9,07 | |||||||||||
| Т 14.19 | 273 | 100 | 125 | 5,33 | ||||||||||
| Т 14.20 | 150 | 175 | 7,20 | |||||||||||
| Т 14.21 | 200 | 225 | 8,81 | |||||||||||
| Т 14.22 | 325 | 100 | 165 | 280 | 60 | 4 | 6 | 5 | 0 | 10,58 | 7000 | 2100 | ||
| Т 14.23 | 150 | 215 | 13,28 | |||||||||||
| Т 14.24 | 200 | 265 | 15,29 | |||||||||||
| Т 14.25 | 377 | 100 | 152 | 1 | 10,04 | |||||||||
| Т 14.26 | 150 | 202 | 12,23 | |||||||||||
| Т 14.27 | 200 | 252 | 15,47 | |||||||||||
| Т 14.28 | 426 | 100 | 142 | 6 | 9,29 | |||||||||
| Г 14.29 | 150 | 192 | 12,04 | |||||||||||
| Т 14.30 | 200 | 242 | 14,68 | |||||||||||
| Т 14.31 | 480 | 100 | 174 | 380 | 6 | 8 | 7 | 20,55 | 12500 | 3750 | ||||
| Т 14.32 | 150 | 224 | 25,45 | |||||||||||
| Т 14.33 | 200 | 274 | 30,76 | |||||||||||
| Т 14.34 | 530 | 100 | 164 | 19,81 | ||||||||||
| Т 14.35 | 150 | 214 | 24,76 | |||||||||||
| Т 14.36 | 200 | 264 | 29,78 | |||||||||||
| Т 14.37 | 630 | 100 | 150 | 80 | 19,02 | |||||||||
| Т 14.38 | 150 | 200 | 23,96 | |||||||||||
| Т 14.39 | 200 | 250 | 29,06 | |||||||||||
| Т 14.40 | 720 | 100 | 185 | 500 | 80 | 60 | 8 | 2 | 27,42 | 22000 | 6600 | |||
| Т 14.41 | 150 | 235 | 33,41 | |||||||||||
| Т 14.42 | 200 | 285 | 39,48 | |||||||||||
| Т 14.43 | 820 | 100 | 172 | 7 | 3 | 26,56 | ||||||||
| Т 14.44 | 150 | 222 | 32,56 | |||||||||||
| Т 14.45 | 200 | 272 | 38,60 | |||||||||||
| Т 14.46 | 920 | 100 | 158 | 8 | 10 | 8 | 33,85 | 36000 | 1080 | |||||
| Т 14.47 | 150 | 208 | 41,76 | |||||||||||
| Т 14.48 | 200 | 258 | 50,02 | |||||||||||
| Т 14.49 | 1020 | 100 | 218 | 700 | 11 | 50,45 | ||||||||
| Т 14.50 | 150 | 268 | 60,87 | |||||||||||
| Т 14.51 | 200 | 318 | 71,59 | |||||||||||
| Т 14.52 | 1220 | 100 | 195 | 10 | 4 | 52,29 | ||||||||
| Т 14.53 | 150 | 245 | 62,71 | 48000 | 14400 | |||||||||
| Т 14.54 | 200 | 295 | 73,15 | |||||||||||
| Т 14.55 | 1420 | 100 | 172 | 120 | 10 | 12 | 62,36 | 36000 | 10800 | |||||
| Т 14.56 | 150 | 222 | 73,15 | 60000 | 18000 | |||||||||
| Т 14.57.00.000 | 200 | 272 | 88,58 | |||||||||||
Примечание:
1. Допускаетсявыполнить вырез под спутник с другими размерами.
2.Для опор с вырезом для спутника в обозначении исполнения после цифр добавляется«в».
Пример условного обозначенияскользящей опоры для трубопровода Дн = 1220 мм, Н = 100 мм:
Опора скользящая 1220-Т 14.52-ТУ......
Пример условного обозначенияскользящей опоры для трубопровода Дн = 1220 мм, Н = 100 мм соспутником:
Опора скользящая 1220-Т 14.52в-ТУ......
Скоба Т 14.13.00.001

Чертёж 30
Таблица 32
Размеры, мм
| Обозначение | В | Н1 | R | S | Развернутая длина | Масса, кг |
| 1 | 2 | 3 | 4 | 5 | 6 | 7 |
| Т 14.13.00.001 | 180 | 148 | 4 | 3 | 458 | 3,66 |
| Т 14.14 | 198 | 558 | 4,46 | |||
| Т 14.15 | 248 | 658 | 5,25 | |||
| Т 14.16 | 136 | 434 | 3,48 | |||
| Т 14.17 | 186 | 534 | 4,28 | |||
| Т 14.18 | 236 | 634 | 5,08 | |||
| Т 14.19 | 126 | 412 | 3,30 | |||
| Т 14.20 | 176 | 512 | 4,10 | |||
| Т 14.21 | 226 | 612 | 4,90 | |||
| Т 14.22 | 280 | 165 | 4 | 590 | 6,30 | |
| Т 14.23 | 216 | 690 | 7,34 | |||
| Т 14.24 | 265 | 790 | 8,44 | |||
| Т 14.25 | 152 | 564 | 6,02 | |||
| Т 14.26 | 202 | 664 | 7,08 | |||
| Т 14.27 | 252 | 764 | 8,16 | |||
| Т 14.28 | 142 | 544 | 5,80 | |||
| Т 14.29 | 192 | 644 | 6,88 | |||
| Т 14.30 | 242 | 744 | 7,94 | |||
| Т 14.31 | 380 | 174 | 6 | 6 | 698 | 11,20 |
| Т 14.32 | 224 | 798 | 12,70 | |||
| Т 14.33 | 274 | 898 | 14,40 | |||
| Т 14.34 | 164 | 678 | 10,90 | |||
| Т 14.35 | 214 | 778 | 12,50 | |||
| Т 14.36 | 264 | 878 | 14,1 | |||
| Т 14.37 | 150 | 650 | 10,4 | |||
| Т 14.38 | 200 | 750 | 12,0 | |||
| Т 14.39 | 250 | 850 | 13,6 | |||
| Т 14.40 | 500 | 185 | 840 | 13,4 | ||
| Т 14.41 | 235 | 940 | 15,0 | |||
| Т 14.42 | 285 | 1040 | 16,6 | |||
| Т 14.43 | 172 | 812 | 13,0 | |||
| Т 14.44 | 222 | 912 | 14,6 | |||
| Т 14.45 | 272 | 1012 | 16,2 | |||
| Т 14.46 | 158 | 8 | 8 | 774 | 16,5 | |
| Т 14.47 | 208 | 874 | 18,6 | |||
| Т 14.48 | 258 | 974 | 20,8 | |||
| Т 14.49 | 700 | 218 | 1094 | 23,3 | ||
| Т 14.50 | 268 | 1194 | 25,5 | |||
| Т 14.51 | 318 | 1294 | 27,6 | |||
| Т 14.52 | 195 | 1048 | 22,4 | |||
| Т 14.53 | 245 | 1148 | 24,5 | |||
| Т 14.54 | 295 | 1248 | 26,6 | |||
| Т 14.55 | 172 | 10 | 10 | 992 | 26,5 | |
| Т 14.56 | 222 | 1092 | 29,1 | |||
| Т 14.57.00.001 | 272 | 1192 | 31,8 |
Подушка Т 14.13.00.002

Размеры, мм
| Обозначение | R | В | ~h | L | S | Развёрнутая длина | Масса, кг |
| 1 | 2 | 3 | 4 | 5 | 6 | 7 | 8 |
| Т 14.13.00.002 | 98 | 190 | 67 | 50 | 3 | 246 | 0,290 |
| Т 14.16 | 111 | 200 | 60 | 240 | 0,283 | ||
| Т 14.19 | 138 | 42 | 220 | 0,260 | |||
| Т 14.22 | 164 | 300 | 92 | 4 | 365 | 0,573 | |
| Т 14.25 | 191 | 70 | 336 | 0,528 | |||
| Т 14.28 | 215 | 60 | 225 | 0,353 | |||
| Т 14.31 | 242 | 430 | 125 | 6 | 512 | 130 | |
| Т 14.34 | 267 | 105 | 490 | 1,154 | |||
| Т 14.37 | 317 | 82 | 465 | 1,100 | |||
| Т 14.40 | 362 | 560 | 130 | 80 | 628 | 2,370 | |
| Т 14.43 | 412 | 108 | 606 | 2,280 | |||
| Т 14.46 | 462 | 92 | 8 | 592 | 2,970 | ||
| Т 14.49 | 512 | 760 | 172 | 862 | 4,330 | ||
| Т 14.52 | 612 | 128 | 120 | 806 | 6,070 | ||
| Т 14.55.00.002 | 712 | 110 | 10 | 796 | 7,500 |
Ребро Т 14.13.00.003

Размеры, мм
| Обозначение | h | R | В | S | с | Масса, кг |
| 1 | 2 | 3 | 4 | 5 | 6 | 7 |
| Т 14.13.00.003 | 140 | 102 | 172 | 3 | 5 | 0,718 |
| Т 14.14 | 190 | 1,020 | ||||
| Т 14.15 | 240 | 1,290 | ||||
| Т 14.16 | 130 | 115 | 0,675 | |||
| Т 14.17 | 180 | 0,959 | ||||
| Т 14.18 | 230 | 1,240 | ||||
| Т 14.19 | 120 | 142 | 0,506 | |||
| Т 14.20 | 170 | 0,930 | ||||
| Т 14.21 | 220 | 1,220 | ||||
| Т 14.22 | 160 | 168 | 270 | 4 | 6 | 1,040 |
| Т 14.23 | 210 | 1,635 | ||||
| Т 14.24 | 260 | 1,860 | ||||
| Т 14.25 | 145 | 195 | 0,954 | |||
| Т 14.26 | 195 | 1,540 | ||||
| Т 14.27 | 245 | 2,140 | ||||
| Т 14.28 | 135 | 220 | 0,874 | |||
| Т 14.29 | 185 | 1,470 | ||||
| Т 14.30 | 235 | 2,030 | ||||
| Т 14.31 | 165 | 248 | 365 | 6 | 8 | 2,280 |
| Т 14.32 | 215 | 3,460 | ||||
| Т 14.33 | 265 | 4,690 | ||||
| Т 14.34 | 155 | 274 | 2,100 | |||
| Т 14.35 | 205 | 3,270 | ||||
| Т 14.36 | 255 | 4,500 | ||||
| Т 14.37 | 145 | 324 | 1,985 | |||
| Т 14.38 | 195 | 3,170 | ||||
| Т 14.39 | 245 | 4,390 | ||||
| Т 14.40 | 175 | 368 | 485 | 3,070 | ||
| Т 14.41 | 225 | 4,660 | ||||
| Т 14.42 | 275 | 6,260 | ||||
| Т 14.43 | 165 | 418 | 2,960 | |||
| Т 14.44 | 215 | 4,550 | ||||
| Т 14.45 | 265 | 6,160 | ||||
| Т 14.46 | 150 | 482 | 482 | 8 | 10 | 3,470 |
| Т 14.47 | 200 | 5,570 | ||||
| Т 14.48 | 250 | 7,690 | ||||
| Т 14.49 | 195 | 520 | 682 | 6,230 | ||
| Т 14.50 | 245 | 9,220 | ||||
| Т 14.51 | 295 | 12,360 | ||||
| Т 14.52 | 180 | 620 | 5,260 | |||
| Т 14.53 | 230 | 8,850 | ||||
| Т 14.54 | 280 | 11,900 | ||||
| Т 14.55 | 158 | 722 | 678 | 10 | 12 | 6,350 |
| Т 14.56 | 208 | 10,010 | ||||
| Т 14.57.00.003 | 258 | 13,850 |
Ребро Т 14.13.00.004

Размеры, мм
| Обозначение | h | b1 | S | с | Масса, кг |
| 1 | 2 | 3 | 4 | 5 | 6 |
| Т 14.13.00.004 | 85 | 172 | 3 | 5 | 0,150 |
| Т 14.14 | 135 | 0,180 | |||
| Т 14.15 | 185 | 0,210 | |||
| Т 14.16 | 85 | 0,150 | |||
| Т 14.17 | 135 | 0,180 | |||
| Т 14.18 | 185 | 0,210 | |||
| Т 14.19 | 85 | 0,150 | |||
| Т 14.20 | 135 | 0,180 | |||
| Т 14.21 | 185 | 0,210 | |||
| Т 14.22 | 85 | 270 | 4 | 6 | 0,320 |
| Т 14.23 | 135 | 0,380 | |||
| Т 14.24 | 185 | 0,420 | |||
| Т 14.25 | 85 | 0,340 | |||
| Т 14.26 | 135 | 0,370 | |||
| Т 14.27 | 185 | 0,400 | |||
| Т 14.28 | 85 | 0,330 | |||
| Т 14.29 | 135 | 0,380 | |||
| Т 14.30 | 185 | 0,410 | |||
| Т 14.31 | 85 | 365 | 6 | 8 | 0,930 |
| Т 14.32 | 135 | 1,100 | |||
| Т 14.33 | 185 | 1,400 | |||
| Т 14.34 | 85 | 0,950 | |||
| Т 14.35 | 135 | 1,100 | |||
| Т 14.36 | 185 | 1,200 | |||
| Т 14.37 | 85 | 1,000 | |||
| Т 14.38 | 135 | 1,100 | |||
| Т 14.39 | 185 | 1,300 | |||
| Т 14.40 | 85 | 485 | 1,200 | ||
| Т 14.41 | 135 | 1,270 | |||
| Т 14.42 | 185 | 1,400 | |||
| Т 14.43 | 85 | 1,100 | |||
| Т 14.44 | 135 | 1,200 | |||
| Т 14.45 | 185 | 1,300 | |||
| Т 14.46 | 80 | 482 | 8 | 10 | 1,900 |
| Т 14.47 | 130 | 2,000 | |||
| Т 14.48 | 180 | 2,300 | |||
| Т 14.49 | 80 | 682 | 2,600 | ||
| Т 14.50 | 130 | 2,700 | |||
| Т 14.51 | 180 | 2,900 | |||
| Т 14.52 | 80 | 2,600 | |||
| Т 14.53 | 130 | 2,800 | |||
| Т 14.54 | 180 | 2,900 | |||
| Т 14.55 | 80 | 678 | 10 | 12 | 3,900 |
| Т 14.56 | 130 | 4,200 | |||
| Т 14.57.00.004 | 180 | 4,500 |
Опора скользящая Т 15.00.00.000

Сварные монтажные швы по ГОСТ5264-80
Катет - по наименьшей толщине свариваемых деталей.
1 - Скоба (Т 15.00.00.001 - черт. 35, табл. 37); 2 - Подушка (Т 14.00.00.002 -черт. 31, табл. 33); 3 - Ребро (Т 14.00.00.003 - черт. 32, табл. 34); 4- Ребро (Т14.00.00.004 - черт. 33,табл. 35)
Чертёж 34
Размеры, мм
| Обозначение | Наружный диаметр трубопровода, Dн | Н | Н1 | В | b | I | I1 | I2 | S=k | с | аmin | еmin | Масса, кг | Наибольшая нагрузка, кгс | |
| Вертикальная | Горизонтальная при f = 0,3 | ||||||||||||||
| 1 | 2 | 3 | 4 | 5 | 6 | 7 | 8 | 9 | 10 | 11 | 12 | 13 | 14 | 15 | 16 |
| Т 15.01.00.000 | 194 | 100 | 148 | 180 | 45 | 50 | 70 | 160 | 3 | 5 | 4 | 0 | 10,26 | 2200 | 660 |
| Т 15.02 | 150 | 198 | 12,90 | ||||||||||||
| Т 15.03 | 200 | 248 | 15,44 | ||||||||||||
| Т 15.04 | 219 | 100 | 136 | 1 | 9,79 | ||||||||||
| Т 15.05 | 150 | 186 | 12,41 | ||||||||||||
| Т 15.06 | 200 | 236 | 15,03 | ||||||||||||
| Т 15.07 | 273 | 100 | 125 | 9,06 | |||||||||||
| Т 15.08 | 150 | 175 | 11,94 | ||||||||||||
| Т 15.09 | 200 | 225 | 14,54 | ||||||||||||
| Т 15.10 | 325 | 100 | 165 | 280 | 60 | 4 | 6 | 5 | 0 | 17,82 | 7000 | 2100 | |||
| Т 15.11 | 150 | 215 | 22,01 | ||||||||||||
| Т 15.12 | 200 | 265 | 25,57 | ||||||||||||
| Т 15.13 | 377 | 100 | 152 | 1 | 16,95 | ||||||||||
| Т 15.14 | 150 | 202 | 21,22 | ||||||||||||
| Т 15.15 | 200 | 252 | 25,44 | ||||||||||||
| Т 15.16 | 426 | 100 | 145 | 6 | 16,04 | ||||||||||
| Т 15.17 | 150 | 195 | 20,33 | ||||||||||||
| Т 15.18 | 200 | 245 | 24,47 | ||||||||||||
| Т 15.19 | 480 | 100 | 178 | 380 | 80 | 190 | 6 | 8 | 7 | 33,68 | 12500 | 3750 | |||
| Т 15.20 | 150 | 228 | 41,16 | ||||||||||||
| Т 15.21 | 200 | 278 | 48,64 | ||||||||||||
| Т 15.22 | 530 | 100 | 164 | 32,63 | |||||||||||
| Т 15.23 | 150 | 214 | 40,09 | ||||||||||||
| Т 15.24 | 200 | 264 | 47,57 | ||||||||||||
| Т 15.25 | 630 | 100 | 150 | 31,28 | |||||||||||
| Т 15.26 | 150 | 200 | 38,78 | ||||||||||||
| Т 15.27 | 200 | 250 | 47,24 | ||||||||||||
| Т 15.28 | 720 | 100 | 185 | 500 | 80 | 100 | 8 | 2 | 43,26 | 22000 | 6600 | ||||
| Т 15.29 | 150 | 235 | 52,02 | ||||||||||||
| Т 15.30 | 200 | 285 | 60,90 | ||||||||||||
| Т 15.31 | 820 | 100 | 172 | 7 | 3 | 42,10 | |||||||||
| Т 15.32 | 150 | 222 | 50,84 | ||||||||||||
| Т 15.33 | 200 | 272 | 59,72 | ||||||||||||
| Т 15.34 | 920 | 100 | 158 | 8 | 10 | 8 | 53,42 | 36000 | 1080 | ||||||
| Т1535 | 150 | 208 | 65,04 | ||||||||||||
| Т 15.36 | 200 | 258 | 77,02 | ||||||||||||
| Т 15.37 | 1020 | 100 | 218 | 700 | 11 | 77.18 | |||||||||
| Т 15.38 | 150 | 268 | 92,04 | ||||||||||||
| Т 15.39 | 200 | 318 | 107,1 | ||||||||||||
| Т 15.40 | 1220 | 100 | 195 | 120 | 10 | 4 | 78,12 | ||||||||
| Т 15.41 | 150 | 245 | 92,78 | 48000 | 14400 | ||||||||||
| Т 15.42 | 200 | 295 | 107,7 | ||||||||||||
| Т 15.43 | 1420 | 100 | 172 | 10 | 12 | 93,52 | 36000 | 10800 | |||||||
| Т 15.44 | 150 | 222 | 111,8 | 60000 | 18000 | ||||||||||
| Т 15.45.00.000 | 200 | 272 | 130,7 | ||||||||||||
Примечание:
1. Допускаетсявыполнить вырез под спутник с другими размерами.
2.Для опор с вырезом для спутникав обозначении исполнения после цифр добавляется «в».
Пример условного обозначенияскользящей опоры для трубопровода Дн = 194 мм, Н= 100 мм:
Опора скользящая 194-Т 15.01-ТУ......
Пример условного обозначенияскользящей опоры для трубопровода Дн = 194 мм, Н= 100 мм со спутником:
Опора скользящая 194-Т 15.01в-ТУ......
Скоба Т 15.00.001

Размеры, мм
| Обозначение | В | Н1 | h1 | S=R | Развернутая длина | Масса, кг |
| 1 | 2 | 3 | 4 | 5 | 6 | 7 |
| Т 15.01.00.001 | 180 | 148 | - | 3 | 458 | 7,32 |
| Т 15.02 | 198 | 558 | 8,92 | |||
| Т 15.03 | 248 | 658 | 10,50 | |||
| Т 15.04 | 136 | 434 | 6,96 | |||
| Т 15.05 | 186 | 534 | 8,56 | |||
| Т 15.06 | 236 | 634 | 10,20 | |||
| Т 15.07 | 125 | 412 | 6,60 | |||
| Т 15.08 | 175 | 512 | 8,20 | |||
| Т 15.09 | 225 | 612 | 9,80 | |||
| Т 15.10 | 280 | 165 | 4 | 590 | 12,60 | |
| Т 15.11 | 215 | 690 | 14,70 | |||
| Т 15.12 | 265 | 790 | 16,90 | |||
| Т 15.13 | 152 | 564 | 12,00 | |||
| Т 15.14 | 202 | 664 | 14,20 | |||
| Т 15.15 | 252 | 764 | 16,30 | |||
| Т 15.16 | 145 | 544 | 11,60 | |||
| Т 15.17 | 195 | 644 | 13,80 | |||
| Т 15.18 | 245 | 744 | 15,90 | |||
| Т 15.19 | 380 | 178 | 6 | 698 | 22,40 | |
| Т 15.20 | 228 | 798 | 25,60 | |||
| Т 15.21 | 278 | 898 | 28,80 | |||
| Т 15.22 | 164 | 678 | 21,80 | |||
| Т 15.23 | 214 | 778 | 25,00 | |||
| Т 15.24 | 264 | 878 | 28,20 | |||
| Т 15.25 | 150 | 650 | 20,80 | |||
| Т 15.26 | 200 | 750 | 24,00 | |||
| Т 15.27 | 250 | 850 | 27,20 | |||
| Т 15.28 | 500 | 185 | 130 | 840 | 26,80 | |
| Т 15.29 | 235 | 180 | 940 | 30,00 | ||
| Т 15.30 | 285 | 230 | 1040 | 33,20 | ||
| Т 15.31 | 172 | 130 | 812 | 26,00 | ||
| Т 15.32 | 222 | 180 | 912 | 29,20 | ||
| Т 15.33 | 272 | 230 | 1012 | 32,40 | ||
| Т 15.34 | 158 | 100 | 8 | 774 | 33,00 | |
| Т 15.35 | 208 | 150 | 874 | 37,20 | ||
| Т 15.36 | 258 | 200 | 974 | 41,60 | ||
| Т 15.37 | 700 | 218 | 150 | 1094 | 46,60 | |
| Т 15.38 | 268 | 200 | 1194 | 51,00 | ||
| Т 15.39 | 318 | 250 | 1294 | 55,20 | ||
| Т 15.40 | 195 | 150 | 1048 | 44,80 | ||
| Т 15.41 | 245 | 200 | 1148 | 49,00 | ||
| Т 15.42 | 295 | 250 | 1248 | 53,20 | ||
| Т 15.43 | 172 | 130 | 10 | 992 | 53,00 | |
| Т 15.44 | 222 | 180 | 1092 | 58,20 | ||
| Т 15.45.00.001 | 272 | 230 | 1192 | 63,60 |
Опора скользящая диэлектрическая Т16.00.00.000

Сварные монтажные швы по ГОСТ5264-80
Катет - по наименьшей толщине свариваемых деталей.
1 - Корпус (Т 16.00.01.000 - черт. 38,табл. 40); 2 - Хомут (Т 17.00.00.001 -черт. 45, табл. 47); 3 - Прокладка; 4 - Прокладка; 5 - Гайка по ГОСТ5915-70
Чертёж 36
Таблица 38
Размеры, мм
| Обозначение | Наружный диаметр трубопровода, Dн | Н | Н1 | В | В1 | Масса, кг | Наибольшая нагрузка, кгс | |
| Вертикальная | Горизонтальная при f = 0,3 | |||||||
| 1 | 2 | 3 | 4 | 5 | 6 | 7 | 8 | 9 |
| Т 16.01.00.000 | 194 | 100 | 200 | 180 | 255 | 7,26 | 2200 | 660 |
| Т 16.02 | 150 | 250 | 8,36 | |||||
| Т 16.03 | 200 | 300 | 9,20 | |||||
| Т 16.04 | 219 | 100 | 215 | 280 | 7,56 | |||
| Т 16.05 | 150 | 265 | 8,54 | |||||
| Т 16.06 | 200 | 315 | 9,50 | |||||
| Т 16.07 | 273 | 100 | 240 | 350 | 8,94 | |||
| Т 16.08 | 150 | 290 | 10,18 | |||||
| Т 16.09 | 200 | 340 | 11,16 | |||||
| Т 16.10 | 325 | 100 | 266 | 280 | 395 | 12,45 | 7000 | 2100 |
| Т 16.11 | 150 | 316 | 14,15 | |||||
| Т 16.12 | 200 | 366 | 15,46 | |||||
| Т 16.13 | 377 | 100 | 292 | 460 | 14,48 | |||
| Т 16.14 | 150 | 342 | 16,19 | |||||
| Т 16.15.00.000 | 200 | 392 | 17,93 | |||||
Пример условногообозначения скользящей диэлектрической опоры для трубопровода Дн = 194 мм, Н = 100 мм:
Опора диэлектрическая 194-T 16.01-ТУ......
Корпус Т 16.00.01.000

Катет - по наименьшей толщине свариваемых деталей.
1 - Подушка (Т 17.00.01.001 - черт. 43,табл. 45); 2 - Ребро (T 17.00.01.002 - черт. 44, табл. 46); 3 - Скоба (Т 13.00.00.001 - черт. 25, табл. 27); 4- Ребро (Т 14.13.00.003 - черт. 32,табл. 34)
Чертёж 37
Таблица 39
Размеры, мм
| Обозначение | Наружный диаметр трубопровода, Dн | Н | Н1 | В | В1 | b | I | k | k1 | аmin | еmin | Масса, кг |
| Т 16.01.01.000 | 194 | 100 | 170 | 180 | 255 | 45 | 34 | 6 | 4 | 4 | 0 | 5,88 |
| Т 16.02 | 150 | 220 | 6,98 | |||||||||
| Т 16.03 | 200 | 270 | 7,82 | |||||||||
| Т 16.04 | 219 | 100 | 180 | 280 | 1 | 6,03 | ||||||
| Т 16.05 | 150 | 230 | 7,01 | |||||||||
| Т 16.06 | 200 | 280 | 7,97 | |||||||||
| Т 16.07 | 273 | 100 | 200 | 350 | 38 | 6,28 | ||||||
| Т 16.08 | 150 | 250 | 7,52 | |||||||||
| Т 16.09 | 200 | 300 | 8,50 | |||||||||
| Т 16.10 | 325 | 100 | 220 | 280 | 395 | 60 | 5 | 0 | 9,50 | |||
| Т 16.11 | 150 | 270 | 11,20 | |||||||||
| Т 16.12 | 200 | 320 | 12,21 | |||||||||
| Т 16.13 | 377 | 100 | 250 | 460 | 1 | 9,94 | ||||||
| Т 16.14 | 150 | 310 | 11,65 | |||||||||
| Т 16.15 | 200 | 360 | 13,39 | |||||||||
| Т 16.19 | 426 | 100 | 270 | 505 | 6 | 10,63 | ||||||
| Т 16.20 | 150 | 320 | 12,37 | |||||||||
| Т 16.21 | 200 | 370 | 14,02 | |||||||||
| Т 16.22 | 480 | 100 | 305 | 380 | 570 | 44 | 6 | 7 | 18,92 | |||
| Т 16.23 | 150 | 355 | 22,08 | |||||||||
| Т 16.24 | 200 | 405 | 25,34 | |||||||||
| Т 16.25 | 530 | 100 | 315 | 615 | 19,50 | |||||||
| Т 16.26 | 150 | 365 | 22,84 | |||||||||
| Т 16.27 | 200 | 415 | 25,90 | |||||||||
| Т 16.28 | 630 | 100 | 360 | 715 | 20,13 | |||||||
| Т 16.29 | 150 | 410 | 23,31 | |||||||||
| Т 16.30.01.000 | 200 | 460 | 26,55 |
Опора скользящая диэлектрическая Т 16.00.00.000

Сварные монтажные швы по ГОСТ5264-80
Катет - по наименьшей толщине свариваемых деталей.
1 - Корпус (Т 16.00.01.000 - черт. 38, табл. 40); 2 - Бугель (Т 17.00.02.000 -черт. 42, табл. 44); 3 - Прокладка; 4 - Прокладка; 5 - Шпилька по ГОСТ11769-76; 6 - Гайка по ГОСТ5915-70
Чертёж 38
Размеры, мм
| Обозначение | Наружный диаметр трубопровода, Dн | Н | Н1 | В | В1 | Масса, кг | Наибольшая нагрузка, кгс | |
| Вертикальная | Горизонтальная при f = 0,3 | |||||||
| 1 | 2 | 3 | 4 | 5 | 6 | 7 | 8 | 9 |
| Т 16.16.00.000 | 377 | 100 | 292 | 280 | 460 | 15,27 | 7000 | 2100 |
| Т 16.17 | 150 | 342 | 16,98 | |||||
| Т 16.18 | 200 | 392 | 18,72 | |||||
| Т 16.19 | 426 | 100 | 318 | 505 | 17,10 | |||
| Т 16.20 | 150 | 368 | 18,84 | |||||
| Т 16.21 | 200 | 418 | 20,49 | |||||
| Т 16.22 | 480 | 100 | 345 | 380 | 570 | 27,79 | 12500 | 3759 |
| Т 16.23 | 150 | 395 | 30,95 | |||||
| Т 16.24 | 200 | 445 | 34,21 | |||||
| Т 16.25 | 530 | 100 | 370 | 615 | 29,55 | |||
| Т 16.26 | 150 | 420 | 32,89 | |||||
| Т 16.27 | 200 | 470 | 33,95 | |||||
| Т 16.28 | 630 | 100 | 420 | 715 | 31,08 | |||
| Т 16.29 | 150 | 470 | 34,26 | |||||
| Т 16.30.00.000 | 200 | 520 | 37,50 | |||||
Пример условногообозначения скользящей диэлектрической опоры для трубопровода Дн= 377 мм, Н = 150 мм:
Опора диэлектрическая 377-Т 16.17-ТУ......
Опора скользящая диэлектрическая Т 17.00.00.000

Сварные монтажные швы по ГОСТ5264-80
Катет - по наименьшей толщине свариваемых деталей.
1 - Корпус (Т 17.00.01.000 - черт. 41,табл. 43); 2 - Хомут (Т 17.00.00.001 -черт. 45, табл. 47); 3 - Прокладка; 4 - Прокладка; 5 - Гайка по ГОСТ 5915-70
Чертеж 39
Таблица 41
Размеры, мм
| Обозначение | Наружный диаметр трубопровода, Dн | Н | Н1 | В | В1 | Масса, кг | Наибольшая нагрузка, кгс | |
| Вертикальная | Горизонтальная при f = 0,3 | |||||||
| 1 | 2 | 3 | 4 | 5 | 6 | 7 | 8 | 9 |
| Т 17.01.00.000 | 194 | 100 | 200 | 180 | 255 | 10,42 | 2200 | 660 |
| Т 17.02 | 150 | 250 | 12,06 | |||||
| Т 17.03 | 200 | 300 | 13,60 | |||||
| Т 17.04 | 219 | 100 | 215 | 280 | 10,72 | |||
| Т 17.05 | 150 | 265 | 12,30 | |||||
| Т 17.06 | 200 | 315 | 13,89 | |||||
| Т 17.07 | 273 | 100 | 240 | 350 | 13,16 | |||
| Т 17.08 | 150 | 290 | 15,02 | |||||
| Т 17.09 | 200 | 340 | 16,61 | |||||
| Т 17.10 | 325 | 100 | 266 | 280 | 395 | 18,62 | 7000 | 2100 |
| Т 17.11 | 150 | 316 | 21,29 | |||||
| Т 17.12 | 200 | 366 | 23,31 | |||||
| Т 17.13 | 377 | 100 | 292 | 460 | 22,14 | |||
| Т 17.14 | 150 | 342 | 24,83 | |||||
| Т 17.15.00.000 | 200 | 392 | 27,57 | |||||
Пример условногообозначения скользящей диэлектрической опоры для трубопровода Дн= 273 мм, Н = 200 мм:
Опора диэлектрическая 273-Т 17.09-ТУ......
Опора скользящая диэлектрическая Т 17.00.00.000

Сварные монтажные швы по ГОСТ5264-80
Катет - по наименьшей толщине свариваемых деталей.
1 - Корпус (Т 17.00.01.000 - черт. 41, табл. 43); 2 - Бугель (Т 17.00.02.000 -черт. 42, табл. 44); 3 - Прокладка; 4 - Шпилька по ГОСТ 11769-76; 5 -Гайка по ГОСТ5915-70
Чертёж 40
Таблица 42
Размеры, мм
| Обозначение | Наружный диаметр трубопровода, Dн | Н | Н1 | В | В1 | Масса, кг | Наибольшая нагрузка, кгс | |
| Вертикальная | Горизонтальная при f = 0,3 | |||||||
| 1 | 2 | 3 | 4 | 5 | 6 | 7 | 8 | 9 |
| Т 17.16.00.000 | 377 | 100 | 292 | 280 | 460 | 23,71 | 7000 | 2100 |
| Т 17.17 | 150 | 342 | 26,40 | |||||
| Т 17.18 | 200 | 392 | 29,14 | |||||
| Т 17.19 | 426 | 100 | 318 | 505 | 26,73 | |||
| Т 17.20 | 150 | 368 | 29,46 | |||||
| Т 17.21 | 200 | 418 | 32,10 | |||||
| Т 17.22 | 480 | 100 | 345 | 380 | 570 | 45,95 | 12500 | 3750 |
| Т 17.23 | 150 | 395 | 50,70 | |||||
| Т 17.24 | 200 | 445 | 54,75 | |||||
| Т 17.25 | 530 | 100 | 370 | 615 | 48,08 | |||
| Т 17.26 | 150 | 420 | 52,91 | |||||
| Т 17.27 | 200 | 470 | 57,86 | |||||
| Т 17:28 | 630 | 100 | 420 | 715 | 50,02 | |||
| Т 17.29 | 150 | 470 | 54,89 | |||||
| Т 17.30 | 200 | 520 | 59,82 | |||||
| Т 17.31 | 720 | 100 | 465 | 500 | 815 | 63,56 | 22000 | 6600 |
| Т 17.32 | 150 | 515 | 69,78 | |||||
| Т 17.33 | 200 | 565 | 76,02 | |||||
| Т 17.34 | 820 | 100 | 515 | 920 | 67,84 | |||
| Т 17.35 | 150 | 565 | 74,04 | |||||
| Т 17.36 | 200 | 615 | 80,28 | |||||
| Т 17.37 | 920 | 100 | 565 | 1030 | 104,07 | 36000 | 10600 | |
| Т 17.38 | 150 | 615 | 112,08 | |||||
| Т 17.39 | 200 | 665 | 120,24 | |||||
| Т 17.40 | 1020 | 100 | 615 | 700 | 1140 | 123,13 | ||
| Т 17.41 | 150 | 665 | 133,65 | |||||
| Т 17.42 | 200 | 715 | 144,37 | |||||
| Т 17.43 | 1220 | 100 | 715 | 1360 | 142,82 | 48000 | 14400 | |
| Т 17.44 | 150 | 765 | 153,24 | |||||
| Т 17.45 | 200 | 815 | 163,78 | |||||
| Т 17.46 | 1420 | 100 | 815 | 1575 | 161,81 | 60000 | 18000 | |
| Т 17.47 | 150 | 865 | 174,59 | |||||
| Т 17.48.00.000 | 200 | 915 | 187,83 | |||||
Пример условногообозначения скользящей диэлектрической опоры для трубопровода Дн= 377 мм, Н = 100 мм:
Опора диэлектрическая377-Т 17.16-ТУ......

Катет - по наименьшей толщине свариваемых деталей.
1 - Подушка (Т 17.00.01.001 - черт. 43,табл. 45); 2 - Ребро (Т 17.00.01.002 -черт. 44, табл. 46); 3 - Скоба (Т 14.00.00.001 - черт. 31, табл. 33); 4- Ребро (Т 14.13.00.004 - черт. 33,табл. 35)
Чертёж 41
Таблица 43
Размеры, мм
| Обозначение | Наружный диаметр трубопровода, Dн | Н | Н1 | В | В1 | b | I | I2 | k | k1 | c | аmin | еmin | Масса, кг |
|
|
|
|
|
|
| 7 | 8 | 9 | 10 | 11 | 12 | 13 | 14 | 15 |
| Т 17.01.01.000 | 194 | 100 | 170 | 180 | 255 | 45 | 80 | 34 | 6 | 3 | 5 | 4 | 0 | 8,00 |
| Т 17.02 | 150 | 220 | 9,64 | |||||||||||
| Т 17.03 | 200 | 270 | 11,18 | |||||||||||
| Т 17.04 | 219 | 100 | 180 | 280 | 1 | 8,04 | ||||||||
| Т 17.05 | 150 | 230 | 9,62 | |||||||||||
| Т 17.06 | 200 | 280 | 11,21 | |||||||||||
| Т 17.07 | 273 | 100 | 200 | 350 | 38 | 8,30 | ||||||||
| Т 17.08 | 150 | 250 | 10,16 | |||||||||||
| Т 17.09 | 200 | 300 | 11,76 | |||||||||||
| Т 17.10 | 325 | 100 | 220 | 280 | 395 | 60 | 4 | 6 | 5 | 0 | 13,28 | |||
| Т 17.11 | 150 | 270 | 15,95 | |||||||||||
| Т 17.12 | 200 | 320 | 17,97 | |||||||||||
| Т 17.13 | 377 | 100 | 260 | 460 | 1 | 13,72 | ||||||||
| Т 17.14 | 150 | 310 | 16,41 | |||||||||||
| Т 17.15 | 200 | 360 | 19,15 | |||||||||||
| Т 17.19 | 426 | 100 | 270 | 505 | б | 14,56 | ||||||||
| Т 17.20 | 150 | 320 | 17,29 | |||||||||||
| Т 17.21 | 200 | 370 | 19,93 | |||||||||||
| Т 17.22 | 480 | 100 | 305 | 380 | 570 | 100 | 44 | 8 | 6 | 8 | 7 | 27,88 | ||
| Т 17.23 | 150 | 355 | 32,63 | |||||||||||
| Т 17.24 | 200 | 405 | 37,68 | |||||||||||
| Т 17.25 | 530 | 100 | 315 | 615 | 28,72 | |||||||||
| Т 17.26 | 150 | 365 | 33,55 | |||||||||||
| Т 17.27 | 200 | 415 | 38,50 | |||||||||||
| Т 17.28 | 630 | 100 | 360 | 715 | 28,98 | |||||||||
| Т 17.29 | 150 | 410 | 33,85 | |||||||||||
| Т 17.30 | 200 | 460 | 38,78 | |||||||||||
| Т 17.31 | 720 | 100 | 410 | 500 | 815 | 8 | 2 | 37,44 | ||||||
| Т 17.32 | 150 | 460 | 43,66 | |||||||||||
| Т 17.33 | 200 | 510 | 49,90 | |||||||||||
| Т 17.34 | 820 | 100 | 465 | 920 | 7 | 3 | 39,14 | |||||||
| Т 17.35 | 150 | 515 | 45,34 | |||||||||||
| Т 17.36 | 200 | 565 | 51,58 | |||||||||||
| Т 17.37 | 920 | 100 | 520 | 1030 | 120 | 60 | 10 | 8 | 10 | 8 | 56,57 | |||
| Т 17.38 | 150 | 570 | 64,58 | |||||||||||
| Т 17.39 | 200 | 620 | 72,74 | |||||||||||
| Т 17.40 | 1020 | 100 | 565 | 700 | 1140 | 11 | 72,55 | |||||||
| Т 17.41 | 150 | 615 | 83,07 | |||||||||||
| Т 17.42 | 200 | 665 | 93,79 | |||||||||||
| Т 17.43 | 1220 | 100 | 670 | 1360 | 70 | 10 | 4 | 77,07 | ||||||
| Т 17.44 | 150 | 720 | 82,49 | |||||||||||
| Т 17.45 | 200 | 770 | 98,03 | |||||||||||
| Т 17.46 | 1420 | 100 | 775 | 1575 | 10 | 12 | 89,70 | |||||||
| Т 17.47 | 150 | 825 | 102,48 | |||||||||||
| Т 17.48 | 200 | 875 | 115,72 |
Бугель Т 17.00.02.000

Катет - по наименьшей толщине свариваемых деталей.
1 - Подушка ( Т 17.00.01.001 - черт. 43,табл. 45); 2 - Ребро (Т 17.00.01.002 -черт. 44, табл. 46);
Чертёж 42
Размеры, мм
| Обозначение | R | Н | В | А | L | I | d | Масса, кг |
| 1 | 2 | 3 | 4 | 5 | 6 | 7 | 8 | 10 |
| Т 17.16.02.000 | 192 | 170 | 460 | 406 | 80 | 38 | 18 | 2,49 |
| Т 17.19 | 218 | 180 | 505 | 456 | 3,10 | |||
| Т 17.22 | 246 | 215 | 570 | 510 | 100 | 44 | 23 | 5,17 |
| Т 17.25 | 272 | 225 | 615 | 560 | 5,97 | |||
| Т 17.28 | 320 | 272 | 715 | 666 | 6,47 | |||
| Т 17.31 | 366 | 324 | 815 | 756 | 27 | 7,48 | ||
| Т 17.34 | 416 | 376 | 920 | 860 | 8,62 | |||
| Т 17.37 | 466 | 434 | 1030 | 960 | 120 | 60 | 34 | 14,38 |
| Т 17.40 | 516 | 482 | 1140 | 1060 | 15,78 | |||
| Т 17.43 | 616 | 584 | 1360 | 1270 | 70 | 40 | 18,86 | |
| Т 17.46.02.000 | 717 | 692 | 1575 | 1476 | 21,62 |
Подушка Т 17.00.01.001

Размеры, мм
| Обозначение | R | Н | Н1 | А | В | L | S | r | d | L1 | I | I1 | I2 | I3 | a | Масса, кг |
| 1 | 2 | 3 | 4 | 5 | 6 | 7 | 8 | 9 | 10 | 11 | 12 | 13 | 14 | 15 | 16 | 17 |
| Т 17.01.01.001 | 102 | 80 | 35 | 220 | 255 | 80 | 6 | 6 | 18 | 275 | 50 | 17 | 46 | - | 150 | 1,08 |
| Т 17.02 | 170 | 67 | 2,20 | |||||||||||||
| Т 17.03 | 114 | 90 | 244 | 280 | 80 | 308 | 17 | 1,15 | ||||||||
| Т 17.04 | 170 | 67 | 2,46 | |||||||||||||
| Т 17.05 | 142 | но | 45 | 304 | 350 | 80 | 23 | 380 | 60 | 15 | 50 | 1,45 | ||||
| Т 17.06 | 170 | 60 | 3,04 | |||||||||||||
| Т 17.07 | 168 | 130 | 356 | 395 | 80 | 450 | 15 | 1,67 | ||||||||
| Т 17.08 | 170 | 60 | 3,60 | |||||||||||||
| Т 17.09 | 192 | 170 | 90 | 404 | 460 | 80 | 525 | 75 | 15 | 25 | 155 | 1,80 | ||||
| Т 17.10 | 170 | 60 | 4,04 | |||||||||||||
| Т 17.11 | 218 | 180 | 100 | 456 | 505 | 80 | 610 | 100 | 15 | 160 | 2,13 | |||||
| Т 17.12 | 170 | 60 | 4,72 | |||||||||||||
| Т 17.13 | 246 | 215 | 120 | 510 | 570 | 100 | 8 | 8 | 690 | 20 | 60 | 40 | 4,00 | |||
| Т 17.14 | 170 | 55 | 7,00 | |||||||||||||
| Т 17.15 | 272 | 225 | 560 | 615 | 100 | 760 | 120 | 20 | 45 | 4,35 | ||||||
| Т 17.16 | 170 | 55 | 7,70 | |||||||||||||
| Т 17.17 | 320 | 272 | 665 | 715 | 100 | 895 | 140 | 20 | 50 | 5,17 | ||||||
| Т 17.18 | 170 | 55 | 9,12 | |||||||||||||
| Т 17.19 | 366 | 324 | 130 | 756 | 815 | 100 | 27 | 1025 | 150 | 20 | 60 | 5,90 | ||||
| Т 17.20 | 416 | 376 | 860 | 920 | 1200 | 165 | 7,00 | |||||||||
| Т 17.21 | 466 | 434 | 140 | 960 | 1030 | 120 | 10 | 10 | 34 | 1305 | 155 | 80 | 65 | 170 | 12,10 | |
| Т 17.22 | 516 | 482 | 1060 | 1140 | 1540 | 13,50 | ||||||||||
| Т 17.23 | 616 | 584 | 1270 | 1360 | 40 | 1840 | 160 | 15 | 90 | 60 | 16,30 | |||||
| Т 17.24.01.001 | 716 | 692 | 1476 | 1575 | 2135 | 155 | 55 | 19,10 |
Ребро Т 17.00.02.000

Размеры, мм
| Обозначение | R | В | В1 | Н | h | S=b | Масса, кг |
| 1 | 2 | 3 | 4 | 5 | 6 | 7 | 8 |
| Т 17.01.01.002 | 110 | 30 | 12 | 35 | 6 | 6 | 0,04 |
| Т 17.04 | 120 | 40 | 16 | 0,06 | |||
| Т 17.07 | 170 | 50 | 20 | 45 | 8 | 0,08 | |
| Т 17.13 | 200 | 70 | 34 | 90 | 0,16 | ||
| Т 17.19 | 225 | 90 | 46 | 100 | 0,23 | ||
| Т 17.22 | 246 | 120 | 10 | 8 | 0,28 | ||
| Т 17.25 | 272 | 50 | 0,38 | ||||
| Т 17.28 | 320 | 80 | 46 | 0,30 | |||
| Т 17.31 | 366 | 130 | 0,37 | ||||
| Т 17.34 | 416 | 36 | 0,38 | ||||
| Т 17.37 | 466 | 32 | 140 | 15 | 10 | 0,52 | |
| Т 17.40 | 530 | ||||||
| Т 17.43 | 630 | 90 | 24 | 0,59 | |||
| Т 17.46.01.002 | 730 | 20 | 0,58 |
Хомут Т 17.00.00.001

Размеры, мм
| Обозначение | R | Н | h | А | d1 | С | Развёрнутая длина | Масса, кг |
| 1 | 2 | 3 | 4 | 5 | 6 | 7 | 8 | 9 |
| Т 17.01.00.001 | 102 | 220 | 35 | 220 | М16 | 2,0 | 550 | 0,84 |
| Т 17.04 | 114 | 235 | 244 | 594 | 0,94 | |||
| Т 17.07 | 142 | 290 | 304 | М20 | 2,5 | 734 | 1,81 | |
| Т 17.10 | 168 | 320 | 40 | 356 | 824 | 1,98 | ||
| Т 17.13.00.001 | 192 | 370 | 404 | 952 | 3,45 |
Опора скользящая диэлектрическая Т 18.00.00.000

Сварные монтажные швы по ГОСТ5264-80
Катет - по наименьшей толщине свариваемых деталей.
1 - Корпус (Т 18.00.01.000 - черт. 47, табл. 49); 2 - Хомут (Т 17.00.00.001 -черт. 45, табл. 47); 3 - Прокладка; 4 - Прокладка; 5 - Гайка по ГОСТ5915-70
Чертёж 46
Таблица 48
Размеры, мм
| Обозначение | Наружный диаметр трубопровода, Dн | Н | Н1 | В | В1 | Масса, кг | Наибольшая нагрузка, кгс | |
| Вертикальная | Горизонтальная при f = 0,3 | |||||||
| 1 | 2 | 3 | 4 | 5 | 6 | 7 | 8 | 9 |
| Т 18.01.00.000 | 194 | 100 | 200 | 180 | 255 | 14,59 | 2200 | 660 |
| Т 18.02 | 150 | 250 | 17,23 | |||||
| Т 18.03 | 200 | 300 | 19,77 | |||||
| Т 18.04 | 219 | 100 | 215 | 280 | 14,71 | |||
| Т 18.05 | 150 | 265 | 17,31 | |||||
| Т 18.06 | 200 | 315 | 19,93 | |||||
| Т 18.07 | 273 | 100 | 240 | 350 | 16,95 | |||
| Т 18.08 | 150 | 290 | 19,83 | |||||
| Т 18.09 | 200 | 340 | 22,43 | |||||
| Т 18.10 | 325 | 100 | 266 | 280 | 395 | 26,00 | 7000 | 2100 |
| Т 18.11 | 150 | 316 | 30,19 | |||||
| Т 18.12 | 200 | 366 | 33,75 | |||||
| Т 18.13 | 377 | 100 | 292 | 460 | 29,20 | |||
| Т 18.14 | 150 | 342 | 33,47 | |||||
| Т 18.15.00.000 | 200 | 392 | 37,69 | |||||
Пример условногообозначения скользящей диэлектрической опоры для трубопровода Дн = 273 мм, Н = 200 мм:
Опора диэлектрическая 273-Т 18.09-ТУ......
Корпус Т 18.00.01.000

Сварные монтажные швы по ГОСТ5264-80
Катет - по наименьшей толщине свариваемых деталей.
1 - Подушка (Т 17.00.01.001 - черт. 43,табл. 45); 2 - Ребро (Т 17.00.01.002 -черт. 44, табл. 46); 3 - Скоба (Т 15.00.00.001 - черт. 35, табл. 37); 4- Ребро (Т 14.00.00.003 - черт. 32,табл. 34); 5 - Ребро ( Т 14.00.00.003- черт. 33, табл. 35);
Чертёж 47
Таблица 49
Размеры, мм
| Обозначение | Наружный диаметр трубопровода, Dн | Н | Н1 | В | В1 | b | I0 | I | I1 | I2 | С | k | аmin | еmin | Масса, кг |
| 1 | 2 | 3 | 4 | 5 | 6 | 7 | 8 | 9 | 10 | 11 | 12 | 13 | 14 | 15 | 16 |
| Т 18.01.01.000 | 194 | 100 | 170 | 180 | 255 | 45 | 80 | 34 | 80 | 150 | 5 | 6 | 4 | 0 | 12,17 |
| Т 18.02 | 150 | 220 | 14,81 | ||||||||||||
| Т 18.03 | 200 | 270 | 17,35 | ||||||||||||
| Т 18.04 | 219 | 100 | 180 | 280 | I | 12,03 | |||||||||
| Т 18.05 | 150 | 230 | 14,63 | ||||||||||||
| Т 18.06 | 200 | 280 | 17,25 | ||||||||||||
| Т 18.07 | 273 | 100 | 200 | 350 | 38 | 12,09 | |||||||||
| Т 18.08 | 150 | 250 | 14,97 | ||||||||||||
| Т 18.09 | 200 | 300 | 17,57 | ||||||||||||
| Т 18.10 | 325 | 100 | 220 | 280 | 395 | 50 | 6 | 5 | 0 | 20,66 | |||||
| Т 18.11 | 150 | 270 | 24,85 | ||||||||||||
| Т 18.12 | 200 | 320 | 28,41 | ||||||||||||
| Т 18.13 | 377 | 100 | 260 | 460 | 1 | 20,78 | |||||||||
| Т 18.14 | 150 | 310 | 25,05 | ||||||||||||
| Т 18.15 | 200 | 360 | 29,27 | ||||||||||||
| Т 18.19 | 426 | 100 | 270 | 505 | 6 | 21,44 | |||||||||
| Т 18.20 | 150 | 310 | 25,73 | ||||||||||||
| Т 18.21 | 200 | 370 | 29,87 | ||||||||||||
| Т 18.22 | 480 | 100 | 305 | 380 | 570 | 100 | 44 | 100 | 190 | 8 | 8 | 7 | 41,52 | ||
| Т 18.23 | 150 | 355 | 49,00 | ||||||||||||
| Т 18.24 | 200 | 405 | 56,58 | ||||||||||||
| Т 18.25 | 530 | 100 | 315 | 615 | 42,06 | ||||||||||
| Т 18.26 | 150 | 365 | 49,52 | ||||||||||||
| Т 18.27 | 200 | 415 | 57,10 | ||||||||||||
| Т 18.28 | 630 | 100 | 360 | 715 | 60 | 41,82 | |||||||||
| Т 18.29 | 150 | 410 | 49,32 | ||||||||||||
| Т 18.30 | 200 | 460 | 56,88 | ||||||||||||
| Т 18.31 | 720 | 100 | 410 | 500 | 815 | 8 | 2 | 53,28 | |||||||
| Т 18.32 | 150 | 460 | 62,04 | ||||||||||||
| Т 18.33 | 200 | 510 | 70,92 | ||||||||||||
| Т 18.34 | 820 | 100 | 465 | 920 | 7 | 3 | 54,58 | ||||||||
| Т 18.35 | 150 | 515 | 63,32 | ||||||||||||
| Т 18.36 | 200 | 565 | 72,20 | ||||||||||||
| Т 18.37 | 920 | 100 | 520 | 1030 | 120 | 60 | 10 | 8 | 75,84 | ||||||
| Т 18.38 | 150 | 570 | 87,16 | ||||||||||||
| Т 18.39 | 200 | 620 | 99,54 | ||||||||||||
| Т 18.40 | 1020 | 100 | 565 | 700 | 1140 | 10 | 11 | 99,68 | |||||||
| Т 18.41 | 150 | 615 | 114,54 | ||||||||||||
| Т 18.42 | 200 | 665 | 129,60 | ||||||||||||
| Т 18.43 | 1220 | 100 | 670 | 1360 | 70 | 12 | 4 | 103,30 | |||||||
| Т 18.44 | 150 | 720 | 117,96 | ||||||||||||
| Т 18.45 | 200 | 770 | 132,84 | ||||||||||||
| Т 18.46 | 1420 | 100 | 775 | 1575 | 12 | 121,36 | |||||||||
| Т 18.47 | 150 | 825 | 139,60 | ||||||||||||
| Т 18.48.01.000 | 200 | 875 | 158,50 |
Опора скользящая диэлектрическая Т 18.00.00.000

Сварные монтажные швы по ГОСТ5264-80
Катет - по наименьшей толщине свариваемых деталей.
1 - Корпус (Т 18.00.01.000 - черт. 47, табл. 49); 2 - Бугель (Т 17.00.02.000 -черт. 42, табл. 44); 3 - Прокладка; 4 - Шпилька по ГОСТ 11769-76; 5 -Гайка по ГОСТ5915-70
Чертёж 48
Таблица 50
Размеры, мм
| Обозначение | Наружный диаметр трубопровода, Dн | Н | Н1 | В | В1 | Масса, кг | Наибольшая нагрузка, кгс | |
| Вертикальная | Горизонтальная при f = 0,3 | |||||||
| 1 | 2 | 3 | 4 | 5 | 6 | 7 | 8 | 9 |
| Т 18.16.00.000 | 377 | 100 | 292 | 280 | 460 | 30,77 | 7000 | 2100 |
| Т 18.17 | 150 | 342 | 35,04 | |||||
| Т 18.18 | 200 | 392 | 39,26 | |||||
| Т 18.19 | 426 | 100 | 318 | 505 | 33,67 | |||
| Т 18.20 | 150 | 368 | 37,96 | |||||
| Т 18.21 | 200 | 418 | 42,10 | |||||
| Т 18.22 | 480 | 100 | 345 | 380 | 570 | 58,59 | 12500 | 3750 |
| Т 18.23 | 150 | 395 | 66,07 | |||||
| Т 18.24 | 200 | 445 | 73,65 | |||||
| Т 18.25 | 530 | 100 | 370 | 615 | 61,42 | |||
| Т 18.26 | 150 | 420 | 68,88 | |||||
| Т 18.27 | 200 | 470 | 76,46 | |||||
| Т 18.28 | 630 | 100 | 420 | 715 | 62,86 | |||
| Т 18.29 | 150 | 470 | 70,36 | |||||
| Т 18.30 | 200 | 520 | 77,92 | |||||
| Т 18.31 | 720 | 100 | 465 | 500 | 815 | 79,48 | 22000 | 6600 |
| Т 18.32 | 150 | 515 | 88,24 | |||||
| Т 18.33 | 200 | 565 | 97,12 | |||||
| Т 18.34 | 820 | 100 | 515 | 920 | 8334 | |||
| Т 18.35 | 150 | 565 | 92,08 | |||||
| Т 18.36 | 200 | 615 | 100,96 | |||||
| Т 18.37 | 920 | 100 | 565 | 1030 | 123,14 | 36000 | 10800 | |
| Т 18.38 | 150 | 615 | 134,76 | |||||
| Т 18.39 | 200 | 665 | 146,84 | |||||
| Т 18.40 | 1020 | 100 | 615 | 700 | 1140 | 150,42 | ||
| Т 18.41 | 150 | 665 | 165,28 | |||||
| Т 18.42 | 200 | 715 | 180,34 | |||||
| Т 18.43 | 1220 | 100 | 715 | 1360 | 169,05 | 48000 | 14400 | |
| Т 18.44 | 150 | 765 | 183,71 | |||||
| Т 18.45 | 200 | 815 | 198,59 | |||||
| Т 18.46 | 1420 | 100 | 815 | 1575 | 193,67 | 60000 | 18000 | |
| Т 18.47 | 150 | 865 | 211,81 | |||||
| Т 18.48.00.000 | 200 | 915 | 230,81 | |||||
Пример условного обозначения скользящей диэлектрической опоры длятрубопровода Дн = 377 мм, Н= 200 мм:
Опорадиэлектрическая 273-Т18.18-ТУ......
Плита опорная с диэлектрической прокладкой Т 43.00.00.000

Сварные монтажные швы по ГОСТ5264-80
Катет - по наименьшей толщине свариваемых деталей.
1 - Плита опорная для опор Дн£ 273 мм (Т43.00.01.000 - черт. 50, табл. 52); 2 - Плита опорная для опор Дн ³325 мм (Т 43.00.02.000 - черт. 51,табл. 53) ; 3 - Прокладка; 4 - Втулка(Т 43.00.00.001 - черт. 52, табл. 54); 5 - Шайба (Т 43.00.00.002 - черт. 53, табл. 55); 6 - Болт по ГОСТ7798-70; 7 - Шайба по ГОСТ11371-78; 8 - Шайба по ГОСТ6958-78;
Чертёж 49
Таблица 51
Размеры, мм
| Обозначение | Тип опоры | Наружный диаметр трубопровода, Dн | L | В | Н | С | А | d | Масса, кг |
| 1 | 2 | 3 | 4 | 5 | 6 | 7 | 8 | 9 | 10 |
| Т 43.01.00.000 | Т 13.01.00.000 | 32; 38; 45 | 160 | 50 | 8 | 30 | 120 | 11 | 0,44 |
| Т 43.02 | Т 14.01 | 330 | 240 | 0,88 | |||||
| Т 43.03 | Т 13.04 | 57; 76 | 160 | 70 | 40 | 120 | 0,51 | ||
| Т 43.04 | Т 14.04 | 330 | 240 | 1.21 | |||||
| Т 43.05 | Т 13.07 | 89; 108 | 160 | 90 | 50 | 120 | 0,77 | ||
| Т 43.06 | Т 14.07 | 330 | 240 | 1,55 | |||||
| Т 43.07 | Т 13.10 | 133; 159 | 160 | 120 | 70 | 120 | 1,01 | ||
| Т 43.08 | Т 14.10 | 330 | 240 | 2,05 | |||||
| Т 43.09 | Т 13.13 | 194 | 170 | 170 | 10 | 80 | 145 | 13 | 1,99 |
| Т 43.10 | Т 14.13 | 340 | 290 | 3,92 | |||||
| Т 43.11 | Т 15.01 | 680 | 620 | 7,78 | |||||
| Т 43.12 | Т 13.16 | 219 | 170 | 145 | 1,99 | ||||
| Т 43.13 | Т 14.16 | 340 | 290 | 3,92 | |||||
| Т 43.14 | Т 15.04 | 680 | 620 | 7,78 | |||||
| Т 43.15 | Т 13.19 | 273 | 170 | 145 | 1,95 | ||||
| Т 43.16 | Т 14.19 | 340 | 290 | 3,92 | |||||
| Т 43.17 | Т 15.07 | 680 | 620 | 7,78 | |||||
| Т 43.18 | Т 13.22 | 325 | 170 | 270 | 180 | 145 | 21 | 3,19 | |
| Т 43.19 | Т 14.22 | 340 | 290 | 6,23 | |||||
| Т 43.20 | Т 15.10 | 680 | 620 | 1237 | |||||
| Т 43.21 | Т 13.25 | 377 | 170 | 145 | 3,19 | ||||
| Т 43.22 | Т 14.25 | 340 | 290 | 6,23 | |||||
| Т 43.23 | Т 15.13 | 680 | 620 | 12,37 | |||||
| Т 43.24 | Т 13.28 | 426 | 170 | 145 | 3,19 | ||||
| Т 43.25 | Т 14.28 | 340 | 290 | 6,23 | |||||
| Т 43.26 | Т 15.16 | 680 | 620 | 12,37 | |||||
| Т 43.27 | Т 13.31 | 480 | 170 | 360 | 280 | 145 | 4,21 | ||
| Т 43.28 | Т 14.31 | 340 | 290 | 8,29 | |||||
| Т 43.29 | Т 15.19 | 680 | 620 | 16,46 | |||||
| Т 43.30 | Т 13.34 | 530 | 170 | 145 | 4,21 | ||||
| Т 43.31 | Т 14.34 | 340 | 290 | 8,29 | |||||
| Т 43.32 | Т 15.22 | 680 | 620 | 16,46 | |||||
| Т 43.33 | Т 13.37 | 630 | 170 | 145 | 4Д1 | ||||
| Т 43.34 | Т 14.37 | 340 | 290 | 8,29 | |||||
| Т 43.35 | Т 15.25 | 680 | 620 | 16,46 | |||||
| Т 43.36 | Т 14.40 | 720 | 340 | 480 | 12 | 400 | 290 | 41 | 14,28 |
| Т 43.37 | Т 15.28 | 680 | 620 | 27,74 | |||||
| Т 43.38 | Т 14.43 | 820 | 340 | 290 | 14,28 | ||||
| Т 43.39 | Т 15.31 | 680 | 620 | 27,74 | |||||
| Т 43.40 | Т 14.46 | 920 | 340 | 290 | 14,28 | ||||
| Т 43.41 | Т 15.34 | 680 | 620 | 27,74 | |||||
| Т 43.42 | Т 14.49 | 1020 | 340 | 670 | 600 | 290 | 19,61 | ||
| Т 43.43 | Т 15.37 | 680 | 620 | 38,30 | |||||
| Т 43.44 | Т 14.52 | 1220 | 340 | 290 | 19,62 | ||||
| Т 43.45 | Т 15.40 | 680 | 620 | 38,41 | |||||
| Т 43.46 | Т 14.55 | 1420 | 340 | 290 | 19,62 | ||||
| Т 43.47 | Т 15.43 | 680 | 620 | 38,41 | |||||
| Т 43.48 | Т 14.56 | 340 | 290 | 19,62 | |||||
| Т 43.49.00.000 | Т 15.44.00.000 | 680 | 620 | 38,41 |
Пример условногообозначения плиты диэлектрической для опоры типа Т 13.07
Плита диэлектрическая Т 43.05-ТУ......
Плита опорная Т 43.00.01.000

Сварные монтажные швы по ГОСТ5264-80
Катет - по наименьшей толщине свариваемых деталей.
1 - Плита
Чертёж 50
Размеры, мм
| Обозначение | Наружный диаметр трубопровода, Dн | В | L | С | А | d1 | S | k | Масса, кг |
| 1 | 2 | 3 | 4 | 5 | 6 | 7 | 8 | 9 | 10 |
| Т 43.01.00.000 | 32; 38; 45 | 50 | 160 | 30 | 120 | М6 | 6 | 2 | 0,38 |
| Т 43.02 | 330 | 240 | 0,78 | ||||||
| Т 43.03 | 57; 76 | 70 | 160 | 40 | 120 | 0,53 | |||
| Т 43.04 | 330 | 240 | 1,09 | ||||||
| Т 43.05 | 89; 108 | 90 | 160 | 50 | 120 | 0,68 | |||
| Т 43.06 | 330 | 240 | 1,40 | ||||||
| Т 43.07 | 133; 159 | 120 | 160 | 70 | 120 | 0,90 | |||
| Т 43.08 | 330 | 240 | 1,87 | ||||||
| Т 43.09 | 194 | 170 | 170 | 80 | 145 | М8 | 8 | 3 | 1,81 |
| Т 43.10 | 340 | 290 | 3,63 | ||||||
| Т 43.11 | 680 | 620 | 7,26 | ||||||
| Т 43.12 | 219 | 170 | 145 | 1,81 | |||||
| Т 43.13 | 340 | 290 | 3,63 | ||||||
| Т 43.14 | 680 | 620 | 7,26 | ||||||
| Т 43.15 | 273 | 170 | 145 | 1,81 | |||||
| Т 43.16 | 340 | 290 | 3,63 | ||||||
| Т 43.17.00.000 | 680 | 620 | 7,26 |
Плита опорная Т 43.00.02.000

Сварные монтажные швы по ГОСТ5264-80
Катет - по наименьшей толщине свариваемых деталей.
1 - Плита; 2 - Бобышка
Чертёж 51
Размеры, мм
| Обозначение | Наружный диаметр трубопровода, Dн | В | L | С | А | d | d1 | Н | h | I | S | К - катет шва | Масса, кг |
| 1 | 2 | 3 | 4 | 5 | 6 | 7 | 8 | 9 | 10 | 11 | 12 | 13 | 14 |
| Т 43.18.01.000 | 325 | 270 | 170 | 180 | 145 | 16,5 | М8 | 13 | 5 | 10 | 8 | 3 | 2,89 |
| Т 43.19 | 340 | 290 | 5,75 | ||||||||||
| Т 43.20 | 680 | 620 | 11,53 | ||||||||||
| Т 43.21 | 377 | 170 | 145 | 2,89 | |||||||||
| Т 43.22 | 340 | 290 | 5,75 | ||||||||||
| Т 43.23 | 680 | 620 | 11,53 | ||||||||||
| Т 43.24 | 426 | 170 | 145 | 2,89 | |||||||||
| Т 43.25 | 340 | 290 | 5,75 | ||||||||||
| Т 43.26 | 680 | 620 | 11,53 | ||||||||||
| Т 43.27 | 480 | 360 | 170 | 280 | 145 | 15 | 7 | 12 | 3,84 | ||||
| Т 43.28 | 340 | 290 | 7,68 | ||||||||||
| Т 43.29 | 680 | 620 | 15,36 | ||||||||||
| Т 43.30 | 530 | 170 | 145 | 3,84 | |||||||||
| Т 43.31 | 340 | 290 | 7,68 | ||||||||||
| Т 43.32 | 680 | 620 | 15,36 | ||||||||||
| Т 43.33 | 630 | 170 | 145 | 3,84 | |||||||||
| Т 43.34 | 340 | 290 | 7,68 | ||||||||||
| Т 43.35 | 680 | 620 | 15,36 | ||||||||||
| Т 43.36 | 720 | 480 | 340 | 400 | 290 | 36,5 | М16 | 19 | 9 | 14 | 10 | 5 | 12,81 |
| Т 43.37 | 680 | 620 | 25,62 | ||||||||||
| Т 43.38 | 820 | 340 | 290 | 12,81 | |||||||||
| Т 43.39 | 680 | 620 | 25,62 | ||||||||||
| Т 43.40 | 920 | 340 | 290 | 12,81 | |||||||||
| Т 43.41 | 680 | 620 | 25,62 | ||||||||||
| Т 43.42 | 1020 | 670 | 340 | 600 | 290 | 17,88 | |||||||
| Т 43.43 | 680 | 620 | 35,77 | ||||||||||
| Т 43.44 | 1220 | 340 | 290 | 21 | 11 | 16 | 17,89 | ||||||
| Т 43.45 | 680 | 620 | 35,77 | ||||||||||
| Т 43.46 | 1420 | 340 | 290 | 17,89 | |||||||||
| Т 43.47.00.000 | 680 | 620 | 35,77 |
Втулка Т 43.00.00.001

Паронит ГОСТ 481-71
Размеры, мм
| Обозначение | d | d1 | I | Масса, кг |
| 1 | 2 | 3 | 4 | 5 |
| Т 43.01.00.001 | 10 | 6 | 6 | 0,0007 |
| Т 43.09 | 12 | 8 | 7 | 0,0003 |
| Т 43.18 | 20 | 16 | 6 | 0,0010 |
| Т 43.27 | 20 | 16 | 8 | 0,0020 |
| Т 43.35 | 40 | 36 | 10 | 0,0050 |
| Т 43.44.00.001 | 40 | 36 | 12 | 0,0060 |
Шайба Т 43.00.00.002

Паронит ГОСТ 481-71
Размеры, мм
| Обозначение | d2 | d1 | S | Масса, кг |
| 1 | 2 | 3 | 4 | 5 |
| Т 43.01.00.002 | 12 | 6 | 1 | 0,0002 |
| Т 43.09 | 18 | 8 | 1 | 0,0004 |
| Т 43.18 | 25 | 8 | 1 | 0,0008 |
| Т 43.36.00.002 | 50 | 16 | 1 | 0,0030 |
Опора однокатковая Т 19.00.00.000

Сварные монтажные швы по ГОСТ5264-80
Катет - по наименьшей толщине свариваемых деталей.
1 - Опора (Т 13.00.00.000 - черт. 24,табл. 26, Т 14.00.00.000 - черт. 29, табл. 31); 2 - Плита опорная (Т 19.00.01.000 - черт. 56, табл. 58); 3 - Каток (Т 19.00.00.001 - черт. 55, табл. 57); 4- Ребро
Чертеж 54
Таблица 56
Размеры, мм
| Обозначение | Наружный диаметр трубопровода, Dн | Наибольшее перемещение трубопровода | L | Н | В | В1 | I | k | Масса, кг | Наибольшая нагрузка, кгс | |
| Вертикальная | Горизонтальная при f = 0,3 | ||||||||||
| 1 | 2 | 3 | 4 | 5 | 6 | 7 | 8 | 9 | 10 | 11 | 12 |
| Т 19.01.00.000 | 194 | 180 | 170 | 150 | 180 | 340 | 170 | 3 | 12,32 | 2200 | 220 |
| Т 19.02 | 520 | 340 | 340 | 18,79 | |||||||
| Т 19.03 | 219 | 180 | 170 | 170 | 12,12 | ||||||
| Т 19.04 | 520 | 340 | 340 | 18,49 | |||||||
| Т 19.05 | 273 | 180 | 170 | 170 | 11,66 | ||||||
| Т 19.06 | 520 | 340 | 340 | 17,95 | |||||||
| Т 19.07 | 325 | 100 | 170 | 200 | 280 | 440 | 170 | 4 | 33,86 | 6000 | 600 |
| Т 19.08 | 440 | 340 | 340 | 44,31 | |||||||
| Т 19.09 | 377 | 100 | 170 | 170 | 33,44 | ||||||
| Т 19.10 | 440 | 340 | 340 | 43,79 | |||||||
| Т 19.11 | 426 | 100 | 170 | 170 | 32,81 | ||||||
| Т 19.12 | 440 | 340 | 340 | 43,04 | |||||||
| Т 19.13 | 480 | 100 | 170 | 380 | 540 | 170 | 6 | 48,00 | 10000 | 1000 | |
| Т 19.14 | 440 | 340 | 340 | 63,32 | |||||||
| Т 19.15 | 530 | 100 | 170 | 170 | 47,40 | ||||||
| Т 19.16 | 440 | 340 | 340 | 62,58 | |||||||
| Т 19.17 | 630 | 100 | 170 | 170 | 46,81 | ||||||
| Т 19.18 | 440 | 340 | 340 | 61,79 | |||||||
| Т 19.19 | 720 | 500 | 660 | 81,95 | |||||||
| Т 19.20 | 820 | 81,09 | |||||||||
| Т 19.21 | 920 | 8 | 88,68 | ||||||||
| Т 19.22 | 1020 | 700 | 860 | 123,52 | 20000 | 2000 | |||||
| Т 19.23 | 1220 | 125,35 | |||||||||
| Т 19.24.00.000 | 1420 | 10 | 135,43 | 24000 | 2400 | ||||||
Пример условногообозначения однокатковой опоры для трубопровода Дн = 219 мм и наибольшим перемещением 180 мм
Опора однокатковая 219-Т 19.03-ТУ......
Каток Т 19.00.00.001

Чертёж 55
Таблица 57
Размеры, мм
| Обозначение | I | I1 | D | d | Масса, кг |
| 1 | 2 | 3 | 4 | 5 | 6 |
| Т 19.01.00.001 | 288 | 340 | 40 | 16 | 3,26 |
| Т 19.07 | 388 | 440 | 90 | 66 | 20,60 |
| Т 19.13 | 488 | 540 | 26,90 | ||
| Т 19.19 | 608 | 660 | 34,90 | ||
| Т 19.22.00.001 | 808 | 860 | 47,80 |
Опорная плита Т 19.00.01.000

Катет - по наименьшей толщине свариваемых деталей.
1 - Основание; 2 - Направляющая; 3 - Упор
Чертёж 56
Размеры, мм
| Обозначение | L | L1 | А | А1 | I | I1 | Масса, кг |
| 1 | 2 | 3 | 4 | 5 | 6 | 7 | 8 |
| Т 19.01.01.000 | 170 | 150 | 340 | 300 | 160 | 60 | 4,95 |
| Т 19.02 | 340 | 320 | 330 | 8,93 | |||
| Т 19.07 | 170 | 150 | 440 | 400 | 160 | 120 | 6,48 |
| Т 19.08 | 340 | 320 | 330 | 12,58 | |||
| Т 19.13 | 170 | 150 | 540 | 500 | 160 | 7,81 | |
| Т 19.14 | 340 | 320 | 330 | 15,01 | |||
| Т 19.19 | 660 | 620 | 180 | 18,43 | |||
| Т 19.21.01. 000 | 860 | 820 | 23,77 |
Опора двухкатковая Т 20.00.00.000

Сварные монтажные швы по ГОСТ5264-80
Катет - по наименьшей толщине свариваемых деталей.
1 - Опора (Т 14.00.00.000 - черт. 29,табл. 31, Т 15.00.00.000 - черт. 34, табл. 36); 2 - Плита опорная (Т 20.00.01.000 - черт. 58, табл.60); 3 - Обойма (Т 20.00.02.000 - черт. 59,табл. 61); 4 - Ребро
Чертёж 57
Таблица 59
Размеры, мм
| Обозначение | Наружный диаметр трубопровода, Dн | Наибольшее перемещение трубопровода | L | L1 | В | В1 | k | Масса, кг | Наибольшая нагрузка, кгс | |
| Вертикальная | Горизонтальная при f = 0,3 | |||||||||
| 1 | 2 | 3 | 4 | 5 | 6 | 7 | 8 | 9 | 10 | 11 |
| Т 20.01.00.000 | 720 | 200 | 360 | 340 | 660 | 500 | 6 | 117,49 | 18000 | 1800 |
| Т 20.02 | 800 | 640 | 680 | 151,15 | ||||||
| Т 20.03 | 820 | 200 | 360 | 340 | 116,63 | |||||
| Т 20.04 | 800 | 640 | 680 | 149,99 | ||||||
| Т 20.05 | 920 | 200 | 360 | 340 | 8 | 124,69 | 22000 | 2200 | ||
| Т 20.06 | 800 | 640 | 680 | 162,52 | ||||||
| Т 20.07 | 1020 | 200 | 360 | 340 | 860 | 700 | 167,79 | 30000 | 3000 | |
| Т 20.08 | 800 | 640 | 680 | 217,28 | ||||||
| Т 20.09 | 1220 | 200 | 360 | 340 | 169,53 | 40000 | 4000 | |||
| Т 20.10 | 800 | 640 | 680 | 218,22 | 30000 | 3000 | ||||
| Т 20.11 | 1420 | 200 | 360 | 340 | 10 | 180,07 | 50000 | 5000 | ||
| Т 20.12.00.000 | 800 | 640 | 680 | 234,90 | 30000* | 3000 | ||||
Примечание: *Допускается увеличение нагрузки до 50 т при условииобеспечения необходимой прочности несущих строительных конструкций.
Пример условного обозначения двухкатковой опоры для трубопровода Дн= 720 мм и наибольшим перемещением 200 мм
Опора однокатковая 720-Т 20.01-ТУ......
Опорная плита Т 20.00.01.000

Катет - по наименьшей толщине свариваемых деталей.
1 - Основание; 2 - Направляющая ; 3 - Упор
Чертёж 58
Таблица 60
Размеры, мм
| Обозначение | L | L1 | A | A1 | I | Масса, кг |
| 1 |
|
|
|
| 6 | 8 |
| Т 20.01.01.000 | 360 | 340 | 660 | 620 | 350 | 16,67 |
| Т 20.02 | 640 | 620 | 630 | 34,58 | ||
| Т 20.07 | 360 | 340 | 860 | 820 | 350 | 25,37 |
| Т 20.08.01.000 | 640 | 620 | 630 | 44,68 |
Обойма Т 20.00.02.000

Катет - по наименьшей толщине свариваемых деталей.
1 - Каток (Т 20.00.02.001 - черт. 60, табл. 62); 2 - Угольник (Т 20.00.02.002 -черт. 61, табл. 63)
Чертёж 59
Размеры, мм
| Обозначение | В | Масса, кг | |
| номинальная | Доп. отклонения | ||
| 1 | 2 | 3 | 4 |
| Т 20.01.02.001 | 662 | +1,0 -0,5 | 69,2 |
| Т 20.07.02.001 | 862 | 90,0 | |
Каток Т 20.00.02.001

Чертёж 60
Таблица 62
Размеры, мм
| Обозначение | I | I1 | I2 | Масса, кг |
| 1 | 2 | 3 | 4 | 5 |
| Т 20.01.02.001 | 608 | 660 | 680 | 32,9 |
| Т 20.07.02.001 | 808 | 860 | 880 | 42,9 |
Угольник Т 20.00.02.002

Размеры, мм
| Обозначение | В | Развёрнутая длина | Масса, кг |
| 1 | 2 | 3 | 4 |
| Т 20.01.02.002 | 670 | 905 | 1,70 |
| Т 20.07.02.002 | 870 | 1105 | 2,08 |
Опора шариковая Т 21.00.00.000

Сварные монтажные швы по ГОСТ5264-80
Катет - по наименьшей толщине свариваемых деталей.
1 - Опора (Т 13.00.00.000 - черт. 24,табл. 26, Т 14.00.00.000 - черт. 29, табл. 31); 2 - Каретка ( Т 21.00.01.000-черт. 63, табл. 65) ;3 - Сепаратор (Т 21.00.02.000 - черт. 65,табл. 67); 4 - Основание (Т21.00.03.000 - черт. 68, табл. 70); 5 - Плита (Т 21.00.00.001 - черт. 69, табл. 71); 6 - Подпятник (Т 21.00.00.002 - черт. 70); 7 - Пята (T 21.00.00.003 -черт. 71); 8 - Накладка (T 21.00.00.004- черт. 72, табл. 72); 9 - Кольцо (Т 21.00.00.005 - черт. 73, табл. 73); 10 - Болт по ГОСТ7798-70
Чертёж 62
Таблица 64
Размеры, мм
| Обозначение | Наружный диаметр трубопровода, Dн | Наибольшее перемещение трубопровода | Н | Н1 | Н 2 | L | L1 | С | Масса, кг | Наибольшая нагрузка, кгс | |
| Вертикальная | Горизонтальная при f = 0,3 | ||||||||||
| 1 | 2 | 3 | 4 | 5 | 6 | 7 | 8 | 9 | 10 | 11 | 12 |
| Т 21.01.00.000 | 194 | 200 | 350 | 150 | 250 | 660 | 560 | 10 | 112,06 | 2200 | 220 |
| Т 21.02 | 400 | 1000 | 700 | 62,66 | |||||||
| Т 21.03 | 219 | 200 | 360 | 660 | 560 | 111,86 | |||||
| Т 21.04 | 400 | 1000 | 700 | 162,46 | |||||||
| Т 21.05 | 273 | 200 | 390 | 660 | 560 | 111,40 | |||||
| Т 21.06 | 400 | 1000 | 700 | 162,00 | |||||||
| Т 21.07 | 325 | 200 | 415 | 660 | 560 | 115,60 | 7000 | 700 | |||
| Т 21.08 | 400 | 1000 | 700 | 166,20 | |||||||
| Т 21.09 | 377 | 200 | 440 | 660 | 560 | 115,18 | |||||
| Т 21.10 | 400 | 1000 | 700 | 165,78 | |||||||
| Т 21.11 | 426 | 200 | 465 | 660 | 560 | 114,55 | |||||
| Т 21.12 | 400 | 1000 | 700 | 165,15 | |||||||
| Т 21.13 | 480 | 200 | 540 | 200 | 300 | 660 | 560 | 154,67 | 12500 | 1250 | |
| Т 21.14 | 400 | 900 | 700 | 241,94 | |||||||
| Т 21.15 | 530 | 200 | 565 | 660 | 560 | 154,07 | |||||
| Т 21.16 | 400 | 900 | 700 | 241,34 | |||||||
| Т 21.17 | 630 | 200 | 615 | 660 | 560 | 153,48 | |||||
| Т 21.18 | 400 | 900 | 700 | 240,75 | |||||||
| Т 21.19 | 720 | 200 | 610 | 150 | 250 | 660 | 560 | 95 | 138,58 | 7000 | 700 |
| Т 21.20 | 400 | 900 | 700 | 189,18 | |||||||
| Т 21.21 | 200 | 560 | 200 | 300 | 800 | 274,28 | 16200 | 1620 | |||
| Т 21.22 | 400 | 1000 | 800 | 330,88 | |||||||
| Т 21.23 | 820 | 200 | 710 | 660 | 560 | 169,43 | 10300 | 1030 | |||
| Т 21.24 | 400 | 900 | 700 | 256,70 | |||||||
| Т 21.25 | 200 | 800 | 273,40 | 21300 | 2130 | ||||||
| Т 21.26 | 400 | 1000 | 800 | 329,80 | |||||||
| Т 21.27 | 920 | 200 | 760 | 660 | 560 | 176,72 | 12300 | 1230 | |||
| Т 21.28 | 400 | 900 | 700 | 263,99 | |||||||
| Т 21.29 | 200 | 800 | 850 | 451,78 | 27500 | 2750 | |||||
| Т 21.30 | 400 | 1000 | 950 | 534,48 | |||||||
| Т21.31 | 1020 | 200 | 810 | 660 | 700 | 299,18 | 16200 | 1620 | |||
| Т 21.32 | 400 | 900 | 800 | 356,58 | |||||||
| Т 21.33 | 200 | 800 | 850 | 470,27 | 36100 | 3610 | |||||
| Т 21.34 | 400 | 1000 | 950 | 552,87 | |||||||
| Т 21.35 | 1220 | 200 | 910 | 660 | 700 | 301,02 | 21300 | 2130 | |||
| Т 21.36 | 400 | 900 | 800 | 357,42 | |||||||
| Т 21.37 | 200 | 800 | 850 | 472,12 | 45000 | 4500 | |||||
| Т 21.38 | 400 | 1000 | 950 | 554,71 | |||||||
| Т 21.39 | 1420 | 200 | 1010 | 660 | 700 | 311,09 | 21300 | 2130 | |||
| Т 21.40 | 400 | 900 | 800 | 367,49 | |||||||
| Т 21.41 | 200 | 800 | 850 | 482,18 | 45000 | 4500 | |||||
| Т 21.42.00.000 | 400 | 1000 | 950 | 564,78 | |||||||
Пример условного обозначения опоры шариковой для трубопровода Дн= 194 мм и наибольшим перемещением 400 мм
Опора шариковая 194-Т 21.02-ТУ......
Каретка Т 21.00.01.000

Катет - по наименьшей толщине свариваемых деталей.
1 - Ребро (Т 21.00.01.001 - черт. 64, табл. 66); 2 - Труба; 3 - Лист
Чертёж 63
Таблица 65
Размеры, мм
| Обозначение | D | D1 | Н | α | α1 | A | A1 | Масса, кг |
| 1 | 2 | 3 | 4 | 5 | 6 | 7 | 8 | 9 |
| Т 21.01.01.000 | 500 | 320 | 65 | 22°30 | 45° | 10 | 4 | 19,4 |
| Т 21.02 | 680 | 440 | 34,0 | |||||
| Т 21.13 | 500 | 320 | 90 | 12 | 23,8 | |||
| Т 21.14 | 680 | 440 | 45° | 30° | 20 | 67,3 | ||
| Т 21.22 | 780 | 390 | 87,0 | |||||
| Т 21.29 | 800 | 465 | 80 | 25 | 108,9 | |||
| Т 21.30.01.000 | 900 | 515 | 136,4 |
Ребро Т 21.00.01.001

Чертёж 64
Таблица 66
Размеры, мм
| Обозначение | L | h | Масса, кг |
| 1 | 2 | 3 | 4 |
| Т 21.01.01.001 | 180 | 50 | 0,352 |
| Т 21.02 | 270 | 0,521 | |
| Т 21.13 | 180 | 70 | 0,471 |
| Т 21.14 | 270 | 0,697 | |
| Т 21.22 | 320 | 0,823 | |
| Т 21.29 | 330 | 55 | 0,688 |
| Т 21.30.01.001 | 380 | 0,790 |
Сепаратор Т 21.00.02.000

1 - Обойма (Т 21.00.02.001 - черт. 66, табл. 68); 2 - Заклёпка (Т21.00.02.002 - черт. 67, табл. 69); 3 - Шарик по ГОСТ 3722-81
Чертёж 65
Размеры, мм
| Обозначение | D | D1 | d | h | Масса, кг |
| 1 | 2 | 3 | 4 | 5 | 6 |
| Т 21.01.02.000 | 520 | 120 | 35,7 | 12 | 11,7 |
| Т 21.02 | 220 | 8,8 | |||
| Т 21.13 | 120 | 50,8 | 15 | 25,5 | |
| Т 21.14 | 220 | 24,0 | |||
| Т 21.21 | 600 | 120 | 40,7 | ||
| Т 21.22 | 220 | 39,5 | |||
| Т 21.29 | 750 | 120 | 60,0 | 20 | 88,3 |
| Т 21.30.02.000 | 220 | 87,1 |
Обойма Т 21.00.02.001

Чертёж 66
Таблица 68
Размеры, мм
| Обозначение | D | D1 | D2 | D3 | D4 | D5 | D6 | d | S | Количество отверстий | Масса, кг | |
| z | n | |||||||||||
| 1 | 2 | 3 | 4 | 5 | 6 | 7 | 8 | 9 | 10 | 11 | 12 | 13 |
| Т 21.01.02.001 | 520 | 120 | - | 485 | 400 | 280 | 220 | 33 | 2 | - | 12 | 2,67 |
| Т 21.02 | 220 | 430 | 310 | 245 | 1,25 | |||||||
| Т 21.13 | 120 | 400 | 280 | 220 | 47 | 3 | 3,37 | |||||
| Т 21.14 | 220 | 410 | 290 | 245 | 2,63 | |||||||
| Т 21.21 | 600 | 120 | 530 | 570 | 26 | 13 | 3,88 | |||||
| Т 21.22 | 220 | 3,25 | ||||||||||
| Т 21.29 | 750 | 120 | 550 | 460 | 420 | 55 | 6 | 5,22 | ||||
| Т 21.30.02.001 | 220 | 4,60 | ||||||||||
Заклепка Т 21.00.02.002

Размеры, мм
| Обозначение | L | L1 | Масса, кг |
| 1 | 2 | 3 | 4 |
| Т 21.01.02.002 | 24 | 12 | 0,012 |
| Т 21.13 | 27 | 15 | 0,014 |
| Т 21.29.02.002 | 32 | 20 | 0,018 |
Основание Т 21.00.03.000

Размеры, мм
| Обозначение | В | h | С | Масса, кг |
| 1 | 2 | 3 | 4 | 5 |
| Т 21.01.03.000 | 560 | 30 | 160 | 41,7 |
| Т 21.02 | 700 | 200 | 64,4 | |
| Т 21.13 | 560 | 40 | 160 | 41,7 |
| Т 21.14 | 700 | 200 | 64,4 | |
| Т 21.22 | 800 | 220 | 81,3 | |
| Т 21.29 | 850 | 45 | 250 | 93,8 |
| Т 21.30.03.000 | 950 | 270 | 118,8 |
Плита Т 21.00.00.001

Размеры, мм
| Обозначение | В | D | С | S | S1 | I | α | Масса, кг |
| 1 | 2 | 3 | 4 | 5 | 6 | 7 | 8 | 9 |
| Т 21.01.00.001 | 560 | 320 | 160 | 20 | 14 | 10 | 45° | 28,8 |
| Т 21.02 | 700 | 440 | 200 | 45,0 | ||||
| Т 21.13 | 560 | 320 | 160 | 25 | 20 | 14 | 41,6 | |
| Т 21.14 | 700 | 440 | 200 | 22°30¢ | 64,3 | |||
| Т 21.22 | 800 | 390 | 220 | 85,3 | ||||
| Т 21.29 | 850 | 465 | 250 | 30 | 25 | 117,2 | ||
| Т 21.30.00.001 | 950 | 515 | 270 | 148,5 |
Подпятник Т 21.00.00.002

Пята Т 21.00.00.003

Накладка Т 21.00.00.004

Размеры, мм
| Обозначение | L | Масса, кг |
| 1 | 2 | 3 |
| Т 21.01.00.004 | 140 | 1,32 |
| Т 21.07 | 240 | 2,25 |
| Т 21.13 | 340 | 3,20 |
| Т 21.19 | 460 | 4,33 |
| Т 21.31.00.004 | 660 | 6,22 |
Кольцо Т 21.00.00.005

Размеры, мм
| Обозначение | S | Масса, кг |
| 1 | 2 | 3 |
| Т 21.01.00.005 | 10 | 0,284 |
| Т 21.13 | 35 | 0,993 |
| Т 21.14 | 30 | 0,851 |
| Т 21.29.00.005 | 15 | 0,425 |
Опора неподвижная Т3.00.00.000

Сварные монтажные швы по ГОСТ5264-80
Катет - по наименьшей толщине свариваемых деталей.
1 - Упор; 2 - Хомут
Чертёж 74
Размеры, мм
| Обозначение | Dн | S=k | Осевая сила Q, тс | b | I | S1 | S2 | Масса, кг |
| 1 | 2 | 3 | 4 | 5 | 6 | 7 | 8 | 9 |
| Т 3.01.00.000 | 32 | 2,5 | 0,5 | 25 | 75 | 3 | 6 | 0,329 |
| Т 3.02 | 38 | 0,338 | ||||||
| Т 3.03 | 45 | 0,350 | ||||||
| Т 3.04 | 57 | 3 | 0,368 | |||||
| Т 3.05 | 76 | 1,0 | 8 | 0,465 | ||||
| Т 3.06 | 89 | 3,5 | 0,486 | |||||
| Т 3.07 | 108 | 4 | 2,5 | 40 | 100 | 10 | 1,180 | |
| Т 3.08 | 133 | 1,240 | ||||||
| Т 3.09 | 159 | 4,5 | 1,300 | |||||
| Т 3.10 | 194 | 5 | 1,385 | |||||
| Т 3.11.00.000 | 219 | 6 | 1,447 |
Пример условного обозначения опоры неподвижной для трубопровода Дн= 219 мм:
Опора неподвижная 219-Т 3.11-ТУ......
Опора неподвижная лобовая двухупорная Т 4.00.00.000

Сварные монтажные швы по ГОСТ5264-80
Катет - по наименьшей толщине свариваемых деталей.
1 - Упор (Т 4.00.01.000 - черт. 76,табл. 76); 2 - Лист защитный; 3 -Прокладка
Чертёж 75, лист 1

Чертёж 75, лист 2
Таблица 75
Размеры, мм
| Обозначение | Dн | S=k | Осевая сила Q, тс | Н | В | I | L | m | Масса, кг | |
| 1 | 2 | 3 | 4 | 5 | 6 | 7 | 8 | 9 | 10 | |
| Т 4.01.00.000 | 108 | 4 | 3 | 230 | 70 | 110 | 170 | 30 | 4,24 | |
| Т 4.02 | 133 | 260 | 80 | 180 | 4,40 | |||||
| Т 4.03 | 159 | 4,5 | 4 | 320 | 90 | 112 | 190 | 6,60 | ||
| Т 4.04 | 194 | 5 | 360 | 100 | 200 | 6,88 | ||||
| Т 4.05 | 219 | 6 | 420 | 120 | 132 | 220 | 11,64 | |||
| 7 | 5 | |||||||||
| Т 4.06 | 273 | 480 | 80 | 11,28 | ||||||
| 8 | 6 | |||||||||
| Т 4.07 | 325 | 7 | 5 | 530 | 162 | 12,60 | ||||
| 8 | 7 | |||||||||
| Т 4.08 | 377 | 9 | 8 | 580 | 140 | 240 | 14,16 | |||
| Т 4.09 | 426 | 7 | б | 660 | 160 | 196 | 250 | 26,72 | ||
| 9 | 10 | |||||||||
| Т 4.10 | 480 | 7 | 6 | 720 | 180 | 280 | 25,92 | |||
| 8 | 8 | |||||||||
| Т 4.11 | 530 | 7 | 7 | 770 | 200 | 226 | 300 | 32,32 | ||
| 8 | 8 | |||||||||
| 9 | 9 | |||||||||
| Т 4.12 | 630 | 7 | 8 | 870 | 240 | 340 | 150 | 33,88 | ||
| 9 | 12 | |||||||||
| 10 | 15 | |||||||||
| 11 | 17 | |||||||||
| Т 4.13 | 720 | 8 | 10 | 960 | 280 | 266 | 380 | 38,40 | ||
| 10 | 14 | |||||||||
| 11 | 18 | |||||||||
| 12 | 22 | |||||||||
| Т 4.14 | 820 | 8 | 10 | 1060 | 300 | 400 | 40,00 | |||
| 9 | 12 | |||||||||
| 10 | 15 | |||||||||
| 12 | 22 | |||||||||
| Т 4.15 | 920 | 8 | 10 | 1160 | 320 | 420 | 42,40 | |||
| 9 | 12 | |||||||||
| 10 | 16 | |||||||||
| 14 | 28 | |||||||||
| Т 4.16 | 1020 | 9 | 14 | 1260 | 360 | 286 | 460 | 48,80 | ||
| 10 | 16 | |||||||||
| 11 | 20 | |||||||||
| 12 | 25 | |||||||||
| 14 | 32 | |||||||||
| Т 4.17 | 1220 | 9 | 18 | 1480 | 400 | 336 | 500 | 58,80 | ||
| 11 | 22 | |||||||||
| 12 | 25 | |||||||||
| 14 | 35 | |||||||||
| Т 4.18.00.000 | 1420 | 10 | 20 | 1680 | 500 | 600 | 66,00 | |||
| 14 | 35 |
Пример условного обозначения опоры неподвижной лобовой двухупорнойдля трубопровода Дн = 219 мм, S =6 мм, тип I:
Опора неподвижная 219´6-1-Т 4.05-ТУ......
Упор Т 4.00.01.000

Размеры, мм
| Обозначение | Наружный диаметр трубопровода Дн | К | В | L | Н | H1 | H 2 | h | k | S | I | I1 | Масса, кг |
| 1 | 2 | 3 | 4 | 5 | 6 | 7 | 8 | 9 | 10 | 11 | 12 | 13 | 14 |
| Т 4.01.01.000 | 108 | 54 | 70 | 110 | 115 | 75 | 55 | 17 | 4 | 10 | 20 | 20 | 1,06 |
| Т 4.02 | 133 | 66 | 80 | 130 | 77 | 65 | 20 | 1,10 | |||||
| Т 4.03 | 159 | 80 | 90 | 112 | 160 | 95 | 75 | 22 | 12 | 1,65 | |||
| Т 4.04 | 194 | 97 | 100 | 180 | 98 | 95 | 25 | 1,72 | |||||
| Т 4.05 | 219 | 110 | 120 | 132 | 210 | 118 | 75 | 30 | 2,91 | ||||
| Т 4.06 | 273 | 136 | 240 | 117 | 120 | 40 | 2,82 | ||||||
| Т 4.07 | 325 | 162 | 162 | 265 | 115 | 100 | 20 | 3,15 | |||||
| Т 4.08 | 377 | 188 | 140 | 290 | 120 | 90 | 35 | 25 | 3,54 | ||||
| Т 4.09 | 425 | 213 | 160 | 195 | 330 | 135 | 120 | 40 | 16 | 40 | 6,68 | ||
| Т 4.10 | 480 | 240 | 180 | 360 | 138 | 100 | 45 | 20 | 6,73 | ||||
| Т 4.11 | 530 | 265 | 200 | 225 | 385 | 140 | 120 | 50 | 40 | 8,08 | |||
| Т 4.12 | 630 | 315 | 240 | 435 | 144 | 150 | 60 | 8,47 | |||||
| Т 4.13 | 720 | 360 | 280 | 266 | 480 | 145 | 100 | 70 | 20 | 9,60 | |||
| Т 4.14 | 820 | 410 | 300 | 530 | 148 | 120 | 75 | 8 | 40 | 10,00 | |||
| Т 4.15 | 920 | 460 | 320 | 580 | 150 | 155 | 80 | 10,60 | |||||
| Т 4.16 | 1020 | 510 | 360 | 285 | 630 | 155 | 120 | 90 | 12,20 | ||||
| Т 4.17 | 1220 | 610 | 400 | 336 | 740 | 164 | 175 | 100 | 14,70 | ||||
| Т 4.18.01.000 | 1420 | 710 | 500 | 840 | 176 | 200 | 125 | 16,50 |
Пример условного обозначения упора для трубопровода Дн =219 мм:
Упор 219-Т 4.05-ТУ......
Опора неподвижная лобовая четырехупорная Т 5.00.00.000

Сварные монтажные швы по ГОСТ5264-80
Катет - по наименьшей толщине свариваемых деталей.
1- Упор (Т 4.00.01.000 - черт. 76,табл. 76); 2 - Лист защитный; 5 -Прокладка
Чертёж 77, лист 1

Чертёж 77, лист 2
Таблица 77
Размеры, мм
| Обозначение | Dн | S=k | Осевая сила Q, тс | Н | В | I | L | m | Масса, кг | |
| 1 | 2 | 3 | 4 | 5 | 6 | 7 | 8 | 9 | 10 | |
| Т 5.02.00.000 | 133 | 4 | 7 | 260 | 80 | 110 | 180 | 32 | 8,8 | |
| Т 5.03 | 159 | 4,5 | 10 | 320 | 90 | 112 | 190 | 13,2 | ||
| Т 5.04 | 194 | 5 | 12 | 360 | 100 | 200 | 13,7 | |||
| Т 5.05 | 219 | 6 | 420 | 120 | 132 | 220 | 23,3 | |||
| 7 | 15 | |||||||||
| Т 5.06 | 273 | 480 | 80 | 22,5 | ||||||
| 8 | 18 | |||||||||
| Т 5.07 | 325 | 7 | 15 | 530 | 162 | 25,2 | ||||
| 8 | 22 | |||||||||
| Т 5.08 | 377 | 9 | 25 | 580 | 140 | 240 | 28,3 | |||
| Т 5.09 | 426 | 7 | 18 | 660 | 150 | 196 | 260 | 53,4 | ||
| 9 | 30 | |||||||||
| Т 5.10 | 480 | 7 | 18 | 720 | 180 | 280 | 53,8 | |||
| 8 | 25 | |||||||||
| Т 5.11 | 530 | 7 | 22 | 770 | 200 | 226 | 300 | 54,5 | ||
| 8 | 25 | |||||||||
| 9 | 30 | |||||||||
| Т 5.12 | 630 | 7 | 25 | 870 | 240 | 340 | 150 | 57,7 | ||
| 9 | 35 | |||||||||
| 10 | 45 | |||||||||
| 11 | 50 | |||||||||
| Т 5.13 | 720 | 8 | 30 | 960 | 280 | 266 | 380 | 76,8 | ||
| 10 | 42 | |||||||||
| 11 | 55 | |||||||||
| 12 | 65 | |||||||||
| Т 5.14 | 820 | 8 | 30 | 1060 | 300 | 400 | 80,0 | |||
| 9 | 35 | |||||||||
| 10 | 45 | |||||||||
| 12 | 65 | |||||||||
| Т 5.15 | 920 | 8 | 30 | 1160 | 320 | 420 | 84,8 | |||
| 9 | 36 | |||||||||
| 10 | 48 | |||||||||
| 14 | 55 | |||||||||
| Т 5.16 | 1020 | 9 | 42 | 1260 | 360 | 285 | 460 | 97,6 | ||
| 10 | 48 | |||||||||
| 11 | 60 | |||||||||
| 12 | 75 | |||||||||
| 14 | 95 | |||||||||
| Т 5.17 | 1220 | 9 | 55 | 1480 | 400 | 336 | 500 | 117,6 | ||
| 11 | 65 | |||||||||
| 12 | 75 | |||||||||
| 14 | 100 | |||||||||
| Т 5.18.00.000 | 1420 | 10 | 60 | 1680 | 500 | 600 | 132,0 | |||
| 14 | 100 |
Пример условного обозначения опоры неподвижной лобовойчетырёхупорной для трубопровода Дн = 219 мм, S = 6 мм, тип I:
Опора неподвижная 219´6-1-Т 5.05-ТУ......
Опора неподвижная лобовая двухупорная усиленная Т 6.00.00.000

Сварные монтажные швы по ГОСТ5264-80
Катет - по наименьшей толщине свариваемых деталей.
1 - Упор (Т 6.00.01.000 - черт. 79,табл. 79); 2 - Подушка (Т 6.00.01.000- черт. 80, табл. 80); 3 - Лист защитный; 4 - Прокладка
Чертёж 78, лист 1

Чертёж 78, лист 2

Чертёж 78, лист 3
Таблица 78
Размеры, мм
| Обозначение | Dн | S | Осевая сила Q, тс | Н | В | L | I | m | k | Масса, кг | |
| 1 | 2 | 3 | 4 | 5 | 6 | 7 | 8 | 9 | 10 | 11 | |
| Т 6.01.00.000 | 108 | 4 | 5 | 238 | 70 | 170 | 115 | 30 | 4 | 5,2 | |
| Т 6.02 | 133 | 268 | 80 | 180 | 5,6 | ||||||
| Т 6.03 | 159 | 4,5 | 6 | 328 | 90 | 190 | 117 | 7,8 | |||
| Т 6.04 | 194 | 5 | 8 | 372 | 100 | 200 | 6 | 9,2 | |||
| Т 6.05 | 219 | 6 | 9 | 432 | 120 | 228 | 137 | 14,4 | |||
| 7 | 10 | 80 | |||||||||
| Т 6.06 | 273 | 492 | 14,1 | ||||||||
| 8 | 12 | ||||||||||
| Т 6.07 | 325 | 7 | 10 | 542 | 167 | 16,5 | |||||
| 8 | 15 | ||||||||||
| Т 6.08 | 377 | 9 | 596 | 140 | 240 | 7 | 20,8 | ||||
| Т 6.09 | 426 | 7 | 12 | 676 | 160 | 260 | 200 | 35,2 | |||
| 9 | 18 | ||||||||||
| Т 6.10 | 480 | 7 | 12 | 736 | 180 | 280 | 37,0 | ||||
| 8 | 15 | ||||||||||
| Т 6.11 | 530 | 7 | 12 | 786 | 200 | 300 | 230 | 43,7 | |||
| 8 | 14 | ||||||||||
| 9 | 18 | ||||||||||
| Т 6.12 | 630 | 7 | 14 | 890 | 240 | 340 | 150 | 8 | 52,0 | ||
| 9 | 20 | ||||||||||
| 10 | 26 | ||||||||||
| 11 | 30 | ||||||||||
| Т 6.13 | 720 | 8 | 16 | 980 | 280 | 380 | 270 | 64,8 | |||
| 10 | 24 | ||||||||||
| 11 | 30 | ||||||||||
| 12 | 35 | ||||||||||
| Т6.14 | 820 | 8 | 16 | 1080 | 300 | 400 | 67,3 | ||||
| 9 | 20 | ||||||||||
| 10 | 26 | ||||||||||
| 12 | 38 | ||||||||||
| Т 6.15 | 920 | 8 | 16 | 1184 | 320 | 420 | 77,8 | ||||
| 9 | 20 | ||||||||||
| 10 | 25 | ||||||||||
| 12 | 50 | ||||||||||
| Т 6.16 | 1020 | 9 | 24 | 1284 | 360 | 460 | 290 | 10 | 89,6 | ||
| 10 | 28 | ||||||||||
| 11 | 35 | ||||||||||
| 12 | 40 | ||||||||||
| 14 | 55 | ||||||||||
| Т 6.17 | 1220 | 9 | 30 | 1504 | 400 | 500 | 340 | 113,3 | |||
| 11 | 40 | ||||||||||
| 12 | 50 | ||||||||||
| 14 | 60 | ||||||||||
| Т 6.18 | 1420 | 10 | 35 | 1704 | 500 | 600 | 135,8 | ||||
| 14 | 60 | ||||||||||
| Т 6.19 | 194 | 5 | 10 | 372 | 100 | 200 | 117 | 30 | 6 | 11,8 | |
| Т 6.20 | 219 | 6 | 14 | 432 | 120 | 228 | 137 | 17,6 | |||
| 7 | 12 | 80 | |||||||||
| Т 6.21.00.000 | 273 | 12 | 492 | 17,3 | |||||||
| 8 | 15 | 167 |
| ||||||||
| Т 6.22.00.000 | 325 | 7 | 12 | 542 | 120 | 228 | 167 | 80 | 6 | 20,8 | |
| 8 | 18 | ||||||||||
| Т 6.23 | 377 | 8 | 20 | 596 | 140 | 240 | 7 | 27,5 | |||
| Т 6.24 | 426 | 7 | 15 | 676 | 160 | 260 | 200 | 44,2 | |||
| 9 | 25 | ||||||||||
| Т 6.25 | 480 | 7 | 15 | 736 | 180 | 280 | 47,1 | ||||
| 8 | 20 | ||||||||||
| Т 6.26 | 530 | 7 | 18 | 786 | 200 | 300 | 230 | 56,7 | |||
| 8 | 20 | ||||||||||
| 9 | 25 | ||||||||||
| Т 6.27 | 630 | 7 | 20 | 890 | 240 | 340 | 150 | 8 | 71,1 | ||
| 9 | 30 | ||||||||||
| 10 | 38 | ||||||||||
| 11 | 42 | ||||||||||
| Т 6.28 | 720 | 8 | 25 | 980 | 280 | 380 | 270 | 90,6 | |||
| 10 | 35 | ||||||||||
| 11 | 45 | ||||||||||
| 12 | 55 | ||||||||||
| Т 6.29 | 820 | 8 | 25 | 1080 | 300 | 400 | 94,6 | ||||
| 9 | 30 | ||||||||||
| 10 | 35 | ||||||||||
| 12 | 55 | ||||||||||
| Т 6.30 | 920 | 8 | 25 | 1184 | 320 | 420 | 112,2 | ||||
| 9 | 30 | ||||||||||
| 10 | 40 | ||||||||||
| 12 | 70 | ||||||||||
| Т 6.31 | 1020 | 9 | 35 | 1284 | 360 | 460 | 290 | 10 | 132,2 | ||
| 10 | 40 | ||||||||||
| 11 | 50 | ||||||||||
| 12 | 65 | ||||||||||
| 14 | 80 | ||||||||||
| Т 6.32 | 1220 | 9 | 45 | 1504 | 400 | 500 | 340 | 169,3 | |||
| 11 | 55 | ||||||||||
| 12 | 65 | ||||||||||
| 14 | 85 | ||||||||||
| Т 6.33.00.000 | 1420 | 10 | 50 | 1704 | 500 | 600 | 205,8 | ||||
| 14 | 85 |
Пример условного обозначения опоры неподвижной лобовой двухупорнойусиленной для трубопровода Дн = 325 мм, S = 7 мм, тип I:
Опора неподвижная 325´7-1-Т 6.07-ТУ......

1 - Упор (Т 4.00.01.000 - черт. 76,табл. 76); 2 - Подушка
Чертёж 79
Размеры, мм
| Обозначение | Наружный диаметр трубопровода Дн | R | L | I | Н | h | h1 | S=k | h2 | Масса, кг |
| 1 | 2 | 3 | 4 | 5 | 6 | 7 | 8 | 9 | 10 | 11 |
| Т 6.01.01.000 | 108 | 54 | 76 | 115 | 119 | 80 | 17 | 4 | 17 | 1,29 |
| Т 6.02 | 133 | 66 | 88 | 134 | 82 | 20 | 18 | 1,40 | ||
| Т 6.03 | 159 | 80 | 101 | 117 | 164 | 100 | 22 | 20 | 1,95 | |
| Т 6.04 | 194 | 97 | 111 | 186 | 103 | 25 | 6 | 22 | 2,31 | |
| Т 6.05 | 219 | 110 | 130 | 137 | 216 | 124 | 30 | 25 | 3,60 | |
| Т 6.06 | 273 | 136 | 246 | 123 | 22 | 3,53 | ||||
| Т 6.07 | 325 | 162 | 167 | 271 | 120 | 20 | 4,13 | |||
| Т 6.08 | 377 | 188 | 158 | 298 | 126 | 35 | 8 | 25 | 5,20 | |
| Т 6.09 | 426 | 213 | 178 | 200 | 338 | 140 | 40 | 27 | 8,80 | |
| Т 6.10 | 480 | 240 | 197 | 368 | 145 | 45 | 28 | 9,25 | ||
| Т 6.11 | 530 | 265 | 222 | 230 | 393 | 146 | 50 | 31 | 10,93 | |
| Т 6.12 | 630 | 315 | 262 | 445 | 150 | 60 | 10 | 37 | 13,00 | |
| Т 6.13 | 720 | 360 | 300 | 270 | 490 | 154 | 70 | 41 | 16,19 | |
| Т 6.14 | 820 | 410 | 320 | 540 | 156 | 75 | 16,84 | |||
| Т 6.15 | 920 | 460 | 346 | 592 | 158 | 80 | 12 | 44 | 19,46 | |
| Т 6.16 | 1020 | 510 | 382 | 290 | 642 | 163 | 90 | 48 | 22,39 | |
| Т 6.17 | 1220 | 610 | 435 | 340 | 752 | 174 | 100 | 51 | 28,33 | |
| Т 6.18.01.000 | 1420 | 710 | 540 | 852 | 188 | 125 | 64 | 33,96 |
Пример условного обозначения упора для трубопровода Дн =325 мм:
Упор 325-Т 6.07.01-ТУ......
Опора неподвижная лобовая четырёхупорная усиленная Т 7.00.00.000

Сварные монтажные швы по ГОСТ5264-80
Катет - по наименьшей толщине свариваемых деталей.
1- Упор (Т 6.00.01.000 - черт. 79,табл. 79); 2 - Лист защитный; 3 -Прокладка
Чертёж 80, лист 1

Чертёж 80, лист 2
Размеры, мм
| Обозначение | Наружный диаметр трубопровода Дн | S | Осевая сила, тс | Н | В | L | I | k | m | Масса, кг | |
| Для железобетонных опорных конструкций | Для стальных опорных конструкций | ||||||||||
| 1 | 2 | 3 | 4 | 5 | 6 | 7 | 8 | 9 | 10 | 11 | 12 |
| Т 7.09.00.000 | 426 | 7 | 40 | 40 | 656 | 160 | 260 | 200 | 6 | 80 | 70,4 |
| 9 | 60 | 60 | |||||||||
| Т 7.10 | 480 | 7 | 45 | 45 | 736 | 180 | 280 | 7 | 74,1 | ||
| 8 | 65 | 65 | |||||||||
| Т 7.11 | 530 | 7 | 45 | 45 | 786 | 200 | 300 | 230 | 87,4 | ||
| 8 | 55 | 55 | |||||||||
| 9 | 70 | 70 | |||||||||
| Т 7.12 | 630 | 7 | 55 | 55 | 890 | 240 | 340 | 8 | 150 | 104,0 | |
| 9 | 85 | 85 | |||||||||
| 10 | 100 | ||||||||||
| 11 | 120 | ||||||||||
| Т 7.13 | 720 | 8 | 75 | 75 | 980 | 280 | 380 | 270 | 129,5 | ||
| 10 | 90 | 100 | |||||||||
| 11 | 125 | ||||||||||
| 12 | 150 | ||||||||||
| Т 7.14 | 820 | 8 | 80 | 80 | 1080 | 300 | 400 | 134,7 | |||
| 9 | 90 | 90 | |||||||||
| 10 | 100 | 100 | |||||||||
| 12 | 150 | ||||||||||
| Т 7.15 | 920 | 8 | 75 | 75 | 1184 | 320 | 420 | 155,7 | |||
| 9 | 100 | 100 | |||||||||
| 10 | 110 | 120 | |||||||||
| 14 | 180 | ||||||||||
| Т 7.16 | 1020 | 9 | 120 | 120 | 1284 | 360 | 460 | 290 | 10 | 179,1 | |
| 10 | 130 | 140 | |||||||||
| 11 | 160 | ||||||||||
| 12 | 175 | ||||||||||
| 14 | 220 | ||||||||||
| Т 7.17 | 1220 | 9 | 90 | 90 | 1504 | 400 | 500 | 340 | 226,6 | ||
| 11 | 110 | 110 | |||||||||
| 12 | 130 | 130 | |||||||||
| 14 | 145 | 170 | |||||||||
| Т 7.18.00.000 | 1420 | 10 | 100 | 100 | 1704 | 500 | 600 | 271,7 | |||
| 14 | 170 | 170 | |||||||||
Пример условного обозначения опоры неподвижной лобовойчетырёхупорной усиленной для трубопровода Дн = 480 мм, S = 7 мм, тип I:
Опора неподвижная 480´7-1-Т 7.10-ТУ......
Опора неподвижная лобовая сальниковых компенсаторов Т 46.00.00.000

Сварные монтажные швы по ГОСТ5264-80
Катет - по наименьшей толщине свариваемых деталей.
1- Упор (Т 46.00.01.000 - черт. 82,табл. 82); 2 - Лист защитный; 3 -Прокладка
Чертёж 81, лист 1

Чертёж 81, лист 2
Таблица 81
Размеры, мм
| Обозначение | Наружный диаметр трубопровода Дн | Осевая сила Q, тс | D | S | Н | В | L | I | m | k | Масса, кг |
| 1 | 2 | 3 | 4 | 5 | 6 | 7 | 8 | 9 | 10 | 11 | 12 |
| Т 46.11.00.000 | 530 | 6 | 576 | 7 | 816 | 200 | 300 | 226 | 80 | 8 | 32,0 |
| Т 46.12 | 630 | 7 | 680 | 920 | 240 | 340 | 150 | 10 | 33,6 | ||
| Т 46.13 | 720 | 8 | 772 | 8 | 1012 | 280 | 380 | 266 | 40,0 | ||
| Т 46.14.00.000 | 820 | 9 | 874 | 9 | 1114 | 300 | 400 | 41,6 |
Пример условного обозначения опоры неподвижной лобовой длясальникового компенсатора для трубопровода Дн = 630 мм, тип I:
Опора неподвижная 630-1-Т 46.12-ТУ......
Упор Т 46.00.01.000

Размеры, мм
| Обозначение | Диаметр корпуса компенсатора D | R | В | L | Н | H1 | H 2 | h | k | S | I | I1 | Масса, кг |
| 1 | 2 | 3 | 4 | 5 | 6 | 7 | 8 | 9 | 10 | 11 | 12 | 13 | 14 |
| Т 46.11.01.000 | 576 | 288 | 200 | 226 | 408 | 138 | 120 | 50 | 4 | 16 | 40 | 25 | 8,00 |
| Т 46.12 | 680 | 340 | 240 | 460 | 140 | 150 | 60 | 8,40 | |||||
| Т 46.13 | 772 | 386 | 280 | 266 | 506 | 142 | 100 | 70 | 20 | 10,00 | |||
| Т 46.14.01.000 | 874 | 437 | 300 | 557 | 144 | 120 | 75 | 6 | 40 | 10,40 |
Пример условного обозначения упора для сальникового компенсаторадля трубопровода Дн = 680 мм:
Опора неподвижная 680-Т 46.12-ТУ......
Опора неподвижная щитовая Т 8.00.00.000

Сварные монтажные швы по ГОСТ5264-80
Катет - по наименьшей толщине свариваемых деталей.
1 - Щит (Т 8.00.01.000 - черт. 84,табл. 84); 2 - Прокладка
Чертёж 83, лист 1

Чертёж 83, лист 2
Таблица 83
Размеры, мм
| Обозначение | Наружный диаметр трубопровода Dн | S | Осевая сила Q, тс | D | I | С | Масса, кг | |
| 1 | 2 | 3 | 4 | 5 | 6 | 7 | 8 | |
| Т 8.01.00.000 | 108 | 4 | 5 | 225 | 110 | 20 | 8,9 | |
| Т 8.02 | 133 | 7 | 245 | 9,3 | ||||
| Т 8.03 | 159 | 4,5 | 10 | 282 | 10,8 | |||
| Т 8.04 | 194 | 5 | 14 | 325 | 30 | 13,0 | ||
| Т 8.05 | 219 | 6 | 20 | 365 | 16,3 | |||
| 7 | ||||||||
| Т 8.06 | 273 | 24 | 420 | 18,3 | ||||
| 8 | ||||||||
| Т 8.07 | 325 | 7 | 30 | 480 | 24,6 | |||
| 8 | ||||||||
| Т 8.08 | 377 | 9 | 38 | 540 | 27,8 | |||
| Т 8.09 | 426 | 7 | 32 | 610 | 132 | 46,9 | ||
| 9 | 55 | |||||||
| Т 8.10 | 480 | 7 | 35 | 570 | 40 | 49,1 | ||
| 8 | 40 | |||||||
| Т 8.11 | 530 | 7 | 152 | 34,2 | ||||
| Т 8.12 | 8 | 50 | 740 | 162 | 51,8 | |||
| 9 | 55 | |||||||
| Т 8.13 | 630 | 7 | 50 | 780 | 152 | 38,5 | ||
| Т 8.14 | 9 | 80 | 870 | 72,8 | ||||
| 10 | 85 | |||||||
| 11 | ||||||||
| Т 8.15 | 720 | 8 | 70 | 880 | 51,2 | |||
| Т 8.16 | 10 | 90 | 975 | 85,6 | ||||
| 11 | 95 | |||||||
| 12 | ||||||||
| Т 8.17 | 820 | 8 | 85 | 1000 | 196 | 90,4 | ||
| Т 8.18 | 9 | 110 | 1110 | 145,1 | ||||
| 10 | 130 | |||||||
| 12 | 165 | |||||||
| Т 8.19 | 920 | 8 | 105 | 1120 | 226 | 112,0 | ||
| Т 8.20 | 9 | 135 | 1220 | 173,6 | ||||
| 10 | 165 | |||||||
| 12 | 220 | |||||||
| Т 8.21 | 1020 | 9 | 135 | 1230 | ||||
| Т 8.22 | 10 | 165 | 1330 | 266 | 125,8 | |||
| 11 | 200 | 202,2 | ||||||
| 12 | 240 | |||||||
| 14 | 250 | |||||||
| Т 8.23 | 1220 | 9 | 150 | 1440 | 152,2 | |||
| Т 8.24 | 11 | 220 | 1570 | 286 | 255,0 | |||
| 12 | 255 | |||||||
| 14 | 310 | |||||||
| Т 8.25 | 1420 | 10 | 145 | 1640 | 270 | 202,0 | ||
| Т 8.26.00.000 | 14 | 330 | 1820 | 300 | 393,4 |
Пример условного обозначения опоры неподвижной щитовой длятрубопровода Дн = 530 мм, S =8 мм, тип I:
Опора неподвижная 530´8-1-Т8.12-ТУ......
Щит Т 8.00.01.000

1 - Полукольцо; 2 - Ребро
Чертёж 84
Размеры, мм
| Обозначение | Наружный диаметр трубопровода Дн | r | R | S | S1 | α | h | h1 | I | I1 | k | Масса, кг |
| 1 | 2 | 3 | 4 | 5 | 6 | 7 | 8 | 9 | 10 | 11 | 12 | 13 |
| Т 8.01.01.000 | 108 | 54 | 112 | 10 | 10 | 30° | 110 | 100 | 20 | 20 | 10 | 2,23 |
| Т 8.02 | 133 | 67 | 122 | 2,32 | ||||||||
| Т 8.03 | 159 | 80 | 141 | 12 | 2,71 | |||||||
| Т 8.04 | 194 | 97 | 162 | 3,24 | ||||||||
| Т 8.05 | 219 | 110 | 182 | 120 | 4,08 | |||||||
| Т 8.06 | 273 | 137 | 210 | 40 | 4,58 | |||||||
| Т 8.07 | 325 | 163 | 240 | 150 | 20 | 6,14 | ||||||
| Т 8.08 | 377 | 189 | 270 | 25 | 6,95 | |||||||
| Т 8.09 | 426 | 213 | 305 | 12 | 16 | 135 | 179 | 40 | 12 | 11,73 | ||
| Т 8.10 | 480 | 240 | 335 | 20 | 12,22 | |||||||
| Т 8.11 | 530 | 265 | 155 | 209 | 40 | 8,55 | ||||||
| Т 8.12 | 370 | 165 | 12,95 | |||||||||
| Т 8.13 | 630 | 315 | 380 | 22°30¢ | 155 | 9,62 | ||||||
| Т 8.14 | 435 | 18,20 | ||||||||||
| Т 8.15 | 720 | 360 | 440 | 250 | 20 | 16 | 12,82 | |||||
| Т 8.16 | 488 | 21,40 | ||||||||||
| Т 8.17 | 820 | 410 | 500 | 16 | 200 | 40 | 22,60 | |||||
| Т 8.18 | 555 | 36,28 | ||||||||||
| Т 8.19 | 920 | 460 | 560 | 220 | 28,00 | |||||||
| Т 8.20 | 610 | 43,40 | ||||||||||
| Т 8.21 | 1020 | 510 | 615 | 269 | 31,45 | |||||||
| Т 8.22 | 665 | 270 | 50,55 | |||||||||
| Т 8.23 | 1220 | 610 | 720 | 320 | 38,04 | |||||||
| Т 8.24 | 785 | 290 | 63,76 | |||||||||
| Т 8.25 | 1420 | 710 | 820 | 20 | 270 | 50,50 | ||||||
| Т 8.26.01.000 | 910 | 300 | 98,35 |
Пример условного обозначения щита для трубопровода Дн =194 мм, R = 162 мм:
Щит 194-Т 8.04.01-ТУ......
Опора неподвижная щитовая усиленная Т 9.00.00.000

Сварные монтажные швы по ГОСТ5264-80
Катет - по наименьшей толщине свариваемых деталей.
1 - Щит (Т 9.00.01.000 - черт. 86, табл.86); 2 - Полукольцо (Т 9.00.00.001 - черт. 87,табл. 87); 3 - Прокладка
Чертёж 85, лист 1

Чертёж 85, лист 2
Таблица 85
Размеры, мм
| Обозначение | Наружный диаметр трубопровода Дн | S | Осевая сила Q, тс | D | I | С | k | k1 | Масса, кг | |
| Т 9.09.00.000 | 426 | 7 | 55 | 610 | 144 | 30 | 8 | 12 | 49,1 | |
| Т 9.10 | 480 | 65 | 670 | 40 | 56,1 | |||||
| 8 | ||||||||||
| Т 9.12 | 530 | 80 | 740 | 174 | 69,4 | |||||
| 9 | ||||||||||
| Т 9.14 | 630 | 115 | 870 | 10 | 97,6 | |||||
| 10 | ||||||||||
| 11 | ||||||||||
| Т 9.16 | 720 | 10 | 145 | 975 | 16 | 114,5 | ||||
| 11 | ||||||||||
| 12 | ||||||||||
| Т 9.18 | 820 | 9 | 180 | 1110 | 238 | 143,5 | ||||
| 10 | ||||||||||
| 12 | ||||||||||
| Т 9.20 | 920 | 9 | 225 | 1220 | 242 | 12 | 220,4 | |||
| 10 | ||||||||||
| 12 | ||||||||||
| Т 9.22 | 1020 | 10 | 265 | 1330 | 282 | 261,8 | ||||
| 11 | ||||||||||
| 12 | ||||||||||
| 14 | ||||||||||
| Т 9.24 | 1220 | 11 | 365 | 1570 | 302 | 334,2 | ||||
| 12 | ||||||||||
| 14 | ||||||||||
| Т 9.25 | 1420 | 10 | 210 | 1640 | 306 | 264,5 | ||||
| Т 9.26.00.000 | 14 | 485 | 1820 | 315 | 429,2 |
Пример условного обозначения опоры неподвижной щитовой усиленнойдля трубопровода Дн = 530 мм, тип I:
Опора неподвижная 530-1-Т 9.12-ТУ......
Щит Т 9.00.01.000

1 - Полукольцо; 2 - Ребро
Чертёж 86
Размеры, мм
| Обозначение | Наружный диаметр трубопровода Дн | r | R | S=S1 | α | h | h1 | I | I1 | k - катет шва | Масса, кг |
| 1 | 2 | 3 | 4 | 5 | 6 | 7 | 8 | 9 | 10 | 11 | 12 |
| Т 9.09.01.000 | 426 | 213 | 305 | 12 | 30° | 132 | 90 | 40 | 25 | 6 | 9,47 |
| Т 9.10 | 480 | 240 | 335 | 10,53 | |||||||
| Т 9.12 | 530 | 265 | 370 | 162 | 100 | 45 | 13,04 | ||||
| Т 9.14 | 630 | 315 | 435 | 22°30¢ | 120 | 50 | 18,86 | ||||
| Т 9.16 | 720 | 360 | 488 | 21,62 | |||||||
| Т 9.18 | 820 | 410 | 555 | 226 | 8 | 28,07 | |||||
| Т 9.20 | 920 | 460 | 610 | 16 | 140 | 60 | 35 | 42,50 | |||
| Т 9.22 | 1020 | 510 | 665 | 266 | 150 | 49,26 | |||||
| Т 9.24 | 1220 | 610 | 785 | 286 | 155 | 70 | 63,55 | ||||
| Т 9.25 | 1420 | 710 | 820 | 290 | 110 | 45 | 51,12 | ||||
| Т 9.26.01.000 | 910 | 300 | 200 | 70 | 83,80 |
Полукольцо Т 9.00.00.001

Размеры, мм
| Обозначение | r | R | S | Масса, кг |
| 1 | 2 | 3 | 4 | 5 |
| Т 9.09.00.001 | 213 | 255 | 12 | 2,80 |
| Т 9.10 | 240 | 285 | 3,50 | |
| Т 9.12 | 265 | 315 | 4,30 | |
| Т 9.14 | 315 | 370 | 5,55 | |
| Т 9.16 | 360 | 420 | 7,00 | |
| Т 9.18 | 410 | 470 | 7,80 | |
| Т 9.20 | 460 | 525 | 16 | 12,60 |
| Т 9.22 | 510 | 585 | 16,20 | |
| Т 9.24 | 610 | 690 | 20,00 | |
| Т 9.25 | 710 | 760 | 15,00 | |
| Т 9.26.00.001 | 790 | 23,50 |
Опора неподвижная боковая Т 10.00.00.000

Сварные монтажные швы по ГОСТ5264-80
Катет - по наименьшей толщине свариваемых деталей.
1 - Подушка для типов Iи II (Т 10.00.01.001 -черт. 90, табл. 90); 1 - Упор боковой для типов III и IV (Т 10.00.01.000 - черт. 89, табл. 89); 2 - Лист защитный; 3 - Прокладка
Чертёж 88, лист 1

Чертёж 88, лист 2
Таблица 88
Размеры, мм
| Обозначение | Наружный диаметр трубопровода Дн | S | Боковая сила Т, тс | Н | L | Масса, кг | |
| 1 | 2 | 3 | 4 | 5 | 6 | 7 | |
| Тип I и II | |||||||
| Т 10.04.00.000 | 194 | 5 | 0,75-1,5 | 140 | 80 | 1.14 | |
| Т 10.05 | 219 | 6 | 164 | 1,76 | |||
| 7 | |||||||
| Т 10.06 | 273 | 1-3 | 200 | 100 | 2,16 | ||
| 8 | |||||||
| Т 10.07 | 325 | 7 | 240 | 4,00 | |||
| 8 | |||||||
| Т 10.08 | 377 | 9 | 2-5 | 277 | 120 | 5,66 | |
| Т 10.09 | 426 | 7 | 2,5-6 | 310 | 6,32 | ||
| 9 | 4-9 | ||||||
| Т 10.10 | 480 | 7 | 4-9 | 353 | 160 | 9,68 | |
| 8 | 5-10 | ||||||
| Т 10.11 | 530 | 7 | 3,5-7 | 388 | 10,63 | ||
| 8 | 4-8,5 | ||||||
| 9 | 5-11 | ||||||
| Т 10.12 | 630 | 7 | 4-7 | 327 | 200 | 12,66 | |
| 9 | 6-12 | ||||||
| 10 | 8-16 | ||||||
| 11 | 9-18 | ||||||
| Т 10.13 | 720 | 8 | 5-9 | 372 | 14,46 | ||
| 10 | 7-14 | ||||||
| 11 | 8-17 | ||||||
| 12 | 10-21 | ||||||
| Т 10.14 | 820 | 8 | 4-9 | 422 | 16,42 | ||
| 9 | 5-11 | ||||||
| 10 | 6-13 | ||||||
| 12 | 9-19 | ||||||
| Т 10.15 | 920 | 8 | 5-10 | 476 | 250 | 30,78 | |
| 9 | 6-12 | ||||||
| 10 | 8-16 | ||||||
| 12 | 12-27 | ||||||
| Т 10.16 | 1020 | 9 | 6-12 | 526 | 34,04 | ||
| 10 | 7-14 | ||||||
| 11 | 8-17 | ||||||
| 12 | 10-20 | ||||||
| 14 | 12-27 | ||||||
| Т 10.17 | 1220 | 9 | 6-12 | 626 | 300 | 48,98 | |
| 11 | 9-18 | ||||||
| 12 | 10-20 | ||||||
| 14 | 12-27 | ||||||
| Т 10.18 | 1420 | 10 | 6-14 | 726 | 56,52 | ||
| 14 | 12-27 | ||||||
| Тип III и IV | |||||||
| Т 10.19 | 377 | 9 | 7 | 410 | 120 | 16,50 | |
| Т 10.20 | 426 | 7 | 9 | 480 | 18,50 | ||
| Т 10.21 | 530 | 7 | 9 | 560 | 160 | 30,40 | |
| Т 10.22 | 630 | 7 | 10 | 410 | 200 | 32,60 | |
| Т 10.23 | 720 | 8 | 12 | 460 | 36,66 | ||
| Т 10.24 | 820 | 8 | 22 | 520 | 41,26 | ||
| 9 | |||||||
| 10 | |||||||
| 12 | |||||||
| Т 10.25 | 920 | 8 | 27 | 580 | 250 | 77,76 | |
| 9 | |||||||
| 10 | |||||||
| Т 10.26 | 1020 | 9 | 640 | 85,54 | |||
| 10 | |||||||
| 11 | |||||||
| 12 | |||||||
| Т 10.27 | 1220 | 9 | 750 | 300 | 121,86 | ||
| 11 | |||||||
| 12 | |||||||
| Т 10.28.00.000 | 1420 | 10 | 765 | I 140,74 | |||
Пример условного обозначения опоры неподвижной боковой длятрубопровода Дн = 820 мм, S =9 мм, тип III:
Опора боковая 820´9-III-Т10.24-ТУ......

Катет - по наименьшей толщине свариваемых деталей.
1 - Подушка (Т 10.00.01.001- черт. 90,табл. 90); 2 - Плита; 3 - Планка
Чертёж 89
Размеры, мм
| Обозначение | Наружный диаметр трубопровода Дн | R | Н | L | I | I1 | h | k | Масса, кг |
| 1 | 2 | 3 | 4 | 5 | 6 | 7 | 8 | 9 | 10 |
| Т 10.19.01.000 | 377 | 188 | 410 | 208 | 120 | 74 | 12 | 10 | 8,25 |
| Т 10.20 | 426 | 213 | 460 | 233 | 80 | 9,25 | |||
| Т 10.21 | 530 | 265 | 560 | 265 | 160 | 98 | 15,20 | ||
| Т 10.22 | 630 | 315 | 410 | 339 | 200 | 64 | 14 | 12 | 16,30 |
| Т 10.23 | 720 | 360 | 460 | 384 | 72 | 18,33 | |||
| Т 10.24 | 820 | 410 | 520 | 434 | 80 | 20,63 | |||
| Т 10.25 | 920 | 460 | 580 | 492 | 250 | 90 | 18 | 16 | 38,88 |
| Т 10.26 | 1020 | 510 | 640 | 542 | 100 | 42,77 | |||
| Т 10.27 | 1220 | 610 | 750 | 642 | 300 | 114 | 60,93 | ||
| Т 10.28.01-000 | 1420 | 710 | 765 | 742 | 126 | 70^7 |
Пример условного обозначения бокового упора для трубопровода Дн= 377 мм:
Упор боковой 377-Т 10.19.01-ТУ......
Подушка Т 10.00.01.001

Размеры, мм
| Обозначение | R | S | L | I | h | Развёрнутая длина | Масса, кг |
| 1 | 2 | 3 | 4 | 5 | 6 | 7 | 8 |
| Т 10.04.01.001 | 97 | 6 | 140 | 80 | 32 | 150 | 0,57 |
| Т 10.05 | 110 | 8 | 164 | 39 | 175 | 0,88 | |
| Т 10.06 | 136 | 200 | 46 | 215 | 1,08 | ||
| Т 10.07 | 162 | 10 | 240 | 100 | 56 | 255 | 2,00 |
| Т 10.08 | 188 | 277 | 120 | 64 | 300 | 2,83 | |
| Т 10.09 | 213 | 310 | 70 | 335 | 3,16 | ||
| Т 10.10 | 240 | 353 | 160 | 80 | 385 | 4,84 | |
| Т 10.11 | 265 | 388 | 88 | 425 | 5,34 | ||
| Т 10.12 | 315 | 12 | 327 | 200 | 54 | 336 | 6,33 |
| Т 10.13 | 360 | 372 | 60 | 384 | 7,23 | ||
| Т 10.14 | 410 | 422 | 67 | 436 | 8,21 | ||
| Т 10.15 | 460 | 16 | 476 | 250 | 77 | 490 | 15,35 |
| Т 10.16 | 510 | 526 | 84 | 542 | 17,02 | ||
| Т 10.17 | 610 | 626 | 300 | 98 | 650 | 24,49 | |
| Т 10.18.01.001 | 710 | 726 | 111 | 750 | 28,26 |
Опора неподвижная хомутовая, бескорпусная Т 11.00.00.000

Сварные монтажные швы по ГОСТ5264-80
Катет - по наименьшей толщине свариваемых деталей.
1 - Упор (Т 6.00.01.000 - черт. 79,табл. 79); 2 - Хомут (Т 11.00.00.001 -черт. 92, табл. 92); 3 - Прокладка; 4 - Лист защитный;
Чертёж 91
Таблица 91
Размеры, мм
| Тип I и II | Тип III и IV | Dн | S | Осевая сила Q, тс | Вертикальная сила Р, тс | Н | В | I | L | k | K1 | k2 |
| ||
| Обозначение | Масса, кг | Обозначение | Масса, кг |
| |||||||||||
| 1 | 2 | 3 | 4 | 5 | 6 | 7 | 8 | 9 | 10 | 11 | 12 | 13 | 14 | 15 |
|
| Т 11.01.00.000 | 3,09 | Т 11.17.00.000 | 3,48 | 108 | 4 | 2,5 | 2,5 | 119 | 70 | 115 | 170 | 4 | 5 | 3 |
|
| Т 11.02 | 3,40 | Т 11.18 | 3,78 | 133 | 134 | 80 | 180 |
| |||||||
| Т 11.03 | 4,60 | Т 11.19 | 4,96 | 159 | 4,5 | 3 | 164 | 90 | 117 | 190 |
| ||||
| Т 11.04 | 5,52 | Т 11.20 | 5,88 | 194 | 5 | 5 | 186 | 100 | 200 | 6 |
| ||||
| Т 11.05 | 8,70 | Т 11.21 | 8,94 | 219 | 6 | 7 | 4 | 216 | 120 | 137 | 220 | 5 |
| ||
| 7 | 9 | 5 | |||||||||||||
| Т 11.06 | 9,91 | Т 11.22 | 9,14 | 273 | 246 | ||||||||||
| 8 | 12 |
| |||||||||||||
| Т 11.07 | 11,72 | Т 11.23 | 13,14 | 325 | 7 | 9 | 270 | 167 | 6 |
| |||||
| 8 | 12 | 7 |
| ||||||||||||
| Т 11.08 | 14,36 | Т 11.24 | 15,90 | 377 | 9 | 15 | 300 | 140 | 240 | 7 |
| ||||
| Т 11.09 | 22,04 | Т 11.25 | 23,70 | 426 | 7 | 9 | 338 | 160 | 200 | 260 |
| ||||
| 9 | 15 |
| |||||||||||||
| Т 11.10 | 23,47 | Т 11.26 | 25,24 | 480 | 7 | 9 | 368 | 180 | 280 |
| |||||
| 8 | 12 |
| |||||||||||||
| Т 11.11 | 27,31 | Т 11.27 | 29,26 | 530 | 7 | 8 | 393 | 200 | 226 | 300 |
| ||||
| 8 | 10 |
| |||||||||||||
| 9 | 12 |
| |||||||||||||
| Т 11.12 | 35,70 | Т 11.28 | 40,08 | 630 | 7 | 10 | 445 | 240 | 230 | 340 | 8 | 6 |
| ||
| 9 | 14 | 10 |
| ||||||||||||
| 10 | 18 |
| |||||||||||||
| 11 | 22 |
| |||||||||||||
| Т 11.13 | 44,58 | Т 11.29 | 48,20 | 720 | 8 | 12 | 8 | 490 | 280 | 270 | 380 | 8 |
| ||
| 10 | 20 | 10 |
| ||||||||||||
| 11 | 25 |
| |||||||||||||
| 12 | 30 |
| |||||||||||||
| Т 11.14 | 47,48 | Т 11.30 | 51,44 | 820 | 8 | 12 | 8 | 540 | 300 | 400 |
| ||||
| 9 | 16 | 10 |
| ||||||||||||
| 10 | 20 |
| |||||||||||||
| 12 | 30 |
| |||||||||||||
| Т 11.15 | 54,32 | Т 11.31 | 58,62 | 920 | 8 | 12 | 8 | 592 | 320 | 420 |
| ||||
| 9 | 16 | 10 |
| ||||||||||||
| 10 | 22 |
| |||||||||||||
| 12 | 40 |
| |||||||||||||
| Т 11.16.00.000 | 61,78 | Т 11.32.00.000 | 68,88 | 1020 | 9 | 20 | 642 | 360 | 290 | 460 | 10 |
| |||
| 10 | 22 |
| |||||||||||||
| 11 | 26 |
| |||||||||||||
| 12 | 35 |
| |||||||||||||
| 14 | 45 |
| |||||||||||||
Пример условного обозначения опоры неподвижной хомутовой,бескорпусной для трубопровода Дн = 325 мм, S = 7 мм, тип I:
Опора хомутовая бескорпусная 325´7-1-Т 11.07-ТУ......
Хомут Т 11.00.00.001

Чертёж 92
Таблица 92
Размеры, мм
| Обозначение | R | b | L | I | S | Развёрнутая длина | Масса, кг |
| 1 | 2 | 3 | 4 | 5 | 6 | 7 | 8 |
| Т 11.01.00.001 | 55 | 40 | 145 | 85 | 5 | 350 | 0,51 |
| Т 11.02 | 67 | 170 | 98 | 415 | 0,60 | ||
| Т 11.03 | 80 | 195 | 110 | 480 | 0,70 | ||
| Т 11.04 | 98 | 231 | 128 | 575 | 0,90 | ||
| Т 11.05 | 111 | 60 | 256 | 140 | 640 | 1,50 | |
| Т 11.06 | 139 | 314 | 170 | 785 | 1,85 | ||
| Т 11.07 | 165 | 80 | 366 | 195 | 6 | 920 | 3,46 |
| Т 11.08 | 191 | 417 | 220 | 1050 | 3,96 | ||
| Т 11.09 | 216 | 467 | 245 | 1180 | 4,44 | ||
| Т 11.10 | 242 | 520 | 272 | 1315 | 4,95 | ||
| Т 11.11 | 268 | 572 | 298 | 1450 | 5,45 | ||
| Т 11.12 | 318 | 100 | 674 | 348 | 8 | 1740 | 10,70 |
| Т 11.13 | 363 | 766 | 395 | 1945 | 12,20 | ||
| Т 11.14 | 413 | 866 | 445 | 2200 | 13,80 | ||
| Т 11.15 | 463 | 955 | 495 | 2450 | 15,40 | ||
| Т 11.16 | 513 | 1066 | 545 | 2710 | 17,00 | ||
| Т 11.17 | 55 | 25 | 183 | 125 | 5 | 435 | 0,45 |
| Т 11.18 | 67 | 208 | 138 | 495 | 0,49 | ||
| Т 11.19 | 80 | 233 | 150 | 550 | 0,53 | ||
| Т 11.20 | 98 | 271 | 170 | 650 | 0,63 | ||
| Т 11.21 | 111 | 30 | 305 | 190 | 740 | 0,87 | |
| Т 11.22 | 139 | 364 | 220 | 885 | 1,04 | ||
| Т 11.23 | 165 | 60 | 425 | 255 | 1040 | 2,44 | |
| Т 11.24 | 191 | 476 | 280 | 1170 | 2,75 | ||
| Т 11.25 | 216 | 526 | 305 | 1295 | 3,05 | ||
| Т 11.26 | 242 | 577 | 330 | 1430 | 3,35 | ||
| Т 11.27 | 268 | 633 | 360 | 1570 | 3,70 | ||
| Т 11.28 | 318 | 80 | 754 | 430 | 6 | 1870 | 7,04 |
| Т 11.29 | 363 | 844 | 475 | 2100 | 7,91 | ||
| Т 11.30 | 413 | 944 | 525 | 2355 | 8,88 | ||
| Т 11.31 | 463 | 1044 | 575 | 2615 | 9,85 | ||
| Т 11.32.00.001 | 513 | 1144 | 625 | 2875 | 10,80 |
Опора неподвижная хомутовая Т 12.00.00.000

Сварные монтажные швы по ГОСТ5264-80
Катет - по наименьшей толщине свариваемых деталей.
1 - Корпус (Т 12.00.01.000 - черт. 94, табл. 94); 2 - Упор (Т 12.00.00.001 -черт. 99, табл. 99); 3 - Хомут (Т 12.00.00.002 - черт. 100, табл. 100); 4 - Гайка по ГОСТ5915-70
Чертёж 93
Таблица 93
Размеры, мм
| Обозначение | Наружный диаметр трубопровода Дн | Осевая сила Q | Боковая сила T | Н | Н1 | В | В1 | k | k1 | а | е | Масса, кг |
| тс | ||||||||||||
| 1 | 2 | 3 | 4 | 5 | 6 | 7 | 8 | 9 | 10 | 11 | 12 | 13 |
| Т 12.01.00.000 | 57 | 2 | - | 100 | 130 | 50 | 90 | 3 | 6 | 5 | 2 | 3,8 |
| Т 12.02 | 150 | 180 | 4,7 | |||||||||
| Т 12.03 | 200 | 230 | 5,6 | |||||||||
| Т 12.04 | 76 | 100 | 138 | 108 | 4,1 | |||||||
| Т 12.05 | 150 | 188 | 4,9 | |||||||||
| Т 12.06 | 200 | 238 | 6,0 | |||||||||
| Т 12.07 | 89 | 100 | 145 | 128 | 4,3 | |||||||
| Т 12.08 | 150 | 195 | 5,2 | |||||||||
| Т 12.09 | 200 | 245 | 6,2 | |||||||||
| Т 12.10 | 108 | 5 | 2 | 100 | 154 | 90 | 150 | 4 | 5,8 | |||
| Т 12.11 | 150 | 204 | 6,9 | |||||||||
| Т 12.12 | 200 | 254 | 8,0 | |||||||||
| Т 12.13 | 133 | 6 | 100 | 165 | 170 | 6,8 | ||||||
| Т 12.14 | 150 | 215 | 7,8 | |||||||||
| Т 12.15 | 200 | 265 | 8,9 | |||||||||
| Т 12.16 | 159 | 100 | 180 | 200 | 7,5 | |||||||
| Т 12.17 | 150 | 230 | 8,5 | |||||||||
| Т 12.18 | 200 | 280 | 9,5 | |||||||||
| Т 12.19 | 194 | 12 | 5 | 100 | 197 | 180 | 250 | 5 | 10 | 8 | 5 | 21,4 |
| Т 12.20 | 150 | 247 | 24,1 | |||||||||
| Т 12.21 | 200 | 297 | 27,1 | |||||||||
| Т 12.22 | 219 | 16 | 10 | 100 | 210 | 275 | 6 | 22,3 | ||||
| Т 12.23 | 150 | 260 | 24,9 | |||||||||
| Т 12.24 | 200 | 310 | 27,6 | |||||||||
| Т 12.25 | 273 | 24 | 15 | 100 | 237 | 340 | 25,9 | |||||
| Т 12.26 | 150 | 287 | 28,9 | |||||||||
| Т 12.27 | 200 | 337 | 31,5 | |||||||||
| Т 12.28 | 325 | 30 | 20 | 100 | 263 | 280 | 395 | 7 | 30,4 | |||
| Т 12.29 | 150 | 313 | 33,3 | |||||||||
| Т 12.30 | 200 | 363 | 36,0 | |||||||||
| Т 12.31 | 377 | 38 | 100 | 289 | 450 | 33,5 | ||||||
| Т 12.32 | 150 | 339 | 36,2 | |||||||||
| Т 12.33.00.000 | 200 | 389 | 38,8 | |||||||||
Пример условного обозначения опоры неподвижной хомутовой длятрубопровода Дн = 108 мм, Н= 200 мм:
Опора хомутовая 108-Т 12.12-ТУ......
Корпус Т 12.00.01.000

1 - Подушка ( Т12.00.01.001 - черт. 95, табл. 95); 2 - Скоба(Т12.00.01.002 - черт. 96, табл. 96); 3 - Ребро (Т 12.00.01.003 - черт. 97, табл. 97); 4 - Ребро (Т12.00.01.004 - черт. 98, табл. 98)
Чертёж 94
Размеры, мм
| Обозначение | Наружный диаметр трубопровода Дн | L | H | H1 | В | B1 | I | t | b | S=k | а | е | n | Масса, кг |
| 1 | 2 | 3 | 4 | 5 | 6 | 7 | 8 | 9 | 10 | 11 | 12 | 13 | 14 | 15 |
| Т 12.01.01.000 | 57 | 340 | 100 | 126 | 50 | 90 | 85 | 170 | 24 | 3 | 5 | 0 | 1 | 3,1 |
| Т 12.02 | 150 | 176 | 4,0 | |||||||||||
| Т 12.03 | 200 | 226 | 4,9 | |||||||||||
| Т 12.04 | 76 | 100 | 132 | 108 | 4 | 1 | 3,3 | |||||||
| Т 12.05 | 150 | 182 | 4,2 | |||||||||||
| Т 12.06 | 200 | 232 | 5,2 | |||||||||||
| Т 12.07 | 89 | 100 | 140 | 128 | 3,5 | |||||||||
| Т 12.08 | 150 | 190 | 4,4 | |||||||||||
| Т 12.09 | 200 | 240 | 5,4 | |||||||||||
| Т 12.10 | 108 | 100 | 150 | 90 | 150 | 27 | 4 | 7 | 0 | 4,4 | ||||
| Т 12.11 | 150 | 200 | 5,5 | |||||||||||
| Т 12.12 | 200 | 250 | 6,6 | |||||||||||
| Т 12.13 | 133 | 100 | 150 | 170 | 6 | 1 | 5,2 | |||||||
| Т 12.14 | 150 | 200 | 6,2 | |||||||||||
| Т 12.15.01.000 | 200 | 250 | 7,3 | |||||||||||
| Т 12.16.01.000 | 159 | 340 | 100 | 160 | 90 | 200 | 85 | 170 | 27 | 4 | 6 | 1 | 1 | 5,6 |
| Т 12.17 | 150 | 210 | 6,6 | |||||||||||
| Т 12.18 | 200 | 260 | 7,6 | |||||||||||
| Т 12.19 | 194 | 100 | 170 | 180 | 250 | 30 | 140 | 39 | 6 | 10 | 0 | 2 | 17,0 | |
| Т 12.20 | 150 | 220 | 19,7 | |||||||||||
| Т 12.21 | 200 | 270 | 22,7 | |||||||||||
| Т 12.22 | 219 | 100 | 180 | 275 | 2 | 17,4 | ||||||||
| Т 12.23 | 150 | 230 | 20,0 | |||||||||||
| Т 12.24 | 200 | 280 | 22,7 | |||||||||||
| Т 12.25 | 273 | 100 | 200 | 340 | 44 | 8 | 18,4 | |||||||
| Т 12.26 | 150 | 250 | 21,4 | |||||||||||
| Т 12.27 | 200 | 300 | 24,0 | |||||||||||
| Т 12.28 | 325 | 100 | 220 | 280 | 395 | 12 | 21,8 | |||||||
| Т 12.29 | 150 | 270 | 24,7 | |||||||||||
| Т 12.30 | 200 | 320 | 27,4 | |||||||||||
| Т 12.31 | 377 | 100 | 250 | 450 | 10 | 23,7 | ||||||||
| Т 12.32 | 150 | 300 | 26,4 | |||||||||||
| Т 12.33 | 200 | 350 | 29,0 | |||||||||||
| Т 12.37 | 426 | 100 | 270 | 515 | 49 | 8 | 25,2 | |||||||
| Т 12.38 | 150 | 320 | 28,9 | |||||||||||
| Т 12.39 | 200 | 370 | 31,6 | |||||||||||
| Т 12.40 | 480 | 100 | 285 | 380 | 580 | 50 | 8 | 12 | 46,0 | |||||
| Т 12.41 | 150 | 335 | 51,5 | |||||||||||
| Т 12.42 | 200 | 385 | 57,1 | |||||||||||
| Т 12.43 | 530 | 100 | 310 | 630 | 47,8 | |||||||||
| Т 12.44 | 150 | 360 | 53,3 | |||||||||||
| Т 12.45 | 200 | 410 | 59,1 | |||||||||||
| Т 12.46 | 630 | 100 | 360 | 750 | 56 | 4 | 55,9 | |||||||
| Т 12.47 | 150 | 410 | 61,4 | |||||||||||
| Т 12.48 | 200 | 460 | 67,4 | |||||||||||
| Т 12.49 | 720 | 680 | 100 | 415 | 500 | 860 | 55 | 61 | 2 | 4 | 133,3 | |||
| Т 12.50 | 150 | 465 | 145,6 | |||||||||||
| Т 12.51 | 200 | 515 | 158,0 | |||||||||||
| Т 12.52 | 820 | 100 | 460 | 975 | 144,2 | |||||||||
| Т 12.53 | 150 | 510 | 154,1 | |||||||||||
| Т 12.54 | 200 | 560 | 165,9 | |||||||||||
| Т 12.55 | 920 | 100 | 540 | 1085 | 67 | 4 | 168,5 | |||||||
| Т 12.56 | 150 | 590 | 180,9 | |||||||||||
| Т 12.57 | 200 | 640 | 193,8 | |||||||||||
| Т 12.58 | 1020 | 100 | 590 | 700 | 1185 | 72 | 10 | 16 | 228,8 | |||||
| Т 12.59 | 150 | 640 | 246,3 | |||||||||||
| Т 12.60 | 200 | 690 | 255,9 | |||||||||||
| Т 12.61 | 1220 | 100 | 690 | 1400 | 235,1 | |||||||||
| Т 12.62 | 150 | 740 | 252,6 | |||||||||||
| Т 12.63 | 200 | 790 | 272,1 | |||||||||||
| Т 12.64 | 1420 | 100 | 780 | 1600 | 14 | 5 | 266,4 | |||||||
| Т 12.65 | 150 | 830 | 284,0 | |||||||||||
| Т 12.66.01.000 | 200 | 880 | 303,5 |
Подушка Т 12.00.01.001

Размеры, мм
| Обозначение | R | S | L | L1 | H | B | A | h | I | I1 | I2 | I3 | d | r | Масса, кг |
| 1 | 2 | 3 | 4 | 5 | 6 | 7 | 8 | 9 | 10 | 11 | 12 | 13 | 14 | 15 | 16 |
| Т 12.01.01.001 | 30 | 3 | 340 | 94 | 30 | 90 | 68 | 18 | 25 | 50 | 30 | 20 30 | 12 14 | 4 | 0,76 |
| Т 12.02 | 38 | 118 | 36 | 108 | 86 | 0,96 | |||||||||
| Т 12.03 | 45 | 140 | 44 | 128 | 100 | 22 | 30 | 1,05 | |||||||
| Т 12.04 | 55 | 4 | 170 | 55 | 150 | 122 | 35 | 13 | |||||||
| Т 12.05 | 67 | 185 | 170 | 146 | 26 | 35 | 1,94 | ||||||||
| Т 12.06 | 81 | 220 | 65 | 200 | 174 | 2,35 | |||||||||
| Т 12.07 | 98 | 8 | 270 | 80 | 250 | 212 | 35 | 45 | 55 | 18 23 | 8 | 5,75 | |||
| Т 12.08 | 111 | 305 | 90 | 275 | 238 | 50 | 6,60 | ||||||||
| Т 12.09 | 138 | 375 | 110 | 340 | 296 | 45 | 60 | 60 | 7,94 | ||||||
| Т 12.10 | 164 | 445 | 130 | 395 | 348 | 10,50 | |||||||||
| Т 12.11 | 190 | 100 | 525 | 155 | 450 | 400 | 85 | 110 | 20 | 3,34 | |||||
| Т 12.12 | 340 | 50 | 11,30 | ||||||||||||
| Т 12.13 | 214 | 100 | 590 | 175 | 515 | 460 | 100 | 125 | 17 | 65 | 27 | 10 | 3,70 | ||
| Т 12.14 | 340 | 50 | 12,60 | ||||||||||||
| Т 12.15 | 242 | 10 | 120 | 670 | 195 | 580 | 510 | 130 | 25 | 70 | 6,32 | ||||
| Т 12.16 | 340 | 50 | 17,90 | ||||||||||||
| Т 12.17 | 267 | 120 | 740 | 220 | 630 | 560 | 120 | 145 | 25 | 7,20 | |||||
| Т 12.18 | 340 | 50 | 20,30 | ||||||||||||
| Т 12.19 | 316 | 12 | 120 | 900 | 270 | 750 | 660 | 120 | 150 | 20 | 80 | 12 | 10,00 | ||
| Т 12.20 | 340 | 50 | 28,50 | ||||||||||||
| Т 12.21 | 362 | 120 | 1060 | 325 | 860 | 760 | 135 | 165 | 17 | 85 | 40 | 34 | 11,90 | ||
| Т 12.22 | 680 | 160 | 70,73 | ||||||||||||
| Т 12.23 | 412 | 120 | 1210 | 370 | 975 | 860 | 145 | 185 | 17 | 55 | 13,50 | ||||
| Т 12.24 | 680 | 160 | 80,10 | ||||||||||||
| Т 12.25 | 462 | 14 | 150 | 1430 | 455 | 1085 | 960 | 160 | 27 | 95 | 14 | 23,60 | |||
| Т 12.26 | 680 | 160 | 107,25 | ||||||||||||
| Т 12.27 | 512 | 150 | 1590 | 505 | 1185 | 1060 | 195 | 225 | 25 | 100 | 90 | 40 | 26,00 | ||
| Т 12.28 | 680 | 160 | 118,60 | ||||||||||||
| Т 12.29 | 612 | 150 | 1890 | 600 | 1400 | 1260 | 25 | 31,20 | |||||||
| Т 12.30 | 680 | 160 | 131,80 | ||||||||||||
| Т 12.31 | 712 | 150 | 2200 | 695 | 1600 | 1460 | 25 | 36,60 | |||||||
| Т 12.32.01.001 | 680 | 160 | 166,00 |
Скоба Т 12.00.01.002

Размеры, мм
| Обозначение | В | Н | L | I | R | d=S | Развёрнутая длина | n | n1 | Масса, кг |
| 1 | 2 | 3 | 4 | 5 | 6 | 7 | 8 | 9 | 10 | 11 |
| Т 12.01.01.002 | 50 | 105 | 340 | 65 | 4 | 3 | 250 | 3 | 8 | 2,00 |
| Т 12.02 | 155 | 350 | 2,80 | |||||||
| Т 12.03 | 205 | 450 | 3,60 | |||||||
| Т 12.04 | 102 | 244 | 1,95 | |||||||
| Т 12.05 | 152 | 344 | 2,75 | |||||||
| Т 12.06 | 202 | 444 | 3,55 | |||||||
| Т 12.07 | 90 | 115 | 310 | 2,50 | ||||||
| Т 12.08 | 165 | 410 | 3,30 | |||||||
| Т 12.09 | 215 | 510 | 4,10 | |||||||
| Т 12.10 | 110 | 300 | 2,40 | |||||||
| Т 12.11 | 160 | 400 | 3,20 | |||||||
| Т 12.12 | 210 | 500 | 4,00 | |||||||
| Т 12.13 | 180 | 135 | 6 | 6 | 430 | 7,30 | ||||
| Т 12.14 | 185 | 530 | 8,90 | |||||||
| Т 12.15 | 235 | 630 | 10,50 | |||||||
| Т 12.16 | 125 | 410 | 7,04 | |||||||
| Т 12.17 | 175 | 510 | 8,64 | |||||||
| Т 12.18 | 225 | 610 | 10,20 | |||||||
| Т 12.19 | 120 | 400 | 6,64 | |||||||
| Т 12.20 | 170 | 500 | 8,26 | |||||||
| Т 12.21.01.002 | 220 | 600 | 9,86 | |||||||
| Т 12.22.01.002 | 280 | 155 | 340 | 65 | 6 | 6 | 570 | 3 | 8 | 9,30 |
| Т 12.23 | 205 | 670 | 10,90 | |||||||
| Т 12.24 | 255 | 770 | 12,50 | |||||||
| Т 12.25 | 145 | 550 | 8,50 | |||||||
| Т 12.26 | 195 | 650 | 10,11 | |||||||
| Т 12.27 | 245 | 750 | 11,70 | |||||||
| Т 12.28 | 135 | 530 | 8,70 | |||||||
| Т 12.29 | 185 | 630 | 10,20 | |||||||
| Т 12.30 | 235 | 730 | 11,80 | |||||||
| Т 12.31 | 380 | 165 | 8 | 8 | 685 | 15,40 | ||||
| Т 12.32 | 215 | 785 | 17,50 | |||||||
| Т 12.33 | 265 | 885 | 19,70 | |||||||
| Т 12.34 | 160 | 675 | 14,90 | |||||||
| Т 12.35 | 210 | 775 | 17,00 | |||||||
| Т 12.36 | 260 | 875 | 193 | |||||||
| Т 12.37 | 145 | 645 | 1430 | |||||||
| Т 12.38 | 195 | 745 | 16,40 | |||||||
| Т 12.39 | 245 | 845 | 18,60 | |||||||
| Т 12.40 | 500 | 175 | 680 | 25 | 825 | 9 | 20 | 36,00 | ||
| Т 12.41 | 225 | 925 | 40,10 | |||||||
| Т 12.42 | 275 | 1025 | 44,40 | |||||||
| Т 12.43 | 165 | 805 | 37,72 | |||||||
| Т 12.44 | 215 | 905 | 39,00 | |||||||
| Т 12.45 | 265 | 1005 | 433 | |||||||
| Т 12.46 | 150 | 775 | 33,60 | |||||||
| Т 12.47 | 200 | 875 | 37,90 | |||||||
| Т 12.48 | 250 | 975 | 42,20 | |||||||
| Т 12.49 | 700 | 210 | 10 | 10 | 1085 | 59,00 | ||||
| Т 12.50 | 260 | 1185 | 64,30 | |||||||
| Т 12.51 | 310 | 1285 | 59,70 | |||||||
| Т 12.52 | 185 | 1035 | 56,00 | |||||||
| Т 12.53 | 235 | 1135 | 61,30 | |||||||
| Т 12.54 | 285 | 1235 | 66,60 | |||||||
| Т 12.55 | 170 | 1005 | 54,30 | |||||||
| Т 12.56 | 220 | 1105 | 59,60 | |||||||
| Т 12.57.01.002 | 270 | 1205 | 64,90 |
Ребро Т 12.00.01.003

Размеры, мм
| Обозначение | R | В | S | С | H | H1 | Масса, кг |
| 1 | 2 | 3 | 4 | 5 | 6 | 7 | 8 |
| Т 12.01.01.003 | 42 | 42 | 3 | 5 | 100 | 93 | 0,08 |
| Т 12.02 | 150 | 143 | 0,13 | ||||
| Т 12.03 | 200 | 193 | 0,18 | ||||
| Т 12.10 | 58 | 80 | 4 | 6 | 110 | 93 | 0,19 |
| Т 12.11 | 160 | 143 | 0,31 | ||||
| Т 12.12 | 210 | 193 | 0,44 | ||||
| Т 12.13 | 78 | 105 | 93 | 0,25 | |||
| Т 12.14 | 155 | 143 | 0,33 | ||||
| Т 12.15 | 205 | 193 | 0,45 | ||||
| Т 12.19 | 105 | 165 | 6 | 8 | 128 | 85 | 0,97 |
| Т 12.20 | 178 | 135 | 134 | ||||
| Т 12.21 | 228 | 185 | 1,73 | ||||
| Т 12.22 | 118 | 118 | 85 | 0,93 | |||
| Т 12.23 | 168 | 135 | 1,25 | ||||
| Т 12.24 | 228 | 185 | 1,65 | ||||
| Т 12.25 | 144 | 112 | 85 | 0,88 | |||
| Т 12.26 | 162 | 135 | 1,25 | ||||
| Т 12.27 | 212 | 185 | 1,65 | ||||
| Т 12.28 | 170 | 265 | 6 | 8 | 150 | 85 | 0,42 |
| Т 12.29 | 200 | 135 | 0,60 | ||||
| Т 12.30 | 250 | 185 | 0,95 | ||||
| Т 12.31 | 196 | 140 | 85 | 0,46 | |||
| Т 12.32 | 190 | 135 | 0,70 | ||||
| Т 12.33 | 240 | 185 | 1,00 | ||||
| Т 12.37 | 220 | 130 | 85 | 0,39 | |||
| Т 12.38 | 180 | 135 | 0,78 | ||||
| Т 12.39 | 230 | 185 | 1,10 | ||||
| Т 12.40 | 250 | 362 | 8 | 10 | 155 | 82 | 2,40 |
| Т 12.41 | 205 | 132 | 3,50 | ||||
| Т 12.42 | 255 | 182 | 4,60 | ||||
| Т 12.43 | 275 | 150 | 82 | 2,15 | |||
| Т 12.44 | 200 | 132 | 3,25 | ||||
| Т 12.45 | 250 | 182 | 4,40 | ||||
| Т 12.46 | 327 | 135 | 82 | 2,00 | |||
| Т 12.47 | 185 | 132 | 3,10 | ||||
| Т 12.48 | 235 | 182 | 4.30 | ||||
| Т 12.49 | 372 | 482 | 165 | 80 | 3,50 | ||
| Т 12.50 | 215 | 130 | 5,10 | ||||
| Т 12.51 | 265 | 180 | 6,70 | ||||
| Т 12.52 | 422 | 155 | 80 | 3,30 | |||
| Т 12.53 | 205 | 130 | 5,00 | ||||
| Т 12.54 | 255 | 180 | 6,50 | ||||
| Т 12.55 | 474 | 140 | 78 | 3,20 | |||
| Т 12.56 | 190 | 128 | 4,80 | ||||
| Т 12.57 | 240 | 178 | 6,50 | ||||
| Т 12.58 | 524 | 678 | 10 | 12 | 200 | 76 | 6,60 |
| Т 12.59 | 250 | 126 | 9,00 | ||||
| Т 12.60 | 300 | 176 | 11,80 | ||||
| Т 12.61 | 624 | 175 | 76 | 5,80 | |||
| Т 12.62 | 225 | 126 | 8,20 | ||||
| Т 12.63 | 275 | 176 | 11,00 | ||||
| Т 12.64 | 724 | 160 | 76 | 5,60 | |||
| Т 12.65 | 210 | 126 | 8,00 | ||||
| Т 12.66.01.003 | 260 | 176 | 10,80 |
Ребро Т 12.00.01.004

Размеры, мм
| Обозначение | R | В | В1 | Н | h | S | Масса, кг |
| 1 | 2 | 3 | 4 | 5 | 6 | 7 | 8 |
| Т 12.01.01.004 | 32 | 20 | 5 | 18 | 5 | 3 | 0,005 |
| Т 12.04 | 42 | 8 | |||||
| Т 12.07 | 48 | 24 | 10 | 22 | 0,007 | ||
| Т 12.10 | 60 | 8 | |||||
| Т 12.13 | 80 | 28 | 12 | 26 | 0,011 | ||
| Т 12.19 | 110 | 38 | 16 | 35 | 8 | 6 | 0,039 |
| Т 12.25 | 160 | 50 | 20 | 45 | 0,064 | ||
| Т 12.31 | 198 | 80 | 40 | 85 | 10 | 8 | 0,245 |
| Т 12.37 | 222 | 100 | 50 | 100 | 0,353 | ||
| Т 12.40 | 252 | 46 | 15 | 10 | 0,458 | ||
| Т 12.43 | 277 | 50 | 120 | 0,542 | |||
| Т 12.46 | 328 | 46 | 12 | 0,662 | |||
| Т 12.49 | 374 | 135 | 0,699 | ||||
| Т 12.52 | 424 | 40 | 145 | 0,802 | |||
| Т 12.55 | 476 | 160 | 20 | 14 | 1,082 | ||
| Т 12.58 | 526 | 110 | 50 | 190 | 1,342 | ||
| Т 12.61 | 626 | 40 | 1,356 | ||||
| Т 12.64.01.004 | 726 | 35 | 1,349 |
Упор Т 12.00.00.001

Размеры, мм
| Обозначение | R | S | I | L | h | Развёрнутая длина | Масса, кг |
| 1 | 2 | 3 | 4 | 5 | 6 | 7 | 8 |
| Т 12.01.00.001 | 30 | 3 | 39 | 100 | 8 | 36 | 0,08 |
| Т 12.04 | 38 | 41 | 8,1 | 42 | 0,09 | ||
| Т 12.07 | 45 | 48 | 9 | 49 | 0,11 | ||
| Т 12.10 | 54 | 4 | 58 | 11,2 | 59 | 0,17 | |
| Т 12.13 | 66 | 65 | 11,5 | 65 | 0,20 | ||
| Т 12.16 | 80 | 78 | 13 | 79 | 0,25 | ||
| Т 12.19 | 97 | 8 | 97 | 19 | 97 | 0,61 | |
| Т 12.22 | 110 | 110 | 21 | 110 | 0,69 | ||
| Т 12.25 | 136 | 133 | 23 | 134 | 0,85 | ||
| Т 12.28 | 162 | 157 | 27 | 160 | 1,00 | ||
| Т 12.31 | 188 | 181 | 29 | 184 | 1,15 | ||
| Т 12.37 | 213 | 187 | 28 | 192 | 1,20 | ||
| Т 12.40 | 240 | 10 | 212 | 32,4 | 214 | 1,68 | |
| Т 12.43 | 265 | 232 | 35 | 236 | 1,87 | ||
| Т 12.46 | 315 | 12 | 276 | 42 | 280 | 2,64 | |
| Т 12.49 | 360 | 315 | 150 | 46 | 320 | 4,50 | |
| Т 12.52 | 410 | 355 | 50 | 364 | 5,10 | ||
| Т 12.55 | 460 | 14 | 400 | 57 | 405 | 6,60 | |
| Т 12.58 | 510 | 444 | 62 | 450 | 7,50 | ||
| Т 12.61 | 610 | 525 | 71 | 540 | 9,00 | ||
| Т 12.64.00.001 | 710 | 550 | 68 | 560 | 10,80 |
Хомут Т 12.00.00.002

Размеры, мм
|
| R | Н | h | А | d | d1 | с | Развёрнутая длина | Масса, кг |
| 1 | 2 | 3 | 4 | 5 | 6 | 7 | 8 | 9 | 10 |
|
| 29 | 78 | 25 | 68 | 10 | М10 | 1,6 | 185 | 0,11 |
|
| 38 | 95 | 86 | 230 | 0,14 | ||||
|
| 45 | 110 | 100 | 265 | 0,16 | ||||
|
| 55 | 130 | 30 | 120 | 12 | М12 | 310 | 0,28 | |
|
| 67 | 155 | 146 | 380 | 0,34 | ||||
|
| 81 | 170 | 174 | 420 | 0,37 | ||||
|
| 98 | 220 | 35 | 212 | 16 | М16 | 2,0 | 540 | 0,85 |
|
| 111 | 230 | 238 | 580 | 0,92 | ||||
|
| 138 | 290 | 296 | 20 | М20 | 2,5 | 730 | 1,80 | |
|
| 164 | 325 | 40 | 348 | 830 | 2,05 | |||
|
| 190 | 370 | 400 | 950 | 2,34 |
Опора неподвижная бугельная Т 44.00.00.000

Сварные монтажные швы по ГОСТ5264-80
Катет - по наименьшей толщине свариваемых деталей.
1 - Корпус (Т 12.00.01.000 - черт. 94,табл. 94); 2 - Бугель (Т 44.00.01.000- черт. 102, табл. 102); 3 - Упор (Т 12.00.00.001 - черт. 99, табл. 99); 4- Шпилька по ГОСТ 11769-70; 5 - Гайка по ГОСТ5915-70
Чертёж 101
Таблица 101
Размеры, мм
| Обозначение | Наружный диаметр трубопровода Дн | Осевая сила Q | Боковая сила Т | L | Н | H1 | В | B1 | k | k1 | а | е | Масса, кг |
| тс | |||||||||||||
| 1 | 2 | 3 | 4 | 5 | 6 | 7 | 8 | 9 | 10 | 11 | 12 | 13 | 14 |
| Т 44.01.00.000 | 377 | 30 | 20 | 340 | 100 | 290 | 280 | 450 | 7 | 10 | 8 | 5 | 40,9 |
| Т 44.02 | 150 | 340 | 43,6 | ||||||||||
| Т 44.03 | 200 | 390 | 46,2 | ||||||||||
| Т 44.04 | 426 | 35 | 100 | 315 | 515 | 46,9 | |||||||
| Т 44.05 | 150 | 365 | 50,6 | ||||||||||
| Т 44.06 | 200 | 415 | 53,3 | ||||||||||
| Т 44.07 | 480 | 40 | 25 | 100 | 340 | 380 | 580 | 12 | 10 | 4 | 75,8 | ||
| Т 44.08 | 150 | 390 | 81,3 | ||||||||||
| Т 44.09 | 200 | 440 | 86,9 | ||||||||||
| Т 44.10 | 530 | 45 | 100 | 365 | 630 | 81,5 | |||||||
| Т 44.11 | 150 | 415 | 87,0 | ||||||||||
| Т 44.12 | 200 | 465 | 92,8 | ||||||||||
| Т 44.13 | 630 | 50 | 100 | 415 | 750 | 99,5 | |||||||
| Т 44.14 | 150 | 465 | 105,0 | ||||||||||
| Т 44.15 | 200 | 515 | 111,0 | ||||||||||
| Т 44.16 | 720 | 65 | 35 | 680 | 100 | 460 | 500 | 860 | 8 | 193,4 | |||
| Т 44.17 | 150 | 510 | 205,7 | ||||||||||
| Т 44.18 | 200 | 560 | 218,1 | ||||||||||
| Т 44.19 | 820 | 75 | 100 | 510 | 975 | 210,7 | |||||||
| Т 44.20 | 150 | 560 | 220,6 | ||||||||||
| Т 44.21 | 200 | 610 | 232,4 | ||||||||||
| Т 44.22 | 920 | 85 | 100 | 560 | 1085 | 263,8 | |||||||
| Т 44.23 | 150 | 610 | 276,2 | ||||||||||
| Т 44.24 | 200 | 660 | 289,1 | ||||||||||
| Т 44.25 | 1020 | 100 | 60 | 100 | 610 | 700 | 1185 | 9 | 15 | 14 | 8 | 345,0 | |
| Т 44.26 | 150 | 660 | 362,5 | ||||||||||
| Т 44.27 | 200 | 710 | 372,1 | ||||||||||
| Т 44.28 | 1220 | 130 | 100 | 1400 | 368,0 | ||||||||
| Т 44.29 | 150 | 760 | 385,5 | ||||||||||
| Т 44.30 | 200 | 810 | 405,0 | ||||||||||
| Т 44.31 | 1420 | 180 | 100 | 1600 | 417,3 | ||||||||
| Т 44.32 | 150 | 860 | 434,9 | ||||||||||
| Т 44.33.00.000 | 200 | 910 | 454,4 | ||||||||||
Пример условного обозначения опоры неподвижной бугельной длятрубопровода Дн = 426 мм, Н= 200 мм:
Опора бугельная 426-Т 44.06-ТУ......
Бугель Т 44.00.01.000

1 - Подушка (Т 12.00.01.000 - черт. 95, табл. 95); 2- Ребро (Т 12.00.01.000 - черт. 98,табл. 98)
Чертёж 102
Размеры, мм
| Обозначение | R | H | B | A | L | I | d | k | Масса, кг |
| 1 | 2 | 3 | 4 | 5 | 6 | 7 | 8 | 9 | 10 |
| Т 44.01.01.000 | 190 | 155 | 450 | 400 | 100 | 44 | 23 | 8 | 4,37 |
| Т 44.04 | 214 | 175 | 515 | 460 | 49 | 27 | 5,16 | ||
| Т 44.07 | 242 | 195 | 580 | 510 | 120 | 50 | 8,25 | ||
| Т 44.10 | 267 | 220 | 630 | 560 | 9,47 | ||||
| Т 44.13 | 316 | 270 | 750 | 660 | 56 | 10 | 12,80 | ||
| Т 44.16 | 362 | 325 | 860 | 760 | 61 | 34 | 14,85 | ||
| Т 44.19 | 412 | 370 | 975 | 860 | 16,86 | ||||
| Т 44.22 | 462 | 455 | 1085 | 960 | 150 | 67 | 28,23 | ||
| Т 44.25 | 512 | 505 | 1185 | 1060 | 72 | 40 | 31,67 | ||
| Т 44.28 | 612 | 600 | 1400 | 1260 | 37,02 | ||||
| Т 44.31.01.000 | 712 | 695 | 1800 | 1460 | 42,40 |
Опоры приварные неподвижныеи скользящие

Сварные монтажные швы по ГОСТ5264-80
Катет - по наименьшей толщине свариваемых деталей.
1 - Основание; 2 - Проволока 1 ГОСТ3282-74; 3 - Угольник
Чертёж 103
Таблица 103
Размеры, мм
| Обозначение | Наружный диаметр трубопровода Дн | H | H1 | H2 | В | b | b1 | S | k | k1 | Неподвижные | Скользящие | ||||||||||
| L | I | I1 | t | n | Масса, кг | L | I | I1 | t | n | Масса, кг | |||||||||||
| 1 | 2 | 3 | 4 | 5 | 6 | 7 | 8 | 9 | 10 | 11 | 12 | 13 | 14 | 15 | 16 | 17 | 18 | 19 | 20 | 21 | 22 | 21 |
| 57-95 | 57;60 | 91 | 99 | 124 | 54 | 34 | 26 | 4 | 4 | 5 | 60 | 40 | 45 | 40 | 1 | 0,598 | - | - | - | - | - | - |
| 68-95 | 68 | 104 | 129 | 62 | 42 | 0,677 | ||||||||||||||||
| 76-95 | 76 | 133 | 68 | 48 | 35 | 0,680 | ||||||||||||||||
| 83-95 | 83 | 136 | 70 | 50 | 70 | 50 | 55 | 50 | 0,822 | |||||||||||||
| 89-95 | 89 | 140 | 75 | 55 | 0,835 | |||||||||||||||||
| 102-95 | 102 | 146 | 85 | 65 | 140 | 120 | 125 | 60 | 2 | 1,594 | 70 | 50 | 55 | 50 | 1 | 0,930 | ||||||
| 108-95 | 108 | 149 | 1,614 | 0,934 | ||||||||||||||||||
| 114-95 | 114 | 152 | ||||||||||||||||||||
| 127-95 | 127 | 109 | 158 | 100 | 10 | 150 | 130 | 140 | 65 | 1,869 | 80 | 60 | 65 | 60 | 1,202 | |||||||
| 133-95 | 133 | 114 | 162 | 110 | 90 | 2,029 | 1,281 | |||||||||||||||
| 140-95 | 140 | 165 | 2,114 | 1,359 | ||||||||||||||||||
| 152-95 | 152 | 171 | 130 | 110 | 2,308 | 1,497 | ||||||||||||||||
| 159-95 | 159 | 175 | 170 | 150 | 155 | 50 | 3 | 2,540 | 1,503 | |||||||||||||
| 168-95 | 168 | 126 | 179 | 160 | 130 | 6 | 6 | 6 | 185 | 155 | 4,599 | 110 | 80 | 85 | 40 | 2 | 3,222 | |||||
| 180-95 | 180 | 185 | 4,637 | 3,238 | ||||||||||||||||||
| 194-95 | 194 | 192 | 175 | 145 | 210 | 180 | 190 | 60 | 5,454 | 3,329 | ||||||||||||
| 219-95 | 219 | 136 | 205 | 200 | 170 | 6,174 | 125 | 95 | 105 | 50 | 4,191 | |||||||||||
| 245-95 | 245 | 218 | 210 | 180 | 240 | 210 | 205 | 50 | 4 | 6,966 | 4,380 | |||||||||||
| 273-95 | 273 | 232 | 235 | 205 | 260 | 230 | 245 | 60 | 7,958 | 4,724 | ||||||||||||
| 299-95 | 299 | 146 | 245 | 255 | 225 | 8,864 | 200 | 170 | 170 | 55 | 1 | 7,249 | ||||||||||
| 325-95 | 325 | 258 | 265 | 235 | 70 | 320 | 290 | 305 | 5 | 10,29 | 210 | 180 | 180 | 60 | 7,472 | |||||||
| 377-95 | 377 | 284 | 295 | 265 | 360 | 330 | 135 | 55 | 6 | 11,93 | 220 | 190 | 205 | 50 | 4 | 8,107 | ||||||
| 426-95 | 426 | 166 | 308 | 345 | 315 | 420 | 390 | 395 | 65 | 16,20 | 10,05 | |||||||||||
| 480-95 | 478; 480 | 176 | 335 | 395 | 365 | 450 | 420 | 425 | 60 | 7 | 19,31 | 11,34 | ||||||||||
| 530-95 | 529; 530 | 360 | 415 | 385 | 20,02 | 240 | 210 | 12,44 | ||||||||||||||
| 630-95 | 630 | 158 | 410 | 465 | 425 | 8 | 8 | 8 | 500 | 460 | 460 | 65 | 29,65 | 280 | 240 | 245 | 60 | 19,17 | ||||
| 720-95 | 720 | 148 | 455 | 420 | 380 | 520 | 410 | 505 | 50 | 10 | 27,75 | 12,65 | ||||||||||
| 820-95 | 820 | 138 | 505 | 26,94 | 180 | 140 | 140 | 65 | 2 | 12,12 | ||||||||||||
| 920-95 | 920 | 555 | 26,91 | 12,24 | ||||||||||||||||||
| 1020-95 | 1020 | 140 | 605 | 450 | 400 | 10 | 10 | 12 | 530 | 35,88 | 220 | 170 | 170 | 55 | 1 | 18,36 | ||||||
| 1120-95 | 1120 | 130 | 655 | 34,59 | 17,57 | |||||||||||||||||
| 1220-95 | 1220 | 150 | 705 | 550 | 500 | 42,74 | 22,10 | |||||||||||||||
| 1420-95 | 1420 | 140 | 805 | 41,52 | 21,57 | |||||||||||||||||
| 1620-95 | 1620 | 905 | 560 | 512 | 43,81 | 21,96 | ||||||||||||||||
| 168-145 | 168 | 145 | 176 | 229 | 160 | 130 | 60 | 6 | 6 | 6 | 185 | 155 | 155 | 3 | 5,832 | 110 | 80 | 85 | 40 | 2 | 4,050 | |
| 180-145 | 180 | 235 | 5,870 | 4,101 | ||||||||||||||||||
| 194-145 | 194 | 242 | 175 | 145 | 210 | 180 | 190 | 60 | 6,885 | 4,303 | ||||||||||||
| 219-145 | 219 | 186 | 255 | 200 | 170 | 7,736 | 125 | 95 | 105 | 50 | 5,384 | |||||||||||
| 245-145 | 245 | 268 | 210 | 180 | 240 | 210 | 205 | 50 | 4 | 8,729 | 5,628 | |||||||||||
| 273-145 | 273 | 282 | 235 | 205 | 260 | 230 | 245 | 60 | 9,994 | 6,054 | ||||||||||||
| 299-145 | 299 | 196 | 295 | 255 | 225 | 10,88 | 200 | 170 | 170 | 55 | 3 | 9,074 | ||||||||||
| 325-145 | 325 | 308 | 265 | 235 | 120 | 320 | 290 | 305 | 5 | 12,47 | 210 | 180 | 190 | 60 | 9,154 | |||||||
| 377-145 | 377 | 334 | 295 | 265 | 360 | 330 | 335 | 55 | 6 | 14,48 | 220 | 190 | 205 | 50 | 4 | 10,07 | ||||||
| 426-145 | 426 | 216 | 358 | 345 | 315 | 420 | 390 | 395 | 65 | 19,32 | 12,10 | |||||||||||
| 480-145 | 478;480 | 226 | 385 | 395 | 365 | 450 | 420 | 425 | 60 | 7 | 22,83 | 13,68 | ||||||||||
| 530-145 | 529; 530 | 410 | 415 | 385 | 23,58 | 240 | 210 | 15,19 | ||||||||||||||
| 630-145 | 630 | 208 | 460 | 465 | 425 | 8 | 8 | 8 | 500 | 460 | 460 | 65 | 35,21 | 280 | 240 | 245 | 60 | 23,16 | ||||
| 720-145 | 720 | 198 | 505 | 420 | 380 | 520 | 480 | 505 | 50 | 10 | 32,95 | 15,72 | ||||||||||
| 820-145 | 820 | 188 | 555 | 32,05 | 170 | 140 | 140 | 65 | 2 | 15,16 | ||||||||||||
| 920-145 | 920 | 605 | 32,35 | 15,31 | ||||||||||||||||||
| 1020-145 | 1020 | 190 | 655 | 450 | 400 | 10 | 10 | 12 | 530 | 42,62 | 210 | 170 | 170 | 55 | 3 | 22,92 | ||||||
| 1120-145 | 1120 | 180 | 705 | 41,38 | 21,99 | |||||||||||||||||
| 1220-145 | 1220 | 200 | 755 | 550 | 500 | 50,29 | 27,46 | |||||||||||||||
| 1420-145 | 1420 | 190 | 855 | 49,05 | 26,68 | |||||||||||||||||
| 1620-145 | 1620 | 955 | 560 | 512 | 51,64 | 27,01 | ||||||||||||||||
Пример условного обозначения опоры хомутовой неподвижной длятрубопровода Дн = 219 мм, Н= 95 мм:
Опора ОПН 219-95 ТУ......
То же, скользящей:
Опора ОПН С-219-95 ТУ......
Опоры хомутовые неподвижные

Сварные монтажные швы по ГОСТ5264-80
Катет - по наименьшей толщине свариваемых деталей.
1 - Корпус; 2 - Упор; 3 - Хомут ; 4 - Гайка по ГОСТ5915-70; 5 - Гайка по ГОСТ 5917-70
Чертёж 104
Таблица 104
Размеры, мм
| Исполнение | I | II | III | IV | V |
| 1 | 2 | 3 | 4 | 5 | 6 |
| Температура рабочей среды трубопровода ºС | До 450 | Св.450 до 500 | Св.500 до 540 | Св. 540 до 575 | Св. 575 до 600 |
Таблица 105
Размеры, мм
| Обозначение | Наружный диаметр трубопровода Дн | Н | Н1 | В | В1 | b | L | k | k1 | Масса, кг | Исполнение | ||||||
| Исполнение | |||||||||||||||||
| I | II-V | I | II-V | I | II | III | IV | V | |||||||||
| 1 | 2 | 3 | 4 | 5 | 6 | 7 | 8 | 9 | 10 | 11 | 12 | 13 | 14 | 15 | 16 | 17 | 18 |
| 57-100 | 57; 60 | 100 | 128 | 54 | 92 | 26 | 60 | 4 | 4 | 4 | 1,115 | 1,115 | X | X | X | X | X |
| 68-100 | 68 | 134 | 62 | 102 | 1,255 | 1,255 | X | X | X | X | X | ||||||
| 76-100 | 76 | 138 | 68 | 118 | 35 | 1,465 | 1,465 | X | X | X | X | X | |||||
| 83-100 | 83 | 142 | 70 | 120 | 70 | 1,704 | 1,704 | X | X | X | X | X | |||||
| 89-100 | 89 | 145 | 75 | 126 | 1,702 | 1,702 | X | X | X | X | X | ||||||
| 102-100 | 102 | 151 | 85 | 148 | 140 | 3,062 | 3,062 | X | X | X | X | X | |||||
| 108-100 | 108 | 154 | 3,145 | 3,145 | X | X | X | X | X | ||||||||
| 114-100 | 114 | 157 | 156 | 3,309 | 3,309 | X | X | X | X | X | |||||||
| 127-100 | 127 | 164 | 100 | 170 | 150 | 6 | 4,118 | 4,118 | X | X | X | X |
| ||||
| 133-100 | 133 | 166 | 110 | 180 | 3,910 | 4,422 | X | X | X | X | |||||||
| 140-100 | 140 | 170 | 190 | 5,014 | 5,044 | X | X | X | X | ||||||||
| 159-100 | 159 | 180 | 130 | 210 | 170 | 5,359 | 5,919 | X | X | X | X | ||||||
| 168-100 | 168 | 184 | 160 | 224 | 185 | 6 | 6 | 10,66 | - | X |
|
|
| ||||
| 180-100 | 180 | 190 | 234 | 11,50 | X | ||||||||||||
| 194-100 | 194 | 197 | 175 | 248 | 210 | 12,06 | X | ||||||||||
| 219-100 | 219 | 210 | 200 | 281 | 8 | 15,16 | X | ||||||||||
| 245-100 | 245 | 222 | 210 | 306 | 240 | 17,73 | X | ||||||||||
| 273-100 | 273 | 236 | 235 | 352 | 260 | 8 | 22,50 | X | |||||||||
| 299-100 | 299 | 250 | 255 | 372 | 28,52 | X | |||||||||||
| 325-100 | 325 | 262 | 265 | 400 | 70 | 320 | - | 29,41 | X | ||||||||
| 377-100 | 377 | 288 | 295 | 450 | 360 | 35,62 | X | ||||||||||
| 426-100 | 426 | 313 | 345 | 500 | 420 | 45,34 | X | ||||||||||
Пример условного обозначения опоры хомутовой неподвижной длятрубопровода Дн = 219 мм, Н= 95мм:
Опора ОХН 219-95 ТУ......
Опоры бескорпусные неподвижные и направляющие

Сварные монтажные швы по ГОСТ5264-80
Катет - по наименьшей толщине свариваемых деталей.
1 - Хомут (черт. 106, табл. 107); 2 - Упор; 3 - Гайка по ГОСТ5915-70
Чертёж 105
Таблица 106
Размеры, мм
| Обозначение | Наружный диаметр трубопровода Дн | Допускаемое осевое усилие Р, кгс | А | S | К | Масса, кг |
| 1 | 2 | 3 | 4 | 5 | 6 | 7 |
| 25 | 25; 26,75 | 30 | 36 | 8 | - | 0,070 |
| Н-25 | - | |||||
| 32 | 32; 33,5 | 40 | 42 | 0,075 | ||
| Н-32 | - | |||||
| 38 | 38 | 60 | 48 | 0,082 | ||
| Н-38 | - | |||||
| 42,25 | 42,25 | 70 | 52 | 0,086 | ||
| Н-42,25 | - | |||||
| 45 | 44,5; 45 | 80 | 58 | 0,155 | ||
| Н-45 | - | |||||
| 48 | 48 | 100 | 62 | 0,161 | ||
| Н-48 | - | |||||
| 57 | 57 | 500 | 70 | 3 | 0,222 | |
| Н-57 | - | 0,198 | ||||
| 60 | 60 | 500 | 74 | 0,228 | ||
| Н-60 | - | 0,204 | ||||
| 76 | 75,5; 76 | 500 | 90 | 0391 | ||
| Н-76 | - | 0^61 | ||||
| 89 | 88,5; 89 | 500 | 106 | 0,442 | ||
| Н-89 | - | 0,407 | ||||
| 108 | 108 | 1200 | 122 | 12 | 0,584 | |
| Н-108 | - | 0,500 | ||||
| 114 | 114 | 1500 | 128 | 0,633 | ||
| Н-114 | - | 0,530 | ||||
| 133 | 133 | 1600 | 150 | 1,013 | ||
| Н-133 | - | 0,934 | ||||
| 152 | 152 | 1300 | 170 | 1,090 | ||
| Н-152 | - | 1,013 | ||||
| 159 | 159 | 1800 | 180 | 1,198 | ||
| Н-159 | - | 1,089 | ||||
| 194 | 194 | 3200 | 214 | 5 | 1,507 | |
| Н-194 | - | 1,308 | ||||
| 219 | 219 | 3600 | 242 | 16 | 2,468 | |
| Н-219 | - | 2,214 | ||||
| 273 | 273 | 3400 | 298 | 2,884 | ||
| Н-273 | - | 2,601 | ||||
| 325 | 325 | 3400 | 350 | 3,064 | ||
| Н-325 | - | 2,733 | ||||
| 377 | 377 | 4000 | 402 | 3,840 | ||
| Н-377 | - | 3,408 | ||||
| 426 | 426 | 4000 | 456 | 5,709 | ||
| Н-426 | - | 5,226 | ||||
| 480 | 478; 480 | 4000 | 508 | 6,311 | ||
| Н-480 | - | 5,768 | ||||
| 530 | 529; 530 | 4000 | 558 | 6,856 | ||
| Н-530 |
| 6,267 |
Пример условного обозначения опоры бескорпусной неподвижной длятрубопровода Дн = 159 мм:
Опора ОБН 159 ТУ......
Тоже, направляющей:
Опора ОБН Н-159 ТУ......
Хомут

Чертёж 106
Таблица 107
Размеры, мм
| Обозначение | r | А | d | I | I1 | с | Развёрнутая длина | Масса, кг | |
| Номин. | Доп. откл. | ||||||||
| 1 | 2 | 3 | 4 | 5 | 6 | 7 | 8 | 9 | 10 |
| 25/1 | 14 | 36 | ±1,0 | М8 | 38 | 34 | 1,2 | 133 | 0,046 |
| 32/1 | 17 | 42 | 40 | 146 | 0,051 | ||||
| 38/1 | 20 | 48 | 44 | 163 | 0,058 | ||||
| 42,25/1 | 22 | 52 | 45 | 172 | 0,062 | ||||
| 45/1 | 24 | 58 | М10 | 52 | 40 | 1,5 | 195 | 0,111 | |
| 48/1 | 26 | 62 | 54 | 205 | 0,117 | ||||
| 57/1 | 30 | 70 | 58 | 226 | 0,130 | ||||
| 60/1 | 32 | 74 | 60 | 236 | 0,136 | ||||
| 76/1 | 39 | 90 | М12 | 70 | 50 | 1,8 | 281 | 0,235 | |
| 89/1 | 47 | 106 | 80 | 327 | 0,276 | ||||
| 108/1 | 55 | 122 | 92 | 376 | 0,320 | ||||
| 114/1 | 58 | 128 | 94 | 389 | 0,331 | ||||
| 133/1 | 67 | 150 | М16 | 108 | 58 | 2,0 | 452 | 0,691 | |
| 152/1 | 77 | 170 | 118 | 503 | 0,772 | ||||
| 159/1 | 82 | 180 | 124 | 531 | 0,816 | ||||
| 194/1 | 98 | 214 | 140 | 613 | 0,945 | ||||
| 219/1 | 111 | 242 | ±1,5 | М20 | 164 | 76 | 2,5 | 708 | 1,672 |
| 273/1 | 139 | 298 | 192 | 852 | 2,030 | ||||
| 325/1 | 165 | 350 | 218 | 986 | 2,114 | ||||
| 377/1 | 191 | 402 | 244 | 1119 | 2,688 | ||||
| 426/1 | 216 | 456 | М24 | 278 | 90 | 3,0 | 1272 | 4,315 | |
| 480/1 | 242 | 508 | 304 | 1406 | 4,797 | ||||
| 530/1 | 267 | 558 | 330 | 1537 | 5,250 | ||||