Пособие составлено к СНиП 2.03.03—85 "Армоцементные конструкции" и распространяется на проектирование армоцементных конструкций промышленных, гражданских и сельскохозяйственных зданий и сооружений, предназначенных для работы при систематическом воздействии температур не свыше 50 градусов Цельсия и не ниже минус 70 градусов Цельсия. Проектирование армоцементных конструкций, находящихся под воздействием температур свыше 50 до 80 градусов Цельсия и в условиях агрессивной среды, кроме настоящих рекомендаций должно учитывать дополнительные требования, предъявляемые к конструкциям из бетона (СНиП 2.03.04—84).
| Обозначение: | Пособие к СНиП 2.03.03-85 |
| Название рус.: | Пособие по проектированию армоцементных конструкций |
| Статус: | действует |
| Дата актуализации текста: | 05.05.2017 |
| Дата добавления в базу: | 01.09.2013 |
| Утвержден: | 29.04.1986 НИИЖБ Госстроя СССР (NIIZhB, USSR Gosstroy 25) |
| Опубликован: | Стройиздат (1989 г. ) |
| Ссылки для скачивания: |
НИИЖБ Госстроя СССР
ПОСОБИЕ
по проектированию
армоцементных
конструкций
(кСНиП 2.03.03-85)
Утверждено
приказом НИИЖБГосстроя СССР
от 29 апреля1986 г. № 25
Москва Стройиздат 1989
Рекомендованок изданию решением секции теории железобетона и арматуры Научно-техническогосовета НИИЖБ Госстроя СССР.
Пособиепо проектированию армоцементных конструкций: (к СНиП 2.03.03-85)/НИИЖБ. - М.: Стройиздат,1989.
Изложеныобщие положения и расчетные требования при проектировании армоцементныхконструкций. Рассмотрены виды материалов и арматура, используемые дляармоцементных конструкций, а также их расчетные и нормативные характеристики.Даны примеры расчета.
Дляинженерно-технических работников проектных и строительных организаций.
Табл.17, ил. 60.
РазработаноНИИЖБ Госстроя СССР (д-р техн. наук, проф. Г.К. Хайдуков - руководитель темы,канд. техн. наук, Е.К. Качановскийй - разд. 1 - 5, канд. техн. наук В.В.Фигаровский - разд. 1); при участии ЛенЗНИИЭП Госгражданстроя(кандидаты техн. наук Б.А. Миронков, С.Н.Панарин, инж. Г.М. Абраменкова - примеры), НИИСК Госстроя СССР (кандидаты техн.наук В.Д. Галич, В.П. Овчар, инж. Т.В. Борисова - примеры).
Усилияот внешних нагрузок и воздействий в поперечном сечении элемента и отпредварительного напряжения
M -изгибающий момент;
N -продольная сила;
Q - поперечная сила;
P -усилие предварительного обжатия.
Характеристикиматериалов
Rb, Rb, ser - расчетные сопротивления мелкозернистого бетонасжатию соответственно для предельных состояний первой и второй групп;
Rbt, Rbt, ser - расчетные сопротивления мелкозернистого бетонарастяжению соответственно для предельных состояний первой и второй групп;
Rsc, Rs, Rspc, Rsp - расчетные сопротивления проволочной истержневой ненапряженной и напряженной арматуры;
Rc1 - расчетноеприведенное сопротивление бетона сжатой зоны сечения;
Rm - расчетное сопротивление сеток растяжению дляпредельных состояний первой группы;
Rmω - расчетноесопротивление сеток растяжению при расчете сечений на поперечную силу внаклонных сечениях;
Rmc - расчетное сопротивление сеток сжатию;
Eb - начальный модуль упругости мелкозернистогобетона при сжатии и растяжении;
Em - модуль упругости сеток;
α - отношение модулей упругости сетчатой арматуры Em ибетона Eb;
Es - модуль упругости стержневой и проволочнойарматуры.
Геометрическиехарактеристики
Ab - площадь сечения бетона;
A'm, Am - площадь сечения проволок сетки в сжатой ирастянутой зонах;
Ac, At - площади сечения бетона сжатой и растянутой зонсоответственно;
A's, As - площади сечения ненапрягаемой стержневойарматуры на единицу ширины соответственно в сжатой и растянутой зонах;
A'sp, Asp - площади ненапрягаемой стержневой арматуры наединицу ширины соответственно в сжатой и растянутой зонах;
μm- коэффициент сетчатого армирования,определяемый как отношение площади арматуры Am к площади сечения бетона Ab;
μ's, μs, μ'sp, μsp - коэффициент армирования стержневой ипроволочной сжатой, растянутой арматурой соответственно ненапрягаемой инапрягаемой;
μm,μ'm - коэффициенты армирования, приведенные ксетчатому, соответственно для растянутой и сжатой зоны;
t'f, tf - толщина соответственно сжатой и растянутойполок двутаврового сечения;
b - ширинасечения;
bfc, bf - ширина соответственно сжатой и растянутойполок двутаврового сечения;
h - высотапрямоугольного, таврового или двутаврового сечения;
a', a - расстояния от равнодействующей сосредоточеннойсжатой A's, A'sp и растянутой As, Asp арматурыдо ближайшей грани сечения;
x - высотасжатой зоны бетона;
ξ - относительнаявысота сжатой зоны бетона, равная ξ = x/h;
ec - эксцентриситет продольной силы Nотносительно центра тяжести приведенного сечения;
l1 - расчетнаядлина армоцементного элемента, подвергающегося действию сжимающей продольнойсилы;
dm - диаметр проволок сварных, тканых и плетеныхсеток;
l - пролетэлемента;
r - радиусинерции поперечного сечения элемента относительно центра тяжести сечения;
ds - номинальный диаметр стержневой арматуры;
I1- момент инерции сечения, приведенного кбетонному, относительно его центра тяжести;
Is1- момент инерции сечения, приведенного кстальному, относительно его центра тяжести;
Ws1- момент сопротивления растянутоговолокна, приведенного к стальному;
Bf1 - жесткость сечения элемента армоцементныхконструкций при кратковременном действии нагрузки;
Bf2 - жесткость сечения армоцементных конструкций придействии нагрузок, на участке, в пределах которого образуются трещины;
B'f2 - жесткость сечения элемента армоцементныхконструкций при действии эксплуатационной нагрузки;
yc - расстояние до центра тяжести.
1.1. Настоящее Пособиесоставлено к СНиП2.03.03-85 «Армоцементные конструкции» и распространяется на проектированиеармоцементных конструкций промышленных, гражданских и сельскохозяйственныхзданий и сооружений, предназначенных для работы при систематическом воздействиитемператур не свыше 50 °С и не ниже минус 70 °С. Проектирование армоцементныхконструкций, находящихся под воздействием температур свыше 50 до 80 °С и вусловиях агрессивной среды, кроме настоящих рекомендаций должно учитыватьдополнительные требования, предъявляемые к конструкциям из бетона (СНиП2.03.04-84).
1.2. Армоцементнымиконструкциями принято называть тонкостенные железобетонные конструкции (толщинадо 30 мм), изготовляемые из мелкозернистого бетона, в качестве арматуры которыхприменяются: частые тонкие, сварные или плетеные проволочные сетки, равномернораспределенные по сечению элемента (сетчатое армирование); частые тонкиетканые, сварные или плетеные проволочные сетки, равномерно распределенные посечению, в сочетании со стержневой или проволочной арматурой (комбинированноеармирование) (рис. 1).
1.3. Армоцементныеконструкции, как правило, должны применяться в неагрессивной среде.
Армоцементныеконструкции допускается применять в слабоагрессивной газообразной среде притолщине защитного слоя бетона для арматуры согласно требованиям СНиП 2.03.03-85 при защитесетки и проволоки цинковым покрытием толщиной не менее 30 мкм или защитеповерхности лакокрасочным покрытием согласно требованиям, установленным СНиП2.03.11-85, а в слабоагрессивной твердой среде при одновременной защитесоответственно арматуры и поверхности конструкции.
Рис.1. Армирование армоцементных конструкций
а - сетчатое; б- комбинированное; 1 - частые тонкие тканые сетки; 2 - частыетонкие сварные сетки; 3 - стержневая или проволочная арматура; 4- сетки плетеные
1.4. Наружныекровельные и ограждающие армоцементные элементы, эксплуатируемые в условияхотсутствия агрессивной среды, выполненные с учетом п. 2.1 СНиП 2.03.03-85 к качествумелкозернистого бетона, толщине и армированию защитного слоя бетона дляарматуры, допускается применять без оцинковки арматуры и устройства защитныхпокрытий.
1.5. Выборконструктивных решений армоцементных конструкций должен производиться исходя изтехнико-экономической целесообразности применения таких конструкций вконкретных условиях строительства с учетом максимального снижения ихматериалоемкости, трудоемкости, энергоемкости и стоимости.
Армоцементныеконструкции рекомендуется применять в элементах зданий и сооружений, длякоторых преимущественное значение имеют: снижение энергоемкости, снижениесобственного веса, уменьшение расхода стали и бетона благодаря применениюэффективного утеплителя, уменьшение раскрытия трещин и обеспечениеводонепроницаемости бетона.
1.6. При выбореконструктивных решений должны учитываться методы изготовления, монтажа иусловия эксплуатации конструкций.
Формаи размеры элементов должны предусматриваться исходя из наиболее полногоиспользования свойств армоцементных конструкций, возможности заводскогомеханизированного изготовления, удобства транспортирования и монтажаконструкции или монолитного возведения.
1.7. Армоцементныеконструкции рекомендуется выполнять из унифицированных элементов, в том числеиз плоских листов, придавая им в необходимых случаях пространственную формупутем сгиба. Из армоцементных листов целесообразно создавать однослойные итрехслойные элементы ограждающих конструкций, несъемную опалубку монолитныхпространственных конструкций покрытий и перекрытий.
1.8. Экономическицелесообразно применять армоцементные конструкции в чердачных покрытияхнеотапливаемых и отапливаемых зданий и навесах без рулонной гидроизоляции, вконструкциях для которых существенное значение имеют снижение веса, уменьшениетрудоемкости устройства и стоимости. Проектирование облегченных армоцементныхконструкций в комплексных безрулонных покрытиях должно предусматриватьприменение легкого эффективного утеплителя.
1.9. Армоцементныеконструкции допускается применять в качестве несъемной опалубки для массивныхмонолитных железобетонных конструкций с обеспечением в случае необходимостиспециальных мероприятий для надежной совместной ее работы с бетоном основнойконструкции.
1.10. Армоцементнаянесъемная опалубка может иметь достаточно прочное соединение на сдвиг по линииконтакта опалубки с монолитным бетоном при соответствующей подготовкеомоноличиваемой поверхности в классе бетона несъемной опалубки выше на порядок,чем монолитного, и выполнении требований п. 1.6 СНиП 2.03.03-85. Расчетную прочность насдвиг по контуру «старого» и «нового» допускается применять поэкспериментальным данным, но не более Rbq = 2Rbt, гдеRbt- прочность монолитного бетона.
1.11 (1.8)*. При проектировании сборныхармоцементных конструкций особое внимание необходимо обращать на прочность идолговечность и технологичность соединений и узлов. Соединения и узлы сборныхограждающих конструкций должны удовлетворять также специальным требованиям кэтим ограждениям (обеспечивать передачу усилий элементами несущих конструкций,выполнение теплотехнических требований, заданной деформативности и др.).
* Здесь и далеев скобках даны номера пунктов СНиП 2.03.03-85.
1.12 (1.9). Как правило, должен применятьсябеспетлевой подъем армоцементных конструкций.
1.13. Армоцементныелистовые конструкции целесообразно проектировать с учетом применениикантователя и специальной траверсы для подъема, оборудованной стропами соскобами, захватывающими армоцементный лист за край с шагом не более 3 м.Возможно также применение для подъема армоцементных листов вакуумприсосов.
1.14. Тонкостенныеармоцементные конструкции могут применяться в покрытиях, перекрытиях, подвесныхпотолках, стенах, перегородках и других частях зданий и сооружений, в инженерных конструкциях в виделотков небольшой емкости для жидких и сыпучих материалов, элементовсанитарно-технического оборудования, декоративных элементов и т.п.Армоцементные конструкции проектируются, как правило, из элементов заводскогоизготовления.
1.15.В ряде случаев исходя из местных условий армоцементные конструкциицелесообразно проектировать как монолитные, выполняемые без опалубки снанесением мелкозернистого бетона на частые сетки пневмонабрызгом или вручную.
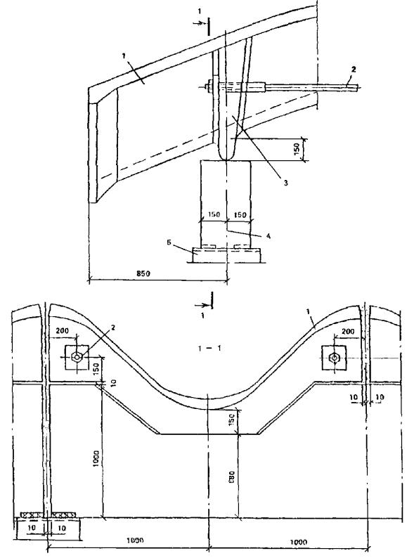
1.16.Для сводчатых конструкций массового строительства целесообразно предусматриватьэлементы двоякой кривизны (рис. 2) или цилиндрические ребристые элементы (рис. 3)шириной 2 - 3 м, длиной до 24 м и толщиной 2 - 3 см. Из элементов двоякойкривизны могут собираться волнистые своды пролетом до 48 м.
1.17.Складчатые элементы шириной 1 - 1,5 м, длиной до 8 м, толщиной до 25 ммприменяются для покрытия с соединениями швом внахлестку (рис. 4).Складки изготавливаются методом сгиба свежеотформованного листа, имеюткомбинированное армирование сетками и продольными проволоками из стержнейкласса Вр-Iдиаметром 5 - 6 мм с монтажным (при длине складок до 3 м) или расчетнымпредварительным напряжением. Складки могут применяться для крыш жилых зданий счердаком, для павильонов и навесов без рулонной гидроизоляции и в качествеэлементов стен неотапливаемых зданий и павильонов.
Рис.2. Сборные сводчатые покрытия пролетом 12 - 18 м с безрулонной кровлей изармоцементных элементов двоякой кривизны
1.18. Трехслойныекомплексные плоские (рис. 5) и цилиндрические (рис. 6) плиты из армоцементных листови эффективного плитного утеплителя, укладываемые внахлестку (рис. 7),применяются в качестве скатного покрытия жилых зданий с теплым чердаком илибесчердачных безрулонных покрытий производственных зданий. Плиты имеют размердо 3 ´12 м. Армоцементные листы толщиной до 25 - 30 мм имеют комбинированноеармирование, как правило, с предварительно напряженной арматурой класса Вр-IIдиаметром 5 - 6 мм. Стыки плит должны иметь уплотнение, удовлетворяющеетребованиям паро- и теплоизоляции. В толще утеплителя рекомендуется устраиватьвентилирующие продухи.
1.19. Армоцементныйсборный или монолитный слой может быть применен в качестве индустриальной,устраиваемой на заводе стяжки по утеплителю для плит на пролет типа КЖС (рис. 8) или П.Сборный армоцементный лист может укладываться со сгибом на полужесткий илимягкий утеплитель. Предварительно напряженный армоцементный лист целесообразноприменять для безрулонных покрытий.
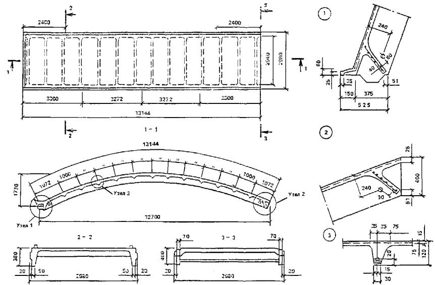
1.20. Складчатыеармоцементные призматические элементы могут применяться для большепролетных (до36 м) покрытий с передачей распора на затяжки (рис. 9) или на опоры-контрфорсы (рис.10).Из призматических армоцементных балочных складок могут проектироваться покрытияпролетом до 24 м (см. рис. 7).
1.21. Армоцементныепирамидальные элементы структуры (рис. 11) применяются для перекрытийи покрытий над зальными помещениями пролетом до 24 м. Армоцементные пирамидыразмером до 1,5 ´ 1,5 м объединяются на заводе в блоки,например размером 3 ´ 9 м, из которых собираются с помощьюсварки элементы балочного покрытия на пролет. В этих элементах может бытьприменена предварительно напряженная арматура. Армоцементные структурные плитыпокрытия опираются на подстропильные балки, на колонны или на стены.
Армоцементныеслоистые панели для стен показаны на рис. 12. Из армоцементных листовмогут быть выполнены как наружные, так и внутренние слои, а такжесоединительные стенки. Соединения между слоями обеспечиваются заделкой краясеток в бетон при послойном изготовлении панелей или с помощью сварки закладныхдеталей или монолитного керамзитобетонного ребра по контуру панели при сборкепанелей из готовых листов.
1.22. Армоцементныеплиты-оболочки (рис. 13) находят применение в подвесных потолкахпокрытий с проходным межферменным этажом. Плиты-оболочки имеют размер 1,5 ´6 м, толщину 20 мм, комбинированное армирование и устраиваются с проемами длясветового оборудования.
1.23. Панели армоцементных перегородок, которыемогут быть однослойными волнистыми и коробчатыми (рис. 14),и многослойными слоистыми (рис. 15),применяются в зависимости от условий эксплуатации. Слоистые армоцементныеперегородки, в том числе с утеплителем между армоцементными листами, обладают более высокимипоказателями звукоизоляции и огнестойкости.

Рис.3. Сводчатое покрытие зданий пролетом 12 - 18 м с безрулонной кровлей из армоцементныхцилиндрических элементов

Рис.4. Армоцементныепредварительно напряженные складки
Рис.5. Трехслойные плоские плиты безрулонного покрытия
1 - нижний лист; 2 - верхний лист
Рис.6. Трехслойные цилиндрические плиты безрулонного покрытия
Рис.7. Общий вид и разрез вдоль ската безрулонного покрытия из трехслойных плит
1 - трехслойнаяплита; 2 -железобетонное ребро; 3 - водоприемный лоток
Рис.8. Применение армоцементного листа в качестве выравнивающего слоя по утеплениюи плитам, оболочкам на пролет
1 - несущаяжелезобетонная плита-оболочка КЖС; 2- армоцементный лист; 3 - утеплитель

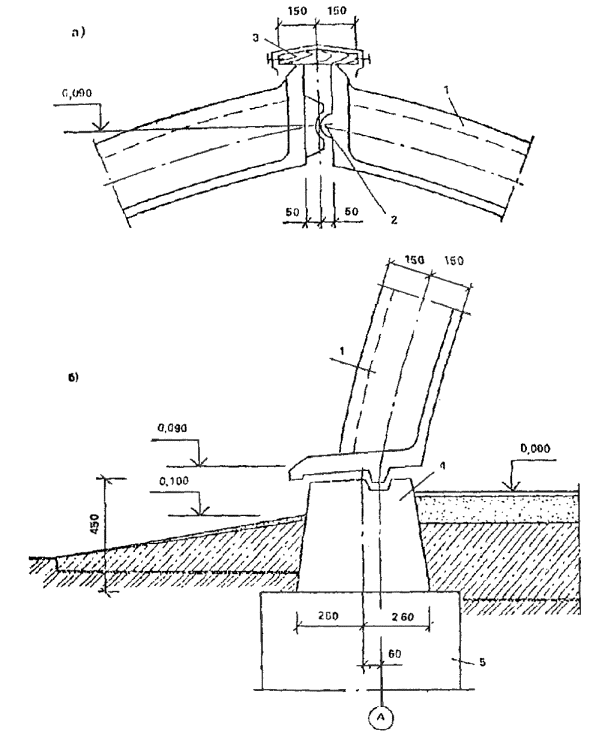
Рис.9. Схема армоцементного свода покрытия с затяжкой
1 - армоцементныеволнистые элементы свода; 2 - плита-утеплительи гидроизоляция; 3 -опорная балка; 4 - подстропильная балка

Рис.10. Схема армоцементного волнистого свода
1 - волнистыеэлементы свода
Рис.11. Структурная плита покрытия
1 -армоцементные пирамидальные элементы; 2 - железобетонная верхняя плита; 3 - железобетонная подстропильная балка
Рис.12. Слоистая стеновая панель
1 - армоцементныйнаружный лист; 2 - утеплитель;3 - разделительныйэлемент; 4 - керамзитобетонныйслой
Рис.13. Сводчатая плита подвесного потолка
Рис.14. Армоцементные панели перегородки
а - волнистая;б - коробчатая
Рис.15. Схема слоистой армоцементнойзвукоизолирующей панели перегородки
1 - армоцементныйлист; 2 - минераловатныеплиты
1.24 (1.10). Армоцементные конструкциидолжны удовлетворять требованиям расчета по несущей способности (предельныесостояния первой группы) и по пригодности к нормальной эксплуатации (предельныесостояния второй группы) согласно положениям СНиП 2.03.01-84 и настоящихнорм, учитывающих особенности армоцементных конструкций: а) дисперсностьармирования; б) тонкостенность конструкций; в) уменьшенный защитный слойбетона.
1.25 (1.11). Расчет армоцементныхконструкций должен производиться на все возможные неблагоприятные сочетаниянагрузок от собственного веса и внешней нагрузки с учетом продолжительности их воздействия длявсех стадий работы конструкции: изготовления, транспортирования, возведения иэксплуатации.
1.26. Значениянагрузок и воздействий коэффициентов перегрузок, коэффициентов сочетаний, атакже разделение нагрузок на постоянные и временные (длительные,кратковременные, особые) должны приниматься в соответствии с требованиями СНиП 2.01.07-85 и с учетомдополнительных указаний СНиП 2.03.01-84.
Нагрузки,учитываемые при расчете армоцементных конструкций по образованию и раскрытиютрещин, следует принимать согласно указаниям п. 1.28, а учитываемые при расчетепо деформациям - согласно СНиП 2.03.01-84.
1.27. Сборныеармоцементные конструкции рассчитываются на воздействия усилий при их подъеме итранспортировании. При этом коэффициент динамичности принимается равным: притранспортировании - 1,5; при подъеме и монтаже - 1,3.
1.28 (1.13).В зависимости от условий, в которых работает конструкция, и от вида применяемойарматуры к трещиностойкости армоцементных конструкций предъявляют требованиясоответствующих категорий: 1-я категория - не допускается образование трещин;2-я категория - допускается ограниченное по ширине непродолжительное ипродолжительное раскрытие трещин.
Категориитребований к трещиностойкости армоцементных конструкций в зависимости отусловий их работы и вида арматуры, а также значения предельно допустимой шириныраскрытия трещин приведены в табл. 1.
Нагрузки,учитываемые при расчете армоцементных конструкций по образованию и раскрытиютрещин, должны приниматься согласно табл. 2.
Категориитребований к трещиностойкости армоцементных конструкций относятся к нормальными наклонным к продольной оси элемента трещинам.
Воизбежание раскрытия продольных трещин должны приниматься конструктивные меры(установка соответствующей сетчатой арматуры), а для предварительно напряженныхэлементов, кроме того, значения сжимающих напряжений в бетоне в стадиипредварительного обжатия должны быть ограничены, см. п. 1.53 (1.23).
Таблица 1
| Категория требований к трещиностойкости армоцементных конструкций и предельно допустимая ширина acrc1 и acrc2 раскрытия трещин при армировании, мм | |||||
| комбинированном | сетчатом | комбинированном | |||
| сетками и стержневой арматурой классов А-I, А-II, А-III и с проволочной арматурой класса Вр-I | оцинкованными сетками и оцинкованной проволочной арматурой классов В-II, Вр-II, К-7 | сетками со стержневой арматурой классов А-IV, А-V с проволочной арматурой классов В-II и Вр-II, К-7 при диаметре проволоки 4 мм и более | сетками и стержневой арматурой класса Аr-VI, проволочной арматурой классов В-II и Вр-II и К-7 при диаметре проволоки менее 4 мм | ||
| С полностью растянутым или частично сжатым сечением, воспринимающим давление жидкостей или газов | 2-я категория | 2-я категория * | 1-я категория** | 1-я категория | 1-я категория |
| acrc1 = 0,05 | acrc1 = 0,05 | - | - | - | |
| acrc2 = 0,03 | acrc2 = 0,03 | - | - | - | |
| Эксплуатируемые в отапливаемых зданиях с относительной влажностью воздуха помещений выше 75 %, а также на открытом воздухе и в неотапливаемых зданиях в условиях увлажнения атмосферными осадками | 2-я категория | 2-я категория | 1-я категория** | 1-я категория | 1-я категория |
| acrc1 = 0,1 | acrc1 = 0,12 | - | - | - | |
| acrc2 = 0,05 | acrc2 = 0,06 | - | - | - | |
| Эксплуатируемые в отапливаемых зданиях с относительной влажностью внутреннего воздуха помещений св. 60 до 75 % | 2-я категория | 2-я категория | 2-я категория | 2-я категория | 1-я категория |
| acrc1 = 0,15 | acrc1 = 0,15 | acrc1 = 0,07 | acrc1 = 0,07 | - | |
| acrc2 = 0,1 | acrc2 = 0,1 | acrc2 = 0,05 | acrc2 = 0,05 | - | |
| Эксплуатируемые в отапливаемых зданиях с относительной влажностью внутреннего воздуха помещений до 60 % и при отсутствии возможности систематического увлажнения конструкции конденсатом | 2-я категория | 2-я категория | 2-я категория | 2-я категория | 2-я категория |
| acrc1 = 0,2 | acrc1 = 0,22 | acrc1 = 0,15 | acrc1 = 0,15 | acrc1 = 0,05 | |
| acrc2 = 0,15 | acrc2 = 0,15 | acrc2 = 0,1 | acrc2 = 0,1 | acrc2 = 0,03 | |
| * Категория требований к трещиностойкости принята при защитном покрытии сеток оцинковкой в 30 мкм. ** Применение сетчатого армирования допускается при специальном обосновании. | |||||
Таблица 2
| Категория требований к трещиностойкости армоцементных конструкций | Нагрузки и коэффициент надежности по нагрузке γf, принимаемой при расчете | ||
| по образованию трещин | по раскрытию трещин | ||
| непродолжительному | продолжительному | ||
| 1-я | Постоянные, длительные и кратковременные нагрузки при γf > 1* | - | - |
| 2-я | Постоянные, длительные и кратковременные нагрузки при γf = 1 (расчет производится для выяснения необходимости проверки по раскрытию трещин) | Постоянные, длительные и кратковременные нагрузки при γf = 1 | Постоянные и длительные нагрузки при γf = 1 |
| * Коэффициент надежности по нагрузке γf принимается как при расчете на прочность. Примечания: 1 Длительные и кратковременные нагрузки принимаются с учетом указаний, изложенных в п. 1.12 СНиП 2.03.01-84 . 2. Особые нагрузки учитываются при расчете по образованию трещин, приводящих к катастрофам (взрыв, пожар и т.п.). | |||
Примечание.Под непродолжительным раскрытием трещин понимается их раскрытие прикратковременном действии постоянных, длительных и кратковременных нагрузок, апод продолжительным раскрытием - только постоянных и длительных нагрузок.
1.29 (1.14). Усилия в статическинеопределимых армоцементных конструкциях от нагрузок и вынужденных перемещений(вследствие изменения температуры, влажности бетона, смещения опор и т.п.) прирасчете по предельным состояниям первой и второй групп следует, как правило,определять с учетом неупругих деформаций бетона и арматуры и наличия трещин, атакже с учетом в необходимых случаях деформированного состояния как отдельныхэлементов, так и конструкций.
Дляконструкций, методика расчета которых с учетом неупругих свойств армоцемента неразработана, а также на промежуточных стадиях расчета (итерационные методы,метод поправочных коэффициентов и т.п.) усилия в статически неопределимыхконструкциях допускается определять в предположении их линейной упругости.
1.30. Расчетконструкций, усилия в сечениях которых были определены с использованием упругихметодов расчет, должен выполняться с учетом возможного перераспределения усилийв статически неопределимой конструкции после раскрытия трещин.
Такимизонами перераспределения в оболочках покрытий являются приконтурные зоны.
1.31. Статическийрасчет армоцементных конструкций в виде оболочек и складок должен производитьсякак тонкостенных пространственных конструкций.
1.32 (1.16).При расчете по прочности армоцементных конструкций на воздействие сжимающейпродольной силы Nнеобходимо учитывать случайный эксцентриситет ea согласнотребованиям СНиП2.03.01-84 .
1.33. Определениепрогибов армоцементных конструкций следует производить согласно требованиям пп.4.8 - 4.16 СНиП 2.03.03-85и СНиП2.03.01-84.
Значенияпредельных допустимых прогибов следует принимать в соответствии с п. 1.20 СНиП 2.03.01-84.
1.34. Среднююплотность мелкозернистого бетона, учитываемую при расчете армоцементных конструкций,следует принимать равной 2300 кг/м3. Средняя плотность армоцементапри двух сетках принимается равной 2400 кг/м3; при наличии большогоколичества сеток среднюю плотность армоцемента следует увеличивать на 50 кг/м3на каждую дополнительную сетку.
1.35. Расстояниямежду температурно-усадочными швами армоцементных конструкций покрытий должныустанавливаться, как правило, расчетом их напряженно деформированного состоянияот этих воздействий.
1.36. Предварительно напряженные армоцементныеконструкции следует проектировать в соответствии с требованиями СНиП 2.03.01-84 и с учетом дополнительных указаний пп. 1.36- 1.41. Сетки в сечении преднапряженныхармоцементных конструкций должны учитываться в схеме усилий так же, какненапрягаемая арматура.
1.37 (1.21). В случае если сжатая приэксплуатационных нагрузках зона предварительно напряженных элементов необеспечена расчетом от образования трещин, нормальных к продольной оси, встадиях изготовления, транспортирования и возведения следует учитыватьснижение трещиностойкости растянутой при эксплуатации зоны элементов, а также увеличение их кривизны.
Таблица 3
| Факторы, вызывающие потери предварительного напряжения арматуры | Значения потерь предварительного напряжения, МПа, при натяжении арматуры | ||
| на упоры | на бетон | ||
| Усадка мелкозернистого бетона группы: | Бетон естественного твердения | Бетон, подвергнутый тепловой обработке при атмосферном давлении | Независимо от условий твердения бетона |
| А классов В35 и ниже | 52 | 45 | 40 |
| А класса В40 | 65 | 52 | 40 |
| Б классов В45 и ниже | 75 | 60 | 50 |
| В » В35 » » | 40 | 35 | 50 |
| класса В40 | 50 | 40 | 40 |
| » В45 | 60 | 50 | 40 |
| Ползучесть мелкозернистого бетона группы: |
|
|
|
| А | 150α(σbp/Rbp)1,3 при σbp/Rbp ≥ 0,75; 300α(σbp/Rbp - 0,375)1,3 при σbp/Rbp > 0,75, где σbp - напряжение в бетоне, вычисленное с учетом потерь по поз. 1 - 6; α - коэффициент, принимаемый равным: для бетона естественного твердения - 1; для бетона, подвергнутого тепловой обработке при атмосферном давлении, - 0,85. | ||
| Б | 150α(σbp/Rbp)1,5 при σbp/Rbp ≤ 0,75; 300α(σbp/Rbp - 0,375)1,5 при σbp/Rbp > 0,75; | ||
| В | 150×0,85(σbp/Rbp) при σbp/Rbp ≤ 0,75; 300×0,85(σbp/Rbp - 0,375) при σbp/Rbp > 0,75. | ||
Вэлементах, рассчитываемых на воздействие многократно повторяющейся нагрузки,образование таких трещин не допускается.
1.38. Потери предварительного напряженияарматуры для армоцементных конструкций должны определяться согласно требованиям СНиП 2.03.01-84 как для мелкозернистого бетона.
Дляупрощения вычислительных работ потери от усадки и ползучести приведены в табл. 3.
1.39 (1.23). Сжимающие напряжения в бетоне встадии предварительного обжатия σbp не должны превышатьвеличины (в долях от передаточной прочности бетона Rbp),указанных в СНиП2.03.01-84.
Значенияσbp определяются на уровнекрайнего сжатого волокна бетона с учетом потерь предварительного напряженияарматуры по СНиП2.03.01-84 и при коэффициенте точности натяжения арматуры γsp,равном единице.
1.40 (1.24). В предварительно обжатой зонесечения армоцементных элементов площадь сечения сетчатой или комбинированнойненапрягаемой арматуры должна быть минимальной. Сетки должны располагатьсясимметрично относительно напрягаемой арматуры.
1.41 (1.25).На концевых участках предварительно напряженных элементов армоцементныхконструкций с арматурой без анкеров, к которым предъявляются требования 2-йкатегории трещиностойкости, в пределах длины зоны передачи напряжений недопускается образование трещин при действии постоянной, длительной икратковременной нагрузок, вводимых в расчет с коэффициентом надежности понагрузке γf, принимаемым по табл. 2.
1.42. Напряжения вбетоне и арматуре, а также усилия предварительного обжатия бетона, вводимые врасчет предварительно напряженных конструкций, определяются с учетом следующихуказаний.
Напряженияв сечениях, нормальных к продольной оси элемента, определяются по правиламрасчета упругих материалов. При этом принимаются приведенное сечение,включающее сечение бетона с учетом ослабления его каналами, пазами и т.п., атакже сечение всей продольной (напрягаемой и ненапрягаемой) арматуры,умноженное на отношение α модулей упругости арматуры и бетона. Если частибетонного сечения выполнены из бетонов разных классов или видов, их приводят кодному классу или виду исходя из отношения модулей упругости бетона.
Усилиепредварительного обжатия P иэксцентриситет его приложения eop относительноцентра тяжести приведенного сечения (рис. 16) определяются по формулам:
P = σspAsp + σ'spA'sp - σsAs - σ'sA's - σmAm - σ'mA'm; (1)
eop= (σspAspysp+ σ'sA'sy's - σ'spA'spy'sp - σsAsys- σmAmym- σ'mA'my'm)/P, (2)
где σs,σ's, σm,σ'm - напряжения вненапрягаемой арматуре соответственно s,s'и сетках, вызванные усадкой и ползучестью бетона; ysp, y'sp, ys, y's, ym, y'm - расстояния от центратяжести приведенного сечения до точек приложения равнодействующих усилийсоответственно в напрягаемой и ненапрягаемой арматуре s, s' и сетках (рис. 16).
Прикриволинейной напрягаемой арматуре значения σspи σ'sp умножаютсоответственно на cos0и cos0', где 0 и 0' - углы наклона оси арматуры к продольной оси элемента (длярассматриваемого сечения).
Напряженияσspи σ'sp принимают: в стадииобжатия бетона - с учетом первых потерь; в стадии эксплуатации элемента - сучетом первых и вторых потерь.
Напряженияσsи σ's принимают численноравными: в стадии обжатия бетона - потерям напряжений от быстронатекающейползучести по поз. 6 табл. 5 СНиП 2.03.01-84; в стадииэксплуатации элемента - сумме потерь напряжений от усадки и ползучести бетонапо табл. 3.
Рис.16. Схема усилий предварительного напряжения в арматуреи сетках в поперечном сечении армоцементногоэлемента
а - изгибаемогосечения; б - внецентренносжатого сечения; в - внецентреннорастянутого сечения; г - от действия предварительного напряжения
2.1 (2.1). Для армоцементных конструкций, - проектируемых всоответствии с требованиями настоящих норм, следует предусматриватьконструкционный мелкозернистый бетон средней плотности от 2200 кг/м3с крупностью зерен до 5 мм в соответствии с ГОСТ 25192-82.
Бетондолжен иметь водопоглощение не более 8 %.
Примечания: 1.Мелкозернистые пески, не удовлетворяющие требованиям ГОСТ 8736-85,допускается применять с использованием пластифицирующих добавок в количестве0,25 % веса цемента. Обогащение мелкозернистых песков допускается производитьсмешиванием их с 50 % крупного песка или высевками с размером зерен не более 1/2размера ячейки сеток.
2. Для повышения морозостойкости армоцементныхконструкций рекомендуется применять пластифицирующие добавки.
2.2 (2.2).Мелкозернистый бетон для армоцементных конструкций в зависимости от вида иусловий их работы следует предусматривать следующих классов и марок:
а)классов на прочности на сжатие:
бетонгруппы А - естественного твердения или подвергнутый тепловой обработке приатмосферном давлении, на песке с модулем крупности свыше 2 - В20, В25, В30, В35и В40;
бетонгруппы Б - естественного твердения или подвергнутый тепловой обработке приатмосферном давлении, на песке с модулем крупности 2 и менее - В20, В25 и В30;
бетонгруппы В - подвергнутый автоклавной обработке - В20, В25, В30, В35, В40, В45,В50, В55, В60.
Допускаетсяприменение бетона промежуточных классов В22,5 и В27,5 при условии, что этоприводит к экономии цемента по сравнению с применением бетона соответственноклассов В25 и В30 и не снижает другие технико-экономическиепоказатели конструкции;
б) классов по прочности на осевоерастяжение -Bt1,6;Bt2;Bt2,4;Bt2,8и Bt3,2;
в) марок по морозостойкости - F100, F150, F200, F300,F400и F500;
г) марок по водонепроницаемости- W6, W8,W10, W12.
Примечание.Определение понятий класс бетона и марки бетона см. ГОСТ 25192-82.
2.3 (2.3). Возраст бетона, отвечающий его классу по прочности на сжатиеи осевое растяжение, назначается при проектировании исходя из возможныхреальных сроков фактического загружения конструкции проектными нагрузками,способа возведения, условий твердения бетона. При отсутствии этих данных классбетона устанавливается в возрасте 28 сут.
Значениеотпускной прочности бетона в элементах сборных конструкций следует назначать всоответствии с указаниями ГОСТ13015.0-83* и стандартов на конструкции конкретных видов.
2.4. Дляпредварительно напряженных армоцементных конструкций класс бетона по прочностина сжатие, в котором расположена напрягаемая арматура, должен приниматься взависимости от вида и класса напрягаемой арматуры, ее диаметра и наличияанкерных устройств не ниже указанного в табл. 4.
Передаточнаяпрочность бетона Rbp назначаетсяв соответствии с требованиями СНиП 2.03.01-84.
Примечание.Передаточная прочность бетона Rbp (прочностьбетона к моменту его обжатия) определяется на базовых образцах в соответствии сгосударственными стандартами с обеспеченностью 0,95.
Таблица 4
| Класс бетона не ниже | |
| Проволочная арматура классов: |
|
| В-II с анкерами | В20 |
| Вр-II без анкеров при диаметре проволоки: |
|
| до 5 мм | В20 |
| 6 мм и более | В30 |
| К-7 и К-19 | В35 |
| Стержневая арматура без анкеров диаметром 10 - 18 мм, классов: |
|
| А-IV | В20 |
| А-V | В25 |
| А-VI | В30 |
Таблица 5
| Минимальные марки бетона | |||||||
| характеристика режима | расчетная зимняя температура наружного воздуха | по морозостойкости | по водонепроницаемости | ||||
| конструкций для зданий, и сооружений класса | |||||||
| I | II | III | I | II | III | ||
| Попеременное замораживание и оттаивание в водонасыщенном состоянии (например, конструкции без рулонных крыш и покрытий) | Ниже минус 40 °С | F300 | F200 | F150 | W6 | W4 | W2 |
| Ниже минус 20 °С до минус 40 °С | F200 | F150 | F100 | W4 | W2 | Не нормируется | |
| Ниже минус 5 °С до минус 20 °С | F150 | F100 | F75 | W2 | Не нормируется | ||
| Минус 5 °С и выше | F100 | F75 | F50 | W2 | Не нормируется | ||
| Попеременное замораживание и оттаивание в условиях эпизодического водонасыщения (например, ограждающие конструкции стены) | Ниже минус 40 °С | F200 | F150 | F100 | W4 | W2 | Не нормируется |
| Ниже минус 20 °С до минус 40 °С | F100 | F75 | F50 | W2 | Не нормируется | ||
| Ниже минус 5 °С до минус 20 °С | F75 | F50 | Не нормируется | ||||
| Минус 5 °С и выше | F50 | Не нормируется | |||||
2.5 (2.5).Класс мелкозернистого бетона, применяемого для защиты от коррозии и обеспечениясцепления с бетоном напрягаемой арматуры, должен быть не менее В20.
2.6 (2.6).Для замоноличивания стыков армоцементных конструкций класс бетона следуетустанавливать в зависимости от условий работы соединяемых элементов, но неменее чем класс бетона соединяемых элементов.
2.7. Длязамоноличивания стыков элементов сборных конструкций, которые в процессеэксплуатации или монтажа могут подвергаться воздействию отрицательныхтемператур наружного воздуха, следует принимать бетоны проектных марок поморозостойкости и водонепроницаемости не ниже марок, принятых для стыкуемыхэлементов.
2.8. Минимальные марки мелкозернистого бетонапо морозостойкости и водонепроницаемости для армоцементных конструкций взависимости от условий их работы должны приниматься в соответствии табл. 5.
2.9. Нормативные ирасчетные сопротивления мелкозернистого бетона, а также коэффициенты условийработы следует принимать в соответствии с указаниями СНиП 2.03.01-84.
Нормативныесопротивления мелкозернистого бетона Rbn иRbtnв зависимости от класса бетона В даны в табл. 6.
2.10. Расчетныесопротивления мелкозернистого бетона для предельных состояний первой Rb иRbtи второй Rb, ser, Rbt, ser групп определяютсяпутем деления нормативных сопротивлений на соответствующие коэффициентынадежности по бетону при сжатии γbcили растяжении γbt,принимаемые при расчете по предельным состояниям первой группы γbc= 1,3, при назначении класса бетона по прочности на сжатие γbt= 1,5, на растяжение γbt= 1,3 и для второй группы предельных состояний γbc и γbt= 1.
2.11. Расчетные сопротивления мелкозернистогобетона Rb, Rbt, Rb, ser, Rbt, ser (с округлением) в зависимости от классабетона по прочности на сжатие и осевое растяжение приведены: для предельныхсостояний первой группы - соответственно в табл. 7и 8, для второй группы - в табл. 6.
Расчетныесопротивления мелкозернистого бетона для предельных состояний первой группы Rb иRbt снижаются(или повышаются) путем умножения на коэффициенты условий работы бетона γbt,учитывающиеособенности свойств бетона, длительность действия, многократную повторяемостьнагрузки, условия к сжатию работы конструкции, способ ее изготовления, размерысечения и т.п.
Таблица 6
| Бетон | Нормативные сопротивления мелкозернистого бетона Rbk и Rbtk и расчетные сопротивления для предельных состояний второй группы Rb, ser и Rbt, ser, МПа (кгс/см2), при классе бетона | |||||||||
| В20 | В25 | В30 | В35 | В40 | В45 | В50 | В55 | В60 | ||
| Сжатие осевое (призменная прочность) Rbn; Rb, ser | Мелкозернистый | 15 (153) | 18,5 (189) | 22 (224) | 25,5 (260) | 29 (296) | 32 (326) | 36 (367) | 39,5 (403) | 43 (438) |
| Растяжение осевое Rbtn; Rbt, ser | Мелкозернистый, группы: |
|
|
|
|
|
|
|
|
|
| А | 1,4 (14,3) | 1,6 (16,3) | 1,8 (18,4) | 1,95 (19,9) | 2,1 (21,4) | - | - | - | - | |
| Б | 1,15 (11,7) | 1,35 (13,8) | 1,5 (15,3) | - | - | - | - | - | - | |
| В | 1,4 (14,3) | 1,6 (16,3) | 1,8 (18,4) | 1,95 (19,9) | 2,1 (21,4) | 2,2 (22,4) | 2,3 (23,5) | 2,4 (24,5) | 2,5 (25,5) | |
Таблица 7
| Бетон | Расчетные сопротивления мелкозернистого бетона для предельных состояний первой группы Rb и Rbt, МПа (кгс/см2), при классе бетона | |||||||||
| В20 | В25 | В30 | В35 | В40 | В45 | В50 | В55 | В60 | ||
| Сжатие осевое (призменная прочность) Rb | Мелкозернистый | 11,5 (117) | 14,5 (148) | 17 (173) | 19,5 (199) | 22 (224) | 25 (255) | 27,5 (280) | 30 (306) | 33 (336) |
| Растяжение осевое Rbt | Мелкозернистый, группы: |
|
|
|
|
|
|
|
|
|
| А | 90 (9,18) | 1,05 (10,7) | 1,2 (12,2) | 1,3 (13,3) | 1,4 (14,3) | - | - | - | - | |
| Б | 0,77 (7,85) | 0,9 (9,18) | 1 (10,2) | - | - | - | - | - | - | |
| В | 0,9 (9,18) | 1,05 (10,7) | 1,2 (12,2) | 1,3 (13,3) | 1,4 (14,3) | 1,45 (14,8) | 1,55 (15,8) | 1,6 (16,3) | 1,65 (16,8) | |
| Примечания: 1. В скобках даны значения нормативных сопротивлений, кгс/см2. 2. Группы мелкозернистых бетонов приведены в п. 2.2. | ||||||||||
Таблица 8
| Расчетные сопротивления мелкозернистого бетона для предельных состояний первой группы Rbt при классе бетона по прочности на осевое растяжение | |||||
| Bt = 1,6 | Bt = 2 | Bt = 2,4 | Bt = 2,8 | Bt = 3,2 | |
| Растяжение осевое | 1,35 12,7 | 1,55 15,8 | 1,85 18,9 | 2,15 21,9 | 2,45 25 |
| Примечание. Над чертой указаны значения в МПа, под чертой - в кгс/см2. | |||||
Значениякоэффициентов условий работы γbi приведены в табл. 9.
Расчетныесопротивления мелкозернистого бетона для предельных состояний второй группы Rb, ser иRbt, ser вводятся в расчет скоэффициентом условий работы бетона γbi = 1.
Примечание.При использовании в расчетах промежуточных классов бетона по прочности на сжатиесогласно п. 2.2значения характеристик, приведенных и табл. 6 - 8, принимаются по линейнойинтерполяции.
2.12. Значенияначального модуля упругости мелкозернистого бетона Eb при сжатии ирастяжении принимаются по табл. 10. Для не защищенных от солнечной радиацииконструкций, предназначенных для работы в климатическом подрайоне IVAсогласно СНиП2.01.01-82, значения Eb, указанные в табл. 10, следует умножать накоэффициент 0,85.
2.13 (2.12). Коэффициент линейнойтемпературной деформации αbt мелкозернистого бетонав интервале температур от минус 40 °С доплюс 50 °С принимается равным 1×10-5 град-1.
Приналичии данных о минералогическом составе заполнителей, расходе цемента,степени водонасыщения, морозостойкости бетона и т.д. допускается приниматьдругие значения αbt,обоснованные в установленном порядке. Для расчетной температуры ниже минус 10°С и выше 50 °С значение αbt принимается поэкспериментальным данным.
2.14. Начальныйкоэффициент поперечной деформации бетона (коэффициент Пуассона) принимаетсяравным 0,2, а модуль сдвига мелкозернистого бетона G- равным 0,4 соответствующего значения Eb.
Таблица 9
| Факторы, обуславливающие введение коэффициента условий работы бетона | Коэффициенты условий работы бетона | |
| условное обозначение | числовое значение | |
| Длительность действия нагрузки а) при учете постоянных, длительных и кратковременных нагрузок, кроме нагрузок непродолжительного действия, суммарная длительность действия которых за период эксплуатации мала (например, крановые нагрузки, нагрузки от крановых средств, ветровые нагрузки); нагрузки, возникающие при изготовлении, транспортировании и возведении, а также при учете особых нагрузок, вызванных деформациями просадочных, набухающих, вечномерзлых и подобных грунтов: | γb1 | - |
| для мелкозернистого бетона естественного твердения и подвергнутого тепловой обработке: в условиях эксплуатации конструкции, благоприятных для нарастания прочности бетона (например, под водой, во влажном грунте или при влажности воздуха окружающей среды свыше 67 до 75 %) | 1 | |
| в остальных случаях | 0,9 | |
| б) при учете в рассматриваемом сочетании кратковременных нагрузок (непродолжительного действия) или особых нагрузок *, не указанных в поз. 2а для всех видов бетона | 1,1 | |
| Бетонирование в вертикальном положении (высота слоя бетонирования свыше 1,5 м) для мелкозернистого бетона | γb2 | 0,85 |
| Попеременное замораживание и оттаивание при температуре, °С: | γb3 |
|
| а) в водонасыщенном состоянии |
| |
| ниже минус 40 | 0,7 | |
| ниже минус 20 до минус 40 | 0,85 | |
| ниже минус 5 до минус 20 | 0,9 | |
| минус 5 и выше | 0,95 | |
| б) в условиях эпизодического водонасыщения |
| |
| ниже минус 40 | 0,9 | |
| минус 40 и выше | 1 | |
| Влияние двухосного сложного напряженного состояния сжатие-растяжение на прочность бетона при отношении напряжений: | γb4 |
|
| + 0 | 1 | |
| -0,5 | 0,9 | |
| -1 | 0,8 | |
| Эксплуатация не защищенных от солнечной радиации конструкций климатического подрайона IVA согласно СНиП 2.01.01-82 | γb5 | 0,85 |
| Стадия предварительного обжатия конструкций: | γb6 |
|
| а) с проволочной арматурой | 1,1 | |
| б) со стержневой арматурой | 1,2 | |
| Бетон для замоноличивания стыков элементов при толщине шва менее 1/5 наименьшего размера сечения элемента и менее 10 см | γb7 | 1,15 |
| * При введении дополнительного коэффициента условий работы, связанного с учетом особых нагрузок согласно указаниям соответствующих нормативных документов (например, при учете сейсмических нагрузок), принимается γb1 = 1. Примечания: 1. Коэффициенты условий работы бетона по поз. 1, 3, 5 должны учитываться при определении расчетных сопротивлений Rb и Rbt, по поз. 4 - при определении Rbt, ser, а по остальным позициям - только при определении Rb. 2. Для конструкций, находящихся под действием многократно повторяющейся нагрузки, коэффициент γb1 учитывается при расчете прочности. 3. При расчете конструкций в стадии предварительного обжатия коэффициент γb1 не учитывается. 4. Коэффициенты условий работы бетона вводятся независимо друг от друга, но при этом их произведение должно быть не менее 0,45. 5. Для мелкозернистого бетона в армоцементных конструкциях коэффициент условий работы бетона γb8 принимается по специальным экспериментальным данным, но не более чем значение коэффициента γb1 для тяжелого бетона по табл. 16 СНиП 2.03.01-84 . | ||
Таблица 10
| Начальные модули упругости бетона при сжатии и растяжении Eb×10-3 при классе бетона | |||||||||
| В20 | В25 | В30 | В35 | В40 | В45 | В50 | В55 | В60 | |
| Мелкозернистый, группы: |
|
|
|
|
|
|
|
|
|
| А - естественного твердения | 22 224 | 24 245 | 26,0 265 | 27,5 280 | 28,5 290 | - | - | - | - |
| подвергнутый тепловой обработке при атмосферном давлении | 20 201 | 21,5 219 | 23 235 | 24 245 | 24,5 250 | - | - | - | - |
| Б - естественного твердения | 20 201 | 21,5 219 | 23 235 | - | - | - | - | - | - |
| подвергнутый тепловой обработке при атмосферном давлении | 17,5 178 | 19 191 | 20,5 209 | - | - | - | - | - | - |
| В - подвергнутый автоклавной обработке | 18 181 | 19,5 190 | 21 214 | 22 224 | 23 235 | 23,5 240 | 21 245 | 24,5 250 | 25 255 |
| Примечания: 1. Над чертой указаны значения в МПа, под чертой - в кгс/см2. 2. Группы мелкозернистого бетона приведены в п. 2.2. 3. Для напрягающего бетона значения Eb принимают, как для тяжелого бетона, с умножением на коэффициент α = 0,56 + 0,006 В. | |||||||||
2.15 (2.14). Для армирования армоцементныхконструкций необходимо применять:
а)тканые сетки по ГОСТ3826-82;
б)плетеные сетки по ГОСТ2715-75*;
в)тарные сетки по ТУ 14-4-713-76;
г)стержневую и проволочную арматуру в соответствии с указаниями СНиП 2.03.01-84.
2.16 (2.15). Рекомендуемый сортамент тканых исварных сеток приведен в табл. 1 прил. 1.
Примечание.Плетеные сети по ГОСТ2715-75* допускается применять в качестве конструктивной арматуры.
2.17 (2.16). Выбор стержневой и проволочнойарматуры в зависимости от типа конструкции, наличия предварительногонапряжения, условий воздействия и эксплуатации, а также выбор марок стали длязакладных деталей следует производить в соответствии с указаниями СНиП 2.03.01-84.
2.18 (2.17). Нормативные сопротивлениястержневой и проволочной арматуры Rsn, атакже коэффициенты условий работы арматуры должны приниматься согласно СНиП 2.03.01-84.
Расчетныесопротивления арматуры растяжению Rs для предельных состояний первой и второйгрупп следует принимать согласно СНиП 2.03.01-84. Расчетныесопротивления стержневой и проволочной арматуры сжатию, используемые прирасчете армоцементных конструкций по предельным состояниям первой группы Rsc, принимаются равными соответствующим расчетнымсопротивлениям арматуры растяжению Rs, ноне более 390 МПа.
2.21 (2.18). За нормативное сопротивлениепроволоки сеток принимается наименьшее значение условного предела текучести,соответствующего остаточному относительному удлинению 0,2 % и принимаемогоравным 0,8 временного сопротивления разрыву проволоки сеток. Допускаетсянормативное сопротивление проволок тканых и сварных сеток Rm, serпринимать равным 245 МПа (2500 кгс/см).
2.22 (2.19). Расчетное сопротивление сетокрастяжению для предельных состояний первой и второй групп определяется делениемнормативного сопротивления на коэффициент безопасности по материалу сеток,равный для предельных состояний первой группы 1,1.
2.23. Значениярасчетных сопротивлений сеток растяжению для предельных состояний первой группыRmи Rmω, а также сжатию Rmc, с учетом коэффициента условий работы 1,1,следует принимать по табл. 11, используемых при расчете по предельнымсостояниям первой группы.
Расчетноесопротивление сеток сжатию, используемое при расчете конструкций по предельнымсостояниям первой группы Rmc, принимается равным расчетномусопротивлению растяжения для предельных состояний первой группы Rm.
Расчетноесопротивление сеток сжатию Rmc,приведенное в табл. 11, необходимо дополнительно умножать накоэффициент условия работы сеток γm2,принимаемый в зависимости от коэффициента сетчатого армирования сжатой зоныэлемента по табл. 12.
2.24 (2.21). Расчетное сопротивление сеток вэлементах, подвергающихся воздействию многократно повторяющихся нагрузок,следует принимать с коэффициентом условий работы по СНиП 2.03.01-84 как дляарматуры класса А-II.
2.25 (2.22).Модуль упругости сеток Emследует приниматьравным 150000 МПа (1500000 кгс/см2), а модуль упругости стержневой и проволочной арматуры Es - согласно требованиям СНиП 2.03.01-84 .
Таблица 11
| Расчетные сопротивления сеток для предельных состояний первой группы | ||||
| Диаметр проволоки, мм | растяжению | сжатию R'mc | ||
| продольных проволок; поперечных проволок при расчете наклонных сечений на действие изгибающего момента Rm | поперечных проволок при расчете наклонных сечений на действие поперечной силы Rmω | |||
| Тканая по ГОСТ 3826-82 * | 0,7 |
|
|
|
| 1 |
|
|
| |
| 1,1 |
|
|
| |
| 1,2 | 245 2500 | 206 2100 | 245 2500 | |
| Сварная по ТУ 14-4-713-76 | 0,5 |
|
|
|
| Примечание. Над чертой указаны значения в МПа, под чертой - в кгс/см2. | ||||
Таблица 12
| Коэффициент γm2 | |
| Менее 0,015 | 1 |
| 0,015 - 0,025 | 0,75 |
2.26 (2.23).Длину зоны передачи напряжения lpдля напрягаемойарматуры без анкеров следует определять согласно указаниям СНиП. 2.03.01-84 .
3.1 (3.1).Расчет элементов армоцементных конструкций по прочности должен производитьсядля сечений, нормальных к продольной оси, а также для наклонных к ней сеченийнаиболее опасногонаправления. Кроме того, необходимо выполнить расчет указанных элементов наместное действие нагрузки (смятие и продавливание).
Расчетэлементов армоцементных конструкций на местное действие нагрузки следуетпроизводить в соответствии с требованиями СНиП 2.03.01-84.
3.2 (3.2).Сетки, а также ненапрягаемую и напрягаемую стержневую или продольную арматуру,если расстояние между стержнями арматуры не превышает 10t (t -толщина рассматриваемого сечения), при расчете по прочности сеченийармоцементных конструкций следует принимать равномерно распределенными посечению элемента с коэффициентом приведенного армирования, определяемым поформулам:
длярастянутой зоны
μm1= μm+ μsRs/Rm+ μspRsp/Rm; (3)
длясжатой зоны
μ'm1 = μ'm + μ'sRsc/Rmc + μ'spRspc/Rmc, (4)
где μm,μ'm- коэффициенты сетчатого армирования, равные:
μm = Am/t; μ'm = A'm/t, (5)
μs,μ's- коэффициенты армирования стержневой и проволочной арматурой, равные:
μs= As1/A; μ's = A's1/A, (6)
μsp,μ'sp - коэффициенты армирования преднапряженнойарматурой:
μsp= Ap1/A; μ'sp1= A'sp1/A, (7)
Am,A'm- площади сечения сеток на единицу длины соответственно в растянутой и сжатойзонах; As1, A's1- площади сечения ненапрягаемой стержневой арматуры на данном участкепоперечного сечения элемента соответственно в растянутой и сжатой зонах; Rs, Rsp -расчетные сопротивления арматуры соответственно обычной и преднапряженнойрастяжению; Asp1, A'sp1 - площади сечения напрягаемой арматурысоответственно в растянутой и сжатой зонах; Rsc,Rspc - расчетные сопротивления арматурысоответственно обычной и преднапряженной сжатию; A -площадь поперечного сечения на данном участке; t- толщина элемента на рассматриваемом участке сечения.
Научастках сечения, где расстояния между арматурными стержнями свыше 10t, усилия в стержневой и проволочнойарматуре должны учитываться для каждого стержня раздельно.
3.3 (3.3).Предельные усилия в сечении, нормальном к продольной оси элемента, определяютсяисходя из следующих предпосылок (рис. 17):
Рис.17. Схема внутренних усилий и эпюра напряжений в сечении, нормальном кпродольной оси элемента, при расчете на прочность
1 - сетки; 2 - стержневая или проволочнаяарматура, приведенная к равномерному распределению по сечению элемента; 3- сосредоточенная стержневая и проволочная арматура
сопротивлениебетона растяжению принимается равным нулю;
сопротивлениебетона сжатию выражается напряжениями, равными Rb,равномерно распределенными по сжатой зоне бетона;
напряженияв арматуре, расположенной в сжатой зоне бетона, принимаются постоянными и неболее Rmc, Rsc, Rpc;
растягивающиенапряжения в арматуре принимаются постоянными по высоте растянутой зоны сеченияи не более Rm, Rs,Rsp.
3.4 (3.1). Расчет сечений, нормальных к продольной оси элемента, когдавнешняя сила действует в плоскости оси симметрии, должен производиться в зависимостиот значения относительной высоты сжатой зоны бетона ξ = x/h,определяемого из условия равновесия и граничного значения относительной высотысжатой зоны бетона ξR, при которомпредельное состояние элемента наступает одновременно с достижением в растянутыхсетках и в стержневой или проволочной арматуре напряжений, равных расчетнымсопротивлениям.
3.5. Значение ξR определяется по формуле
где ω -характеристика сжатой зоны бетона, определяемая для армоцементных конструкциймелкозернистого бетона по формуле
ω = 0,7 - 0,008Rb. (9)
Характеристикусжатой зоны мелкозернистого бетона ω для внецентренно сжатых армоцементныхэлементов с толщиной полки менее 0,04 м следует принимать
ω = 0,5 -0,008Rb,
Rb -принимается в МПа; σs - напряжение варматуре, МПа, принимаемое равным: для сеток Rm; для стержневой и проволочной арматуры классов:А-I,А-II,А-III,А-IIIв,Вр-I- (Rs - σsp);А-IV,А-V,А-VI,В-II,Вр-II,К-7 и К-19 - (Rs + 400 - σsp- Δσsp); В-II, Вр-II, К-7, К-19 - (Rs+ 400 - σsp);Rs - расчетное сопротивление растяжениюстержневой и проволочной арматуры с учетом соответствующих коэффициентовусловий работы арматуры γsi принимается по СНиП 2.03.01-84;σsp - определяется прикоэффициенте γp< 1 согласно указаниям СНиП 2.03.01-84; Δσsp- принимается по СНиП2.03.01-84; σsc, u- предельное напряжение в арматуре сжатой зоны, принимаемое при γb1≥ 1 (см поз. 1 табл. 9) равным 400 МПа, а для элементов измелкозернистого бетона, если учитывается коэффициент γb1< 1 - равным 500 МПа. При расчете элементов в стадии обжатия значение σsc,u принимается равным 330МПа.
3.6 (3.6). Для напрягаемой арматуры, имеющей сцепление с бетоном ирасположенной в зоне, сжатой от действия внешних усилий, расчетноесопротивление арматуры сжатию Rsc должнобыть заменено напряжением σsc согласноСНиП 2.03.01-84.
3.7. Расчет прямоугольных сечений с арматурой,приведенной к равномерно распределенной по сечению элемента (см. п. 3.2),когда внешняя сила действует в плоскости оси симметрии сечения (рис. 18)при ξ = x/h< ξR, должен производиться из условия
M≤ Rmμm1Ath/2, (10)
при этом высота сжатойзоны x определяется по формуле
x= Rmμmh/(Rc1 + Rmμm1), (11)
где At = (h - x)b,
Rc1 = Rb + μ'm1Rcm, (12)
μm1- принимается согласно п. 3.1.
3.8. Расчетпрямоугольных сечений, в которых наряду с арматурой, приведенной к равномернораспределенной (см. п. 3.2), имеется стержневая и проволочная арматура,сосредоточенная у растянутой и сжатой граней сечения (рис. 19), при ξ = x/h≤ ξRдолжен производиться из условия
M ≤ Rc1Ac(h- x/2 - a) - RscA'c(h - a- a') - Rmμm1At[(h- x)/2 - a], (13)
где Ac = xb,
при этом высотасжатой зоны бетона определяется по формуле
x = (Rmμm1At - RscA'c + RsAs)/[(Rc1 + Rmμ'm1)b], (14)
где Rc1 = Rb + Rmcμ'm1;
At = (h- x)b,
μm1- принимается согласно п. 3.2.
3.9. Расчет двутавровых сечений с арматурой,приведенной к равномерно распределенной (см. п. 32),имеющих полку в сжатой зоне,при ξ = x/h £ ξR должен производиться в зависимости отположения границы сжатой зоны бетона:
а)если граница сжатой зоны проходит в полке (рис. 20), т.е. соблюдается условие
Rc1Afc ≥ Rmμmf1Af + Rmμmω1Aωt, (15)
расчет долженпроизводиться по формуле
M≤ Rmμmf1Aft[h- (tf + t'f)/2] + Rmμmω1Aω(hω + t'f)/2; (16)
б)если граница сжатой зоны проходит в ребре (рис. 21),т.е. условие (15) не соблюдается, расчетпроизводится по формуле
M≤ Rcf1Afc[h- (tf + t'f)/2] + Rcω1Aωc[h- (x + tf)/2] - Rmμmω1Aωt(h- x)/2. (17)
Высотасжатой зоны x определяетсяиз условия
Rcf1Afc + Rcω1Aωc = Rmμmf1At + Rmμmω1Amωt. (18)
Rcf1= Rb + Rmcμmf1;
Rcω1= Rb + Rmcμmω1;Afc = b'ft'f;
Aft = bftf;Aω = tωhω;
Aωc = (x - t'f)tω; Aωt = (h - x - tf)tω.
Коэффициентприведенного армирования стенки μmω1сжатой полки μ'mf1и растянутой полки μmf1принимаются в соответствии с п. 3.2.
3.10. Расчет тавровых сечений с полкой в сжатойзоне или приведенных к тавровым сечениям, в которых наряду с арматурой,приведенной к равномерно распределенной, имеется стержневая или проволочнаяарматура в растянутой зоне, при ξ = x/h≤ ξR следует выполнять в зависимости от высотысжатой зоны бетона:

Рис.18. Схема усилий и эпюра напряжений в изгибаемых элементах прямоугольногосечения
а -при b > h; б - при b < h; 1 - сетки; 2 - стержневая или проволочнаяарматура, приведенная к равномерно распределенной по сечению элемента
Рис. 19. Схема усилий и эпюра напряжений визгибаемых элементах прямоугольного сеченияс сосредоточенной стержневой ипроволочной арматурой
1 - сетки; 2- стержневая или проволочная арматура, приведенная к равномерно распределеннойпо сечению элемента; 3 - сосредоточеннаястержневая или проволочная арматура
Рис.20. Схема усилий и эпюра напряжений в изгибаемых элементах двутаврового сеченияпри x ≤ t'f
1 -сетки; 2 - стержневая ипроволочная арматура, приведенная к равномерно распределенной по сечению
Рис.21. Схема усилий и эпюра напряжений в изгибаемых элементах двутаврового сеченияпри x > t'f
1 - тонкие сетки;2 - стержневая илипроволочная арматура, приведенная к равномерно распределенной по сечению
а)если сжатая зона находится в пределах полки (рис. 22), т.е. соблюдается условие
Rcf1Acf ≥ Rmμmω1Aω + RsAs (19)
прочность сеченияопределяется из условия
M ≤ Rmμmω1Aω(hω+ t'f)/2+ RsAs(h - t'f/2- a); (20)
Рис.22. Схема усилий и эпюра напряжений в изгибаемых элементах таврового сечения сполкой в сжатой зоне при x ≤ t'f
1 - тонкие сетки;2 - стержневая или проволочная арматура, приведенная к равномернораспределенной по сечению элемента; 3 - сосредоточенная стержневая или проволочная арматура
Рис.23. Схема усилий и эпюра напряжений в изгибаемых элементах таврового сечения сполкой в сжатой зоне при x > t'f
1 - тонкие сетки;2 - стержневая или проволочная арматура, приведенная к равномернораспределенной по сечению элемента; 3 - сосредоточенная стержневая или проволочная арматура
б)если граница сжатой зоны выходит за пределы полки (рис. 23), т.е. условие (19) невыполняется, прочность сечения определяется из условия
M ≤ Rcf1Acf[h - t'f/2- a] + Rcω1Acω[h - (x+ t'f)/2 + a] - Rmμmω1Aωt[(h - x)/2 - a], (21)
при этом высота сжатойзоны x определяется из условия
Rcf1Acf + Rω1Aωc = Rmμmω1Aωt + RsAs. (22)
Rcω1= Rb + Rmcμmω1;
Afc= b'ft'f;Aω= tωhω;
Aωc = (x - t'f)tω;
Aωt = (h - x)tω.
Коэффициентыприведенного армирования сжатой полки μ'mf1, μmf1,μmω1принимаются согласно п. 3.2.
Рис.24. Схема кольцевого сечения, принимаемая в расчете по прочности армоцементныхэлементов
3.11 (3.11). Ширина сжатой полки b'fтавровых и двутавровых сечений, вводимая в расчет в соответствии с пп. 3.9 и 3.10,принимается из условия, что ширина свободного свеса в каждую сторону от ребрадолжна быть не более 1/6 пролета элемента и не более:
а)1/2 расстояния в свету между продольными ребрами при наличии поперечных ребер;
б)t'fпри отсутствии поперечных ребер или при расстоянии между ними большими, чемрасстояние между продольными ребрами, при t'f ≤ 0,1h;
в)6t'f1при t'f ≥ 0,1h;
3t'f при0,05tf < t'f< 0,1h.
3.12 (3.12).Расчет кольцевых сечений (рис. 24)должен производиться:
а)при Rmμmr1>0,38Rcr1
из условия
где Rcr1= Rb + Rmcμmr1;Ar = 2πrmtω;
αr = Rmμmr1/(Rb + 3,35Rmμmr1), (24)
здесь rm -радиус срединной поверхности стенки кольцевого элемента, равный:
rm = (ri+ re)/2, (25)
re, ri - радиусысоответственно наружной и внутренней граней кольцевого сечения;
μmr1- коэффициент приведенного армирования кольцевого сечения, определяемый всоответствии с п. 3.3;
б)при Rmμmr1<0,38Rcr1
из условия
αr= 0,73Rmμmr1/(Rb+ 2Rmμmr1); (27)
Rcr1= Rb + R'mcμ'mr1. (28)
3.13(3.13). При расчете по прочности изгибаемых элементовармоцементных конструкций рекомендуется соблюдать условие x ≤ ξRh.
Вслучае когда площадь сечения растянутой арматуры по конструктивным соображениямили из расчета по продельным состояниям второй группы принята большей, чем этотребуется для соблюдения условия x≤ξRh,расчет следует производить по формулам (10), (13), (17), (20), (21), принимая x = ξRh.
Пример1.
Дано. Прямоугольное сечение армоцементногоэлемента (рис. 25)с размерами h = 300 мм и b= 90 мм находится под действием изгибающего момента M= 0,3 кН×м. Элемент выполнен из бетона класса В20 иармируется ткаными сетками № 7-07 по ГОСТ3826-82* в количестве восьми слоев, равномерно распределенных по сечению.
Требуетсяпроверить прочность нормального течения.
Рис.25. Схема усилий и эпюра приведенных напряжений в изгибаемом элементепрямоугольного сечения, армированного ткаными сетками
Расчет. В соответствии с п. 3.2 и данным табл. 1 прил. 1определяем коэффициент сетчатого армирования μ при одной сетке на 1 смтолщины сечения элемента μ= 0,0050; тогда коэффициент армирования элемента при восьми слоях сетки будет μm= 8μ/b= 8×0,0050/9= 0,004.
Всоответствии с п. 3.7 прочность прямоугольного сечения с арматурой,приведенной к равномерно распределенной по сечению, проверяем по условию (10), авысоту сжатой зоны определяем по формуле (11)
x= Rmμm1h/(Rc1+ Rmμm1),
где Rm = 245 МПа (табл. 11); Rb = 10,5 МПа (табл. 7) при γb1= 0,9 (табл. 9)
позависимости (12)
Rc1 = Rb + μmRmc = 10,5 + 0,004×245= 11,18 МПа.
Тогдаx= 245×0,004×30/(11,48+ 245×0,004)= 2,4 см. Прочность сечения определяем из условия (10)
M≤ RmμmAth/2,
где At= (h - x)b= (300 - 24)90 = 24840 мм2, тогда M≤ 245×0,004×24840×300/2= 365148 Н×мм.
Прочностьэлемента обеспечена, так как M = 0,365 кН×м> 0,3 кН×м. Проверяем условие ξ = x/h≤ ξR.
Поформуле (8)

где по формуле (9) ω = 0,7 - 0,008Rb = 0,7 - 0,008×10,35= 0,617, тогда ξR= 0,617/[1 + 245/500(1 - 0,617/1,1)] = 0,507.
Предельноеотношение высоты сжатой зоны будет равно:
ξ = 2,4/300= 0,08 < 0,507.
Условиеудовлетворяется.
Пример2.
Дано. Поперечное сечение армоцементнойскладчатой панели (рис. 26), изгибающий момент M= 12,56 кН×м. Приведенное сечение складки приведенона рис. 26,б.
Панельизготовлена из мелкозернистого бетона класса В40. Прочность бетона панели Rb= 22 МПа. Складчатая панель армируется:
двумяслоями сварных сеток для армоцемента № 12,5-0,5 по ТУ 14-4-713-76; коэффициентармирования при толщине стенки 20 мм μm= 0,0014;
ненапрягаемойарматурой в виде стальной низкоуглеродистой холоднотянутой проволоки класса Вр-I диаметром 3 мм (As= 4×0,0707= 0,2828 см2);
напрягаемойарматурой из высокопрочной проволоки Вр-II диаметром 4 мм (Asp= 4×12,56= 50,24 мм2).
Расчетныеи нормативные характеристики:
сварнойсетки для армоцемента Rm= 245 МПа - табл. 11;
мелкозернистогобетона Rb= 22 МПа - табл. 7;
сварныхсеток из стальной низкоуглеродистой холоднотянутой проволоки класса Вр-I, по СНиП 2.03.01-84Rs= 375 МПа;
высокопрочнойпроволоки класса Вр-II Rs= 1180 МПа.
Требуетсяпроверить прочность приведенного двутаврового сечения, нормального к продольнойоси.
Расчетпроизводится в зависимости от относительной высоты сжатой зоны бетона ξ = x/h.
Рис.26. Сечение предварительно напряженной складчатой армоцементной панели покрытия
а -сечение панели; б - расчетноесечение
Определяемграничное значение относительной высоты сжатой зоны бетона по формуле (8)

где ω -характеристика сжатой зоны бетона, определяется для армоцементных конструкцийиз мелкозернистого бетона по формуле (9):
ω = 0,7 -0,008Rb= 0,7 - 0,008×22 = 0,524.
Значениепредварительного напряжения в проволочной арматуре Вр-II принимаем σsp= 1062 МПа, тогда σs= 1180 + 400 - 1062 = 518 МПа, а σsc,u принимаем по СНиП 2.03.01-84равным 500 МПа. После подстановки
ξR= 0,524/[1 + 518/500(1 - 0,524/1,1)] = 0,524/1,545 = 0,34.
Определяемкоэффициенты армирования:
сжатойполки сварными сетками и стальной низкоуглеродистой холоднотянутой проволоки
μ'st= Ast/(t'fb'f) = 28,28 :250 : 20 = 0,00566;
растянутойполки - высокопрочной проволокой
μs= 50,24/(740×20)= 0,0038.
Всоответствии с п. 3.2 определяем коэффициенты приведенногоармирования:
верхний(сжатой) полки
μ'mf1= μm+ μsRsc/Rmc= 0,0014 + 0,00566×375 : 245 = 0,01;
растянутойполки
μmf1= μm+ μpRps/Rmc= 0,0014 + 0,0038×1180: 245 = 0,0197;
Приведеннаятолщина вертикальной сетки tω = t/sin 45° = 20×2/0,7= 56 мм.
μmω1= 0,0014.
Дляопределения положения нейтральной оси проверяем условие (15):
Rc1Acf > Rmμmf1Aft+ Rmμmω1Aωt;
Rc1Acf = (22 + 245×0,01)250×20= 122500 Н > Rmμmf1Aft+ Rmμmω1Aωt= 245×0,0014×240×56+ 245×0,0197×20×740= 117495,1 Н.
Таккак 122500 > 117495,1, условие (15) соблюдается, нейтральнаяось проходит в пределах верхней полки.
Принимаяx = t'f, условие предельной высоты сжатой зоны такжевыполняется, так как
ξ = x/h= 20/280 = 0,07 и ξR = 0,33.
Пользуясьформулой (16),определяем несущую способность сечения
M≤ Rmμmf1Aft[h- (tf + t'f)/2]+ Rmμmω1Aω(hω + t'f)/2 = 245×0,0197×740×20[280- (20 + 20) : 2] + 245×0,0014×56×240(240+ 20) : 2 = 19,122 кН×м.
Mp= 12,56 кН×м < M= 19,122 кН×м. Прочность нормального сеченияскладчатой панели обеспечена.
Пример3.
Дано. Элемент таврового сечения с размерами b'f= 250 мм; t'f= 20 мм; tω = 30мм; a = 20 мм; h= 600 мм (рис. 27).Бетон мелкозернистый класса В40 (Rb= 19,8 МПа).
Арматура:две тканые сетки № 10-1 ГОСТ3826-82*; стержневая арматура класса Вр-I; Æ= 3 мм; Rs = 375 МПа; шаг - 100мм; сосредоточенная стержневая арматура класса A-III; Rs= 365 МПа; два стержня диаметром 10 мм. Изгибающий момент M= 50 кН×м.
Требуетсяпроверить прочность сечения.
Рис.27. Сечение таврового элемента
1 - сетки № 12,5 по ТУ 14-4-713-76; 2- стержневая арматура класса А-III
Расчет. Проверку прочности сечения производим согласноп. 3.10из выражения (19)
Rcf1Acf≥ Rmμmω1Aω + RsAs.
Определяем,проходит ли нейтральная ось в полке или в стенке. Определяем коэффициентыприведенного армирования согласно (п. 3.2). Коэффициенты армированиястержневой арматурой равны:
μs = As/Abf = 7,068 : (20×100) = 0,0035;
μsω= As/Abω = 7,068 : (30×100) = 0,0024.
Коэффициентыармирования, пользуясь данными табл. 1 прил. 1, при двух сетках в полкетолщиной 20 мм равны: μmf =0,0071 и в двух сетках в стенке толщиной 30 мм μmω= 0,0047.
Тогдаприведенные коэффициенты армирования:
μmf1= μmf+ μsRs/Rm= 0,0071 + 0,0035×365 : 245 = 0,0123;
μmω1= μmω+ μsωRs/Rm= 0,0047 + 0,0024×365: 245 = 0,0083.
Приведеннаяпрочность сжатой полки
Rcf1= Rb + Rmcμmf1 = 19,8 + 245×0,0123 = 22,313.
Сечениесжатой полки равно:
Acf= b'ft'f= 250×20= 5000 мм2,
авертикальной стенки равно:
Aω = tωhω = 580×30= 17400 мм2.
Площадьстержневой арматуры
As= 2×78,50= 157 мм2.
Послеподстановки полученных величин в выражение (19) получаем 22,813×5000> 245×0,0123×17400+ 365×15700,т.е. граница сжатой зоны пересекает вертикальную стенку.
Прочностьсечения определяем из выражения (21)
M ≤ Rcf1Acf[h - t'f/2 - a] + Rcω1Aωchω - (x - 2a + t'f)/2- Rmμmω1Aωt[(h - x)/2- a].
Определяемприведенную прочность сжатой части стенки
Rcω1= Rb+ Rmcμmω1= 19,8 + 245×0,0083 = 21,83 МПа.
Высотусжатой зоны x определяемиз условия (22)
Rcf1Afc+ Rcω1Aωc= Rmμmω1Aωt+ RsAs.
Послеподстановки
22,813×5000+ 21,82×30x = 245×0,0083(17400- 30x)+ 365×157.
Тогдаx= 47,1 мм, а отношение к высоте сечения
ξ = x/h= 47,1/600 = 0,079; ξ < ξR= 0,37.
Выполняяподстановку полученных величин в выражение (21), получаем
M= 22,83×5000(600 - 20/2 - 20) + 21,813×27,1[580- (47,1 - 2×20 + 20)/2] - 245×0,0083×17400[(600- 47,1)/2 - 20]10-6 = 56,165 кН×м.
Посколькурасчетный изгибающий момент в сечении превышает внешний изгибающий момент M= 56,2 кН×м>50 кН×м, прочность сеченияобеспечена.
Пример4.
Дано. Элемент двутаврового сечения с размерами b'f= 800 мм; t'f= 20 мм; h = 300 мм; tω = 40 мм; tf= 20 мм; bf = 1000 мм; бетонмелкозернистый класса В25 (при γb1= 0,9, Rb = 13,05 МПа); арматуракласса Вр-I; Æ = 5 мм; шаг - 150 мм; Rs= 360 МПа; сетка тканая № 10-1; Rm = 245 МПа; коэффициентсетчатого армирования при одной сетке на 1 см μm= 0,0071. Изгибающий момент M = 9 кН×м.Требуется проверить прочность сечения.
Расчет. Расчет ведем согласно указаниям п. 3.9.Предварительно согласно п. 3.2 определяем коэффициент приведенногоармирования
μm1= μm + μsRs/Rm,
где коэффициентармирования проволочной арматурой верхней и нижней полки
μs= As/Ab = 19,63 : (20×150) = 0,00654.
Коэффициентармирования проволочной арматурой стенки
μs= As/Ab = 19,53 : (40×150) = 0,0033.
Тогда:
μ'm1= μ'm + μ'sRs/Rm = 0,0071 + 0,00654×360 : 245 = 0,0167;
μmω1= μm + μsRs/Rm = 0,0071×0,5 + 0,0033×360 : 245 = 0,0083;
μmf1= μm + μsRs/Rm = 0,0071 + 0,00654×360 : 245 = 0,0167.
Определяемпредельное отношение высоты сжатой зоны из выражения (8)
.
Длямелкозернистого бетона из выражения (9):
ωn= 0,7 - 0,008Rb = 0,7 -0,008×13,05 = 0,596;
ξR= 0,596/[1 + 360/500(1 - 0,596/1,1)] = 0,448.
Высотусжатой зоны x определяемиз условия (18)
Rcf1Afc+ Rcω1Aωc= Rmμmf1Aft+ Rmμmω1Aωt.
Вычислимвеличины, входящие в это выражение с использованием п. 3.9:
Rcf1= Rb+ Rmcμmf1= 13,05 + 245×0,0167 = 16,92 МПа;
Rcω1= Rb+ Rmcμmω1= 13,05 + 245×0,083 = 15,08 МПа;
Acf= b'ft'f= 800×20= 1600 мм2;
Aft = bftf= 1000×20 = 20000 мм2;
Aω = hωfω = (300 - 20 - 20)40 =10400 мм2;
Aωc = (x - t'f)tω= (x - 20)40 = 40x - 800;
Aωt = (h - x- tf)tω = (300 - x - 20)40 = 12000 - 40x - 800 = 11200 - 40x.
Полученныевеличины подставляем в выражение (18):
16,92×1600+ 15,08(40x- 800) = 245×0,0167×20000+ 245×0,0083(11200- 40x).
Высотасжатой зоны x= 131 мм. Проверяем отношение ξ = 0,44 < ξR= 0,448. Граница сжатой зоны проходит в ребре двутаврового сечения, и всоответствии с п. 3.9 прочность сечения определяем по формуле (17)
M≤ Rcf1Afc[h- (tf + t'f)/2]+ Rcω1Aωc[h- (x + tf)/2]- Rmμω1Aωt(h- x)/2;
после подстановки
M≤ 16,92×1600[300 - (20 + 20)/2] + 15,08×4440[30- (131 + 20)/2] - 245×0,0083×5960(300- 131)/2 = 9,60×106 Н×мм.
Таккак расчетный момент в сечении M = 9,6 кН×м>M = 9 кН×м,прочность сечения обеспечена.
Дано. Элемент кольцевого сечения с наружнымрадиусом re = 300 мм и внутреннимрадиусом ri = 260 мм, бетон классаВ25 (Rb= 13,05 МПа, при γb1= 0,9), армирование равномерное по периметру двумя сетками ткаными № 10-1; Rm= 245 МПа; шаг - 100 мм; класс Вр-I; Æ= 5 мм; Rs= 360 МПа. Расчетный изгибающий момент M= 40 кН×м. Коэффициентармирования при одной сетке на 1 см μm= 0,0071. Требуется проверить прочность сечения.
Расчет. Проверяем условие Rmμmr1 < 0,38Rcr1.
Rcr1= Rb+ R'mcμ'mr1 = 13,05 + 245×0,0215= 18,32 МПа;
μmr1= μm+ μsRs/Rm= 0,0071 + 0,00981×360 : 245 = 0,0215;
μs= As/Ab = 19,63 : (20×100) = 0,00981;
245×0,0215< 0,38×18,32.
Послеподстановки 5,268 < 6,961, т.е. условие выполнено. Прочность сеченияопределяем из формулы (26)
![]()
αr= 0,73Rmμmr1/(Rb+ 2Rmμmr1)=0,73×245×0,0215: (13,05 + 2×245×0,0215)= 0,163039.
Радиуссрединной поверхности
rm= (ri + re)/2= (260 + 300) : 2 = 280 мм,
площадь кольцевогосечения Ar = 2πmrmtω= 35168 мм2. Прочность кольцевого сечения
M≤ 35168[18,32sin180×0,16304/3,14+ 0,234×245×0,0229]280= 41050200 Н×мм.
ПосколькуM = 10 кН×м<41,05 кН×м, прочность кольцевогосечения обеспечена.
Пример6.
Дано. Элемент кольцевого сечения с наружнымрадиусом rc = 300 мм и внутренним радиусом ri= 260 мм, бетоном класса В20 (Rb= 10,5 МПа при γb1= 0,9) и с армированием, равномерно распределенным по периметру, выполненнымдвумя сетками № 10-1; коэффициент армирования μm= 0,0071 при одной сетке на 1 см (см. табл. 1 прил. 1); проволока класса Вр-I; Æ= 5 мм; шаг - 50 мм; Rs = 375МПа. Расчетный изгибающий момент равен 75,5 кН×м.Требуется проверить прочность сечения.
Расчет. Проверяем условие Rmμmr1< 0,38Rcr1.Вычисляем коэффициент армирования проволочной арматурой μs= As/Ab= 19,63/20×50 = 0,01963; приведенный коэффициентармирования
μmr1= μm+ μsRs/Rm= 0,0071 + 0,01963×375 : 245 = 0,03715.
Приведенная расчетнаяпрочность полки на сжатие
Rcr1= Rb+ Rmcμmr1= 10,5 + 245×0,03715 = 19,6 МПа.
После подстановкиполучаем 245×0,03715 < 0,38×19,6,или 9,102 > 7,448, т.е. условие выполнено. Прочность кольцевого сеченияопределяем по формуле (23). Из выражения (24) определяем коэффициент αr:
αr= Rmμmr1/(Rb+ 3,35Rmμmr1)= 245×0,03715: (10,5 + 3,35×245×0,03715)= 0,3064.
Изпримера 5радиус срединной поверхности кольцевого сечения rm= 280 мм, а площадь кольцевого сечения Ar= 35168 мм2.
Прочностькольцевого сечения по формуле (23)
35168[19,6(sin180×0,3064: 3,14) + 245×0,03715(1- 1,35×0,3064)1,6×0,3064]280= 75674502 Н×мм.
Посколькурасчетный момент по прочности в кольцевом сечении M= 75,67 кН×м>M = 75,5 кН×м,прочность кольцевого сечения обеспечена.
3.15. При расчете внецентренно сжатых элементовнеобходимо учитывать случайный эксцентриситет ea, обусловленный не учтенными в расчетефакторами, в том числе неоднородностью свойств бетона по сечению элемента, атакже влияние прогиба на их несущую способность. Значение ea следуетпринимать не менее 1/600 всей длины элемента или длины его части между точкамизакрепления элементов, учитываемой в расчете 1/30 высоты сечения элемента.
Дляэлементов статически неопределимых конструкций величина эксцентриситетапродольной силы относительно центра тяжести приведенного сечения e0принимается равной эксцентриситету, полученному из статического расчетаконструкции, но не менее ea.
Расчетвнецентренно сжатых элементов должен производиться с учетом влияния прогибаэлемента как в плоскости изгиба, так и в нормальной к ней плоскости. Впоследнем случае принимается, что продольная сила приложена с эксцентриситетом e0 не менее случайного эксцентриситета ea.
3.16. Влияние прогиба на величинуэксцентриситета продольного усилия следует учитывать, как правило, путемрасчета конструкций по деформированной схеме, принимая во внимание неупругиедеформации материала и наличие трещин.
Допускаетсяпроизводить расчет конструкции по недеформированной схеме, учитывая влияниепрогиба элемента путем умножения эксцентриситета ec накоэффициент η, определяемый по формуле
где Ncrt -условная критическая сила, определяемая для армоцементных элементов любой формысечения из мелкозернистого бетона по формуле СНиП 2.03.01-84.
Пригибкости элемента l0/r≤ 14 (для прямоугольных сечений при l0/h< 4) допускается принимать η = 1. При гибкости элемента в пределах 14≤ l0/r< 35 (4 < l0/h< 10) и μ ≤ 0,025 (здесь μ = (Am + A'm + As + A's)/Ab) допускается принимать:
дляпрямоугольных сечений
Ncrt = 0,15EbA/(l0/h)2; (30)
длядругих форм сечений
Ncrt = 2EbI/l02. (31)
Пригибкости l0/r> 35 (l0/h> 10) определение Ncrt следует производить поп. 3.24 СНиП 2.03.01-84. Приотношении N > Ncrt следуетувеличивать размеры сечения.
3.17. Расчет внецентренно сжатых элементовпрямоугольного сечения с арматурой, приведенной к равномерно распределенной(см. п. 3.2,рис. 18),следует выполнять:
а)при ξ = x/h≤ ξRиз условия
Nel ≤ Rmμm1At(h- x)/2 - Rc1Ac(h- x/2), (32)
при этом высота сжатойзоны x, определяется поформуле
RbS'b + RmcS'm1 - RmSm1= 0. (33)
el -расстояние от точки приложения продольной силы до растянутой грани сечения; Ac, At -площади сечений соответственно сжатой и растянутой зон сечения; S'b - статический моментплощади сжатой зоны бетона относительно точки приложения продольной силы N;S'm1- статический момент площади сжатой приведенной арматуры (см. п. 3.2)относительно той же точки; Sm1- статический момент площади растянутой приведенной арматуры относительно тойже точки;
б)при ξ = x/h> ξR из условия
N ≤ Nc - (Nc- Nin)[2ec/ein - (ec/ein)2], (34)
Nc - несущая способностьцентрально сжатого элемента, определяемого по формуле
Nc = Rc1A, (35)
здесь
Rc1 = Rb + Rmcμ'm1;A = bh,
Nin - несущая способностьсечения, в котором высота сжатой зоны бетона принимается равной x = ξRh иопределяется из выражения
Nin= Rc1bx - Rmμm1(h- x)b, (36)
ec -эксцентриситет продольной силы относительно центра тяжести приведенногосечения, равный eс = M/h;ein - эксцентриситетпродольной расчетной силы Nin, определяемый поформуле
ein= (Rc1Sc + RmSt)/Nin, (37)
Sc = bx(1 + hμm1)(h- x)/2,
St = bxμm1(h - x)/2.
3.18. Расчет внецентренно сжатых элементовтаврового и двутаврового сечений с арматурой, приведенной к равномернораспределенной (см. п. 3.2),следует производить:
а)при ξ = x/h≤ ξR,если x ≤ t'f(рис. 28),то из условия
N'e ≤ Rmμmω1Aω(hω + tf)/2 + Rmμmf1At[h - (tf + t'f)/2], (38)
высота сжатой зоныбетона определяется по формуле (33); если x> t'f (рис.29),то из условия
N≤ Rc1Afс- Rс1Aωc+ Rmμmω1Aωt- Rmμmf1Aft, (39)
где высота сжатой зоныопределяется по формуле (33);
б)при ξ = x/h> ξR по формуле (34),
где
Ne = Rc1Afc + Rω1Aω + Rf1Aft, (40)
здесь
Rс1= Rb+ Rmcμ'm1;
Rω1= Rb+ Rmcμmω1;
Rf1= Rb + Rmcμmf1;
при x < t'f
Nin = Rc1Abfc- Rmμmf1(Abω + Abft); (41)
при x> t'f
Nin= Rс1Abfc+ Rm1Abωc- Rmμmω1Abωt- Rmμmf1Aft; (42)
ein= (S*c + S*ω + S*t)/Nin, (43)
Рис.28. Схема усилий и эпюра напряжений во внецентренно сжатых элементахдвутаврового сечения при x ≤ t'f
1 - тонкие сетки;2 - стержневая илипроволочная арматура, приведенная к равномерно распределенной по сечениюэлемента
Рис.29. Схема усилий и эпюра напряжений во внецентренно сжатых элементахдвутаврового сечения при x > t'f
1 - тонкие сетки;2 - стержневая илипроволочная арматура, приведенная к равномерно распределенной по сечениюэлемента
здесь:
S*c = Rc1b'ft'f(h- yc - t'f/2);
S*ω = Rm1μmω1tωhω(yc- tf -hω/2);
S*t = Rm1μmf1bftf(yc- tf/2);
yc -расстояние от центра тяжести приведенного сечения до растянутой или менеесжатой грани; при x> t'f
ein= (S*c + S*ωc+ S*ωt + S*t)/Nin, (44)
здесь
S*ωc = Rω1Aωc[h- yc - t'f -(x - t'f)/2); (45)
S*ωt = Rmμmω1tω(hω- x - t'f)[yc - (hω- x + t'f)/2 - tf]. (46)
Влияниепрогиба элемента учитывается путем умножения значения ec накоэффициент η,вычисляемый по п. 3.16.
3.19. Высоту сжатойзоны x внецентренно сжатых сечений, определяемуюпо формуле (33),рекомендуется при эксцентриситете e0≤ 1/h вычислять, используя выражение (47) ипринимая размеры сечения в см.
x = -(et- h) ±
, (47)
где et = ec + ycm - эксцентриситет нормальной силы Nотносительно нижней растянутой грани; e' = et - h + t'f/2 - эксцентриситет нормальной силы Nотносительно центра массы сжатой полки:
γ1 = (et - h)[b'ft'f - tωt'f - tω(t'f)2/2 + b'f(t'f)2/2]; (48)
γ2 = μmωγ1 + b'ft'f(μmr1 - μmω)e';
γ3 = tωμmω(het - h2/2 - tfet + t2f/2) + bftfμmf1(et - tf/2). (49)
Приэтом эксцентриситет продольной силы ec силыN относительно центра массы сечения определяетсяс учетом прогиба элемента согласно указаниям п. 3.16.
3.20. Расчет внецентренно сжатых элементовкольцевого сечения с арматурой, равномерно распределенной по длине окружности,должен производиться из условия
при этом величина относительнойплощади сжатой зоны бетона определяется по формуле
αr = (N + Rmμmr1Abr)/(Rb + 3,35Rmμmr1)Abr. (51)
Еслиполученное из этой формулы значение αr< 0,15, в условие (50) подставляется значение αr,определяемое по формуле
αr= (N + 0,73Rmμmr1Abr)/[(Rb + 2Rmμmr1)Abr], (52)
где Rc1 = Rb + R'mμmr1.
Значениевеличины μmr1 определяется с использованием рекомендаций п. 3.2.
3.21. Расчетцентрально-растянутых элементов прямоугольного сечения с арматурой, приведеннойк равномерно распределенной (см. п. 3.2), следует производить изусловия
N ≤ Rmμm1bh. (53)
3.22. Расчет внецентренно растянутых элементовпрямоугольного сечения с арматурой, приведенной к равномерно распределенной(см. п. 3.2),следует выполнять:
Рис.30. Эпюра напряжений во внецентренно растянутых элементах прямоугольногосечения при приложении продольной силы N в пределах ядра сечения
1 - сетки;2 - стержневая илипроволочная арматура
а)если продольная сила N приложенав пределах ядра сечения (рис. 30) - из условия
N≤ vRmμmt1bh, (54)
где v - коэффициент снижения несущейспособности при внецентренном растяжении, принимаемый равным 0,8;
б)если продольная сила N приложенамежду ядром сечения и наружной гранью сечения из условия (54), гдеv принимается равным 0,6;
в)если продольная сила N приложеназа пределами сечения (рис. 31) - из условия
Ne≤ Rmμm1b[(h- x)/2]2 - (Rb+ Rmcμm1)bx2/2; (55)
Рис.31. Эпюра напряжений во внецентренно растянутых элементах прямоугольногосечения при положении продольной силы Nза пределами ядра сечения
1 - сетки; 2 - стержневая или проволочнаяарматура
при этом высота сжатойзоны x определяется поформуле
RbS'b + RmcS'm1- RmSm1 = 0. (56)
Еслиполученное из расчета по формуле (56) значение x> ξRh, то в условие (55) подставляется значение x= ξRh.
Пример7.
Дано. В армоцементной плите покрытия толщиной 20мм и пролетом 1200 мм (рис. 32) действуют от расчетной нагрузки M= 0,5 кН×м и N = 100 кН. Плита армируется четырьмя слоями тканой сетки серии № 10-1по ГОСТ3826-82*.
Рис.32. Сечение армоцементной плиты покрытия
а - поперечное;б - расчетное; в - приведенное к стальному
Расчетноесопротивление и модули упругости арматуры и бетона принимаются по табл. 11 и п.2.25: Rm = Rmc = 245 МПа; Em= 15000 МПа. Для мелкозернистого бетона класса В40 группы А расчетноесопротивление на осевое сжатие табл. 7; Rb = 22 МПа, начальныймодуль упругости бетона по табл. 10; Eb = 28500 МПа.
Требуетсярассчитывать по прочности прямоугольное сечение плиты армоцементной плитепокрытия здания.
Расчет. Расчетная длина плиты (считая торцы плитызащемленными) равна:
l0= 0,5; l = 0,5×1200= 600 мм.
Эксцентриситетпродольной сжимающей силы ec = M/N= 0,5/100 = 0,005 м.
Коэффициентармирования всего сечения сетками определяем в соответствии с п. 3.2 итабл. прил. 1(при коэффициенте армирования μm= 0,0071 одной сеткой на 1 см толщины)
μm1= μmn/t = 0,0071×4/2= 0,0142.
Коэффициентувеличения эксцентриситета, учитывающий влияние продольного изгиба на несущуюспособность плиты, находим в соответствии с п. 3.16.
Коэффициентувеличения эксцентриситета η = 2,31.
Эксцентриситетс учетом коэффициента увеличения η равен e'c= 0,005×2,31×1000= 11,55 мм.
Дляопределения, какой случай внецентренного сжатия имеется, определяем высотусжатой зоны из выражения (41).
Высотусжатой зоны из уравнения (41)
x = -(et- t) ± ![]()
Эксцентриситетпродольной силы относительно растянутой грани
et = e'c + y= 11,55 + 10 = 21,55 мм,
e' = et- h + t'f/2 = 21,55 - 20 = 1,55 мм.
Посколькудля прямоугольного сечения γ1= 0 и γ2= 0, определяем только коэффициент γ3.
γ3 = bμm1(tet + t2/2)= 1000×0,0142(20×21,55 - 202 : 2) = 3280,2.
Высотасжатой зоны x:
x = -(21,55+ 20) ±
= -1,55 ± 7,56 = 6,01 мм.
Отношениевысоты сжатой зоны ξ = x/h= 6,01/20 = 0,3. Для определения предельного отношения ξRпо формуле (8)вычислим по формуле (9) ω = 0,5 - 0,008Rb= 0,5 - 0,008×22 = 0,324. Тогда

Таккак ξ = x/h= 0,300 > ξR = 0,24, то согласно п.3.17прочность внецентренно сжатого прямоугольного сечения определяем из условия (34).
Вычислимрасчетные сопротивления
Rc1= Rb+ R'mμm1= 22 + 245×0,0142= 25,479 МПа
и площади: Ac1= xb = 6,01×1000= 6010 мм2;
At = (h - x)b= (20 - 6,01)×1000= 13990 мм2;
A =bh = 20×1000 = 20000 мм2.
Несущаяспособность центрально-сжатого элемента по формуле (35)
Nc = Rc1A = 25,479×20000 = 509580 Н.
Несущаяспособность сечения, в котором высота сжатой зоны бетона принимается равной x= ξRh,определяется из выражения (36)
Nin = Rc1bx- Rmμm1(h - x)b = 25,479×1000×6,01- 245×0,0142(20 - 6,01)1000 = 104457,6 Н.
Эксцентриситетпродольной расчетной силы Nin определяется поформуле (37)
ein = (Rc1Sc + RmSt)/Nin,
где Sc = bx(1 + hμm1)(h - x)/2= 1000×6,01(1+ 20×0,0142)(20 - 6,01) : 2 = 53979,3 мм3;
St = bxμm1(h - x)/2= 1000×6,01×0,0142(20- 6,01) : 2 = 596,97 мм3;
ein =(25,479×53979,3 + 245596,97)/104457,6 =1521588,5/104457,6 = 14,6 мм.
Прочностьвнецентренно сжатого прямоугольного сечения по формуле (34)
N = Nc - (Nc - Nin)[2e'c/ein- (e'c/ein)2] = 509580- (509580 - 104457,6)[2×11,55: 14,6 - (11,55 : 14,6)2] = 122120,4 Н = 122,12 кН.
Посколькурасчетное предельное усилие в сечении N= 122,12 кН > 100 кН, прочность армоцементной плиты обеспечена.
Пример8.
Дано. Прямоугольное сечение армоцементной плитытолщиной20 мм и пролетом 1200 мм, находящееся под действиемдлительно действующих усилий M = 300 Н×м;N = 800 Н. Кратковременно действующие усилия Me= 2 Н×м;Ne = 6 Н. Плита армируется восемью слоямитканой сетки № 10-1 - ГОСТ3826-82*. Сетки, бетон и их расчетные сопротивления те же, что и в прим. 7.Требуется рассчитать прямоугольное сечение плиты по прочности.
Расчет. Расчетная длина плиты (считая торцы плитызащемленными) равна:
l0= 0,5; l = 0,5×1200= 600 мм.
Эксцентриситетпродольной сжимающей силы
ec = M/N = 300000/800 = 375 мм.
Коэффициентармирования всего сечения сетками, определяемый в соответствии с п. 3.2 итабл. 1прил. 1(при коэффициенте армирования μm= 0,0071 одной сеткой на 1 см толщины), равен
μm1= μmN/t = 0,0071×8 : 2 = 0,0284.
Коэффициентувеличения эксцентриситета, учитывающий влияние продольного изгиба на несущуюспособность плиты, находим по п. 3.16:
Ncrt = 6,4EbI/(φel20).
Коэффициент,учитывающий влияние длительного действия нагрузки на прогиб элемента впродольном состоянии, равный
φe = 1 + βMe/M,
где β -коэффициент, принимаемый в зависимости от вида бетона по табл. 30 СНиП 2.03.01-84β = 1,3.
Тогдаφe = 1 + 1,3×2/3= 1,78. Критическая продольная сила
Ncrt =6,4×28500×666700/1,78×6002[0,11/(0,1+ 375/20) + 0,1] = 20000 Н,
где ec/h> (0,5 - 0,01l0/h- 0,01Rb).
Коэффициентувеличения эксцентриситета
η = 1/(1 - N/Ncrt) = 1 : (1 - 800 :20000) = 1,04.
Эксцентриситетпродольной силы с учетом коэффициента увеличения η равен: e'c= ecη = 375×1,04= 390 мм. Для определения, какой случай внецентренного сжатия имеет место,определяем высоту сжатой зоны по зависимости (33). Высоту сжатой зоныопределяем из уравнения (41).
Эксцентриситет,относительно растянутой грани et = e'c+ y = 390 + 10 = 400 мм. Поскольку для прямоугольногосечения γ1= 0 и γ2= 0, то определяем только γ3:
γ3 = bμm1(tet- t2/2) = 1000×0,0284(20×400 - 202 : 2) = 221520.
Высотасжатой зоны х
x= -(400 - 20) ±
=-380 ± 383,95; x = 4 мм.
Отношениевысоты сжатой зоны x ктолщине плиты ξ = x/h= 4/20 = 0,2 < ξR = 0,24. В соответствиис п. 3.17при отношении ξ < ξRпрочность внецентренно сжатого прямоугольного сечения определяем по формуле (32)
-Net ≤ Rmμm1At(h- x)/2 - RcAc(h- x/2) = 245×0,0284×1600(20 - 4) : 2 - 22×4000(20 - 4 : 2) = 693376 Н×мм,
где At = (h - x)b= (20 - 4)1000 = 16000 мм, Ac = xb = 4×1000= 4000 мм2.
Расчетнаяпродольная сила
N= Net/et= 693376/672,5 = 1031 Н = 1 кН.
Поскольку N= 1 кН > N = 0,8 кН, прочность сечения обеспечена.
Дано. Сводчатое двухшарнирное покрытиепроизводственного здания. В нормальном к продольной оси сечении складчатогоэлемента действуют усилия: M = 274 кН×м(от действия постоянных и длительных нагрузок); M= 146 кН×м; N= 555 кН. Пролет свода l0= 19,44 м. Складчатый элемент свода армируется двумя слоями тканой сетки № 10-1ГОСТ3826-82* и сварными плоскими каркасами из стальной низкоуглеродистойхолоднотянутой проволоки класса Вр-I; Æ= 5 мм. Расчетные сопротивления арматуры и бетона, соответственно равные; длятканой сетки Rm= 245 МПа по табл. 11; для сварных каркасов из стальнойнизкоуглеродистой холоднотянутой проволоки по СНиП 2.03.01-84; Rs= 360 МПа; для мелкозернистого бетона класса В35 группы А; Rb = 19,5 МПа по табл. 7;начальный модуль упругости Eb = 27,5 МПа по табл. 10.Требуется рассчитать внецентренно сжатое сечение комбинированно армированногоармоцементного элемента (рис. 33) по прочности.
Расчет. Приводим сечение складчатого элемента кдвутавровому (рис. 33). Толщина стенки элемента двутаврового сечения
tω = (22×4)/sinβ = 88/0,94 = 94 мм.
Рис.33. Сечения армоцементного складчатого покрытия
а -поперечное; б - расчетное; в - приведенное к стальному
Вычисляемкоэффициент армирования двумя сетками № 10-1 по табл. 1 прил. 1, коэффициент армированияпри одной сетке на 1 см равен 0,0071, толщина стенки 2,2 см.
μm1= (0,0071×2)/2,2 = 0,0065.
Коэффициентармирования стержнями Æ = 5 мм.
μs= (50,3×8)/(800×22) = 0,022.
Коэффициентыприведенного армирования равны:
а)для сжатой полки из выражения (4)
μ'm1= μ'm+ μ'sRsc/Rmc= 0,0065 + 0,025 = 0,0315.
Дляопределения расчетного эксцентриситета ec продольнойсилы определяем коэффициент увеличения эксцентриситета η по зависимости (29):
η = 1/(1 - N/Ncrt).
Вычисляемвеличины Ncrt поСНиП 2.03.01-84для сечений с ненапряженной арматурой

где I - момент инерции бетонного сечениявычисляем из выражения
= 800×223: 12 + 800×22(1000 - 22 : 2)2 + 94×9563: 12 + 800×223 : 12 + 800×22(1000- 22) : 2 = 11512,455×106 мм4.
Моментинерции сетчатой арматуры Im1= I1- I= 413,35×106 мм4.
Коэффициент,учитывающий влияние длительного действия нагрузки напрогиб элемента в предельном состоянии, определяется из выражения (21) СНиП 2.03.01-84, принимаякоэффициент β = 1,3 как для мелкозернистого бетона группы А.
φe= 1 + βM1I/M1= 1 + 1,3×146: 274 = 1,6;
α = Em1/Eb;
по формуле (87)Em1 = (Emμm + Esμs)/(μm + μs) = (150000×0,0065 + 170000×0,022) : (0,0065 + 0,022) = 165438,6 МПа, тогдаα = 165438,6 : 27500 = 6,01.
Коэффициентα1принимается равным ec/h, но не менее величины α1min= 0,5 - 0,01l0/h- 0,01Rb;ec = M/N= 274/555 = 0,494 м.
Определяемрасчетную длину арки:
l0= 0,54; la = 19440×0,54 = 10490 мм;
α1min= 0,5 - 0,01×10490/1000- 0,01×18 = 0,216;
коэффициент α1= ec/h =0,494/1,000 = 0,494 > 0,216.
Ncrt= 5,6Eb{I[0,11/(0,1 + α1)+ 0,1]/φc+ αIm1)/l20= 5,6×27500{11512,455×106[0,11: (0,1 + 0,494) + 0,1] : 1,6 + 6,01×413,348×106}: 104902 = 6687367 Н = 6687,37 кН.
Полученнуювеличину подставляем в выражение (29)
η = 1/(1 - N/Ncrt) = 1 : (1 - 555 : 6687) = 1,09.
Расчетныйэксцентриситет ec продольнойсилы с учетом коэффициента η равен:
ec = Mη/N = 274×1,09 : 555 = 0,538 м.
Эксцентриситетысилы Ne1 и e2 равны:
e'= ec - h/2 + t'f/2 = 538 - 500 + 22 : 2 = 49 мм.
Дляопределения, какой случай внецентренного сжатия имеет место в рассматриваемомсечении, находим высоту сжатой зоны x поформуле (41).
Когдасечение симметричное, ycm = h- t/2 = 489 мм, тогда et= ec + ycm= 538 + 489 = 1027 мм;
e'= ec - h + t'f/2 = 1027 - 1000 + 22 : 2 = 38 мм.
Длявычисления высоты сжатой зоны в сечении сначала вычисляем значения γ1,γ2и γ3:
из выражения (42)
γ1= (1027 - 1000)(800×22 - 94×22)- 94×222/2+ 800×222/2= 590216;
извыражения (43)
γ2= 0,0065×590218 + 800×22(0,0315- 0,0065)38 = 20556,6;
извыражения (44)
γ3= 94×0,0065(1000×1027- 10002/2 - 22×1027 + 222/2) + 800×22×0,0315(1027- 22/2) = 871540.
Полученныезначения коэффициентов подставляем в выражение для определения высоты сжатойзоны.
Высотасжатой зоны
x = -(1027 - 1000) ±
=-27 ±
= -27 ± 446,5 = 420мм.
Всоответствии с выражением (8) граничное значение относительной высоты сжатойзоны бетона
ξR= ω/[1 + σs(1- ω/1,1)/500] = 0,34 : [1 + 360(1 - 0,34 : 1,1) : 500] = 0,23,
где ω = 0,5 -0,008Rb= 0,34.
Значит:ξ = x/h= 0,42 > ξR = 0,23; x= 420 мм > t'f= 22 мм.
Прочностьсечения определяем по формуле (34)
N ≤ Nc - (Nc- Nin)[2ec/ein - (ec/ein)2].
Длявычисления несущей способности центрально сжатого элемента Nc находимследующие величины:
Rc1= Rb+ R'mcμ'm1= 19,5 + 245×0,0315 = 27,22 МПа;
Rω1= Rb+ R'mcμ'mω1= 19,5 + 245×0,065 = 19,59 МПа;
Rf1= Rb+ R'mcμ'mf1= 19,5 + 245×0,0315 = 27,22 МПа;
Afc= 800×22= 17600 мм2;
Aω = 94(1000 - 2×22)= 89864 мм2;
Aft= 800×22= 17600 мм2.
Несущаяспособность центрально сжатого сечения по формуле (40)
Nc= 27,22×17600 + 19,59×89864+ 27,22×17600 = 2718 кН.
Несущаяспособность для сечения, в котором высота сжатой зоны x= ξRh,определяется из условия (42) при x > t'f:
Nin= Rc1Abfc+ Rω1Abωc- Rmμmω1Abωt- Rmμmf1Aft.
где x= ξRh= 0,23×1000= 230 мм;
Aωc= (x - t'f)tω = (230 - 22)94 = 19552мм2;
Abωt= tω(h- x - t'f)= 94(1000 - 230 - 22) = 70312 мм2;
Aft= 22×80= 17600 мм2.
Послеподстановки вычисленных величин в формулу (42) получим
Nin= 27,22×17600 + 19,59×19552- 245×0,0065×70312-245×0,0315×17600= 614295 Н = 614,3 кН.
Эксцентриситетпродольной силы, определяемой по формуле (44),
ein = (S*c+ S*ωc + S*ωt+ S*t)/Nin,
S*ωc = Rω1Aωc[h - yc - t'f - (x- t'f)/2)= 19,59×19552[1000 - 500 - 22 - (230 - 22) : 2] =141,7×106мм3;
S*ωt = 245×0,0065×94(956 - 230 + 22)[500 - (956 - 230 + 22)/2 - 22] =11,6×106мм3.
S*c = Rc1bft'f(h- yc - tf/2) = 234,2×106мм3;
S*t = Rm1μmt1bftf(yc- tf/2) = 66,4×106мм3.
Полученныевеличины подставим в формулу (44)
ein = (S*c+ S*ωc + S*ωt+ S*t)/Nin = (234,2×106 + 141,7×106 - 11,6×106 - 66,4×106) : 614295 = 485,2 мм.
Несущаяспособность внецентренно сжатого сечения после подстановки в формулу (34)
N ≤ Nc - (Nc- Nin)[2ec/ein - (ec/ein)2]= 2718000 - (2718000 - 614295)[2×538 : 485,2 - (538 : 485,2)2] = 636435 Н = 636,4 кН.
Прочностьскладчатого покрытия обеспечена, так как N= 636,4 кН > N = 555 кН.
Пример10.
Дано. Двухскатное покрытие здания из сборныхдлинномерных армоцементных складчатых панелей. Требуется проверить на прочностьнормального сечения в середине пролета. Приведенное сечение панели двутавровое:высота сечения h = 1000 мм, ширина полки b'f= 400 мм, t'f= 30 мм, толщина наклонной стенки tω = 20 мм (рис. 34).
Рис.34. Армоцементный складчатый внецентренно сжатый элемент покрытия
а - продольноесечение; б - поперечное сечение; в - сечение, приведенное к стальному
Расчетныйпролет l = 14,9 м. Из статического расчетапокрытия были определены усилия, действующие в сечении:
от расчетныхнагрузок M = 69,2 кН×м;N = 50 кН.
Складчатаяпанель армируется восемью сварными сетками № 12,5; Æ= 0,5 мм; ТУ 14-4-713-76 в сжатой и растянутой полках сечения (коэффициент сетчатогоармирования μ при одной сетке на 1 см толщины сечения элемента μm= 0,0014), четырьмя сварными сетками № 12,5; Æ= 0,5 мм; ТУ 14-4-713-76 в наклонных гранях сечения;
сварнымиплоскими каркасами из арматуры диаметром 10 мм класса А (в сжатой и растянутойполках). Сечение обычной арматуры A's= As = 78,5×2 = 157 мм2.Расчетное сопротивление и модуль Es упругости сварных сеток принимаем по табл.11и п. 2.25: Rm = Rmc= 245 МПа; Em = 150000 МПа.
Расчетноесопротивление для арматуры класса А-III принимаем по СНиП 2.03.01-84: Rs= Rsc = 365 МПа, Es= 200000 МПа.
Длямелкозернистого бетона класса В20 сжатие осевое принимаем:по табл. 7(призменная прочность) Rb= 10,5 МПа; по табл. 10 Eb = 22000 МПа.
Проверимпрочность нормального сечения.
Расчет. Толщина вертикальной стенки тавровогосечения определяется из выражения tω = 2×20/sinα = 2×20/0,865= 46 мм.
Влияниепрогиба на величину эксцентриситета продольного усилия учитываем путем расчетаконструкции по деформированной схеме, принимая во внимание неупругие деформацииматериала и наличие трещин по п. 3.16.
Влияниепрогиба элемента учитываем путем умножения эксцентриситета ec на коэффициент η,определяемый по формуле (29)
η = 1/(1 - N/Ncrt).
Моментинерции бетонного сечения
= [40×33: 12 + 40×3(100 - 3) : 22] + 4,6×933: 12 + [40×3(100 - 3) : 2] = 883110 см4.
Моментинерции приведенного сечения арматуры

=[40×33: 12 + 40×3(100 - 3)2 : 22]5,26×0,0446+ 4,6×943: 12×5,26×0,0062+ [4×33: 12 + 40×3(100 - 3)2 : 22]5,25×0,0466= 142612 см4.
Определяемрасчетную длину элемента l0= 0,58×14900= 8642 мм.
Критическаяусловная сила сжатия (см. пример 9)
=4000 кН.
Коэффициентувеличения эксцентриситета по формуле (29)
η = 1/(1 -5/4000) = 1.
Эксцентриситетпродольной силы вычисляем по формуле
ec = M/N = 69×200000/50000= 1384 мм.
Эксцентриситетпродольной силы
e'c = ecη = 1384×1 =1384 мм.
Определяемкоэффициент:
армированиясварными сетками сжатой и растянутой полок
μ'mc= μmt= μωh/t'f= 0,0014×8: 2 = 0,0037,
вертикальнойстенки
μmω= μωh/tω = 0,0014×4: 2 = 0,0028.
Эксцентриситетпродольной силы относительно центра тяжести сжатой полки
e'c = e'c - (h- t'f)/2= 1384 - (1000 - 30) : 2 = 899 мм.
Коэффициентармирования сжатой и растянутой полок стержневой арматурой
μs= μ's = As/Ab = 157 : (400×30) = 0,013.
Коэффициентприведенного армирования сжатой и растянутой полок определяем по формуле (10)
μ'm1= μmf1= μ'mc+ μsRb/Rm= 0,0037 + 0,013×365 : 245 = 0,023.
Предельнаявысота сжатой зоны по формуле (8) ξR= 0,275. Определяем высоту сжатой зоны по зависимости (34). Величины дляподстановки в зависимость (34) вычисляем следующим образом:
et = e'c+ ycm = 1384 + 500 = 1884 мм;
e2 = e'c + ycm- h = 1884 + 500 - 1000 = 1384 мм;
γ1 = (et - h)(b'ft'f - tωt'f) - tω(t'f)2/2 + b'f(t'f)2/2 = (1884 - 1000)(400×30 - 46×30) - 46×302 : 2 + 400×302 : 2 = 9547380;
γ2 = μmωγ1 + b'ft'f(μmc1 -μmω)e2= 0,0028×9547380 + 400×30(0,023 - 0,0028)884 = 241013,7;
γ3 = tωμmω(het - h2/2 - tfet+ t2f/2) + bftfμm1(et - tf/2)= 46×0,0028(1000×1884 - 10002 : 2 - 30×1884 + 302 : 2) + 400×30×0,023(1884- 30 : 2) = 686862.
Высотасжатой зоны
x= -(et - h) ±
=-(1884 - 1000) ±
= -884+ 902 = 18 мм.
Отношениеx/h = 18/1000 = 0,018 < ξR= 0,275.
Всоответствии с требованиями п. 3.18 при ξ = x/h= 0,018 < ξR= 0,275 и так как x < t'f,прочность внецентренно сжатого двутаврового элемента определяем из формулы (38)
Ne'c≤ Rmμmω1Aω(hω + tf)/2+ Rmμmf1Aft[h- (tf + t'f)/2]=245×0,0028×44160(940+ 30) : 2 + 245×0,023×12000[1000- (30 + 30) : 2] = 80283842 Н×мм.
Нормальнаясила N = 80283842/1384 =58008 Н = 58 кН. Площади поперечных сечений, необходимые для расчета по формуле(38),равны:
Aω = tωhω = 46×960= 44160 мм2;
Aft = bftf= 400×30 = 12000 мм2.
Прочностьприведенного двутаврового сечения N = 58 кН > 50 кН.
Пример11.
Дано. Элемент кольцевого сечения с наружнымрадиусом re = 500 мм, внутренним радиусом rin= 470 мм. Бетон класса В35 с прочностью на осевое сжатие Rb = 19,5 МПа.Армирование стенки элемента кольцевого сечения выполнено из двух тканых сеток №10-1 и сварной сетки из проволоки 4 мм класса Вр-I, шаг 150 ´150 мм, нормативное сопротивление арматуры Rs,ser = 500 МПа. Расчетноесопротивление Rs= 450 МПа.
Всечении действуют изгибающий момент M = 14 кН×ми нормальная сила N = 19 кН.
Требуетсярассчитать прочность сечения.
Расчет. Определяем коэффициент армирования стенкикольцевого сечения:
Am = πdm/4= 3,14×22/4 = 314 мм2;μm = Am/t×20 = 314/300 = 0,0105.
Прочностьвнецентренно сжатого кольцевого сечения определяем по зависимости (50)при rm = (ri+ re)/2 = (250 + 235)/2 =242,5.
Величинуотносительной площади сжатой зоны бетона определяем по формуле (51) при Abr= 2πrmtr= 2×3,14×242,5×15= 22843,5 мм2
![]()
Всоответствии с п. 3.20 полученное значение αr= 0,93 > 0,15; в формулу (50) подставляем значение αr,вычисленное по формуле (52),
αr = (N + 0,73Rmμmr1Abr)/[(Rb + 2Rmμmr1)Abr] = (80 + 0,73×450×0,0105×22843,5)/[(35 + 2×450×0,0105)22843,5] = 0,106.
Расчетноесопротивление
Rr1= Rb + Rmμmr1= 19,5 + 450×0,0105= 24,225 МПа.
Послеподстановки полученных значений в формулу (50) получим
Nec≤ 22843,5[24,285sin(180)×0,106/3,14+ 450×0,0105(1- 1,35×0,106)1,6×0,106]242,5= 14685343 Н×мм.
Эксцентриситетпродольной силы ec = M/N= 58600000/80000 = 736,8 мм. Прочность сечения N= 14685343/736,8 = 19931 Н = 19,93 кН > 19 кН, что удовлетворяет заданномуусилию.
Пример12.
Дано. Стенка армоцементной цилиндрическойемкости для хранения сыпучих материалов. Толщина стенки t=25 мм. Бетон класса В35, группа А с прочностью на осевое сжатие (Rb= 19,5 МПа). Стенка армируется шестью слоями тканых сеток № 10-1 по ГОСТ3826-82* с расчетным сопротивлением Rm= Rmc = 245 МПа и одним слоем сварной сетки изстальной низкоуглеродистой холоднотянутой проволоки класса Вр-I, Æ= 5 мм, шаг 100 ´ 100 мм. Расчетное сопротивление арматурыдля предельных состояний первой группы Rs = Rsc = 360 МПа. Осевое усилие растяжения стенки(нормативное) N = 155 кН. Расчетное растягивающее усилие Nc = 166 кН.
Требуетсярассчитать сечение стенки по прочности от действия осевого усилия растяжения.
Расчет:
а) коэффициенты армирования прикоэффициенте армирования одной сеткой на 1 см μm= 0,0071.
μmt= 6μ/t = 6×0,0071/2,5 = 0,017;
б)сварными сетками из стальной низкоуглеродистой холоднотянутой проволоки (научастке стенки высотой t = 1 м), шаг сетки 100 мм, диаметрстержней равен 5 мм.
μs= As/Ab = 10×19,63/25×1000 = 0,00785.
Коэффициентприведенного армирования
μm1= μmt+ μsRs/Rm= 0,017 + 0,00785×360 : 245 = 0,0285.
Прочностьцентрально растянутой стенки определяется в соответствии с требованиями п. 3.32 по формуле (53)
N≤ Rmμm1bt= 245×0,02285×1000×25= 174,79 кН;
N = 174,8 > Nc= 166 кН,
т.е. прочность сеченияобеспечена.
Пример13.
Дано. Элемент внецентренно растянутый толщиной t= 25 мм и шириной 1000 мм. Бетон мелкозернистый класса В30 группы В. Прочностьбетона на осевое сжатие Rb = 170 МПа. Элементармируется только шестью слоями тканой сетки № 10-1, ГОСТ3826-82*, Rm = Rmc = 245 МПа. Сварная сетка из стальной проволокикласса Вр-I,Æ= 5 мм. Осевое усилие растяжения N= 6,5 кН. Изгибающиймомент M = 0,12 кН×м.Требуется рассчитать внецентренно растянутое сечение армоцементного элемента попрочности.
Расчет. Коэффициент сетчатого армирования при μm= 0,0071 равен:
μm1= 6μm/t = 6×0,0071/2,5 = 0,017.
Определяемэксцентриситет нормальной силы
ec = M/N = 0,12/6,5 = 0,018 > h/2.
Прочностьвнецентренно растянутого элемента для случая приложения силы Nза пределами сечения определяем по (55)
Ne = Rmμm1b[(h- x)/2]2 - (Rb + Rmsμm1)bx2/2.
Высотасжатой зоны определяется из зависимости (56). Для вычисления высотысжатой зоны определяем коэффициенты γ1 = 0 и γ2= 0. Значение γ3 находимиз выражения (49)
γ3= bμm1(he1 + h2/2) = 1000×0,0285(25×30,5 + 252 : 2) = 30637,5.
Эксцентриситетпродольной силы относительно грани растянутой зоны
et = ec+ h/2 = 18 + 25 : 2 = 30,5 мм.
Высотасжатой зоны
x= -(et - h) ±
=-(30,5 - 25) ±
= 16,5 мм,
и отношение ξ = x/h= 0,66. Предельное отношение определяем по формуле
ξR=ω/[1+ σm(1- ω/1,1)400]= 0,364 : [1 + 245(1 - 0,364 : 1,1) : 400] = 0,26,
где ω = 0,5 -0,008×17= 0,364.
Таккак x/h= 0,66 > ξR= 0,26, то в условие прочности (55)подставляем значение x = ξRh= 0,26×25= 6,45 мм. После подстановки получаем
Ne≤ Rmμm1b[(h- x)/2]2 - (Rb+ Rmμm1)bx2/2 = 245×0,0285×1000[(25- 6,45) : 2]2 - (18 + 245×0,0285)1000×6,452: 2 = 81089 Н×мм.
Несущаяспособность N = 81089/18 = 4,5 кН. Прочность элемента необеспечена.
Дано. Армоцементный внецентренно растянутыйэлемент толщиной t = 25 мм и шириной 1000 мм выполнен измелкозернистого бетона класса В35, группы А, прочностью на осевое сжатие Rb= 18 МПа.
Элементармируется шестью слоями тканой сетки № 10-1 ГОСТ3826-82*, расчетное сопротивление Rm= Rmc = 245 МПа и сварнойсеткой из стальной низкоуглеродистой холоднотянутой проволоки класса Вр-I, Æ= 5 мм, шаг 100 мм. Нормативное сопротивление растяжению Rsn = Rs, ser = 395 МПа. Расчетноесопротивление арматуры для предельных состояний первой группы Rsc= 360 МПа. Армоцементный элемент работает на осевое растяжение с усилием N= 139 кН и изгибается моментом M = 0,5 кН×м.
Требуетсярассчитать сечение внецентренно растянутого элемента по прочности.
Расчет. Коэффициент сетчатого армирования всоответствии с требованиями п. 3.3 при коэффициенте армирования одной сеткой на 1см толщины элемента μm = 0,0071 равен:
μmt= 6μm/t = 6×0,0071/2,5 = 0,017.
Коэффициентармирования сварными сетками из стальной низкоуглеродистой холоднотянутойпроволоки (на участке шириной t = 1 м, шаг сетки 100 мм, Æ= 5 мм)
μs= As/Ab = 10×19,63/25×1000 = 0,00785.
Коэффициентприведенного армирования
μmt1= μmt+ μsRs/Rm= 0,017 + 0,00785×360 : 345 = 0,0285.
Расчетвнецентренно растянутых элементов прямоугольного сечения с арматурой,приведенной к равномерно распределенной, производится в соответствии с п. 3.23.
Эксцентриситетнормальной силы ec = M/N = 0,5/140 = 0,0036 м. Находим расстояние отцентра массы сечения элемента до ядровой точки. Площадь сечения A = 25×1000= 25000 мм.
Моментсопротивления
W= I/ycm= bt3/12(t/2)= 1000×253: 12 : (25 : 2) = 104166,7 мм3.
Радиусинерции r = W/A = 104166,7/25000= 4,17 мм.
Посколькупродольная сила приложена в пределах ядра сечения, так как ec= 3,6 мм < r = W/A = 4,17 мм, то расчет прочности производим поформуле (54)с коэффициентом γ = 0,8.
N≤ γRmμmt1bh= 0,8×245×0,0285×1000×25= 139,65 кН.
ПосколькуN = 139,65 кН > N' = 139 кН, то прочностьэлемента обеспечена.
Пример15.
Дано. Сечение то же, что и в примере 14.
Осевоеусилие растяжения элемента N = 100 кН. Изгибающий момент M= 0,7 кН×м.
Требуетсярассчитать внецентренно растянутый элемент по прочности.
Расчет. Коэффициенты сетчатого армирования те же,что и в прим. 14.
Всоответствии с п. 3.22б, если продольная сила N приложена между ядром сечения и наружной граньюсечения, прочность внецентренно растянутого сечения определяется из условия (54), вкотором коэффициент γ принимается равным 0,6.
Эксцентриситетпродольной силы ec = M/N= 0,7/60 = 0,012 м. Так как ec = 12 мм > r= W/A= 4,17 мм, продольная сила, приложенная между ядром сечения и наружной гранью,и прочность сечения равна:
N= γRmμmt1bh= 0,6×245×0,0285×1000×25= 104,7 кН.
Таккак N = 104,7 кН > N= 100 кН, прочность элемента обеспечена.
3.23 (3.20).Расчет по прочности наклонных сечений должен производиться:
посжатому бетону между наклонными трещинами;
понаклонной трещине на действие поперечной силы;
понаклонной трещине на действие изгибающего момента.
3.24. Для армоцементных элементовпрямоугольного сечения должно соблюдаться условие, обеспечивающее прочность посжатому бетону между наклонными трещинами:
Q≤ 0,3φω1φb1Rbbωhω. (57)
Рис. 35. Сечение и схема усилий в элементе прирасчете его по прочности сечений, наклонных кпродольной оси элемента
Коэффициентφω1,учитывающий влияние поперечных и продольных проволок сеток, определяется поформуле
φω1 = 1 + 5Emμmω1/Eb. (58)
Коэффициентφb1определяется по формуле
φb1= 1 - 0,01Rb, (59)
где значение Rbпринимаетсяв МПа.
3.25. Расчетпрочности сечений, наклонных к продольной оси армоцементного элемента, напоперечную силу (рис. 35)должен производиться из условия
Q ≤ Qm + Qb, (60)
где Q - поперечная сила, определяется внешнейнагрузкой, расположенной по одну сторону от рассматриваемого наклонногосечения; Qm - поперечная сила,воспринимаемая поперечными проволоками сетки, пересекающими наклонную трещину; Qb- поперечная сила, воспринимаемая бетоном сжатой зоны в наклонном сечении.
ЗначениеQmопределяется по формуле
Qm = qmωaq, (61)
где aq - проекция наклонной трещины; угол наклона трещиныпринимается равным 45°; qmω - интенсивностьармирования элемента поперечными проволоками сеток в пределахнаклонной трещины, определяемая по формуле
qmω = Rmωμmω1tω/sin(90°- β); (62)
здесь μmω1- коэффициент приведенного армирования стенки при расчете на поперечную силу,определяемый по формуле
μmω1 = Amω/(tωhω) + AsωRsω/(tωRmω), (63)
Amω - площадь сечения поперечных проволок сеток,расположенных в пределах наклонной трещины; Asω - площадь сеченияпоперечных стержней, пересекающихся в пределах наклонных трещин; tω - толщина стенки, воспринимающей поперечнуюсилу; β- угол наклона стенки складчатого элемента к вертикальной оси сечения.
Значениепоперечной силы Qb для изгибаемых и внецентренно сжатыхэлементов определяется по формуле
Qb = 0,75Rbttωh2ω/[aqsin(90° - β)], (64)
где tω и h- соответственно ширина и высота элемента в рассматриваемом сечении.
Примечание.Rbt -принимается с коэффициентом γb п. 2.11,который определяется по отношению главных сжимающих и главных растягивающихнапряжений в наклонном сечении.
Вслучае когда граница сжатой зоны располагается в пределах полки, допускаетсяпринимать aq = hω.
3.27 (3.23).Расчет сечений, наклонных к продольной оси элемента, на действие изгибающегомомента должен производиться из условия
M ≤ (RsAs + Rmμmf1b'ft'f)[h - (t'f + tf)/2] + 1,41Rmμmω1tωhω(hω + t'f)/2, (65)
где M - моментвсех внешних сил, расположенных по одну сторону от рассматриваемого наклонногосечения относительно оси, проходящей через точку приложения равнодействующейусилий в сжатой зоне и перпендикулярной плоскости действия момента.
Высотасжатой зоны в наклонном сечении, измеренная по нормали к продольной осиэлемента, определяется из условия равновесия проекций усилий в бетоне иарматуре наклонного сечения на продольную ось элемента.
Проверкана действие изгибающего момента не производится для наклонных сечений,пересекающих растянутую грань элемента на участках, обеспеченных от образованиянормальных к оси элемента трещин, т.е. там, где момент Mот внешней нагрузки, на которую ведется расчет по прочности, меньше или равенмоменту трещинообразования Mcrc, определяемому по формуле (125) СНиП 2.03.01-84,в котором значение Rbt, ser заменяется Rbt.
Пример16.
Дано. Складчатая панель покрытия в соответствиис данными, приведенными в прим. 2 (рис. 26).
Требуетсярассчитать складчатую панель по прочности наклонного сечения. В соответствии сп. 3.24должно соблюдаться условие по формуле (57), обеспечивающее прочностьпо сжатому бетону между наклонными трещинами, где коэффициент, учитывающийвлияние поперечных проволок сеток, равен:
φω1= 1 + 5Emμmω1/Eb= 1 + 5×150000×0,00465: 28500 = 1,12.
Коэффициент,учитывающий бетон, φb1= 1 - 0,01; Rb = 1 - 0,01×22= 0,78.
Изусловия (57)определяем Q ≤ 3,4φω1φb1Rbbhω = 0,3×1,12×0,78×22,66×240= 91329,6 Н.
Максимальнаяпоперечная сила от внешней нагрузки равна 526 Н. Условие (57): Q= 8526 Н < Q = 91329,6 Н выполнено. Прочность сжатогобетона между наклонными трещинами обеспечена. Расчет на поперечную силувыполняем по условию (60). Так как граница сжатой зоны располагается впределах полки, принимаем aq = hω = 240 мм.Интенсивность армирования [по формуле (62)] элемента поперечнымистержнями сеток qmω = 206×0,00465×5,6/0,5= 107,3 МПа.
Поперечнаясила, воспринимаемая поперечными проволоками по формуле (61),равна Qm = 107,3×240= 25752 Н. Поперечная сила, воспринимаемая бетоном сжатой зоны по формуле (64),
Qb= 0,75Rbttωh2/aq= 0,75×1,36×5,6×2802: 240 = 18659,2 Н.
Прочностьпо наклонному сечению равна: Q = (186,59 + 257,52)102 =444110 Н > Q = 8526 Н, т.е. прочность по наклонномусечению обеспечена.
Расчетпо наклонному сечению преднапряженного элемента на действие изгибающего моментапроизводится по формуле (65). Размеры сечения Rsp, Asp,Rm1,μmf1,μmω1(см. прим. 2)
M≤ (RspAsp+ Rmμmf1b'ft'f)[h- (t'f+ tf)/2] + 1,41Rmμmω1tωhω(hω + t'f)/2= (1240×28,28 + 245×0,0117×250×20)[280- (20 + 20) : 2] + 1,41×245×0,00465×240×56(240+ 20) : 2 = 24,768 Н×мм = 24,8 кН×м.
Прочностьсечения обеспечена.
Пример17.
Дано. Элемент с приведенным двутавровым сечением с размерами: высота сечения h= 240 мм, ширина полки b'f= 920 мм, толщина полки t'f= 20 мм, толщина вертикальной стенки tω = 165,5 мм, ширина нижней растянутойполки bf = 1840 мм, толщинарастянутой полки tf = 25 мм. Бетонмелкозернистый класса В35, группы Б с прочностью на осевое сжатие Rb= 19,5 МПа и прочностью на осевое растяжение Rbt = 1,15 МПа. Начальныймодуль упругого бетона Eb = 28500 МПа.Поперечная сила Q = 68 кН. Армирование предусмотрено двумяткаными сетками № 10-1 по ГОСТ3826-82* по всему сечению (соответствующий коэффициент сетчатогоармирования μm= 0,0071).
Верхняяи нижняя полки дополнительно армируются сварным сетками из стальнойнизкоуглеродистой холоднотянутой проволоки класса Вр-I в сжатой зоне - восемьстержней диаметром 3 мм, A's= 8×7,1= 56 рассчитывается по приведенному сечению с толщиной стенки tω = 165,5 мм по условию(57).
Коэффициент,учитывающий влияние поперечных ,8 = 57 мм2; в растянутой зоне - 28стержней диаметром 4 мм, Ay= 28×12,6= 352,8 мм2.
Требуетсярассчитать двутавровое сечение по прочности наклонного сечения.
Всоответствии с п. 3.24 проверяем, обеспечивается ли условиепрочности по бетону между наклонными трещинами. Складчатая панель и продольныхпроволок сетки φω1,определяемый по формуле (58), равен:
φω1= 1 + 5Emμmω1/Eb= 1 + 5×150000×0,0071: 27500 = 1,19.
Коэффициентφb1,определяемый по формуле (59), равен:
φb1= 1 - 0,01Rb= 1 - 0,01×19,5 = 0,8;
Q≤ 0,3φω1φb1Rbbωhω = 0,3×1,19×0,8×19,5×165,5×195= 179 кН.
Прочностьпо сжатому бетону между трещинами обеспечена, так как Q= 179 кН > Q= 75 кН.
Интенсивностьармирования элемента поперечными проволоками сеток в пределах наклоннойтрещины, определяемая по формуле (62), равна:
qmω = Rmωμmω1tω/sinβ.
Коэффициентприведенного армирования стенки при расчете на поперечную силу, определяемый поформуле (78)
μmω1= Amω/tω1= 0,0071, тогда qmω = 206×0,0071×165,5/0,865= 279,84 Н×мм.
Поперечнаясила, воспринимаемая поперечными проволоками, вычисленная по формуле (61),равна:
Qm= qmωaq = 279,84×195 = 54568,5 Н= 54,57 кН.
Поперечнаясила, воспринимаемая бетоном сжатой зоны, вычисленная по формуле (64),равна:
Qb= 0,75Rbttωh2ω/aq= 0,75×1,15×165,5×1952: 195 = 13,9 кН.
Прочностьсечения по наклонному сечению Q= Qm + Qb = 54,57 + 13,9 = 68,5 кН. Так как Q= 68,5 кН > Q = 68 кН. Прочность элемента по наклонномусечению обеспечена.
Пример18.
Дано. Армоцементный элемент пролетом 5,9 м имеетпрямоугольное сечение hω = 200 мм, tω = 40 мм (рис. 26).Изгибающий момент, действующий в сечении у опоры равен M= 5,5 кН×м; поперечная сила в сечении Q= 20 кН. Бетон для бетонирования элемента принят мелкозернистый класса В40,группы А. Сечение армируется шестью сварными сетками для армоцемента (Æ= 0,5 мм, ТУ 14-4-713-76) прил. 1 и арматурой из высокопрочной гладкойпроволоки Вр-IIÆ= 3 мм. Требуется произвести расчет по прочности наклонного сечения. Расчетныехарактеристики сварной сетки для армоцемента: Rm= 245 МПа, Rmω = 206 МПа, Em = 150000 МПа. Расчетные сопротивлениямелкозернистого бетона: Rb = 22 МПа, Rbt= 1,4 МПа, Eb = 28,5×103МПа. Расчетные сопротивления высокопрочной гладкой проволоки класса В-II Rs= 1240 МПа, Esp = 200000 МПа.
Проверяемусловие, обеспечивающее прочность по сжатому бетону между наклонными трещинамипо формуле (57).
Коэффициент,учитывающий влияние поперечных проволок сеток, равен при μmω1= 0,0031×6/4 = 0,00465; φω1= 1 + 5×150000/28500×0,00465= 1,12; φb1= 1 - 0,01×22 = 0,78. Тогда по формуле (57)
Q= 0,3×1,12×0,78×22×40×200= 46126 Н.
Максимальнаяпоперечная сила от внешней нагрузки Q = 40000 Н, значит условие (57)выполнено, прочность бетона между наклонными трещинами обеспечена.
Расчетпо прочности наклонного сечения выполняем по условию (60).
Интенсивностьпоперечного армирования по формуле (62)
qmω = 206×0,00465×40/0,5= 76,6 МПа.
Поперечнаясила, воспринимаемая поперечными проволоками сетки по формуле (61),равна Qm = 76,6×200= 15320 Н.
Поперечнаясила, воспринимаемая бетоном сжатой зоны по формуле (64), равна:
Qb= 0,75Rbttωh2ω/[aqsin(90° - β)] = 0,75×1,4×40×2002: (200×0,96)= 80,64 Н.
Прочностьнаклонного сечения по формуле (60) равна:
Q= 8064 + 15320 = 23384 Н > Q = 20000 Н.
Прочностьнаклонного сечения на действие поперечной силы обеспечена.
Расчетнаклонного сечения на действие изгибающего момента производим по формуле (65). Дляпрямоугольных сечений прочность
M≤ RsAsh + 1,41Rmμmω1tωh2ω/2 = 1240×21,21×200+ 1,41×245×0,0046×40×200: 2 = 6545154 Н×мм.
ПосколькуM = 6,54 кН×м> M = 5,5 кН×м,прочность наклонного сечения на действие изгибающего момента обеспечена.
Пример19.
Дано. Двухскатное покрытие здания из сборныхдлинномерных складчатых панелей сечением пятигранной складки: b'f= 400 мм, t'f= 30 мм; h = 1000 мм, hω = 940 мм, bf = 400 мм, tf= 30 мм; толщина стенки приведенная tω = 46 мм. Угол наклона стенок α =°60. Сечение армируется в пределах верхней сжатой и нижней растянутой полоквосемью слоями сетки № 12-05 по ТУ 14-4-713-76, а в пределах наклонных гранейсечение - четырьмя сварными сетками № 12-05 по ТУ 14-4-713-76. В пределахсжатой и растянутой полок сечение армируется дополнительно сварными каркасамииз арматуры класса А-III,Æ= 10 мм.
A' = As= 78,5×4 = 314 мм2.
Расчетноесопротивление и модули упругости арматуры и бетона: сварных сеток Rm= 245 МПа, Rmω = 206 МПа, Em= 150000 МПа; сварных каркасов Rs = 365 МПа, Es= 200000 МПа. Бетон мелкозернистый класса В30 - Rb = 15,5 МПа и Rbt= 1,1 МПа, Eb = 26000 МПа.
Всечении действует поперечная сила Q = 30 кН, M= 130 кН×м. Требуется рассчитатьпрочность сечения на поперечную силу.
Расчет. Коэффициенты сетчатого армирования стенки(при одной сетке на 1 см толщины стенки μm= 0,0014) равны:
μmω1= μmn/tω = 0,0014×4: 4,6 = 0,0012;
μmf= 0,0014×8/3 = 0,0037.
Коэффициент,учитывающий влияние поперечных и продольных проволок сеток
φω1= 1 + 5Emμmω1/Eb= 1 + 5×150000×0,0012: 26000 = 1,04.
Коэффициентφb1определяем по формуле (59)
φb1= 1 - 0,01Rb= 1 - 0,01×15,5 = 0,845.
Проверяемусловие, обеспечивающее прочность по сжатому бетону, по формуле (57)
Q≤0,3×1,04×0,845×15,5×46,94 = 176697Н.
ПосколькуQ = 30 кН < Q= 177 кН, условие (57) выполнено, прочность на сжатие междунаклонными трещинами обеспечена.
Расчетпо прочности сечения, наклонного к продольной оси армоцементного сечения напоперечную силу, производится из условия (60).
Интенсивностьармирования элемента поперечными проволоками, по формуле (62),равна:
qmω = Rmωμmω1tω/sinβ = 206×0,0014×46: sin60°= 15,32 МПа.
Поперечнаясила, воспринимаемая поперечными проволоками, по формуле (67),равна:
Qm= qmωaq = 15,32×940= 14400 Н = 14,4 кН.
Поперечнаясила, воспринимаемая бетоном сжатой зоны, по формуле (64), равна:
Qb= 0,75Rbttωh2ω/[aqsin(90° - β)] = 0,75×1,1×46×9402: 940 = 17,8 кН.
Прочностьэлемента по наклонному сечению по формуле (60) равна:
Q = Qm+ Qb = 14,4 + 17,8 = 32,2 кН.
ПосколькуQ = 32,2 кН > Q= 30 кН, прочность элемента обеспечена.
Прочностьсечения, наклонного к продольной оси элемента, на действие изгибающего моментапо формуле (65)равна:
M = (RsAs + Rmμmf1b'ft'f)[h - (t'f + tf)/2] + 1,41Rmμmω1tωhω(hω + ht)/2= (365×314+ 245×0,0037×400×30)[1000 - (30 +30) : 2] + 1,41×245×0,0014×46×940(940+ 30) : 2 = 131,2 кН×м.
ПосколькуM = 131,2 кН×м> M = 130 кН×м,прочность обеспечена.
4.1 (4.1). Расчет элементов армоцементныхконструкций по образованию трещин, нормальных и наклонных к продольной осиэлемента, следует производить в соответствии с требованиями СНиП 2.03.01-84 как для железобетонных конструкций из мелкозернистого бетона соответствующегокласса. При этом значение момента сопротивления с учетом трещин Wpl следуетопределять по п. 4.13,а Rbt, ser приниматьбез учета коэффициента условий работы бетона γb.
4.2. Расчетэлементов армоцементных конструкций по образованию трещин, нормальных инаклонных к продольной оси элемента, следует производить: для выявления необходимостипроверки по раскрытию трещин; для выяснения случая расчета по деформациям.
Вэлементах армоцементных конструкций или на его участках трещины отсутствуют,если усилия, вызванные действием полной нагрузки или ее частью, вводимые врасчет с коэффициентом надежности по нагрузке γ = 1, меньше усилия, которое воспринимаетсечение при образовании трещин. Полная нагрузка включает постоянные, длительныеи кратковременные нагрузки.
Допускаетсяпринимать без расчета, что изгибаемый элемент прямоугольного и тавровогосечений с сжатой полкой имеет в наиболее напряженных участках трещины,нормальные к продольной оси, если требуемый по расчету коэффициент армированиябольше 0,005.
4.3. Расчет армоцементных элементов пообразованию нормальных трещин должен производиться из условия
Mr≤ Mcrc. (66)
где Mr - момент внешних сил, расположенных поодну сторону от рассматриваемого нормального сечения, относительно оси,параллельной нулевой линии и проходящей через ядровую точку, наиболее удаленнуюот растянутой зоны, трещинообразование которой проверяется; Mcrc - момент, воспринимаемый сечением,нормальным к продольной оси элемента при образовании трещин и определяемый поформуле
Mcrc= Rbt, serWpl ± Mshr. (67)
Здесь Mshr - момент усилия Nshr, вызванного усадкой армоцемента относительно тойже оси, что и для определения Mr;знак момента определяется направлением вращения («плюс» - когда направленияпротивоположны, «минус» - когда направления моментов Mshr и Mr совпадают).
Длясвободно опертых балок или плит момент Mcrc определяется по формуле
Mcrc = Rbt, serWcrc- Nshr(eON + r). (68)
УсилиеNshrрассматривается как внешняя растягивающая сила, величина и эксцентриситетотносительно центра тяжести приведенного сечения которой определяются поформулам:
Nshr = σshr(μ'mf1Afc + μmω1Aω + μmft1Aft); (69)
eON = (μmf1Aftyt + μmω1Aωyω - μm1Afcyc)/(μm1Afc + μmω1Aω + μmf1Aft), (70)
где yt,yω, yc - расстояния от центратяжести приведенного сечения до центров тяжести сечений соответственнорастянутой полки, вертикальной стенки и сжатой полки; σshr- напряжение в сетке (приведенном сетчатом армировании), вызванное усадкойбетона, принимается по табл. 3;μ'mf1,μmω1,μmf1- коэффициенты армирования, приведенные к сетчатому по отношению модулейупругости соответственно сетчатого для верхней полки, стенки и нижней полки.
ВеличинаMr определяется по формулам:
дляизгибаемых моментов Mr = M;
длявнецентренно сжатых элементов
Mr = N(e0 - r); (71)
дляцентрально и внецентренно растянутых элементов
Mr = N(e0+ r). (72)
Здесь r - расстояние от центра тяжести приведенногосечения до ядровой точки, наиболее удаленной от растянутой зоны,трещинообразование которой проверяется.
Величинаr определяется:
дляизгибаемых элементов без преднапряжения по формуле
r= Wpl/[(1 + μm(E))Afc + (1 + μmω(E))Aωt + (1 + μmf1(E))Aft]; (73)
длявнецентренно сжатых изгибаемых преднапряженных и внецентренно растянутыхэлементов, если N < P, поформуле
r= φWpl/[(1 + μm(E))Acf + (1 + μmω(E))Aωt + (1 + μmf1(E))Aft]; (74)
где φ = 1,6σb/Rbsec, но принимается неменее 0,7 и не более 1; σb - максимальное напряжение в сжатом бетоне,вычисляемое для упругого тела по приведенному сечению;
длявнецентренно растянутых элементов - по формуле (если N > P)
rn = Wpl/[A + 2α(μm(E)A)], (75)
где Wpl - момент сопротивления приведенного сечения длякрайнего растянутого волокна с учетом неупругих деформаций растянутого бетона,определяемый согласно указаниям п. 4.4.
Примечание. Приведенноесечение включает сечение бетона, а также, сечение всей продольной арматуры,умноженное на отношение соответствующих модулей упругости арматуры и бетона.
4.4. Величина момента сопротивления приведенного сечения длякрайнего растянутого волокна (с учетом неупругих деформаций растянутого бетона)Wpl определяетсяв предположении отсутствия продольной силы Nи P по формуле
Wpl = 2(Ibc + αImc1 + αImt1)/(h- x) + Sbt, (76)
где Ibc,Imc1, Imt1 - моменты инерции соответственно площадей сечения сжатой зоны бетона,арматуры, расположенной в пределах сжатой зоны и в пределах растянутой зоныотносительно нулевой линии; Sbt - статический момент площади сечениярастянутой зоны бетона относительно нулевой линии.
Положениенулевой линии в общем случаеопределяется из условия
S'bc + αS'mc - αSmt = (h- x)Abt/2, (77)
где S'bc,S'mc,Smt - статические моменты соответственно площадисечения сжатой зоны бетона, арматуры, приведенной к площади сеток,расположенной в сжатой зоне и в растянутой зоне сечения; Abt- площадь сечения растянутой зоны бетона, α = Em1/Eb.
Дляпрямоугольных, тавровых и двутавровых сечений положение нулевой линии можетбыть определено из выражения
h- x =
, (78)
где
- статический моментплощади приведенного сечения, вычисленный без учета площади бетона растянутыхсвесов, относительно крайнего растянутого волокна;
- площадьприведенного сечения, вычисленная без учета половины площади бетона растянутыхсвесов.
ЗначениеWpl для двутавровых сечений допускаетсяопределять по формуле
Wpl= [0,292 + 0,75(γ1+ 2μmf1α) + 0,75 (γ2+ 2μ'mf1α)]tωh2, (79)
гдеγ1 = (bf - tω)tf/(tωh);
γ2 = 2(b'f - tω)t'f/(tωh);
α = Em1/Eb;
μmft= μmf + μsEs/Em1 + μspEsp/Em1;
μ'mf1 = μ'mf + μsEs/Em1 + μspEsp/Em1;
здесь μs,μsp- коэффициенты армирования сечения соответственно ненапрягаемой и напрягаемойстержневой (проволочной) арматуры; μmf,μmω- коэффициенты армирования сечения соответственно растянутой полки и сжатойполки; bf,b'f - ширина полок двутаврового сечениясоответственно растянутой и сжатой; tf, t'f - толщина полокдвутаврового сечения соответственно растянутой и сжатой; tω - толщина вертикальнойстенки двутаврового сечения; h - высота сечения; Es,Em, Eb - модули упругости соответственно арматурысеток и бетона.
Таблица 13
| Характеристика сечения | Коэффициент γ | Форма поперечного сечения | |
| 1 | Прямоугольное | 1,75 |
|
| 2 | Тавровое с полкой, расположенной в сжатой зоне | 1,75 |
|
| 3 | Тавровое с полкой (уширением), расположенной в растянутой зоне: |
|
|
| при bt/bω ≤ 2 независимо от отношения tf/h | 1,75 | ||
| bf/bω > 2; tf/h ≥ 0,2 | 1,75 | ||
| bf/bω < 2; tf/h < 0,2 | 1,5 | ||
| 4 | Двутавровое симметричное (коробчатое) сечение b'f = bf: |
|
|
| при b'f/tω = bf/tω £ 2 независимо от отношений t'f/h = tf/h | 1,75 | ||
| при 2 < b'f/tω = bf/tω ≤ 6 независимо от отношений t'f/h = tf/h | 1,5 | ||
| при b'f/tω = bf/tω > 6 и t'f/h = tf/h ≥ 0,2 | 1,5 | ||
| при 6 < b'f/tω = bf/tω ≤ 15 и t'f/h = tf/h < 0,2 | 1,25 | ||
| при b'f/tω = bf/tω > 15 и t'f/h = tf/h < 0,1 | 1,1 | ||
| 5 | Двутавровое несимметричное, удовлетворяющее условию b'f/bf ≤ 3: |
|
|
| при bf/tω ≤ 2 независимо от отношения tf/h | 1,75 | ||
| при 2 < bf/tω ≤ 6 независимо от отношения tf/h | 1,5 | ||
| при bf/tω > 6; tf/h > 0,1 | 1,5 | ||
| 6 | Двутавровое несимметричное, удовлетворяющее условию 3 < b'f/bf < 8: |
|
|
| при bf/tω ≤ 4 независимо от отношения tf/h | 1,5 | ||
| при bf/tω > 4 и tf/h ≥ 0,2 | 1,5 | ||
| при bf/tω > 4 и tf/h < 0,2 | 1,25 | ||
| 7 | Двутавровое несимметричное, удовлетворяющее условию b'f/bf ≥ 8: |
|
|
| при tf/h > 0,3 | 1,6 | ||
| при tf/h ≤ 0,3 | 1,25 | ||
| 8 | Кольцевое и круглое | 2 - 0,4D1/D |
|
| 9 | Крестовое: |
|
|
| при b'f/b ≥ 2 и 0,9 ≥ t'f/h > 0,2 | 2 | ||
| в остальных случаях | 1,75 | ||
| Примечание. В таблице обозначения bf и tf соответствуют размерам полки, которая при расчете по образованию трещин - растянута, а b'f и t'f - соответствуют размерам полки, которая для этого случая расчета сжата. | |||
Приизвестном значении W величину Wpl можно также определять по формуле
Wpl= γW, (80)
где γ - коэффициент отношения моментасопротивления W к значению Wpl, определяется по табл. 13; W - момент сопротивления для растянутой грани приведенногосечения, определяемый по правилам сопротивления упругих материалов.
4.5. Расчет по образованию трещин, наклонных кпродольной оси, должен производиться из условия
σbt ≤ γbRbt,ser, (81)
где γb- коэффициент условий работы бетона, определяемый по формуле
γb = (1 - σbc/Rbt, ser)/(0,2 + 0,02B). (82)
Здесь B- класс бетона по прочности на сжатие, МПа.
Значенияглавных растягивающих и главныхсжимающих напряжений в бетоне σbt(σbc определяется по формуле)
Напряженияσx,σyи τxy определяютсякак для упругого тела. Проверка условия (83) производится в центретяжести приведенного сечения и в местах примыкания сжатых полок и стенкеэлемента таврового и двутаврового сечения.
4.6. Армоцементныеэлементы рассчитываются по раскрытию трещин: нормальных к продольной осиэлемента; наклонных к продольной оси элемента.
Проверкаширины раскрытия трещин не требуется, если согласно расчету по пп. 4.1 - 4.5 онине образуются от действия постоянных, длительных и кратковременных нагрузок,вводимых в расчет с коэффициентом надежности по нагрузке γt= 1.
Прирасчете по раскрытию трещин усилие от усадки бетона принимается равным нулю.
4.7. В общем случае расчет по раскрытию трещинпроизводится два раза: на непродолжительное и продолжительное раскрытие.
Дляизгибаемых элементов, выполняемых из мелкозернистого бетона при проверкераскрытия трещин, нормальных к продольной оси элемента, допускается расчетпроизводить только один раз, если Me/Mtot≥ 2×2/3, проверяется продолжительное раскрытиетрещин от действия момента Mе,от постоянных и длительных нагрузок; если Me/Mtot< 2/3, проверяется непродолжительное раскрытие трещин от действия момента Mtot от действия постоянных, длительных икратковременно действующих нагрузок.
4.8.Ширина раскрытия трещин acrc, мм, нормальных кпродольной оси элемента, при сетчатом армировании должна определяться по формуле
acrc= ηmφeσmSm/Em1, (84)
где ηm- коэффициент, принимаемый равным при сварных сетках - 3; при тканых - 3,5; φe- коэффициент, принимаемый равным при учете: кратковременных инепродолжительного действия постоянных и длительных нагрузок - 1;продолжительного действия постоянных и длительных нагрузок: для мелкозернистыхбетонов группы А-1,5; Б-1,7; В-1,65.
Вводонасыщенном состоянии (элементы, воспринимающие давление жидкости, а такжеэксплуатируемые в грунте ниже уровня грунтовых вод) группы А-1,4; Б-1,6; В-1,4.
σm- напряжения в сетках у растянутой грани сечения от действия нагрузки,определяется согласно п. 4.10; Em - модуль упругостисетки, принимаемый по п. 2.25; Sm - размер ячейки сетки,мм.
4.9.Ширину раскрытия трещин acrc, мм, нормальных кпродольной оси элемента, прикомбинированном армировании следует рассчитывать по формуле
acrc =φφeγmηm(σm/Em1)20(3,5 - 100μmt1)
, (85)
где φ - коэффициент, принимаемый равным: дляизгибаемых и внецентренно сжатых элементов - 1, для растянутых элементов - 1,2;φe- коэффициент тот же, что и в п. 4.8; γm- коэффициент, зависящий от величины коэффициента приведенного сетчатогоармирования растянутой зоны элемента и принимаемый при:
0,4 % < μm1< 1 % - 4,5;
1 % ≥ μm1< 2 % - 3;
μm1> 2 % - 1,5;
ηm- коэффициент, принимаемый равным:
присварных сетках - 0,8;
притканых сетках - 1;
σm - напряжение в сетчатой арматурепринимается по п. 4.10; μmt1- коэффициент приведенного армирования растянутой зоны, принимаемый в формуле (85) неболее 0,02; ds - диаметр стержневой или проволочнойарматуры, мм; при различных диаметрах стержней и проволоки сеток значение ds принимается равным:
ds= (n1d21 + … + nkd2k)/(n1d1 + ... + nkdk), (86)
d1,…, dk - диаметр стержней,проволок растянутой арматуры; n1,…, nk - число стержней, проволок; Em1 - приведенный модуль упругости арматуры,определяемый по формуле
Em1= (Emμm+ Esμs)/(μm+ μs). (87)
4.10.Напряжение σmследует определять:
а)в центрально-растянутых элементах
где P- усилие предварительного напряжения с учетом всех потерь; Ab - площадь сечения бетона;
б)для изгибаемых, внецентренно сжатых или внецентренно растянутых элементов - поправилам строительной механики как для упругого тела.
Врасчете σm должно рассматриваться сечение,приведенное к эквивалентному стальному сечению (см. рис. 36), сединой упругой характеристикой; в растянутой зоне к стальному сечениюприводится только арматура с эквивалентной площадью сечения, а в сжатой зоне -арматура и бетон с эквивалентными площадями сечения (бетон - с учетом отношениямодулей упругости).
Значениеσm определяется:
дляизгибаемых элементов - по формуле
σm = [M - P(ecp+ r)]/Ws1; (89)

Рис.36. Схема приведения сечений армоцементныхэлементов к стальному
а -сечение армоцементного элемента; б - сечение, приведенное кстальному
для внецентренно сжатыхи внецентренно растянутых элементов - по формуле
σm= Ntot(ec, tot ± r)/Ws1, (90)
где Ws1- момент сопротивления приведенного к стальному сечению определяется по формуле
Ws1= Is1/1,3yc. (91)
Здесь Is1- момент инерции сечения, приведенного к эквивалентному стальному сечению,относительно его центра тяжести; Ntot - равнодействующая продольной оси Nи усилия предварительного обжатия P;
ec,ecp - эксцентриситеты приложения сил соответственно N и P относительноцентра тяжести сечения элемента: ec, tot - эксцентриситет усилия Ntot относительно центра тяжести сечения; r- расстояние от ядровой точки до ближайшей сжатой грани сечения.
Вформуле (90)напряжений в сетке внецентренно сжатых элементов знак «минус» принимается привнецентренном сжатии, а знак «плюс» - при внецентренном растяжении.
4.11 (4.6). Для элементов, ктрещиностойкости которых предъявляются требования 2-й категории, ширинанепродолжительного раскрытия трещин определяется как сумма ширины раскрытия отпродолжительного действия постоянных и длительных нагрузок и приращения шириныраскрытия от действия кратковременной нагрузки. Ширина продолжительногораскрытия трещин зависит от продолжительности действия постоянных и длительныхнагрузок.
4.12. Ширина непродолжительного раскрытиятрещин от действия полной нагрузки определяется как сумма ширины раскрытия отпродолжительного действия постоянных и длительных нагрузок и приращения шириныраскрытия трещин от действия кратковременной нагрузки по формуле
acrc= acrc1- acrc2+ acrc3, (92)
где acrc1 - ширина раскрытия трещин от непродолжительногодействия всей (полной нагрузки); acrc2- начальная ширина раскрытия трещин от постоянных и длительных нагрузок (при ихнепродолжительном действии); acrc3 - ширинапродолжительного раскрытия трещин от действия постоянных и длительных нагрузок.
Визгибаемых элементах непродолжительное раскрытие трещин от полной нагрузкиможет определяться по формуле
acrc = acrc1[1 + (φe- 1)Me/Mtot], (93)
где φe- см. п. 4.8для случая продолжительного действия нагрузки.
Ширинапродолжительного раскрытия трещин определяется от действия постоянных идлительных нагрузок.
4.13. Ширина раскрытия трещин, наклонных кпродольной оси изгибаемых элементов, при сетчатом и комбинированном армированииопределяется по формуле
acrc = φeK1(hω + 30dm)]ηmK22/μmω1E2m, (94)
где φe- коэффициент тот же, что и в п. 4.8; K1 - коэффициент, принимаемый:
притканых сетках - 103(30 - 1500μm1);
присварных сетках - 103(20 - 1200μm1);
ηm- коэффициент тот же, что и в п. 4.8; μmω1- принимается согласно указаниям п. 3.2; dm - диаметр проволок сеток, расположенных понормали к продольной оси элемента;
K2 = Q/(tωhω) - 0,25Np/Ab. (95)
Здесь Q - наибольшая поперечная сила на рассматриваемомучастке длины элемента от действия нагрузки.
Приопределении ширины раскрытия наклонных трещин от непродолжительного ипродолжительного действия нагрузки должны учитываться указания п. 4.12.
Пример20.
Дано. Армоцементная складчатая плита покрытияшириной 3, высотой 0,5 м, пролетом 9,2 м (рис. 37). Бетон мелкозернистыйкласса В40. По условиям эксплуатации конструкция отвечает требованиям 2-йкатегории трещиностойкости. Расчетные и нормативные характеристики стали:тканой сетки № 10-1 - ГОСТ3826-82*: Em = 1,5×105МПа; сварной сетки из арматурной проволоки класса Вр-I диаметром 4 мм: Rs= 370 МПа, Rsω = 265 МПа, Rsc = 365 МПа, Es= 1,7×103МПа; стержневой арматуры класса А-III диаметром 6 мм (табл. 10и 20): Rs = 355 МПа, Rsω = 285 МПа, Rsc= 355 МПа, Es = 2×103МПа.
Расчетные(при коэффициенте условий работы γb1= 1) и нормативные характеристики мелкозернистого бетона класса В40 (табл. 6 - 8 и 10):Rb = 22 МПа, Rbt= 1,35 МПа, Rb, ser= 29 МПа, Rbt, ser= 1,76 МПа, Eb = 2,4×104МПа.
Усилияот нагрузок расчетной M = 106600 Н×м,Q = 47700 Н, полной нормативной M= 87400 Н×м, Q= 39000 Н, нормативно длительно действующей M= 66500 Н×м.
Коэффициентармирования сжатой полки (приведенный к сетчатому) μmf1= 0,0182, стенки (при двух слоях сетки) μmω1= μmω= 0,0047, растянутой полки (приведенный к сетчатому) μmf1= 0,0485.
Требуетсяпроизвести расчет по ширине раскрытия трещин, нормальных к продольной осиэлемента.
Коэффициентыприведенного армирования с учетом модулей упругости равны:
сжатойполки
μ'mf1(E)= μm+ μsEs/Em= 0,0047 + 0,0075×2×105: (1,5×105)= 0,0147;
стенки
μmω1(E)= μmω= 0,0047;
растянутойполки
μmf1(E)= μm+ μsEs/Em= 0,0047 + 0,0314×2×105 :(1,5×105)= 0,0465.
Отношениемодулей упругости
α = Em/Eb= 1,5×105/2,4×104 =6,25.
Приведеннаяплощадь сечения
A1= 90×3(1+ 6,25×0,0147)+ 30,3×44(1+ 6,25×0,0047)+ 150×3(1+ 6,25×0,0465)= 2149 см2.
Статическиймомент приведенной площади сечения относительно нижней грани
S1= 90×3(1+ 6,25×0,0147)(50- 3/2 + 30,3×44(1 + 6,25×0,0047)(50- 3 - 44/2) + 150,3(1 + 6,25×0,0465)3/2 = 44697 см3.
Расстояниеот центра тяжести до нижней грани ycm = S1/A1 = 44697/2149= 20,8 см.
Моментинерции сечения относительно центра массы приведенного сечения
Согласно табл. 13, при отношениях 3 > b'f/tω = 90/30,3 = 2,97; 2< bf/tω = 150/30,3 = 4,95 <6 коэффициент γ = 1,5.
Рис.37. Сечения армоцементной складчатой плиты покрытия
а - поперечное;б - расчетное; в - одной волны с армированием
Пластическиймомент сопротивления приведенного сечения
Wpl= γI1/ycm= 1,5×688085: 20,8 = 49621 см3.
Расстояниеот центра тяжести массы приведенного сечения до ядровой точки, наиболееудаленной от растянутой зоны, трещинообразование которой проверяется по формуле(73),равно:
rn = 688085/20,8(1 + 6,25×0,0147)90×3+ (1 + 6,25×0,0047)30,3744 + (1 + 6,25×0,0465)150,3= 15,4 см.
Эксцентриситетпо формуле (70)равен:
eON= (0,0485×150,3×19,3+ 0,0017×30,3×4,2- 0,0182×90×3×29,2)/(0,0182×90×3+ 0,0017×30,3×41+ 0,0185×150×3)= 9,2 см
и нормальная сила отдеформации усадки по формуле (60) равна:
Nshr= 52(0,0182×90×3+ 0,0047×30,3×44+ 0,0485×150×3)= 171,6 кН.
Момент,воспринимаемый нормальным сечением при образовании трещин по формуле (68),равен:
Mcrc = 1,76×49621- 171,6(9,2 + 15,4) = 62138 Н м.
Таккак Mcrc= 62138 Н×м < M= 87400 Н×м, то в стадии эксплуатации трещинывозникают.
Приведенныймодуль упругости сжатой арматуры по формуле (87) равен:
Emc1= (1,5×105×0,00447+ 2×105×0,0075)/(0,0047+ 0,0075) = 1,805×105 МПа;
то же, растянутойарматуры по формуле (87) равен:
Emf1= (1,5×105×0,0047+ 2×105×0,0314)/(0,0047+ 0,0314) = 1,93×105 МПа.
Вычислениенапряжений в арматуре производим в соответствии с п. 4.10. Высота растянутой полки всечении, приведенном к стальному, равна:
tsf1= 0,0147×3 + 3×2,4×104/(1,805×105)= 0,443 см.
Высотасжатой полки tsf1 = 0,0465×3= 0,14 см. Толщина стенки в сжатой зоне tscω1 = 0,0047×30,3+ 30,3(2,4×104/1,5×105)= 4,99 см. Толщина стенки в растянутой зоне tstω1 = 0,0047×30,3= 0,143 см.
Высотасжатой зоны в момент трещинообразования
x1= h - S1/(A + A1/2) = 50 - 48747/(1761 +463/2) = 25,5 см.
Площадьсечения, приведенного к стальному, As1= 90×0,443+ 4,99×25,057+ 0,143×21,66 + 150×0,14= 189 см2. Статический момент относительно нижней грани сечения Ss1= 90×0,443(47,3- 0,443/2) + 4,99×25,057(47,3 - 0,443 - 25,057/2) + 0,143×21,66(0,14+ 21,66/2) + 150×0,14(0,14/2) = 6204 см3.Расстояние от центра тяжести сечения до нижней грани y = Ss1/Fs1 =6204/189 = 32,8 см.
Моментинерции сечения, приведенного к стальному, относительно центра тяжести сеченияравен:
Is1= 90×0,4433/12+ 90×0,443×14,282+ 4,99×25,0573/12+ 4,99×25,057×1,752+ 0,143×21,663/12 + 0,143×21,66×21,92+ 150×0,143/12+ 150×0,14×32,732= 39880 см4.
Моментсопротивления Ws1= Is1/1,3y= 39880/1,3×32,8 = 935 см3. Напряжение откратковременного действия полной нагрузки в растянутой зоне по формуле (89)равно:
σm= M/Ws1= 87400/935 = 93,5 МПа,
то же от постояннодействующей нагрузки σm= 66500/935 = 71,1 МПа.
Ширинунепродолжительного раскрытия трещин от действия полной нагрузки определяем всоответствии с п. 4.12:
acrc = acrc1- acrc2 + acrc3.
Ширинараскрытия трещин от непродолжительного действия всей (полной) нагрузки поформуле (85)
acrc1 =φφeγmηm(σm/Em1)20(3,5- 100μmf1)
= 1×1×1,5×1×93,5: (193×105)20(3,5- 100×0,02)
= 0,01 мм.
Ширинараскрытия трещин от постоянных и длительных нагрузок (при их непродолжительномдействии) по формуле (85)
acrc2 = 1×1×1,5×1
20(3,5 - 100×0,02)
= 0,03 мм.
Ширинапродолжительного раскрытия трещин от действия постоянных и длительных нагрузокпо формуле (85)
acrc3 = 1×1,5×1,5×1
20(3,5 - 100×0,02)
= 0,05 мм.
Такимобразом, ширина непродолжительного раскрытия трещин acrc = 0,04 - 0,03 + 0,05 =0,06 мм < 0,2 мм (см. табл. 1).
Ширинапродолжительного раскрытия трещин
acrc3= 0,03 мм < 0,15 мм,
т.е. по ширинераскрытия трещин рассчитываемое сечение конструкции соответствует требованиям2-й категории трещиностойкости.
Пример21.
Дано. Стенка армоцементной емкости для хранениясыпучих материалов толщиной δ= 25 мм выполнена из мелкозернистого бетона класса В40. Стенка армируется:
шестьюслоями сварных сеток для армоцемента № 12-0,7 по ТУ 14-4-113-76;
сварнойсеткой из стальной низкоуглеродистой холоднотянутой проволоки класса Вр-I, Æ= 6, шаг 100 мм.
Расчетныеи нормативные характеристики - холодной проволоки класса Вр-I: Rs = 375 МПа, Es= 170000 МПа, сварных сеток № 12-0,7, Rm= 245 МПа, Em = 150000 МПа. Осевоеусилие растяжения стенки N = 55 кН.
Требуетсявыполнить расчет по ширине раскрытия трещин.
Коэффициентармирования
μm= 6μ/t= 6×0,0031: 2,5 = 0,00744.
Коэффициентармирования сварными сетками из холоднотянутой проволоки (на участке стенкивысотой h = 1 м)
μs= As/(th) = 10×0,283: (2,5×100) = 0,0113.
Коэффициентприведенного армирования
μm1= μm+ μsRm/Rs = 0,0074 + 0,0113×375: 245 = 0,0247.
Ширинараскрытия трещин, нормальных к продольной оси элемента, при сетчатомармировании определяется по формуле (84):
acrc = ηmφeσmSm/Em,
где ηm= 3; φe = 1,5.
Напряжениев сетках у растянутой грани согласно п. 4.10 для центрально-растянутыхэлементов по формуле (88)
σm= (N - P)/(μm1Ab,tot) = 550000 : (0,025×2500)= 88 МПа.
Усилиепредварительного напряжении P равно нулю. Площадь бетона равна Abtot= 100×25= 2500 мм2. Приведенный модуль упругости по формуле (87)
Em1= (170000×0,0113 + 150000×0,00744)/(0,0113+ 0,0074) = (1921 + 1110)/0,0184 = 164728 МПа.
Ширинараскрытия трещин по формуле (84)
acrc = 3×1,5×88/164728×12= 0,028 мм < 0,05 мм (табл. 1).
Длязаданных условий эксплуатации в соответствии с табл. 1 такое раскрытие трещиндопускается.
Пример22.
Дано. Армоцементная складчатая плита покрытия(рис. 38)с расчетным пролетом 5,95 м армируется:
двумяткаными сетками № 10-1 по ГОСТ3826-82* (коэффициент сетчатого армирования при одном слое сетки на 1 смтолщины составляет μm= 0,0071);
сварнымисетками из стальной низкоуглеродистой холоднотянутой проволоки класса Вр-I по ТУ 14-4-713-76 (в сжатой зоне - восемьстержней диаметром 3 мм, As = 8×7,1= 57 мм2; в растянутой зоне - 28 стержней диаметром 4 мм, As = 28×12,6= 3,53 мм2).
Изгибающиймомент от продолжительно действующей нагрузки Me= 19,82 кН×м, полный момент в середине пролета Mtot= 30,1 кН×м.Расчетные сопротивления и модули упругости арматуры и бетона принимаются: длятканой сетки Rm = 245 МПа, Em= 150000 МПа; для сварной сетки из стальной низкоуглеродистой холоднотянутойпроволоки Rs, ser =410 МПа, Es = 170000 МПа; длямелкозернистого бетона класса В40 группы А - Rb,ser = 29 МПа, Rbt,ser = 2,1 МПа, Eb= 28,5×103МПа.
Требуетсяпроизвести расчет по раскрытию трещин, нормальных к продольной оси элемента.
Расчет. Толщина вертикальной стенки приведенногодвутаврового сечения
tω =tfn/sinβ = 20×8/sinβ = 165,5 мм.
Площадьсечения плиты
Ab = 920×20+ 1950×165,5+ 1840×25= 800400 мм2.
Коэффициентприведенного армирования
μ'm1= μm+ μ'sRs/Rm= 0,0071 + 0,0031×410 : 245 = 0,0123.
Коэффициентармирования стенки при двух слоях сетки
μω = 2μ/tω = 2×0,0071/2 = 0,0071.
Коэффициентыармирования растянутой полки сечения тканой и сварной сетками из стальнойнизкоуглеродистой холоднотянутой проволоки соответственно равны:
μm = 2μ/tf = 2×0,0071/2,5= 0,00567;
μs= As/bftf = 353/1840×25 = 0,00767,
а коэффициентприведенного армирования
μm1= μm + μsRs/Rm = 0,00567 + 0,00767×410 : 245 = 0,0185.
Рис.38. Сечения складчатой плиты перекрытия
а - поперечное;б - приведенное расчетное
Приведенныемодули упругости по формуле (87) равны:
растянутойполки
![]()
сжатойполки
![]()
Коэффициентыприведенного армирования с учетом отношений модулей упругости равны:
всжатой полке
μ'(E)1= μ'm+ μ'sEs/Em= 0,0071 + 0,0031×170000 : 150000 = 0,0106;
врастянутой полке
μ(E)1= μm+ μsEs/Em= 0,00567 + 0,00767×170000: 150000 = 0,0144;
μω(E)1= μω = 0,0071.
Определяемразмеры сечения, приведенного к стальному. Высота сжатойполки
t'sf1= μ'(E)1t'f+ t'fEb/E'1= 0,0106×20 + 20×28500: 156000 = 3,852 мм.
Высотарастянутой полки
tsf1= μ(E)1tf= 0,0144×25= 0,36 мм.
Толщинастенки в сжатой зоне (с учетом бетона)
t'sω = μ'm(E)1tω + t'ωEb/Em= 0,0071×165,5 + 165,5×28500: 150000 = 31,62 мм.
Толщинастенки в растянутой зоне
tsω = μm(E)1tω = 0,0071×165,5= 1,14 мм.
Дляопределения положения нейтральной оси в момент трещинообразования вычисляемстатический момент площади таврового сечения (без учета свесов в растянутойзоне) относительно нижней грани, который равен:
=92×2(24- 2/3)(1 + 5,26×0,0106)103 + 16,55(19,5 + 25)
(1 + 5,26×0,0071)103= 8622,63×103 мм3.
Отношениемодулей α = Em/Eb = 150000/28500 = 5,26. Приведенная суммарнаяплощадь Ab таврового сечения
Ab= b'ft'f(1+ n1μ'(E)1)+ tω(hω + tf)(1+ n1μω) = 92×2(1 - 5,26×0,0106)102+ 16,55(19,5 + 2,5)102(1 + 5,26×0,0071)102= 551,44×102 мм2.
Площадьсвесов растянутой полки
At= (184 - 16,55)2,5(1 + 5,26×0,0144)102 = 450,33×102мм2.
Расстояниецентра тяжести относительно растянутой грани сечения
h - x = Sb/(Ab+ Aft/2) =8622,63×103: (551,44 + 45033 : 2) = 111,03 мм.
Высотасжатой зоны для упругопластического состояния сечения x = h - 111,03= 240 - 111,03 = 129 мм.
Статическиймомент сечения, приведенного к стальному относительно нижней грани сечения,равен:
S1= 92×0,38×21,75+ 3,16×10,9×15,3+ 9,848×0,114×49,25+ 184×0,036×0,036/2= 1392,37×103 мм3.
Площадьприведенного стального сечения
As1= 92×0,38+ 10,9×3,16+ 9,85×0,114+ 184×0,036= 76,62×102 мм2.
Расстояниеот центра тяжести этого сечения до нижней грани
yc = S1/As1 = 1392,37 :76,62 = 181,7 мм.
Моментинерции сечения, приведенного к стальному, относительно центра тяжести сеченияравен:
Is= 92×0,382/12+ 92×0,38×3,582+ 3,2×10,92/12+ 3,2×10,9×2,872+ 0,114×9,853/12 + 0,114×9,85×13,242+ 184,0×0,363/12 + 184,0×0,036×18,72= 3459,14×104 мм4.
Моментсопротивления сечения, приведенного к стальному, равен
Ws1= Is1/1,3ys = 3459,14×104 : (1,3×181,7) = 146,44×103мм3.
Напряжениеσm для изгибаемых элементов
σm= M/Ws1= 30100000 : (146,44×103) = 205,54 МПа.
ОтношениеMc/Mtot= 19820000/30100000 = 0,658 < 2/3 = 0,666, следовательно, на основании п. 4.7проверяется непродолжительное раскрытие трещин от действия момента M.
Ширинараскрытия трещин, нормальных к продольной оси элемента при смешанномармировании, вычисляется по формуле (85):
acrc = φφeγmηm(σm/Em1)20(3,5- 100μmt1)
,
где для изгибаемыхэлементов φ = 1; φe= 1; γm= 3, так как 1 % < μm1< 2; ηm = 1 для тканых сеток; μmt1= 0,0185.
Приведенныйдиаметр стержневой и проволочной арматуры ds по формуле (86) равен:
ds= (28,42 + 370×1)/(28×4+ 370×1)= 1,7 мм; Em1= 161500 МПа.
Послеподстановки в формулу (85) полученных величин ширина раскрытия трещин
acrc = 1×1×3×1×205,54×20/161500(3,5- 100×0,0185)
= 0,15 мм.
Потабл. 1предельная ширина кратковременного раскрытия трещин допускается acrc1 = 0,15 мм.
Пример23.
Дано. Армоцементный элемент с приведеннымдвутавровым сечением h = 280 мм, с размерами верхней полки b'f= 250 мм, t'f = 20 мм; нижней полки bf= 740 мм, tf = 20 мм; высоты стенкиhω= 240 мм и толщины стенки tω = 56 мм. Сечение армируется: двумя слоямитканых сеток № 8-07 по ГОСТ3826-82* (μm= 0,0044 при одной сетке на 10 мм толщины стенки); ненапрягаемая арматура ввиде сеток из стальной низкоуглеродистой холоднотянутой проволоки класса Вр-I (четыре проволоки диаметром 3 мм).Расчетные и нормативные характеристики сварной сетки Rm= 245 МПа, Em = 150000 МПа.Мелкозернистый бетон класса В35 группы А. Расчетное сопротивление Rb= 19,5 МПа, Rbt = 1,3 МПа, Eb= 27500 МПа. Сварные сетки из проволоки класса Вр-I, Æ= 3 мм с расчетным сопротивлением Rs = 375 МПа, Es= 200000 МПа.
Изгибающиймомент в сечении M = 6,56 кН×м.Требуется рассчитать поперечное сечение армоцементной складчатой плиты пообразованию трещин.
Коэффициентыармирования равны:
тканымисетками
μmf= μmω= μmc= 0,0044×2: 2 = 0,0044;
сжатойполки, армированной сварными арматурными каркасами,
μ's= A's/A'f = 2828 : (250×20) = 0,0057;
растянутойполки
μs= As/Af= 28,28 : (740×20) = 0,0019.
Напряжениев сетке σshr вызванное усадкой бетона длямелкозернистого бетона группы А класса В35, равно: σshr= 65 МПа (бетон естественного твердения); усилие Nshrот усадки бетона как внешняя растягивающая сила по формуле (69)равно:
Nshr= 65(0,013×500 + 0,0044×13440+ 0,0073×14800) = 15091,6 Н = 15091,6 кН.
Коэффициентприведенного армирования с учетом отношения модулей упругости:
длясжатой полки
μmt1= μm+ μ'sEs/Em= 0,0044 + 0,0057×200000 : 150000 = 0,012;
длястенки и растянутой полки
μω(E)= μm = 0,0044.
Положениенулевой линии в общем случае определяется по формуле (77)
S'bc+ αSmc- αSmt= (h - x)Abt/2;
4155872= 4924504 - 17551,8x; x= 43,2 мм.
Посленескольких приближений находим положение нулевой линии, проходящей через центртяжести сечения ycm = 123 мм, тогда x = 280 - 123 = 157 мм.
Статическиймомент площади бетона сжатой зоны
Sbc= 250×30(280- 123 - 20/2) + (240 + 20 - 123)56(240 + 20 - 123)/2 = 1260532 мм3.
Статическиймомент площади арматуры сжатой зоны
Smc= 5,25×250×20×0,012(280- 123 - 20/2) + (240 + 20 - 123)56×0,0044(240+ 20 - 123)/2 = 58444,8 мм3.
Статическиймомент площади арматуры растянутой зоны
Smt= 5,25×740×20×0,0069(123- 20/3) + (123 - 20)56×0,0044(123 - 20)/2 = 67414,7 мм3.
Площадьбетона растянутой зоны
Abt= 740×20+ (123 - 20)56 = 20568 мм2.
Полученныезначения подставляем в формулу (77) для проверки принятого положения нулевойлинии и получаем
1260532 +58444,8 - 67444,8 @ (280 - 157)/2×20568;
расхождение составляет1 %, поэтому принимаем x = 157 мм.
Моментыинерции Ibc, Imc1, Imt - соответственно площади сечения сжатойзоны бетона, арматуры и арматуры, расположенной в пределах сжатой зоны,относительно нулевой линии равны:
Ibc = 250×203/12+ 250×20(157- 20/2)2 + 56(157 - 20/2)3/12 + 56(157 - 20/2)3/2 = 167506000 мм4;
Imc = [250×203/12+ 250×20(157- 20/2)2]0,012 + [56(157 - 20/2)3/12 + 56(157 - 20/2)(157- 20/2/2]0,0044 = 1559436мм4;
Imt = [740×203/12+ 740×20(280- 157 - 20/2)2]0,0069 + [56(280 - 157 - 20/2)3/12 +56(280 - 157 - 20/2)3/2]0,0044= 1425881 мм4.
Статическиймомент площади сечения растянутой зоны бетона относительно нулевой линии
Sbt = bftf(h - x - tf/2) + tω(h - x - tf)[(h - x - tf)/2] = 740×20(280- 157 - 20 : 2) + 56(280 - 157 - 20)[(280 - 157 - 20) : 2] =1969452 мм3.
Моментсопротивления приведенного сечения для крайнего растянутого волокна с учетомнеупругих деформаций растянутого волокна по формуле (76)
Wpl= 2(Ibc + αImc1+ αImt1)/(h- x) + Sbt= 2(167506×500+ 5,26×1559436+ 5,26×1425881): (280 - 157) + 1969452 = 4948443,3 мм3.
Моментсопротивления приведенного сечения для крайнего растянутого волокна с учетомнеупругих деформаций растянутого волокна по формуле (79) равен:
γ1 = (bf - tω)tf/(tωh) = (740 - 56)20 : (56×280)= 0,8724;
γ2 = 2(b'f - tω)t'f/(tωh) = 2(250 - 56)20 : (56×280)= 0,4949;
α = Em/Eb = 5,26;
Wpl = 0,292+ 0,75(γ1 + 2μmf1+ α) + 0,0075(γ2 + 2μmft + α)tωh2 = 0,292 + 0,75(0,8724 + 2×0,013×5,26)+ 0,075(0,4949 + 2×0,0073×5,26)56×28 = 4768413 мм3
(расхождение равно 36%).
Длявычисления радиуса инерции rn подставим полученные величины в формулу (73);получим
rn= 4948×443/[(1+ 0,012)5000 + (1 + 0,0044)13440 + (1 + 0,0069)14800] = 4948443 мм4/33461мм2 = 147,89 мм2.
Моменттрещинообразования для свободно опертых балок или плит по формуле (68)
Mcrc = 1,25×4948443- 15,09(13 + 147,9) = 6185553,7 - 2427,98 = 6183125,8 = 6,183 кН×м.
Изгибающиймомент в сечении M = 6 кН×м< Mcrc= 6,183 кН×м.Трещиностойкость элемента обеспечена.
Пример24.
Дано. Армоцементный складчатый элемент имеетприведенное двутавровое сечение. В сечении действует изгибающий момент M= 200 кН×м, продольная сила N= 800 кН. Ширина верхней и нижней горизонтальных полок: b'f= bf = 400 мм, толщина t'f = tf = 30 мм, толщинавертикальной стенки tω = 46 мм и высота hω = 940 мм. Высота всего сечения h= 1000 мм. Складчатый элемент армируется восемью сварными сетками № 12,5-0,5 ТУ14-4-713-76 в сжатой и растянутой полках сечения, четырьмя сварными сетками №12,5-05 по ТУ 14-4-713-76 в наклонных гранях сечения, сварными плоскимикаркасами из арматуры диаметром 10 мм класса А-III в сжатой и растянутой полках A's= As = 78,5×4= 314 мм2 (см. рис. 34).
Расчетныесопротивления и модули упругости: для сварных сеток Rm = Rmc = 245 МПа; Em= 150000 МПа; для арматуры класса А-III по СНиП 2.03.01-84 Rs= Rsc= 369 МПа, Es = 200000 МПа.
Длямелкозернистого бетона группы А класса В35 прочность на осевое сжатие Rb= 18 МПа (Rb, ser= 25,5 МПа), прочность на осевое растяжение Rbt= 1,3 МПа, Rbt, ser= 1,56 МПа при коэффициенте условий работы γb1 = 1.
Начальныймодуль упругости Eb = 27500 МПа.
Требуетсяопределить, какой изгибающий момент будет предельным моментомтрещинообразования при условии, что отношение M/N сохраняется.
Приведеннаярасчетная толщина вертикальной стенки таврового приведенного сечения (при угленаклона стенки к вертикали β = 59°54')равна:
tω = 2t/sinβ = 2×20 : 0,865 = 46 мм.
Отношениемодулей упругости сеток и бетона
α = Em/Eb = 150000 : 27500 = 5,45.
Коэффициентыармирования сварными сетками равны:
сжатойи растянутой полок при одной сетке на 1 см толщины μm= 0,0014
μmc= μmt= μmh/t'f= 4,0014×8 : 3 = 0,0037;
вертикальнойстенки
μmω= μmh/tω = 0,0014×4: 2 = 0,0028.
Коэффициентармирования сжатой и растянутой полок стержневой арматурой
μ's= μs = As/(b'ft'f) = 314 : (400×30) = 0,026.
Коэффициентыприведенного армирования сжатой и растянутой полок равны:
μmc1= μmc+ μ'sRs/Rm= 0,0037 + 0,026×365 : 245 = 0,042;
μmt1= μmt+ μsRs/Rm= 0,0037 + 0,026×365 : 245 = 0,042.
Коэффициентыприведенного армирования с учетом отношений модулей упругости равны:
длясжатой и растянутой полок
μ = 0,0037+ 0,026×200000/150000 = 0,0384;
длявертикальной стенки
μmω(E)= μmω= 0,0028.
Расчетпо образованию нормальных трещин производится из условия (66) Mr ≤ Mcrc. Для внецентренно сжатых элементов (71)
Mr = N(e0 - rn).
Моментинерции приведенного сечения

Моментсопротивления
W= 10072,411×106/500= 20,144×106мм3.
Площадьсечения
Ab= 400×30(1+ 5,45×0,0384)+ 940,46(1 + 5,45×0,0028) + 400×30(1+ 5,45×0,0384)= 72923 мм2.
Напряжениев бетоне
σb= N/Ab+ M/Wpl= 800000 : 72923 + 200000000 : 20144000 = 20,9 МПа.
Коэффициентφ = 1,6 - 20,9/25,5 = 0,78. Площадь сжатой полки
Acf= b'ft'f= 12000 мм2.
Площадьстенки
Aωt= tωhω = 46×940= 43240 мм2.
Площадьрастянутой полки Aft = bftf= 12000 мм2. Величину r длявнецентренно сжатых элементов определяем по формуле (74).
ЗначениеWpl для двутаврового сечения определяем по формуле (79)
Wpl= [0,292 + 0,75(γ1+ 2μmftα)+ 0,075(γ2+ 2 μ'mftα)]tωh2= [0,292 + 0,75(0,23 + 2×0,038×5,45)+ 0,075(0,23 + 2×0,0384×5,45)]46×10002= 38044760 мм3,
где
γ1 = (bf - tω)tf/(tωh1) = (400 - 46)30 : (46×1000)= 0,23;
γ2 = 2(b'f - tω)t'f/(tωh) = 2(400 - 46)30 : (46×1000)= 0,23.
Расстояниеот центра приведенного сечения до ядровой точки по формуле (74)
![]()
Эксцентриситетпродольной силы
ec = M/N = 200 : 800 = 0,25 м.
Mr = N(e0 - rn)= 800(0,25 - 0,435) = 148 кН×м.
УсилиеNshr, вызванное усадкой армоцемента иопределяемое по зависимости (69), равно:
Nshr = σshr(μmc1Acf+ μmω1Aωt + μmf1Aft)= 52(0,0384×12000 + 0,0028×48240+ 0,0384×12000) = 54946,9 Н,
где в соответствии срекомендациями п. 4.3 напряжение в сетке, вызванное усадкой бетона,принимаем равным для мелкозернистого бетона группы А класса В35 σshr= 52 МПа (бетон естественного твердения).
Эксцентриситетпродольного усилия от усадки Nshrпо формуле (70)
![]()
Момент,воспринимаемый нормальным сечением с образованием трещин по формуле (67)
Mcrc = 1,56×38044760- 54946,9(+434,6) = 35,469903 = 35 кН×м.
ПосколькуMr = 148 кН×м> Mcrc= 35,5 кН×м, трещиностойкость элемента обеспечена.
Пример25.
Дано. Стенка армоцементной емкости для хранениясыпучих материалов толщиной t = 25 мм, выполнена из мелкозернистогобетона группы А класса В25. Расчетное сопротивление на осевое сжатие Rb= 18,5 МПа. Расчетное сопротивление для предельных состояний второй группы Rbt, ser= 1,35 МПа. Начальный модуль упругости бетона Eb= 21500 МПа. Стенка армируется шестью слоями сварных сеток № 12,5-05 - ТУ14-4-713-76 сварной сеткой из стальной низкоуглеродистой холоднотянутойпроволоки класса Вр-I, Æ = 5 мм, шаг 50 мм. Расчетныехарактеристики арматуры сварных сеток Rm= 245 МПа, Em = 150000 МПа. Сварныхсеток из арматуры класса Вр-I: Rs= 360 МПа, Es = 170000 МПа.
Осевоеусилие в стенке, длительно действующее, N= 66 кН на 1 м.
Требуетсярассчитать сечение нейтрально растянутой стенки по ширине раскрытия трещин.
Коэффициентыармирования сварной сеткой (при коэффициенте сетчатого армирования при одномслое сетки на 1 см толщины элемента, равном μ = 0,0014) равны:
μm1= 6μm/tω = 6×0,0014: 2,5 = 0,0034.
Коэффициентармирования сварными сетками из стали класса Вр-I
μs= As/Ab = 20×19,625: (25×1000) = 0,0157.
Коэффициентприведенного армирования
μmt1= μmt+ μsRs/Rm= 0,0034 + 0,0157×360 : 245 = 0,026.
Напряжениеσm,определяемое в соответствии с п. 4.10 для центрально-растянутых элементов, равно:
σm= (N - P)/(μmAb,tot) = 66000 : (0,026×25×1000)= 101,54 МПа.
Приведенныймодуль упругости арматуры по формуле (87)
Em1= (Emμmt+ Esμs)/(μmt+ μs)= (150000×0,0034 + 170000×0,0157): (0,0034 + 0,0157) = 166439 МПа.
Диаметрарматуры, приведенный по формуле (86), равен:
ds = (n1d21 + … + nkd2k)/(n1d1 + ... +nkdk) = (100×6×0,52+ 20×52): (100×6×0,5+ 20×5)= 1,63 мм.
Ширинараскрытия трещин acrc при коэффициентах всоответствии с п. 4.9: φ = 1,2; φe= 1,5; γ = 1,5; γm= 0,8 равна:
acrc = φφeγmηm(σm/Em1)20(3,5- 100μmt1)
= 1,2×1,5×1,5×0,8×101,5: 166439×20(3,5 - 100×0,026)
= 0,06 мм.
Ширинараскрытия трещин допустима.
Пример26.
Дано. Складчатый свод покрытия из двух складокимеет приведенное сечение со следующими размерами: ширину верхней полки b'f= 800 мм, толщину t'f= 30 мм, ширину нижней полки bf = 800мм, толщину tf = 30 мм, высотусечения h = 1000 мм и толщину стенки tω = 22 мм (см. рис. 33).
Элементысвода армируются двумя слоями тканой сетки № 10-1 по ГОСТ3826-82* сварными плоскими каркасами из стальной низкоуглеродистойпроволоки класса Вр-Iс площадью сечения арматуры As = A's= 8×28,3= 226 мм2.
Расчетноесопротивление и модули упругости арматуры для тканой сетки Rm= Rmc = 245 МПа, Em= 150000 МПа, для сварных каркасов Rs = Rsc= 355 МПа, Es = 200000 МПа.Расчетное сопротивление сжатию мелкозернистого бетона класса В40 группы А равноRb = 22 МПа, модуль упругости бетонаестественного твердения Eb = 28500 МПа. Расчетноесопротивление для предельных состояний второй группы Rbt,ser = 2,1 МПа.
Всечении свода изгибающий момент от продолжительно действующей нагрузки, равный Me= 146 кН×м, N= 300 кН и полный изгибающий момент M = 274 кН×м,N = 555 кН. Требуется рассчитать внецентренносжатое сечение свода по ширине раскрытия трещин.
Расчет. Коэффициент сетчатого армирования полки(при коэффициенте армирования одной сетки на 1 см толщины μm= 0,0071) равен:
полки
μmc= μmt= 0,0071×2/3 = 0,0047;
стенки
μmω= 0,0071×2/2= 0,0065.
Коэффициентприведенного по расчетным сопротивлениям арматуры армирования равен:
полки
μmc1 = 0,0047 + 0,0094×355/245 = 0,018,
где μs= μ's = As/Ab = 226/24000 = 0,0094;
стенки
μmω= 0,0065.
Приведенныйкоэффициент армирования с учетом модулей упругости
μmc(E)= μmt(E)= 0,0047 + 0,0034×200000/15000 = 0,017;
μmω(E)1= μmω= 0,0065.
Посколькусечение и его армирование симметричны, расстояние от центра массы до растянутойграни сечения yc = h/2= 500 мм.
Статическиймомент площади таврового сечения (без свесов в растянутой зоне) относительнонижней грани
Sb= 800×30(1000- 30/2)(1 + 5,26×0,017) + 940(940 + 30)(940 + 30)/2×(1+ 5,26×0,0065)= 71479746 мм3,
где α = Em/Eb= 150000/28500 = 5,26;
tω1= tωn/sinβ = 22,4 : 0,94 = 94 мм при β = 70°.
Приведеннаясуммарная площадь Ab таврового сечения Ab= 800×30(1+ 5,26×0,017)+ 94(940 + 30)(1 + 5,26×0,0065) = 120426 мм2.Приведенная площадь свесов растянутой полки Aft= (800 - 84)30(1 + 5,26×0,017) = 23074 мм2.
Полученныезначения подставляем в формулу (78) и вычисляем высоту сжатой зоны:
h - x = Sb/(Ab + Aft/2)= 71479746 : (120426 + 23074 : 2) = 541,7 мм; x= h - 541,7 = 1000 - 542 = 458 мм.
Пластическиймомент сопротивления приведенного сечения по формуле (79)
Wpl= 0,292 + 0,75(0,2253 + 2×0,017×5,26)+ 0,075(0,45 + 2,0×0,017×5,26)94×10002= 60376670 мм3,
где γ1= (bf - tω)tf/(tωh) = (800 - 94)30 : (94×1000)= 0,2253;
γ2 = 2(b'f - tω)/(tωh) = 2(800 - 94)30 : (94×1000)= 0,45.
Расстояниеот центра тяжести сечения до ядровой точки
r = Wpl/Ab = 60376670 : 143673 =420,2 мм,
где Ab= 800×30(1+ 5,26×0,017)+ 94×940(1+ 5,26×0,0065)+ 800×30(1+ 5,26×0,017)= 143673 мм2.
Приведенныймодуль упругости арматуры по формуле (87)
Em1= (Emμm+ Esμs)/(μm+ μs)= (150000×0,0047 + 200000×0,0094): (0,0047 + 0,0094) = 183333 МПа.
Размерысечения, приведенного к стальному, равны:
tsf= μmt(E)1tf= 0,017×30= 0,51 мм;
tsω = μmω(E)tω = 0,0065×94= 0,61 мм;
t'sf= μmc(E)1t'f+ t'fEb/Em1= 0,017×30+ 30×28500: 183333 = 5,17 мм;
t'sω = μmω(E)tω + tωEb/Em1= 0,0065×94×28500: 183333 = 15,22 мм.
Координатацентра тяжести приведенного стального сечения

где расстояние междуцентрами сжатой и растянутой полок
h1= h - (t'f + tf)/2 = 1000 - (30 +30) : 2 = 970 мм.
Моментинерции сечения, приведенного к стальному, равен:

Моментсопротивления сечения, приведенного к стальному, равен:
Ws1 = Is/1,3ys = 741625220 : (1,3×782,7) = 782862,8 мм3.
Максимальныенапряжения во внецентренно сжатом элементе:
σm= N(ec- r)/Ws1= 555(490 - 420,2) : 728862,8 = 53,15 МПа;
ec = M/N= 274 : 555 = 0,49 м = 490 мм;
σm= N(ec- r)/Ws1= 200(910 - 420,2) : 728862,8 = 134,4 МПа,
при эксцентриситете ec = M/N= 182/200 = 0,91 = 910 мм. Приведенный диаметр стержней и проволоки в полке поформуле (86)
ds = (n1d21 + … + nkd2k)/(n1d1 + ... +nkdk) =(160×12+ 8×82): (160×1+ 8×8)= 3 мм.
Ширинараскрытия трещин acrc, нормальных кпродольной оси элемента, при комбинированном армировании, равна (коэффициенты φ; φe;γm и ηmопределяем по п. 4.9):
acrc = φφeγmηm(σm/Em1)20(3,5- 100μmt1)
=1×1,5×3×1×134,4 : 183333×20(3,5- 100×0,017)
= 0,205 мм.
Ширинараскрытия трещин от кратковременного действия всей нагрузки
acrc1 = 1×1×3×1×53,15/183333×20(3,5- 100×0,017)
= 0,054 мм.
Всоответствии с п. 4.12 ширина непродолжительного раскрытия трещинот действия полной нагрузки определяется как сумма ширины раскрытия трещин отпродолжительного действия постоянных и длительных нагрузок и приращения раскрытиятрещин от действия кратковременной нагрузки.
acrc = acrc1 - acrc2 + acrc3,
где acrc1 - ширина раскрытия трещин от непродолжительногодействия всей (полной) нагрузки
acrc1 = 0,054 мм.
Напряжениядля определения ширины раскрытия трещин при непродолжительном действиипостоянных и длительных нагрузок
σm= N(ec- r)/Ws= 300(487 - 420,2) : 728862,8 = 27,6 МПа,
где ec = M/N= 146/300 = 0,487 м = 487 мм.
Начальнаяширина раскрытия трещин от постоянных и длительных нагрузок при ихнепродолжительном действии
acrc2 = 1×1,3×1×27,6/183333- 20(3,5 - 100×0,017)
= 0,012 мм.
Ширинапродолжительного раскрытия трещин от действия постоянных и длительных нагрузок acrc3 = acrc2×1,5= 0,012×1,5 = 0,018 мм. Ширина раскрытия трещин acrc = 0,054 - 0,012 +0,018 = 0,06 мм < 0,1 мм. Раскрытие трещин допустимое.
Пример27.
Дано. Двутавровое приведенное сечение складчатойпанели, которое имеет стенки и полки толщиной 20 мм и армируется двумя тканымисетками № 10-1 - ГОСТ3826-82*, выполнено из мелкозернистого бетона группы А класса В30 спрочностью на осевое сжатие Rb= 17 МПа. Модуль упругости при естественном твердении Eb= 26000 МПа. Коэффициент сетчатого армирования при одной сетке на 1 см толщинысечения составляет μm= 0,0071. Расчетное сопротивление и модуль упругости сетки равны:
Rm = Rmc= 245 МПа; Em = 150000 МПа.
Ширинасжатой полки b'f= 900 мм, толщина t'f= 20 мм, высота сечения h = 240 мм. Ширина растянутой полки bf = 1800 мм, толщина tf= 20 мм. Толщина вертикальной приведенной стенки сечения β = 75°
tω = tn/sinβ = 20×8 : 0,965 = 165,5 мм.
Требуетсярассчитать армоцементную складчатую панель по ширине раскрытия трещин придействии изгибающего момента Mtot = 37,5 кН×м,продолжительно действующего момента Mp = 30,4 кН×м.
Расчет. Поскольку Me/Mtot= 3,04/3,75×3,04 = 0,81 > 2/3, проверяетсяпродолжительное раскрытие трещин от действия момента Me.
Толщинасжатой полки в сечении, приведенном к стальному, равна:
t'sf= μmc(E)t'f+ t'fEb/Em1= 0,0071×20 + 20×26000: 150000 = 3,48 мм.
Коэффициентармирования стенки и полок в сжатой и растянутой зоне равен:
μmc(E)= μmt(E)= μmω(E)= 0,0071.
Толщинарастянутой полки приведенного стального сечения
tsf= μmt(E)tf= 0,0071×20= 0,142 мм.
Толщинастенки в сжатой зоне, приведенная к стальному сечению,
tsωc= μmω(E)tω + tωEb/Em= 0,0071×165,5 + 165,5×26000: 150000 = 29,865 мм.
Толщинастенки в растянутой зоне, приведенная к стальному сечению,
tsωt= μmω(E)tω =0,0071×165,5= 1,175 мм.
Статическиймомент площади относительно нижней грани
S1= b'ft'f(1 + αμmc(E))(h - t'f/2) + tωhω(1 + αμmω(E))(h - t'f - hω/2) + bftf(1+ αμmt(E))tf/2 = 920×20(4×5,77×0,0071)(240- 20 : 2) + 165,5×195(1 + 5,77×0,0071)(240- 20 - 195 : 2) + 1800×20(1 + 5,77×0,0071)20: 2 = 8895741,8 мм3.
Отношениемодулей
α = Em/Eb= 15000 : 26000 = 5,77.
Площадьприведенного сечения
Ab = b'ftf(1 + αμmc(E))+ tωhω(1 + αμmω(E))+ bftf(1+ αμmt(E)α) = 920×20(1+ 5,77×0,0071)+ 165,5×195(1 + 5,75×0,0071)+ 1800×20(1+ 5,77×0,0071)= 90226,1 мм2.
Расстояниедо центра тяжести
ycm = S1/Ab = 8895741,8 : 90226 =98,59 мм.
Статическиймомент сечения, приведенного к стальному, относительно нижней грани сеченияравен:
Ss1= b'ft'sfy'1 + tsωchsωcy2+ bsωty3+ bsft2t/2= 920×3,48×220+ 29,865×121,4×60,7+ 98,59×49,3 + 1800×0,1422: 2 = 930155 мм3.
Площадьпоперечного сечения, приведенного к стальному, равна:
As= b'ft'sf + tsωchsωc+ bsωttsf+ bsftf= 920×3,48+ 29,865×121,4 + 98,59×1,175+ 1800×0,142= 7198,65 мм2.
Расстояниеот центра тяжести до нижней грани
ys = Ss1/As = 930155,8 : 7198,65 =129,21 мм.
Моментинерции, приведенный к стальному, относительно центра тяжести равен:
Is1= b'f(t'sf)3/12 + b'ft'sf/(h- ys)2 + tsωch3sωc/12+ tsωchsωc[(h1- ys)/2]2 + tsωth3sωt/12 + tsωthsωt (ys/2)2 + bft3sf/12 + bftsf(tsf/2)2 = 920×3,483: 12 + 920×3,48×2202+ 29,86×90,83 : 12 + 29,86×90,8×64,62+ 1,175×1293 : 12 + 1,175×129×64,22+ 1800×0,1423: 12 + 1800×0,142(0,142 : 2) = 27469958 мм4.
Моментсопротивления сечения, приведенного к стальному по формуле (91),равен:
Ws1= Is1/1,3ys = 27469958 : (1,3×129,21) = 163538,41 мм3.
Напряжениев растянутой зоне приведенного сечения по формуле (89)
σm = M/Ws1 =3040000 : 163538 = 18,6 МПа.
Ширинараскрытия трещин acrc, нормальных к оси элемента при сетчатомармировании по формуле (84), равна:
acrc = ηmφeσmSm/Em= 3,5×1,5×18,6: (150000×10) = 0,065 мм.
Такаявеличина раскрытия трещин (табл. 1) допустима.
Пример28.
Дано. Часть плиты, расположенная между ребрами,имеет толщину 20 мм и ширину 1 м. Пролет равен 1,2 м. Плита находится подвоздействием длительно действующей части нагрузки - M1= 20 кН×м и N= 36 кН, постоянно действующей нагрузки - M2= 15 кН×м и N= 30 кН. От полной нагрузки M3= 30 кН×м, N= 60 кН. Участок плиты армируется четырьмя слоями тканой сетки № 10-1 по ГОСТ3826-82* (см. рис. 32).
Расчетноесопротивление и модули упругости арматуры и бетона равны Rm = Rmc = 245МПа, E =150000 МПа; для мелкозернистого бетона класса В35 группы А Rb= 19,5 МПа.
Начальныймодуль упругости мелкозернистого бетона, не подвергнутого тепловой обработке потабл. 10,равен Eb = 27500 МПа.
Требуетсярассчитать плиту покрытия в стадии эксплуатации по ширине раскрытия трещин.
Расчетнаядлина плиты (считая торцы плиты защемленными)
l0= 0,5l = 0,5×120= 60 см.
Эксцентриситетысжимающей силы равны:
отдлительно действующей части нагрузки
ec = M1/N1 = 20 : 36 = 0,55 м;
отпостоянно действующей нагрузки
ec = M2/N2 = 15 : 30 = 0,5 м;
отвсей нагрузки
ec = M3/N3= 30 : 60 = 0,5 м.
Коэффициентармирования всего сечения сетками (при коэффициенте армирования μm= 0,0071 и одной сетки на 1 см толщины плиты) равен
μm1= μmn/t = 0,0071×4 : 2 = 0,0142.
Моментинерции сечения относительно центра массы приведенного сечения
I1= bt3/12 = 1000×203 : 12 = 666666,7 мм4.
Моментсопротивления сечения
W= I1/y= 666666,7 : 10 = 66666,67 мм3.
Величинамомента сопротивления приведенного сечения для крайнего растянутого волокна
Wpl= γW = 1,75×66666,67= 116666,6 мм3,
где γ определяетсяпо табл. 13.
Длясимметричного сечения (при симметричном армировании) высота сжатой зоны бетонав момент трещинообразованияравна половине толщины плиты, т.е. x = t/2= 10 мм.
Толщинасжатой зоны приведенного к стальному сечению
tsc = Amc/b + xEb/Em = 157 : 1000 + 10×27500 : 150000 = 1,99 мм.
Толщинарастянутой зоны, приведена к стальному сечению,
tst = Amt/b = 157 : 1000 = 0,157 мм.
Положениецентра тяжести приведенного стального сечения
ys1= tscb(h1 - tsc/2)/[b(tst + tsc)] = 1,99×1000(16 - 1,99 : 2) : [1000(1,99 + 0,157)] = 13,91 мм.
Моментинерции сечения, приведенного к стальному (без учета, ввиду их малости,моментов инерции сжатой и растянутой зон этого сечения относительно собственныхцентров масс), равен:
Is = btsty2s1 + btsc(h1- ys1- tsc/2)2= 1000×0,157×13,912+ 1000×1,99(15 - 13,91 - 1,99 : 2)2 = 30395,56 мм4.
Моментсопротивления сечения, приведенного к стальному, равен:
Ws = Is/ys = 30395,56 : 13,91 =2185,16 мм3.
Расстояниеот центра тяжести сечения до ядровой точки
r = Wpl/Ab = 116665,5 : 20000 = 5,83 мм.
Эксцентриситетпродольной силы с учетом коэффициента η, учитывающего влияние прогиба,
ec = Mη/N = 360 : (60×1,58) = 7,9 мм.
Максимальноенапряжение, возникающее в растянутой сетке от действия всей нагрузки по формуле(90),равно:
σm= 60000(7,9 - 5,83)/2185,10 = 56,84 МПа.
Ширинараскрытия трещин acrc при сетчатом армированииот непродолжительного действия всей нагрузки по формуле (84)равна:
acrc = ηmφeσmSm/Em= 3,5×1×56,84×10: 150000 = 0,013 мм.
Напряженияσmот действия постоянных и длительных нагрузок, необходимые для определенияширины раскрытия трещин при их непродолжительном действии по формуле (90),равно:
σm= 66000(8,38 - 5,83)/2185,16 = 77 МПа.
Величины,необходимые для подстановки в формулу (90):
M= 20 + 15 = 35 кН×м;N = 36 + 30 = 66 кН.
Эксцентриситет
ec= Mη/N= 35 : (66×1,58) = 8,38 мм.
Ширинараскрытия трещин от постоянных и длительных нагрузок при их непродолжительномдействии по формуле (84)
acrc2= 3,5×1×77×10: 150000 = 0,018 мм.
Ширинапродолжительного раскрытия трещин по формуле (84)
acrc3 = 3,5×1,5×77×10: 150000 = 0,027 мм.
Ширинанепродолжительного раскрытия трещин от действия полной нагрузки определяется поформуле (92)
acrc = acrc1 - acrc2 + acrc3 = 0,013 - 0,018 + 0,027 = 0,022 мм;
acrc1 = 0,1 > acrc = 0,022.
Раскрытиетрещин не превышает допустимое.
Пример29.
Дано. Армоцементный складчатый элемент высотой h= 1000 мм, шириной верхней и нижней полки b'f= bf = 400 мм, толщинойполки t'f= tf = 30 мм, наклонныхграней, с углом наклона к вертикали β = 60°, tω = 20 мм находится поддействием поперечной силы (см. рис. 34) Q= 100 кН. Складчатый элемент армируется четырьмя ткаными сетками № 10-1 - ГОСТ3826-82* в каждой наклонной грани в пределах действия среза.
Требуетсярассчитать наклонное сечение элемента по раскрытию трещин.
Расчетвыполняем в соответствии с п. 4.13. Коэффициент армирования наклонной граниэлемента (при одной сетке на 1 см толщины μ = 0,0071)
μm1= 0,0071×4 : 2 = 0,0142.
Высотанаклонной стенки
hω = h- (t'f+ tf) = 1000 - (30 + 30) =940 мм.
Толщина(приведенная) стенки
tω1= 2×20/sin 60° = 40 : 0,866 = 46,19 мм.
КоэффициентK2 по формуле (95)
K2= Q/(tω1hω)- 0,25Np/Ab = 100000 : (46,2×940) = 2,302.
КоэффициентK1 для тканых сетокравен:
K1= 102(30 - 1500μm1)= 102(30 - 1500×0,0142) = 870.
Коэффициентφe(п. 4.8)для продолжительной действующей нагрузки и мелкозернистого бетона группы Аравен φe= 1,5.
Коэффициентηm(п. 4.8)для тканых сеток равен: ηm= 3,5. Выполняем подстановку полученных величин в формулу (94).Ширина раскрытия трещин, наклонных к продольной оси изгибаемого элемента,равна:
acrc= φeK1(hω + 30dm)ηmK22/(μmω1E2m)= 1,5×870(940+ 30×1)35×2,3022: (0,0142×1500002) = 0,15 мм.
Ширинараскрытия наклонной трещины от продолжительно действующей нагрузки acrc= 0,15 мм < acrc = 0,2 мм удовлетворяеттребованиям.
Пример30.
Дано. Складчатая панель высотой 1000 м, шириной2000 мм и толщиной наклонных стенок tω = 20 мм армируется в каждой наклоннойстенке четырьмя ткаными сетками № 8-0,7 по ГОСТ3826-82* (см. рис. 34). В сечении действует от всей нагрузкипоперечная сила Q = 140 кН от постоянно действующейнагрузки Q = 90 кН и от непродолжительно действующейнагрузки Q2= 50 кН. Кроме того, в сечении действует продольная сила от преднапряженнойарматуры Np = 200 кН. Складкаизготовлена из мелкозернистого бетона класса В35. Модули упругости арматурыпринимаются для тканой сетки Em = 150000 МПа.
Требуетсярассчитать ширину раскрытия наклонных трещин. Расчет выполняем в соответствии с п. 4.13.
Коэффициентармирования наклонных граней равен:
μmω1= μmω4/2= 0,0044×4 : 2 = 0,0088.
КоэффициентK1 для тканых сеток:
K1= 102(30 - 1500μm1)= 102(30 - 1500×0,0088×1,41)= 1170.
Принимаемηm= 3,5; φe= 1 в соответствии с п. 4.8. Площадь поперечного сечения
Ab= b'ft'f+ bftf+ tωhω = 20×400+ 20×400+ 46,19×940 = 56000 мм2.
Коэффициент
K2= Q/(tωhω) - 0,25Np/Ab= 140000 : (20,2×940) - 0,25×200000: 56000 = 2,83.
Ширинараскрытия наклонных трещин
acrc= 1×1170(940+ 30×0,7)
= 0,114 мм < 0,15 мм.
Ширинараскрытия наклонных трещин не превышает допустимых пределов.
4.14.Деформации (прогибы, углы поворота) элементов армоцементных конструкций вычисляются по правилам строительноймеханики в зависимости от значений кривизны, определенных согласно указаниямпп. 4.15- 4.20.
Значениякривизны и деформаций армоцементных элементов отсчитываются от их начальногосостояния, при наличии предварительного напряжения арматуры - от состояния дообжатия элемента. Элементы или участки элементов рассматриваются без трещин врастянутой зоне; если трещины не образуются при действии постоянных, длительныхи кратковременных нагрузок, нагрузки вводятся в расчет с коэффициентомнадежности по нагрузке γf = 1.
Прирасчете по деформациям усилия от усадки бетона Nshrпринимаются равными нулю.
4.15. Жесткость элементов при кратковременномдействии нагрузки определяется по формуле
Bf1 = 0,85EbI1, (96)
где Eb - модуль упругости бетона, принимаемый потабл. 10;I1 - момент инерцииармированного сечения, приведенного к бетонному, с учетом коэффициентов сетчатогоармирования в соответствии с отношением модулей Es/Em.
Приведенныекоэффициенты армирования для расчета деформаций определяются по формулам:
длясжатой полки
μ'm1(E)= μ'mf+ μsEs/Em;
длястенки
μm1(E)= μmω;
длярастянутой полки
μm1(E) = μmf + μsEs/Em. (97)
4.16. Полное увеличение кривизны изгибаемых,внецентренно сжатых и внецентренно растянутых элементов на участках, где необразуются нормальные или наклонные к продольной оси элемента трещины, должноопределяться по формуле
ρtot = ρ1 + ρ2 - ρ3 - ρ4, (98)
где ρ1и ρ2 - кривизны соответственно от кратковременных нагрузок(принимаемых согласно указаниям СНиП 2.03.01-84) и отпостоянных и длительных нагрузок (без учета усилия P),определяемые по формулам:
здесь M - момент от соответствующей внешней нагрузкиотносительно оси, нормальной к плоскости действия момента и проходящей черезцентр тяжести приведенного сечения; Bf1- жесткость сечения с учетом быстронатекающей ползучести определяется поформуле (96); φb2- коэффициент, учитывающий влияние ползучести бетона и принимаемый равным: привлажности воздуха окружающей среды 40 % и выше - 2,6; для бетона,изготовленного с пропаркой - 3; при влажности воздуха окружающей среды ниже 40% - 3,9; для бетона, изготовленного с пропаркой - 4,5; Bf2- жесткость армоцементных конструкций при учете продолжительного действиянагрузки, принимаемая равной:
Bf2 = 0,85Bf1; (101)
ρ3 -кривизна, обусловленная выгибом элемента от непродолжительного действия усилияпредварительного обжатия и определяемая по формуле
ρ3 = Plcp/Bf1; (102)
ρ4 -кривизна, обусловленная выгибом элемента вследствие усадки и ползучести бетонаот усилия предварительного обжатия и определяемая по формуле
ρ4 = (Σb - Σ'b)/h. (103)
Здесь Σb,Σ'b- относительные деформации бетона, вызванные его усадкой и ползучестью поддействием усилия предварительного обжатия, определяемые соответственно на уровнерастянутой и сжатой граней сечения по формулам:
Σb = σb/Em; (104)
Σ'b = σ'b/Em. (105)
Значениеσbпринимается численно равным сумме потерь предварительного напряжения арматурыот усадки и ползучести бетона по указаниям СНиП 2.03.01-84 для арматурырастянутой зоны, а σ'b то же для напрягаемой арматуры, если быона имелась на уровне крайнего сжатого волокна бетона.
Значениякривизны ρ3 и ρ4 для элементов безпредварительного напряжения допускается принимать равными нулю.
4.17. При определениикривизны на участках с начальными трещинами в сжатой зоне бетона ρ1,ρ2, ρ3 должны быть увеличены на 15 %, а ρ4- на 25 %.
4.18. Полное значение кривизны изгибаемых,внецентренно сжатых и внецентренно растянутых элементов прямоугольного,таврового и двутавровых сечений на участке, где образуются нормальные кпродольной оси элемента трещины, следует определять по формуле
ρtot= ρ5 - ρ6 + ρ7 - ρ4, (106)
где ρ5- кривизна от непродолжительного действия всей нагрузки, на которуюпроизводится расчет по деформациям, согласно п. 4.22;.ρ6 - кривизна от непродолжительного действия постоянных идлительных нагрузок; ρ7 - кривизна от продолжительного действияпостоянной и длительной нагрузок; ρ4 - кривизна, обусловленнаявыгибом элемента вследствие усадки и ползучести бетона от усилияпредварительного обжатия и определяемая по формуле (103).
4.19. Значение ρ5определяется по формуле
ρ5 = Mcrc/Bf1 + (M - Mcrc)/Bf3, (107)
где M- момент от всей внешней нагрузки относительно оси, нормальной к плоскостидействия момента и проходящей черед центр тяжести приведенного сечения; Mcrc - момент, воспринимаемый сечением,нормальным к продольной оси элемента, при образовании трещин; Bf1 - определяется по формуле (96); Bf3- определяется по формуле
Bf3 = kEbI1, (108)
здесь k - коэффициент, учитывающий снижение жесткостиэлемента, принимается по табл. 14.
ЗначениеMcrc определяется по формулам:
дляэлементов без предварительного напряжения арматуры
Mcrc = WplRbt, ser; (109)
дляпредварительно напряженных элементов
Mcrc = WplRbt, ser ± Mp, (110)
где Wpl - момент сопротивления для крайнегорастянутого волокна сечения с учетом неупругих деформаций растянутого бетона,определяется по формулам (76) и (79).
ЗначениеMp в зависимости (110) определяется поформуле
Mp= P(lcp + r). (111)
Таблица 14
| Коэффициент армирования, % | Коэффициент h для элементов | ||
| изгибаемых и растянутых | внецентренно сжатых | ||
| Сетчатое при сетках: |
|
|
|
| тканых | До 1,5 | 0,08 | 0,16 |
| От 1,5 до 3 | 0,16 | 0,32 | |
| сварных | До 1,5 | 0,1 | 0,2 |
| От 1,5 до 3 | 0,2 | 0,4 | |
| Комбинированное при сетках: |
|
|
|
| тканых | До 1,5 | 0,08 | 0,16 |
| сварных | » 1,5 | 0,1 | 0,2 |
| тканых | От 1,5 до 3 | 0,1 | 0,22 |
| сварных | » 1,5 » 3 | 0,12 | 0,25 |
Вформуле (110)знак «плюс» следует принимать, когда направления моментов Mcrc и Mp противоположны, знак «минус» - когданаправления совпадают.
Вформуле (111)
Mp- момент усилия Np относительно оси,параллельной нулевой линии и проходящей через ядровую точку, наиболее удаленнуюот растянутой зоны, трещиностойкость которой нужно определить; значение Mpопределяется по указаниям СНиП 2.03.01-84, принимая Wpl согласно п. 4.4.
4.20. Значение ρ6 определяетсяпо формуле
ρ6= Mser/Bf3. (112)
где Mser - момент от постоянных и длительныхнагрузок относительно оси, нормальной к плоскости действия момента и проходящейчерез центр тяжести приведенного сечения; Bf3- определяется по формуле (108).
4.21. Значение ρ7определяется по формуле
где Mser - значение такое же, что и в формуле (112); B'f3- определяется по формуле
B'f3 = 0,8Bf3, (114)
здесь Bf3- принимается по формуле (108).
Таблица 15
| № п.п. | Схема загружения | Коэффициент m |
| 1 |
| 5/48 |
| 2 |
| 1/12 |
| 3 |
| 1/8 - x2/6 |
| 4 |
|
|
| 5 |
|
|
| 6 |
|
|
| 7 |
|
|
| 8 |
| 1/4 |
| 9 |
| 1/3 |
| 10 |
| x(1/2 - x/6) |
| 11 |
|
|
| 12 |
|
|
| 13 |
|
|
| 14 |
|
|
4.22. Прогиб, обусловленный деформацией изгиба,определяется по формуле
(116)
где Mx- изгибающий момент в сечении x от действия единичной силы, приложеннойпо направлению искомого перемещения элемента в сечении x по длине пролета, длякоторого определяется прогиб; ρtot,x - полная величинакривизны элемента в сечении x от нагрузки, при которой определяетсяпрогиб; величина ρtot,x определяется поформулам (98),(106);знак кривизны ρ принимается в соответствии с эпюрой кривизны.
Дляэлементов постоянного сечения, имеющих трещины на каждом участке, в пределахкоторого изгибающий момент не меняет знака, кривизну допускается вычислять длянаиболее напряженного сечения, принимая кривизну для остальных сечений такогоже участка изменяющейся пропорционально значениям изгибающего момента.
Длянекоторых наиболее распространенных случаев загружения прогиб изгибаемогоэлемента постоянного сечения может определиться по формуле
f= mρtotl2, (117)
где m - коэффициент, принимаемый в зависимости отусловий опирания и схем загружения (табл. 15); ρtot - кривизна в сечении с наибольшимизгибающим моментом от нагрузки, при которой определяется прогиб; l - расчетный пролет элемента.
Пример31.
Дано. Армоцементный складчатый элемент высотой1000 мм, шириной 2000 мм, толщиной наклонных стенок tω = 20 мм, толщиной ишириной горизонтальных полок tf = t'f= 30 мм, bf = b'f = 200 мм армируется восемью сварными сетками №12,5-0,5 - ТУ 14-4-713-76 в сжатой и растянутой полках сечения; четырьмясварными сетками № 12,5-0,5 по ТУ 14-4-713-76 в наклонных гранях сечения;сварными плоскими каркасами из арматуры диаметром 10 мм класса А-III в сжатой и растянутой полках (A's= As = 78,5×4= 314 мм2) (рис. 34).
Расчетныесопротивления и модули упругости арматуры и бетона равны: для сварных сеток Em= 150000 МПа, для арматуры класса А-III Es= 200000 МПа.
Длямелкозернистого бетона группы А класса В35 прочность на осевое сжатие,прочность на осевое растяжение Rbt, ser = 1,56 МПа,коэффициент условия работы γb1= 1. Начальный модуль упругости бетона естественного твердения Eb= 27500 МПа.
Всечении действуют изгибающий момент от полной нагрузки Mtot= 200 кН×м и продольная сила Ntot = 800 кН, в том числеот части постоянных и длительных нагрузок Me= 170 кН×м, Ns = 690 кН.
Требуетсяопределить прогиб складчатого элемента длиной 15 м.
Жесткостьэлемента при отсутствии трещин
Bf1= 0,85×27500×10072,4×106= 23543,3×1010 МПа.
Жесткостьэлемента при наличии трещин
Bf3= KEbI1= 0,25×27500×10072,4×106= 69247,75×109 Н×мм2.
Значениеk - коэффициента, учитывающего снижениежесткости элемента, принимаем по табл. 14.
Дляэлемента с комбинированным армированием при сварных сетках μm1= 0,042, k = 0,25.
Приведеннаяплощадь таврового сечения
A'b= 400×30(1+ 5,45×0,0384)+ (940 + 30)46(1 + 5,45×0,0028) = 59812,3 мм2.
Приведеннаяплощадь свесов растянутой полки
Aft = (400 - 46)30(1 + 5,26×0,0384)= 12776,2 мм2;
статическиймомент площади таврового сечения (без свесов растянутой полки) относительнонижней границы
Sb= 400×30(1000- 30/2)(1 + 1,26×0,0384) + (940 + 30)46(940/2 + 30)(1 + 5,26) = 36599587 мм3.
Высотасжатой зоны h - x= 36599587/(59812,3 + 12776,2) = 552,86 мм, откуда x = 1000- 552,86 = 447,14 мм.
Моментинерции сжатой зоны сечения относительно нейтральной оси
Ic1= [400×303/2+ 400×30(447,14- 30/2)2](1 + 5,26×0,0384) + [46(447,14 - 30)3/12+ 46(447,14 - 30)((447,14 - 30)/2)2] + 5,26×0,0028= 94579730 + 1182481600 = 1277061330 мм4.
Статическиймомент растянутой части сечения относительно нейтральной оси
St= 400×30(1000- 447,14 - 30/2)(1 + 5,26×0,0384) + [(940 + 30 - 447,14)46(940 + 30- 447,14)/2](1 + 5,26×0,0088) = 14138332 мм3.
Моментсопротивления приведенного сечения по формуле (76)
Wpl = 2Ic1/(h - x)+ St = 2×1277061,339 : (100 - 447,14) + 14138332 = 18758167 мм3.
Моменттрещинообразования по формуле (109)
Mcrc = WplRbt,ser = 18758167×15,6 = 29,262 кН×м.
Складчатаяплита работает с трещинами, так как Mcrc = 29,262 кН×м<M = 170 кН×м.
Кривизнаот непродолжительного действия всей нагрузки по формуле (107)
ρ5 = Mcrc/Bf1 + (M - Mcrc)/Bf3= 29,263×106 : (23543,3×106)+ (200×106- 29,263×106) : (6924,78×1010)= 0,025898×10-4 мм-1.
Кривизнаот непродолжительного действия постоянных и длительных нагрузок ρ6по формуле (112)
ρ6 = Me/Bf3= 170×106 : (6924,78×1010) = 0,024549×10-4мм-1.
Кривизнаот продолжительного действия постоянной и длительно действующей нагрузок поформуле (113)
ρ7 = Me/B'f3= 170×106 : (5539,82×1010) = 0,03069×10-4мм-1,
где B= 0,8B = 0,8×6924,78×1010= 5539,82×1010.
Суммарнаякривизна в соответствии с п. 4.18 по формуле (106)
ρtot= 0,0258988×10-4 - 0,0245495×104+ 0,03069×10-4 = 0,0320393×10-4мм-1.
Прогибв середине элемента определяем по формуле (117):
f = mρtotl2 = (5 :48)0,0320393×10-4×149002 = 7,4 мм.
Прогибскладки равен 74 мм. Допустимый прогиб 74,5 мм. Вычисленный прогиб меньшедопустимого.
Пример32.
Дано. Армоцементная складчатая плита покрытия срасчетным пролетом 5,95 м выполнена с армированием двумя ткаными сетками № 10-1ГОСТ3826-82* (коэффициент сетчатого армирования при одном слое сеток на 1 смтолщины составляет μm= 0,0071) и сварными сетками из стальной низкоуглеродистой холоднотянутойпроволоки класса Вр-I (в сжатой зоне восемь проволок диаметром 3 мм, A'm= 8×0,071= 0,57 см2; в растянутой зоне 28 проволок диаметром 4 мм, Am= 28×0,126= 3,53 см3) (см. рис. 38).
Плитавыполнена из мелкозернистого бетона класса В40 группы А. Rbt, ser= 2,1 МПа, Eb = 28,5×103МПа.
Изгибающиймомент, действующий на плиту, равен: M = 30,446 кН×м.
Требуетсяпроизвести расчет по деформациям в случае отсутствия и в случае образованиятрещин в растянутой зоне.
Расчет по деформациям. Приведенная площадь двутаврового сечения
A1= 92×2(1 + 5,26×0,0106) + 16,55×19,5(1 + 5,26×0,0071) + 184,0×2,5(1 + 5,26×0,0144) = 1023,88 см2,
где
α = Em/Eb = 150000 : 28500 = 5,26.
Приведенныйстатический момент площади двутаврового сечения относительно нижней грани
S1= 92×2(1+ 5,26×0,0106)(24- 2/2) + 19,5×16,55(1 + 5,26×0,0071)(24- 2 - 19,5/2) + 184×2,5(1 + 5,26×0,0144)2,5/2= 9187,52 см2.
Расстояниеот центра тяжести сечения до нижней грани
yc = S1/A1 = 9187,52 : 1023,88 = 8,97см.
Моментинерции относительно центра тяжести приведенного сечения
I1= 92×23/12+ 92×2(24- 8,97 - 2/2)2(1 + 5,26×0,0106)+ 16,55×19,33/12(1 + 5,26×0,0071)+ 184×2,53/12+ 184×2,5(8,97- 2,5/2)2(1 + 5,26×0,144) = 81889,63 см4.
Приведенныекоэффициенты армирования соответственно для стенки, сжатой и растянутой полокпо формуле (97)равны:
μω(E)1= μω = 0,0071;
μ'(E)1 = μ'm + μ'sEs/Em = 0,0071 + 0,0031×170000 : 150000 = 0,0106;
μ(E)1= μm + μsEs/Em = 0,00567 + 0,00767×170000 : 150000 = 0,0144;
μm= 2μ/tf = 2×0,0071 : 2,5 = 0,00567;
μs= As/(bftf) = 3,53 : (184×2,5) = 0,00767.
Жесткостьэлементов до появления трещин при кратковременном действии нагрузки по формуле(96)
Bf1= 0,85×81889,63×28500×100= 1983776,1×105 Па×см2.
Жесткостьэлементов при наличии трещин и кратковременном действии нагрузки по формуле (107)равна: при коэффициенте K = 0,16 при μm1= 1,8 % и тканых сеток по табл. 14.
Bf3= 0,16×38500×81889,6×100= 504440,1×105 Па×см2.
Таккак по формуле (80) Wpl = γW1,
где
W1= I1/yc;γ= 1,1 (см. табл. 13),
тогда Wpl= 1,1×81889,63/8,97= 10042,206 см3.
Моменттрещинообразования по формуле (109) и в соответствии с п. 4.14равен:
Mcrc= 10042,206×2,1×100= 2108863,26 Н×см.
Кривизнаэлемента при наличии трещин по формуле (107)
ρ5= Mcrc/Bf1 + (M - Mcrc)/Bf3= 2108863,26 : (1983776,13×105) + (3045000 - 2108863,26) :50440,1208×105 = 2,918×10-5см-1.
Моментот постоянных и длительных нагрузок Mser равен:
Mser = 19,82512 кН×м.
Кривизнаρ6 по формуле (112)
ρ6= 1982512 : 504440,12×105 = 3,93×10-5см-1.
Кривизнаρ7 по формуле (113)
ρ7= Mser/B'f3;при B'f3= 0,8 Bf3.
ρ7= 1982512/0,8×504440,12×105 =4,91×10-5см-1.
Ссылаясьна п. 4.14, ρ4принимаем равным нулю; тогда полная кривизна по формуле (106)равна:
ρtot= (2,92 - 3,93 + 4,9)10-5 = 3,9×10-5см-1.
Прогибпанели по формуле (117) равен: m= 5/48 (см. табл. 15),
f = mρtotl2 = (5 :48)3,9×5,952×10-5 = 1,4 см.
Поскольку1,4 < 1/300×595 = 1,9 см, жесткость панели достаточна.
Пример33.
Дано. Армоцементная складчатая плита покрытия,рассмотренная в прим. 1. Момент от нормативной нагрузки M= 87400 Н×м.
Требуетсярассчитать плиту по деформациям.
Расчет. Момент при образовании трещин равен Mcrc =62138 Н×м.
Жесткостьсечения при кратковременном действии нагрузки по формуле (96)равна: Bf1 = 0,85×2,4×104×688085= 14036×108 Па×см2.
Жесткостьсечения с учетом коэффициента снижения жесткости k, принимаемогопо табл. 14и равного 0,08 по формуле (108), равна: Bf3= 0,08×2,4×104×688085= 1321×108Па×см2.
Кривизнаот непродолжительного действия всей нагрузки по формуле (107)равна:
ρ5= 6213800/14036×108 + (8740000 - 6213800)/1321×108= 2,363×10-5 см-1.
Кривизнаот непродолжительного действия постоянных и длительных нагрузок по формуле (112)равна:
ρ6= M/Bf3= 6650000 : (1321×108) = 5,03×10-5см-1.
Кривизнаот продолжительного действия постоянных и длительных нагрузок по формуле (113)равна:
ρ7= M/B'f3= M/0,8Bf3= 6650000 : (0,8×1321×108)= 6,29×10-5см-1.
Полнаякривизна по формуле (106) равна:
ρtot= ρ5- ρ6+ ρ7= (2,368 - 5,03 + 6,29)10-5 = 3,628×10-5см-1.
Прогибпанели по формуле (117) равен:
f = mρtotl2 = (5 :48)3,628×10-5×8952 = 3,03 см.
Таккак f = 3,03 см < 1/250l= 1/250×895 = 3,58 см, следовательно, жесткостьпанели достаточна.
Пример34.
Дано. Армоцементный элемент, приведенноедвутавровое сечение которого имеет высоту 550 мм, толщину сжатой и растянутойполок 50 мм, толщину стенки 75 мм и ширину верхней полки 600 мм, а нижней - 500мм, воспринимает действие продольной силы N= 155,11 кН от всей нагрузки и момент M= 52,136 кН×м;N1 = 127,16 кН и M1= 20,34 кН×мот длительно действующей нагрузки.
Моментот полной нормальной силы N = 155,11 кН относительно центра тяжестиарматуры растянутой полки
M= N(e0+ h/2 - tf/2)= 155110(40 + 55 : 2 - 5 : 2) = 100820 Н×м.
Момент,воспринимаемый нормальным сечением при образовании трещин, равен: Mcrc = 25,791 кН×м.
Моментот длительно действующей нормальной силы относительно центра тяжести арматурырастянутой полки
M= N(e0+ h/2 - tf/2)= 127160(16 + 55 : 2 - 5 : 2) = 52136 Н×м.
Требуетсярассчитать армоцементный элемент по жесткости.
Расчет. Жесткость сечения при кратковременномдействии всей нагрузки по формуле (96)
Bf1= 0,85×23×104×521098= 10185×108 Па×см2.
Жесткостьсечения по формуле (108) с учетом коэффициента снижении жесткости k,принимаемого по табл. 14 и равного 0,16, равна:
Bf3= 0,16×2,3×104×521098= 1917×108Па×см2.
Кривизнаот непродолжительного действия всей нагрузки по формуле (107)
ρ5= 2579100/(10185×108) + (1008200 -2579100)/(1917×108) = 4,166×10-5см-1.
Кривизнаот непродолжительного действия постоянных и длительных нагрузок по формуле (112)
ρ6= M/Bf3= 5213600 : (1917×108) = 2,72×10-5см-1.
Кривизнаот непродолжительного действия постоянных и длительных нагрузок по формуле (113)
ρ7 = Mser/B'f3= Mser/0,8Bf3 = 5213609 :(0,8×1917×108)= 3,4×10-5см-1,
где B'f3определяется по формуле (114).
Полнаякривизна по формуле (106)
ρtot= ρ5- ρ6+ ρ7= (4,166 - 2,72 + 3,4)×10-5 = 4,846×10-5см-1.
Прогибпанели по формуле (117)
f = mρtotl2 = (1 :48)4,846×1×12002 = 1,45 см.
Таккак f = 1,45 < 4,8 см, жесткость панелидостаточна.
5.1. При проектированииармоцементных конструкций и изделий для обеспечения условий их экономичного икачественного изготовления, требуемой долговечности совместной работы арматурыи бетона надлежит выполнять конструктивные требования, изложенные в настоящемразделе.
5.2. Конструкциидолжны приниматься простого очертания, удобные для изготовления с максимальнойстепенью механизации, например плоские преднапряженные листы, изготовляемые надлинных стендах с последующим приданием этим листам цилиндрической формы, благодарячему таким конструкциям присуща пространственная работа под нагрузкой. Следуетиспользовать арматуру, закладные детали, выпускаемые в виде товарной продукциипо нормалям и ГОСТам. Применяя арматуру для армирования плоских преднапряженныхлистов в виде товарных бухт высокопрочной проволоки и рулонов сетки,разматываемых на длинных стендах механически, будет достигнуто сокращениетрудозатрат на изготовление армоцементных конструкций.
Распалубочнуюи отпускную прочность бетона следует назначать минимально возможными, а режимытермообработки ускоренными для увеличения оборота стенда и интенсивногоиспользования производственных площадей.
Необходимостремиться к унификации конструкции покрытий производственных зданий и крышжилых домов, ограждающих конструкций элементов несъемной опалубки и др.,выполнение которых возможно из плоских предварительно напряженных листов.Унификация конструкций необходима также из условия загрузки технологическогооборудования, так как разовые конструкции не могут обеспечить загрузкитехнологического оборудования и вследствие этого созданиевысокомеханизированного производства таких конструкций не может бытьэкономически выгодным.
5.3 (5.2). Минимальные размеры сечений элементов армоцементных конструкций,определяемые из расчета на действующие усилия по предельным состояниям первой ивторой групп, должны назначаться с учетом требований к толщине защитного слоябетона, расположения и анкеровки арматуры, унификации размеров сечений иармирования, а также технологии изготовления конструкций.
5.4. Толщину полок истенок несущих армоцементных конструкций следует принимать не менее 15 и неболее 30 мм. Контурные ребра, ребра жесткости, диафрагмы в случае, если этиэлементы конструкции требуются по расчету, могут выполняться толщиной более 30мм. Утолщения более 40 мм (контурные ребра, ребра жесткости, диафрагмы и т.п.)допускается выполнять без сеток с соблюдением правил конструированияжелезобетонных конструкций по СНиП 2.03.01-84.
Впределах участка конструкции, где отсутствует сетчатое армирование, требованияв части толщины защитного слоя и ширины раскрытия трещин принимаются как дляжелезобетонных конструкций.
5.5. Во избежаниеповреждений от местных концентраций напряжений при резком изменении направленийграней изделия, например во внутренних углах, рекомендуется предусматриватьсмягчение очертания в виде уклонов, фасок или закруглений, по возможностинебольшой величины (до 30 мм), чтобы не требовалось местное армирование. Вовнешних острых углах, во избежание откалывания бетона, следует устраивать скосыили закругления.
5.6. Отверстия вармоцементных элементах для пропуска коммуникаций, строповок и т.п. следуетпринимать по возможности небольшими и располагать их в пределах ячеекарматурных сеток и каркасов так, чтобы не нужно было перерезать основнуюарматуру и вводить дополнительное местное армирование. Углы отверстийжелательно делать плавными.
5.7. Припроектировании армоцементных конструкций их очертание следует принимать сучетом устройства и способа формования.
Приприменении неразъемных форм для возможности извлечения изделия из формы должныпредусматриваться уклоны не менее 1:10. В случае применения неразъемных форм сиспользованием выпрессования уклон должен быть не менее 1:15.
Принемедленной распалубке с обеспечением фиксированного вертикальногоперемешивания формующего элемента оснастки уклон должен быть не менее 1:50.
5.8 (5.4).Защитный слон бетона, т.е. слой бетона от поверхности элемента до поверхностиарматуры, должен быть достаточным для обеспечения совместной работы арматуры ибетона, защиты арматуры от коррозии на всех стадиях изготовления, монтажа иэксплуатации.
Проектнаятолщина защитного слоя бетона в армоцементных конструкциях должна быть неменее:
длясетки - 4 мм;
длястержневой и проволочной арматуры при наличии сеток в пределах защитного слоябетона - 8 мм.
Толщинузащитного слоя бетона следует принимать с учетом требований по технологииизготовления конструкций.
5.9. Для армоцементных конструкций безгидроизоляционного покрытия толщина защитного слоя бетона для напрягаемойарматуры в пределах длины зоны передачи напряжений lpдолжна приниматься неменее двух диаметров арматуры, но не более 15 мм.
5.10 (5.6). Во всех сборных изгибаемыхэлементах концы продольных стержней ненапрягаемой арматуры должны отстоять отторца элемента не более чем на 5 мм. Концы напрягаемой арматуры, а также анкерынеобходимо защищать слоем мелкозернистого бетона не менее 5 мм.
5.11. Припроектировании необходимо предусматривать меры по фиксации проектного положениясеток, стержневой и проволочной арматуры в сечении элемента (установкойпрокладок и подкладок, шайб из бетона) применением машинной укладки сетки в процессеизготовления изделия поддержанием арматурного пакета в проектном положенииперемещающимся ползунком впереди бетонирующего самоходного агрегата.
Приневозможности выполнения этих требований должны применяться оцинкованныеарматура и сетки.
5.12. В элементах армоцементных конструкцийсетки следует располагать на минимальном (в соответствии с п. 5.8)расстоянии от поверхности элементов для восприятия температурно-усадочныхнапряжений. Для восприятия растяжения, возникающего в зоне самозаанкериваниястержневой и проволочной арматуры, частые сетки рекомендуется располагать наминимальном расстоянии от поверхности этой арматуры.
5.13. В пределахполки или стенки элементов армоцементных конструкций должно располагатьсясимметрично относительно срединной поверхности не менее двух сеток.
Изгибаемыеэлементы прямоугольного сечения допускается армировать в растянутой зоне однойили несколькими сетками. Армоцементные элементы с конструктивным армированиемдопускается армировать одной сеткой, расположенной в их срединной поверхности.
Армоцементныеэлементы армировать в количестве более четырех сеток на 1 см толщины недопускается.
5.14. Отдельныестержни ненапрягаемой или напрягаемой арматуры в стенках и полках элементовармоцементных конструкций должны располагаться, как правило, равномерно посечению, предусматривая установку большого количества стержней меньшегодиаметра при минимальном расстоянии между ними.
Арматуруследует предусматривать так, чтобы при том же расходе металла количествоклассов и диаметров арматуры было минимально. Арматура должна допускать укладкуее в форму в соответствии с принятой технологией: готовыми пакетами до укладкибетона; готовыми пакетами в свежеуложенный бетон; отдельными сетками всвежеуложенный бетон; отдельными сетками в процессе укладки бетона.
5.15 (5.11). Отверстия в армоцементныхконструкциях следует окаймлять дополнительной арматурой, сечение которой должнобыть не менее сечения рабочей арматуры, расположенной в пределах отверстия,требуемой по расчету плиты как сплошной. При конструктивном армировании плиты инебольших размерах отверстий край плиты армируется исходя из конструктивныхтребований.
Приналичии сосредоточенных нагрузок по краям плиты армирование и утолщение должнывыполняться по расчету.
5.16 (5.12).Арматурные сетки в армоцементных конструкциях должны быть заведены за линиюпересечения срединных плоскостей стенки и полки на длину не менее утроеннойширины ячейки сетки и не менее 30 мм.
5.17 (5.13). Коэффициент сетчатогоармирования внецентренно сжатых элементов в направлении действия усилия сжатиядолжен, как правило, составлять не более 1,5 %.
5.18 (5.14). Стержневую и проволочнуюарматуру во внецентренно сжатых элементах следует предусматривать диаметром неболее 1/2 толщины полки или стенки и не более 8 мм.
Вперегибе сеток рекомендуется устанавливать стержни.
5.19. Сетки в сжатыхэлементах должны располагаться в крайнемвозможном положении относительно центра тяжести сечения, чтобы повыситьжесткость элемента против выпучивания.
5.20 (5.16). В изгибаемых элементахтаврового, двутаврового сечений (или приводимого к ним сечения) с полкой врастянутой зоне продольная стержневая или проволочная арматура должнарасполагаться в растянутой зоне сечения симметрично относительно вертикальнойоси элемента.
5.21 (5.17). Поперечное армированиеэлементов, как правило, выполняется сетками с квадратной ячейкой.
5.22. Анкеровкапоперечной арматуры в полках изгибаемых элементов должна выполняться согласнотребованиям п. 5.16настоящих норм.
5.23 (5.19). Армирование цилиндрических,складчатых и коробчатых элементов следует предусматривать неразрезными сеткамис их перегибом по линии примыкания граней.
5.24 (5.20). Диаметр стержневой ипроволочной арматуры изгибаемых элементов должен предусматриваться с учетомвозможности расположения арматуры в тонкостенном сечении или в утолщениях.
Стержневуюи проволочную арматуру диаметром 8 мм и более, а также канаты диаметром более 6мм допускается предусматривать только в ребрах элемента.
5.25 (5.21). Расстояние между напрягаемойарматурой должно быть не менее 3ds, где ds -диаметр стержня (каната).
5.26 (5.22). Расстояние между отдельнымистержнями арматурных сеток, выполняющих также роль фиксатора проектногоположения сетчатого армирования, следует назначать не более 15 см.
5.27. Армоцементныеконструкции должны проектироваться с арматурой, имеющей сцепление с бетоном повсей длине элемента. В случае необходимости, например для сокращения зоныанкеровки, допускается устройство анкеров. Применение конструкций, в которыхарматура не имеет сцепления с бетоном, допускается при обосновании вустановленном порядке.
5.28. На свободныхопорах плоских изгибаемых элементов для обеспечения анкеровки сеток, доходящихдо опоры, должны выполняться следующие требования (рис. 39):
длинаопорного участка плиты lsup должнабыть не менее 3t и не менее 40 мм;
длиназапуска арматуры за грань опоры lsup,s должна быть не менее 20dmдля сварных сеток и 30dm для тканых сеток, прикомбинированном армировании 15ds, для плетеных сеток 50dm.
Участкисетки, заходящей за грань свободной опоры, должны иметь не менее двухпоперечных анкерующих стержней.
5.29. Продольные стержни растянутой и сжатойарматуры должны быть заведены за нормальное к оси элемента сечение, в которомэти стержни учитываются с полным расчетным сопротивлением, на длину не менее lp, определяемую в соответствии с п. 2.26.
5.30. Приневозможности выполнения требования п. 5.29 настоящего Пособиянеобходимо предусмотреть меры по анкеровке продольных стержней для обеспеченияих работы с полным расчетным сопротивлением в рассматриваемом сечении:

Рис.39. Схема свободного опирания армоцементных плоскихизгибаемых элементов
Рис. 40. Приварка к концам стержнейанкерующих пластин или закладных деталей
1 - пластина(рифленная в местах контактной сварки); 2 - рабочие стержниненапрягаемой арматуры; 3 - место точечной электросварки; 4 - сетки
а)приварка к концам стержней анкерующих пластин или закладных деталей (рис. 40);
б)отгиб анкерных стержней по дуге окружности диаметром 10d,при этом длина прямого участка у начала зоны анкеровки должна быть не менее 5d,а на отогнутом участке стержня должна быть уложена дополнительная сетка.
5.31 (5.27). Продольные растянутые сеткидолжны быть заведены за нормальное к оси элемента сечение, в котором онинеобходимы по расчету, на длину не менее 20dmдля сварных сеток и не менее 30dm для тканых сеток.
5.32 (5.28). Стыки сеток допускаетсяосуществлять внахлестку, причем стыки в растянутой зоне изгибаемых иливнецентренно сжатых элементов рекомендуется располагать в местах неполного использованиясечения арматуры.
5.33. Стыкирастянутых сеток в рабочем направлении, выполняемые внахлестку, должны иметьдлину перепуска (нахлестки) в тканых сетках не менее 100 мм, в сварных - неменее 60 мм, а стыки не растянутых сеток - соответственно 50 и 30 мм (рис. 41).Стыки растянутых сеток элемента должны располагаться вразбежку. Сечениестыкованных сеток в одном месте или по длине нахлестки должно составлять неболее 50 % общего сечения растянутых сеток.
Вместах соединения сеток в рабочем направлении в каждой из стыкуемых сеток подлине нахлестки должно располагаться: для сварных сеток - не менее четырехпоперечных проволок, приваренных ко всем продольным стержням сетки, а длятканых сеток - не менее шести поперечных проволок.
Рис.41. Стыки сеток, выполняемые внахлестку
а -стыки растянутых тканых сеток в рабочем направлении; б - то же, конструктивные стыки; в- стыки растянутых сварных сеток в рабочем направлении; г - то же, конструктивные стыки
5.34 (5.30). Стыкование внахлесткустержневой и проволочной арматуры, которая используется с полным расчетнымсопротивлением, в тонкостенных армоцементных элементах не допускается.
5.35 (5.31). Во внецентренно сжатыхэлементах сетки рекомендуется соединять в поперечном направлении между собойскрутками, сжимами или другими способами.
5.36. Закладныедетали следует изготовлять из рифленых штампованных пластин толщиной не менее 5мм с приваркой их контактной электросваркой к арматурным изделиям, а такжеанкерным стержням диаметром 3 - 6 мм (рис. 40).
5.37 (5.33). Стальные закладные деталидолжны быть защищены от коррозии в соответствии с требованиями СНиП 2.03.01-84.
5.38. Конструкциястыков сборных элементов, работающих на изгиб, внецентренное сжатие илирастяжение, должна обеспечиватьвосприятие расчетных усилий с учетомвозможных монтажных эксцентриситетов.
Вслучаях когда передача усилий в стыках осуществляется через закладные детали,анкерные стержни закладных деталей должны быть равнопрочными с прерываемой встыке стержневой и проволочной арматурой и сетками соединяемых элементов.
Стыкисборных элементов рекомендуется предусматривать одним из следующих способов:
а)установкой диафрагм между торцами элементов и сваркой стальных закладныхдеталей накладными пластинками, пропускаемыми через отверстия в диафрагмах, споследующим замоноличиванием стыка;
б)устройством контурных ребер, контактной сваркой выпусков стержневой ипроволочной арматуры и дуговой сваркой закладных деталей,стыкуемых элементов и ребер (рис. 42) с последующим замоноличиванием стыка;
в)соединением элементов с помощью предварительно напряженных стержней (рис. 42) сзамоноличиванием шва для предварительно напряженных конструкций, а такжестыкуемых насухо или с промазкой торцов стыкуемых элементов эпоксидным компаундом;
г)применением сквозной стержневой и проволочной арматуры, в том числе напрягаемой, всборномонолитных конструкциях.
Рис.42. Стыки складчатых сборных армоцементных конструкций, работающих навнецентренное сжатие и поперечную силу
а -стык, выполняемый с контурной диафрагмой, сваркой стальных деталей и выпусковарматуры с последующим замоноличиванием; б - стык, выполняемый с натяжением арматуры: 1 -складчатый элемент; 2 -диафрагма; 3 - стальныенакладные пластины; 4 -закладные детали; 5 - контурная диафрагма; 6 - выпуски арматуры; 7 - бетонзамоноличивания; 8 -стыковая напрягаемая арматура; 9- продольная напрягаемая арматура; 10 - сварной шов; 11 -анкер на стыковом стержне; 12 -анкерная колодка
5.39 (5.35). Замоноличивание стыков сборныхэлементов следует, выполнять, как правило, путем заполнения шва междуэлементами мелкозернистым бетоном, причем ширина шва должна быть не более 1,5t ине менее 0,5 см. Допускается применение полимербетонов для замоноличивания швовшириной менее 1 см.
5.40 (5.36). В предварительно напряженныхэлементах сетчатое армирование в пределах обжатой зоны должно быть минимальным,но не менее двух сеток. Сетки должны располагаться симметрично относительнонапрягаемой арматуры.
5.41. У концапредварительно напряженных элементов в пределах зоны анкеровкинапрягаемой арматуры на участке длиной не менее 50ds(где ds - наибольший диаметрнапрягаемой арматуры) вне зависимости от способа анкеровки следуетустанавливать не менее двух дополнительных сеток симметрично относительно этойарматуры (см. п. 5.12).

Рис.43. Схема анкеровки напрягаемой арматуры
а - напрягаемаяарматура, заанкеренная на упорах формы; б - элемент после отпуска предварительного напряжения арматуры; 1 - высаженная головка на концепроволоки; 2 - анкерная шайба с прорезью; 3 - проволока; 4 - промежуточная высаженная головка; 5- неподвижный анкерный упор; 6 -предварительно напряженный элемент; 7 - основные сетки; 8 - дополнительные сетки
5.42.Анкеровка напрягаемой арматуры должна осуществляться с помощью специальныханкерных шайб и высаженных головок стержневой и проволочной арматуры (рис. 13).Допускается не применять анкерные устройства на концах напрягаемых стержневой ипроволочной арматуры периодического профиля, если класс бетона и передаточнаяпрочность бетона более значений, установленных в табл. 8СНиП 2.03.03-85 итолщина защитного слоя бетона напрягаемой арматуры соответствует требованиям п.5.8- 5.9настоящего Пособия.
Общиетребования
5.43. В рабочих чертежах армоцементныхконструкций или в пояснительной записке к ним должны быть указаны следующиетребования:
а)класс бетона по прочности на сжатие и в случаях, предусмотренных в п. 2.6 маркибетона по морозостойкости и водонепроницаемости;
б)вид арматуры (сетка стержневая и проволочная) и ее профиль, класс арматуры, а внеобходимых случаях (например, для конструкций, работающих при низкихтемпературах) и марки стали, номер ГОСТа, а при его отсутствии номертехнических условий на данный вид арматуры, методы изготовления арматурногокаркаса, порядок его сборки, расход материалов;
в)мероприятия по антикоррозионной защите;
г)толщина защитного слоя бетона для рабочей арматуры, а также необходимостьприменения соответствующих методов фиксации, обеспечивающей проектное положениеарматуры;
д)расчетные схемы, нагрузки, расчетные усилия в основных сечениях, в том числе отпостоянных и длительных нагрузок.
Дополнительныетребования, указываемые на рабочих чертежах элементов сборных армоцементныхизделий.
5.44. В рабочихчертежах элементов сборных конструкций или в пояснительной записке к ним кромеданных, перечисленных в п. 5.43, должны быть указаны:
а)наименьшие размеры опорных участков;
б)степень (качество) отделки поверхности (при необходимости);
в)места для захвата при снятии с форм, подъеме и монтаже, место их опирания при транспортированиии складировании;
г)требования о нанесении заводом-изготовителем меток (рисок) для обеспечениякачественной укрупнительной сборки, а для элементов с трудноразличимым верхомили торцами требование о нанесении заводом-изготовителем маркировки (надписи),обеспечивающей правильность положения таких элементов при их подъеме,транспортировании и укладке;
д)для элементов, образцы которых согласно требованиям нормативных документовиспытываются загружением, должны указываться схемы испытания, величинынагрузок, прогибов и других контролируемых величин;
е)величина отпускной прочности бетона для предусмотренных условий монтажа изагружения;
ж)масса сборного элемента.
5.45. Системаоформления рабочих чертежей армоцементных конструкций должна обеспечиватьудобство пользования чертежами на каждом технологическом переделе производствакак в случае возведения монолитных армоцементных конструкций, так и в случаезаводского изготовления и монтажа армоцементных изделий.
Рабочиечертежи следует оформлять на определенных исполнителей и службы. Должна бытьобеспечена возможность передачи отдельных листов рабочих чертежей натехнологические переделки без доработки, перечерчивания или составлениядополнительных эскизов.
5.46. Рабочие чертежиармоцементных конструкций должны быть удобны для пользования. Рекомендуетсяоформление их в виде альбомов небольшого размера.
Целесообразноразделение альбомов рабочих чертежей на две части: 1 - общие виды конструкции,узлы, монтажные схемы армирования; 2 - рабочие чертежи арматурных элементов изакладных деталей.
Рабочиечертежи сложных арматурных изделий рекомендуется оформлять в виде рядадеталировочных чертежей, каждый из которых предназначен для выполненияопределенных операций.
5.47. В рабочихчертежах армоцементных изделий массового производства рекомендуетсяпредусматривать варианты отдельных конструктивных решений, учитывающихразличные особенности технологии, в частности конструктивные решения арматурныхэлементов и закладных деталей. Должны быть даны указания, позволяющиепроизводить замену отсутствующих видов арматуры, употребляемой в проекте безсущественного ее перерасхода
| № сетки | Номинальный диаметр проволоки сеток, мм | Размер ячейки в свету, мм | Площадь сечения одной проволоки, см2 | Количество проволок на 1 м ширины сетки, шт. | Масса 1 м2 сетки, кг | Коэффициент сетчатого армирования при одном слое на 1 см толщины сечения элемента | |
| Тканые сетки по ГОСТ 3826-82 * | 6 | 0,7 | 6 ´ 6 | 0,00385 | 149 | 0,9 | 0,0058 |
| 7 | 0,7 1,1 | 7 ´ 7 7 ´ 7 | 0,00385 0,00951 | 130 124 | 0,8 1,9 | 0,005 0,0119 | |
| 8 | 0,7 1,2 | 8 ´ 8 8 ´ 8 | 0,00385 0,01131 | 115 109 | 0,7 2,1 | 0,0044 0,0123 | |
| 9 | 1 | 9 ´ 9 | 0,0785 | 100 | 1,3 | 0,0078 | |
| 10 | 1 | 10 ´ 10 | 0,00785 | 91 | 1,2 | 0,0071 | |
| 12 | 1,2 | 12 ´ 12 | 0,01131 | 76 | 1,4 | 0,0086 |
Дано. Армоцементная предварительно напряженнаяскладка имеет следующие размеры сечения: ширина 2 м, высота 1,2 м (рисунок).Пролет складки 18 м. Эксплуатируют конструкцию в отапливаемом помещении сотносительной влажностью выше 40 %. Конструкция отвечает требованиям икатегории трещиностойкости. На 1 м складки шириной 2 м действуют следующиенагрузки в кН×м:
нормативные:
постояннаяgn = 2,3×2= 4,6 кН×м;
временная(кратковременная) Pn = 1×2= 2 кН×м;
полная,qn = gn+ Pn = 4,6 + 2 = 6,6 кН×м;
расчетные:
постояннаяg = 2,65×2= 5,3 кН×м;
временнаяP = 1,4×2= 2,8 кН×м;
полнаяq = 5,3 + 2,8 = 8,1 кН×м.
Расчетнаясхема для расчета складки принимается как для балки на двух опорах, загруженнойравномерно распределенной нагрузкой.
1.Расчетный изгибающий момент в середине пролета от полной нагрузки
M= ql2/8= 8,1×182: 8 = 328 кН×м.
2.Изгибающий момент от полной нормативной нагрузки (для расчета прогибов итрещиностойкости)
Mn= qnl2/8= 6,6×182: 8 = 267,3 кН×м.
3.Изгибающий момент от нормативной постоянно действующей нагрузки Mng =4,6×182/8= 186,3 кН×м.
4.Момент от собственной массы конструкции Mcbn= 2,7×182/8= 109 кН×м.
5.Момент от нормативной постоянной и длительной (30 % снеговой) нагрузки
Mn =(4,6 + 0,3)2×182/2 = 210,6 кН×м.
6.Момент от нормативной кратковременной нагрузки Mn= 2×182/8= 81 кН×м.

Рис.44. Сечение армоцементной складки покрытия пролетом 18 м с предварительнонапряженной арматурой
а - поперечноесечение складки; б - расчетное сечение; 1 - тканая сетка № 10-1 по ГОСТ3826-82*; 2 - сварная сетка из проволоки Æ 5 Вр-I; 3 - напрягаемая арматура Æ 6 Вр-II
7.Максимальная поперечная сила на опоре от расчетной нагрузки
Q = ql/2 =8,1×18 : 2 = 72,1 кН.
8.То же от нормативной нагрузки Qn = 6,6×18/2 = 59,4 кН.
Расчетныеданные для подбора сечения
Принимаем,что складка изготовлена из тяжелого мелкозернистого бетона по прочности насжатие класса В40 группы А, подвергнутого тепловой обработке. Марка по морозостойкостиF100.
Прочностныехарактеристики бетона: модуль упругости Eb =24500 МПа; Rb = 20 МПа; Rbt= 1,25 МПа для предельных состояний первой группы при γb2= 0,9 (см. табл. 7); Rb,ser = 29 МПа; Rbt, ser = 2,1МПа для расчетных предельных состояний второй группы (см. табл. 6).
Длянапрягаемой арматуры 12 Æ 6 Вр-II, расположенной в нижней полке: Rs= 980 МПа для предельных состояний первой группы; Rs, ser = 1175 МПа для предельных состояний второйгруппы.
Площадьнапрягаемой арматуры 12 Æ 6 Вр-II Ap= 340 мм2.
Дляарматуры из сварных сеток в стенках из проволоки Æ3 Вр-Iпо ГОСТ6727-80* As = 71 мм2, Rs= 375 МПа, Rsω = 270 МПа, Es= 170000 МПа.
Длятканых сеток № 10-1 по ГОСТ3826-82* (табл. 11) Rm= 245 МПа, Em = 150000 МПа, Rmω = 206 МПа.
Нижняярастянутая полка армируется предварительно напряженными стержнями 12 Æ6 Вр-II (As = 340 мм2)и двумя ткаными сетками № 10-1.
Стенкиармируются одним слоем сетки из проволоки Æ3 Вр-I сшагом 100 мм, Asω = 71 мм2 идвумя слоями тканой сетки № 10-1.
Верхняяполка содержит один слой сетки из проволоки Æ3 Вр-Iс шагом 100 мм, A's= 28 мм2 в два слоя тканой сетки № 10-1.
Расчетпо предельным состояниям первой группы
Расчетпо прочности сечений, нормальных к продольной оси элемента. Для расчетаприводим сечение элемента к двутавровому. Приведенная толщина стенкидвутаврового сечения
tω1= tωn/sinβ = 30 : (0,8042×2)= 74,6 мм,
где tω - толщина стенки, мм; n- число наклонных стенок; β - угол наклона стенки к горизонтали, град.
Коэффициентармирования верхней сжатой полки:
сварнойсеткой из 4 проволок Æ 3 Вр-I A's = 28 мм2:
μs= A's/(b'ft'f) = 28 :(300×50) = 0,0019;
двумяслоями тканой сетки № 10-1
μ'm= 2A'm/t'f= 2×0,071: 50 = 0,00284;
стенкитолщиной 30 мм - двумя слоями тканой сетки № 10-1:
μmω= 2Aω/tω = 2×0,071: 30 = 0,0047;
сеткойиз проволоки Æ 3 Вр-I с шагом 100 мм Asω = 71 мм2:
μsω= Asω/(tωhω) = 71 : (30×1000)= 0,00284;
нижнейрастянутой полки - двумя слоями тканой сетки № 10-1:
μmf= 2Am/tf = 2×0,071: 50 = 0,00284;
предварительнонапряженной арматурой
μsf= As/(bftf)= 340 : (300×50) = 0,0227.
Приведенныекоэффициенты армирования:
сжатойверхней полки
μ'mf= μ'm+ μsRs/Rm = 0,0029 + 0,0019×375: 245 = 0,0057;
стенки
μmωt = μsωRs/Rm + μmω= 0,0047 + 0,0024×375: 245 = 0,0084;
нижнейрастянутой полки
μmf1= μmf+ μsfRs/Rm = 0,00284 + 0,0227×980: 245 = 0,0936.
Расчетпо прочности сечений, нормальных к оси элемента
Граничноезначение относительной высоты сжатой зоны бетона ξ = x/hопределяется из условия равновесия и граничного значения относительной высотысжатой зоны, определяемого по формуле (8):
ξn= ω/[1+ σs(1- ω/1,1)/σsc,u] = 0,54 : [1 + 790,6(1- 0,54 : 1,1) : 500] = 0,306,
где ω -характеристика сжатой зоны бетона для армоцементных конструкций группы Аопределяется по формуле (9)
Rb = 20 МПа; ω = 0,7 - 0,008Rb= 0,7 - 0,008×20= 0,54;
σs- напряжение в предварительно напряженной арматуре Вр-II с учетом первых ивторых потерь. σs= σsp2= 790,6 МПа.
σsc,u = 500 МПа всоответствии с п. 3.12 СНиП 2.03.01-84.
Находимграницу сжатой зоны бетона для двутаврового сечения из условия (15):
Rc1Afc > Rmμmf1Af+ Rmμmω1Aωt,
где
Rcf1= Rb + Rmcμmf1;
Acf= b'ft'f;Acω= (x - t'f)tω;
Aft = bftf;Aωt = (h - x - tf)tω;
Aω = hωtω; Rcω1 = Rb + Rmcμmω1.
Послеподстановки полученных величин в формулу (15) получаем, (20 + 245×0,0057)300×50< 245×0,0936×300×50+ 245×0,0084×1100×74,6,320,9 кН < 512,8 кН. Это значит, что граница сжатой зоны находится в ребре.В этом случае высота сжатой зоны бетона x находится из условия (18)
Rcf1Afc+ Rcω1Acω = Rmμmf1At+ Rmμmω1Amωt.
Послеподстановки значение x равно:
(20 + 0,0057×245)300×50+ (20 + 245×0,0084)(x - 50)74,6= 245×0,0936×300×50+ 245×0,0084(1200- x - 50)74,6; x= 157 мм.
Определяемусловие ξ = x/h= 157/1200 = 0,131 < ξR = 0,306.
Находимпо формуле (21)сумму моментов внутренних сил вычисленных относительно центра тяжестирастянутой полки:
M= (20 + 245×0,0057)300×50[1200- (50 + 50)/2] + (20 + 245×0,0084)(157 - 50)74,6[1200 - (157 - 50)/2]- 245×0,0084(1200- 157 - 50)50 = 552×104 = 552 кН×м.
Таккак 552 кН×м> 320,9 кН×м,следовательно, прочность нормального сечения обеспечена.
Расчетпо прочности сечений, наклонных к продольной оси элементов
Проверяемусловие, обеспечивающее прочность по сжатому бетону между наклонными трещинамипо формуле (57):
Q< 0,3φω1φb1Rbbhω1,
гдеφω1 = 1 + 5Em/Ebμmω1= 1 + 5×150000/245000×0,0084= 1,025;
γb =1 - 0,01Rb = 1 - 0,01×20= 0,8.
Послеподстановки получаем: Q = 72,1 кН < 0,3×1,025×20×74,6×1100= 505000 Н.
Следовательно,прочность по сжатому бетону между наклонными трещинами обеспечена.
Расчетпо прочности на поперечную силу выполняем по условию (60):
Q ≤ Qm+ Qb,
где Q- поперечная сила, определяемая внешней нагрузкой по одну сторону отрассматриваемого наклонного сечения, т.е. на расстоянии от опоры 112,5 см,равная 63,08 кН.
Поперечнаясила, воспринимаемая поперечными проволоками сетки по формуле (61),равна:
Qm = qmωaq,
где aq- проекция наклонной трещины под углом 45°.
aq =1200 - 50 = 1150 мм = 1,15 м;
μmωt - коэффициентприведенного армирования стенки при расчете на поперечную силу, равный
μmωt = μ'm+ μsωtRsω/Rm = 0,0047 + 0,00284×270: 206 = 0,0084,
qmω = Rmωμmωttω/sin(90° - β) = 206×0,0084×74,6: 0,8042 = 160,5 Н×мм,
где β - уголнаклона к вертикальной оси элемента.
Поперечнаясила, воспринимаемая поперечными проволоками сетки, равна:
Qm= 160,5×1150 = 184595 Н = 184,6 кН.
Поперечнаясила, воспринимаемая бетоном сжатой зоны в наклонном сечении, определяемая по формуле (64),
Qb = 0,75Rbttωh2ω/aq = 0,75×1,25×74,6×11002: 1150 = 73,5 кН.
Q = 63,8 кН < 184,6 + 73,5 = 258,1 кН.
Следовательно,прочность сечения по наклонной трещине на действие поперечной силы обеспечена.
Расчетпо предельным состояниям второй группы
Расчетпо образованию трещин, нормальных к продольной оси элемента.
Дляопределения пластического момента сопротивления приведенного сечения вычисляемкоэффициенты:
приведенногоармирования с учетом модулей упругости сетки и бетона
α = Em/Eb = 150000 :24500 = 6,12;
стержневойарматуры и сетки для верхней полки и стенки Es/Em= 170000/150000 = 1,13;
длянижней растянутой полки Ep/Em= 200000/150000 = 1,33.
Приведенныекоэффициенты армирования
μ'mf(E)= μ'm+ μsEs/Em= 0,0019×1,13 + 0,00284 = 0,005;
μmf1(E) = μmf + μsEs/Em = -0,00284 + 0,0227×1,33 = 0,0331;
μmω1(E) = μmω1 + μsEs/Em= 0,0047 + 0,0024×1,13= 0,0074.
Приведенная площадьсечения
Ab = b'ft'f(1 + αμ'mf(E)) + tωhω(1 + αμmω1(E)) + bftf(1 + αμmf1(E)) = 300×50(1 + 6,12×0,005) + 74,6×1100(1 + 6,12×0,0074) + 300×500(1 + 6,12×0,033) = 119160 мм2.
Статическиймомент приведенной площади сечения относительно нижней грани
Sb = b'ft'f(1 + αμmt(E))(h - t'f/2) + tωhω(1 + μmω(E))(h - t'f - hω/2) + bftf(1+ αμmf1(E))tf/2 = 300×50(1 + 6,12×0,005)(1200- 50 : 2) + 74,6×1100(1 + 6,12×0,0074)(1200- 1100 - 50) + 300×50(1 + 6,12×0,0033)50: 2 = 7,07×107 мм3.
Расстояниеот центра масс до нижней грани
yc = Sb/Ab = 7,07×107 : 119160 = 588 мм.
Моментинерции сечения относительно центра массы приведенногосечения

=[300×503: 12 + 300×50(1200 - 588 - 50 : 2)2](1 +6,12×0,0057)+ [74,6×11003: 12 + 1100×74,6(0,5×1100+ (50 - 588)2](1 + 6,12×0,0074)+ [300×503: 12 + 300×50(588 - 50 : 2)2](1 + 6,12×0,0033)= 1,916×109 мм4.
Всоответствии со СНиП2.03.01-84 предварительное напряжение в арматуре назначаем из условия
σsp+ P ≤ Rs, ser,
где
P= 0,05σsp,
σsp= Rs, ser/1,05= 1175 : 1,05 = 1119 МПа.
Всоответствии с п. 1.38:
потерипредварительного напряжения, возникающие от релаксации напряжений стали
σ1 = (0,22σsp/Rs, ser - 0,1)σsp= (0,22×1119: 1175 - 0,1)1119 = 123 МПа,
потериот температурного перепада при Δt=65°
σ2= 1,25Δt = 1,25×65= 81,2 МПа;
потериот деформации анкеров при расстоянии между упорами 20 м
σ3= ΔtEs/l= 2×20×104: 20000 = 20 МПа.
и потери отбыстронатекающей ползучести бетона, подвергнутого тепловой обработке,
σ6= 40σbp/0,85Rbp- коэффициент для бетона, подвергнутого тепловой обработке.
Принимаемзначение Rbp при70 %-ной прочности Rbp = 0,8×40= 28 МПа, при α = 0,25 + 0,025Rbr =0,95.
Предварительноенапряжение на уровне центра тяжести арматуры определяется с учетом первыхпотерь σ1 + σ2 + σ3 = 123 + 81+ 20 = 224 МПа; σsp- (σ1 + σ2 + σ3) = 1119 - 224 =895 МПа.
Усилиеобжатия P за вычетом потерь по формуле (1) равно:
P = γspAsp[σsp - (σ1 + σ2 +σ3)] = 1×340×895= 306000 Н.
ecp = yc- ap = 588 - 25 = 563 мм.
Напряженияв бетоне от преднапряжения равны:
σbp= P/Ab + P1ecp/I1 = 306000 : (1,916×102) + 303000×563 : (1,916×109) = 7,5 МПа.
Суммарнаявеличина первых потерь σ1 + σ2 + σ3+ σ6 = 123 + 81 + 20 + 8 = 232 МПа. Преднапряжение с учетомпервых потерь σsp1= 1119 - 232 = 887 МПа. Усилие обжатия P1 с учетом первых потерь
P1 = γspAsp[σsp - (σ1 + σ2 +σ3)] = 1×340(1119 - 232) = 301,6 кН.
Вторыепотери по табл. 3равны:
отусадки мелкозернистого бетона σ8 = 52 МПа;
отползучести мелкозернистого бетона при α = 0,85
σ9= 150×1,3σbpα/Rbp= 150×1,3×7,5×28 : 0,85 = 44,4МПа;
приσbp/Rbp= 7,5/28 = 0,26 < 0,75.
Вторыепотери, вычисленные по табл. 3, равны:
σ8+ σ9 = 52 + 44,4 = 96,4 МПа.
Напряженияσsp2с учетом всех потерь равны:
σsp2= σsp- 232 - (σ8 + σ9) = 1119 - 232 - 96,4 = 790,6МПа.
Усилиепредварительного обжатия с учетом всех потерь при γsn = 1 равно:
P2= γsnAspσsp2 = 1×340×790,6×104= 268,8 кН.
Расчетпо образованию трещин, нормальных к продольной оси складки
Моментсопротивления для растянутой грани приведенного сечения от внешней нагрузки иот предварительного обжатия соответственно равен:
Wf = I1/yc = 1,916×1010 : 588 = 32584×103мм3;
W'f = I1/(h - yc)= 1,916×1010: (1200 - 588) = 31307×103мм3.
Расстояниеот центра масс приведенного сечения до верхних и нижних ядровых точек
r = φWf/Ab;
r' = 0,7Wf/Ab = 0,7×32584×103 : (1191×102) = 19,1 мм;
rf = 0,7W'f/Ab = 0,7×31307×102: (1191×102)= 18,4 мм.
где φ = 1,6 - σb/Rb,ser = 1,6 - 30 : 29 = 0,5,принимаем φ = 0,7.
Максимальноенапряжение в сжатом бетоне, вычисляемое как для упругого тела поприведенному сечению, равно:
σb= P2/Ab+ M/Wf= 268,8×104 : 119160 + 267,3×105: (32584×103) = 0,3 МПа.
Вычисляеммомент, воспринимаемый сечением, нормальным к продольной оси элемента, приобразовании трещин в стадии эксплуатации по формуле (67), равный:
Mcrc = RbtWpl+ Mshr.
Моментсопротивления приведенного сечения для крайнего растянутого волокна с учетомнеупругих деформаций растянутого бетона, определяемый по формуле (79),
Wpl= [0,292 + 0,75(γ1+ 2μmf1(E))+ 0,75(γ'1+ 2μ'mf(E))]tωh2= [0,292 + 0,75(0,125 + 2×0,033×6,12)+ 0,75(0,251 + 2×0,033×6,12)]74,6×12002= 76497×103 мм3,
где
γ1= (bf - tω)tf/(tωh) =(300 - 74,6)50 : (74,6×1200) = 0,125;
γ'1= 2(b'f - tω)tf/(tωh) =2(300 - 74,6)50 : (74,6×1200) = 0,251.
Момент,вызванный усадкой Mshr относительноверхней ядровой точки, вычисляем из следующей зависимости:
Mshr = P2(r' + lcp),
где расстояние отравнодействующего усилия до центра тяжести приведенного сечения равно:
lcp = yc- an = 588 -25 = 563 мм;
an= tf/2.
Тогдамомент от усадки
Mshr = 265047(19,1 + 563) =199,84×106Н×мм.
Послеподстановки в формулу (67) момент трещинообразования
Mcrc =2,1×76497×103+ 268805(563 + 19,1) = 36,5×106Н×мм= 365 кН×м.
Таккак Mn = 267,3 кН м < Mcrc= 365 кН×м, следовательно, в эксплуатационнойстадии работы складки трещин в ней не будет.
Поэтомурасчет на раскрытие трещин не производится. Определяем возможность образованиятрещин в верхней зоне, растянутой в стадии изготовления и монтажа.
Моментсопротивления в этом случае относительно верхней растянутой грани с учетомнеупругих деформаций бетона по формуле (79) равен:
W'crc= [0,292 + 0,75(γ1+ 2μ'mf(E)) + 0,75(γ'1+ 2μmf1(E))]tωh2= [0,292 + 0,75(0,125 + 2×0,005×6,12)+ 0,075(0,251 + 2×0,033×6,12)]74,6×12002= 49624×103 мм3,
где γ1= (b'f - t'ω)t'f/(tωh) =(300 - 74,6)50 : (74,6×1200) = 0,125;
γ'1= 2(bf - tω)tf/(tωh) =2(300 - 74,6)50 : (74,6×1200) = 0,251.
Моментот предварительного напряжения в верхней зоне сечения за вычетом нормативного моментаот собственного веса Mn = 109700 кН×мравен:
Mp1= P1/(lcp+ rf) - Mn= 306000(563 - 18,1) - 109700 = -3,34 кН×м.
Таккак момент от предварительного напряжения в верхней зоне меньше Rbt,serWcrc = 1,8×49624×10= 89,3 кН×м,при Rbt,ser = 1,8 МПа и при Rbp= 0,7×40= 28 МПа (по интерполяции). Следовательно, трещины в верхней зоне не будутраскрываться.
Расчетпо образованию трещин, наклонных к продольной оси складки
Проверяем,образуются ли трещины в пределах зоны передачи напряжения. Длина зоны передачинапряжений (по СНиП2.03.01-84) равна
lp= (ωpσsp/Rbp+ λp)d= (0,25×892 : 32 + 10)6 = 102 мм,
где σsp= σsp1= 892 МПа, Rbp = 0,8×40= 32 МПа, d - диаметр проволоки 6 мм.
Таккак зона передачи предварительного напряжения находится в пределах опоры,рассматриваем сечение при lx/lp= 1.
Напряженияна уровне центра тяжести приведенного сечения при y= 0 и P = P2 равны:
σ'x= P2/Ab= 265047 : (1191×102) = 2,2 МПа.
Сжимающеенапряжение при вычислении σmt и σmcпринимаем со знаком «минус». Для вычисления касательных напряжений τxyопределяем статический момент части сечения, расположенной выше оси,проходящей через центр тяжести, относительно этой оси, которыйравен:
S'b = b'ft'f(1 + αμ'mf(E))(h - t'f/2 - yc)+ 0,5tω(hω + tf - yc)2(1+ αμmω(E))= 300×50(1+ 6,12×0,005)(1200- 50 : 2 - 588) + 0,5×74,6(1100 + 50 - 588)2(1 + 6,12×0,0074)= 21388×103 мм3.
Скалывающиенапряжения при максимальном значении поперечной силы равны:
τ = QS'b/(I1tω) = 6,38×21388 : (1,916×103×74,6) = 0,71 МПа.
Напряжениев бетоне σxна уровне центра тяжести (при y = 0) зависит от усилия обжатия,вычисленного с учетом потерь. При отсутствии поперечной предварительнонапряженной арматуры σyn= 0.
Местныесжимающие напряжения σyM в месте приложения опорной реакции

где α = x/h= 100 : 1200 = 0,08;
β = yc/h = 58,8 : 1200 = 0,24.
Главные сжимающие ирастягивающие напряжения равны:

σmc= -0,37 + 0,88 = +0,51 МПа;
σmt= -0,37 - 0,88 = -1,25 МПа.
Тогдаσmc= 0,51 МПа < Rb, ser = 0,5×22,5= 11,25 МПа; σmt =-1,25 МПа < Rbt, ser= 1,8 МПа.
Такимобразом, трещиностойкость наклонных сечений обеспечена.
Расчетпрогибов складки
Жесткостьскладки Bf1 при кратковременном действии нагрузки по формуле(96)
Bf1= 0,85EbI1= 0,85×24500×1,916×1010= 39,9×1013Н×мм2.
ЖесткостьBf2 при учетепродолжительного действия нагрузки по формуле (101)
Bf2= 0,85Bf1= 39,9×1013×0,85= 33,9×1013Н×мм2.
Кривизнаот кратковременного действия нагрузки по формуле (99)
ρ1= Mn/Bf1= -267×106: (33,9×1013) = 7,12×10-7мм-1.
Кривизнаот постоянных и длительно действующих нагрузок по формуле (100)
ρ2= Mnφb2/Bf2= 210,6×106×2,6: (33,9×1013) = 16×10-7мм-1.
Коэффициент,учитывающий влияние ползучести бетона при влажности воздуха 40 %, принимаемравным 2,0 (п. 4.16).Кривизна от выгиба складки от действия предварительного обжатия по формуле (102)
ρ3= P2lcp/Bf1= 268805×563 : (39,9×1013)= 3,79×10-7мм-1.
Кривизнаот выгиба складки вследствие усадки и ползучести от предварительного обжатия поформуле (103)
ρ4= (Σb- Σ'b)/h= 60,2×10-5- 33,8×10-5: 1200 = 2,2×10-7 мм-1.
Длявычисления деформаций εb,вызванных усадкой и ползучестью бетона под действием усилия предварительногообжатия, определяем напряжения в бетоне на уровне крайнего сжатого волокна,которые равны:
σ'bp= P1/A - Plcp(h - yc)/I1 - Mn(h - yc)/I1 = 303000 : (1191,6×1012) - 303000×563(1200 - 588) : (1,916×1010) - 109,7×106(1200 - 588) : (1,916×1010) = -633 МПа.
Растягивающиенапряжения в бетоне, потери от быстропротекающей ползучести равны нулю: σ6= 0; σ9= 0, тогда σb= σ'b= 67,6 МПа. Деформации сжатия бетона равны:
ε'b= σ'b/Es = 67,6 : 200000 = 33,8×10-5;
εb= σbp2/Es = (σ6 +σ8 + σ9)/Es= 8 + 67,6 + 44,8 : (2×105)= 60,2×10-5.
Полнаякривизна изгибаемой складки, в которой трещины не раскрываются, равна:
ρtot= ρ1+ ρ2- ρ3- ρ4= 7,1×10-7- 3,73×10-7+ 16×10-7- 2,2×10-7= 17,1×10-7мм-1.
Полныйпрогиб складки при l0= 18000 - 200 = 17800 мм по формуле (117) равен:
f = Sρtotl20= 0,104×17,1×10-7×178002 = 56,6 мм.
КоэффициентS = 5/48 = 0,104 принимаем по табл. 15.Полученный прогиб складки составляет от пролета f/l0= 56,6/17800 = 1/314 < [1/250], т.е. прогиб складки меньше допустимого.
* Пример расчета плиты-складки подвесногопотолка разработан в НИИСКе (канд. техн. наук В.Д. Галич, инж. Т.В. Борисова).
Дано. Плита складчатая шириной 2,4 м, длиной 5,8 м, высотой 0,3 м (рис.1),изготовленная из мелкозернистого бетона группы А, класса бетона по прочности насжатие В40. Конструкция армируется двумя ткаными сетками № 10-1 (ГОСТ3826-82*) по всему сечению разделительной сварной сеткой из проволочнойарматуры класса Вр-I(ГОСТ6727-80*) Æ 3 мм с шагом 200 мм в продольномнаправлении панели и Æ 4 мм с шагом 100 мм в поперечном. Впродольных бортовых ребрах дополнительно устанавливаются стержни изгорячекатаной арматуры периодического профиля класса А-III (ГОСТ5781-82*) Æ 12 и Æ16 мм в каждом ребре. Панель-складка эксплуатируется в отапливаемом помещении сотносительной влажностью воздуха до 60 % и при отсутствии возможностисистематического увлажнения конструкции конденсатом. В соответствии с условиямиэксплуатации и принятым армированием панель относится ко 2-й категориитрещиностойкости.
Рис.1. Сечение складки подвесного потолка
а - фактическое; б- приведенное; в - схема усилий и эпюра напряжений
Нагрузки
Данные по виду распределенных нагрузок, их величинам икоэффициентам перегрузки, принятым в соответствии со СНиП 2.01.07-85, приведены в таблице.
| Нагрузки, Н/м | |||
| вид | нормативная | коэффициент надежности | расчетная |
| Постоянные |
|
|
|
| Собственная масса панели-складки 11500/2,4×5,8 | 826 | 1,1 | 909 |
| Масса акустической облицовки | 80 | 1,2 | 96 |
| Временные длительные |
|
|
|
| Масса сплинкерной сетки, светильников | 250 | 1,2 | 300 |
| Итого длительно действующие | 1156 | - | 1305 |
| Кратковременные |
|
|
|
| Дополнительная нагрузка к массе оборудования | 700 | 1,3 | 910 |
| Итого временные | 700 | - | 910 |
| Полная нагрузка | 1856 | - | 2215 |
Плитаскладчатая должна воспринимать сосредоточенную технологическую нагрузку(давление колеса тележки на площадку 10 ´10 см) величиной 3000 Н с коэффициентом надежности по перегрузке.
1.2.Расчетная сосредоточенная нагрузка
P= 3000×1,2= 3600 Н.
Определениеусилий
Складкав целом рассчитывается как однопролетная шарнирно опертая балка пролетом 5,7 м(рис. 2).
Определяеммоменты от следующих сочетаний нагрузок:
1.Действие полной распределенной расчетной нагрузки (рис. 2)
M= (q + q)bL2/8= (1305 + 910)2,4×5,72 : 8 = 21599 Н×м.
Рис.2. Расчетная схема складки подвесного потолка
а - схеманагрузок; б - расчетная нагрузка; в - расчетная схема
2.Действие части расчетной распределенной нагрузки и временной расчетнойсосредоточенной
M= qbL2/8+ pL/4 = 1305×2,4×5,72: 8 + 3600×5,7 : 4 = 17850 Н×м.
Таккак решающим является первое сочетание, то для этого случая определяем всеостальные усилия:
моментот полной нормативной нагрузки
Mn= (qn + qn)bL2/8= (1156 + 700)2,4×5,72 : 8 = 18090 Н×м;
моментот длительно действующей части нормативной нагрузки
Mn= qnbL2/8= 1156×2,4×5,72: 8 = 11267 Н×м;
расчетнаяперерезывающая сила (на опоре)
Q= (q + q)bL/2 = (1305+ 910)2,4×5,7 : 2 = 15150 Н.
Характеристикиматериалов
Бетонмелкозернистый группы А, подвергнутый тепловой обработке при атмосферномдавлении, класс бетона по прочности на сжатие В40: расчетное сопротивлениебетона сжатию для предельных состояний первой группы Rb = 22,5 МПа; то же дляпредельных состояний второй группы Rb,ser = 29 МПа; расчетноесопротивление бетона растяжению для предельных состояний первой группы Rbt= 1,4 МПа; то же для предельных состояний второй группы Rbt, ser= 2,1 МПа; начальный модуль упругости при растяжении и сжатии Eb= 2,4×104МПа.
Арматура- сетки тканые № 10-1 ГОСТ3826-82*; расчетное сопротивление продольных проволок и поперечных проволокрастяжению при расчете нормальных наклонных сечений на действие изгибающегомомента Rm= 245 МПа; то же поперечных проволок при расчете наклонных сечений на действиепоперечной силы Rmω = 206 МПа; расчетноесопротивление сжатию Rmc= 235 МПа; модуль упругости Em = 1,5×105 МПа.
Сеткисварные армируются из проволоки класса Вр-I диаметром 3 мм; расчетное сопротивление растяжениюпри расчете нормальных и наклонных сечений на действие изгибающего момента Rs= 375 МПа; то же при расчете наклонных сечений на действие поперечной силы Rsω = 305 МПа; расчетноесопротивление сжатию Rsc= 375 МПа; расчетное сопротивление для расчета по предельным состояниям второйгруппы Rs, ser= 410 МПа; модуль упругости Es = 1,7×105МПа.
Стержневаяарматура класса А-IIIдиаметром более 10 мм (название характеристики см. выше):
Rs= 365 МПа; Rsω = 295 МПа; Rsc= 365 МПа; Rs,ser = 410 МПа; Es=2×105МПа.
РАСЧЕТПО ПРЕДЕЛЬНЫМ СОСТОЯНИЯМ ПЕРВОЙ ГРУППЫ
Расчетпо прочности сечения, нормального к продольной оси
Длярасчета фактическое сечение элемента приводим к двутавровому (см. рис. 1). Толщинастенки двутаврового сечения равна:
tω = δn/sinβ = 2,2 : 0,42578 = 9,4 см.
Ширинасжатой полки b'f,вводимая в расчет в соответствии с. п. 3.10. При отсутствии поперечныхребер и при t'f1= 2 см < 0,1h = 0,1; b'f= 2×6t'f+ tω = 2×6×2+ 9,4 = 33,4 см.
Вычисляемкоэффициент сетчатого армирования
μm= 0,0071×2 : 2 = 0,0071.
Коэффициентприведенного армирования равен:
длясжатой полки
μ'mf1= μm+ μsRsc/Rmc= 0,0071 + 0,00213×375 : 245 = 0,0103;
μs= As, tot = 2×0,071 : (2×3,34) = 0,00213;
длястенки μmω1= μ'mf1= 0,0105;
длярастянутой полки тканую и сварную сетку приводим к сетчатой с коэффициентомармирования, равным:
μm1= μmf1+ μsfRs/Rm = 0,0071 + 0,000355×375: 245 = 0,0076;
μsf= 3×0,071/40×15= 0,000355;
усилия от стержневойарматуры учитываем отдельно.
Сечениерассчитываем в соответствии с п. 3.5. Граничное значение высоты сжатой зоны поформуле (8)равно:
ξR= ω/[1+ σs(1- ξn/1,1)/400],
где ω = 0,7 -0,008Rb= 0,7 - 0,008×22,5 = 0,520; σs= Rs= 365 МПа.
После подстановки вформулу (8)предельное отношение высоты сжатой зоны
ξR=0,52/1 + 365/400(1 - 0,52/1,1) = 0,35.
Высотасжатой зоны x из условия (22)
Rcf1Acf+ Rcω1Acω = Rmμmf1Atf+ Rmμmω1Atω + RsAs,
где Rsf1= Rb+ RmcμEmf1= 22,5 + 245×0,0105 = 24,96 МПа;
Rcω1= Rb + Rmcμmω1= 22,5 + 245×0,0105 = 24,96 МПа;
Acf= b'ft'f = 33,4×2= 66,8 см2;
Atf = bftf= 600 см2;
Acω = (x - t'f)tω = (x -2)9,4 см2;
Atω = (h - x - tf)tω = (15 - x)9,4см2.
Послеподстановки полученных величин в формулу (22) высота сжатой зоны равна.
24,96×66,8+ 24,96(x - 2)9,4 = 245×0,0014×600+ (15 - x)9,4 + 365×6,28x= 1432,3/244 = 5 см.
Такимобразом, ξ = x/h = 5,8/30 = 0,193 < ξn= 0,35, а нейтральная ось проходит в стенке.
Прочностьсечения определится из условия (17)
M≤ Rcf1Acf(h- t'f/2-a)+ Rcω1Acω1[h- (x + 2a+ tf)/2 - Rmμmω1Atω[(h- x)/2 - a]- Rmμmf1Abft[(tf- a)/2] = 24,96×66,8(30- 2 : 2 - 3) + 24,96×9,4[30 - (5,9 + 6 + 2) : 2] - 245×0,0105(15- 5,9)[(30 - 5,9) : 2 - 3] - 245×0,0014×480[(15- 3) : 2] = 63291 Н×м,
где Abft = bf(tf - a) = 40(15 - 3) = 480 мм2.
Такимобразом, прочность нормального сечения обеспечивается, так как M= 21590 Н×м< 63291 Н×м.
Расчетпрочности сечения, наклонного к продольной оси
Проверяемусловие (57),обеспечивающее прочность по сжатому бетону между наклонными трещинами (п. 3.24),
Q≤ 0,3φω1φb1Rbbhω,
где φω1= 1 + Emμmω1/Eb= 1 + 1,5×105×0,0105: (2,4×104)= 1,984;
φb1= 1 - 0,01Rb= 1 - 0,01×22,5 = 0,775; tω = 9,4 см.
Послеподстановки величин в формулу (57) получаем равенство: 0,3×1,984×775×22,5×9,4×11= 1073 МПа×см2 = 107300 Н.
Прочностьпо сжатому бетону между наклонными трещинами обеспечивается, так как Q= 15150 Н < 107300 Н.
Необходимостьрасчета наклонного сечения по прочности на перерезывающую силу проверяем изусловия 0,4×1,4×8,4×27= 142 МПа×см2 = 14200 Н.
Таккак Q = 15150 Н > 14200 Н, то расчет наперерезывающую силу необходимо выполнить. Прочность наклонного сечения должнапроверяться из условия (60)
Q ≤ Qm+ Qb.
Значениепоперечной силы Qm, воспринимаемой поперечными проволокамисетки, пересекающими наклонную трещину, по формуле (61) равно:
Qm= qmωaq.
Приугле наклона трещины 45° интенсивность армирования элемента поперечнымипроволоками сеток в пределах наклонной трещины по формуле (62)равна:
qmω = Rmωμmω1tω/sinβ= 206×0,0105×9,4: sin64°48' = 2250 Н×см.
Значениепоперечной силы равно Qm = 2250×30= 67500 Н.
Поперечнаясила, воспринимаемая бетоном, определяется по формуле (64)
Qb= 0,75Rbttωh2/aq= 0,75×1,4×9,4×302: 30 = 29600 Н.
Прочностьнаклонного сечения на поперечную силу достаточная, так как: Q = 15150Н < Qm+ Qb = 67500 + 29600 =97100 Н.
РАСЧЕТ ПОПРЕДЕЛЬНЫМ СОСТОЯНИЯМ ВТОРОЙ ГРУППЫ
Расчетпо образованию трещин, нормальных к продольной оси
Дляопределения пластического момента сопротивления приведенного сечения вычисляем:
коэффициентыприведенного армирования с учетом отношений модулей упругости:
сжатойполки
μ'mf1(E)= μm+ μsEs/Em= 0,0071 + 0,00213×2×105: (1,5×105)= -0,00993;
стенки
μmω1(E)= μ'mf1(E)=0,00993;
растянутойполки (с учетом отношений модулей стержневой арматуры)
μmf1(E) = μmf + μsfEs/Em + AsEs/(bftfEm)= 0,000835 + 0,000355×2×105: (1,5×105) + 6,28×2×105: (40,15×1,5×105) = 0,0151.
Отношениямодулей упругости равны:
α = Em/Eb = 1,5×105 : (0,24×105)= 6,25;
αs= Es/Eb = 2×105: (0,24×105) = 8,3.
Приведенная площадьсечения
A1 = b'ft'f(1 + αμ'mf1(E)) + tωhω(1 + αμmω1(E)) + bftf(1 + αμmf1(E)) + αsAs= 100×2(1 + 6,25×0,00993) + 9,4×13(1+ 6,25×0,00993) + 40×15(1 + 6,25×0,00131) + 6,28×8,3 = 988,3 см2.
Статическиймомент приведенной площади сечения относительно нижней грани
S1 = bft'f(1 + αμmf1(E))(h - t'f/2) + tωhω(1 + αμmω1(E))(h- t'f - hω/2) + bftf(1 + αμmf1(E))tf/2+ αsAs= 212,4(30 - 2 : 2) + 119,8(30 - 2 - 13 : 2) + 604×15: 2 + 52,1×3 = 13422 см3.
Расстояниеот центра массы сечения до нижней грани
ycm = S1/A1 = 13422 : 988,3 = 13,6 см.
Моментинерции сечения относительно центра массы равен:

=[100×23: 12 + 100×2(30- 13,6 - 2 : 2)2](1 + 6,25×0,00993)+ [9,4×133 : 12 + 9,4×13(0,5×13+ 15 + 13,6)2](1 + 6,25×0,00993)+ [40×153: 12 + 40×15(13,6 - 15 : 2)2](1 + 6,25×0,00131)+ 6,28×8,3(13- 3)2 = 101344 см4.
Согласнотабл. 13для двутаврового несимметричного сечения при отношениях δ ≥ bf/b = 100/9,4= 10,6 и tf/h =15/30 = 0,5 > 0,3 коэффициент γ = 1,5.
Пластическиймомент сопротивления приведенного сечения по формуле (80)
Wpl= γW0= γI1/ycm= 1,5×101344: 13,6 = 11344 см3.
Изгибающиймомент, воспринимаемый сечением, нормальным к продольной оси панели, равен:
Мсrс= 0,75WpiRbt,ser = 0,75×11344×2,1= 17867 МПа/см3 = 17867 Н < Mn= 18090 Н×м.
Следовательно,в стадии эксплуатации трещины возникают.
Расчетпо раскрытию трещин, нормальных к продольной оси
Всоответствии с п. 4.9 ширина раскрытия трещин при комбинированномармировании определяется по формуле (85)
acrc =φφсγmηmσm/Em120(3,5- 100μmf1)
,
где φ = 1 (дляизгибаемых элементов); φe= 1 при учете кратковременных и непродолжительного действия постоянных идлительных нагрузок; φс= 1,5 - для бетона группы А при учете продолжительного действия постоянных идлительных нагрузок; γm= 4,5 при μm1= 0,08 % < 1 %; ηm= 1,1 - для тканых сеток;
μmf1 = 0,0014 + 6,28/40×15×365/235= 0,0176;
μs= As/(bftf) = 6,28 : (40×15) = 0,0104.
Приведенныймодуль упругости по формуле (87)
Em1= (Emμm+ Esμs)/(μm+ μs)= (1,5×105×0,0071+ 2×105×0,0104): (0,0071 + 0,0104) = 1,8×105МПа.
Диаметрпроволочной арматуры при различных диаметрах стержней и проволок сеток поформуле (86)
ds = (n1d21 + n2d22)/(n1d1+ n2d2) = (2×122 + 2×162) : (2×12 + 2×16)= 14,28 мм.
Напряжениев сетке для изгибаемых элементов без предварительного напряжения по формуле (87)
σm= M/Ws1,
где Ws1- момент сопротивления сечения, приведенного к стальному, вычисляемый поформуле (91):
Ws1= Is1/1,3ycm.
Дляопределения положения центральной оси в момент трещинообразования вычисляемстатический момент площади приведенного таврового сечения (без полок в растянутойзоне) относительно нижней грани.
S'2 = b'ft'f(1 + αμ'mf(E))(h - t'f/2) + tω(hω + tf)(1+ αμmω(E))(hω + tf /2) + αsAsa = 100×2(1+ 6,25×0,00993)(30- 2 : 2) + 9,4(13 + 15)(1 + 6,25×0,00131)(13+ 15) : 2 + 6,28×83×3= 10031 см3.
Приведеннаяплощадь таврового сечения
A'2 = b'ft'f(1 + αμmf(E))+ tω(hω + tf)(1+ αμmω(E))+ AsLs = 100×2(1+ 6,25×0,00993)+ 9,4(13 + 15)(1 + 6,25×0,00131)+ 6,28×83= 529 см2.
Приведеннаяплощадь уширений растянутой полки
Arb= (bf - tω)tf(1+ αμmf(E))= (40 - 9,4)15(1 + 6,25×0,00131) = 463 см2.
Высотасжатой зоны в момент трещинообразования по формуле (78)
h - x = S'r/(A'2 + Arb/2)= 10031 : (529 + 463 : 2) = 13,2 см,
откуда x= h -13,2 = 30 - 13,2 = 10,8 см. Размеры сечения, приведенного к стальному, равныследующим величинам:
высотасжатой полки (рис. 3)
t'sf1= μ'mf1(E)t'f+ t'fEb/Em1= 0,00993×2 + 2×2,4×104: (1,8×105)= 0,286 = 0,3 см;
толщинасжатой стенки
tscω1= μmω1(E)tω + tωEb/Em1= 0,00993×9,4 + 9,4×2,4×104: (1,8×105)= 1,35 см;
толщинарастянутой стенки
tstω1= μmω1(E)tω = 0,00993×9,4= 0,1 см;
толщинарастянутой полки
tsf1= μmf1(E)tf= 0,0151×15 = 0,227 = 0,23 см.
Таккак центры тяжести стальных полок совпадают с центрами тяжестирастянутой и сжатой арматуры, то общая высота стального сечения
hs1= h - (a + a) + 0,5(t'sf1+ tsf1)= 30 - (0,8 + 0,8) + 0,5(0,3 + 0,23) = 29 см.
Рис.3. Сечение, приведенное к стальному
а -расчетное сечение; б -сечение, приведенное к стальному
Высотасжатой зоны x1 = x - 0,5t'f = 16,8 - 0,5×2= 15,8 см.
Площадьстального сечения
Fs1 = b'ft'sf1 + (x1 - t'sf1)tscω1 + (hs1- x1- tsf1)tstω1 + bftstω1= 100×0,3+ (15,8 - 0,3)1,3 + (29 - 15,8 - 0,23)0,1 + 40×0,23= 60,65 см2.
Статическиймомент относительно нижней грани сечения
Ss1= b'ft'sf1(hs1- 0,5t'sf1)+ (x1- t'sf1)tscω1[hs1- 0,5(x1- t'sf1)]+ (hs1- x1- tsf1)(tstω1[0,5(hs1- x1- tsf1)+ tsf1]+ bftsf1×tsf1/2= 100×0,3(29- 0,5×0,3)+ (15,8 - 0,3)1,35[29 - 0,5(15,8 - 0,3)] + (29 - 15,8 + 0,23)0,1[0,5(29 - 15,8- 0,23) + 0,23] + 40×0,23×0,23: 2 = 1320 см3.
Расстояниедо центра тяжести сечения
ycm = Ss1/Fs1 = 1320 : 60,65= 21,8 см.
Моментинерции

=100×0,33: 12 + 100×0,3(29 - 21,8 - 0,5×0,3)2+ (15,8 - 0,3)31,35 : 12 + (15,8 - 0,3)1,35×[21,8- 29 + 0,5(15,8 - 0,3)2] + (29 - 15,8 - 0,23)30,1 : 12 +(29 - 15,8 - 0,23)0,1[21,8 - 0,5(29 - 15,8 - 0,23) + 0,23]2 + 40×0,233: 12 + 40×0,23(21,8 - 0,5×0,23)2= 6555 см4.
Моментсопротивления, приведенного к стальному, равен:
Ws1 = Is1/1,3ycm = 6555 : (1,3×21,8) = 231,3 см3.
Напряженияв растянутой зоне от кратковременного действия полной нагрузки
σm= Mn/Ws1= 1809000 : 231,3 = 78,2 МПа.
Напряженияот кратковременного действия постоянных к длительных нагрузок
σm= Mnдл/Ws1= 1126700 : 231,3 = 48,7 МПа.
Дляопределения ширины кратковременного раскрытия трещин вычисляем величины acrc1, acrc2, acrc3.
Ширинараскрытия трещин от кратковременного действия полной нагрузки
acrc1 =φφсγmηm(σm/Em1)20(3,5- 100μmf1)
= 1×1×4,5×1×78,2: (1,8×105)20(3,5- 100×0,0176)14,28= 0,164 мм.
Ширинараскрытия трещины от кратковременного действия постоянных и длительных нагрузок
acrc2 = 1×1×4,5×1
20(3,5 - 100×1,0176)14,28 = 0,101 мм.
Ширинараскрытия трещин от длительного действия постоянных и длительных нагрузок
acrc3 =1×1,5×4,5×1
20(3,5 - 100×0,0176×14,28)= 0,152 мм.
Ширинакратковременного раскрытия трещин
acrc = acrc1 - acrc2 + acrc3 = 0,164 - 0,101 + 0,152 =0,215 = 0,2 мм.
Величинадлительной ширины раскрытия трещин acrc3= 0,152 @ [acrc2]= 0,15 мм.
Такимобразом, ширина раскрытия трещин не превышает величин, допускаемых дляконструкций, относящихся ко 2-й категории трещиностойкости.
Расчетпо образованию трещин, наклонных к продольной оси
Дляизгибаемых элементов расчет производим из условий (81):
приσmc≤ γbcRb,ser, σmt≤ Rbt,ser;
приσmc> γbcRb,ser,
![]()
γbc- коэффициент условий работы, определяемый по формуле
γbc= 0,8 - αB ≤ 0,5,
где α = 0,02 длямелкозернистых бетонов;
В- класс бетона 40 МПа; γbc= 0,8 - 0,02×40 = 0; принимаем γbc= 0,5.
Расчетпроизводим на уровне центра тяжести приведенного сечения и в месте примыканиясжатой полки к стенке по формуле (83)

Статическиймомент части сечения, расположенной выше оси, проходящей через центр тяжестивсего сечения (рис. 47) относительно этой оси, равен:
Sr = b'ft'f(1 + αμmf1(E))(h - ycm - 0,5t'f) + tωhω(1 + αμmf1(E))(h- ycm - 0,5hω - t'f ) + bf(tf- ycm)(1 + αμmf1(E))0,5(tf- ycm) = 100×2(1+ 6,25×0,00993)(30- 13,6 - 0,5×2) + 9,4×13(1+ 6,25×0,00993)(30- 13,6 - 0,5×1,3 - 2) + 40(15 - 13,6)(1 + 6,25×0,00131)0,5(15- 13,6) = 4281 см3.
Касательныенапряжения на уровне центра тяжести сечения
τxy= QSr/(Irb)= 15150×4281 : (101344×40)= 0,16 МПа.
Наоси, проходящей через центр тяжести сечения, главные растягивающие напряженияравны:
σmc= τxy = 0,16 МПа;< Rbt,ser = 2,1 МПа,
а главные сжимающиенапряжения
σmc= -τxy = -0,16 МПа< γb6Rb,ser = 0,5×29= 14,5 МПа.
Следовательно,трещиностойкость по наклонному сечению обеспечена.
Расчетдеформации
Прогибизгибаемого элемента с постоянным сечением определяем по формуле (117)
f= mρtotl2,
где по табл. 15 m = 5/48; пролет l= 5,7 м;
полноезначение кривизны изгибаемого элемента по формуле (106)
ρtot= ρ5- ρ6+ ρ7.
Величинаρ5,определяемая по формуле (107), равна
ρ5= Mcrc/Bf1+ (Mn - Mcrc)/Bf3,
где Mcrc= 17867 Н×м;Mn = 18090 Н×м;Bf1 = 0,85EbIr1= 0,85×2,4×104×101344= 2,067×109 МПа×см4;Bf3 = kEbIr1= 0,08×2,4×104×101344= 0,165×109 МПа×см4,K = 0,08, μm1= 0,99 % < 1,5 %; тогда
ρ5= 1786700/2,061×1011 + (1809000 -1786700)/0,165×1011 = 0,997×10-5см-1.
Значениеρ6 по формуле (112)
ρ6= Mcer/Bf3 = 1126700 :(0,165×1011) = 6,828×10-5см-1,
где Mcer=11267 Н×м, Bf3= 0,165×109 МПа×см4.Значение ρ7 по формуле (113)
ρ7= Mcer/B'f3 = 1126700 :(0,132×1011) = 8,536×10-5см-1,
где B'f3= 0,8, Bf3= 0,8×0,165×109= 0,132×109 МПа×см4.Полная кривизна по формуле (106)
ρtot= (0,997 - 6,828 + 8,536)10-3 = 2,705×10-5см-1.
Прогибпо формуле (117)
f= 5/48×2,705×10-5×5702= 0,916 см.
Таккак f = 0,916 см < 1/250l = 1/250×570= 2,28 см, то жесткость панели достаточна.
* Пример расчета плиты-оболочки в поперечномнаправлении разработан НИИСКом (канд. техн. наук В.Д. Галич, инж. Т.В. Борисова).
Дано:Размеры сечения, общие данные и нагрузки приведены в примере расчетапанели-складки в целом.
Определениеусилий
Статическийрасчет в поперечном направлении производим с учетом следующих предпосылок:
1.При соотношении пролетов l1/l2= 5,7/2,4 = 2,375 рассматриваемая отнесена к длинным.
2.В соответствии с требованием Руководства по проектированию железобетонныхтонкостенных пространственных конструкций покрытий и перекрытий (М.:Стройиздат, 1979) при расчете на равномерно распределенную нагрузку принимаемрасчетную схему и виде трехпролетной плиты шириной 1 м с соответствующимипоправочными коэффициентами на внутренние усилия.
3.При расчете на сосредоточенную силу также принимаем расчетную схему в видетрехпролетной плиты шириной 1 м. Эта предпосылка основана на исследованииработы железобетонных плит в предельном состоянии под действием сосредоточеннойнагрузки (Дубинский А.М. Расчет несущей способности железобетонных плит иоболочек - Киев. Будивельник, 1976).
Расчетныесхемы панели-складки в поперечном направлении прияты в соответствии сизложенными выше предпосылками.
Расчетныймомент в поперечном направлении определяем из рассмотрения следующих сочетанийнагрузок:
1.Постоянные и временные длительные (именуемые далее постоянными), а такжевременные, распределенные на трех пролетах.
2.Постоянные и временные, распределенные на двух смежных пролетах.
3.Постоянные и временные, распределенные на среднем пролете.
4.Постоянные и временная, сосредоточенная в середине среднего пролета.
Моментыопределяем с помощью табл. 14.18 - 14.20 длянеравнопролетных плит и балок (Улицкий И.И. и др. Железобетонные конструкции:Расчет и конструирование. - Киев: Будивельник, 1972) и поправочныхкоэффициентов табл. 5 Руководства по проектированию железобетонных тонкостенныхпространственных конструкций покрытий и перекрытий (М.: Стройиздат, 1979).
Сочетание 1 (рис. 1)
Моментна опоре
Mb = Mc= -K2N1/K3+ L2N2/K3;
K2= K1 = 2(l2 - l3) = 2(1 + 0,35) = 2,7;
K3= K1K2 - l22= 2,7×2,7 - 12 = 6,29;
N1= N2= (q1 + q1)(l31 + l32)/4 = (1305 + 910)(0,353 + 13) :4 = 578 Н;
Mb= N1(l2/K3- K2/K3) = 578(1 : 6,29 - 2,7 : 6,29) = -156 Н×мм.
Приотношении высоты торцевого элемента h1 квысоте складки (h) h1/h =15/30 = 0,5 принимаем по линейной интерполяции поправочный коэффициент дляопорного момента 1,833.
Такимобразом, опорный момент Mb = (-156)1,833 = -286 Н×мм.
Моментв пролете
M2= (q2+ q2)l22/8- Mb = (1305 + 910)12: 8 - 156 = 121 Н мм.
Рис.1. Расчетные схемы складки подвесного потолка при расчете в поперечномнаправлении
а - схема дляопределения моментов на опорах; б - схема для определения момента впролете
Сочетание 2
Моментына опорах равны:
Mb = -K2N1/K3 + l2N2/K3;
Mc = l2N1/K3- K1N2/K3.
где K1= K2= 2,7; K3= 6,29 (см. выше); N1= 578 (см. выше).
N2= (q2+ q2)l32l33q3/4= (1305 + 910)13 + 1305×0,353: 4 = 568 Н;
Mb= -2,7/6,29×578 + 1/6,29×568= -158 Н×мм;
Mc= 1/6,29×578 - 2,7/6,29×568= -152 Н×мм.
Сучетом поправочного коэффициента (см. выше): Mb = (-158)1,833 = -290 Н×мм;Mc = (-152)1,833 = -279 Н×мм.Момент в пролете
M2= (q2+ q2)L22/8- (Mb + Mc)/2= (1305 + 910)12 : 8 - (158 + 152) : 2 = 122 Н×мм.
Сочетание 3
Моментына опорах
Mb = Mc = -K2N1/K3 + L2N2/K3,
где K2= 2,7; K3= 6,29;
N1= N2= [q1l31+ (q2+ q2)L32]/4= 1305×0,353 + (1305 + 910)13: 4 = 568 Н;
Mb= Mc = -2,7/6,29×568+ 1/6,29×568 = -154 Н×мм.
Сучетом поправочного коэффициента Mb = Mc= (-154)1,833 = -290 Н×мм. Момент в пролете
M2= (q2+ q2)l22/8- Mb = (1305 + 910)12: 8 - 154 = 123 Н×мм.
Сочетание 4
Моментына опоре от равномерно распределенной нагрузки
Mb = Mc = -K2N1/K3 + l2N2/K3,
гдеK2 = 2,7; K3= 6,29;
N1= N2= (q1l31+ q2l32)/4= (1305×0,353+ 1305×13): 3 = 340 Н;
Mb= Mc= -2,7/6,29×340 + 1/6,29×340= -92 Н×мм.
Моментот сосредоточенной нагрузки Mb = Mc = -K2/K3N1, где K2= 2,7; K3= 6,29;
N1= 3PL22/8= 3×3600×0,352: 8 = 165 Н;
Mb= Mc= -2,7/6,29×165 = -71 Н м.
Суммарныйопорный момент
ΣMb= ΣMc= -92 + (-71) = -163 Н×мм.
Суммарныйопорный момент с учетом поправочного коэффициента
ΣMb= ΣMc=(-163)1,833 = -300 Н×мм.
Моментв пролете (с учетом перераспределения усилий)
M2= q2L22/8+ Pl/6 - ΣMb=1305×1: 8 + 3600×1 : 6 - 163 = 600 Н×мм.
Такимобразом, решающей нагрузкой при расчете плиты-оболочки в поперечном направленииявляется сосредоточенная нагрузка, а расчетный момент под силой в серединесредней грани равен 600 Н×мм. По этому моменту проверяем сечениеармоцементной складки.
Моментот полной нормативной нагрузки
M2 = 1156×12/8+ 3000×1/6- (92/1,1 + 71/1,2) = 501 Н×мм.
Моментот длительно действующей части нормативной нагрузки
Mncer= 1156×12/8= 144 Н×мм.
Расчетпо прочности сечения, нормального к продольной оси
Вычисляемкоэффициент приведенного армирования. Сечение армировано двумя сетками № 10-1 исварной соткой 200/100/3/4 (рис. 2)
μm1= μm+ μsRsc/Rmc= 0,0071×2 : 2 + 0,0063×375: 235 = 0,0171,
где μs= As, tot/4 = 10×0,126 : 2×100 = 0,0063.
Сечение рассчитываем всоответствии с п. 3.5.
Граничноезначение высоты сжатой зоны по формуле (8)
ξR= ω/[1 + σs(1 - ω/1,1)/400],
где ω = 0,7 -0,008Rb= 0,7 - 0,008×22,5 = 0,32; σs= Rm= 235 МПа;
![]()
Высотасжатой зоны x изусловия (11)
x= Rmμm1h/(Rc1+ Rmμm1)= 235×0,0171×2: (26,5 + 235×0,00171) = 0,263 см,
где Rc1= Rb + Rmμm1= 22,5 + 235×0,0171 = 26,5 МПа. Так как ξ = x/h= 0,263/2 = 0,131 < ξR= 0,194, несущая способность сечения, определяемая по формуле (10),равна:
M≤ Rmμm1Abth/2,
где Abt= (h - x)b=(2 - 0,263)100 = 174 см2; M = 245×0,0171×174×2/2= 699 МПа/см2 = 700 Н×мм.Таким образом, прочность сечения обеспечивается, так как M= 600 Н×мм < 700 Н×мм.
Расчетна продавливание
Расчетна продавливание от действия сил, равномерно распределенных на ограниченнойплощади, производим из условия
P ≤ kPmμm1bcph.
Приопределении величин, входящих в условие, принимаем, что сосредоточеннаянагрузка передается на площадке 10 ´10 см и продавливание происходит по боковой поверхностипирамиды, наклонные грани которой образуют с горизонтом 45° (рис. 3).
Рис.2. Горизонтальная грань складки подвесного потолка
а - схема армированияв продольном направлении; б - схема армирования в поперечномнаправлении; в - схемаусилий и эпюра напряжений в поперечном направлении; г - сечение,приведенное к стальному, в поперечномнаправлении
Рис.3. Схема пирамиды продавливания
Приопределении коэффициента армирования, приведенного к сетке, в растянутой зонеучитываем армирование полки плиты-оболочки в продольном направлении. Этоармирование состоит из сварной сетки, в продольном направлении которой стержниимеют меньший диаметр и расположены с большим шагом.
Коэффициентармирования
μm1= μm+ μsRc/Rm= 0,0071 + 0,001775×375 : 235 = 0,0099,
где
μs= As, tot/A = 5×0,71 : (2×100) = 0,001775.
КоэффициентK принимаем для тяжелых бетонов равным 1.
Среднееарифметическое параметров верхнего и нижнего основания пирамиды продавливанияравно: Bcp = 4(10 + 14)/2 = 48см.
Нагрузка,воспринимаемая боковой поверхностью пирамиды продавливания, равна: 1,235×0,0099×48,2= 223 МПа = 22300 Н/м, что больше P =3600 Н, следовательно, прочность на продавливание обеспечена.
Расчетпо образованию трещин, нормальных к продольной оси элемента
Всоответствии с п. 4.3 момент инерции относительно центра тяжести приведенногосечения
I1= bh3/12 = 100×23 : 12 = 66 см4.
Моментсопротивления сечения
W0 =I1/ycm= 66 : 1 = 66 см3.
Пластическиймомент сопротивления приведенного сечения по формуле (80) равен: Wpl= γW0= 1,75×66= 115,5 см3.
Момент,воспринимаемый сечением, нормальным к продольной оси по формуле (67),равен: Mcrc = 0,75WplRbt, ser= 0,75×66×2,1= 104 Н×мм < Mn= 501 Н×мм. Следовательно, трещины будут возникать.
Расчетпо раскрытию трещин, нормальных к продольной оси
Всоответствии с п. 4.8 ширина раскрытия трещин по формуле (84)
acrc = ηmφcσmSm/Em1,
где η = 3,5; φc= 1 при учете кратковременных и непродолжительного действия постоянных идлительных нагрузок; φc= 1,5 для бетона группы А при учете продолжительного действия постоянных идлительных нагрузок Sm = 10 мм.
Приведенныймодуль упругости арматуры по формуле (87)
Em1= (Emμm+ Esμs)/(μm+ μs)= (1,5×105×0,0071+ 1,7×105×0,0063)(0,0071+ 0,0063) = 1,59×105 МПа.
Напряжениеσmдляизгибаемых элементов без предварительного напряжения определяем по формуле (89)
σm= M/Ws1.
Моментсопротивления сечения, приведенного к стальному по формуле (91),равен:
Ws1= Is1/1,3ys.
Дляопределения размеров сечения, приведенного к стальному, определяем положениенейтральной оси по формуле
x = h – Sr/F'r.
Приведенная площадьсечения
F'r = Fb+ Fm + Em/Eb + F'mEm/Eb + FsEs/Eb= 100×2 + 0,71×15×104: (2,4×104) + 0,71×15×104: (2,4×104) + 1,26×17×104 : (2,4×104) = 217,8×102мм2.
Статическиймомент относительно растянутой грани
Sr = 0,5hFb+ 0,4FmEm/Eb + 1,6E'mEm/Eb + 0,8FsEs/Eb = 0,5×2×200 + 0,4×4,44 + 1,6×4,44 + 0,8×8,9 = 216×103мм3.
Высотасжатой зоны
x=2 - 216/217,8 = 1,01×10 мм.
Размерсечения, приведенного к стальному (рис. 2), равен:
высотасжатой зоны
hs1= μm1(E)x+ Ebx/Em1= 0,0142×1 + 24×104×1: (15,9×104) = 0,165×10мм.
Коэффициентармирования
μm1(E)= μm+ μsEs/Em= 0,0071 + 0,0063×1,7×105: (1,5×105)= 0,0142×10 мм.
Высотарастянутой зоны
hs1= μm1(E)(h- x) = 0,0142×1= 0,014×10 мм.
Длявычисления геометрических характеристик совмещаем верх сжатой зоны с верхней граньюрасчетного сечения и растянутую зону с центром тяжести растянутой тканой сетки(см. рис. 49).
Вычисляемгеометрические характеристики сечения, приведенного к стальному:
площадь
Fs1= h's1b+ hs1b= 0,165×100 + 0,014×100= 17,9×102мм2;
статическиймомент относительно нижней грани сечения
Ss1= h's1b(h- h's1/2) =0,165×100(1,6 - 0,165 : 2) = 25×103мм3;
расстояниедо центра тяжести
ycm = Ss1/Fs1 = 25 : 17,9 =1,4×10 мм;
момент инерции
Is1= (h's1)3/12+ h's1b(h - ycm- h's1/2)2+ hs1b(ycm- hs1/2)2 = 0,1653×100 : 12 + 0,165×100(1,6 - 1,4×0,165 : 2)2 + 0,0142×100(1,4 - 0,0142 : 2)2 = 3,015×104мм4.
Моментсопротивления сечения, приведенного к стальному по формуле (97),равен:
Ws1= Is1/1,3ycm = 3,015 : (1,3×1,4×10) = 1,66×103мм3.
Напряжениев растянутой зоне откратковременного действия полной нагрузки по формуле (89)
σm= Mn/Ws1= 50100 : 1,66 = 302 МПа;
от кратковременного действияпостоянных и длительных нагрузок
σm= Mnser/Wm1 = 14400 : 1,66= 86,7 МПа.
Дляопределения ширины кратковременного раскрытия трещин вычисляем acrc1,acrc2, acrc3.
Ширинараскрытия трещин от кратковременного действия полной нагрузки
acrc1= 3,5×1
10 = 0,066 мм.
Ширинараскрытия трещин от кратковременного действия постоянных и длительных нагрузок
acrc2= 3,5×1
10 = 0,019 мм.
Ширинараскрытия трещин от длительного действия постоянных и длительных нагрузок
acrc3= 3,5×1,5
10 = 0,028 мм.
Кратковременнаяширина раскрытия трещин по формуле (92)
acrc = acrc1- acrc2 + acrc3 = 0,066 -0,019 + 0,028 = 0,075 < acrc1= 0,2 мм.
Величинадлительного раскрытия трещин acrc3= 0,028 мм < [acrc2]= 0,15 мм. Таким образом, ширина раскрытия трещин не превышает величин,допускаемых в соответствии с табл. 1 для конструкций, относящихся ко2-й категории трещиностойкости.
Расчетпо деформациям
Прогибизгибаемого элемента с постоянным сечением по формуле (117)
f= mρtotL2,
где по табл. 15 m = (8 + 5)0,362/(2 + 0,362)48 = 0,0866; L= 1000 мм;
K = ql/P = 1305×1: 3600 = 0,362.
Полноеувеличение кривизны элемента по формуле (106)
ρtot= ρ5- ρ6+ ρ7.
Кривизнаρ5 по формуле (107)
ρ5 = Mcrc/Bf1 + (Mn - Mcrc)/Bf3,
где Mcrc = 104 Н×м;Mn= 501 Н×м. Жесткость по формуле (96)
Bf1 = 0,85E1I1 = 0,85×2,4×104×66 = 134,6×104МПа×см4.
Жесткостьпо формуле (108)
Bf3 = kEbI1= 0,16×2,4×104×66= 25,3×104МПа×см4.
где k= 0,16 при μm1= 1,71 % > 1,5 %. После подстановки в формулу (107) кривизна ρ5равна:
ρ5= 10400/134,6×106 + (50100 - 10400)/25,3×106= 1,64×10-3см-1.
Кривизнаρ6 по формуле (112)
ρ6= Mcer/Bf3 = 14400 :(25,3×106) = 0,57×10-3см-1.
Кривизнаρ7 по формуле (113)
ρ7 = Mcer/B'f3= 14400 : (20,24×106)= 0,71×10-3см-1,
где жесткость B'f3= 0,8Bf3= 0,8×25,3×104= 20,24×104 МПа×см4.Полная кривизна по формуле (106) ρtot=(1,647 - 0,57 + 0,71)10-3 = 1,787×10-3см-1. Прогиб по формуле (117) f = 0,0866×1,787×10-3×1002= 1,55 см. Прогиб с учетом перераспределения усилий f= 4/6×1,55= 1 см. Это составляет 1/170 полного пролета складки в поперечном направлении именьше 1/150 пролета для второстепенных элементов перекрытий.
Исходные данные. Пролет свода 12 м, стрела подъема в ключе6 м, ширина свода 2 м. Свод используется для покрытия неотапливаемого здания,относится ко IIкатегории трещиностойкости.
Сводизготовлен из мелкозернистого бетона класса по прочности на сжатие В30 группыА, марка по морозостойкости F150, марка по водонепроницаемости W6.
Нормативныесопротивления бетона для предельных состояний I группы (табл. 6) равны: Rbn= 22 МПа - осевое сжатие; Rbtn =1,8 МПа - осевое растяжение.
Расчетныесопротивления бетона для предельных состояний I группы (табл. 7) равны:Rb= 17 МПа; Rbt= 1,2 МПа.
Коэффициентыусловий работы бетона равны: γb1= 0,9 (табл. 9); γb5= 0,85 (табл. 9).
Расчетныесопротивления бетона для предельных состояний II группы (табл. 6) равны. Rb, ser= 22 МПа; Rbt,ser = 1,8 МПа.
Начальныймодуль упругости мелкозернистого бетона при сжатии и растяжении определяем потабл. 10: Eb = 23×103МПа.
Волнистыйсвод армируется: двумя слоями тканой сетки № 8-0,7 (ГОСТ3826-82*) по всей длине, двумя слоями тканой сетки № 10-1 (ГОСТ3826-82*) в полках.
Расчетныесопротивления сеток для предельных состояний I группы (табл. 11) равны:
Rm=245 МПа - растяжение продольных проволок (при расчете по изгибающему моменту);
Rmω = 206 МПа - растяжениепоперечных проволок (при расчете по поперечной силе);
Rmc= 245 МПа - сжатие.
Начальныймодуль упругости сеток принимается по п. 2.25 Em= 15×104МПа.
Нормативноесопротивление растяжению для предельных состояний I группы Rsn = 390 МПа.
Расчетныесопротивления для предельных состояний I группы равны растяжению: Rs=335 МПа - для расчета по изгибающему моменту; Rsω = 285 МПа - длярасчета по поперечной силе; Rsc= 355 МПа - на сжатие.
Расчетноесопротивление растяжению для предельных состояний II группы равно: Rs, ser= 390 МПа.
Начальныймодуль упругости стержневой арматуры Es = 2×105МПа.
Расчетнаясхема принята в виде трехшарнирной арки волнистого постоянного сечения пролетом12 м и высотой 6 м.
ГЕОМЕТРИЧЕСКИЕХАРАКТЕРИСТИКИ СВОДА (рис. 1)
Сборнагрузок
1.От собственного веса qпcb= 1350/8,917 = 151,4 кг/м = 1514 Н/м, qcb= 151,4×1,1 = 167 кг/м = 1670 Н/м.
2.Снеговая нагрузка для IIIснегового района при n = 1,4:
а)равномерно распределенный снег c1= l/(8f)= 12/(8×6) = 0,25 < 0,4, следовательно, c1= 0,4; p = p0cn×2 = 100×0,4×1,4×2= 112 кг/м = 1120 Н/м;
б)неравномерный снег f/c= 6/12 = 1/2 > 1/8, следовательно, c2= 2,2; p = p0cn×2= 100×2,2×1,4×2= 616 кг/м = 6160 Н/м.
3.Ветровая нагрузка IIветровой район, n = 1,2f/l= 0,5, следовательно, c2= -1,2; c3 = -0,4;c1 = 0,7.
Расчетныеветровые давления:
q1= 35×0,7×1,2= 29,4 кг/м2 = 294 Н/м2;
q2= 35×1(-1,2)1,2= -50,4 кг/м2 = 504 Н/м2;
q3= 35×1(-0,4)1,2= -16,8 кг/м2 = -168 Н/м2.
4.Подвесное оборудование
P= (500 + 100)1,2 = 720 кг = 7200 Н.
Рис.1. Геометрическая характеристика свода
IV. РАСЧЕТ АРМОЦЕМЕНТНОГО СВОДА ШИРИНОЙ 2 м
Всоответствии со статическим расчетом для подбора сечения принято следующеесочетание усилий: M = 11,33 кН×м;N = -40 кН; Q= 3,82 кН.
Длярасчета на действие поперечной силы принимаем Q= 12,62 кН, действующую в опорном сечении (точка 0).
Приводимпоперечное сечение свода (рис. 2) к двутавровому (рис. 3):
δ = 18 + 21,2/2= 19,6 мм; β = 26°; sin(90- β) = sin(90- 64°) = 0,4384;
tω = 2δ/sin(90° - β) = 2×19,6: 0,4384 = 89,4 мм - толщина стенки.
Принимаемtω= 90 мм:
Aω = tωhω = 90×230= 20700 мм2 - площадь стенки;
Abfc = b'ft'f = 300×35= 10500 мм2 - площадь сечения сжатой полки;
Рис.2. Поперечное сечение волны арки
1 - арматураверхней и нижней полки стержневая Æ 6 А-III; 2 - тканые сетки верхней и нижнейполки (два слоя № 10-1); 3 -два слоя тканой сеткистенки № 10-1
Рис.3. Расчетное сечение свода приведенное
1 - стержневаяарматура верхней и нижней полки (1 Æ А-III); 2 - два слоя тканой сетки стенки №10-1
Abft= bftf= 300×35= 10500 мм2 - площадь сечения растянутой полки;
Ab = Aω + Abfc + Abft = 20700 + 10500 + 10500= 41700 мм2 - площадь бетона в поперечном сечении.
Расчетпо предельным состояниям Iгруппы
Вычисляемкоэффициенты армирования: коэффициент приведенного армирования растянутой полки
μmf1= μmf+ μsfRs/Rm;
где μmf-коэффициент сетчатого армирования растянутой полки;
μmf= μmf1 +μmf2 = Am1/tf + Am2/tf= 2×0,00385×102×0,115 : 35 + 2×0,00785×102×0,091 : 35 = 0,00661,
где μmf1= Am1/tf- коэффициент сетчатого армирования растянутой полки сеткой № 8-0,7; μmf2= Am2/tf-то же, сеткой № 10-1, где Am1,Am2 - площадь сечения сеток на единицу длины врастянутой полке соответственно № 8-0,7, № 1 (см. прил. 2 СНиП 2.03.03-85); Am1= 0,00385×102×0,115= 0,0442 мм2/мм; Am2= 0,00785×102×0,091= 0,0714 мм2/мм; μsf= As/Abft= 4×0,283×102/35×300 = 0,01078 -коэффициент армирования растянутой полки стержневой арматурой, где As -площадь сечения стержневой арматуры, As =4×0,283×102= 113,2 мм2.
Коэффициентприведенного армирования верхней растянутой полки μmf1= 0,00661 + 0,01078×355/245 = 0,0222. Коэффициент приведенногоармирования сжатой полки μ'mf1.
Таккак армирование симметричное, μ'mf1= μmf1= 0,0222, где μ=0,01973 - коэффициент приведенного армирования стенки;
μmω= Amω/tω = 4×0,00385×102×0,115: 39,9 = 0,0045,
где Amω - площадь сечениясеток на единицу длины в стенке.
Эксцентриситетпродольной сжимающей силы от всей расчетной нагрузки
e0= M/N = 1130000 : 40000 = 298 мм > ea,
где ea -случайный эксцентриситет, обусловленный не учтенными в расчете факторами (п. 3.15).
Значениеea принимаетсяравным:
ea = la/600= 8,917 : 600 = 0,015 м = 15 мм,
где la- длина части элемента между точками закрепления;
ea = h/30 =300 : 30 = 10 мм;
h- высота сечения элемента.
Принимаемe0 = 1048 мм. Учетвлияния прогиба элемента (п. 3.16), формула (29)
η = 1/(1 - N/Ncr).
Условнаякритическая сила
Ncrt= 
Моментинерции бетонного сечения относительно центра масс бетонного сечения
![]()
Моментинерции всей арматуры относительно центра масс бетонного сечения
Im1= EsIs/Em + Imf1 + Imf,
где Is,Imf1,Imf - моменты инерции соответственностержневой арматуры, сетчатойарматуры верхней полки, сетчатой арматуры нижней полки, равные:
Imf1= Imf = 2×105/15×104×2×113,2(150- 35/2)2 + 2×0,00661×10500(150 - 35/2)2 = 7736630 мм4.
Коэффициент,учитывающий влияние длительного действия нагрузки на прогиб элемента в предельном состоянии, равен:
φe= 1 + βM1e/M1,при β = 1,3.
Моментывнешних сил относительно оси M1и M1e, проходящей через растянутую грань сеченияот действия полной нагрузки и от действия постоянной и длительной нагрузки,равны;
M1= полная + N/(h0- a')/2= 11,33 + 10,81(0,3 - 0,018)/2 = 11,33 + 1,52 = 12,85 кН×м;
M1e= 0,2 + 0,3×5,93 + (8,22 + 0,3×6,89)(0,3- 0,018)/2 = 0,2 + 1,78 + 1,45 = 3,43 кН×м.
Послеподстановки коэффициенты равны:
φe= 1 + 3,43/12,85×1,3= 1,35;
α1 = e0/h =104,8/300 = 3,49 > α1min= 0,02515,
где α1min= 0,5 - 0,01l0/h- 0,01Rb= 0,5 - 0,01×10344/300 - 0,01×17×0,9×0,85= 0,5 - 0,3448 - 0,13005 = 0,02515. Расчетная длина l0= 0,58la = 0,58×8917= 5172 мм. Принимаем α1 = 3,49. Отношение модуля упругостисетчатой арматуры Em и бетона Eb равно:
α = Em/Eb = 15×104 : (23×103) = 6,52.
Критическаясила

Коэффициентувеличения эксцентриситета η = 1/(1 - 40/130,9) = 1,44.
Эксцентриситетрасчетной силы с коэффициентом, учитывающим влияние продольного изгиба, равен: ec= e0×η = 29,8×1,44 = 43 см.
Дляопределения, по какому случаю следует рассчитывать внецентренно сжатое сечение,определяем предельное отношение x/h.Предельное отношение x/h поформуле (8)
ξR= ω/[1+ σs(1- ω/1,1)/σsc,u].
Характеристикасжатой зоны для внецентренно сжатого сечения по формуле (9)ω = 0,5 - 0,008Rb = 0,5 - 0,008×17×0,9×0,85= 0,396. Напряжение в арматуре σs= Rs= 355 МПа; предельное напряжение в арматуре сжатой зоны σsc,u = 500 МПа (СНиП 2.03.01-84,п. 3.12)
Послеподстановки величин в формулу (8) получим ξn=0,396/1 + 355/500(1 - 0,396/1,1) = 0,27. Эксцентриситет продольной силы N относительнонижней растянутой грани
et = ec+ ycm = 43 + 15 = 58 см.
Эксцентриситетпродольной силы N относительносжатой полки
e' = et- h + tf/2 = 58 - 30 + 1,5 : 2 = 29,5 см.
Коэффициентγ1 по формуле (48)
γ1= (et - h)(b'ft'f- tωt'f)- tω(t'f)2/2+ b'f(t'f)2/2= (58 - 30)(30×3,5 - 9×3,5)- 9×3,52: 2 + 3×3,52 : 2 = 2023,2.
Коэффициентγ2 по формуле (48)
γ2= γ1μmω+ b'ft'f(μmc1- μmω)e' = 0,0071×2023,2+ 30×3,5(0,0222 - 0,0071)33,2 = 66,8.
Коэффициентγ3 по формуле (49)
γ3= tωμmω(het- h2/2- tfet+ t2f/2)+ bftfμmf1(et- tf/2) = 9×0,0071(30×58- 30 : 2 - 3,5×58 + 3,52 : 2) + 30×3,5×0,0222(58- 35 : 2) = 201.
Послеподстановки полученных величин в формулу (47) получим

Посколькуотношение высоты сжатой зоны x/h= 0,033 < ξR= 0,27; x = 10 мм, t'f= 35 мм, прочность внецентренно сжатого сечения по формуле (33) равна:
N'e≤ Rmμmω1Aω(hω + tf)/2+ Rmμmf1At[h- (tf + t'f)/2]= 245×0,0071×20700(230+ 35) : 2 + 245×0,0222×10500×300- (35 + 35) : 2 = 19930000 Н×мм.
Прочностьсечения N = 19930000/295 = 67500 Н = 67,5 кН.Прочность сечения обеспечена, так как N= 67,5 > 40 кН.
Расчетпо прочности сечений, наклонных к продольной оси элемента, производится посжатому бетону между трещинами по формуле (57):
Q≤ 0,3φω1φb1Rbbhω.
Коэффициент,учитывающий влияние поперечных и продольных проволок сеток по формуле (58),равен:
φω1= 1 + 5Emμmω1/Eb= 1 + 5×15×104: (23×103×0,002)= 1,065.
Коэффициентприведенного армирования стенки при расчете на поперечную силу по формуле (63)
μmω1= Amω/(tωhω) + Asω(Rsω/(hωtωRmω) = 0,002.
Поперечныестержни, пересекающие наклонную трещину, отсутствуют. Коэффициент φb1по формуле (59) φb1= 1 - 0,01Rb= 1 - 0,01×17×0,9×0,85= 0,987. Максимальная поперечная сила в опорном сечении Q= 12,62 кН.
Послеподстановки величин в формулу (57) получим 0,3φω1φb1Rbbhω = 0,3×1,065×0,987×17×0,9×0,85×90×230= 82278 МПа/мм2 = 82,3 кН > Q= 12,62 кН, т.е. условие выполнено.
Расчетпрочности сечений, наклонных к продольной оси, выполняем по формуле (60).
Поперечнаясила, воспринимаемая поперечными проволоками сетки, пересекающих наклоннуютрещину, по формуле (61). Проекции наклонной трещины (угол наклонатрещины принимается равным 45°) aq = 230 мм.
Интенсивностьармирования элемента поперечными проволоками сеток в пределах наклонной трещиныпо формуле (62)
qmω = Rmωμmω1tω/sin(90 - β) = 206×0,002×90 : 0,4384 =84,6 МПа = 8460 Н/м.
Уголнаклона стенки к вертикальной оси сечения β = 64°; sin(90 - 64) = sin 26 = 0,4384. Поперечная сила Qm= 8460×0,23= 1946 Н = 1,95 кН.
Поперечнаясила, воспринимаемая бетоном сжатой зоны в наклонном сечении для внецентренносжатого элемента по формуле (64), равна:
Qb= 0,75Rbttωh2ω/aq= 0,75×1,2×0,9×0,85×90×2302: 230 = 14300 МПа×мм2 = 14,3 кН.
Прочностьпо наклонному сечению по формуле (60) Q= 12,62 < Qm + Qb=1,95 + 14,3 = 16,25 кН. Условие выполнено.
Расчет по предельным состояниям II группы
Расчетвнецентренно сжатого элемента по образованию нормальных трещин производим изусловия (66): Mn ≤ Mcrc.
Моментвнешних сил по формуле (71)
Mn = N(ec- rn).
Момент,воспринимаемый нормальным сечением при образовании трещин по формуле (67),равен:
Mcrc = Rbt, serWcrc ± Mshr.
Коэффициентыприведенного армирования с учетом отношения модулей упругости равны:
μmf1(E) = μ'mf1(E) = μmf + μsfEs/Em = 0,00661 + 0,01078×20×104: (15×104)= 0,021;
μmω = μmω(E) = 0,002.
Приведеннаяплощадь сечения
A1 = b'ft'f(1 + αμ'mf1(E))+ bftf(1+ αμmf1(E))+tωhω(1+ αμmω(E))=2×300×35(1+ 6,52×0,021)+ (1 + 6,52×0,002)90×230= 44900 мм2.
Таккак армирование симметричное, ycm = 150 мм. Моментинерции сечения относительно центра масс приведенного сечения
2[300×352 : 12 + 300×35(300- 150 - 35 : 2)2](1 + 6,52×0,021)+ 90×2303: 12(1 + 6,52×0,002) = 51404×104мм4.
Моментсопротивления сечения W1= I1/ycm= 51404×104/150 = 3427×103мм3. Расстояние от центра масс приведенного сечения до ядровойточки, наиболее удаленной от растянутой зоны, трещинообразование которойпроверяется по формуле
rn = φW1/A1,
где 0,7 ≤ φ = 1,6 - σb/Rb, ser ≤ 1. Максимальное напряжениев сжатом бетоне, вычисляемое как для упругого тела по приведенному сечению,равно:
σb= N/A1 + M/W1 = 10,81 : 44900 + 11,33 :(3427×103) = 0,0274×10-2кН/мм2= 27,4 МПа;
φ= 1,6×27,4/22= 0,655 < 0,7.
Принимаемφ = 0,7; rn = 0,7×3427×103/44900= 53,4 мм.
Моментотносительно ядровой точки Mn = N(ec- rn) = 10,81(11,42 - 53,4) = 11710 кН×мм= 11,77 < кН×м.
Моментсопротивления приведенного сечения для крайнего растянутого волокна с учетомнеупругих деформаций растянутого бетона по формуле (79)
Wcrc= [0,292 + 0,75(γ1+ 2αμmf1(E)) + 0,75 (γ2+ 2αμ'mf1(E))]tωh2= (0,292 + 0,75(0,272 + 2×0,021×6,52)+ 0,075(0,544 + 2×0,021×6,52)90×3002= 6172200 мм3,
где
γ1= (bf - tω)tf/(tωh) = (300 - 90)35 : (90×300)= 0,272;
γ2= 2(b'f- tω)t'f(tωh) =2(300 - 90)35 : (90×300) = 0,544;
α = Em/Eb = 6,52.
Моментусилия Nshr, вызванного усадкой армоцемента,относительно той же оси, что и для определения M:
Mshr = Nshr(ecp+ rn).
Усилиеусадки по формуле (60)
Nshr = σshr(μmf1(E)Acf+ μmf1(E)Aωt+ μmf1(E)Aft).
Напряжениев сетке, вызванное усадкой бетона σshr,равное 45 МПа (для мелкозернистого бетона группы А класса В30, подвергнутоготепловой обработке), равно:
Nshr = 45(0,021×10500+ 0,021×10500 + 0,002×20700)= 21700 МПа/мм2 = 21,7 кН.
Эксцентриситетсилы Nshr относительно центрамасс приведенного сечения по формуле (70)
ecp = (μmf1(E)Aftyt + μmω1(E)Aωtyt - μ'mf1(E)Acfyc)/(μmf1(E)Aft + μmω1(E)Aωt + μ'mf1(E)Acf),
где yt= yc; yω = 0,следовательно, ecp = 0; yt,yω, yc - расстояния от центра масс приведенногосечения до центров масс сечений соответственно растянутой полки, вертикальнойстенки и сжатой полки.
Моментот усадки Mshr= Nshrrn= 21,7×53,4= 1159 кН×мм= 1,16 кН×м.
Момент,воспринимаемый сечением при образовании трещин по формуле (67),равен: Mcrc = 1,8×6172200×10- 1,16 = 9,9 кН×м, так как Mn= 11,77 кН×м> Mcrc = 9,9 кН×м.
Рис. 4. Сечение свода, приведенное кстальному
Трещиныв бетоне раскрываются. Ширину раскрытия трещин, нормальных к продольной осиэлемента, при комбинированном армировании определяем по формуле (85)
acrc =φφeηmγm(σm/Em)20(3,5- 100μmt1)
,
φ = 1 -внецентренно сжатый элемент, φe= 1 - при кратковременных нагрузках и кратковременном действии нагрузок; φe= 1,5 - при длительном действии нагрузок для мелкозернистого бетона группы А;γ = 1,5, так как μωt > 2 %;ηm = 1, так как сеткитканые.
Приведенныймодуль упругости арматуры по формуле (87)
Em1= (Emμm+ Esμs)/(μm+ μs)= (15×104×0,00661+ 2×105×0,01078): (0,00661 + 0,01078) = 18,1×104 МПа.
Длявычисления ширины раскрытия трещины приводим сечение к стальному (рис. 4).
Дляопределения положения нейтральной оси в момент трещинообразования вычисляемстатический момент площади таврового сечения (без полок в растянутой зоне)относительно нижней грани.
Статическиймомент сечения
Sтb = b'ftf(h - t'f/2)(1 + αμ'mf1(E))+ [tω(hω - tf)(hω + tf/2)](1+ αμmω1(E))= 300×35(300- 35 : 2)(1 + 6,52×0,021)+ [90(230 + 35)(230 + 35) : 2](1 + 6,52×0,002) =6573700 мм3.
Приведеннаясуммарная площадь таврового сечения
Aт1= b'ft'f(1 + αμ'mf1(E))+ tω(hω + tf)(1+ αμmω1(E))= 300×35(1+ 6,52×0,021) + 90(230 + 35)(1 + 6,52×0,002)= 36100 мм2.
Приведеннаяплощадь уширений растянутой полки
Aym =(bf - tω)(1 + αμmf1(E))tf = (300 - 90)(1 + 6,52×0,021)35= 8360 мм2.
Высотусжатой зоны в момент трещинообразования определяем по формуле (78)
h - x = Sтb1/(Aт1+ A1ym/2) = 6573700 : (36100 + 8360 : 2) = 163,2 мм;
x= h -163,2 = 300 - 163,2 = 136,8 мм = 137 мм.
Моментинерции сжатой зоны сечения относительно нулевой линии
300×353 : 12 + 300×35(137- 35 : 2)2(1 + 6,52×0,021) + 90(13,7 - 35)3 : 12 +90(137 - 35)[(137 - 35) : 2]2(1 + 6,52×0,002)= 203942800 мм4.
Статическиймомент растянутой части сечения относительно нулевой линии равен:
St1 = bftf(h - x - tf/2)(1+ αμmf1(E))+ tω(hω + tf - x)2(1 + αμmω1(E))/2= 300×35(300- 137 - 35 : 2)(1 + 6,52×0,021) + 90(230 + 35 - 137)2(1+ 6,52×0,002): 2 = 2483820 мм3.
Моментсопротивления приведенного сечения с учетом неупругих деформаций растянутогобетона по формуле (76)
W1= 2I1/(h - x)+ S1 = 2×203942800 : 163 + 2483820 = 4986190 мм3.
Расстояниеот центра масс до ядровой точки
r = W1/A1 = 4986190 : 44900 = 111,1 мм.
Размерысечения, приведенного к стальному (рис. 4):
tsf1= μmf1(E)tf= 0,021×35 = 0,74 мм;
tsωt1= μmω1(E)tω = 0,002×90= 0,18 мм;
t'sf1= μ'mf1(E)t'f+ t'fEb/Em= 0,021×35 + 35×23×103: (15×104)= 6,1 мм;
t'sωc1= μmω1(E)tω + tωEb/Em= 0,002×90 + 90×23×103 :(15×104)= 14 мм;
hs = h - (t'f + tf)/2 = 300 - (35 + 35) : 2 = 265 мм;
x1= x - t'f/2= 137 - 35 : 2 = 119,5 мм.
Расстояниедо центра масс сечения, приведенного к стальному, равно:
yc= S1/A1= [b'ft'sf1h1+ tsωc1x1(h1- x1/2)+ tsωt1(h1- x1)2/2]/[b'ft'sf1 + t'sωc1x1 + tsωt1(h1 - x1) + bftsf1] = [300×6,1×265+ 1,4×119,5(265- 119,5 : 2) + 0,18(265 - 119,5)2 : 2] : [300×6,1+ 1,4×119,5+ 0,18(265 - 119,5) + 300×0,74] = 221 мм.
Моментинерции сечения, приведенного к стальному, равен:
Is1 = b'ft'sf1(h1- yc)2 + tsωc1x31/12+ tsωc1x1(h1- x1/2 - yc)2 + tsωt1(h1 - x1)3/12 + tsωt1(h1 - x1)[yc - (h1 - x1)/2]2 + bftsf1y2c = 300×6,1(265 - 221)2+ 1,4×119,53: 12 + 1,4×119,5(265 - 119,5 : 2 - 221)2 +0,18(265 - 119,5)3 : 12 + 0,18(265 - 119,5)[221 - (265 - 119,5) : 2]2+ 300×0,74×2212= 1741×104мм4.
Моментсопротивления сечения, приведенного к стальному по формуле (91),равен:
Ws1= Is1/1,3yc = 1741×104 : (1,3×221) = 60,6×103мм3.
Напряжениев арматуре по формуле (90) σm= Ntot(ec tot ± r)/Ws1. Равнодействующая продольной силы равна N,так как усилие предварительного обжатия равно нулю.
Ширинанепродолжительного раскрытия трещин определяется по формуле (92)
acrc = acrc1 - acrc2 + acrc3.
Дляопределения ширины раскрытия трещин от непродолжительного действия всейнагрузки acrc1 по формуле (85) вычисляем: при Mн1= 8,75 кН×м, Nн1= -35,81 кН; ec = 8,75/35,81 = 0,244 м= 244 мм; ec, tot= e0η= 244×1,44= 351,4 мм;
σm1= N(ec, tot - r)/Ws1 = 35,81(351,4 - 111,1) : (60,6×103) = 141,9 МПа.
Ширинараскрытия трещин по формуле (85)
acrc1 =1×1×1,5×1
20(3,5 - 100×0,02)
= 0,064 мм.
Ширинараскрытия трещин от постоянных и длительных нагрузок при их непродолжительномдействии равна: M2= 6,45 кН×м;N2 = 28,90 кН.
Эксцентриситетec = M2/N2= 6,45/29,9 = 0,223 м = 223 мм; ec, tot= 223×1,44= 321 мм.
Напряжениеσm2= 28,9(321 - 111,1)/60,6×103 = 100 МПа;
acrc2 =1×1×1,5×1
20×1,5
= 0,014 мм.
Ширинапродолжительного раскрытия трещин от действия постоянных и длительных нагрузокравна: acrc3 = 1,5acrc2 = 1,5×0,044= 0,06 мм.
Кратковременноераскрытие трещин равно:
acrc = acrc1 - acrc2 + acrc3= 0,064 - 0,044 + 0,06 = 0,08 мм.
Кратковременноераскрытие трещин не превышает допустимого раскрытия по табл. 1: acrc = 0,08 < [acrc1] = 0,1 мм.
Длительноераскрытие трещин равно допускаемому длительному раскрытию трещин (табл. 1) приприменении оцинкованной сетки.
Изготовлениеармоцементных плит-оболочек методом стационарного виброштампования
Сравнительнонебольшие в плане армоцементные конструкции площадью до 20 м2 сразвитыми ребрами и сложным армированием оболочки, например, панели-оболочки подвесногопотолка, целесообразно изготавливать методом стационарного виброштампования вдвойной опалубке, разработанным в НИИСКе Госстроя СССР. Плита подвесногопотолка представляет собой пологую длинную цилиндрическую оболочку,ограниченную по длине торцевыми диафрагмами, а по ширине - бортовымиэлементами, вытянутыми в горизонтальном направлении. Такое очертание и размерывызваны технологическими и эксплуатационными требованиями к устройствупроходного чердака.
* Технологиюизготовления и конструкцию армоцементных плит-оболочек разработали в НИИСКе(канд. техн. наук В.Д. Галич, В.Н. Овчар).
Плита-оболочка(рис. 1)имеет следующие размеры: длина 5,79 м, ширина 2,31 м, высота 0,3 м, толщинаплиты 20 мм и армируется частыми сетками сварной сеткой и сварными каркасами.Плита изготавливается из мелкозернистого бетона группы А или Б, нижняяповерхность плиты окрашивается паронепроницаемой масляной или синтетическойкраской. Поле плиты-оболочки армируется пакетом, состоящим из одной сварной идвух тканых сеток. Проектное положение тканых сеток обеспечивалось применениемразделительных сварных сеток. Бортовые элементы армируются пространственнымикаркасами, диафрагмы - плоскими каркасами. Для съема изделий с матрицы и последующихмонтажных операций в торцахпанелей-оболочек предусмотрены потайные петли. В бортовых элементахпредусмотрены также закладные изделия для приварки к полкам ригелей и длякрепления к панелям светильников.
Арматурныекаркасы ребер свариваются на шаблоне в пространственный каркас. Защитный слойфиксируют скрутками, оставляемыми при вязке пакета сеток, предварительнойраскладкой подстилающего слоя бетонной смеси, фиксаторами конструктивных сеток.
Формыоснастки состоят из комплекта металлических матриц и пуансонов. Доборные плитыполовинной ширины могут размещаться по две в матрице с клиновой извлекаемойпосле формования перегородкой. Отверстия в плитах образуют вкладышами наматрицах. В верхних частях формы предусматривают участки для удаления избыткабетонной смеси.
Мелкозернистуюбетонную смесь равномерно распределяют по матрице. Для получения ровной верхнейповерхности при укладке необходимо дополнительное уплотнение смесивибропрофилером. Поверх смеси устанавливают пуансон и пригруз, обеспечивающийудельное давление порядка 10-2 МПа.
Виброштампованиена площадке с частотой 50 Гц и амплитудой не менее 0,4 мм производит до полнойпосадки пуансона на матрицу, но не менее 90 с. Затем снимают пригруз, удаляютизбыток смеси, выдавленный сквозь центральную прорезь пуансона, а форму сизделием помещают в пропарочную камеру. Режим тепловой обработки в двойнойопалубке аналогичен кассетному производству.
Напосту распалубки, после снятия пуансона, плита-оболочка с помощью траверсы извлекаетсяиз формы-матрицы и укладывается в штабель с прокладками по углам.Транспортируют плиту в контейнерах с откидными опорами.
Трехграннаяскладчатая плита подвесных потолков (рис. 2) более удобна для прохода поним в устройства световых проемов. Средняя горизонтальная грань плиты-складкиимеет ширину 1 м. Опалубочные размеры плиты приняты в соответствии стехнологическими требованиями изготовления виброштампованием.
Плита-складкаимеет форму и размеры: длина 5,8 м, ширина 2,4 м, высота 0,3 м,толщина оболочки 20 мм, угол наклона боковых граней около 23°.
Видарматурных элементов плиты-складки, классы стали и бетона аналогичны описаннымвыше для плиты-оболочки.
Рис.1. Плита-оболочка подвесного потолка
а - опалубочныйчертеж; б - деталь установки монтажной петли; в - схема армирования торцевого ребра
Рис.2. Плитка-складка подвесного потолка
а - опалубочныйчертеж; б - схема армирования
Изготовление методом скользящеговиброштампования
Армоцементныеконструкции панелей-перегородок шириной до 3 м плоские (рис. 3) иликриволинейные, с развитыми окаймляющими ребрами, подкрепленные иногда невысокимипоперечными ребрами, а также плиты-оболочки покрытий сводчатые (рис. 4)целесообразно изготавливать методом скользящего виброштампования(вибропрофилирования).
Взависимости от размеров эти конструкции изготавливают на стендовых илиагрегатно-поточных технологических линиях, соответственно в неподвижных илиперемещаемых формах, а формующие машины либо их рабочие органы перемещаются понаправляющим форм или поста формования.
Конструкцииармоцементных перегородок разработаны для применения в одноэтажных имногоэтажных промышленных зданиях.
Панелимогут устанавливаться вертикально и горизонтально. При вертикальной раскладке,которая является основным решением, нижний конец панели закрепляется в полу, аверхний опирается на железобетонный или металлический прогон, прикрепляемый кколоннам или покрытию (перекрытию).
Наибольшеераспространение получили ребристые одинарные панели перегородок. Разработаныперегородки шириной 1 и 1,5 м по два типоразмера для каждой ширины.
Перегородки шириной 1 м имеют размеры (рис. 3): 1-й типоразмер - общая высота 2,5 - 7,2 м, высотапродольных ребер - 100 мм, высота поперечных ребер, расположенных с шагом 1,5м, - 40 мм; 2-й типоразмер - общая высота 7,3 - 12 м, высота продольных ребер -200 мм, поперечные ребра - такие же. Толщина полки везде 20 мм.
Перегородки шириной 1,5 м имеют размеры: 1-й типоразмер -общая высота 2,5 - 7,2 м, высота продольных ребер - 120 мм, высота поперечныхтреугольных ребер, расположенных с шагом 1,5 м, - 40 мм; 1-й типоразмер - общаявысота 7,4 - 12 м, высота продольных ребер - 200 мм, поперечные ребра - такиеже. Толщина полки везде 20 мм.
Изготовлениепанелей перегородок производится методом скользящего виброштампования, прикотором тканая сетка полок укладывается в проектное положение в процессеформования изделий без дополнительных фиксаторов.
Длясъема панелей с формы в продольных ребрах предусматриваются монтажные трубки.Для соединения панелей друг с другом по высоте в продольных ребрахпредусмотрены закладные пластины, приваренные к арматурным элементам поперечных ребер.
Дляармирования полки панелей применяется тканая сетка № 10-1 (ГОСТ3826-82*); продольные ребра армируются плоскими сварными каркасами из сталикласса А-III(для продольных стержней) и класса В-I (для поперечных стержней); поперечные ребра армируютсяотдельными стержнями из стали класса В-I.
Бетонпанелей перегородок мелкозернистый группы А или Б класса В30.
Дляуниверсальных складских сводчатых зданий сельскохозяйственного назначения пролетами18, 21 и 24 м и стрелой подъема соответствию 0,7 и 6 м разработаныармоцементные плиты-оболочки (рис. 4). Плиты представляют собойпологую короткую цилиндрическую оболочку, наружная поверхность которой описанапо дуге радиусом 14,69 м. По длинным сторонам плита обрамлена продольнымиребрами постоянной высоты, по короткой - наклонными торцевыми ребрами.Тонкостенная армоцементная полка толщиной 15 мм подкреплена поперечнымиребрами, расположенными с шагом 1 м. Размеры плиты-оболочки: длина 12700 мм,ширина 2980 мм, стрела подъема 1730 мм. Продольные ребра имеют трапецеидальноесечение, ширина понизу 50 мм; торцевые ребра имеют толщину 10 мм; поперечныеребра - трапецеидальные, высота их 120 мм, ширина понизу 30 мм, поверху 70 -110 мм. Для организации водоотвода с кровли внизу предусмотрен слив.
Дляармирования полки плиты оболочек применяется тканая сетка № 10-1 (ГОСТ3826-82*); для армирования поперечных ребер - отдельные стержни из арматурыкласса А-III,торцевых и продольных ребер - плоские каркасы с продольной арматурой из сталикласса А-IIIи поперечной арматурой из стали класса В-I.
Крупноразмерныеплиты-оболочки сводов покрытий формуют машиной МПП-4 - самоходным порталом с двумярабочими органами для раздельного формования продольных ребер и армоцементнойоболочки (рис. 5)со скоростью 1,3 м/мин.
Рис. 5. Схема формования армоцементных плит-оболочек сводов
1 - портал; 2 - вертикально-подвижная каретка;3 - бункер накопитель; 4 - натяжной механизм; 5 -рулонодержатель; 6 -фиксатор армирующей сетки; 7 - вибробункер; 8 - скользящий виброштамп; 9 - тележка рабочего органа
Бетоннаясмесь из накопительных бункеров поступает в раздаточные, разжижаетсявибрированием и подается в ребра или оболочку. Постоянное расстояние междубункерами, предотвращающее расслоение смеси, поддерживается автоматическойследящей системой. В продольных ребрах смесь уплотняется вибраторами,прижимаемыми и скользящими по бортам формы, в поперечных - навесными. Воболочке смесь уплотняется скользящим виброштампом (вибропрофилером) содновременным армированием тканой проволочной сеткой. Сетка из четырех рулоновшириной по 1 м, закрепленная на самоходном портале, натягивается фрикционныммеханизмом и фиксируется поддерживающими ее снизу стержнями гребенки вуплотненной бетонной смеси, а в конце формования отрезается дисковой плитой.Поверхность оболочки заглаживают вибропрофилером при поднятой гребенке наповышенной скорости (до 10 м/мин).
Оптимальныепараметры формования: жесткость мелкозернистой бетонной смеси 4 - 5 м, частотавибрации ребер 50 Гц, оболочки - 100 Гц, амплитуда колебаний 0,15 - 0,25 м,длительность формования до 50 мин.
Насвежеотформованную поверхность оболочки наносится кровля (мастичная илирулонная) или временное изоляционное укрытие, например полиэтиленовая пленка.
Режимтепловой обработки 3 + 3 + 3 ч при максимальной температуре 85 °С.
Поокончании тепловой обработки плиты-оболочки распалубливают, кровлю окрашивают в2 слоя светозащитной краской БТ-177 или ХП-799. Плиты складируют на стеллажах сопиранием в четвертях пролета и перевозят на специально оборудованныхустройствах с опиранием в восьми точках.
Изготовлениеплоских ребристых панелей перегородок отличается укладкой натягиваемойармирующей сетки между пониженным торцевым бортом и верхним фиксатором, а такжезаглаживанием плоской поверхности вращающимся валиком.
Изготовлениесводчатых армоцементных конструкций послойным формованием *
* Технологиюизготовления и конструкцию армоцементных сводов разработали в ЛенЗНИИЭПе (кандидаты техн. наук Б.А. Миронков, С.П. Панарин, инж. Г.М. Абраменкова).
ВЛенЗНИИЭПе накоплен опыт разработки технологии изготовления элементов волнистыхсводов пролетами 12 - 40 м методом послойного формования (рис. 6).
Изготовлениеэлементов осуществляется на нагреваемых металложелезобетонных формах-матрицах.Элементы сводов пролетами 18 м имеют длину дуги 13,5 м, ширину 2 м, стрелуподъема 1,71 м, высоту поперечного сечения волны 0,4 м. Толщина плиты элемента20 мм, а в местах размещения стержневой арматуры толщина плиты равна 35 мм.Армирование таких элементов состоит из двух слоев тканых сеток и продольныхстержней, размещенных между сетками. Конструктивная схема механизированнойустановки, на которой осуществляется изготовление элементов с совмещениемпроцессов армирования элементов двумя слоями сеток и продольной стержневойарматурой, приведена на рис. 6. Установка состоит из металлоконструкцийформовочного поста, формовочных тележек и тяговой лебедки для перемещениятележки.
Рис.6. Конструктивная схема установки для послойного формирования элементовсводов
1 - рельсыформовочного поста; 2 - форма, 3 - формовочные тележки; 4 - стержневая арматура; 5 - распределительная планка
Изготовлениеэлементов осуществляется за одни рабочий проход формовочных тележек, связанныхмежду собой жесткими тягами. Первая тележка укладывает слой бетона, уплотняет иукладывает арматурную сетку. Такой армированный слой равен половине толщиныоболочки. На этот слой укладываются арматурные стержни, пропускаемые междуформующими тележками. Вторая формовочная тележка так же как первая,раскладывает слой бетонной смеси и слой арматурной сетки.
Тележкиперемещаются по рельсовому пути, кривизна которого соответствует кривизнепродольной нейтральной оси изделий. Съемные формы устанавливаются и фиксируютсяна опорах формовочного поста.
Формовочныетележки имеют одинаковую конструкцию и состоят из портала, формующегоустройства и трех съемных барабанов для тканой сетки. Формующий органоборудован высокочастотными пневматическими вибраторами с частотой 167 Гц ишлейфом - скользящей опалубкой для предохранения бетонной смеси от оплывания снаклонных поверхностей формы в процессе формования. Скорость перемещениятележек 1 м/мин. Формование армоцементного элемента осуществляется в такойпоследовательности:
наопоры формовочного поста устанавливается форма, смазанная и очищенная от бетонас продольными бортами, в которых зафиксированы закладные детали для креплениявременных поперечных стяжек;
формовочныетележки с заполненным бетоном основными бункерами наезжают на форму иостанавливаются в таком положении, при котором задняя кромка шлейфа совмещаетсяс торцом формы;
тканыесетки, пропущенные в щель между вибробалкой и приемным бункером, закрепляются вспециальном устройстве у торца формы, а приемный бункер заполняется бетоннойсмесью; после предварительной виброобработки смеси в течение 1 миносуществляется формование первого слоя элемента;
приподходе второй формовочной тележки к форме обе тележки останавливаются, внаправляющие ролики второй формовочной тележки заправляется продольнаястержневая арматура, загнутые концы которой прикрепляются с помощью инвентарныхкрючков к зажимному устройству, а сами стержни укладываются на первуюформовочную тележку;
продолжаетсяформование первой тележкой до положения, при котором задняя грань шлейфа второйтележки дойдет до торца формы, после чего тележки останавливаются, тканая сеткавторой тележки закрепляется, приемный бункер заполняется бетоном; послепредварительного уплотнения включается лебедка и осуществляется процессформования элемента до выхода тележек за границы формы;
формас отформованным элементом снимается с формовочного поста и переносится краномна пост изготовления торцевых бортов (рис. 7);термообработка изделий осуществляется путем контактного нагрева на форме.
Рис. 7. Опорные узлы сводчатых зданий из армоцементныхэлементов
а - стык элементов в шелыге свода; б - стыкэлемента свода с фундаментной балкой; 1 - армоцементный элемент свода; 2- бетонный шарнир на диафрагме; 3- деревянный нащельник; 4- фундаментная балка; 5 – фундамент
Технологияформования элементов волнистых сводов больших пролетов (рис. 8) имеетсвои особенности, заключающиеся в том, что в качестве основной продольнойарматуры применяются стержни большого диаметра 16 - 20 мм, а в поперечномнаправлении устанавливается стержневая арматура диаметром 5 - 6 мм с шагом 150- 200 мм.

Рис.8. Узел опирания большепролетных сводчатых покрытий из армоцементных элементов на подстропильные балки
1 -армоцементный элемент свода; 2- металлическая затяжка; 3 - торцевая диафрагма элемента; 4 - подстропильная балка; 5 -фундамент
Частокроме основной арматуры, располагаемой в гребнях волн, устанавливаетсядополнительная продольная арматура на наклонных участках сечения. Тканые сеткиразмещаются, как обычно, с внутренней и наружной стороны по сечению элемента.Традиционные способы изготовления, когда бетонирование осуществляется послеручной связки каркаса на форме и последующего бетонирования, не обеспечиваютзащитного слоя бетона и характеризуются большой трудоемкостью работ.
Элементысборного свода пролетом 40 м имеют длину 13,9 м. В продольном направлениинейтральная ось элемента представляет дугу с радиусом 28,9 м. В поперечномсечении элемент имеет ширину 1,98 м, высоту сечения 0,5 м и стержневоеармирование. Поперечная арматура состоит из 92 стержней с шагом 0,15 мм.
Изготовлениеэлементов осуществляется способом послойного формования за два рабочих ходаодной формовочной тележки в такой последовательности:
напост устанавливается и фиксируется форма;
находовую раму тележки ставится формующий модуль I, предназначенный для укладки и уплотненияслоя бетона, армированного одной сеткой;
формуетсяпервый слой, причем в процессе движения формовочной тележки с нее снимаетсязаранее заготовленные гнутые стержни поперечной арматуры и вручнуюраскладываются на свежеотформованный слой бетона согласно отметкам напродольных бортах;
сходовой рамы тележки снимается модуль I и тележка перегоняется в исходное положение;
наформу подаются стержни продольной арматуры, загибаются коротыши поперечнойфиксирующей арматуры и ставятся закладные детали;
находовую раму тележки ставится формовочный модуль II, предназначенный для укладки и уплотнениявторого слоя;
формуетсяпоследний слой элемента, армированный одним слоем тканой сетки;
формаоткатывается с поста формования, в свежеотформованном изделии протыкаютсяотверстия диаметром 20 мм для последующего крепления затяжки, изделиеукрывается пленкой и теплоизолирующим матом и проходит цикл термообработки;
наготовое изделие устанавливаются стяжки, изделие снимается с формы иукладывается на инвентарные поставки.
Вслучае формования утеплителя на тележку устанавливается модуль III и осуществляется его укладка за третийход.
Снижениетрудоемкости арматурных работ и отказ от вязки стержневого арматурного каркасадостигнуты путем использования простого устройства для одновременного гнутьянескольких поперечных стержней и разработки способа фиксации продольнойарматуры. Фиксация 22 стержней продольной арматуры обеспечивалась приваркойвертикальных коротышек к 10 стержням поперечной арматуры (рис. 9).Поперечные стержни, уложенные равномерно на первый отформованный слой элемента,и являются основой, на которую укладываются продольные стержни. После раскладкипродольной арматуры коротыши-фиксаторы загибаются.
Рис. 9. Расположение арматуры в армоцементных элементах
а - расположениестержневой арматуры в армоцементных элементах волнистых сводов; б - схема фиксации продольнойарматуры; 1 - элемент свода; 2 - поперечная арматура Æ 6 А-III
Постепени механизации арматурных работ и совмещения их с процессом формованияэлементов данная технология изготовления армоцементных сводов находится наболее высоком уровне, чем технология изготовления аналогичных железобетонныхэлементов.
Изготовлениевибролитьем структурных армоцементных плит *
* Технологиюизготовления конструкции структурных армоцементных плит разработали вЛенЗНИИЭПе(кандидаты техн. наук Б.А. Миронков, С.М. Панарин, инж. Т.С.Максим).
Изготовлениевибролитьем структурных армоцементных плит по технологии ЛенЗНИИЭПаосуществляется из мелкозернистого бетона в двойные металлические формы. Внастоящее время организовано производство типовых структурных армоцементныхплит двух размеров: плит перекрытий с пирамидами высотой 1050 мм и размером вплане 1500 ´ 1500 мм; плит перекрытий с пирамидамивысотой 900 мм и размером в плане 1500 ´1500 мм.
Изготовлениеструктурных армоцементных плит осуществляется следующим образом.
Вцехе организовано производство пирамидальных элементов в блоке по 4 шт. размером3000 ´3000 мм (рис. 10)и армоцементных плоских плит для верхнего пояса структуры.
Изготовлениеармоцементных плит выполняется в стальных металлических формах попоточно-агрегатной технологии с пропариванием бетона в камерах.
Рис.10. Схема бетонирования монтажного блока структурного покрытия
а - направлениявыпуска пара; б - направления перемещения конденсата
Блокииз пирамидальных элементов (ПЭ) размером 3000 ´3000 мм изготавливаются по поточно-агрегатной технологии с использованиемдвойных металлических термоформ. Форма состоит из двух частей: нижней части состальными сердечниками для образования пирамид, паровой рубашкой и системойподачи пара в нее и верхней части - крышки для образования ребер и верхнейопалубочной поверхности блока ПЭ.
Напредварительно смазанную нижнюю часть надевается стальной пространственныйарматурный каркас блока ПЭ, который изготавливают на специальном стенде. Затемустанавливают крышку, одновременно фиксируя арматурный каркас и закладные блокаПЭ. Верхняя крышка снабжена четырьмя загрузочными насадками для подачипластичной мелкозернистой смеси из бадьи, оборудованной четырьмя вибраторамимарки ПВ-24. Такой арматурно-опалубочный блок подается на вибростол изакрепляется на нем. Непрерывно производится заполнение полости формы иуплотнение бетона. Заполнение полости формы и уплотнение бетона производитсяпри непрерывной подаче мелкозернистого бетона.
Массаблока ПЭ 6 т. Бетон применяют состава 1 : 3 из цемента марки 500 при модулекрупности песка 2,5 - 2,8 и жесткости смеси 10 - 20 с по малому конусу.
Изготовлениескладчатых армоцементных конструкций
Приизготовлении армоцементных складчатых элементов широкое распространение получилприем последующего погиба элементов из свежеотформованного плоского листа (рис.11).
Достоинствотакого технологического приема заключается в простоте формования тонкого плоского армоцементного листа с использованиемосвоенных бетоноукладчиков, оборудованных виброкатком, и др.
Вкачестве формы могут применяться как металлические, так и комбинированные,бетонные формы с металлической окантовкой. Технология формования армоцементных складокметодом гнутья разработана и освоена в НИИЖБ в заводских условиях.
Складчатыеэлементы применяют следующих размеров (рис. 12): длина до 8 м, ширина 1 -1,5 м, толщина 15 - 25 мм. Стержневая арматура, обычная или предварительнонапряженная, размещается соответственно между специально уложенными слоямитканых сеток.
Изготовлениескладок осуществляется по стендовой технологии на стальных листогибочныхподдонах, установленных один за другим между рельсами формовочной машины.Возможно также изготовление гнутоформованных складок на агрегатно-поточнойсхеме.
Рис.11. Схема изготовления складчатых армоцементных элементов с применениемвибропрогиба
а - отформованиеплоского листа на листогибочном поддоне; б - установка вкладыша-пригруза; в - сгиб листа до складки; 1 - армоцементный лист; 2- поворотная плоскость поддона; 3- неподвижная плоскость поддона; 4 - поворотная плоскостьвкладыша; 5 - неподвижная плоскость вкладыша; 6 - вибратор вкладыша
Дляизготовления складки на очищенную и смазанную поверхность листогибочногоподдона укладывается готовый арматурный пакет и натягивается продольнаяарматура. Армоцементная плита бетонируется при перемещении формовочнойустановки, оборудованной виброуплотняющим и заглаживающим устройством, вдольформ со скоростью около 1 м/мин. Для формования плиты применяетсямелкозернистая бетонная смесь состава класса В30 - 40, отношение цемента кпеску около 2, водоцементное отношение В/Ц= 0,36 - 0,4, жесткость - 40 - 60 с. Фиксация сеток в проектномположении достигается их креплением к продольной, предварительно натянутойарматуре и прокладкой под арматурным пакетом поперечных стержней, извлекаемых впроцессе формования. Для получения надежного сечения на поперечный изгибающиймомент в месте погиба укладывается не менее четырех узких полос тканых сеток,отгибаемые борта целесообразно армировать 1 - 2 слоями тканых сеток сдиагональным расположением проволок тканой сетки.
Отформованныйармоцементный лист гнется с помощью бортов, которые поворачиваются домкратамипо линиям сгиба.
Вибропрогибможет выполняться также с помощью шарнирного вибровкладыша (см. рис. 11),который укладывается на отформованный армоцементный лист перед погибом.Вибровкладыш должен быть утепленным, плотно уложенным на поверхность бетона.Вкладыш снимается после окончания термообработки. Рабочую поверхностьвибровкладыша следует покрыть полимерным составом.
Рис.12. Складчатая армоцементная крыша
а - фрагменткрыши жилого дома; б - фрагменты покрытия железнодорожныхплатформ; в - фрагмент монтажаскладчатых панелей; 1 - складки; 2 – прогон
Термообработкаскладки после погиба ведется подачей пара во внутреннюю полость формы. Формадолжна иметь сверху мягкое укрытие.
Послеокончания термообработки и освобождения боковых стенок изделия от формы поторцам устанавливаются временные стяжки для предохранения от возможногораскрытия боковых граней элемента (и образования трещин в месте прогиба) присъеме и транспортировке.
СОДЕРЖАНИЕ