Меню
Навигация
Novatika
Первая линия

Стекло закаленное строительное. Технические условия

Стандарт распространяется на стекло закаленное, предназначенное для безопасного остекления светопрозрачных строительных конструкций (оконных и дверных блоков, витрин, элементов ограждения лоджий, балконов, структурного остекления фасадов и т.д.)

Обозначение: ГОСТ 30698-2000
Название рус.: Стекло закаленное строительное. Технические условия
Статус: заменен
Заменен: ГОСТ 30698-2014 «Стекло закаленное. Технические условия»
Дата актуализации текста: 05.05.2017
Дата добавления в базу: 01.09.2013
Дата введения в действие: 01.04.2016
Утвержден: 17.05.2000 МНТКС (MNTKS 2)10.01.2001 Госстрой России (Russian Federation Gosstroy 2)
Опубликован: ГУП ЦПП (CPP GUP 2001 г. )
Ссылки для скачивания:

ГОСТ 30698-2000

МЕЖГОСУДАРСТВЕННЫЙ СТАНДАРТ

СТЕКЛО ЗАКАЛЕННОЕ СТРОИТЕЛЬНОЕ

Технические условия

ГОСУДАРСТВЕННАЯ НАУЧНО-ТЕХНИЧЕСКАЯ КОМИССИЯ
ПО СТАНДАРТИЗАЦИИ, ТЕХНИЧЕСКОМУ НОРМИРОВАНИЮ
И СЕРТИФИКАЦИИ В СТРОИТЕЛЬСТВЕ (МНТКС)

Москва

ПРЕДИСЛОВИЕ

1. РАЗРАБОТАН ОАО «Институт стекла» с участием НИУПЦ «Межрегиональный институт окна», Научно-исследовательского института строительной физики РААСН и фирмы «Tamglass»

ВНЕСЕН Госстроем России

2. ПРИНЯТ Межгосударственной научно-технической комиссией по стандартизации, техническому нормированию и сертификации в строительстве (МНТКС) 17 мая 2000 г

За принятие проголосовали

Наименование государства

Наименование органа государственного управления строительством

Республика Армения

Министерство градостроительства Республики Армения

Республика Казахстан

Комитет по делам строительства Министерства энергетики, индустрии и торговли Республики Казахстан

Кыргызская Республика

Государственная инспекция по архитектуре и строительству при Правительстве Кыргызской Республики

Республика Молдова

Министерство развития территорий, строительства и коммунального хозяйства Республики Молдова

Российская Федерация

Госстрой России

Республика Таджикистан

Комитет по делам архитектуры и строительства Республики Таджикистан

Республика Узбекистан

Государственный комитет строительства, архитектуры и жилищной политики Республики Узбекистан

Украина

Государственный комитет строительства, архитектуры и жилищной политики Украины

3. ВВЕДЕН ВПЕРВЫЕ

4. ВВЕДЕН В ДЕЙСТВИЕ с 1 июля 2001 г. в качестве государственного стандарта Российской Федерации постановлением Госстроя России от 10 января 2001 г. № 2

 

СОДЕРЖАНИЕ

ГОСТ 30698-2000

МЕЖГОСУДАРСТВЕННЫЙ СТАНДАРТ

СТЕКЛО ЗАКАЛЕННОЕ СТРОИТЕЛЬНОЕ

Технические условия

GLASS TEMPERED FOR BUILDING

Дата введения 2001-07-01

1. ОБЛАСТЬ ПРИМЕНЕНИЯ

Настоящий стандарт распространяется на стекло закаленное (далее - стекло), предназначенное для безопасного остекления светопрозрачных строительных конструкций (оконных и дверных блоков, витрин, элементов ограждения лоджий, балконов, структурного остекления фасадов и т. д.).

Стекло может применяться как составляющий элемент сложных стекольных конструкций: многослойных, с использованием противоосколочных пленок, а также для других целей в соответствии с техническими характеристиками, установленными в настоящем стандарте.

Требования стандарта являются обязательными (кроме оговоренных в тексте как рекомендуемые или справочные).

Стандарт может быть использован для целей сертификации.

2. НОРМАТИВНЫЕ ССЫЛКИ

В настоящем стандарте приведены ссылки на следующие стандарты:

ГОСТ 111-2001 Стекло листовое. Технические условия

ГОСТ 427-75 Линейки измерительные металлические. Технические условия

ГОСТ 1908-88 Бумага конденсаторная. Общие технические условия

ГОСТ 4295-80 Ящики дощатые для листового стекла. Технические условия

ГОСТ 5244-79 Стружка древесная. Технические условия

ГОСТ 5533-86 Стекло листовое узорчатое. Технические условия

ГОСТ 7376-89 Картон гофрированный. Общие технические условия

ГОСТ 7502- 98 Рулетки измерительные металлические. Технические условия

ГОСТ 8026-92 Линейки поверочные. Технические условия

ГОСТ 8273-75 Бумага оберточная. Технические условия

ГОСТ 9416-83 Уровни строительные. Технические условия

ГОСТ 14192-96 Маркировка грузов

ГОСТ 16711-84 Основа парафинированной бумаги. Технические условия

ГОСТ 20403-75 Резина. Метод определения твердости в международных единицах (от 30 до 100 IRHD)

ГОСТ 25535-82 Изделия из стекла. Методы определения термической стойкости

(Поправка. ИУС 3-2004)

3. ОСНОВНЫЕ ПАРАМЕТРЫ И РАЗМЕРЫ

3.1. Стекло должно изготавливаться в соответствии с требованиями настоящего стандарта по конструкторской и технологической документации, утвержденной в установленном порядке.

Перечень документов на закаленное стекло приведен в приложении А.

3.2. Номинальные длину и ширину листов стекла устанавливают в договоре (заказе) на изготовление. Предельные отклонения от номинальных длины и ширины должны соответствовать, указанным в таблице 1.

3.3. Толщина и предельные отклонения толщины листов стекла должны соответствовать указанным в таблице 2.

3.4. Форма, размеры и допуски размеров стекла сложной конфигурации должны соответствовать рабочим чертежам или шаблонам, согласованным изготовителем и потребителем.

Предельные отклонения размеров стекла, изготавливаемого по шаблонам, должны соответствовать требованиям таблицы 1.

Таблица 1

В миллиметрах

Номинальная длина (ширина) стекла

Предельные отклонения

До 500

± 1,0*

Св. 500 до 1000 включ.

± 1,5*

» 1000 » 1500 »

± 2,0

» 1500 » 2500 »

± 2,5

» 2500 » 3000 »

± 3,0

» 3000 » 3500 »

± 3,0

» 3500

± 4,0

* Для стекла толщиной ³ 8 мм предельные отклонения ± 2 мм

3.5. Отклонения от плоскостности листов стекла (кроме узорчатых стекол) не должны превышать значений, указанных в таблице 3. Величину отклонений устанавливают в процентах от длины наименьшей стороны стекла. Отклонение от плоскостности листов узорчатых стекол устанавливают в договоре между изготовителем и потребителем.

Таблица 2

В миллиметрах

Толщина стекла

Предельные отклонения для

листового стекла

узорчатого стекла

3

± 0,2

± 0,5

4

± 0,2

± 0,5

5

± 0,2

± 0,5

6

± 0,2

± 0,5

7

± 0,3

± 0,5

8

± 0,3

+ 0,8; - 0,5

10

± 0,4

± 1,0

12

± 0,4

15

± 0,5

19

± 1,0

25

± 1,0

Примечание - Граничную толщину стекол (например, 3,5 мм) следует относить к наименьшему номинальному значению (3,0 мм).

Таблица 3

Толщина стекла, мм

Допускаемые отклонения от плоскостности, %, не более

для стекла без покрытия

для стекла с покрытием

3 - 5

0,3

0,4

6 - 25

0,2

0,3

3.6. Отклонения от прямолинейности кромок стекла должны находиться в поле предельных отклонений, указанных в таблице 1.

3.7. Разность длин диагоналей стекол, имеющих прямоугольную форму, не должна превышать значений, указанных в таблице 4.

Таблица 4

В миллиметрах

Длина диагоналей листов стекла

Разность длин диагоналей

До 1600

3

От 1600 до 2500

4

» 2500 » 3200

5

» 3200 и выше

6

3.8. Форму и допуски размеров кромок стекла (например, размеры фасок), а также отверстий в стекле устанавливают в рабочих чертежах, согласованных между изготовителем и потребителем.

3.9. Условное обозначение закаленного стекла должно включать:

буквенное обозначение закаленного стекла (З);

обозначение исходного стекла по нормативной документации (например, M1 по ГОСТ 111);

длину, ширину и толщину листа стекла, мм;

класс защиты (по п. 4.1.7);

обозначение настоящего стандарта.

Пример условного обозначения стекла закаленного, изготовленного из листового стекла марки М1, по ГОСТ 111 длиной 1400 мм, шириной 800 мм и толщиной 5 мм, класс защиты СМ 2, изготовленного по настоящему стандарту:

ЗМ1 - 1400-800-5 - CM 2 ГОСТ 30698-2000.

В заказе на изготовление стекол должны быть указаны сведения об исходном стекле (вид стекла, марка, характеристики), требования к обработке кромок, цвету, а также другие требования, согласованные между изготовителем и потребителем.

4. ТЕХНИЧЕСКИЕ ТРЕБОВАНИЯ

4.1. Характеристики

4.1.1. Кромки листов стекла по всему периметру должны быть притуплены; торцы стекол, как правило, должны быть прошлифованные. Требования к обработке кромок устанавливают в рабочих чертежах и (или) согласно образцам-эталонам, утвержденным в установленном порядке.

4.1.2. Трещины, грубые царапины, сколы, щербины на кромках и повреждения углов стекла не допускаются.

4.1.3. По нормируемым показателям внешнего вида: порокам (пузыри, инородные включения, волосяные царапины, свили и др.) и цвету стекло должно соответствовать требованиям, предъявляемым к исходному стеклу, и условиям договора на поставку. По согласованию между изготовителем и потребителем допускается оценка цвета по образцам-эталонам.

4.1.4. Стекло должно быть механически прочным и выдерживать без разрушения удар стального шара массой (227 ± 2) г, (справочно - диаметр шара 38 мм), падающего с высоты, указанной в таблице 5.

Таблица 5

Номинальная толщина стекла, мм

Высота падения шара, м

До 4 включ.

2,0

Св. 4 до 6 включ.

2,5

Св.6

3,0

4.1.5. Стекло должно быть термостойким и выдерживать перепад температур не менее 120 °С.

4.1.6. Стекло при разрушении не должно образовывать крупные (более 3 см2) осколки. Число осколков стекла при испытании на характер разрушения в квадрате 50×50 мм должно быть:

от 15 до 400 при номинальной толщине стекла 3 мм;

от 20 до 400   «               «                 «               «     4 - 12 мм;

от 30 до 400   «               «                 «               «     15 - 25мм.

Осколки не должны иметь заостренных концов; угол, образованный двумя смежными сторонами, не должен быть менее 45°, при этом длина осколков не должна превышать 75 мм, а число осколков длиной от 60 до 75 мм не должно превышать 5 шт.

4.1.7. Стекло должно выдерживать без разрушения удар мягкого тела массой (45 ± 1) кг. Класс защиты стекла в зависимости от высоты падения тела приведен в таблице 6.

Таблица 6

Класс защиты стекла

Высота падения тела, мм

СМ 1

300

CM 2

700

СМ 3

1200

CM 4

2000

Поправка ИУС 3-2004.

4.1.8. Оптические искажения стекла, видимые в проходящем свете под углом более или равным 60°, при просмотре экрана типа «кирпичная стена» не допускаются. Для узорчатого стекла оптические искажения не нормируются.

4.1.9. Оптические характеристики (цвет, спектральные коэффициенты пропускания и отражения света) закаленного стекла должны соответствовать требованиям, предъявляемым к оптическим характеристикам исходного стекла.

4.1.10. Стекло, применяемое для наружного остекления, должно выдерживать нагрузки согласно действующим строительным нормам и правилам.

Справочные значения расчетного сопротивления стекла на растяжение при изгибе: листового - 120 МПа, узорчатого - 90 МПа.

4.2. Требования к материалам

4.2.1. Материалы, применяемые для изготовления стекла, должны отвечать требованиям стандартов, технических условий, технических свидетельств и контрактов (договоров) на поставку (далее - НД).

4.2.2 При изготовлении закаленного стекла используют следующие виды плоских стекол:

листовое по ГОСТ 111 марок М0, М1, М2, М3;

узорчатое прокатное по ГОСТ 5533;

с покрытием по НД;

окрашенное в массе по НД.

Допускается по согласованию с потребителем применять другие виды стекол при условии, что закаленное стекло, изготовленное с их применением, отвечает требованиям настоящего стандарта.

Стекла, применяемые для изготовления закаленного стекла, должны выдерживать воздействие температуры до 630 °С без изменения физических, химических и оптических свойств.

Поправка ИУС 3-2004.

4.3. Маркировка, упаковка

4.3.1. На каждое стекло наносится несмываемая маркировка, содержащая:

наименование и/или товарный знак предприятия-изготовителя;

буквенное обозначение закаленного стекла - З.

Стекла с покрытием маркируют в левом нижнем углу со стороны, где покрытие отсутствует.

4.3.2. Транспортная маркировка - по ГОСТ 14192 с нанесением на тару манипуляционных знаков: «Хрупкое. Осторожно», «Беречь от влаги», «Верх».

4.3.3. При упаковке стекло перекладывают по всей поверхности бумагой по ГОСТ 16711, ГОСТ 1908, ГОСТ 8273 или другими материалами или прокладками, не содержащими царапающих включений (например, пробковыми или эластомерными прокладками, порошковыми материалами на основе полимеров или мягкой, не содержащей смолы древесины).

4.3.4. Стекло упаковывают в ящики по ГОСТ 4295, контейнеры или другой вид тары - по НД.

Пространство между стеклами, дном и стенками ящика или контейнера должно быть заполнено древесной стружкой по ГОСТ 5244 или другим уплотняющим материалом (гофрированным картоном по ГОСТ 7376, профильной резиной, листовой резиной, войлоком или другими материалами, обеспечивающими сохранность стекла).

Допускается другой вид упаковки стекла, согласованный с потребителем, при условии обеспечения сохранности стекла при хранении и транспортировании.

4.3.5. На каждую единицу тары наклеивают ярлык, в котором указывают:

наименование и/или товарный знак предприятия-изготовителя;

условное обозначение стекла;

количество стекла в штуках и/или м2;

сведения о сертификации;

дату упаковки и штамп технического контроля.

5. ПРАВИЛА ПРИЕМКИ

5.1. Стекло должно быть принято техническим контролем предприятия-изготовителя. Стекло принимают партиями. Партией считают количество стекла, оформленное одним документом о качестве. В состав партии должно входить стекло одного класса защиты, изготовленное из одного вида исходного стекла, на одной технологической линии в течение рабочей смены.

5.2. Потребитель имеет право проводить контрольную проверку качества стекла, соблюдая при этом установленный порядок отбора образцов и методы испытаний, установленные в настоящем стандарте.

По договоренности сторон приемка изделий потребителем может производиться на складе изготовителя, на складе потребителя или в ином, оговоренном в договоре на поставку месте.

Стекло подвергают приемосдаточным и периодическим испытаниям согласно таблице 7.

5.3. Приемосдаточные испытания

5.3.1. Стекла на соответствие требованиям п. 4.1.1 - 4.1.3, п. 4.3.1 подвергают сплошному визуальному контролю. Стекла, не отвечающие установленным требованиям, бракуют.

5.3.2. Приемосдаточным испытаниям по п. 3.2 - 3.8, п. 4.1.6 (количество и размер осколков) подвергают 3 стекла из числа принятых по п. 5.3.1.

При получении неудовлетворительных результатов хотя бы на одном стекле проводят повторные испытания на удвоенном числе стекол При получении неудовлетворительных результатов хотя бы на одном стекле при повторных испытаниях партию стекла бракуют.

Таблица 7

Наименование показателя

Номер пункта требования

Вид испытаний

Периодичность

Число образцов, шт.

Номер пункта метода испытаний

Толщина

3.3

Приемосдаточные

Каждая партия одного размера, но не реже 4 раз в смену

3

6.3

Длина, ширина

3.2

3

6.2

Разность длин диагоналей

3.7

3

6.2

Отклонение от плоскостности

3.5

3

6.14

Отклонение от прямолинейности

3.6

3

6.15

Отклонение от формы и размеров непрямоугольных стекол

3.4

3

6.4

Требования к качеству кромок и углов

3.8, 4.1.1, 4.1.2

Сплошной контроль

Каждое стекло в партии

6.5 - 6.7

Внешний вид

4.1.3

6.8

Маркировка

4.3.1

6.17

Характер разрушения

4.1.6

1 раз в сутки

3

6.10

Оптические искажения

4.1.8

Периодические

1 раз в сутки

3

6.12

Механическая прочность

4.1.4

1 раз в неделю

3

6.9

Термостойкость

4.1.5

1 раз в квартал

3

6.11

Класс защиты

4.1.7

1 раз в квартал

3

6.13

Оптические характеристики

4.1.9

1 раз в квартал

3

6.16

5.4. Периодические испытания

5.4.1. Периодические испытания проводят в соответствии с требованиями, указанными в таблице 7.

5.4.2. При получении неудовлетворительных результатов хотя бы на одном стекле проводят повторные испытания на удвоенном числе стекол. Результаты повторных испытаний распространяются на всю партию.

При получении неудовлетворительных результатов повторных испытаний хотя бы на одном стекле партию бракуют и переводят испытания по данному показателю в приемосдаточные до получения положительных результатов не менее чем на двух партиях подряд.

5.4.3. Показатели механической прочности, термостойкости, класса защиты и оптических характеристик стекла должны подтверждаться результатами испытаний в испытательных центрах, аккредитованных на право их проведения, не реже 1 раза в 1 год, а также при изменении технологии их изготовления.

5.5. Каждую партию стекла сопровождают документом о качестве, в котором указывают:

наименование и/или товарный знак предприятия-изготовителя;

условное обозначение стекла;

сведения о сертификации;

номер договора на поставку;

количество стекла в штуках и м2;

число ящиков или контейнеров, шт.;

дату отправки;

штамп технического контроля.

При экспортно-импортных операциях содержание сопроводительного документа о качестве уточняют в договоре на поставку изделий.

6. МЕТОДЫ КОНТРОЛЯ

6.1. Перед испытаниями образцы выдерживают при температуре (20 ± 4) °С. Время выдержки образцов перед приемосдаточными испытаниями устанавливают в технологической документации, а перед периодическими испытаниями - не менее 12 ч.

Образцы, испытываемые на оптические искажения и характеристики, должны отвечать требованиям п. 4.1.3. Образцы, испытываемые на механическую прочность, термостойкость и класс защиты, должны отвечать требованиям п. 4.1.1 - 4.1.3.

6.2. Длину, ширину и длину диагоналей прямоугольных стекол измеряют металлической рулеткой по ГОСТ 7502 или другим мерительным инструментом с ценой деления не более 1 мм.

6.3. Толщину стекла измеряют по ГОСТ 111, узорчатого - по ГОСТ 5533.

6.4. Размеры стекол сложной конфигурации допускается проверять наложением шаблона, аттестованного в установленном порядке.

6.5. Порядок измерения формы и размеров кромок (например, размера фаски кромки) устанавливают в технологической документации.

6.6. Качество обработки кромок проверяют путем сравнения с образцами-эталонами при освещенности не менее 300 лк с расстояния 300 - 600 мм.

6.7. Наличие трещин, сколов, щербин на кромках и повреждения углов проверяют визуально при освещенности не менее 300 лк.

(Поправка. ИУС 3-2004)

6.8. Внешний вид (пороки) и цвет закаленного стекла определяют по НД на соответствующий вид исходного стекла.

6.9. Испытания на механическую прочность

6.9.1. Метод состоит в определении минимальной механической прочности при ударе стальным шаром.

6.9.2. Испытания проводят на образцах размером [(1100×900) ± 5] мм, изготовленных вместе с испытываемой партией.

6.9.3. Средства испытания

Стальной шар с твердостью поверхности не менее 60 HRC и массой (227 ± 2) г.

Стенд для проведения испытания.

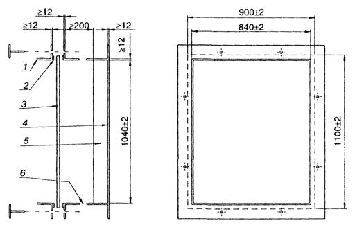
Стенд должен состоять из жесткой стальной рамы и зажимающей рамки, обеспечивающей равномерное зажатие испытываемого образца по четырем сторонам с перекрытием края (30 ± 5) мм (рисунок 1).

Описание: 1

1 - зажимающая рама; 2 - резиновая полоса; 3 - испытываемый образец; 4 - жесткая стальная рама; 5 - мягкая прокладка; 6 - отверстия

Рисунок 1

Оборудование должно удерживать испытываемый образец в горизонтальном положении.

Зажимающая рамка должна быть покрыта в местах контакта с испытываемым образцом резиновыми полосами шириной 30 мм, толщиной 4 мм и твердостью от 40 до 60 IRHD по ГОСТ 20403.

6.9.4. Проведение испытания

Шар сбрасывают с высоты, указанной в п. 4.1.4, таким образом, чтобы точка удара была на расстоянии не более 25 мм от геометрического центра образца. По каждому образцу наносят один удар.

6.9.5. Обработка результатов

Образец считают выдержавшим испытание, если стекло не имеет разрушений.

6.10. Испытания на характер разрушения

6.10.1. Метод состоит в определении числа и размеров осколков стекла при его разрушении на нормируемой площади.

6.10.2 Испытания проводят на образцах размером (300 ¸ 500) × (300 ¸ 500) мм, изготовленных вместе с испытываемой партией. Допускается проводить испытания на готовых изделиях.

6.10.3. Средства испытания

Инструмент, способный вызвать разрушение стекла в точке удара, например молоток массой (без рукоятки) (75 ± 2) г и радиусом при вершине (0,20 ± 0,05) мм.

6.10.4. Проведение испытания

По образцу наносят удар в любом месте, на расстоянии не менее 50 мм от края образца. Если после удара стекло не разрушилось, то наносят последующие удары до его разрушения. После чего осматривают поверхность образца и выделяют квадрат размером 50´50 мм, с наиболее крупными осколками стекла.

(Поправка. ИУС 3-2004).

6.10.5. Обработка результатов

В течение не более 5 мин после разрушения стекла определяют число осколков на нормируемой площади (в выделенном квадрате) и размер максимального осколка. Принимают во внимание только трещины, возникающие в результате первоначального растрескивания. Осколок, пересекающий стороны нормируемой площади, учитывают как половину целого осколка.

6.11. Испытание стекла на термостойкость проводят в соответствии с требованиями ГОСТ 25535 по методу Б.

Испытания проводят на трех образцах размером не менее 100×100 мм, изготовленных вместе с испытываемой партией.

6.12. Оптические искажения стекла (кроме узорчатого) определяют в соответствии с ГОСТ 111 по методу «кирпичная стена».

6.13. Испытание стекла на удар мягким телом

6.13.1. Метод состоит в оценке стойкости стекла к механическому удару мягким телом некомпактной формы.

6.13.2. Отбор образцов

Испытания проводят на трех образцах стекла размером [(1100×900) ± 5] мм, не имеющих пороков внешнего вида.

6.13.3. Средства испытания

Кожаный мешок грушевидной формы, заполненный свинцовой дробью, высотой (330 ± 10) мм, с диаметром максимального сечения (220 ± 10) мм, массой (45 ± 1) кг.

Стенд для проведения испытания (рисунок 2).

Образец должен крепиться к стальной раме стенда при помощи зажимающей рамки по четырем сторонам с перекрытием края (30 ± 5) мм. Зажимающая рамка должна быть покрыта в местах контакта с образцом резиновыми полосами шириной 30 мм, толщиной 4 мм и твердостью от 40 до 60 IRHD по ГОСТ 20403.

6.13.4. Проведение испытания

Мешок должен быть подвешен на креплении таким образом, чтобы область максимального диаметра мешка в спокойном состоянии находилась на расстоянии не более 10 мм от поверхности образца и на расстоянии не более 50 мм от центра образца (рисунок 2).

Высота подвеса мешка - не менее 2500 мм.

Удар производят по центру образца, мешок при этом описывает дугу, падая с высоты, указанной в таблице 6, двигаясь по направлению центральной горизонтальной оси поверхности образца. Удар по каждому образцу должен быть только один.

Примечание - Высоту падения мешка отсчитывают от центра максимального диаметра мешка до центра горизонтальной оси поверхности образца.

6.13.5. Оценка результата

Образцы считают выдержавшими испытания, если стекло не имеет разрушений.

6.14. Отклонение от плоскостности листов стекла определяют в вертикальном положении (угол отклонения от вертикали не должен превышать 15°) наложением металлической линейки по ГОСТ 427 или строительного уровня по ГОСТ 9416 длиной не менее 1000 мм в продольном и поперечном направлениях в центре листа стекла. Расстояние от поверхности листа стекла до линейки или уровня измеряют щупом по НД. Размер щупа, вошедшего в зазор, не должен превышать требований, указанных в таблице 3, приведенных к линейному размеру.

Допускается при сертификационных и арбитражных испытаниях использовать лекальные линейки по ГОСТ 8026.

Описание: 2

1 - стальной трос диаметром 2,5 - 4 мм; 2 - уздечка для подъема мешка; 3 - кожаный мешок (мягкое тело);
4 - испытываемый образец, закрепленный в стенде; 5 - опора; Н - высота подвеса;
h - высота падения мешка; a - центральная ось испытываемого образца;
b - расстояние между образцом и мешком, висящим в свободном состоянии

Рисунок 2

6.15. Отклонение от прямолинейности кромок сторон стекла определяют прикладыванием металлической линейки по ГОСТ 427 или строительного уровня по ГОСТ 9416 вдоль измеряемой кромки стороны стекла и измерением щупом по НД максимального зазора между линейкой или уровнем и кромкой стекла. Максимальный зазор (толщина щупа) должен находиться в поле допуска на размер.

6.16. Оптические характеристики (цвет, спектральные коэффициенты пропускания и отражения света) закаленного стекла контролируют в соответствии с НД на исходное стекло.

6.17. Маркировку стекол проверяют визуально.

7. ТРАНСПОРТИРОВАНИЕ, ХРАНЕНИЕ И ЭКСПЛУАТАЦИЯ

7.1. Стекло транспортируют любым видом транспорта в соответствии с Правилами перевозок грузов, действующими на данном виде транспорта, а размещение и крепление в транспортных средствах - в соответствии с Техническими условиями погрузки и крепления грузов, утвержденными в установленном порядке.

7.2. При транспортировании тара со стеклом должна быть установлена торцами по направлению движения транспорта и закреплена так, чтобы исключить возможность ее перемещения и качания в процессе транспортирования.

7.3. При транспортировании, погрузке и выгрузке стекла должна быть обеспечена его сохранность от механических повреждений и атмосферных осадков.

7.4. Стекло должно храниться у изготовителя и потребителя в закрытых сухих отапливаемых помещениях в распакованном виде, переложенным согласно п. 4.3.3.

При хранении стекло должно быть установлено на стеллажи или пирамиды. Основание стеллажа или пирамиды должно быть оклеено войлоком или резиной и иметь наклон 5 - 15 ° к горизонтали.

Допускается хранить стекло в таре (кроме контейнеров), если тара и прокладочные материалы не подвергались увлажнению в процессе транспортирования и хранения.

7.5. При эксплуатации не допускается установка стекла без полимерных эластичных прокладок по периметру стекла. Допускается установка стекла на силиконовых и других видах герметиков согласно требованиям нормативной или конструкторской документации на остекляемые изделия.

7.6. Стекла следует устанавливать на подкладках. Касание кромки стекла строительной конструкции не допускается. Размер и расположение подкладок устанавливают в конструкторской документации на остекляемые изделия.

7.7. В период эксплуатации не допускаются протирание стекла тканью, содержащей абразивные включения, удары жесткими предметами, очистка сухого стекла жесткими щетками без подачи смывающей жидкости, длительное присутствие влаги на поверхности стекла.

7.8. Температурный диапазон эксплуатации стекла - от минус 150 до + 300 °С. Возможность эксплуатации стекла в условиях, выходящих за пределы указанного температурного диапазона, должна быть подтверждена результатами лабораторных испытаний.

7.9. В случаях если по условиям эксплуатации (например, по пожарным требованиям) стекло должно разбиваться ударом специального инструмента (молотком, пожарным топориком), то эти требования и методы их определения допускается устанавливать в договоре на поставку.

7.10. Закаленные стекла рекомендуется применять в составе огнестойких, пулестойких, устойчивых к взрыву сложных конструкций стекол с учетом требований настоящего стандарта.

8. ГАРАНТИИ ИЗГОТОВИТЕЛЯ

8.1. Изготовитель гарантирует соответствие стекла требованиям настоящего стандарта при соблюдении правил упаковки, транспортирования, хранения и эксплуатации.

8.2. Гарантийный срок хранения стекла - 5 лет со дня изготовления.

ПРИЛОЖЕНИЕ А

(рекомендуемое)

ПЕРЕЧЕНЬ ДОКУМЕНТОВ НА ЗАКАЛЕННОЕ СТЕКЛО

1. Нормативная документация на выпускаемое закаленное стекло.

2. Нормативная документация на исходное стекло.

3. Чертежи, шаблоны на изделия сложной формы.

4. Технологический регламент производства закаленного стекла.

5. Договоры (контракты) на поставку закаленного стекла.

6. Журналы внутреннего контроля качества, протоколы испытаний выпускаемого закаленного стекла, оформленные в установленном порядке.

7. Должностные инструкции сотрудников, занятых производством или контролем качества.

ПРИЛОЖЕНИЕ Б

(справочное)

СВЕДЕНИЯ О РАЗРАБОТЧИКАХ СТАНДАРТА

Настоящий стандарт разработан группой специалистов в составе:

А. Г. Чесноков (руководитель), ОАО «Институт стекла»;

В. Е. Маневич, ОАО «Институт стекла»;

Н. В. Шведов, Госстрой России;

И. Л. Шубин, НИИСФ РААСН;

Ю. П. Александров, ОАО «ЦНИИПромзданий»;

О. А. Емельянова, ОАО «Институт стекла»;

С. К. Васильев, ОАО «Институт стекла»;

А. Ю. Куренкова, НИУПЦ «Межрегиональный институт окна»;

Т. Песонен, фирма «Tamglass»;

B. C. Савич, ГП ЦНС.

Ключевые слова: стекло закаленное, основные размеры, характеристики, упаковка, маркировка, методы контроля