Меню по разделу
+
| Обозначение: | ГОСТ 9758-77 |
| Статус: | неизвестно |
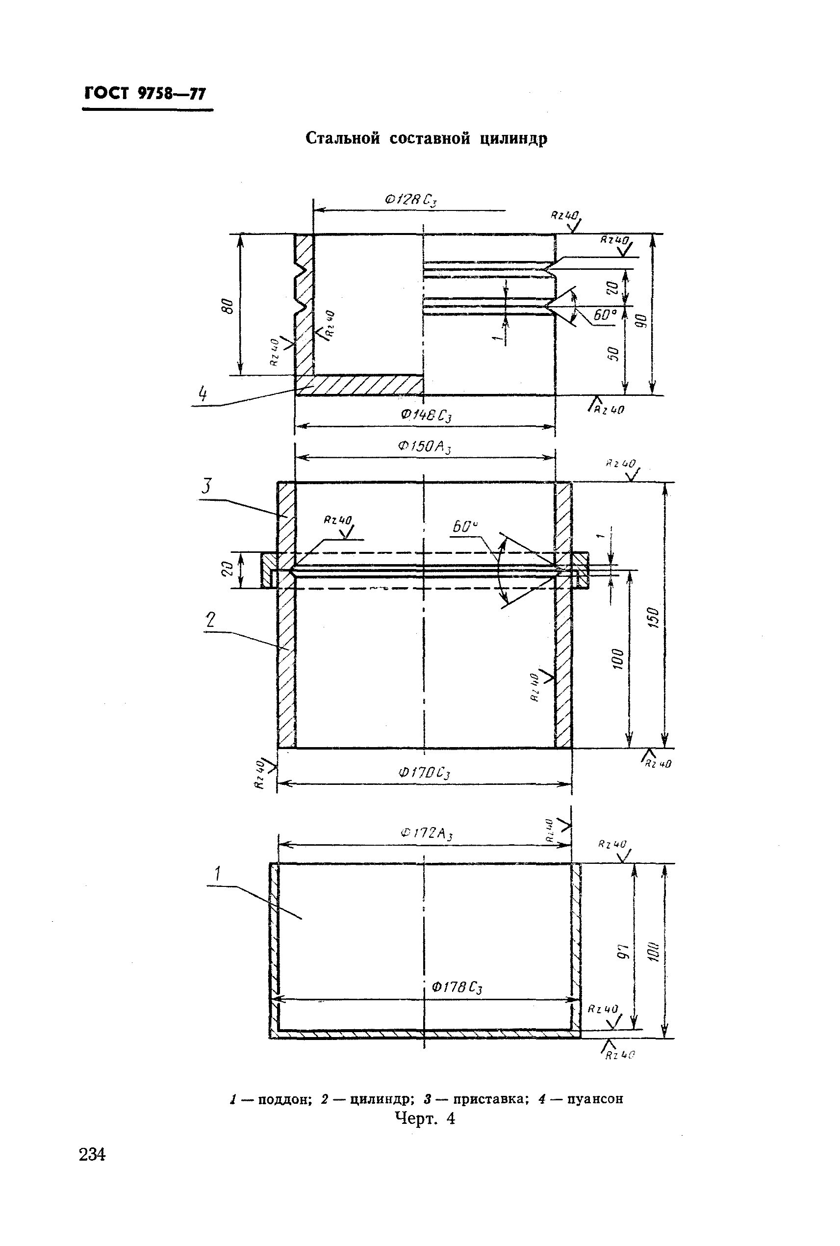
| Название рус.: | Заполнители пористые неорганические для бетона. Методы испытаний |
| Дата актуализации текста: | 06.04.2015 |
| Дата актуализации описания: | 10.08.2017 |
| Дата введения в действие: | 01.01.1979 |
| Область и условия применения: | |
| Страниц: | 52 |
| Ссылки для скачивания: |

