Меню по разделу
+
Настоящий стандарт содержит общее руководство по проектированию лабораторных помещений, предназначенных для проведения органолептического анализа продукции.
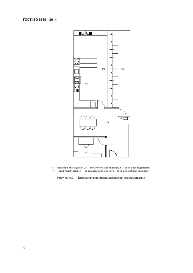
Настоящий стандарт содержит описание требований к планировке лабораторных помещений, в число которых входят зона испытаний, зона подготовки и офисное помещение, устанавливая основные требования и требования, выполнение которых желательно.
Применение настоящего стандарта не ограничено каким-либо определенным видом продукции или испытаний
| Обозначение: | ГОСТ ISO 8589-2014 |
| Статус: | действующий |
| Название рус.: | Органолептический анализ. Общее руководство по проектированию лабораторных помещений |
| Название англ.: | Sensory analysis. General guidance for the design of test rooms |
| Дата актуализации текста: | 06.04.2015 |
| Дата актуализации описания: | 10.08.2017 |
| Дата издания: | 02.03.2015 |
| Дата введения в действие: | 01.01.2016 |
| Дата последнего изменения: | 13.07.2017 |
| Область и условия применения: | Настоящий стандарт содержит общее руководство по проектированию лабораторных помещений, предназначенных для проведения органолептического анализа продукции.
Настоящий стандарт содержит описание требований к планировке лабораторных помещений, в число которых входят зона испытаний, зона подготовки и офисное помещение, устанавливая основные требования и требования, выполнение которых желательно. Применение настоящего стандарта не ограничено каким-либо определенным видом продукции или испытаний |
| Страниц: | 19 |
| Ссылки для скачивания: |

