Меню
Навигация
Novatika
Бесплатное обучение
Первая линия

Оборудование вакуумное. Соединительные части трубопровода. Установочные размеры

Стандарт распространяется на соединения вакуумных трубопроводов (колена, тройники, крестовины) и устанавливает установочные размеры для соединительных частей вакуумных трубопроводов с условными проходами от 10 до 630 мм ряда R5.

Обозначение: ГОСТ Р 52715-2007
Название рус.: Оборудование вакуумное. Соединительные части трубопровода. Установочные размеры
Статус: заменен
Заменен: ГОСТ Р ИСО 9803-1-2013 «Вакуумная технология. Установочные размеры соединений трубопровода. Часть 1. С фланцами без ножевидной кромки»
Дата актуализации текста: 05.05.2017
Дата добавления в базу: 01.09.2013
Дата введения в действие: 01.04.2014
Утвержден: 28.03.2007 Федеральное агентство по техническому регулированию и метрологии (53-ст)
Опубликован: Стандартинформ (2007 г. )
Ссылки для скачивания:

ФЕДЕРАЛЬНОЕ АГЕНТСТВО
ПО ТЕХНИЧЕСКОМУ РЕГУЛИРОВАНИЮ И МЕТРОЛОГИИ

НАЦИОНАЛЬНЫЙ
СТАНДАРТ
РОССИЙСКОЙ
ФЕДЕРАЦИИ

ГОСТ Р
52715-2007

(ИСО 9803:1993)

 

Оборудование вакуумное

СОЕДИНИТЕЛЬНЫЕ ЧАСТИ ТРУБОПРОВОДА

Установочные размеры

ИСО 9803:1993
Vacuum technology - Pipeline fittings - Mounting dimensions
(MOD)

 

Москва

Стандартинформ

2007

 

Предисловие

Цели и принципы стандартизации в Российской Федерации установлены Федеральным законом от 27 декабря 2002 г. № 184-ФЗ «О техническом регулировании», а правила применения национальных стандартов Российской Федерации - ГОСТ Р 1.0-2004 «Стандартизация в Российской Федерации. Основные положения»

Сведения о стандарте

1 ПОДГОТОВЛЕН Открытым акционерным обществом «Вакууммаш» на основе собственного аутентичного перевода стандарта, указанного в пункте 4

2 ВНЕСЕН Техническим комитетом по стандартизации ТК 249 «Вакуумная техника»

3 ПРИНЯТ И ВВЕДЕН В ДЕЙСТВИЕ Приказом Федерального агентства по техническому регулированию и метрологии от 28 марта 2007 г. № 53-ст

4 Настоящий стандарт является модифицированным по отношению к международному стандарту ИСО 9803:1993 «Техника вакуумная. Соединительные детали трубопровода. Установочные размеры» (ISO 9803:1993 «Vacuum technology - Pipeline fittings - Mounting dimensions»). При этом дополнительные слова (фразы, показатели, их значения), включенные в текст стандарта для учета потребностей национальной экономики Российской Федерации и особенностей государственной стандартизации, выделены курсивом.

Наименование настоящего стандарта изменено относительно наименования указанного международного стандарта для приведения в соответствие с ГОСТ Р 1.5-2004 (подраздел 3.5)

5 ВВЕДЕН ВПЕРВЫЕ

 

Информация об изменениях к настоящему стандарту публикуется в ежегодно издаваемом информационном указателе «Национальные стандарты», а текст изменений и поправок - в ежемесячно издаваемых информационных указателях «Национальные стандарты». В случае пересмотра (замены) или отмены настоящего стандарта соответствующее уведомление будет опубликовано в ежемесячно издаваемом информационном указателе «Национальные стандарты». Соответствующая информация, уведомление и тексты размещаются также в информационной системе общего пользования - на официальном сайте Федерального агентства по техническому регулированию и метрологии в сети Интернет

 

ГОСТ Р 52715-2007
(ИСО 9803:1993)

НАЦИОНАЛЬНЫЙ СТАНДАРТ РОССИЙСКОЙ ФЕДЕРАЦИИ

Оборудование вакуумное

СОЕДИНИТЕЛЬНЫЕ ЧАСТИ ТРУБОПРОВОДА

Установочные размеры

Vacuum equipment. Pipeline fittings . Mounting dimensions

Дата введения - 2007-09-01

1 Область применения

Настоящий стандарт распространяется на соединения вакуумных трубопроводов (колена, тройники, крестовины) и устанавливает установочные размеры для соединительных частей вакуумных трубопроводов с условными проходами от 10 до 630 мм ряда R5.

2 Нормативные ссылки

В настоящем стандарте использованы ссылки на следующие стандарты:

ГОСТ 24934-81 Оборудование вакуумное. Фланцы неподвижные винтовые. Основные и присоединительные размеры (ИСО 1609:1986 «Вакуумная техника. Размеры фланцев», NEQ)

ГОСТ 24935-81 Оборудование вакуумное. Фланцы поворотные винтовые. Основные и присоединительные размеры (ИСО 1609:1986 «Вакуумная техника. Размеры фланцев», NEQ)

СТ СЭВ 298-76 Оборудование вакуумное. Соединения зажимные быстроразъемные. Основные и присоединительные размеры (ИСО 2861-1:1974 «Вакуумная техника. Быстродействующие вакуумные соединения. Размеры. Часть I. Соединения зажимного типа», NEQ*)

* СТ СЭВ 298-76 идентичен международному стандарту ИСО 2861-1:1974 в части быстроразъемных соединений зажимного типа.

Примечание - При пользовании настоящим стандартом целесообразно проверить действие ссылочных стандартов в информационной системе общего пользования - на официальном сайте Федерального агентства по техническому регулированию и метрологии в сети Интернет или по ежегодно издаваемому информационному указателю «Национальные стандарты», который опубликован по состоянию на 1 января текущего года, и по соответствующим ежемесячно издаваемым информационным указателям, опубликованным в текущем году. Если ссылочный стандарт заменен (изменен), то при пользовании настоящим стандартом следует руководствоваться замененным (измененным) стандартом. Если ссылочный стандарт отменен без замены, то положение, в котором дана ссылка на него, применяется в части, не затрагивающей эту ссылку.

3 Размеры

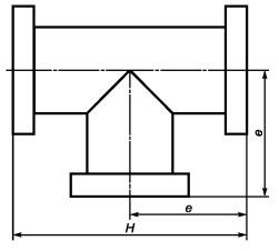
3.1 Установочные размеры соединительных частей вакуумного трубопровода должны быть такими, как указано в таблице 1 в соответствии с рисунками 1 - 3.

Таблица 1 - Размеры соединительных элементов

Размеры в миллиметрах

Условный проход

Установочный размер для колена е

Установочный размер для тройника и крестовины Н

Допуск на перпендикулярность для двух сопряженных поверхностей и для двух фланцев, указанных в

Номин.

Пред. откл.

Номин.

Пред. откл.

CT СЭВ 298

ГОСТ 24934, ГОСТ 24935

10

30; 40*

±1,5

60; 80*

±1,5

±2°

±1°

16

40

80

25

50

100

40

65

130

±2,0

± 0°30'

63

88

176

-

100

108

216

160

138

±2,0

276

250

208

416

±3,0

400

300

600

630

440

±3,0

800

* Указанные значения следует использовать только для фланцев по ГОСТ 24934, ГОСТ 24935.

Рисунок 1 - Колено

Рисунок 2 - Тройник

Рисунок 3 - Крестовина

3.2 Размеры фланцев должны соответствовать ГОСТ 24934, ГОСТ 24935 и СТ СЭВ 298.

3.3 Расположение сквозных отверстий под крепежные детали во фланцах, указанных в ГОСТ 24934 и ГОСТ 24935, должно соответствовать рисунку 4.

Угол α определяется в соответствии с количеством сквозных отверстий под крепежные детали.

Рисунок 4 - Расположение сквозных отверстий под крепежные детали

 

Ключевые слова: оборудование вакуумное, вакуумные трубопроводы, установочные размеры, фланец, колено, тройник, крестовина, крепежные детали

 

СОДЕРЖАНИЕ