Меню
Навигация
Первая линия
Novatika
Бесплатное обучение

Оборудование для скейтплощадок. Безопасность конструкции и методы испытаний. Общие требования

Стандарт распространяется на оборудование для скейтплощадок, устанавливаемое на открытых площадках без постоянного надзора. Стандарт устанавливает требования к безопасности конструкции и методам испытаний оборудования всех типов. Стандарт не распространяется на оборудование, изготовленное до 01.01.2012 г.

Обозначение: ГОСТ Р 54415-2011
Название рус.: Оборудование для скейтплощадок. Безопасность конструкции и методы испытаний. Общие требования
Статус: действует
Дата актуализации текста: 05.05.2017
Дата добавления в базу: 01.09.2013
Дата введения в действие: 01.01.2012
Утвержден: 26.09.2011 Федеральное агентство по техническому регулированию и метрологии (335-ст)
Опубликован: Стандартинформ (2011 г. )
Ссылки для скачивания:

ФЕДЕРАЛЬНОЕ АГЕНТСТВО
ПО ТЕХНИЧЕСКОМУ РЕГУЛИРОВАНИЮ И МЕТРОЛОГИИ

НАЦИОНАЛЬНЫЙ
стандарт
РОССИЙСКОЙ
ФЕДЕРАЦИИ

ГОСТ Р
54415-
2011

ОБОРУДОВАНИЕ ДЛЯ СКЕИТПЛОЩАДОК

Безопасность конструкции и методы испытаний
Общие требования

EN 14974-2006 (NEQ)

Москва

Стандартинформ

2012

Предисловие

Цели и принципы стандартизации в Российской Федерации установлены Федеральным законом от 27 декабря 2002 г. № 184-ФЗ «О техническом регулировании», а правила применения национальных стандартов Российской Федерации - ГОСТ Р 1.0-2004 «Стандартизация в Российской Федерации. Основные положения»

Сведения о стандарте

1 РАЗРАБОТАН Федеральным государственным унитарным предприятием «Всероссийский научно-исследовательский институт стандартизации и сертификации в машиностроении» (ФГУП «ВНИИНМАШ»)

2 ВНЕСЕН Техническим комитетом по стандартизации ТК 455 «Оборудование детских игровых площадок»

3 УТВЕРЖДЕН И ВВЕДЕН В ДЕЙСТВИЕ Приказом Федерального агентства по техническому регулированию и метрологии от 26 сентября 2011 г. № 335-ст

4 Настоящий стандарт разработан с учетом основных нормативных положений европейского стандарта ЕН 14974-2006 «Инвентарь для пользователей роликовым спортивным оборудованием. Требования безопасности и методы испытаний» (EN 14974-2006 «Facilities for users of roller sports equipment - Safety requirements and test method», NEQ)

5 ВВЕДЕН ВПЕРВЫЕ

Информация об изменениях к настоящему стандарту публикуется в ежегодно издаваемом информационном указателе «Национальные стандарты», а текст изменений и поправок - в ежемесячно издаваемых информационных указателях «Национальные стандарты». В случае пересмотра (замены) или отмены настоящего стандарта соответствующее уведомление будет опубликовано в ежемесячно издаваемом информационном указателе «Национальные стандарты». Соответствующая информация, уведомление и тексты размещаются также в информационной системе общего пользования - на официальном сайте Федерального агентства по техническому регулированию и метрологии в сети Интернет

Содержание

ГОСТ Р 54415-2011

НАЦИОНАЛЬНЫЙ СТАНДАРТ РОССИЙСКОЙ ФЕДЕРАЦИИ

ОБОРУДОВАНИЕ ДЛЯ СКЕИТПЛОЩАДОК

Безопасность конструкции и методы испытаний.
Общие требования

Equipment for skategrounds. Safety of structure and test methods. General requirements

Дата введения - 2012-01-01

1 Область применения

Настоящий стандарт распространяется на оборудование для скейтплощадок (далее - оборудование), устанавливаемое на открытых площадках без постоянного надзора. Стандарт устанавливает требования к безопасности конструкции и методам испытаний оборудования всех типов.

Настоящий стандарт не распространяется на оборудование, изготовленное до 01.01.2012 г.

2 Нормативные ссылки

В настоящем стандарте использованы нормативные ссылки на следующие стандарты и классификатор:

ГОСТ Р ИСО/МЭК 50-2002 Безопасность детей и стандарты. Общие требования

ГОСТ Р ИСО/МЭК 17025-2006 Общие требования к компетентности испытательных и калибровочных лабораторий

ГОСТ Р 52169-2003 Оборудование детских игровых площадок. Безопасность конструкции и методы испытаний. Общие требования

ГОСТ Р 52170-2003 Безопасность аттракционов механизированных. Основные положения по проектированию стальных конструкций

ГОСТ 2.201-80 Единая система конструкторской документации. Обозначение изделий и конструкторских документов

ГОСТ 9.303-84 Единая система защиты от коррозии и старения. Покрытия металлические и неметаллические неорганические. Общие требования к выбору

ГОСТ 12.1.044-89 (ИСО 4589-84) Система стандартов безопасности труда. Пожаровзрывоопасность веществ и материалов. Номенклатура показателей и методы их определения

ГОСТ ЕН 1070-2003 Безопасность оборудования. Термины и определения

ГОСТ 3916.1-96 Фанера общего назначения с наружными слоями из шпона лиственных пород. Технические условия

ГОСТ 3916.2-96 Фанера общего назначения с наружными слоями из шпона хвойных пород. Технические условия

ГОСТ 20022.0-93 Защита древесины. Параметры защищенности

ГОСТ 20022.2-80 Защита древесины. Классификация

ГОСТ 27751-88 Надежность строительных конструкций и оснований. Основные положения по расчету

ГОСТ 30402-96 Материалы строительные. Метод испытания на воспламеняемость

ОК 012-93 Общероссийский классификатор изделий и конструкторских документов (классификатор ЕСКД). Класс 33. Изделия культурно-бытового назначения и хозяйственного обихода

Примечание - При пользовании настоящим стандартом целесообразно проверить действие ссылочных стандартов в информационной системе общего пользования - на официальном сайте Федерального агентства по техническому регулированию и метрологии, в сети Интернет или по ежегодно издаваемому информационному указателю «Национальные стандарты», который опубликован по стоянию на 1 января текущего года, и по соответствующим ежемесячно издаваемым информационным указателям, опубликованным в текущем году. Если ссылочный стандарт заменен (изменен), то при пользовании настоящим стандартом следует руководствоваться заменяющим (измененным) стандартом. Если ссылочный стандарт отменен без замены, то положение, в котором дана ссылка на него, применяется в части, не затрагивающей эту ссылку.

3 Термины и определения

В настоящем стандарте применены следующие термины с соответствующими определениями:

3.1 оборудование для скейтплощадок: Развлекательное оборудование и площадка, на которой оно установлено, предназначенные для катания на роликовых досках, роликовых коньках или аналогичных роликовых устройствах (далее - роликах) и велосипедах для мотокросса, которые пользователи применяют по своему усмотрению и правилам.

3.2 поверхность катания: Элемент оборудования, предназначенный для катания на роликах или велосипедах для мотокросса.

3.3 переход: Поверхность катания изогнутой формы.

3.4 откос: Прямая, наклонная поверхность катания.

3.5 трамплин: Оборудование с откосом.

3.6 рампа: Оборудование с одним или несколькими переходами и/или прямыми наклонными поверхностями.

3.7 клин: Часть поверхности катания, предназначенная для съезда на поверхность площадки.

3.8 удлинитель (поверхности катания): Дополнительное удлинение верхней части поверхности катания в зоне платформы.

3.9 платформа: Горизонтальная плоская поверхность без ограждения.

3.10 стол: Горизонтальная поверхность катания без ограждения.

3.11 верт: Верхняя вертикальная часть перехода.

3.12 борт: Сплошное ограждение вдоль боковой кромки поверхности катания на роликах для пайпа (см. 4.6.11).

3.13 ребро: Круглая труба или часть круглой трубы, прочно закрепленная в верхней части поверхности катания.

3.14 зона безопасности: Пространство внутри, на или вокруг оборудования, которое может быть занято пользователем, находящимся в движении, вызванном использованием оборудования (например, при катании и выполнении различных трюков на роликах, велосипедах для мотокросса и т.п.) (см. рисунок 1).

1 - оборудование; 2 - зона безопасности

Рисунок 1 - Зона безопасности

3.15 высота свободного падения: Вертикальное расстояние между опорной поверхностью и горизонтальной поверхностью, размещенной ниже.

Примечание - Опорная поверхность - горизонтальная поверхность катания и/или поверхность, на которой можно стоять.

4 Требования безопасности

4.1 Конструкция оборудования должна соответствовать требованиям безопасности и/или мерам защиты по ГОСТ Р ИСО/МЭК 50, ГОСТ Р 52169 и требованиям разделов 4 и 5 настоящего стандарта.

4.2 Элементы конструкции оборудования

Элементы конструкции оборудования представлены на рисунке 2.

1 - платформа; 2 - удлинитель; 3 - переход; 4 - помост; 5 - борт;
6 - верт; 7 - ребро; 8 - ограждение; 9 - откос; 10 - стол

Рисунок 2 - Элементы конструкции оборудования

4.3 Материалы

4.3.1 Применяемые материалы не должны оказывать вредное воздействие на здоровье пользователей и окружающую среду, в том числе должны соответствовать требованиям действующих санитарных норм.

4.3.2 Применение полимерных легковоспламеняющихся материалов (группа В3 по ГОСТ 30402) не допускается.

4.3.3 Применение чрезвычайно опасных по токсичности продуктов горения материалов не допускается (см. ГОСТ 12.1.044, подраздел 4.20).

4.3.4 Применение новых материалов, свойства которых недостаточно изучены, не допускается.

4.3.5 Полимерные материалы, композиционные материалы на различных матричных основах должны быть стойкими к воздействию ультрафиолетового излучения.

4.3.6 Если полимерные материалы, композиционные материалы на различных матричных основах в процессе эксплуатации становятся хрупкими, изготовитель должен указать период времени их безопасной эксплуатации.

4.3.7 Износостойкость и твердость поверхности полимерных и композиционных материалов, включая стеклоармированные полимерные материалы, должны обеспечивать безопасность детей в течение всего установленного периода эксплуатации.

4.3.8 Выбор углеродистой стали - по ГОСТ Р 52170.

4.3.9 Металлические материалы, образующие окислы, шелушащиеся или отслаивающиеся, должны быть защищены нетоксичным покрытием.

4.3.10 Древесина и защитные средства древесины - по ГОСТ 20022.0 и ГОСТ 20022.2.

4.3.11 Фанера по ГОСТ 3916.1 и ГОСТ 3916.2 должна быть стойкой к атмосферным воздействиям.

4.3.12 Бетон для поверхностей катания и фундаментов - по [1].

Допускается применение других материалов, если их пригодность подтверждена поставщиком и/или изготовителем.

4.4 Общие требования безопасности оборудования

4.4.1 Если скейтплощадка оборудована совместно с детскими игровыми площадками, спортивными площадками, в парках отдыха и т. п., то она должна быть размещена на достаточном расстоянии от этих объектов, ограждена забором или должны быть применены другие меры для обеспечения раздельной эксплуатации.

4.4.2 Элементы оборудования и крепления из металла должны быть защищены от коррозии (или изготовлены из коррозионностойких материалов).

Защита от коррозии должна быть выполнена в соответствии с требованиями ГОСТ 9.303 и [2].

4.4.3 Элементы оборудования из полимерных и композиционных материалов всех видов, которые со временем становятся хрупкими, следует заменять по истечении периода времени, указанного изготовителем.

4.4.4 Толщина гелькоутного покрытия элементов оборудования из полимерных материалов, композиционных материалов должна быть не менее 0,3 мм. Испытания - по 5.2.

4.4.5 Твердость по Барколю полимерных поверхностей всех видов должна быть не менее 40. Испытания - по 5.4.

4.4.6 Элементы оборудования из древесины должны быть изготовлены из древесины классов «стойкие» и «среднестойкие» по ГОСТ 20022.2 и не должны иметь на поверхности дефектов обработки (например, заусенцев, задиров, отщепов, сколов и т. п.).

4.4.7 Элементы оборудования из древесины, от которых зависит прочность оборудования, в случае постоянного контакта с грунтом предохраняют методами химической защиты древесины от биологических агентов в соответствии с ГОСТ 20022.0 и ГОСТ 20022.2, дополнительно можно применять конструктивные методы защиты (например, металлический подпятник).

4.4.8 При выборе металлических креплений необходимо учитывать тип древесины и применяемого антисептика во избежание ускоренной коррозии металла.

4.4.9 Конструкциями из древесины должно быть обеспечено беспрепятственное удаление влаги с поверхности оборудования.

4.4.10 Применение гладких штифтов и гвоздей в качестве элементов крепления не допускается.

4.4.11 Наличие выступающих элементов оборудования с острыми концами или кромками не допускается.

4.4.12 Наличие шероховатых поверхностей, способных нанести травму, не допускается.

4.4.13 Выступающие концы болтовых соединений должны быть надежно защищены.

4.4.14 Все наружные углы и края любой доступной части оборудования должны быть закруглены. Минимальный радиус закругления - 3 мм.

4.4.15 Конструкцией оборудования должна быть исключена возможность демонтажа без применения инструментов.

4.4.16 Концы труб, включая ребра, должны быть закрыты.

4.4.17 Элементы оборудования должны быть прочно соединены друг с другом или прикреплены к основанию, не допуская смещения.

4.4.18 Платформы не должны иметь никаких ступеней или лестниц.

4.4.19 Высота клина не должна превышать 5 мм.

4.4.20 Если оборудование оснащено удлинителем, высота которого взята за основу для расчета необходимой ширины оборудования, учитывают высоту самой высокой платформы. Если разница в высоте между платформами менее 500 мм и менее, чем одна треть общей ширины, требование относится только к ширине нижней части оборудования.

4.4.21 Высота свободного падения с поверхности катания - не более 1500 мм. Исключение - см. соответствующие пункты 4.6. Предельная высота свободного падения с горизонтальной поверхности на нижележащую поверхность - не более 1000 мм.

4.5 Требования к конструкции оборудования

4.5.1 Общие требования

4.5.1.1 Конструкцией оборудования должны быть обеспечены прочность, устойчивость, жесткость и пространственная неизменяемость.

4.5.1.2 Оборудование должно быть прочно зафиксировано от перемещения за счет собственного веса или анкерным креплением.

4.5.1.3 Проведение расчетов не требуется, если для подтверждения свойств конструкции и материалов испытаний оказалось достаточно.

4.5.1.4 Площадка, на которой установлено оборудование, должна:

- быть ровной для предотвращения раскачивания оборудования;

- иметь угол 180° в зоне контакта с клином;

- иметь несущую способность, указанную изготовителем оборудования.

4.5.1.5 Угол наклона клина поверхности площадки должен быть не более 30°.

4.5.1.6 Угол наклона перехода к поверхности площадки - не более 15°.

4.5.1.7 Оборудование должно выдерживать без сдвига или наклона кратковременную горизонтально приложенную нагрузку F 1,5 кН/м. Испытания - по 5.5.

4.5.2 Поверхность катания

4.5.2.1 Поверхность катания должна быть устойчива к износу при использовании роликового спортивного инвентаря и велосипедов для мотокросса.

4.5.2.2 Поверхность катания должна быть ровной, сплошной.

4.5.2.3 Любые отклонения высоты, например по краям, должны быть меньше толщины материала поверхности катания и не более 3 мм.

4.5.2.4 Не должно быть отслаивания слоистых материалов поверхности катания.

4.5.2.5 Все отверстия в поверхности катания должны быть выровнены и закрыты.

4.5.2.6 Ширина зазоров в поверхности катания должна быть не более 5 мм.

4.5.2.7 Вода должна свободно стекать с поверхности катания.

4.5.2.8 Конструкция любой поверхности для катания должна выдерживать вертикальную нагрузку 3,5 кН/м2.

4.5.2.9 Все поверхности катания должны выдерживать сосредоточенные нагрузки 7 кН. Испытания по - 5.6.

4.5.3 Ограждение

4.5.3.1 Высота ограждения на расстоянии не более 200 мм от передней кромки площадки должна быть не менее 1200 мм.

4.5.3.2 В зоне удлинителя высота ограждения должна быть не менее 1000 мм от уровня площадки.

4.5.3.3 Ограждение должно выдерживать горизонтальную нагрузку 1500 Н/м. Испытания – по 5.7.

4.5.3.4 Горизонтальный размер отверстий в ограждении должен быть не более 89 мм.

4.5.3.5 Радиус скругления выступающих концов ограждения должен быть не менее 100 мм.

4.5.3.6 Конструкцией ограждения должна быть исключена возможность взбираться на него.

4.5.3.7 Расстояние между поверхностью площадки и нижним краем ограждения должно быть не более 60 мм.

4.5.4 Ребро

4.5.4.1 Диаметр ребра должен быть не менее 40 мм.

4.5.4.2 Торцы ребра должны быть закрыты.

4.5.4.3 Если ребро состоит из нескольких частей, перепады высот в стыках должны быть не более 2 мм.

4.5.4.4 Параллельное расположение ребер оборудования скейтплощадок

Пример параллельного расположения ребер оборудования скейтплощадок приведен на рисунке 3.

Если расстояние между ребрами больше 8 мм, этот промежуток между трубами закрывают.

а - расстояние между ребрами: а ≤ 120; 200 ≤ а ≤ 320; а ≥ 450

Рисунок 3 - Параллельное расположение ребер

4.5.4.5 Ребро может выступать по краю поверхности катания, как показано на рисунке 4. Размеры выступа ребра по краю поверхности катания представлены в таблице 1.

Рисунок 4 - Выступ ребра по краю поверхности катания

Таблица 1 - Размеры выступа ребра по краю поверхности катания

В миллиметрах

Выступ ребра вперед

Выступ ребра вверх

3 ≤ Х ≤ 12

3 ≤ Y ≤ 30

4.5.5 Борт

4.5.5.1 Внутренняя сторона борта должна быть гладкой и сплошной.

4.5.5.2 Борт должен выдерживать горизонтальную нагрузку 2000 Н/м, приложенную к его верхней части.

В борте не должно быть никаких проемов и отверстий, он должен простираться по всей длине поверхности катания.

4.5.5.3 Борт устраивают по всей длине, он должен быть сплошным и иметь высоту не менее 1200 мм над уровнем платформы.

4.6 Дополнительные требования безопасности для конкретного оборудования

4.6.1 Бордюр

Бордюр моделирует бордюрный камень тротуара и позволяет кататься по нему. Примеры бордюров приведены на рисунке 5. Размеры бордюра приведены в таблице 2.

Рисунок 5 - Бордюр

Таблица 2 - Размеры бордюра

В миллиметрах

Ширина бордюра b

Диаметр бордюра d

Высота бордюра h

≤ 40

≤ 40

≤ 1000

4.6.2 Уступ

Уступ представляет собой специальный тип бордюра. Примеры уступов приведены на рисунке 6. Размеры уступа приведены в таблице 3.

Если рядом с уступом имеется поверхность катания, ее ширина должна быть не менее 1200 мм.

Рисунок 6 - Уступ

Таблица 3 - Размеры уступа

В миллиметрах

Ширина уступа b

Диаметр уступа d

Высота уступа h

≤ 200

≤ 200

≤ 1500

4.6.3 Поручень

4.6.3.1 Поручень моделирует перила и позволяет кататься по нему и перепрыгивать через него. Пример поручня приведен на рисунке 7.

4.6.3.2 Расстояние между нижним краем поручня и поверхностью площадки должно быть не менее 200 мм. Высота поручня должна быть не более 1000 мм.

1 - внешний радиус закругления или изгиб под углом 45°

Рисунок 7 - Поручень

4.6.3.3 Если рядом с поручнем имеется поверхность катания, ее ширина должна быть не менее 1200 мм.

4.6.3.4 Поручень должен заканчиваться на поверхности площадки. Внешний радиус закругления или изгиба под углом 45° должен быть не менее 20 мм.

4.6.3.5 Опоры не должны выступать за пределы ширины поручня.

4.6.3.6 Поручень должен выдерживать горизонтальные поперечные нагрузки 750 Н/м. Испытания - по 6.7.

4.6.4 Рампа для прыжков

Рампа для прыжков может быть с переходом или представлять собой прямую наклонную поверхность.

Пример рампы приведен на рисунке 8. Размеры рампы приведены в таблице 4.

Рисунок 8 - Рампа для прыжков

Таблица 4 - Размеры рампы для прыжков

Высота рампы h, мм

Ширина рампы b, мм

Ширина верхней части рампы l1) мм

Радиус перехода r, мм

Угол наклона рампы

≤ 1000

≥ 1200

≥ 20

≤ 100

≥ 1800

≤ 40°

1) Верхняя часть рампы может быть круглой формы.

4.6.5 Трамплин с платформой

Трамплин с платформой представляет собой рампу с прямой наклонной поверхностью катания, оснащенной платформой.

Если высота трамплина менее или равна 1000 мм, размеры трамплина должны соответствовать приведенным в таблице 5.

Пример трамплина с платформой приведен на рисунке 9. Размеры трамплина с платформой приведены в таблице 5.

Рисунок 9 - Трамплин с платформой

Таблица 5 - Размеры трамплина с платформой

В миллиметрах

Высота трамплина h

Ширина трамплина b

Глубина платформы l1

≤ 1000

≤ 1200

≤ 1200

> 1000

≤ 1500

≤2400

> 1500

≤ 3000

≤3600

Трамплины высотой более 1000 мм без платформы должны быть оснащены ограждением.

4.6.6 Переход с платформой

Переход с платформой представляет собой рампу с переходом, оснащенную платформой.

Если высота рампы менее или равна 1000 мм, размеры рампы должны соответствовать приведенным в таблице 6.

Пример перехода с платформой приведен на рисунке 10. Размеры перехода с платформой приведены в таблице 6.

Рисунок 10 - Рампа для прыжков с платформой

Таблица 6 - Размеры рампы для прыжков с платформой

В миллиметрах

Высота рампы h

Ширина рампы b

Глубина платформы l1

1000

≥ 1200

≥ 1800

> 1000

≤ 1500

≥ 2400

> 1500

≤ 3000

≥ 3600

Если переход с платформой оснащен ребром, то должны быть выполнены все требования 4.5.4.

4.6.7 Рампа с гребнем

Рампа с гребнем представляет собой устройство с двумя противолежащими переходами или трамплинами, которые составляют гребень.

Пример рампы с гребнем приведен на рисунке 11. Размеры рампы с гребнем приведены в таблице 7.

Рисунок 11 - Рампа с гребнем

Таблица 7 - Размеры рампы с гребнем

Высота рампы h, мм

Ширина рампы b, мм

Радиус перехода R, мм

Угол наклона трамплина

< 1000

≥ 1200

≥ 1800

≤ 40°

> 1000

≤ 1250

≥ 2400

> 1250

≤ 1500

≥ 3600

Ширина гребня рампы должна быть не менее 40 мм и не более 140 мм.

Выполнение этого требования не обязательно, если рампа состоит из двух соединенных рамп.

Если рампа с гребнем имеет ребро, то должны быть выполнены все требования 4.5.4.

4.6.8 Рампа со стеной

Пример рампы со стеной приведен на рисунке 12. Размеры приведены в таблице 8.

Рисунок 12 - Рампа со стеной

Таблица 8 - Размеры рампы со стеной

В миллиметрах

Тип рампы

Радиус перехода r

Ширина рампы b

Высота стены h1

Высота рампы h2

Рампа со стеной с переходом

≥ 1000

< 2000

≥ 2400

≥ 2000

r ± 5%

> 2000

< 3000

≥ 3600

r

Рампа со стеной с трамплином

-

≥ 2400

≥ 1500

≤ 1500

≥ 3600

≥ 1500

≤ 2500

4.6.9 Пирамида

Пирамида представляет собой устройство, состоящее, как минимум, из трех взаимосвязанных поверхностей катания трапециевидной формы. Пример пирамиды приведен на рисунке 13.

Рисунок 13 - Пирамида

Высота пирамиды h - не более 1500 мм, длина верхней кромки трапеции l - не менее 100 мм. Все плоскости пирамиды должны быть обязательно замкнуты.

4.6.10 Лестница

Лестница должна иметь не менее трех ступеней.

Поверхности ступеней лестницы должны соответствовать 4.5.2.1.

Вертикальные поверхности ступеней должны быть закрыты.

На лестницах, высота которых более 1000 мм, поручни и бордюры не устанавливают.

Пример лестницы приведен на рисунке 14. Размеры лестницы приведены в таблице 9.

Рисунок 14 - Лестница

Таблица 9 - Размеры лестницы

В миллиметрах

Высота лестницы h

Ширина лестницы b

Глубина ступени l1

Высота ступени h1

≤ 1000

≥ 1200

≥ 250

≤ 350

> 1000

< 1500

≥ 2400

4.6.11 Пайп

Пайп представляет собой помост, прочно связанный по обеим сторонам двумя переходами. На обоих концах пайпа оборудуют платформы.

Платформы устраивают для использования только совместно с поверхностями для катания. Платформы оборудуют ограждениями в соответствии с требованиями 4.5.3. Конструкция пайпа не должна позволять взбираться на него.

В верхней части по всей ширине хавпайпа оборудуют верт, отклонение от вертикали которого должно быть ±2°.

Пример пайпа приведен на рисунке 15. Размеры пайпа приведены в таблице 10.

Рисунок 15 - Пайп

Таблица 10 - Размеры пайпа

В миллиметрах

Наименование

Высота пайпа h1

Ширина пайпа b

Радиус перехода r

Высота верта
h3

Высота ограждения платформы
h2

Глубина платформы

Длина помоста l1

Высота помоста h4

Мини-пайп

≤ 1250

≥ 2400

≥ 1800
и ≥
h1

Верт запрещен

≥ 1200

≥ 1200

r

≤ 600

> 1250
< 2000

≥ 3600

≥ 2000
<3000

≥ 4800

Хавпайп

≥ 2500
<4200

≥ 6000

≥ 2400
≥ 3600

≤ 600

≥ 1200

≥ 4200
< 5000

≥ 7200

≤ 4500

≤ 1000

Верхний край перехода должен быть оборудован ребром по всей ширине согласно рисунку 16.

1 - ограждение платформы; 2 - ребро; 3 - пайп

Рисунок 16 - Платформа пайпа

При отсутствии зоны безопасности пайп снабжают бортом, в этом случае ширину пайпа b увеличивают на 1200 мм по сравнению с шириной, указанной в таблице 10. Борт должен соответствовать требованиям 4.5.5.

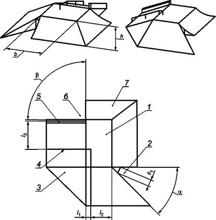
4.6.12 Фанбокс

Фанбокс представляет собой устройство с одним или несколькими столами, размещенными с двух противоположных сторон.

Если на фанбоксе установлено дополнительное оборудование (например, поручень), он должен быть доступен, по крайней мере, с трех сторон, и его конец должен быть размещен на столе на расстоянии от ближнего края l1, не более чем на 300 мм, исключением может быть случай, когда пространство между дополнительным оборудованием и краем поверхности катания недоступно согласно рисунку 17.

Расстояние l2 между концом поручня и противоположным краем стола должно быть не менее 1200 мм согласно рисунку 17.

Если на поверхности катания установлено несколько элементов дополнительного оборудования - поручни, бордюры или уступы, расстояние l3 между этими элементами должно быть не менее 1500 мм.

Вертикальные боковые поверхности ребер должны быть закрыты.

Если угол между боковыми поверхностями катания фанбокса менее 60°, он должен быть закрыт до ширины b1 не менее 200 мм согласно рисунку 17.

Все поверхности катания должны быть выполнены в соответствии с 4.5.2.

Пример фанбокса приведен на рисунке 17. Размеры фанбокса приведены в таблице 12.

1 - помост; 2 - частично закрытый угол; 3 - закрытый угол; 4 - поручень; 5 - бордюр; 6 - открытый угол;
7 - закрытый угол;
h - высота фанбокса; b - ширина грани помоста; b1 - закрытая часть частично
закрытого угла; α - разворот частично закрытого угла;
b - разворот открытого угла; l1 - расстояние между
концом поручня и ближним краем помоста;
l2 - расстояние между концом поручня и противоположным
краем помоста;
l3 - расстояние между дополнительным оборудованием

Рисунок 17 - Фанбокс

Таблица 11 - Размеры фанбокса

Высота фанбокса h, мм

Ширина грани помоста b, мм

Значение частично закрытого угла а

Ширина частично закрытого угла b1. мм

Значение открытого угла b

Расстояние между концом поручня и ближним краем помоста l1, мм

Расстояние между концом поручня и противоположным краем помоста l2. мм

Расстояние между дополнительным оборудованием l3, мм

≤ 1000

≥ 1200

≤ 60°

≥ 200

≥ 60°

≤ 300

≥ 1200

≥ 1500

≤ 1250

≥ 1800

≤ 1500

≥ 24001)

1) Для полностью закрытых углов это значение может быть уменьшено до 1200 мм.

4.7 Зона безопасности

4.7.1 Общие требования к зоне безопасности

4.7.1.1 Вокруг каждой единицы оборудования устраивают зону безопасности.

4.7.1.2 Зоны безопасности отдельно стоящего оборудования могут пересекаться. В этом случае зона безопасности должна быть сохранена для соответствующего оборудования, для которого она предназначена.

4.7.1.3 Зоны безопасности должны быть свободными от посторонних предметов (веток деревьев, конструкций зданий и сооружений и т. п.), в них не должны находиться посторонние люди.

4.7.1.4 Высота зоны безопасности от поверхности катания и поверхности площадки должна учитывать вертикальное перемещение пользователя.

4.7.1.5 Поверхность зоны безопасности должна иметь твердое покрытие из однородного материала. Использование сыпучих материалов, таких как песок, щебень, гравий, не допускается.

4.7.1.6 Позади оборудования с платформой или за стеной рампы зона безопасности может отсутствовать.

4.7.2 Специальные требования к зоне безопасности

4.7.2.1 Общие положения

Размеры, указанные в 4.7.2.2 - 4.7.2.9, относятся к основанию зоны безопасности на поверхности площадки для конкретного оборудования.

Указанные размеры являются минимальными.

4.7.2.2 Размеры зоны безопасности бордюра, поручня или уступа

Размеры зоны безопасности бордюра, поручня или уступа приведены на рисунке 18.

1 - бордюр, поручень или уступ; 2 - зона безопасности

Рисунок 18 - Зона безопасности бордюра, поручня или уступа

4.7.2.3 Размеры зоны безопасности рампы для прыжков

Размеры зоны безопасности рампы для прыжков приведены на рисунке 19.

1 - рампа для прыжков; 2 - зона безопасности

Рисунок 19 - Зона безопасности рампы для прыжков

4.7.2.4 Размеры зоны безопасности рампы с гребнем

Размеры зоны безопасности рампы с гребнем приведены на рисунке 20.

1 - рампа с гребнем; 2 - зона безопасности

Рисунок 20 - Зона безопасности рампы с гребнем

4.7.2.5 Размеры зоны безопасности рампы со стеной

Размеры зоны безопасности рампы со стеной приведены на рисунке 21.

1 - рампа; 2 - стена; 3 - зона безопасности

Рисунок 21 - Зона безопасности рампы со стеной

4.7.2.6 Размеры зоны безопасности пирамиды

Размеры зоны безопасности пирамиды приведены на рисунке 22.

1 - пирамида; 2 - зона безопасности

Рисунок 22 - Зона безопасности пирамиды

4.7.2.7 Размеры зоны безопасности мини-пайпа без борта

Размеры зоны безопасности мини-пайпа без борта приведены на рисунке 23.

1 - мини-пайп; 2 - зона безопасности

Рисунок 23 - Зона безопасности мини-пайпа без борта

4.7.2.8 Размеры зоны безопасности хавпайпа без борта

Размеры зоны безопасности хавпайпа без борта приведены на рисунке 24.

1 - хавпайп; 2 - зона безопасности

Рисунок 24 - Зона безопасности хавпайпа без борта

4.7.2.9 Размеры зоны безопасности фанбокса

Размеры зоны безопасности фанбокса приведены на рисунке 25.

1 - фанбокс; 2 - зона безопасности

Рисунок 25 - Зона безопасности фанбокса

5 Методы испытаний

5.1 Требования безопасности в соответствии с разделом 4 проверяют визуально, органолептически или инструментальными методами.

5.2 Оценка абразивной стойкости элементов оборудования с полимерным покрытием и из композиционных материалов - по ГОСТ Р 52169, подраздел 5.2.

5.3 При испытаниях по 5.2 элементов оборудования с полимерным покрытием и из композиционных материалов слой под гелькоутным покрытием не должен быть виден.

5.4 Оценка твердости всех видов полимерных поверхностей элементов оборудования - по ГОСТ Р 52169, подраздел 5.4.

5.5 При испытаниях оборудования по 4.5.1.7 горизонтальную нагрузку прикладывают к самой высокой точке поверхности катания согласно рисунку 26.

Рисунок 26 - Приложение горизонтальной нагрузки

5.6 При испытаниях поверхностей для катания по 4.5.2.9 сосредоточенные нагрузки 7 кН прикладывают на площадке размерами 50 ´ 50 мм. Нагрузки равномерно распределяют по испытуемой поверхности в виде сетки с размерами ячеек не более 500 ´ 500 мм.

5.7 При испытаниях ограждений по 4.5.3.3, бортов по 4.5.5.2 и поручней по 4.6.3.6 сосредоточенные нагрузки прикладывают на длине 80 мм с интервалом в 1000 мм.

5.8 После испытаний на поверхности оборудования и его элементов не должно быть остаточных деформаций или повреждений.

5.9 По результатам испытаний оформляют отчет в соответствии с ГОСТ Р ИСО/МЭК 17025.

6 Обозначение и маркировка оборудования

6.1 Обозначение

Обозначение оборудования - по ГОСТ 2.201 и ОК 012.

6.2 Маркировка

На оборудовании на видном и доступном месте устанавливают табличку, содержащую:

- наименование и адрес изготовителя или его уполномоченного представителя;

- год введения в эксплуатацию;

- обозначение оборудования по 6.1.

Библиография

[1]

Строительные нормы и правила Российской Федерации
СНиП 2.03.01- 84

Бетонные и железобетонные конструкции

[2]

Строительные нормы и правила Российской Федерации
СНиП 2.03.11-85

Защита строительных конструкций от коррозии

 

 

Ключевые слова: скейтплощадки, оборудование, требования безопасности, испытания