Меню
Навигация
Первая линия
Novatika
Бесплатное обучение

Дороги автомобильные общего пользования. Эмульсии битумные дорожные катионные. Метод определения расслоения

Стандарт распространяется на эмульсии битумные дорожные катионные (далее - эмульсии), применяемые для дорожного строительства. Стандарт устанавливает метод определения расслоения битумной эмульсии.

Обозначение: ГОСТ Р 55423-2013
Название рус.: Дороги автомобильные общего пользования. Эмульсии битумные дорожные катионные. Метод определения расслоения
Статус: действует
Дата актуализации текста: 05.05.2017
Дата добавления в базу: 01.10.2014
Дата введения в действие: 01.09.2013
Утвержден: 08.05.2013 Федеральное агентство по техническому регулированию и метрологии (95-ст)
Опубликован: Стандартинформ (2014 г. )
Ссылки для скачивания:

ФЕДЕРАЛЬНОЕ АГЕНТСТВО
ПО ТЕХНИЧЕСКОМУ РЕГУЛИРОВАНИЮ И МЕТРОЛОГИИ

НАЦИОНАЛЬНЫЙ
СТАНДАРТ
РОССИЙСКОЙ
ФЕДЕРАЦИИ

ГОСТ Р
55423-
2013

Дороги автомобильные общего пользования

ЭМУЛЬСИИ БИТУМНЫЕ ДОРОЖНЫЕ
КАТИОННЫЕ

Метод определения расслоения

EN 12847:2009
(NEQ)

Москва

Стандартинформ

2014

Предисловие

1 РАЗРАБОТАН Обществом с ограниченной ответственностью «Инновационный технический центр»

2 ВНЕСЕН Техническим комитетом по стандартизации ТК 418 «Дорожное хозяйство»

3 УТВЕРЖДЕН И ВВЕДЕН В ДЕЙСТВИЕ Приказом Федерального агентства по техническому регулированию и метрологии от 8 мая 2013 г. № 95-ст

4 Настоящий стандарт разработан с учетом основных нормативных положений европейского регионального стандарта EN 12847:2009 «Битум и битумосодержащие связующие. Определение склонности к расслоению битумных эмульсий» (EN 12847:2009 «Bitumen and bituminous binders - Determination of settling tendency of bituminous emulsions», NEQ)

5 ВВЕДЕН ВПЕРВЫЕ

Правила применения настоящего стандарта установлены в ГОСТ Р 1.0-2012 (раздел 8). Информация об изменениях к настоящему стандарту публикуется в ежегодном (по состоянию на 1 января текущего года) информационном указателе «Национальные стандарты», а официальный текст изменений и поправок - в ежемесячном информационном указателе «Национальные стандарты». В случае пересмотра (замены) или отмены настоящего стандарта соответствующее уведомление будет опубликовано в ближайшем выпуске ежемесячного информационного указателя «Национальные стандарты». Соответствующая информация, уведомление и тексты размещаются также в информационной системе общего пользования - на официальном сайте Федерального агентства по техническому регулированию и метрологии в сети Интернет (gost.ru)

Содержание

1 Область применения. 2

2 Нормативные ссылки. 2

3 Термины и определения. 3

4 Требования к средствам измерений, вспомогательным устройствам, материалам, реактивам.. 3

5 Методы измерений. 4

6 Требования безопасности, охраны окружающей среды.. 4

7 Требования к условиям измерений. 4

8 Порядок подготовки к выполнению измерений. 4

9 Порядок выполнения измерений. 5

10 Обработка результатов измерений. 5

11 Оформление результатов измерений. 6

12 Контроль точности результатов измерений. 6

Приложение А (справочное) Пример цилиндра для испытаний по методу Б. 7

 

НАЦИОНАЛЬНЫЙ СТАНДАРТ РОССИЙСКОЙ ФЕДЕРАЦИИ

Дороги автомобильные общего пользования

ЭМУЛЬСИИ БИТУМНЫЕ ДОРОЖНЫЕ КАТИОННЫЕ

 Метод определения расслоения

General use highways. Cationic road bituminous emulsions.
Method for determination of settling tendency

Дата введения - 2013-09-01

1 Область применения

Настоящий стандарт распространяется на эмульсии битумные дорожные катионные (далее - эмульсии), применяемые для дорожного строительства.

Настоящий стандарт устанавливает метод определения расслоения битумной эмульсии.

2 Нормативные ссылки

В настоящем стандарте использованы нормативные ссылки на следующие стандарты:

ГОСТ Р 12.1.019-2009 Система стандартов безопасности труда. Электробезопасность. Общие требования и номенклатура видов защиты

ГОСТ Р 12.4.246-2008 Система стандартов безопасности труда. Средства индивидуальной защиты рук. Перчатки. Общие технические требования. Методы испытаний

ГОСТ Р 53228-2008 Весы неавтоматического действия. Часть 1. Метрологические и технические требования. Испытания

ГОСТ Р 55420-2013 Дороги автомобильные общего пользования. Эмульсии битумные дорожные катионные. Технические условия

ГОСТ Р 55427-2013 Дороги автомобильные общего пользования. Эмульсии битумные дорожные катионные. Метод определения содержания вяжущего с эмульгатором

ГОСТ 12.1.004-91 Система стандартов безопасности труда. Пожарная безопасность. Общие требования

ГОСТ 12.1.007-76 Система стандартов безопасности труда. Вредные вещества. Классификация и общие требования безопасности

ГОСТ 12.1.044-89 (ИСО 4589-84) Система стандартов безопасности труда. Пожаровзрыво- опасность веществ и материалов. Номенклатура показателей и методы их определения

ГОСТ 12.4.011-89 Система стандартов безопасности труда. Средства защиты работающих. Общие требования и классификация

ГОСТ 12.4.103-83 Система стандартов безопасности труда. Одежда специальная защитная, средства индивидуальной защиты ног и рук. Классификация

ГОСТ 12.4.131-83 Халаты женские. Технические условия

ГОСТ 12.4.132-83 Халаты мужские. Технические условия

ГОСТ 1770-74 (ИСО 1042-83, ИСО 4788-80) Посуда мерная лабораторная стеклянная. Цилиндры, мензурки, колбы, пробирки. Общие технические условия

ГОСТ 23932-90 Посуда и оборудование лабораторные стеклянные. Общие технические условия

ГОСТ 25336-82 Посуда и оборудование лабораторные стеклянные. Типы, основные параметры и размеры

Примечание - При пользовании настоящим стандартом целесообразно проверить действие ссылочных стандартов в информационной системе общего пользования - на официальном сайте Федерального агентства по техническому регулированию и метрологии в сети Интернет или по ежегодному информационному указателю «Национальные стандарты», который опубликован по состоянию на 1 января текущего года, и по выпускам ежемесячного информационного указателя «Национальные стандарты» за текущий год. Если заменен ссылочный стандарт, на который дана недатированная ссылка, то рекомендуется использовать действующую версию этого стандарта с учетом всех внесенных в данную версию изменений. Если заменен ссылочный стандарт, на который дана датированная ссылка, то рекомендуется использовать версию \этого стандарта с указанным выше годом утверждения (принятия). Если после утверждения настоящего стандарта в ссылочный стандарт, на который дана датированная ссылка, внесено изменение, затрагивающее положение, на которое дана ссылка, то это положение рекомендуется применять без учета данного изменения. Если ссылочный стандарт отменен без замены, то положение, в котором дана ссылка на него, рекомендуется применять в части, не затрагивающей эту ссылку.

3 Термины и определения

В настоящем стандарте применен следующий термин с соответствующим определением:

3.1 расслоение (РА, РБ): Изменение концентрации вяжущего в верхнем и нижнем слое образца после отстаивания в течение определенного времени при температуре (23 ± 3) °С.

4 Требования к средствам измерений, вспомогательным устройствам, материалам, реактивам

При выполнении испытаний применяют следующие средства измерений, вспомогательные устройства и реактивы:

- мерный стеклянный цилиндр вместимостью от 100 до 500 мл - по ГОСТ 1770 или стеклянный цилиндр в соответствии с приложением А;

- весы с точностью измерений до ±0,01 г - по ГОСТ Р 53228;

-чашка металлическая цилиндрическая с плоским дном, внутренним диаметром (128 ± 1) мм, высотой (15,0 ± 0,5) мм и толщиной стенок (1,5 ±0,1) мм или стеклянная чашка типа ЧБН - по ГОСТ 25336 с наружным диаметром (100 ± 1) мм;

- термометр ртутный с ценой деления 0,5 °С и диапазоном измеряемых температур от 100 °С до 200 °С, или аналогичный прибор, позволяющий производить измерения в указанном диапазоне температур, с требуемой точностью;

- вентилируемый сушильный шкаф, позволяющий поддерживать температуру (163 ±2) °С;

- стаканы стеклянные требуемой вместимости - по ГОСТ 23932;

- эксикатор - по ГОСТ 25336;

- стеклянная палочка.

5 Методы измерений

Метод А: Расслоение (РА) определяется путем визуального наблюдения за изменением концентрации (осветлении) битумной эмульсии в верхнем или нижнем слое мерного цилиндра с течением времени.

Метод Б: Расслоение (РБ) определяется путем измерения изменения концентрации битумной эмульсии в верхнем и нижнем слое мерного цилиндра с течением времени.

6 Требования безопасности, охраны окружающей среды

Битумные эмульсии согласно ГОСТ 12.1.007 относятся к 4-му классу опасности, являются малоопасными веществами по степени воздействия на организм человека.

При работе с эмульсиями используют индивидуальные средства защиты согласно ГОСТ 12.4.011, ГОСТ 12.4.103, ГОСТ 12.4.131, ГОСТ 12.4.132. Для защиты рук используют перчатки по ГОСТ Р 12.4.246.

Попавший на кожу раствор эмульгатора следует смыть под сильной струей воды с нейтральным мылом. При попадании эмульсии на лицо или руки следует быстро смыть ее холодной водой, остатки битума снять керосином или дизельным топливом, затем эти места промыть теплой водой с мылом.

При попадании компонентов и эмульсии в глаза необходимо немедленно и обильно промыть их водой, закапать противовоспалительное средство и обратиться к врачу.

При выполнении измерений соблюдают правила по электробезопасности по ГОСТ Р 12.1.019 и инструкции по эксплуатации оборудования.

Эмульсии согласно ГОСТ 12.1.044 относятся к трудногорючим жидкостям. Работы с применением битумных эмульсий должны производиться с соблюдением требований пожарной безопасности по ГОСТ 12.1.004.

Испытанный материал утилизируют в установленном порядке в соответствии с требованиями предприятия-изготовителя.

7 Требования к условиям измерений

При выполнении измерений соблюдают следующие условия для помещений, в которых испытываются образцы:

- температура (23 ± 3) °С;

- относительная влажность (55 ± 10) %.

8 Порядок подготовки к выполнению измерений

При подготовке к выполнению измерений проводят следующие работы:

- отбор проб;

- подготовка образцов;

- подготовка и настройка оборудования к измерениям.

8.1 Отбор проб

Отбор проб производят в соответствии с ГОСТ Р 55420 (пункт 7.5).

8.2 Подготовка образцов

Метод А: Перед началом испытаний пробу эмульсии объемом (500 ± 5) мл тщательно перемешивают для получения однородной массы. После чего вливают в стеклянный цилиндр до уровня 100 мл (Vэм).

Метод Б: Перед началом испытаний пробу эмульсии объемом (1500 ± 10) мл тщательно перемешивают для получения однородной массы. Затем вливают в стеклянный цилиндр испытуемый образец эмульсии до уровня 500 мл (Vэм).

Примечание - При использовании цилиндра с боковыми трубками, схема которого приведена на рисунке А.1, необходимо закрыть обе трубки.

Из этой же пробы отбирают образец и определяют содержание вяжущего с эмульгатором согласно методике ГОСТ Р 55427.

8.3 Подготовка и настройка оборудования к измерениям

Включают весы согласно инструкции по эксплуатации. Нагревают сушильный шкаф до температуры (163 ±2) °С.

9 Порядок выполнения измерений

Метод А:

При выполнении измерения расслоения необходимо осуществить следующие операции:

- аккуратно заполнить цилиндр битумной эмульсией до отметки 100 мл;

- закрыть верхнее отверстие цилиндра с помощью пробки;

- зафиксировать время и дату начала испытаний;

- ежедневно, в одно и то же время каждые 24 ч ± 30 мин в течение 7 сут, визуально определяют уровень оседания или всплытия битумной фазы (Рn). Фиксируют полученные результаты.

Метод Б:

Наливают в цилиндр испытуемый образец эмульсии до отметки 500 мл.

Плотно закрывают цилиндр пробкой и оставляют на 7 сут.

В конце отстаивания, не выводя из равновесия содержимое цилиндра, открывают верхнюю боковую трубку и из верхнего слоя эмульсии отбирают образец объемом (55 ± 5) мл. При использовании нескольких цилиндров операцию повторяют, последовательно отбирая пробы из верхних слоев каждого цилиндра в лабораторный стакан.

По окончанию отбора проб стеклянной палочкой аккуратно перемешивают до однородного состояния получившуюся объединенную пробу (В).

Затем сливают эмульсию из средней части цилиндра, открывая нижнюю боковую трубку и позволяя эмульсии стечь в другой стакан до прекращения течения, и утилизируют.

Закрывают нижнюю боковую трубку.

Размешивают оставшуюся эмульсию так, чтобы любой остаток, прилипший к стенкам или основанию цилиндра, был перемешан до однородного состояния.

Если оставшийся остаток в нижней части цилиндра невозможно перемешать до однородного состояния из-за расслоившейся эмульсии, испытание прекращают, отражая данную информацию в протоколе испытания.

Остаток в цилиндре сливают во второй лабораторный стакан для получения второго образца. При использовании нескольких цилиндров операцию повторяют, последовательно сливая остатки из каждого цилиндра в лабораторный стакан.

По окончанию отбора проб стеклянной палочкой аккуратно перемешивают до однородного состояния получившуюся объединенную пробу (Н).

Определяют содержание вяжущего в каждом образце по методике ГОСТ Р 55427.

10 Обработка результатов измерений

Метод А:

Расслоение определяют по отметкам в цилиндре РА, %, с точностью до 0,1 %, по формуле

(1)

где Р1 - Р7 - ежесуточные уровни оседания или всплытия битумной фазы, мл;

Vэм - начальный объем эмульсии, мл.

За результат испытаний принимают среднее арифметическое результатов не менее двух измерений.

Допустимое отклонение отдельных результатов испытаний не должны отличаться от среднеарифметического значения более чем на 4 %.

Метод Б:

Расслоение определяют по разнице в содержании вяжущего в верхнем и нижнем слоях цилиндра РБ, %, с точностью до 0,1 %, по формуле

РБ = Н – В,

(2)

где Н - содержание вяжущего в нижнем слое, % по массе;

В - содержание вяжущего в верхнем слое, % по массе.

Примечание - Отрицательные значения расслоения говорят о том, что вяжущее всплывает.

Разница между двумя последовательными результатами испытаний, полученными с помощью одного и того же оборудования при точном соблюдении всех требований метода испытаний (сходимость), - не превышает 1 % от среднего арифметического.

Разница между двумя отдельными и независимыми результатами, полученными в разных лабораториях при испытании идентичных образцов материала и точном соблюдении всех требований метода испытаний (воспроизводимость), - не превышает 2 %.

11 Оформление результатов измерений

Результаты измерений оформляются в виде протокола, который должен содержать:

- полную маркировку испытуемого образца (в том числе дату отбора проб и дату подготовки проб);

- ссылку на настоящий стандарт и отклонения от его требований;

- ссылку на акт отбора проб;

- методику проведения испытаний;

- название организации, проводившей испытания;

- даты и время проведения испытаний;

- результаты испытания (в процентах).

12 Контроль точности результатов измерений

Точность результатов измерений обеспечивается:

- соблюдением требований настоящего стандарта;

- проведением периодической оценки метрологических характеристик средств измерений;

- проведением периодической аттестации оборудования.

Лицо, проводящее измерения, должно быть ознакомлено с требованиями настоящего стандарта.

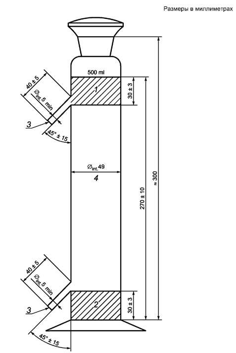
Приложение А
(справочное)

Пример цилиндра для испытаний по методу Б

1 - верхний слой (В); 2 - нижний слой (Н); 3 - закрываемые боковые трубки; 4 - средняя часть

Рисунок А.1 - Цилиндр для испытаний по методу Б (пример)

Ключевые слова: эмульсии битумные дорожные катионные, методы измерений, расслоение, устойчивость к расслоению