Настоящий стандарт распространяется на динасовые огнеупорные изделия для кладки верхнего строения и регенераторов стекловаренных печей.
| Обозначение: | ГОСТ 3910-75* |
| Название рус.: | Изделия огнеупорные динасовые для кладки стекловаренных печей. Технические условия |
| Статус: | действующий |
| Заменяет собой: | ГОСТ 3910-47 |
| Дата актуализации текста: | 01.10.2008 |
| Дата добавления в базу: | 01.02.2009 |
| Дата введения в действие: | 01.07.1977 |
| Утвержден: | Госстандарт СССР (29.12.1975) |
| Опубликован: | Издательство стандартов № 1975<br>Издательство стандартов № 1987<br>ИПК Издательство стандартов № 1998 |

ГОСУДАРСТВЕННЫЙ СТАНДАРТ СОЮЗА ССР
ИЗДЕЛИЯ ОГНЕУПОРНЫЕ ДИНАСОВЫЕ
ДЛЯ КЛАДКИ СТЕКЛОВАРЕННЫХ
ПЕЧЕЙ
ТЕХНИЧЕСКИЕ УСЛОВИЯ
ГОСТ 3910-75
ИПК ИЗДАТЕЛЬСТВО СТАНДАРТОВ
Москва
ГОСУДАРСТВЕННЫЙСТАНДАРТ СОЮЗАССР
| ИЗДЕЛИЯ ОГНЕУПОРНЫЕ ДИНАСОВЫЕ Технические условия Refractory silica products for brickwork of glassmaking furnaces. | ГОСТ |
Дата введения 01.07.77
Настоящийстандарт распространяется на динасовые огнеупорные изделия для кладки верхнегостроения и регенераторов стекловаренных печей.
Коды ОКПприведены в приложении 2.
1.1. Изделия в зависимости от химического составаподразделяются на марки, указанные в табл. 1.
Таблица 1
| Характеристика | Применение | |
| ДСУ | Изделия динасовые с массовой долей SiO2 не менее 96 % | Для кладки наиболее ответственных участков верхнего строения стекловаренных печей в зонах варки и максимальных температур до 1580 °С |
| ДСО | Изделия динасовые с массовой долей SiO2 не менее 95 % | Для кладки наиболее ответственных участков верхнего строения высокотемпературных стекловаренных печей до 1580 °С |
| ДСО1 | Изделия динасовые с массовой долей SiО2 не менее 95 % | Для кладки наиболее ответственных участков верхнего строения стекловаренных печей с максимальной рабочей температурой до 1530 °С |
| ДС | Изделия динасовые с массовой долей SiO2 не менее 94 % | Для кладки менее ответственных участков высокотемпературных стекловаренных печей и кладки печей с максимальной рабочей температурой до 1530 °С |
| ДС1 | Изделия динасовые с массовой долей SiO2 не менее 93 % | |
| Д1 | Изделия динасовые с массовой долей SiO2 не менее 95 % | Для кладки сводов стекловаренных печей |
(Измененная редакция, Изм. №2, 3, 5, 6).
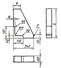
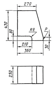
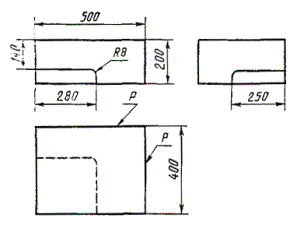
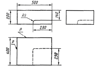
2.1. Форма и размеры изделий марок ДСУ, ДСО, ДСО1, ДС иДС1 должны соответствовать указанным на черт. 1 - 9 и втабл. 2 - 10, маркиД1 - требованию потребителя.
Допускаетсяизготовление изделий других форм и размеров по согласованию изготовителя ипотребителя.
Брус прямой
Таблица 2
| а | б | в | Применение | |
| мм | ||||
| 1 | 250 | 500 | 120 | Для кладки стен и защиты пят |
| 2 | 250 | 600 | 100 | Для подпятника влета горелок и защиты пят |
| 3 | 250 | 600 | 150 | Для подпятника влета горелок |
| 4 | 300 | 250 | 100 | Для кладки сводов толщиной 300 мм в сочетании с изделием № 14 |
| 5 | 300 | 380 | 100 | Для кладки сводов толщиной 300 мм в сочетании с изделиями № 17 и 18 |
| 6 | 300 | 500 | 100 | Для кладки сводов толщиной 300 мм в сочетании с изделиями № 19 и 20 |
| 7 | 400 | 250 | 100 | Для кладки сводов толщиной 400 мм в сочетании с изделиями № 21 и 22 |
| 8 | 400 | 380 | 100 | Для кладки сводов толщиной 400 мм в сочетании с изделиями № 23 и 24 |
| 9 | 500 | 250 | 100 | Для кладки сводов толщиной 500 мм в сочетании с изделиями № 25 и 26 |
| 10 | 500 | 380 | 100 | Для кладки сводов толщиной 500 мм в сочетании с изделиями № 27 и 28 |
Брус клиновый двусторонний
Таблица 3
| а | б | в | г | Применение | |
| мм | |||||
| 11 | 250 | 600 | 100 | 120 | Для кладки сводов, горелок, влетов и арок стены |
| 12 | 300 | 250 | 50 | 100 | Для кладки сводов регенераторов вперевязку с изделием № 15 |
| 13 | 300 | 250 | 75 | 100 | Для кладки сводов регенераторов вперевязку с изделием № 16 |
| 14 | 300 | 250 | 100 | 108 | Для кладки сводов толщиной 300 мм в сочетании с изделием № 4 |
| 15 | 300 | 380 | 50 | 100 | Для кладки сводов регенераторов толщиной 300 мм вперевязку с изделием № 12 |
| 16 | 300 | 380 | 75 | 100 | Для кладки сводов регенераторов вперевязку с изделием № 13 |
| 17 | 300 | 380 | 100 | 108 | Для кладки сводов толщиной 300 мм в сочетании с изделием № 5 |
| 18 | 300 | 380 | 100 | 115 | То же |
| 19 | 300 | 500 | 100 | 108 | Для кладки сводов толщиной 300 мм в сочетании с изделием № 6 |
| 20 | 300 | 500 | 100 | 115 | То же |
| 21 | 400 | 250 | 100 | 111 | Для кладки сводов толщиной 400 мм в сочетании с изделием № 7 |
| 22 | 400 | 250 | 100 | 120 | То же |
| 23 | 400 | 380 | 100 | 111 | Для кладки сводов толщиной 400 мм в сочетании с изделием № 8 |
| 24 | 400 | 380 | 100 | 120 | Для кладки сводов толщиной 400 мм в сочетании с изделием № 8 |
| 25 | 500 | 250 | 100 | 113 | Для кладки сводов толщиной 500 мм в сочетании с изделием № 9 |
| 26 | 500 | 250 | 100 | 125 | То же |
| 27 | 500 | 380 | 100 | 113 | Для кладки сводов толщиной 500 мм в сочетании с изделием № 10 |
| 28 | 500 | 380 | 100 | 125 | То же |
| 29 | 700 | 200 | 152 | 160 | Для кладки плоских арок вперевязку с изделием № 30 |
| 30 | 700 | 300 | 152 | 160 | Для кладки плоских арок вперевязку с изделием № 29 |
Зуб
Таблица 4
| а, мм | Применение | |
| 31 | 200 | Для кладки подвесных стен |
| 32 | 300 | То же |
Таблица 5
| Применение | |
| 33 | Для кладки углов подвесных стен |
Зуб угловой правый
Зуб угловой левый
Таблица 6
| Применение | |
| 34 | Для кладки углов подвесных стен |
Таблица 7
| а, мм | Применение | |
| 35 | 100 | Для кладки сводов горелок |
| 36 | 600 | Для кладки сводов горелок и влетов |
Пята
Пята плоской арки
Таблица 8
| Применение | |
| 37 | Для кладки плоских арок |
Таблица 9
| а | б | Применение | |
| мм | |||
| 38 | 350 | 190 | Для кладки сводов толщиной 300 мм |
| 39 | 400 | 165 | Для кладки сводов толщиной 400 мм |
| 40 | 500 | 115 | Для кладки сводов толщиной 500 мм |
Пята
Примечание. Буквой Р на черт.1 - 9обозначена рабочая поверхность.
Таблица 10
| а | б | Применение | |
| мм | |||
| 41 | 100 | 100 | Для кладки сводов выборочных частей |
| 42 | 94 | 88 | То же |
(Измененная редакция, Изм. №1, 4, 5, 6).
2.2. Расчетная масса и объем изделий даны в приложении 1.
2.3. Предельные отклонения по размерам изделий недолжны превышать указанных в табл. 11.
Таблица 11
мм
| Предельное отклонение | Размер | Предельное отклонение | |
| До 100 | ±2 | До 230 для изделий: |
|
| Св. 100 до 350 | ±3 | 1-го класса | ±2 |
| » 350 | +6 | 2-го класса | ±3 |
|
| -5 | св. 230 для изделий |
|
|
|
| 1-го класса | ±1* |
|
|
| 2-го класса | ±2* |
* Данные приведены в процентах.
(Измененная редакция, Изм. №5).
2.4. Радиусы закруглений (черт. 3 - 5, 7 - 9)приведены для построения чертежей пресс-форм.
(Измененная редакция, Изм. №4).
3.1. Изделия должны изготовляться в соответствии стребованиями настоящего стандарта, по физико-химическим показателям и внешнемувиду соответствовать требованиям, указанным в табл. 12.
Таблица 12
| Норма для изделия марки | ||||||
| ДСУ | ДСО | ДС | ДСО1 | ДС1 | Д1 | |
| 1. Массовая доля SiO2, %, не менее | 96 | 95 | 94 | 95 | 93 | 95 |
| 2. Массовая доля СаО, %, не более | 2,5 | 2,5 | 3,0 | 2,5 | 3,0 | - |
| 3. Массовая доля Fe2O3, %, не более | 0,5 | 0,6 | 1,7 | 0,6 | 1,7 | 1,5 - 1,7 |
| 4. Огнеупорность, °С, не ниже | 1710 | 1710 | 1710 | 1710 | 1710 | - |
| 5. Пористость открытая, %, не более |
|
|
|
|
|
|
| для изделий массой до 35 кг | 20 | 21 | 22 | 21 | 22 | 23*; 25 |
| для изделий массой св. 35 кг | 21 | 22 | 22 | 22 | 22 | 25 |
| 6. Температура начала размягчения, °С, не ниже | 1650 | 1650 | 1640 | 1650 | 1630 | 1650 |
| 7. Плотность, г/см3, не более | 2,37 для изделий массой до 19 кг, 2,38 для изделий массой св. 19 кг | 2,36 | 2,38 | 2,38 | 2,38 | 2,38* 2,40 |
| 8. Предел прочности при сжатии, Н/мм2, не менее | 30,0 | 25,0 | 20,0 | 22,0 | 17,5 | 22,0* 20,0 |
| 9. Отбитость углов и ребер не более: |
|
|
|
|
|
|
| для изделий массой до 50 кг: |
|
|
|
|
|
|
| на рабочей поверхности | 4 | 5 | 5 | 5 | 5 | 5* |
| на остальных поверхностях | 8 | 8 | 8 | 8 | 8 | 10* |
| для изделий массой св. 50 кг: |
|
|
|
|
|
|
| на рабочей поверхности | 6 | 10 | 10 | 10 | 10 | - |
| на остальных поверхностях | 12 | 10 | 15 | 10 | 15 | - |
| 10. Кривизна, мм, не более, для изделий размером, мм: |
| |||||
| до 230 | - | 2 | ||||
| св. 230 - 1-го класса | - | 3 | ||||
| 2-го класса | - | 1 % | ||||
| до 350 | 2,5 | - | ||||
| Св. 350 | 3,5 |
| ||||
| 11. Выплавки отдельные диаметром (по впадине), мм, не более, в количестве не более 1 шт.: |
| |||||
| на рабочей поверхности | Не допускаются | 5 | - | |||
| на остальных поверхностях |
| 8 | - | |||
| 12. Посечки поверхностные длиной, мм, не более: | Не нормируются, если не имеют характера сетки | Не учитываются | ||||
| шириной до 0,1 мм | ||||||
| шириной от 0,1 до 0,3 мм: | ||||||
| на рабочей поверхности | 30 для посечки шириной от 0,1 до 0,25 | 30 | Не допускаются | |||
| на остальных поверхностях шириной св. 0,3 до 0,5 мм: | 50 | |||||
| на рабочей поверхности | Не допускаются | |||||
| на остальных поверхностях | 30 | |||||
| 13. Трещины св. 0,5 мм | Не допускаются | |||||
Примечания:
1. Для изделий марок ДСО1 и ДС1 массой свыше 35 кгдопускается один образец из трех плотностью 2,39 г/см3.
2. На рабочей поверхности изделия допускается не болееодного отбитого угла и ребра. Отбитость ребер для изделий марки Д1 установленаобщей длиной не более 1/4 длины ребра.
Рабочей поверхностьюизделий считается поверхность, соприкасающаяся с печным пространством, имаркировке не подлежит. Рабочая поверхность изделий, изготовляемых по чертежампотребителя, должна быть указана на этих чертежах.
3. Пересечение посечкой допускается не более 1 ребра.
4. Знаком * отмечены значения для изделий массой до 12 кг.
(Измененная редакция, Изм. №2, 3, 4, 5, 6).
3.1а. Кривизна динасовых изделий всех марок,предназначенных для печей производства электровакуумного стекла, должна быть с01.01.88 для изделий всех размеров не более 1 мм.
(Введендополнительно, Изм. № 4).
3.2. Изделия по всей поверхности излома должны иметьоднородное строение, без трещин, пустот и инородных включений. Отдельные зернане должны выкрашиваться.
(Измененная редакция, Изм. №2).
3а.1. При производстве динасовых изделий вреднымпроизводственным фактором является неорганическая пыль кварцита, содержащаядвуокись кремния, относящуюся к 3-му классу опасности. Предельно допустимаяконцентрация пыли кварцита в воздухе рабочей зоны производственных помещений недолжна превышать 1 мг/м3 ( ГОСТ 12.1.005 ).
3а.2. Общие требования безопасности при работе сдинасовыми изделиями - по ГОСТ 12.1.007 .
3а.3. Припроизводстве динасовых изделий должны соблюдаться требования ГОСТ17.0.0.01, ГОСТ12.2.032.
Разд. 3а. (Введен дополнительно,Изм. № 4).
4.1. Изделия предъявляются к приемке партиями. Каждаяпартия должна состоять из изделий одного назначения.
Массапартии устанавливается не более 150 т одной марки.
(Измененная редакция, Изм. №2, 3).
4.2. Правила приемки - по ГОСТ 8179 и ОСТ14-8-216.
(Измененная редакция, Изм. №5).
4.3. (Исключен, Изм. № 3).
5.1. Химический состав изделий определяют по ГОСТ 2642.0 , ГОСТ 2642.3 , ГОСТ 2642.5 , ГОСТ 2642.7 .
Допускаетсяхимический состав изделий определять другими методами, утвержденными в установленномпорядке, обеспечивающими требуемую точность определения.
(Измененная редакция, Изм. №3).
5.2. Огнеупорность определяют по ГОСТ 4069 .
5.3. Открытую пористость изделий номеров 1 - 29, 31,32, 35, 38 - 42 определяют по ГОСТ 2409 или по ГОСТ 25714 ,остальных номеров изделий - по ГОСТ 2409 .
5.4. Температуру начала размягчения определяют по ГОСТ 4070 .
5.5. Плотность изделий номеров 1 - 29, 31, 32, 35, 38 -42 определяют по ГОСТ 2211 или по ГОСТ 25714 ,остальных номеров изделий - по ГОСТ 2211 .
5.6. Предел прочности при сжатии изделий номеров 1 -29, 31, 32, 35, 38 - 42 определяют по ГОСТ 4071 или по ГОСТ 25714 ,остальных номеров изделий - по ГОСТ 4071.1 или ГОСТ 4071.2 .
5.3 - 5.6. (Измененнаяредакция, Изм. № 4).
5.6а. Открытую пористость, плотность и предел прочностипри сжатии по ГОСТ 25714 определяют на удвоенном количестве образцов.
(Введендополнительно, Изм. № 4).
5.7. Размеры изделий определяют металлической линейкойпо ГОСТ 427 с ценойделения шкалы 1 мм или соответствующими шаблонами, гарантирующими заданнуюточность измерения.
Размерыпрямых изделий (длину, ширину) измеряют по двум параллельным граням -посередине каждой грани. Толщину изделий измеряют по четырем граням. Зарезультат измерений принимают среднее значение результатов всех измерений.Размеры изделий других конфигураций измеряют посередине каждой грани.
5.8. Кривизну изделий определяют на поверочной плите (ГОСТ 10905) илиаттестованной в установленном порядке металлической плите при помощищупа-шаблона шириной 10 мм и толщиной, превышающей на 0,1 мм установленнуюнорму кривизны. Щуп не должен входить в зазор между плитой и изделием.
Допускаетсякривизну крупногабаритных изделий определять поверочной линейкой (ГОСТ 8026)с помощью образцов просвета. Размер поверочной линейки должен перекрыватьразмеры контролируемых поверхностей изделий.
5.7, 5.8. (Измененная редакция, Изм. №6).
5.9. Глубину отбитости углов и ребер определяют по ГОСТ 15136 .
5.10. Ширину посечек и трещин определяют измерительнойлупой по ГОСТ 25706. Длинупосечек и трещин замеряют металлической линейкой с ценой деления шкалы 1 мм.
(Измененная редакция, Изм. №3).
5.11. Диаметр выплавок определяют по наибольшему размерувпадины металлической линейкой ( ГОСТ 427 ) с ценойделения шкалы 1 мм.
(Измененная редакция, Изм. №4).
6.1. (Исключен, Изм. № 6).
6.2. Маркировка, упаковка, транспортирование и хранениеизделий - по ГОСТ 24717 .
Транспортнаямаркировка - по ГОСТ 14192.
Упаковка- в пакеты по ГОСТ24717 (черт. 1),ящики типа I-1, I-2, по ГОСТ10198 и контейнеры изготовителя и потребителя по нормативно-техническойдокументации, утвержденной в установленном порядке и разработанной всоответствии с ГОСТ19667.
Габаритныеразмеры пакета - по ГОСТ 24597.
Размерыящиков - по ГОСТ 21140.
Изделиятранспортируют в крытых железнодорожных вагонах, полувагонах и на платформах,водным или автомобильным транспортом в соответствии с правилами перевозкигрузов, действующими на транспорте данного вида.
Размещениеи крепление грузов в соответствии с техническими условиями погрузки и креплениягрузов, утвержденными МПС СССР.
(Измененная редакция, Изм. №3, 4).
Справочное
| Объем, см3 | Масса, кг | Номер изделия | Объем, см3 | Масса, кг | |
| 1 | 15000 | 28,5 | 22 | 11000 | 20,9 |
| 2 | 15000 | 28,5 | 23 | 16036 | 30,5 |
| 3 | 22500 | 42,8 | 24 | 16720 | 31,8 |
| 4 | 7500 | 14,3 | 25 | 13312 | 25,3 |
| 5 | 11400 | 21,7 | 26 | 14062 | 26,7 |
| 6 | 15000 | 28,5 | 27 | 20225 | 38,4 |
| 7 | 10000 | 19,0 | 28 | 21375 | 40,6 |
| 8 | 15200 | 28,9 | 29 | 21840 | 41,5 |
| 9 | 12500 | 23,8 | 30 | 32760 | 62,2 |
| 10 | 19000 | 36,1 | 31 | 16600 | 31,5 |
| 11 | 16500 | 31,4 | 32 | 24900 | 47,3 |
| 12 | 5625 | 10,7 | 33 | 35800 | 68,0 |
| 13 | 6562 | 12,5 | 34 | 35800 | 68,0 |
| 14 | 7800 | 14,8 | 35 | 5700 | 10,8 |
| 15 | 8550 | 16,2 | 36 | 34200 | 65,0 |
| 16 | 9975 | 19,0 | 37 | 31050 | 59,0 |
| 17 | 11856 | 22,5 | 38 | 8700 | 16,5 |
| 18 | 12255 | 23,3 | 39 | 9600 | 18,2 |
| 19 | 15600 | 29,6 | 40 | 11000 | 20,9 |
| 20 | 16125 | 30,6 | 41 | 6700 | 12,7 |
| 21 | 10550 | 20,0 | 42 | 6100 | 11,6 |
Примечание. При расчете массы изделий средняя кажущаясяплотность принята равной 1,90 г/см3
Обязательное
| Код ОКП | |
| ДСУ | 153711 |
| ДСО | 153712 |
| ДС | 153713 |
| ДСО1 | 153715 |
| ДС1 | 153716 |
| Д1 | 153714 |
ПРИЛОЖЕНИЕ 2. (Введено дополнительно, Изм. № 5).
ИНФОРМАЦИОННЫЕ ДАННЫЕ
1. РАЗРАБОТАН И ВНЕСЕНМинистерством металлургии СССР
РАЗРАБОТЧИКИ
А.П. Бакалкин, И.Ф.Усатиков, А.А. Елтышева
2. УТВЕРЖДЕН И ВВЕДЕН ВДЕЙСТВИЕ Постановлением Государственного комитета СССР по стандартам от29.12.75 № 4061
3. ВЗАМЕН ГОСТ 3910-41
4. ССЫЛОЧНЫЕНОРМАТИВНО-ТЕХНИЧЕСКИЕ ДОКУМЕНТЫ
| Номер пункта | |
| ГОСТ 12.1.005-88 | |
| ГОСТ 12.1.007-76 | |
| ГОСТ 12.2.032-78 | |
| ГОСТ 17.0.0.01-76 | |
| ГОСТ 427-75 | |
| ГОСТ 2211-65 | |
| ГОСТ 2409-95 | |
| ГОСТ 2642.0-86 | |
| ГОСТ 2642.3-86 | |
| ГОСТ 2642.5-86 | |
| ГОСТ 2642.7-86 | |
| ГОСТ 4069-69 | |
| ГОСТ 4070-83 | |
| ГОСТ 4071.1-94 | |
| ГОСТ 4071.2-94 | |
| ГОСТ 8026-92 | |
| ГОСТ 8179-85 | |
| ГОСТ 10198-91 | |
| ГОСТ 10905-86 | |
| ГОСТ 14192-96 | |
| ГОСТ 15136-78 | |
| ГОСТ 19667-74 | |
| ГОСТ 21140-88 | |
| ГОСТ 24597-81 | |
| ГОСТ 24717-94 | |
| ГОСТ 25706-83 | |
| ГОСТ 25714-83 |
5. Ограничение срока действияснято Постановлением Госстандарта СССР от 26.04.91 № 587
6. ПЕРЕИЗДАНИЕ (июнь 1998 г.) с Изменениями № 1, 2, 3, 4, 5, 6,утвержденными в сентябре 1977 г., марте 1981 г., ноябре 1983 г., июле 1986 г.,октябре 1988 г., апреле 1991 г.) (ИУС 11-77, 7-81, 2-84, 10-86, 1-89, 7-91)
СОДЕРЖАНИЕ
| 3а. Требования безопасности. 8 6. Маркировка, упаковка, транспортирование и хранение. 9 |