Стандарт устанавливает состав и правила оформления рабочих чертежей внутреннего электрического освещения помещений зданий и сооружений всех отраслей промышленности и народного хозяйства
| Обозначение: | ГОСТ 21.608-84 |
| Название рус.: | Система проектной документации для строительства. Внутреннее электрическое освещение. Рабочие чертежи |
| Статус: | заменен |
| Заменен: | ГОСТ 21.608-2014 «Система проектной документации для строительства. Правила выполнения рабочей документации внутреннего электрического освещения» |
| Дата актуализации текста: | 05.05.2017 |
| Дата добавления в базу: | 01.09.2013 |
| Дата введения в действие: | 01.07.2015 |
| Утвержден: | 14.03.1984 Государственный комитет СССР по делам строительства (23) |
| Опубликован: | Издательство стандартов (1984 г. ) ИПК Издательство стандартов (2002 г. ) |
| Ссылки для скачивания: |
ГОСТ 21.608-84
МЕЖГОСУДАРСТВЕННЫЙ СТАНДАРТ
СИСТЕМА
ПРОЕКТНОЙ ДОКУМЕНТАЦИИ
ДЛЯ СТРОИТЕЛЬСТВА
ВНУТРЕННЕЕ
ЭЛЕКТРИЧЕСКОЕ
ОСВЕЩЕНИЕ
РАБОЧИЕ ЧЕРТЕЖИ
ИПК ИЗДАТЕЛЬСТВО СТАНДАРТОВ
Москва
МЕЖГОСУДАРСТВЕННЫЙ СТАНДАРТ
|
Система проектной документации для строительства ВНУТРЕННЕЕ ЭЛЕКТРИЧЕСКОЕ ОСВЕЩЕНИЕ Рабочие чертежи System
of building design documents. Interior electric lighting. |
ГОСТ |
Дата введения 01.01.85
Настоящий стандарт устанавливает состав и правила оформления рабочих чертежей внутреннего электрического освещения помещений зданий и сооружений всех отраслей промышленности и народного хозяйства.
1.1. Рабочие чертежи внутреннего электрического освещения помещений зданий и сооружений выполняют в соответствии с требованиями настоящего стандарта и других стандартов. Системы проектной документации для строительства (СПДС), а также норм проектирования электротехнических установок.
1.2. В состав рабочих чертежей внутреннего электрического освещения помещений зданий и сооружений включают:
- чертежи, предназначенные для производства электромонтажных работ (основной комплект рабочих чертежей марки ЭО);
- чертежи конструкций и деталей, предназначенных для установки электрического оборудования (при отсутствии типовых).
1.3. Основной комплект рабочих чертежей марки ЭО допускается объединять с основным комплектом рабочих чертежей силового электрического оборудования или с другими основными комплектами электротехнических рабочих чертежей. Объединенному основному комплекту рабочих чертежей присваивают одну марку.
2.1. В состав основного комплекта рабочих чертежей марки ЭО включают:
- общие данные по рабочим чертежам;
- планы расположения электрического оборудования и прокладки электрических сетей (далее - планы расположения);
- принципиальные схемы питающей сети;
- принципиальные схемы дистанционного управления освещением;
- схемы подключения комплектных распределительных устройств на напряжение до 1000 В;
- кабельный журнал для питающей сети (при необходимости);
- чертежи установки электрического оборудования (при отсутствии типовых).
2.2. Рабочие чертежи внутреннего электрического освещения допускается оформлять отдельными документами с присвоением им базовой марки основного комплекта и добавлением через точку порядкового номера документа, обозначаемого арабскими цифрами, например общие данные по рабочим чертежам (ЭО1.1), принципиальная схема питающей сети (ЭО1.2).
2.3. Общие данные по рабочим чертежам выполняют по ГОСТ 21.101 с учетом следующих дополнительных требований:
- ведомость спецификаций не составляют;
- в общих указаниях в дополнение к сведениям, предусмотренным в ГОСТ 21.101, указывают итоговые данные: полезную площадь освещаемых помещений, установленную мощность освещения, количество светильников. Для жилых домов итоговые данные не приводят.
2.4. Планы расположения
2.4.1. Планы расположения выполняют по ГОСТ 2.702 (без перечня элементов) с учетом требований настоящего стандарта.
2.4.2. В качестве подосновы для планов расположения, как правило, следует принимать планы помещений, выполненные в основных комплектах рабочих чертежей других марок. Масштаб этих планов должен обеспечивать четкое графическое изображение электрических сетей и электрического оборудования.
2.4.3. На планах расположения наносят и указывают:
- строительные конструкции и технологическое оборудование в виде упрощенных контурных очертаний сплошными тонкими линиями;
- наименования помещений (при необходимости), кроме помещений жилых домов. Допускается наименования помещений приводить в экспликации помещений по форме 1 в соответствии с нумерацией и наименованием, указанным в основных комплектах рабочих чертежей марок АР и АС;
Форма 1
Экспликация помещений

- классы взрывоопасных и пожароопасных зон, категорию и группу взрывоопасных смесей для взрывоопасных зон по Правилам устройства электроустановок*;
- нормируемую освещенность от общего освещения (за исключением жилых помещений)*;
- светильники (в жилых домах - места их установки), их количество (при необходимости) типы*;
- количество и мощность ламп в светильниках*;
- высоту установки светильников (кроме потолочных)*;
- привязочные размеры для светильников или рядов светильников к элементам строительных конструкций или координационным осям здания (сооружения). Привязочные размеры допускается не проставлять, если места установки светильников ясны без указания привязочных размеров или если привязочные размеры приведены на чертежах интерьеров. В этом случае должна быть дана ссылка на соответствующие чертежи;
- комплектные распределительные устройства на напряжение до 1000 В, относящиеся к питающей сети (распределительные щиты, щиты станций управления, распределительные пункты, ящики и шкафы управления, вводно-распределительные устройства) и их обозначения;
- групповые щитки и их обозначения;
- понижающие трансформаторы;
- выключатели, штепсельные розетки (в жилых домах - включая розетки для электроплит и других бытовых электроприемников);
- линии питающей, групповой сети и сети управления освещением (в жилых домах - включая линии для электроплит и других бытовых электроприемников), их обозначения, сечение и, при необходимости, марку и способ прокладки*;
- другое электрическое оборудование, относящееся к внутреннему освещению.
___________
* Порядок записи условных обозначении указанных данных приведен в приложении 1.
2.4.4. При большом числе линий питающей сети, групповой сети и сети управления освещением указанные сети и относящееся к ним электрическое оборудование допускается изображать на отдельных листах и в разных масштабах.
2.4.5. Электрическое оборудование и проводки на планах расположения указывают условными графическими изображениями по ГОСТ 21.614 и дополнительными условными графическими изображениями, приведенными в приложении 2.
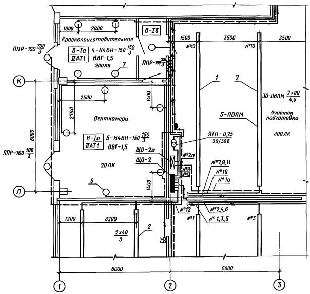
Пример оформления плана расположения для производственного здания приведен на черт. 1, для общественного здания - на черт 2.
Черт. 1
Черт. 2
2.4.6. На листах, где помещены планы расположения, приводят ведомость узлов установки электрического оборудования по форме 2.
В графах ведомости указывают:
- в графе «Поз.» - позицию узла по плану расположения;
- в графе «Обозначение» - обозначение документа на узел установки электрического оборудования;
- в графе «Наименование» - наименование узла установки с указанием типа электрического оборудования;
- в графе «Кол.» - количество узлов установки по плану расположения;
- в графе «Примечание» - дополнительные сведения.
Пример заполнения ведомости узлов установки электрического оборудования на плане расположения приведен в приложении 3.
Форма 2
Ведомость узлов установки электрического оборудования на плане расположения

2.4.7. На листах планов расположения приводят данные о групповых щитках по формам 3а и 3б, а также комплектных конденсаторных установках (при необходимости) по форме 4.
Для жилых домов таблицы групповых щитков не составляют.
Форма 3а
Данные о групповых щитках с автоматическими выключателями

Форма 3б
Данные о групповых щитках с предохранителями

Форма 4
Данные о комплектных конденсаторных установках

2.4.8. При наличии в здании одинаковых по размеру помещений (участков помещений) с одинаковыми техническими решениями освещения электрическое оборудование, электрические сети и другие элементы на планах расположения допускается изображать не для всех, а для части помещений. Допускается также приводить фрагменты планов расположения для отдельных типовых помещений.
2.5. Принципиальные схемы питающей сети
Боковик принципиальной схемы питающей сети выполняют по форме 5.
Пример оформления принципиальной схемы питающей сети приведен в приложении 4.
2.5.2. Принципиальные схемы питающей сети допускается выполнять с учетом расположения электрического оборудования по частям и этажам здания.
Пример оформления принципиальной схемы питающей сети многоэтажного здания приведен в приложении 5. Поясняющие надписи на схеме приводят в соответствии с приложением 6.
2.5.3. Принципиальные схемы питающей сети жилых домов допускается разбивать на отдельные схемы, например схему вводно-распределительного устройства, схему линий питающей сети. При этом на схеме линий питающей сети допускается изображать щитки и другие аппараты не для всех этажей, а только для одного типового этажа, а также не изображать коммутационные аппараты на этажных и квартирных щитках, а расчетные данные указывать в табличной форме.
2.5.4. Допускается не выполнять принципиальные схемы питающей сети при количестве групповых щитков не более четырех и при условии, что все сведения о питающей сети по п. 2.5.1 (форма 5), приведены на плане расположения.
2.6. Принципиальные схемы дистанционного управления освещением и схемы подключения комплектных распределительных устройств на напряжение до 1000 В выполняют с учетом требований стандартов ЕСКД на правила выполнения электротехнических схем.
Указанные схемы допускается включать в состав рабочих чертежей основных комплектов других электротехнических марок.
2.7. Кабельный журнал для питающей сети
2.7.1. Кабельный журнал для питающей сети выполняют по форме 6.
2.7.2. Кабельный журнал для питающей сети допускается не выполнять, если все данные, содержащиеся в кабельном журнале, указаны на принципиальной схеме питающей сети.
Форма 5

Форма 6
Кабельный журнал для питающей сети

Рекомендуемое
|
Наименование |
Обозначение |
|
1. Нормируемая освещенность от общего освещения |
|
|
2. Обозначение классов взрыво- и пожароопасных зон по Правилам устройства электроустановок (ПУЭ): |
|
|
а) класс взрывоопасной зоны категория и группа взрывоопасной смеси |
|
|
б) класс взрывоопасной зоны |
|
|
в) класс пожароопасной зоны |
|
|
3. Сведения о светильниках: |
|
|
а) количество - тип, |
|
|
б) количество - тип светильников в линии |
|
|
Примечание. Допускается не указывать: количество светильников при небольшом их числе в помещении; количество ламп для одноламповых светильников; высоту установки для потолочных светильников. |
|
|
4. Соответствие выключателей с управляемыми ими светильниками |
|
|
5. Номер и цифры у светильников и штепсельных розеток, указывающие номера групп, к которым присоединяют светильники, линии светильников или штепсельные розетки |
|
|
6. Количество проводов в линии (например, три). Примечание. На двухпроводных линиях черточки не показывают. |
|
|
7. Разделительное уплотнение на трубах во взрывоопасных зонах |
|
|
8. Трос и концевое крепление троса |
|
|
9. Обозначение способов прокладки, марок проводников и сечений групповой сети в помещении: |
|
|
а - марка проводников; б - сечение, мм2; в - способ прокладки |
а - б - в |
|
10. Надписи на линиях питающей сети: |
|
|
а - номер линии; б - марка, количество и сечение проводников; в - способ прокладки |
а-б-в |
|
11. Надписи на линиях групповой сети: |
|
|
а - номера групп; б - марка, количество и сечение проводников; в - способ прокладки |
а - б - в |
|
Примечание к пп. 9 - 11. На отдельных участках линий допускается указывать не все, а только необходимые данные. |
|
_____________
*Приведен пример обозначения.
Обязательное
Таблица 1
|
Изображение |
|
|
1. Светильники: |
|
|
а) светильники с люминесцентными лампами, установленные в линию |
|
|
б) щелевой светильник-световод Примечание. Залитый торец обозначает вводное устройство с источником света |
|
|
в) люстра |
|
|
2. Патроны: |
|
|
а) стенной |
|
|
б) подвесной |
|
|
в) потолочный |
|
|
3. Звонок |
|
|
4. Автоматический выключатель |
|
|
5. Шкаф, ящик управления |
|
|
6. Пускатель магнитный |
|
|
7. Кнопка управления |
|
|
8. Трансформатор понижающий малой мощности |
|
|
9. Выключатель для открытой установки степени защиты IP20 ÷ IP23: |
|
|
а) однополюсный |
|
|
б) однополюсный сдвоенный |
|
|
в) однополюсный строенный |
|
|
г) двухполюсный |
|
|
д) трехполюсный |
|
|
10. Выключатель для скрытой установки степени защиты IP20 ÷ IP23: |
|
|
а) однополюсный |
|
|
б) однополюсный сдвоенный |
|
|
в) однополюсный строенный |
|
|
г) двухполюсный |
|
|
11. Выключатель для открытой установки степени защиты IP44 ÷ IP55: |
|
|
а) однополюсный |
|
|
б) двухполюсный |
|
|
в) трехполюсный |
|
|
12. Переключатель на два направления степени защиты IP20 ÷ IP23: |
|
|
а) однополюсный |
|
|
б) двухполюсный |
|
|
в) трехполюсный |
|
|
13. Переключатель на два направления степени защиты IP44 ÷ IP55: |
|
|
а) однополюсный |
|
|
б) двухполюсный |
|
|
в) трехполюсный |
|
|
14. Розетка штепсельная для открытой установки степени защиты IP20 ÷ IP23: |
|
|
а) двухполюсная |
|
|
б) двухполюсная сдвоенная |
|
|
в) двухполюсная с защитным контактом |
|
|
г) трехполюсная с защитным контактом |
|
|
15. Розетка штепсельная для скрытой установки степени защиты IP20 ÷ IP23: |
|
|
а) двухполюсная |
|
|
б) двухполюсная сдвоенная |
|
|
в) двухполюсная с защитным контактом |
|
|
г) трехполюсная с защитным контактом |
|
|
16. Розетка штепсельная степени защиты IP44 ÷ IP55: |
|
|
а) двухполюсная |
|
|
б) двухполюсная с защитным контактом |
|
|
в) трехполюсная с защитным контактом |
|
|
17. Блоки с выключателями и двухполюсной штепсельной розеткой для открытой установки степени защиты IP20 ÷ IP23: |
|
|
а) один выключатель и штепсельная розетка |
|
|
б) два выключателя и штепсельная розетка |
|
|
в) три выключателя и штепсельная розетка |
|
|
18. Блоки с выключателями и двухполюсной штепсельной розеткой для крытой установки степени защиты IP20 ÷ IP23: |
|
|
а) один выключатель и штепсельная розетка |
|
|
б) два выключателя и штепсельная розетка |
|
|
в) три выключателя и штепсельная розетка |
|
Рекомендуемые размеры условных графических изображений
Таблица 2
|
Номер изображения по табл. 1 |
Изображение графическое |
Обозначение размера |
Размеры, мм, для масштабов чертежей |
||
|
1:50 |
2:100 |
1:200 |
|||
|
1 |
|
Æ |
6 |
5 |
3,5 |
|
|
|
а |
4 |
2,5 |
2 |
|
|
|
b |
4 |
2,5 |
2 |
|
2 |
|
а |
4 |
3 |
2 |
|
|
|
Æ |
3 |
2,5 |
2 |
|
3 |
|
Æ |
5 |
3,5 |
2,5 |
|
4 - 7 |
|
а |
4 |
3 |
2,5 |
|
8 |
|
Æ |
4 |
3 |
2,5 |
|
9 - 18 |
|
Æ |
2,5 |
2 |
1,5 |
|
|
|
Æ |
6 |
5 |
3,5 |
Примечание. Для чертежей в масштабе меньше 1:200 размеры условных графических изображений не регламентируют.
Справочное

Справочное

Справочное

Рекомендуемое
1. У комплектных распределительных устройств на напряжение до 1000 В:
Руст - установленная мощность, кВт;
Ррасч - расчетная нагрузка, кВт.
2. У групповых щитков:
![]()
где А - номер по плану расположения;
DU - потеря напряжения до щитка, %.
3. На линиях питающей сети с расчетными данными (указывают конкретные величины):

где а - маркировка линии;
Iрасч - расчетный ток, А;
l - длина участка питающей сети, м;
q - марка проводника; сечение, мм2;
s - способ прокладки.
4. На линиях питающей сети без расчетных данных:
l - q - s.
ИНФОРМАЦИОННЫЕ ДАННЫЕ
1. РАЗРАБОТАН Ордена Трудового Красного Знамени Всесоюзным научно-исследовательским и проектным институтом по комплексной электрификации промышленных объектов - ВНИПИ «Тяжпромэлектропроект» им. Ф.Б. Якубовского Минмонтажспецстроя СССР
ВНЕСЕН Министерством монтажных и специальных строительных работ СССР
2. УТВЕРЖДЕН И ВВЕДЕН В ДЕЙСТВИЕ Постановлением Государственного комитета СССР по делам строительства от 14.03.84 № 23
3. ВВЕДЕН ВПЕРВЫЕ
4. ССЫЛОЧНЫЕ НОРМАТИВНО-ТЕХНИЧЕСКИЕ ДОКУМЕНТЫ
|
Обозначение НТД, на который дана ссылка |
Номер пункта, приложения |
|
ГОСТ 2.702-75 |
|
|
ГОСТ 21.101-97 |
|
|
ГОСТ 21.613-88 |
|
|
ГОСТ 21.614-88 |
|
|
ГОСТ 7397.0-89 |
Приложение 2 |
|
ГОСТ 14254-96 |
» |
5. ПЕРЕИЗДАНИЕ. Октябрь 2002 г.
СОДЕРЖАНИЕ