Стандарт устанавливает состав и правила оформления рабочих чертежей и сигнализации для предприятий, зданий и сооружений всех отраслей промышленности и народного хозяйства.
| Обозначение: | ГОСТ 21.603-80 |
| Название рус.: | Система проектной документации для строительства. Связь и сигнализация. Рабочие чертежи |
| Статус: | отменен в рф |
| Дата актуализации текста: | 05.05.2017 |
| Дата добавления в базу: | 01.09.2013 |
| Дата введения в действие: | 01.11.2000 |
| Утвержден: | 31.10.1980 Государственный комитет Совета Министров СССР по делам строительства (172) |
| Опубликован: | Издательство стандартов (1981 г. ) |
| Ссылки для скачивания: |

ГОСУДАРСТВЕННЫЙ СТАНДАРТ
СОЮЗА ССР
СИСТЕМА ПРОЕКТНОЙ ДОКУМЕНТАЦИИ ДЛЯ
СТРОИТЕЛЬСТВА
СВЯЗЬ И СИГНАЛИЗАЦИЯ
РАБОЧИЕ ЧЕРТЕЖИ
ГОСТ 21.603-80
ГОСУДАРСТВЕННЫЙ КОМИТЕТ СССР
ПО ДЕЛАМ СТРОИТЕЛЬСТВА
Москва
1981
РАЗРАБОТАН Министерством промышленности средств связи
ИСПОЛНИТЕЛИ
В.В Зелионко (руководитель темы); Р.Ю. Гуревич; Л.Е. Курзакова; Н.Ф. Маркова
ВНЕСЕН Министерством промышленности средств связи
Зам. министра Г.И. Васильев
УТВЕРЖДЕН И ВВЕДЕН В ДЕЙСТВИЕ Постановлением Государственного комитета СССР по делам строительства от 31 октября 1980 г. № 172
ГОСУДАРСТВЕННЫЙ СТАНДАРТ СОЮЗА ССР
|
Система проектной документации для строительства СВЯЗЬ И СИГНАЛИЗАЦИЯ Рабочие чертежи System
of building design documents. Commynication and signalling. |
ГОСТ |
Постановлением Государственного комитета СССР по делам строительства от 31 октября 1980 г. № 172 срок введения установлен
с 01.07.1981 г.
Несоблюдение стандарта преследуется по закону
Настоящий стандарт устанавливает состав и правила оформления рабочих чертежей и сигнализации для предприятий, зданий и сооружений всех отраслей промышленности и народного хозяйства.
1.1. Рабочие чертежи связи и сигнализации выполняют в соответствии с требованиями настоящего стандарта и других стандартов системы проектной документации для строительства.
1.2. В состав рабочих чертежей связи и сигнализации входят:
рабочие чертежи, предназначенные для производства монтажных работ (основной комплект рабочих чертежей марки СС);
чертежи общих видов нестандартных (нетиповых) конструкций;
ведомость потребности в материалах.
1.3. В состав основного комплекта рабочих чертежей марки СС включают:
общие данные по рабочим чертежам;
спецификацию;
схемы систем связи и сигнализации (далее именуются системами);
планы систем.
1.4. Основной комплект рабочих чертежей марки СС допускается расчленять на части по признакам, установленным ГОСТ 21.101-79, и по следующим дополнительным признакам:
по видам связи и сигнализации;
по составным частям систем связи и сигнализации (например: станционная часть, линейная часть, наружные и внутренние сети);
по зданиям и сооружениям.
В этом случае в обозначение основных комплектов рабочих чертежей к марке СС следует добавлять порядковый номер, например, СС1, СС2.
1.5. Графические изображения оборудования, устройств, кабелей, проводов и других элементов систем на схемах и планах выполняют в соответствии с ГОСТ 2.701-76.
На схемах и планах систем, включающих изображения нескольких одинаковых элементов (например: расположение сетей в помещениях, подключение проводов, аналогичная установка оборудования), допускается выполнять полное изображение одного элемента, а остальное - упрощено со ссылкой на полное изображение.
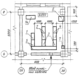
Пример выполнения схемы расположения с повторяющимися элементами сети приведен на черт. 1.
2.1. В общих указаниях, которые входят в состав общих данных по рабочим чертежам марки СС, в дополнение к сведениям, предусмотренным ГОСТ 21.102-79, приводят:
схемы, разъясняющие основные принципы организации связи и сигнализации на объекте (при необходимости);
особые требования к системам (например: обеспечение взрывобезопасности, кислотостойкости);
требования к монтажу систем.
3.1. Спецификацию выполняют по форме 1, приведенной на черт. 2.
3.2. Спецификация состоит из разделов, наименование которых определяется видами связи и сигнализации.
Наименование каждого раздела указывают в виде заголовка в графе «Наименование» и подчеркивают.
3.3. Запись элементов в каждом разделе производят в следующей последовательности:
станционное оборудование;
линейное оборудование;
абонентские устройства;
установочные изделия и разъемы;
кабели и провода.
Схема расположения сетей по осям 10 и 15 аналогична расположению сети, показанной по оси 5.
Черт. 1
Конструкция и монтажные изделия, а также материалы записывают отдельными разделами после разделов по видам связи.
В спецификацию не включают вспомогательные монтажные изделия и материалы.
3.4. В графах спецификации указывают:
в графе «Марка, поз.» - условные марки или позиции элементов, принятые в рабочих чертежах связи и сигнализации;
в графе «Обозначение» - обозначения основных документов или технических условий на записываемые в спецификацию элементы (допускается, при необходимости, указывать наименование завода - изготовителя этих элементов);
в графе «Наименование» - наименования и обозначения элементов в соответствии с основной надписью на основных документах или принятые в стандартах на эти элементы;
в графе «Кол.» - количество элементов по рабочим чертежам связи и сигнализации;
в графе «Примечание» - дополнительные сведения, относящиеся к записанным в спецификацию элементам.
Черт. 2
4.1. Общие требования
4.1.1. Схемы систем выполняют в соответствии с требованиями ГОСТ 2.701-76, ГОСТ 2.702-75 и настоящего стандарта.
4.1.2. В зависимости от видов связи и сигнализации в составе основного комплекта рабочих чертежей марки СС разрабатывают:
схемы функциональные сетей телефонной связи;
схемы или таблицы (монтажные) соединений;
схемы расположения сетей;
схемы расположения телефонной канализации;
схемы расположения устройств.
4.1.3. Допускается на схемах применять буквенные или буквенно-цифровые обозначения кабелей и проводов для определения их функциональной принадлежности к виду связи.
4.2. Схемы функциональные сетей телефонной связи
4.2.1. Схемы функциональные разрабатывают на станционную часть телефонной сети.
На схеме изображают:
ступени искания автоматической телефонной станции;
съемные приборы устанавливаемых стативов с указанием их количества;
выходы на другие станции и коммутаторные установки с указанием количества межстанционных соединительных линий в каждом направлении.
Для координатных станций на схеме приводят таблицы направлений, включаемых в поля группового искания (черт. 3 и 4).
|
Номер реле направления |
Наименование направления |
Количество соединительных линий |
Код |
||
|
Исх. |
Вх. |
||||
|
1 |
H1, Н11 |
Стативы II ГИ |
|
|
2 |
|
2 |
H3 |
ГАТС |
10 |
15 + 9 |
9 |
|
3 |
Н13 |
Специальные |
2 |
|
02 |
|
4 |
Н4 |
службы |
2 |
|
03 |
|
5 - 12 |
Н4 - Н20 |
Резерв, Д-10 |
- |
- |
- |
|
|
|
|
|
|
|
Черт. 3
|
Номер реле направления |
Наименование направления |
Номер статива II ГИ |
Нумерация |
|
|
1 - 10 |
H1 - H20 |
Стативы АИ 1 - 10 |
1 - 4 |
2000 - 2999 |
|
|
|
|
|
|
Черт. 4
4.3. Схемы или таблицы (монтажные) соединений
4.3.1. Схемы или таблицы соединений разрабатывают на станционную часть систем.
4.3.2. В схемах или таблицах соединений допускается приводить сведения о трассах и способах прокладки кабелей.
4.3.3. При разработке коммутационных соединений оборудования в дополнение к схемам или таблицам соединений допускается разрабатывать схемы пли таблицы подключений.
4.4. Схемы расположения сетей
4.4.1. Схемы расположения сетей разрабатывают на линейную часть системы.
4.4.2. На схеме расположения сетей указывают:
оборудование, его тип;
кабели и провода, их марки и длины в метрах, муфты кабельные;
таблицы занятости кабелей;
номера или наименования зданий (сооружений) по генеральному плану.
Оборудованию на схемах расположения допускается присваивать буквенно-цифровые обозначения.
4.4.3. Схему расположения телефонной сети допускается разделять на схему расположения магистральной сети и схему расположения распределительной сети.
4.4.4. На схеме расположения магистральной сети указывают линейную часть кросса телефонной станции, телефонные распределительные шкафы, магистральные кабели, кабели передач между шкафами и кабели прямого распределения (черт. 5.)
К схеме выполняют таблицы занятости кабелей, в которых указывают:
количество абонентских устройств по видам связи;
количество занятых пар;
принятую емкость кабеля на данном участке в парах;
процент запаса емкости кабеля.
4.4.5. Схему расположения распределительной сети разрабатывают на каждый шкафной район, здание или сооружение.
4.4.6. На схеме расположения распределительной сети шкафного района (черт. 6) приводят сведения в соответствии с п. 4.4.2.
В таблице указывают данные о распределении и занятости боксов в шкафу (например, расположение и нумерацию магистральных, распределительных боксов и адрес прокладки кабеля).
4.4.7. Распределительные сети на схемах расположения указывают от распределительных шкафов или ввода в здание (сооружение) до оконечных распределительных устройств (черт. 7).
Черт. 5
Черт. 6
Схему расположения распределительной сети выполняют с учетом размещения абонентов в здании или сооружении.
Допускается у распределительных устройств указывать их позиционное обозначение и количество занятых пар.
При скрытой прокладке сетей на схеме расположения допускается показывать абонентские линии и абонентские устройства, их количество и места установки.
4.4.8. На схеме расположения воздушной линии связи указывают:
профиль и высоту опор, длины пролетов между ними;
место подвески проектируемых и существующих проводов;
марки проводов и тип системы уплотнения.
4.5. Схема расположения телефонной канализации
4.5.1. На схеме расположения телефонной канализации указывают:
контуры зданий или сооружений с учетом их взаимного расположения в соответствии с генеральным планом;
номер или наименование зданий или сооружений;
телефонную канализацию, смотровые устройства, расстояния между ними и количество каналов.
При реконструкции на схеме указывают:
количество докладываемых каналов;
тип переоборудуемых смотровых устройств;
сечения телефонной канализации с указанием расположения кабелей в существующих и докладываемых каналах.
Черт. 7
4.6. Схемы расположения устройств
4.6.1. Схемы расположения устройств разрабатывают на станционную и линейную части сетей телефонной связи, охранной и пожарной сигнализации.
4.6.2. На схемах расположения устройств автоматической телефонной связи указывают:
коммутационные рамки на кроссе, щите переключений с указанием наименования или номера рамок, плат и других устройств;
распределение шнуровых комплектов, реле соединительных линий по стативам и включение их на входы статива регистрового искания.
4.6.3. На схемах расположения устройств пожарной и охранной сигнализации указывают сигнализаторы, датчики и другие устройства, кабели, провода и их марки.
5.1 Общие требования
5.1.1. В зависимости от видов связи и сигнализации в составе основного комплекта рабочих чертежей марки СС разрабатывают:
планы расположения оборудования;
планы расположения конструкций для установки оборудования, прокладки и крепления кабелей;
планы расположения сетей;
планы расположения антенных устройств;
планы расположения контуров заземления;
планы расположения трасс телефонной канализации и подземных кабелей;
планы расположения трасс воздушных линий связи.
5.1.2. Планы расположения оборудования, конструкций и сетей выполняют в масштабе 1:100 или 1:200; фрагменты планов - в масштабе 1:50 или 1:100; узлы - в масштабе 1:10, 1:20 или 1:50; узлы при детальном изображении в масштабе 1:2 или 1:5. При небольших зданиях, когда выполнение фрагментов нецелесообразно, для планов принимают масштаб 1:50.
Планы расположения трасс телефонной канализации, воздушных линий связи, участков трасс радиорелейной связи выполняют в масштабе генерального плана с использованием его в качестве подосновы.
5.1.3. Оборудованию, абонентским устройствам, установочным изделиям и конструкциям, изображаемым на планах расположения, допускается присваивать цифровые позиционные обозначения.
Номера позиций наносят на чертеже, как правило, один раз.
На планах указывают марку или номер по схеме соединений кабелей и проводов над их изображением или на полках линий-выносок.
5.1.4. На планах расположения оборудования, конструкций и сетей указывают:
координационные оси здания или сооружения и расстояния между ними (для жилых зданий - расстояния между осями секций);
стены, перегородки, полы, проемы и отверстия в них, подпольные каналы и другие строительные конструкции, предусмотренные для установки оборудования и прокладки кабельных трасс;
отметки чистых полов этажей и основных площадок.
5.1.5. Планы расположения оборудования и сетей при открытой прокладке кабелей рекомендуется совмещать с планом расположения конструкций.
5.2. Планы расположения оборудования
5.2.1. Планы расположения оборудования разрабатывают в составе основных комплектов рабочих чертежей станционных и линейных частей систем связи и сигнализации.
5.2.2. На планах расположения оборудования (черт. 8), кроме элементов, перечисленных в п. 5.1.4, указывают:
оборудование;
расстояния от составных частей оборудования до строительных конструкций помещения или сооружения, с нанесением установочных размеров;
размеры эксплуатационных проходов;
сведения об используемом и демонтируемом оборудовании.
Допускается указывать шифры или наименование оборудования в их изображении или рядом.
1. Поз. 6 и 7 закрепить на стене, отметка низа приборов +1,300 от уровня чистого пола помещения.
2. Общие технические требования к монтажу см. ... (номер чертежа).
Черт. 8
5.3. Планы расположения конструкций для установки оборудования, прокладки и крепления кабелей
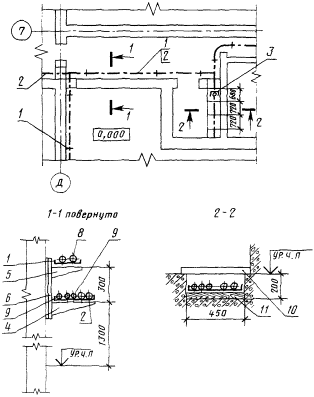
5.3.1. Планы расположения конструкций (черт. 9) разрабатывают в составе основных комплектов рабочих чертежей станционных и линейных частей систем связи и сигнализации.
1. Поз. 4, 5 и 6 приварить к контуру сопрягаемых поверхностей, катет шва 5 мм.
2. В местах прокладки труб через стены предусмотреть проемы 500×500 мм, низ на отметке +1,500 от уровня чистого пола помещения.
Черт. 9
5.3.2. На планах расположения конструкций, кроме элементов, перечисленных в п. 5.1.4, указывают:
стойки, рамы, трубопроводы, лотки, полки и другие конструкции с установочными размерами и привязками;
сведения об используемых и демонтируемых конструкциях.
Допускается на основных направлениях указывать сечения труб с проставлением количества кабелей.
5.4. Планы расположения сетей
5.4.1. Планы расположения сетей разрабатывают в составе основного комплекта рабочих чертежей линейной части систем связи и сигнализации (при необходимости).
5.4.2. На планах расположения сетей, кроме элементов, перечисленных в п. 5.1.4, указывают:
распределительные и абонентские устройства, кабели и провода, их типы, количество, марки и муфты кабельные;
способ прокладки кабелей и проводов (по стене, в полу, в стояке, лотках, трубах);
установочные размеры и привязки.
Сечения трасс допускается указывать в таблице с проставлением количества кабелей, порядка их размещения и способа прокладки.
Участки абонентских линий от оконечных распределительных устройств до абонентских допускается не указывать. В этом случае около абонентских устройств указывают номер распределительного устройства, в которое они включаются.
Пример выполнения плана расположения телефонной сети приведен на черт. 10.
5.5. Планы расположения антенных устройств
5.5.1. Планы расположения антенных устройств разрабатывают в составе основного комплекта рабочих чертежей линейной части систем связи.
5.5.2. На планах расположения антенных устройств указывают:
антенную опору с указанием установочных размеров и привязок;
ввод антенного фидера, способ его прокладки, установочные размеры и привязки.
5.6. Планы расположения контуров заземления
5.6.1. Планы расположения контуров заземления разрабатывают в составе основных комплектов рабочих чертежей станционных и линейных частей систем связи и сигнализации.
5.6.2. На планах расположения внешних контуров заземления указывают:
здания, в которых размещено станционное оборудование, ввод заземления в здание, его установочные размеры и привязки;
Распределительные кабели проложить в полу, телефонные коробки установить на высоте 1,5 м от пола в шкафах, телефонные розетки установить в нишах; абонентские линии проложить в плинтусе.
Черт. 10
расположение электродов заземления, расстояния между ними, соединения между электродами;
назначение заземлений.
План расположения контуров заземления выполняют в масштабе генерального плана с использованием его в качестве подосновы.
5.6.3. На планах расположения внутренних контуров заземления, кроме элементов, приведенных в п. 5.1.4, указывают расположение шин и щитков заземления.
План расположения внутренних контуров заземления допускается совмещать с планом расположения оборудования или конструкций.
5.7. Планы расположения трасс телефонной канализации и подземных кабелей
5.7.1. Планы расположения трасс телефонной канализации и подземных кабелей разрабатывают в составе основного комплекта рабочих чертежей линейной части систем связи.
5.7.2. На планах указывают:
телефонную канализацию;
смотровые устройства, их тип, номер, количество каналов;
установочные размеры вводов, всех угловых, разветвительных смотровых устройств и расстояния между ними.
5.7.3. При проектировании новой телефонной канализации на особо сложных участках строительства (например, сложный рельеф, сложные пересечения с инженерными сооружениями) разрабатывают продольный профиль по оси трассы. Для остальных участков на пересечении с подземными коммуникациями, при докладке новых каналов при реконструкции указывают поперечные разрезы трассы.
На продольном профиле указывают:
поверхность земли (проектную и натурную);
пересекаемые автомобильные дороги и железнодорожные пути;
кюветы, каналы, колонны эстакад воздушной прокладки;
прилегающие и пересекаемые наземные инженерные сооружения и коммуникации;
отметки уровней поверхности земли (проектные и натурные);
отметки верха и низа блока труб, дна телефонных колодцев;
расстояния между колодцами, номера колодцев, уклон и количество прокладываемых каналов.
Цифровые данные (отметки, уклон, длины участков) приводят в таблице, размещаемой под изображением профиля.
Отметки указывают в узлах ответвлений трубопровода, в точках изменения уклона, углах поворота трасс.
5.8. Планы расположения трасс воздушных линий связи
5.8.1. Планы расположения трасс воздушных линий связи разрабатывают в составе основного комплекта рабочих чертежей линейной части систем связи.
5.8.2. На планах расположения трасс воздушных линий связи указывают:
профили воздушной линии;
привязочные размеры трассы к осям автомобильных или железных дорог;
привязочные размеры опор (указываются при наличии на трассе подземных коммуникаций).
6.1. Чертежи общих видов нестандартных (нетиповых) конструкций выполняют в объеме, необходимом для разработки конструкторской документации на стадии технического задания по ГОСТ 2.103-68.
6.2. Чертеж общего вида нестандартной (нетиповой) конструкции должен содержать:
изображения конструкции (виды, разрезы, сечения), текстовые указания и надписи, необходимые для понимания устройства конструкции;
наименования составных частей конструкции (при необходимости);
размеры и другие наносимые на изображении данные;
схему, если она требуется.
6.3. Изображения нестандартной (нетиповой) конструкции выполняют с максимальными упрощениями.
6.4. Наименования составных частей нестандартной (нетиповой) конструкции на чертеже общего вида указывают на полках линий-выносок.
6.5. В текстовых указаниях, помещаемых на чертеже общего вида нестандартной (нетиповой) конструкции, приводят исходные данные, необходимые для разработки технического задания (технические требования к разрабатываемой конструкции и применяемым материалам, данные о рабочей среде, нагрузки на конструкцию, требования к изготовлению, монтажу и окраске, особые требования к конструкции - взрывобезопасность, кислотостойкость и др.).
6.6. Чертежи общих видов нестандартных (нетиповых) конструкций выполняют в масштабе 1:5, 1:10, 1:20 или 1:50.
7.1. Ведомость потребности в материалах на системы связи и сигнализации выполняют по ГОСТ 21.109-80.
СОДЕРЖАНИЕ
|
2. Общие данные по рабочим чертежам.. 2 6. Чертежи общих видов нестандартных [нетиповых] конструкций. 12 |