Стандартустанавливает формы, размеры, номенклатуру реквизитов и порядок заполнения основной надписи и дополнительных граф к ней в конструкторских документах, предусмотренных стандартами Единой системы конструкторской документации.
| Обозначение: | ГОСТ 2.104-2006 |
| Название рус.: | Единая система конструкторской документации. Основные надписи |
| Статус: | действует |
| Заменяет собой: | ГОСТ 2.104-68 «Единая система конструкторской документации. Основные надписи» |
| Дата актуализации текста: | 05.05.2017 |
| Дата добавления в базу: | 01.09.2013 |
| Дата введения в действие: | 01.09.2006 |
| Утвержден: | 28.02.2006 Межгосударственный Совет по стандартизации, метрологии и сертификации (Inter-Governmental Council on Standardization, Metrology, and Certification 23)22.06.2006 Федеральное агентство по техническому регулированию и метрологии (118-ст) |
| Опубликован: | Стандартинформ (2006 г. ) Стандартинформ (2007 г. ) |
| Ссылки для скачивания: |
МЕЖГОСУДАРСТВЕННЫЙ СОВЕТ ПО СТАНДАРТИЗАЦИИ, МЕТРОЛОГИИ И
СЕРТИФИКАЦИИ
(МГС)
INTERSTATE COUNCIL FOR STANDARDIZATION, METROLOGY AND
CERTIFICATION
(ISC)
|
МЕЖГОСУДАРСТВЕННЫЙ |
ГОСТ |
Единая система конструкторской документации
ОСНОВНЫЕ НАДПИСИ
|
|
Москва Стандартинформ 2007 |
Цели, основные принципы и основной порядок проведения работ по межгосударственной стандартизации установлены ГОСТ 1.0-92 «Межгосударственная система стандартизации. Основные положения» и ГОСТ 1.2-97 «Межгосударственная система стандартизации. Стандарты межгосударственные, правила и рекомендации по межгосударственной стандартизации. Порядок разработки, принятия, применения, обновления, отмены»
Сведения о стандарте
1 РАЗРАБОТАН Федеральным государственным унитарным предприятием Всероссийским научно-исследовательским институтом стандартизации и сертификации в машиностроении (ВНИИНМАШ), Автономной некоммерческой организацией Научно-исследовательским центром CALS-технологий «Прикладная логистика» (АНО НИЦ CALS-технологий «Прикладная логистика»)
2 ВНЕСЕН Федеральным агентством по техническому регулированию и метрологии
3 ПРИНЯТ Межгосударственным советом по стандартизации, метрологии и сертификации (протокол № 23 от 28 февраля 2006 г.)
За принятие проголосовали:
|
Краткое
наименование страны |
Код страны |
Сокращенное
наименование национального органа |
|
Азербайджан |
AZ |
Азстандарт |
|
Армения |
AM |
Минторгэкономразвития |
|
Беларусь |
BY |
Госстандарт Республики Беларусь |
|
Казахстан |
KZ |
Госстандарт Республики Казахстан |
|
Кыргызстан |
KG |
Кыргызстандарт |
|
Молдова |
MD |
Молдова-Стандарт |
|
Российская Федерация |
RU |
Федеральное агентство по техническому регулированию и метрологии |
|
Таджикистан |
TJ |
Таджикстандарт |
|
Туркменистан |
TM |
Главгосслужба «Туркменстандартлары» |
|
Узбекистан |
UZ |
Узстандарт |
|
Украина |
UA |
Госпотребстандарт Украины |
4 Приказом Федерального агентства по техническому регулированию и метрологии от 22 июня 2006 г. № 118-ст межгосударственный стандарт ГОСТ 2.104-2006 введен в действие в качестве национального стандарта Российской Федерации с 1 сентября 2006 г.
5 ВЗАМЕН ГОСТ 2.104-68
6 ИЗДАНИЕ (август 2007 г.) с Поправкой (ИУС 4-2007)
Информация о введении в действие (прекращении действия) настоящего стандарта публикуется в указателе «Национальные стандарты».
Информация об изменениях к настоящему стандарту публикуется в указателе «Национальные стандарты», а текст изменений - в информационных указателях «Национальные стандарты». В случае пересмотра или отмены настоящего стандарта соответствующая информация будет опубликована в информационном указателе «Национальные стандарты»
СОДЕРЖАНИЕ
МЕЖГОСУДАРСТВЕННЫЙ СТАНДАРТ
Единая система конструкторской документации
ОСНОВНЫЕ НАДПИСИ
Unified
system for design documentation.
Basic inscriptions
Дата введения - 2006-09-01
Настоящий стандарт устанавливает формы, размеры, номенклатуру реквизитов и порядок заполнения основной надписи и дополнительных граф к ней в конструкторских документах, предусмотренных стандартами Единой системы конструкторской документации.
На основе настоящего стандарта допускается, при необходимости, разрабатывать стандарты, отражающие особенности указания реквизитов и атрибутов при оформлении конструкторских документов с учетом их специфики.
В настоящем стандарте использованы ссылки на следующие межгосударственные стандарты:
ГОСТ 2.053-2006 Единая система конструкторской документации. Электронная структура изделия. Общие положения
ГОСТ 2.102-68 Единая система конструкторской документации. Виды и комплектность конструкторских документов
ГОСТ 2.105-95 Единая система конструкторской документации. Общие требования к текстовым документам
ГОСТ 2.109-73 Единая система конструкторской документации. Основные требования к чертежам
ГОСТ 2.201-80 Единая система конструкторской документации. Обозначение изделий и конструкторских документов
ГОСТ 2.301-68 Единая система конструкторской документации. Форматы
ГОСТ 2.302-68 Единая система конструкторской документации. Масштабы
ГОСТ 2.303-68 Единая система конструкторской документации. Линии
ГОСТ 2.305-68 Единая система конструкторской документации. Изображения - виды, разрезы, сечения
ГОСТ 2.501-88 Единая система конструкторской документации. Правила учета и хранения
ГОСТ 2.502-68 Единая система конструкторской документации. Правила дублирования
ГОСТ 2.503-90 Единая система конструкторской документации. Правила внесения изменений
ГОСТ 2.601-2006 Единая система конструкторской документации. Эксплуатационные документы
ГОСТ 2.602-95 Единая система конструкторской документации. Ремонтные документы
ГОСТ 2.701-84 Единая система конструкторской документации. Схемы. Виды и типы. Общие требования к выполнению
Примечание - При пользовании настоящим стандартом целесообразно проверить действие ссылочных стандартов по указателю «Национальные стандарты» составленному по состоянию на 1 января текущего года, и по соответствующим информационным указателям, опубликованным в текущем году. Если ссылочный стандарт заменен (изменен), то при пользовании настоящим стандартом следует руководствоваться замененным (измененным) стандартом. Если ссылочный стандарт отменен без замены, то положение, в котором дана ссылка на него, применяется в части, не затрагивающей эту ссылку.
В настоящем стандарте применены следующие термины с соответствующими определениями:
3.1.1 реквизит документа: Элемент оформления документа, содержащий о нем сведения.
Примечание - Как правило, реквизит состоит из атрибутов (составной реквизит).
3.1.2 атрибут документа: Идентифицированная (именованная) характеристика части реквизита.
3.1.3 оформление документа: Проставление необходимых реквизитов и атрибутов, установленных правилами документирования.
3.1.4 подпись: Реквизит документа, представляющий собой собственноручную подпись полномочного должностного лица.
Примечание - Для электронных документов используется аналог собственноручной подписи - электронная цифровая подпись.
В настоящем стандарте приняты следующие сокращения:
ДЭ - электронный конструкторский документ,
ЭЦП - электронная цифровая подпись,
ЭСИ - электронная структура изделия,
ЭВМ - электронная вычислительная машина.
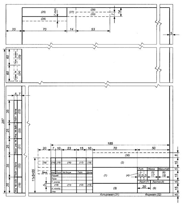
4.1 Номенклатура реквизитов и атрибутов основной надписи и дополнительных граф в конструкторских документах должна соответствовать указанной в таблице 1.
Таблица 1
4.2 Для целей управления документами в процессах документооборота допускается вводить дополнительные реквизиты, не отображаемые на документах в бумажной форме. Номенклатура таких реквизитов и правила выполнения устанавливаются нормативными документами организации. Для документации на изделия, разрабатываемые по заказу Министерства обороны, номенклатуру дополнительных реквизитов документов согласуют с заказчиком (представительством заказчика).
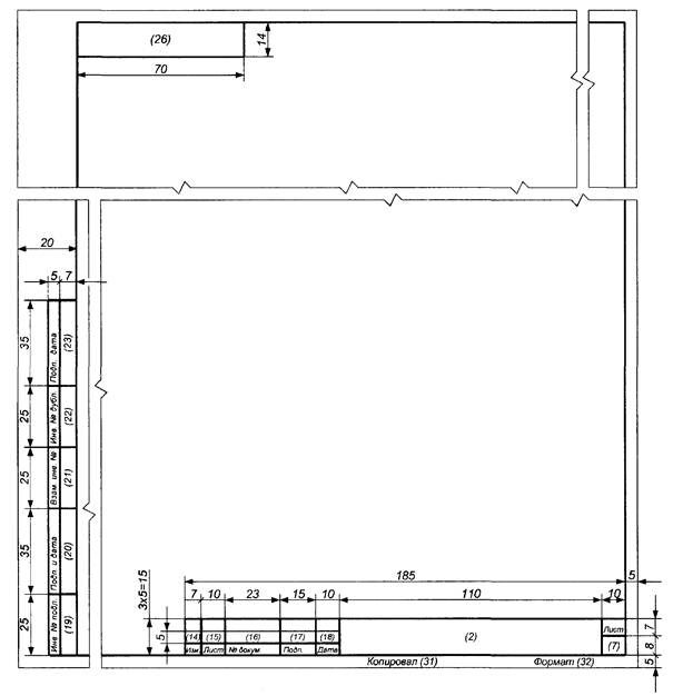
5.1 Содержание, расположение и размеры граф основной надписи, дополнительных граф к ней, а также размеры рамок на чертежах и схемах должны соответствовать форме 1, а в текстовых документах - формам 2, 2а и 2б.
Допускается для последующих листов чертежей и схем применять форму 2а.
5.2 Основная надпись, дополнительные графы к ней и рамки выполняют сплошными основными и сплошными тонкими линиями по ГОСТ 2.303.
5.3 Основную надпись располагают в правом нижнем углу конструкторских документов.
На листах формата А4 по ГОСТ 2.301 основную надпись располагают вдоль короткой стороны листа.
Таблица изменений в основной надписи при необходимости может продолжаться вверх или влево от основной надписи (при наличии графы 33 - влево от нее).
При расположении таблицы изменений слева от основной надписи наименования граф 14 - 18 повторяют.
Расположение дополнительных граф показано в приложении А.
5.4 Для быстрого нахождения на чертеже (схеме) составной части изделия или его элемента рекомендуется разбивать поле чертежа (схемы) на зоны. Отметки, разделяющие чертеж (схему) на зоны, рекомендуется наносить на расстоянии, равном одной из сторон формата А4 (рисунки Б.1 и Б.2 приложения Б).
Отметки наносят:
по горизонтали - арабскими цифрами справа налево;
по вертикали - прописными буквами латинского алфавита снизу вверх.
Зоны обозначают сочетанием цифр и букв, например: 1А, 2А, 3А, 1В, 2В, 3В и т.д.
5.5 На чертежах (схемах) с одним обозначением, выполненных на нескольких листах, нумерация зон по горизонтали должна быть сквозной в пределах всех листов.
6.1 В графах основной надписи и дополнительных графах (номера граф на формах показаны в круглых скобках) указывают значения соответствующих реквизитов или атрибутов согласно таблице 1:
в графе 1 - наименование изделия и наименование документа, если этому документу присвоен код. Для изделий народнохозяйственного назначения допускается не указывать наименование документа, если его код определен ГОСТ 2.102, ГОСТ 2.601, ГОСТ 2.602, ГОСТ 2.701. Наименование изделия должно соответствовать принятой терминологии и быть по возможности кратким. Наименование изделия записывают в именительном падеже единственного числа. В наименовании, состоящем из нескольких слов, на первом месте помещают имя существительное, например: «Колесо зубчатое». В наименовании изделия не включают, как правило, сведения о назначении изделия и его местоположении;
в графе 2 - обозначение документа по ГОСТ 2.201 и код, если его код определен ГОСТ 2.102, ГОСТ 2.601, ГОСТ 2.602, ГОСТ 2.701. Допускается применять ранее принятую систему обозначений документов;
в графе 3 - обозначение материала детали (графу заполняют только на чертежах деталей);
в графе 4 - литеру, присвоенную данному документу (на документе в бумажной форме графу заполняют последовательно, начиная с крайней левой клетки).
Допускается в рабочей конструкторской документации литеру проставлять только в спецификациях и технических условиях.
Для изделий, разрабатываемых по заказу Министерства обороны, перечень конструкторских документов, на которых должна обязательно проставляться литера, согласуется с заказчиком (представительством заказчика);
в графе 5 - массу изделия по ГОСТ 2.109;
в графе 6 - масштаб (проставляется в соответствии с ГОСТ 2.302 и ГОСТ 2.109);
в графе 7 - порядковый номер листа (на документах, состоящих из одного листа, графу не заполняют);
в графе 8 - общее количество листов документа (указывают только на первом листе);
в графе 9 - наименование или код организации, выпускающей документ (графу не заполняют, если код содержится в обозначении документа);
в графе 10 - характер работы, выполняемой лицом, подписывающим документ, в соответствии с формами 1 и 2. Свободную строку заполняют по усмотрению разработчика, например: «Начальник отдела», «Начальник лаборатории», «Рассчитал».
Допустимые значения атрибута устанавливает организация;
в графе 11 - фамилии лиц, подписавших документ;
в графе 12 - подписи лиц, фамилии которых указаны в графе 11.
Подписи лиц, разработавших данный документ и ответственных за нормоконтроль, являются обязательными.
При отсутствии титульного листа допускается подпись лица, утвердившего документ, размещать на свободном поле первого или заглавного листа документа в порядке, установленном для титульных листов по ГОСТ 2.105;
в графе 13 - дату подписания документа;
в графах 14 - 18 - сведения об изменениях, которые заполняют в соответствии с требованиями ГОСТ 2.503;
в графе 19 - инвентарный номер подлинника по ГОСТ 2.501;
в графе 20 - сведения о приемке подлинника в службу технической документации (подпись и дата приемки);
в графе 21 - инвентарный номер подлинника, взамен которого выпущен данный подлинник по ГОСТ 2.503;
в графе 22 - инвентарный номер дубликата по ГОСТ 2.502;
в графе 23 - сведения о приемке дубликата в службу технической документации (подпись и дата приемки);
в графе 24 - обозначение документа, взамен или на основании которого выпущен данный документ;
в графе 25 - обозначение соответствующего документа, в котором впервые записан данный документ. Обязательный реквизит для всех документов, заимствованных из документации других изделий;
в графе 26 - обозначение документа, повернутое на 180° для формата А4 и для форматов больше А4 при расположении основной надписи вдоль длинной стороны листа и на 90° для форматов больше А4 при расположении основной надписи вдоль короткой стороны листа;
в графе 27 - знак, установленный заказчиком в соответствии с требованиями нормативной документации и проставляемый заказчиком или представительством заказчика;
в графе 28 - номер решения и год утверждения документации соответствующей литеры. Год утверждения указывают четырьмя цифрами;
в графе 29 - номер решения и год утверждения документации. Год утверждения указывают четырьмя цифрами;
в графе 30 - индекс заказчика в соответствии с нормативной документацией;
в графе 31 - подпись лица, копировавшего документ. При копировании электронного документа обязательный реквизит;
в графе 32 - обозначение формата листа по ГОСТ 2.301. Для электронного документа указывают формат листа, на котором будет соответствовать указанный в графе 6 масштаб;
в графе 33 - обозначение зоны, в которой находится изменяемая часть изделия;
в графе 34 - номера авторских свидетельств на изобретения, использованные в данном изделии;
в графе 35 - номер версии документа в электронной форме, с которого на устройствах вывода ЭВМ получен документ в бумажной форме. Графу заполняют только для документов, изготавливаемых с применением ЭВМ;
в графе 36 - единица измерения (метрическая или дюймовая);
в графе 37 - метод проецирования. Способ расположения проекций детали на чертеже. Обязательный, если проецирование не соответствует ГОСТ 2.305;
в графе 38 - имя файла, содержащего документ в электронной форме. Графу заполняют только для документов, изготавливаемых с помощью ЭВМ;
в графе 39 - признак аутентичного документа (обязательный для аутентичных документов);
в графе 40 - код документа в зависимости от характера использования.
Для электронных документов в соответствии с ГОСТ 2.102 (таблица 2) применяют следующие коды:
1 - оригинал,
2 - подлинник,
3 - дубликат,
4 - копия.
в графе 41 - Обозначение документа аналогичного изделия, для которого ранее изготовлены средства технологического оснащения, необходимые для данного изделия. Для документов, выполняемых только на бумажном носителе, допускается использовать графу 24.
Примечания:
1 В графах 13, 18, 20, 23 при указании календарной даты на бумажном носителе год указывают двумя последними цифрами.
2 Графа 26 на форме 2а является обязательной только для чертежей и схем.
3 Графы, выполненные штриховой линией, вводят при необходимости. Графы 27 - 30 обязательны для документов, утверждаемых заказчиком.
4 При использовании для последующих листов чертежей и схем формы 1, графы 1, 3 - 6, 9 не заполняют.
Форма 1
Основная надпись и дополнительные графы для чертежей и схем

Форма 2
Основная
надпись и дополнительные графы для
текстовых
конструкторских документов (первый или заглавный лист)

Форма 2а
Основная
надпись и дополнительные графы для чертежей (схем)
и текстовых конструкторских документов (последующие листы)

Форма 2б
Основная
надпись и дополнительные графы для текстовых конструкторских
документов при двустороннем светокопировании (последующие листы)

(справочное)
Примеры размещения основной надписи и дополнительных граф к ней
Для формата А4
Для
форматов больше А4 при расположении основной надписи
вдоль длинной стороны листа

Для
форматов больше А4 при расположении основной надписи
вдоль короткой стороны листа

1 - основная надпись; 2 - дополнительные графы
(справочное)
Пример разбивки поля чертежа на зоны

Рисунок Б.1
Рисунок Б.2
Ключевые слова: конструкторская документация, основная надпись, электронный конструкторский документ, оформление документа, реквизит документа, электронная цифровая подпись