Указания распространяются на применение ВЭИ на новых и реконструируемых магистральных и промысловых газопроводах и ответвлениях от них условным диаметром до 1400 мм включительно с избыточным давлением среды до 10 МПа (100 кг/см2) при одиночной прокладке и многониточной прокладке в технических коридорах, а также на промысловых трубопроводах условным диаметром до 500 мм включительно с избыточным давлением среды выше 10 МПа (100 кг/см2) до 20 МПа (200 кг/см2).
Действие настоящих Указаний распространяется на все организации, занимающиеся проектированием, строительством и эксплуатацией газопроводов, а также организации, занимающиеся разработкой и изготовлением электроизолирующих вставок для газопроводов.
| Обозначение: | ВСН 39-1.22-007-2002 |
| Название рус.: | Указания по пректированию вставок электроизолирующих для газопровода |
| Статус: | действующий (Введен впервые) |
| Дата актуализации текста: | 01.10.2008 |
| Дата добавления в базу: | 01.02.2009 |
| Дата введения в действие: | 01.03.2002 |
| Разработан: | ОАО "Газпром" ДАО "Оргэнергогаз" ООО "Газнадзор" |
| Утвержден: | ОАО "Газпром" (15.01.2002) |
| Опубликован: | ООО "ИРЦ Газпром" № 2002 |
Система нормативных документов в газовой промышленности
ВЕДОМСТВЕННЫЕ СТРОИТЕЛЬНЫЕ НОРМЫ
| УКАЗАНИЯ ПО ПРИМЕНЕНИЮ ВСТАВОК ЭЛЕКТРОИЗОЛИРУЮЩИХ ДЛЯ ГАЗОПРОВОДА ВСН 39-1.22-007-2002 |
ОТКРЫТОЕ АКЦИОНЕРНОЕ ОБЩЕСТВО «ГАЗПРОМ»
Общество с ограниченной ответственностью (ООО «Газнадзор»)
Общество с ограниченной ответственностью«Информационно-рекламный центр газовой промышленности» (ООО «ИРЦ Газпром»)
Москва 2002
ПРЕДИСЛОВИЕ
| РАЗРАБОТАН | ДАО «Оргэнергогаз» |
| СОГЛАСОВАН | Федеральным горным и промышленным надзором России от 26 декабря 2001 г. №10-03/972, Управлением по транспортировке газа и газового конденсата ОАО «Газпром», Отделом противокоррозионной защиты и диагностики коррозии сооружений ОАО «Газпром», Обществом с ограниченной ответственностью «Газнадзор». |
| ВНЕСЕН | Управлением по транспортировке газа и газового конденсата ОАО «Газпром» |
| УТВЕРЖДЕН | Членом Правления ОАО «Газпром» Б.В. Будзуляком 15 января 2002 г. |
| ВВЕДЕН В ДЕЙСТВИЕ | Приказом ОАО «Газпром» № 17 от 1 марта 2002 г. |
| ВВЕДЕН ВПЕРВЫЕ |
|
| ИЗДАН | Обществом с ограниченной ответственностью «Информационно-рекламный центр газовой промышленности» (ООО «ИРЦ Газпром») |
Содержание
Указания разработаны на основе опыта изготовления, монтажа иэксплуатации опытных партий ВЭИ с использованием результатов испытаний и исследованийпараметров ВЭИ при опытно-промышленной эксплуатации, а также нормативныхдокументов, приведенных в приложении 2 к настоящим Указаниям
При разработке Указаний использован отечественный изарубежный опыт применения электроизолирующих вставок различной конструкции ирезультаты полигонных и опытно-промышленных испытаний применения ВЭИ напредприятиях ОАО «Газпром»,
Указания устанавливают единые требования по применению ВЭИдля электрического разъединения газопроводов и предназначены для организаций,занимающихся проектированием, строительством и эксплуатацией газопроводныхсистем, а также организаций, занимающихся их изготовлением.
Указания разработаны ДАО «Оргэнергогаз» ОАО «Газпром».
В разработке правил принимали участие: Салюков В.В.,Долганов М.Л. (ОАО «Газпром»), Петров Н.Г.,Семенюга В.В., Муханов Н.А.,Спиридонов В.В., Бирюков А.В. (ДАО «Оргэнергогаз») Эристов В.И. (Газнадзор).
Система нормативных документов в газовой промышленности
ВЕДОМСТВЕНЫЕ СТРОИТЕЛЬНЫЕ НОРМЫ
| УКАЗАНИЯ |
Дата введения 2002-03-01
1.1. Указания распространяются на применение ВЭИ на новых иреконструируемых магистральных и промысловых газопроводах и ответвлениях от нихусловным диаметром до 1400 мм включительно с избыточным давлением среды до 10МПа (100 кг/см2) при одиночной прокладке и многониточной прокладке втехнических коридорах, а также на промысловых трубопроводах условным диаметромдо 500 мм включительно с избыточным давлением среды выше 10 МПа (100 кг/см2)до 20 МПа (200 кг/см2).
1.2. Действие настоящих Указаний распространяется на всеорганизации, занимающиеся проектированием, строительством и эксплуатациейгазопроводов, а также организации, занимающиеся разработкой и изготовлениемэлектроизолирующих вставок для газопроводов.
1.3. Указания разработаны в развитие и дополнениедействующих нормативных документов и правил (приложение 2), требованиями которыхнадлежит руководствоваться при проектировании, организации и проведении работ,предусмотренных настоящими Указаниями.
1.4. Указания устанавливают требования к установке иэксплуатации вставок электроизолирующих (ВЭИ) в газотранспортных системах.
1.5. Вставка электроизолирующая для газопроводовпредназначена для обеспечения электрического разъединения защищаемого катоднойзащитой объекта от не защищаемого, заземленного или имеющего собственнуюсистему ЭХЗ, а также электрического секционирования трубопроводов, проходящих взонах воздействия блуждающих токов.
1.6. ВЭИ могут устанавливаться надземно, в шахтах или вгрунте с изоляцией усиленного типа. При этом наиболее предпочтительна установкав местах доступных для технического контроля.
1.7. ВЭИ не должна нарушать конструктивную схемутрубопровода и ухудшать его эксплуатационные свойства.
1.8. Необходимость и место установки ВЭИ для повышенияэффективности электрохимической защиты магистральных и промысловых газопроводовопределяется конкретным проектом.
2.1. ВЭИ - это трубопроводное изделие (фитинг),изготовленное и испытанное в заводских условиях, состоящее из двухметаллических патрубков с соответствующими трубопроводу характеристиками иприсоединительными размерами, соединенных между собой силовыми элементами(стеклопластиковая оболочка с кольцевыми буртами на патрубках, фланцы сболтовыми или сварными элементами), электрически изолированными диэлектрическимматериалом. Герметичность ВЭИ обеспечивается специальным уплотнением.
2.2. Изготовление и испытание ВЭИ производятся всоответствии с техническими условиями завода - изготовителя и должныудовлетворять требованиям нормативных документов (приложение 2) и настоящим Правилам.
2.3. ВЭИ поставляется в виде готового к монтажу заводскогоизделия, в технический паспорт которого внесены все результаты прочностных иэлектрических испытаний и гарантийные обязательства завода - изготовителя.
2.4. Характеристики прочности и долговечности ВЭИ должныбыть не ниже характеристик участка трубопровода, где устанавливается ВЭИ.
3.1. ВЭИ должны соответствовать требованиям техническихусловий завода - изготовителя, комплектов документации согласно спецификации накаждый типоразмер, требованиям СНиП 2.05.06-85*, СНиП III-42-80*, ГОСТР 51164-98, РД 08-59-94 и настоящих Указаний.
3.2. Концевые патрубки должны быть изготовлены из прямошовных(бесшовных) труб, рассчитанных по рабочему давлению (не более 10 МПа) участкагазопровода по категории участков «В» по СНиП 2.05.06-85* из материалов и посортаменту в соответствии с «Инструкциейпо применению стальных труб в газовой и нефтяной промышленности». - М. 2000г. При этом, марка стали должна соответствовать трубопроводу, в которыйвваривается ВЭИ.
4.1. Организация, осуществляющая монтаж ВЭИ. должна иметьлицензию Госгортехнадзора России на проведение соответствующих работ.
4.2. Все работы по монтажу ВЭИ должны осуществляться всоответствии с проектом.
Любые отклонения от проекта должны быть согласованы спроектной организацией до начала монтажа.
4.3. ВЭИ, устанавливаемые на газотранспортных системах,должны отвечать требованиям технических условий, утвержденных в установленномпорядке, нормативной документации и техническим параметрам участка газопровода,на котором устанавливается ВЭИ и иметь паспорт (сертификат)завода-изготовителя.
Проектирование и установку ВЭИ следует осуществлять нанаименее напряженных участках газопровода в местах доступных для освидетельствованиятехнического состояния ВЭИ и не подверженных механическим воздействиям,подтоплению и другим внешним воздействиям.
Расположение ВЭИ следует предусматривать на повышенныхучастках газопроводов, где не может скапливаться жидкость внутри газопровода (вода,конденсат, метанол и т.п.).
4.5. При монтаже ВЭИ на эксплуатируемых газопроводахгазотранспортное предприятие (ГП) обязано провести анализ готовности участкагазопровода к установке ВЭИ, выполнить необходимые работы по подготовке объектав соответствии с предъявляемыми техническими требованиями, согласовать режимытранспорта газа с ЦПДУ и обеспечить проведение работ в соответствии стребованиями по безопасной организации работ, изложенными в соответствующихдокументах (приложение 2) и настоящих Указаниях.
4.6. Эксплуатирующая организация должна выдать производителюогневых работ наряд-допуск и осуществить огневые работы в порядке,установленном РД09-364-00.
4.7. При монтаже ВЭИ на действующих газопроводахпредварительно отключают ближайшие установки электрохимической защиты иэлектроперемычки (если они имеются и работают).
4.8. Отрывается траншея, обеспечивающая свободную ибезопасную работу в ней. При этом, расстояние между трубопроводом и откосомтраншеи должно быть не менее 2,5 м, а просвет между трубой и дном траншеи неменее 0,7 м. Длина траншеи должна быть больше длины ВЭИ на 3 м в каждуюсторону. Траншея должна с двух сторон иметь два удобных выхода.
4.9. Удаляется изоляционное покрытие и очищаются меставырезки катушек не менее чем на 2 м в стороны, примыкающих к катушке участковтрубопровода и места приварки перемычек и контактных соединений проводовустановок ЭХЗ и КИП.
4.10. Перед вырезкой катушки к двум участкам трубопровода,между которыми монтируется ВЭИ, приваривается электрическая изолированнаяперемычка безопасности с сечением по меди не менее 25 мм2.
4.11. Приварку перемычек и контактных соединенийпроводов установок ЭХЗ и КИП к поверхности трубопровода следует производить:
Для труб, изготовленных из сталей с временным сопротивлениемразрыву 539 МПа (55 кгс/мм»):
- термитной или электродуговой сваркой, согласно п. 10.6 СНиП III-42-80*.
Для труб, изготовленных из сталей с временным сопротивлениемразрыву более 539 МПа (55 кгс/мм2):
- термитной сваркой с применением только медного термита илиэлектродуговой сваркой к продольным и кольцевым сварным швам, согласно п. 10.6 СНиП III-42-80*;
- электродуговой сваркой с применением электродов с основнымпокрытием марки Э 42-А-Б (ГОСТ 9467-75), диаметром 3 мм при силе тока не более120 А (ВСН006-89).
4.12. Вырезка катушки производится в месте установки ВЭИ всоответствии с размерами вставки, затем катушка извлекается и подготавливаютсякромки трубопровода под сварку в соответствии с требованиями СНиП 2.05.06-85*, СП105-34-96, ВСН006-89, ВСН51-1-97 и РД 558-97.
4.13. Перед монтажом ВЭИ внутренняя полость примыкающихучастков труб должна быть очищена, а кромки и прилегающие к ним внутренняя инаружная поверхности труб зачищены на ширину, обеспечивающую нормальные условиясварки встык в соответствии с требованиями СНиП 2.05.06-85*, СП105-34-96, ВСН006-89 и РД 558-97.
Электропроводящий смазочный материал должен быть полностьюудален со свариваемых частей труб и патрубков.
4.14. По окончании варки ВЭИ устанавливается КИП дляпроведения измерений изолирующих свойств вставки (приложение 5).
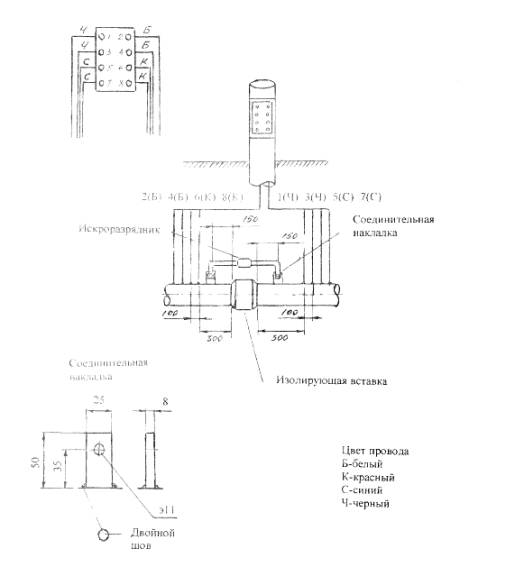
4.15. Между участками газопровода, примыкающими к ВЭИ,необходимо установить искроразрядник, рассчитанный на напряжение пробоя 500 V иминимальный импульсный ток 1500 А.
4.16. Схема установки КИП и искроразрядника в месте монтажаВЭИ показана на рисунке (приложение 5).Подводящие провода к КИП должны иметь сечение по меди не менее 2,5 мм2,а искроразрядник должен быть подключен короткими металлическими проводникамисечением эквивалентным 25 мм2 по меди.
5.1. При производстве работ по испытанию участка новогогазопровода с ВЭИ на прочность и проверке на герметичность необходиморуководствоваться проектом и следующими документами:
СНиП2.05.06-85*, СНиПIII-42-80*, ВСН011-88, ВСН012-88, СП111-34-96, ВРД39-1.10-006-2000.
5.2. Участки нового газопровода с ВЭИ подвергаютсягидравлическим испытаниям и считаются выдержавшими испытания, если онисохранили прочность и герметичность в течение не менее 2 часов прииспытательном давлении на участках I и II категорий Рисп=1,25, Pmax (Рmах - максимальное рабочее давление в газопроводе); III иIV категорий Рисп=1,1 Pmax.
5.3. При установке ВЭИ на газопроводе, находящемся вэксплуатации, гарантийные стыки проверяются ультразвуковым ирентгенографическим методами согласно требованиям ВСН012-88 с составлением акта на сварку гарантийных стыков.
5.4. ВЭИ с гарантийными стыками, установленные нагазопроводе, находящемся в эксплуатации, испытываются максимальным возможнымрабочим давлением газа на данном участке в течение не менее 2 часов.
5.5. После испытания ВЭИ шунтируется на КИПе и удаляется электрическаяперемычка безопасности, установленная до начала монтажа ВЭИ.
5.6. Участки газопровода, примыкающие к ВЭИ, протяженностьюне менее 2 м, покрываются изоляцией усиленного типа по ГОСТ51164-98, качество которой проверяется искровым дефектоскопом согласнотребованиям ГОСТ 9.602-89.
5.7. После завершения изоляционных работ шунты с КИПаснимаются.
5.8. Контроль исправности ВЭИ передвводом в эксплуатацию производят измерением разности потенциалов между обоимиконцами электроизолирующей вставки и измерением «кажущегося» сопротивления.
При измерениях разности потенциалов между концами ВЭИ наодной стороне ближайшая УКЗ отключается, а на другой стороне на ближайшей УКЗставится прерыватель с тактами прерывания 12/3. Значения разности потенциаловмежду концами ВЭИ должны быть не менее 0,1 В по абсолютной величине.
Измерение «кажущегося» сопротивления производят приборамитипа М 416 или МС 08.
На газопроводах допускаются следующие результаты измерений«кажущегося» сопротивления:
более 5 Ом - при полиэтиленовой изоляции;
более 0,40 Ом - при старой битумной изоляции.
5.9. После окончания испытаний и изоляционных работ приподземной установке ВЭИ траншея засыпается песчаным грунтом с последующейподбивкой и трамбовкой. Верхняя кромка грунта должна быть выше верхнейобразующей ВЭИ не менее чем на 0,7 м.
5.10. На каждую ВЭИ составляется исполнительная техническаядокументация в соответствии с требованиями ВСН012-88 и акт о приемке в эксплуатацию установленной формы (приложение 3), в котором отражают качество сваркии изоляции, результаты испытаний, а также сведения об исполнителях.
6.1 Конструкция ВЭИ не требует специального техническогообслуживания и ремонта, отличающегося от обслуживания линейной частигазопроводных систем, в течение всего срока службы.
6.2 Эксплуатирующая организация должна иметь технологическийпаспорт на каждую установленную ВЭИ, в котором должны быть указаны:местоположение и обозначение вставки, наружный диаметр металлических патрубков,толщина стенки патрубков, марка стали, рабочее давление, тип защитногопокрытия, номер вставки, завод-изготовитель, дата изготовления, дата установкив газопровод (приложение 4).
К технологическому паспорту должны быть приложены:
- копии сертификатов (паспортов) на материалы, из которыхизготовлена ВЭИ;
- данные входного контроля всех материалов (при отсутствиисертификатов);
- свидетельства о результатах испытаний по определениюфизико-механических характеристик материалов согласно требований чертежей итехнических условий завода-изготовителя;
- копии протоколов или актов испытаний;
- заключение о готовности;
- акт о приемке в эксплуатацию.
6.3. Контроль исправности ВЭИ после ввода в эксплуатациюзащитной системы осуществляют в соответствии с п.5.8 настоящих Указаний.
При эффективно действующей ВЭИ разница между потенциаломвключения на защищаемой стороне ВЭИ значительно выше, чем на не защищаемой поабсолютной величине.
6.4. Периодичность технического осмотра и проверкиисправности ВЭИ должна осуществляться в соответствии с требованиями «Правилтехнической эксплуатации магистральных газопроводов» ВРД39-1.10-006-2000 (п. 8.3), но не реже одного раза в квартал в объеме п.5.8 настоящих Указаний.
7.1. Хранение упакованных вставок разрешается внеотапливаемых складских помещениях при температуре от - 60°С до + 60°С. Недопускается попадание внутрь вставок атмосферных осадков, пыли, загрязнений.
7.2. Транспортирование упакованных вставок разрешаетсяпроизводить любым видом транспорта при температуре от -60 °С до +60 °С.
7.3. При хранении и транспортировании вставок торцы концевыхпатрубков должны быть плотно закрыты технологическими крышками, скрепленнымирезьбовыми стяжками.
8.1. Перед началом работ ответственный руководитель отгазотранспортного предприятия проводит инструктаж бригады Исполнителя потехнике безопасности, уточняет особенности конкретного участка газопровода,знакомит с действующими на данном предприятии и в отрасли документами иинструкциями, знание которых необходимо при выполнении работ по монтажу ВЭИ.
8.2. Газотранспортное предприятие несет ответственность засоблюдение правил техники безопасности при выполнении всех работ нагазопроводе, за обеспечение оговоренных режимов перекачки газа, за все действияперсонала по погрузке, транспортировке, вырезке катушек и варке ВЭИ, испытаниями изоляционным работам. Персонал, в том числе персонал Исполнителя,задействованный в перечисленных выше работах, должен все время находиться подконтролем и руководством ответственного представителя ГП.
8.3. При монтаже к эксплуатации ВЭИ необходимо соблюдать: «Правилатехнической эксплуатации электроустановок потребителей», «Правилатехники безопасности при эксплуатации электроустановок», «Правила устройства электроустановок»,«Правилатехнической эксплуатации магистральных газопроводов», «Правила безопасностипри эксплуатации магистральных газопроводов», «Правила пожарнойбезопасности в газовой промышленности», «Правилаустройства и безопасной эксплуатации грузоподъемных кранов», настоящиеУказания, а также действующие в конкретном ГП инструкции по техникебезопасности.
ВЭИ -вставка электроизолирующая.
ГИС -газоизмерительная станция.
ЦПДУ - центральноепроизводственно-диспетчерское управление.
ГП -газотранспортное предприятие.
КИП - контрольныйизмерительный пункт.
УКЗ - установкакатодной защиты.
ЛЭС - линейнаяэксплуатационная служба.
Дн - наружныйдиаметр патрубков ВЭИ.
Рраб - рабочеедавление в газопроводе.
Рисп -испытательное давление.
Pmax - максимальное рабочее давление на участкегазопровода.
U -напряжение.
I - силатока.
В - вольт.
А - ампер.
1. Правила безопасности при эксплуатации магистральныхгазопроводов. «Недра». М.. 1985 г.
2. Правила технической эксплуатации магистральныхгазопроводов. ВРД39-1.10-006-2000., М.
3. Правилабезопасности в нефтяной и газовой промышленности. Госгортехнадзор, 1993 г.
4. Правила устройства электроустановок.Энергия, М., 1998 г.
5. Правилатехнической эксплуатации электроустановок потребителей. Энергоатомиздат,М., 1992 г.
6. Правилатехники безопасности при эксплуатации электроустановок.
7. ВППБ01-04-98. Правила пожарной безопасности для предприятий и организацийгазовой промышленности.
8. Правилаустройства и безопасной эксплуатации грузоподъемных кранов.
9. Положение о техническом надзоре заказчика за качествомстроительства (реконструкции) и капитального ремонта объектов газовойпромышленности. М., 1994 г.
10. СНиП2.05.06-85*. Магистральные трубопроводы. Нормы проектирования.
11. СНиПIII-42-80*. Правилапроизводства и приемки работ. Магистральные трубопроводы.
12. СНиП3.05.05-84. Технологическое оборудование и технологические трубопроводы.
13. СНиП III-4-80 Техникабезопасности в строительстве.
14. РД09-364-00. Типовая инструкция по организации безопасного проведения огневыхработ на взрывоопасных и взрывопожароопасных объектах.
15. Типовая инструкция по организации безопасного ведениягазоопасных работ. Госгортехнадзор, 1985 г.
16. ВСН006-89. Строительство магистральных и промысловых трубопроводов. Сварка.
17. ВСН51-1-97 Правила производства работ при капитальном ремонте магистральныхгазопроводов.
18. ВСН008-88 .Противокоррозионная и тепловая защита.
19. ВСН009-88 . Средства иустановки химзащиты.
20. ВСН011-88. Очистка полости и испытание.
21. ВСН012-88 Контроль качества и приемка работ.
22. РД 51-108-86. Инструкция по технологии сварки и резкитруб при производстве ремонтно-восстановительных работ на магистральныхгазопроводах.
23. ГОСТ9.602-89. Единая система защиты от коррозии и старения. Сооруженияподземные.
24. РД 558-97 Руководящий документ по технологии сварки трубпри производстве ремонтно-восстановительных работ на газопроводах.
25. ГОСТР 51164-98. Трубы стальные. Защита металлов от коррозии.
26. ГОСТ9.602-89. Единая система защиты от коррозии и старения. Сооруженияподземные. Общие требования к защите от коррозии.
27. Руководство по эксплуатации средств противокоррозионнойзащиты подземных газопроводов. М., ВНИИгаз, 1986 г.
28. ОНТП51-1-85. Газопроводы. Нормы технологического проектирования.
29. СП105-34-96. Свод правил по производству сварочных работ и контролю качествасварных соединений.
30. СП 111-34-96. Свод правил по очисткеполости и испытанию газопроводов.
31. СНиП 2.04.08-87.Газоснабжение.
32. СНиП 3.05.02-88.Газоснабжение.
33. Инструкцияпо применению стальных труб в газовой и нефтяной промышленности. М. 2000 г.
34. РД 08-59-94. Положение о порядке разработки(проектирования) допуска к испытаниям и серийному выпуску нового бурового,нефтегазопромыслового, геологоразведочного оборудования для трубопроводноготранспорта и проектирования технологических процессов, входящих в переченьобъектов, подконтрольных Госгортехнадзору России.
| ОАО «Газпром» | Город |
| Предприятие | Объект |
| Управление | Место установки |
| Участок | Дата «___»______200_г. |
| Комиссия в составе: |
|
|
|
|
| осмотрела ВЭИ №…………Ду...…..и установила: | |
1. ВЭИ №………….установлена в соответствии с проектом черт. №…………
2. Установлен типовой КИП №…………
| Место установки | Тип КИПа | Выводы выполнены | Примечания | ||||
| км | пикет | Провод марка | Сечение мм2 | Длина м | Глубина прокладки | ||
|
|
|
|
|
|
|
|
|
3.Установлен разрядник:
| Марка разрядника | Параметры разрядника | Соединение выполнено | Изоляция | Примечания | |||
| Up (B) | I (кА) | Провод марка | Сечение, мм2 | Длина | |||
|
|
|
|
|
|
|
|
|
4. Данные электрометрических испытанийВЭИ:
| Потенциалы включения/выключения (с обоих сторон) | «Кажущееся» сопротивление (Ом) | Установлена шунтирующая перемычка (Ом) | |||||
| U вкл | U выкл | U вкл | U выкл | ||||
|
|
|
|
|
|
|
|
|
5. Сварные швыудовлетворяют требованиям технических условий указанным в проекте.
6. Изоляция удовлетворяет требованиям технических условийуказанным в проекте.
Заключение комиссии:
ВЭИ №…………принимается к эксплуатации
Исполнитель работы(организация)_______________________________________________
К акту приложена схема подключения КИП и разрядника
| Председатель комиссии | (подпись) |
| Члены комиссии: | (подписи) |
№…………ВЭИ………………………………………………………………………………….
Наименование объекта……………………………………………………………………………
Место установки ВЭИ……………………………………………………………………………
Заводской номер ВЭИ……………………Наименованиеизготовителя……………………….
Дата изготовления…………………………Дата установки на трубопровод………………….
Диаметр патрубков…………….Толщина стенки……………….Маркастали………………...
Установленное рабочее давление…………….Испытательноедавление……………………...
Тип защитного покрытия…………………………………………………………………………
Дата подписания акта приемки вэксплуатацию………………………………………………..
Тип и параметры установленногоискроразрядника……………………………………………
Места расположения ближайших к ВЭИ с обоих сторон узлакатодной защиты……………
Результаты электрометрических измерений
| Дата | Потенциалы включения/выключения с обоих сторон | «Кажущееся» сопротивление (Ом) | Профилактические работы | Подпись исполнителя | ||||
| U вкл | U выкл | U вкл | U выкл | |||||
|
|
|
|
|
|
|
|
|
|
|
|
|
|
|
|
|
|
|
|
|
|
|
|
|
|
|
|
|
|
|
|
|
|
|
|
|
|
|
|
|
|
|
|
|
|
|
|
|
|
Приложение: Принципиальная схема и план размещения ВЭИ
| Начальник ЛЭС | (подпись) | Ф.И.О. |
